Скачать Типовой проект 411-1-122.85 Альбом I. Пояснительная записка. Технологическая, архитектурно-строительная, санитарно-техническая и электротехническая части. Слаботочные устройства. Автоматизация сантехсистем. Пожарная сигнализацияДата актуализации: 01.01.2021
|
| Обозначение: | Типовой проект 411-1-122.85 |
| Обозначение англ: | 411-1-122.85 |
| Статус: | не определен законодательством |
| Название рус.: | Альбом I. Пояснительная записка. Технологическая, архитектурно-строительная, санитарно-техническая и электротехническая части. Слаботочные устройства. Автоматизация сантехсистем. Пожарная сигнализация |
| Дата добавления в базу: | 01.10.2014 |
| Дата актуализации: | 01.01.2021 |
| Дата введения: | 13.12.1984 |
| Дата окончания срока действия: | 30.06.2003 |
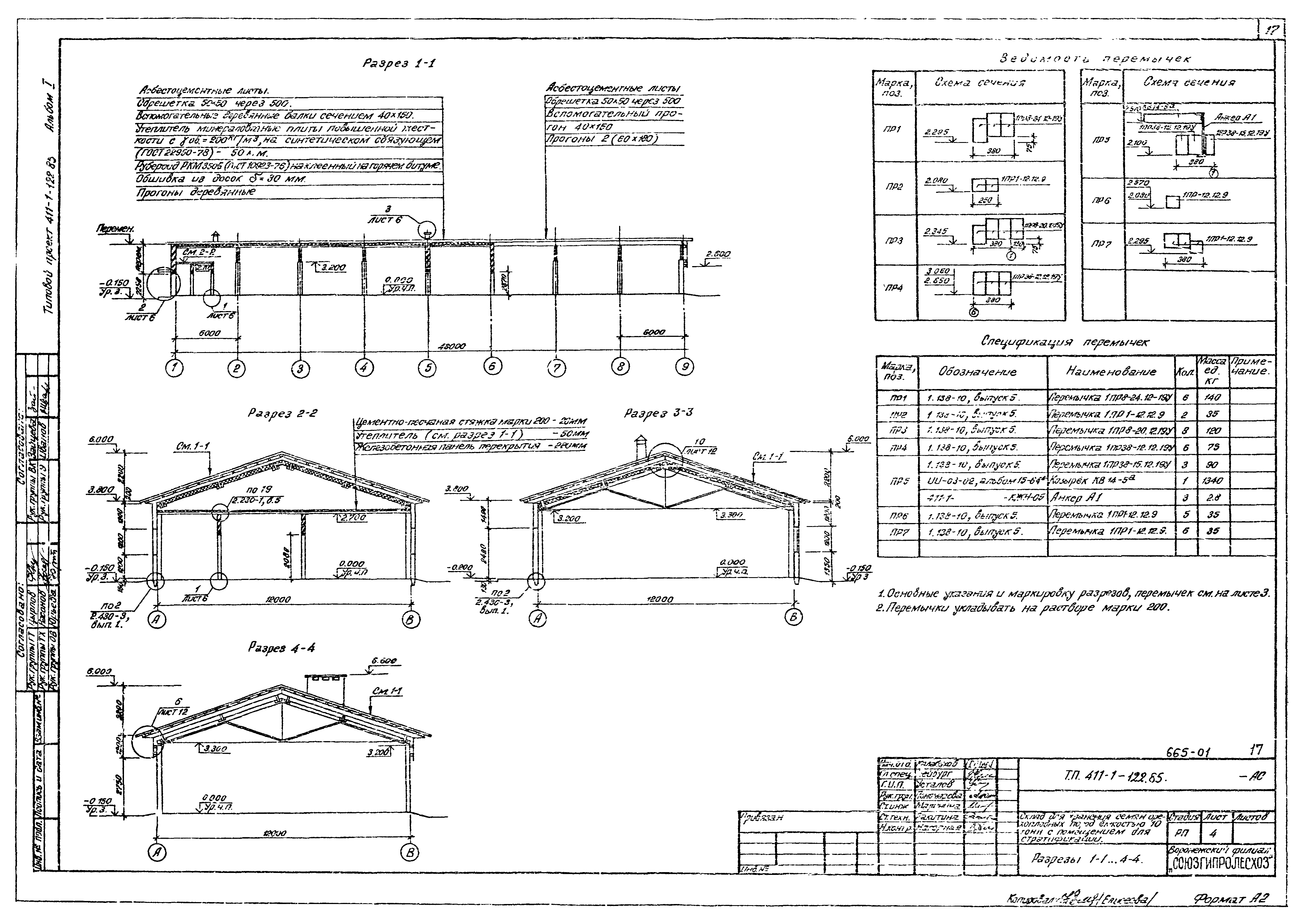
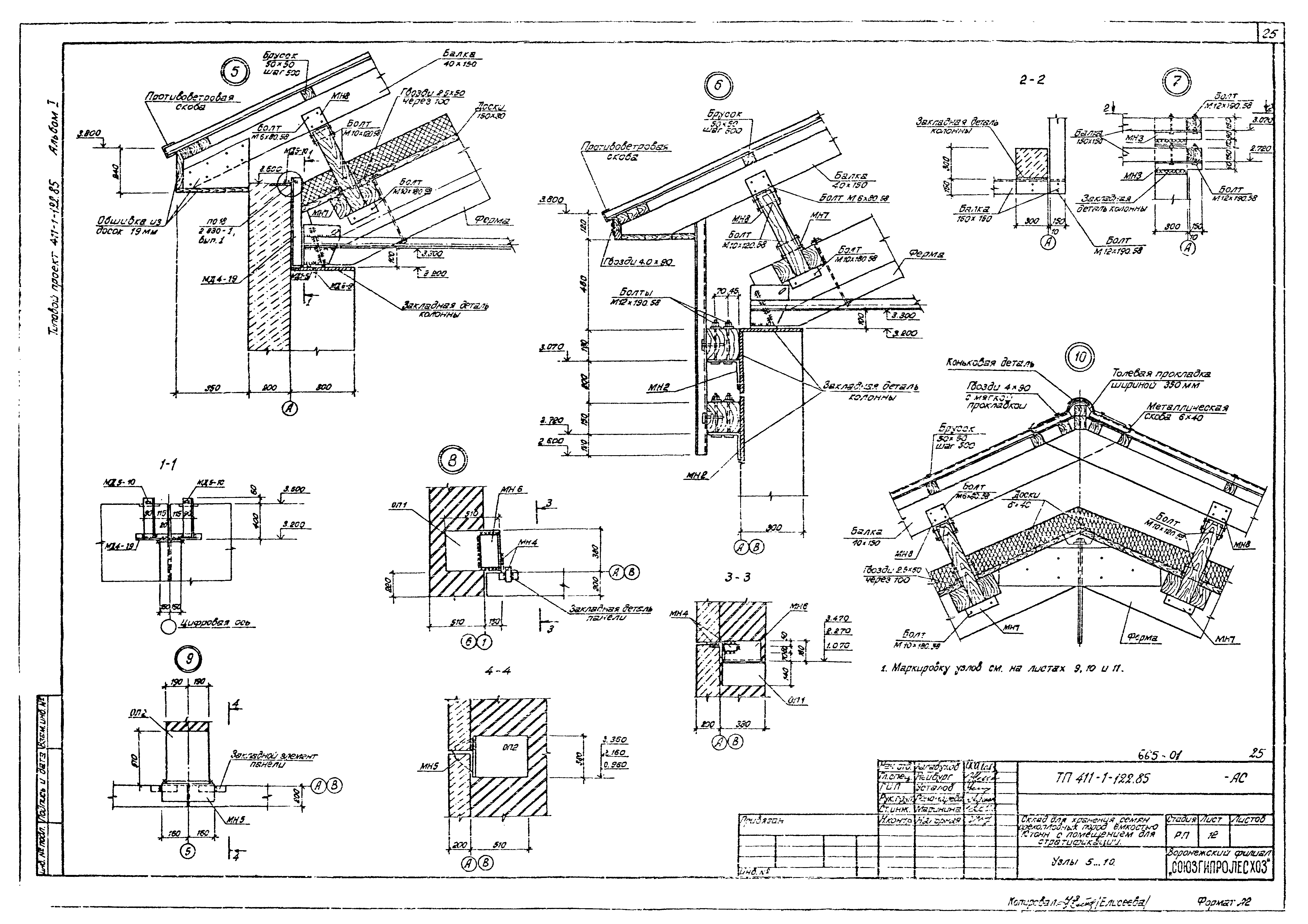
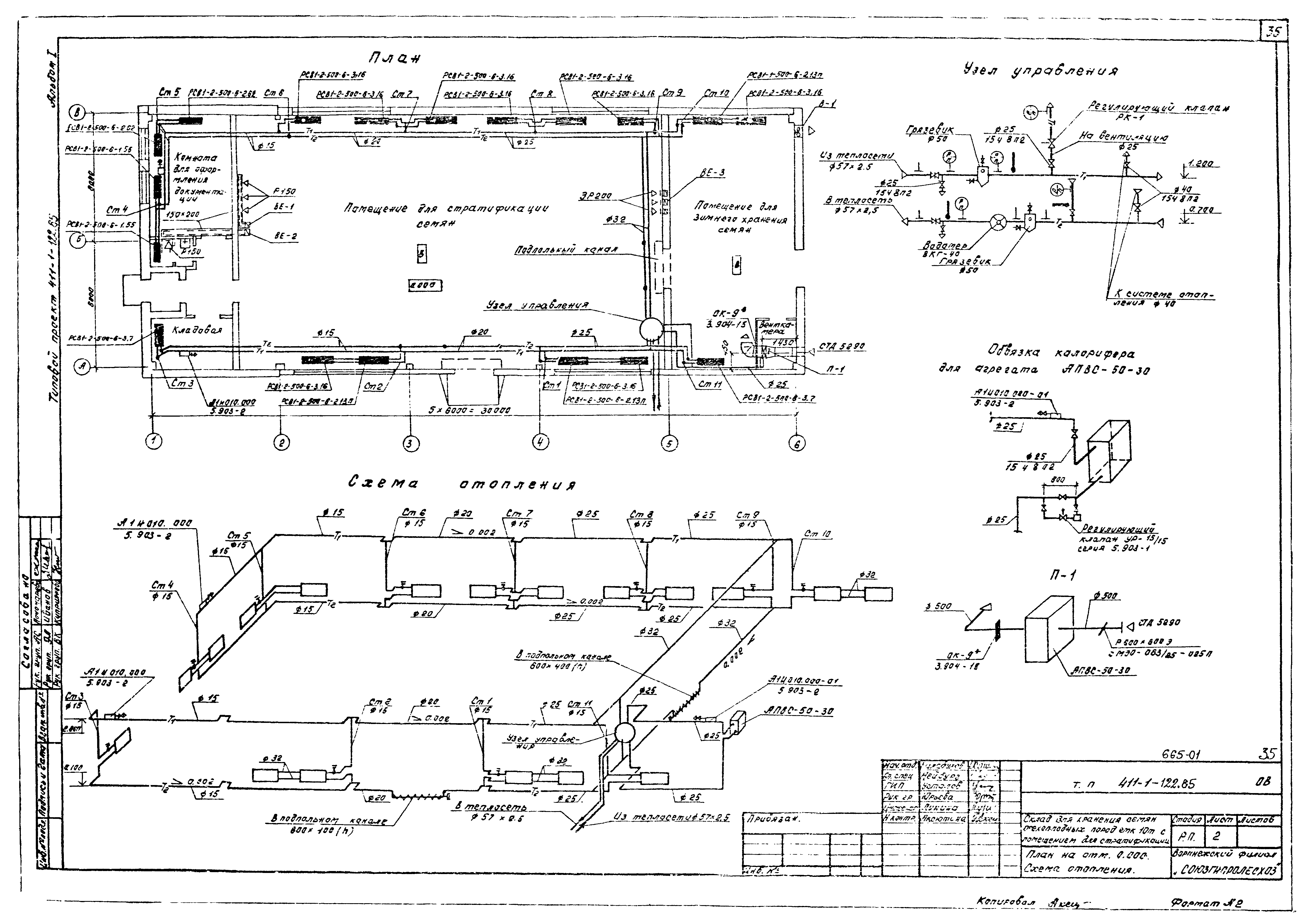
| Оглавление: | Содержание альбома Пояснительная записка Технологическая часть Общие данные План расстановки технологического оборудования Архитектурно-строительные решения Общие данные План на отм. 0.000. Фрагменты 1…3 Разрезы 1-1…4-4 Фасады Узлы 1…4. Планы кровли и полов Схема расположения элементов фундаментов. Узлы. Сечения Схемы расположения элементов подпольных каналов. Сечения Схемы расположения колонн, ферм, опорных плит, связей и асбестоцементных листов покрытия Схема расположения прогонов и балок покрытия, перекрытия и крепления асбестоцементных листов Схема расположения стеновых панелей и асбестоцементных листов Узлы 5…10 Деревянные прогоны П60-3, П60-3-01, П60-3-02 Колонны СК3-42-1-01; СК3-42-1-02 Панели стеновые ПСД60.12.20-Т-1; ПСД60.12.20-Т-2 Плиты опорные ОП5-4-01; ОП2 Элемент монтажный МД4-19 Анкер А1 Элемент монтажный МН1 Элементы монтажные МН2, МН3 Элемент монтажный МН5 Элемент монтажный МН7 Элемент монтажный МН8 Элемент монтажный МН9 Внутренние водопровод и канализация Общие данные План систем на отм. 0.000 Схемы систем В1, К1, Т3, К3 Отопление и вентиляция Общие данные План на отм. 0.000. Схема отопления Силовое электрооборудование и электроосвещение Общие данные Электроосвещение и силовое оборудование. План сетей. Принципиальная схема Спецификация. Ведомость объемов электромонтажных работ Связь и сигнализация Радиофикация и телефонизация Пожарная сигнализация Общие данные. План. Схема Автоматизация сантехсистем Общие данные Приточная система П1. Схема функциональная Приточная система П1. Схема электрическая принципиальная управления Приточная система П1. Схема электрическая принципиальная регулирования Приточная система П1. Схема внешних проводок. Фрагмент плана расположения |
| Разработан: | Воронежский филиал Союзгипролесхоза |
| Утверждён: | 13.12.1984 Гослесхоз СССР (USSR Gosleskhoz 21) |













































