Скачать Типовой проект 411-1-123.85 Альбом I. Пояснительная записка. Технологическая, архитектурно-строительная, санитарно-техническая и электротехническая части. Слаботочные устройства. Автоматизация сантехсистем. Пожарная сигнализацияДата актуализации: 01.01.2021
|
| Обозначение: | Типовой проект 411-1-123.85 |
| Обозначение англ: | 411-1-123.85 |
| Статус: | не определен законодательством |
| Название рус.: | Альбом I. Пояснительная записка. Технологическая, архитектурно-строительная, санитарно-техническая и электротехническая части. Слаботочные устройства. Автоматизация сантехсистем. Пожарная сигнализация |
| Дата добавления в базу: | 01.10.2014 |
| Дата актуализации: | 01.01.2021 |
| Дата введения: | 15.05.1984 |
| Дата окончания срока действия: | 30.06.2003 |
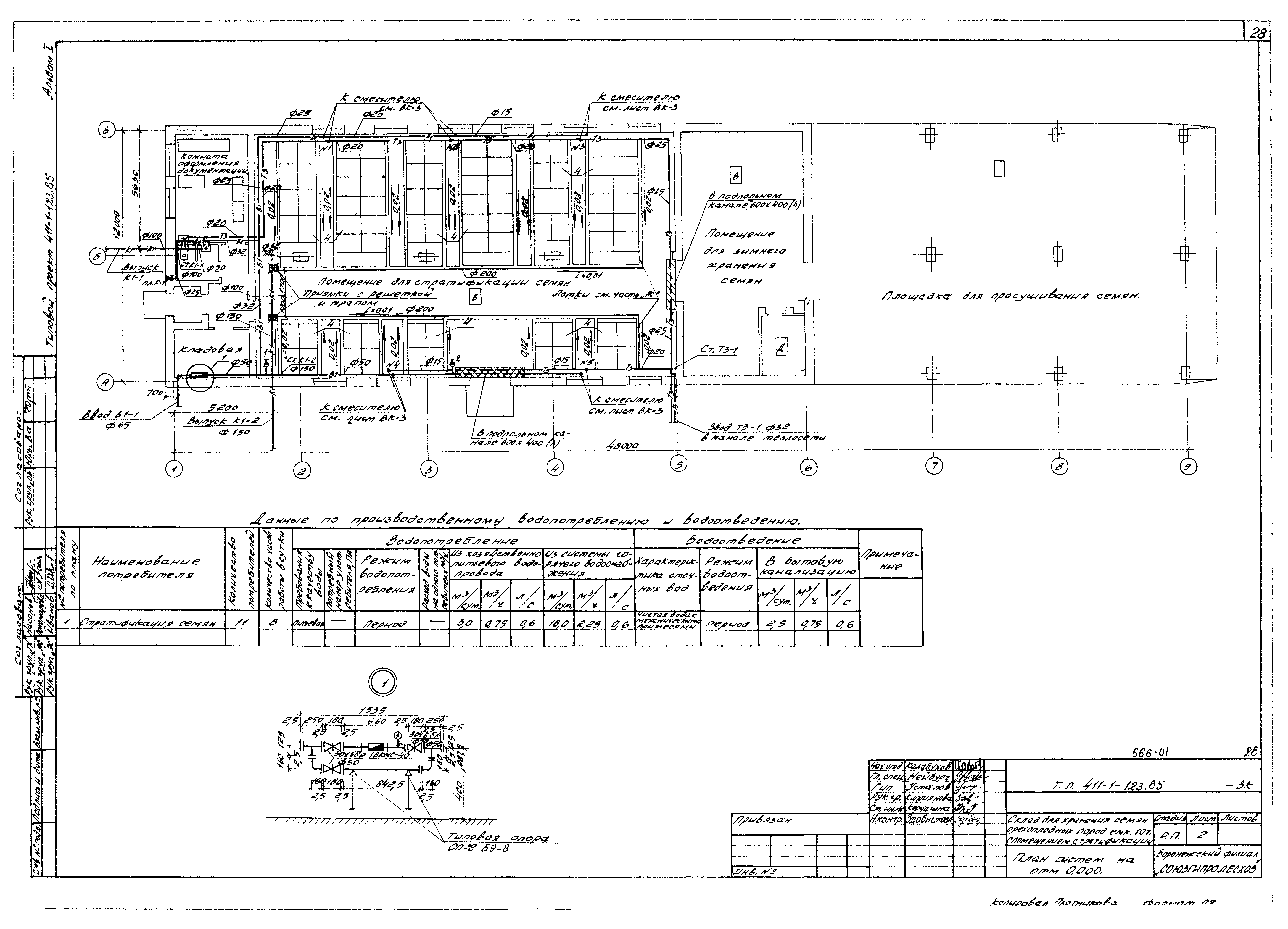
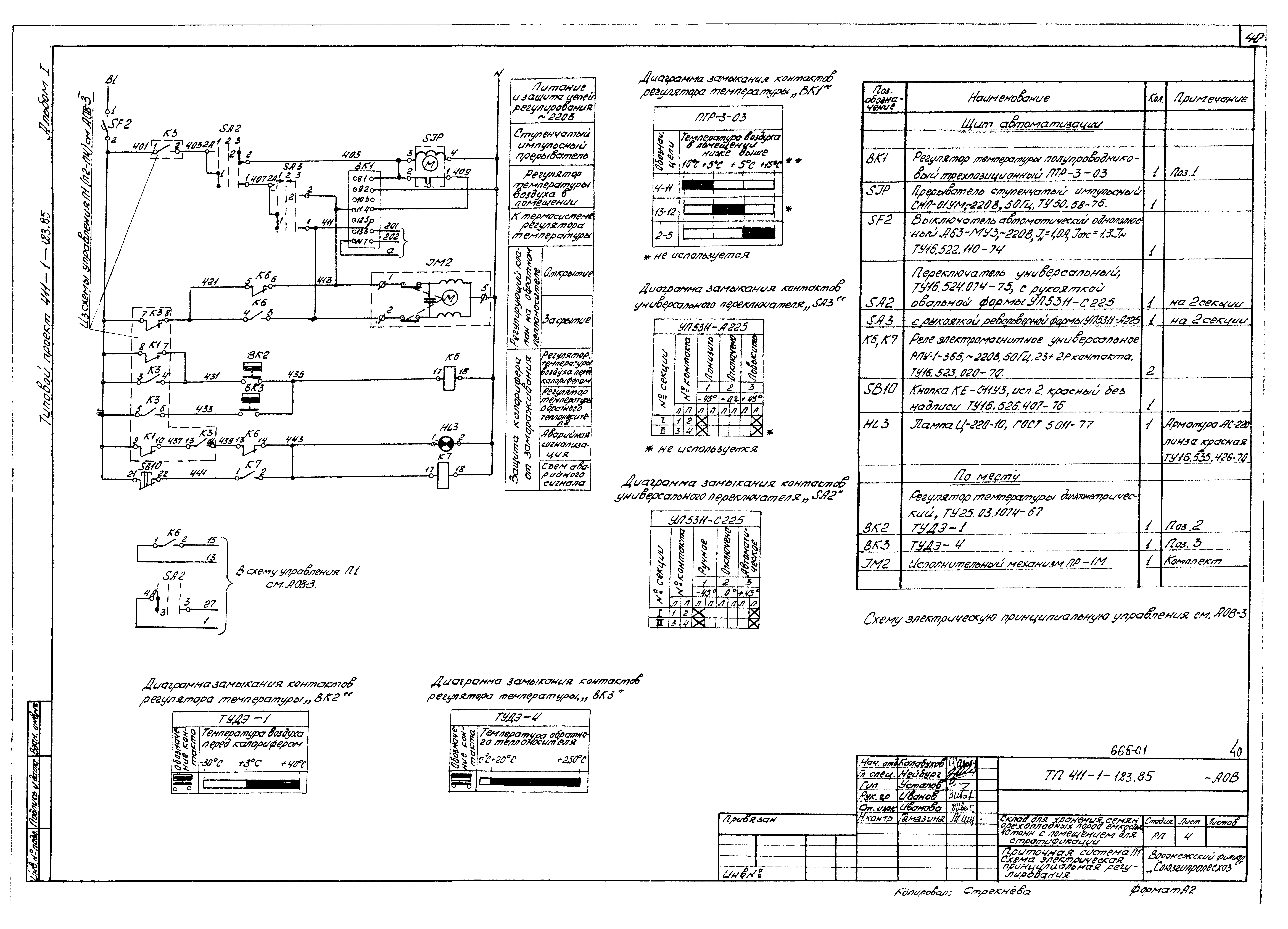
| Оглавление: | Содержание альбома Пояснительная записка Технологическая часть Общие данные План расстановки технологического оборудования Архитектурно-строительные решения Общие данные План на отм. 0.000. Фрагменты 1…3 Разрезы 1-1…3-3 Фасады Узлы 1…4. Деталь оформления оконного простенка. Планы полов и кровли Схема расположения элементов фундаментов (сборный вариант) Сечения 1-1…17-17 (сборный вариант) Схема расположения элементов фундаментов. Сечения 1-1…14-14 (вариант - фундаменты из бутобетона) Схемы расположения элементов подпольных каналов. Сечения Схемы расположения балок, опорных плит, прогонов и плит покрытия. Сечения Асбестоцементное ограждение площадки для просушивания семян. Сечения. Узлы Балка 1БсТ6-3л-IVТ-01. Деревянная балка б2. Плиты опорные ОП5-4-01; ОП4-4-01; ОП4-4-02 Сетка С1. Анкер А1. Монтажные детали МН1…МН6 Внутренние водопровод и канализация Общие данные План систем на отм. 0.000 Схемы систем В1, К1, Т3, К3 Отопление и вентиляция Общие данные План на отм. 0.000. Схема отопления Силовое электрооборудование и электроосвещение Общие данные Электроосвещение и силовое оборудование. План сетей. Принципиальная схема Спецификация. Ведомость объемов электромонтажных работ Связь и сигнализация Радиофикация и телефонизация Пожарная сигнализация Общие данные. План. Схема Автоматизация сантехсистем Общие данные Приточная система П1. Схема функциональная Приточная система П1. Схема электрическая принципиальная управления Приточная система П1. Схема электрическая принципиальная регулирования Приточная система П1. Схема внешних проводок. Фрагмент плана расположения |
| Разработан: | Воронежский филиал Союзгипролесхоза |
| Утверждён: | 22.11.1983 Гослесхоз СССР (USSR Gosleskhoz 29) |








































