Скачать Типовой проект 411-9-18.91 Альбом 1. Пояснительная записка. Архитектурные решения. Конструкции деревянные. Внутренние водопровод и канализация. Отопление и вентиляция. Электрическое освещение. Связь и сигнализация. Автоматизация санитарно-технических системДата актуализации: 01.01.2021
|
| Обозначение: | Типовой проект 411-9-18.91 |
| Обозначение англ: | 411-9-18.91 |
| Статус: | не определен законодательством |
| Название рус.: | Альбом 1. Пояснительная записка. Архитектурные решения. Конструкции деревянные. Внутренние водопровод и канализация. Отопление и вентиляция. Электрическое освещение. Связь и сигнализация. Автоматизация санитарно-технических систем |
| Дата добавления в базу: | 01.10.2014 |
| Дата актуализации: | 01.01.2021 |
| Дата введения: | 24.12.1991 |
| Дата окончания срока действия: | 30.06.2003 |
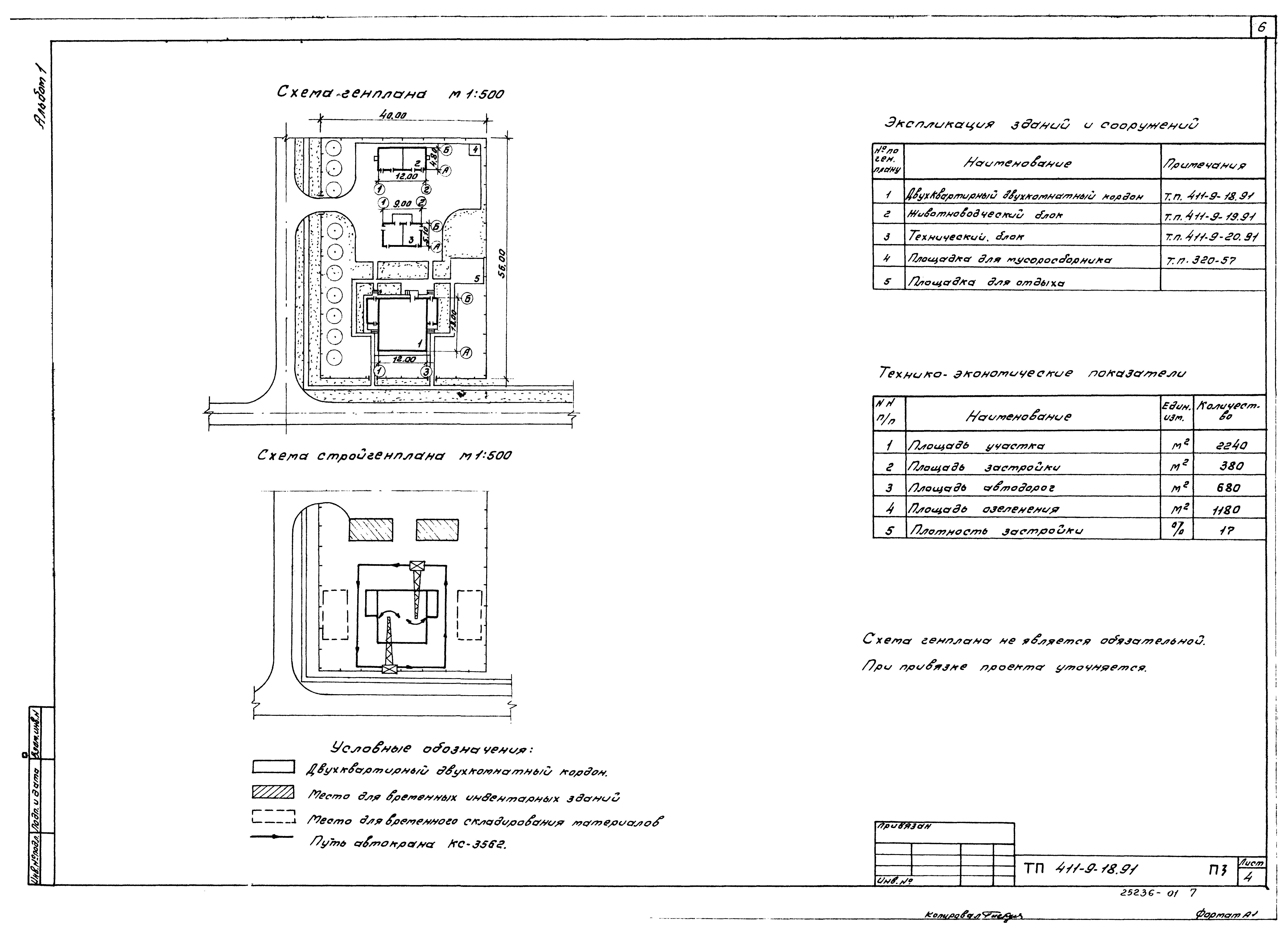
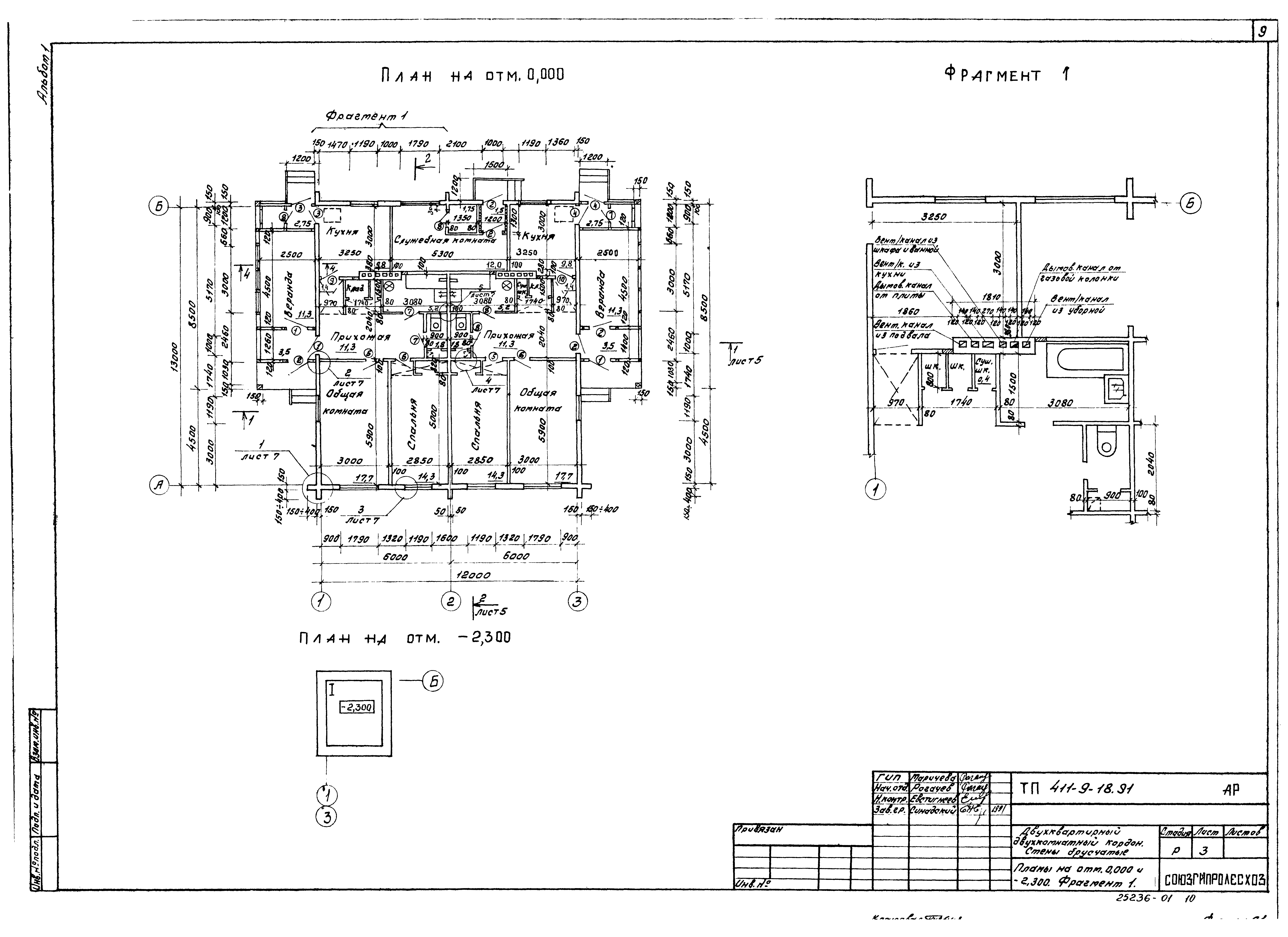
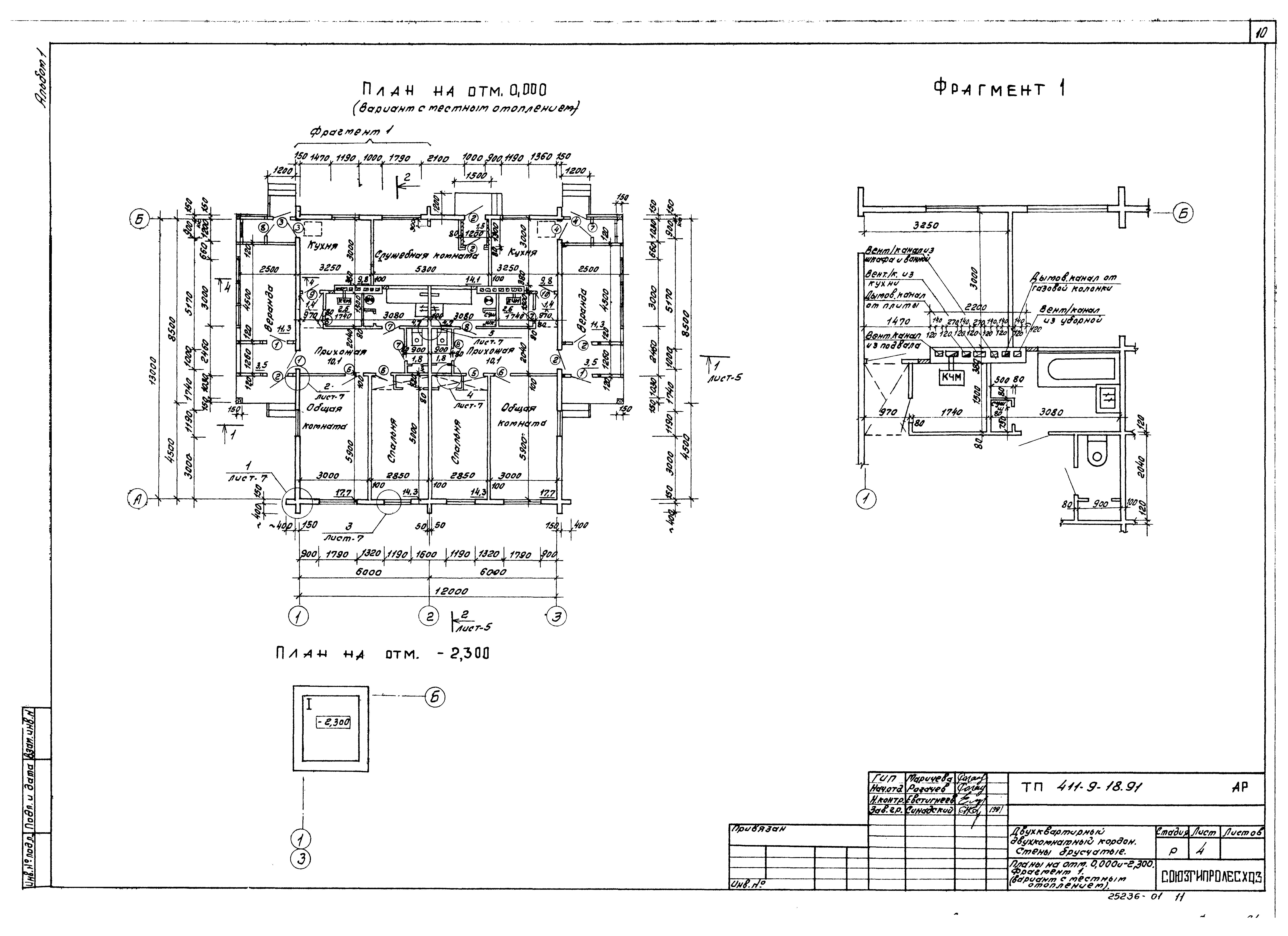
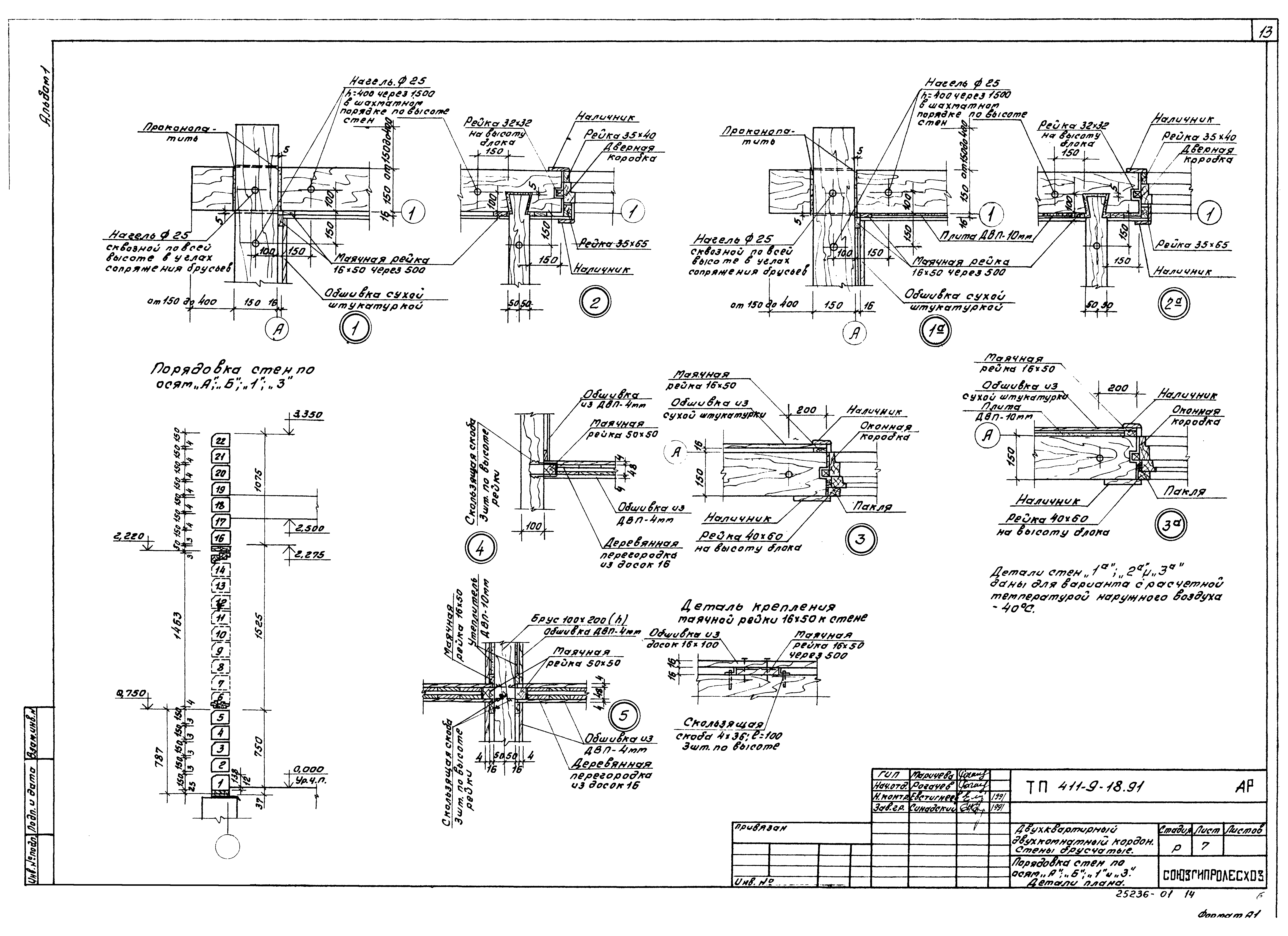
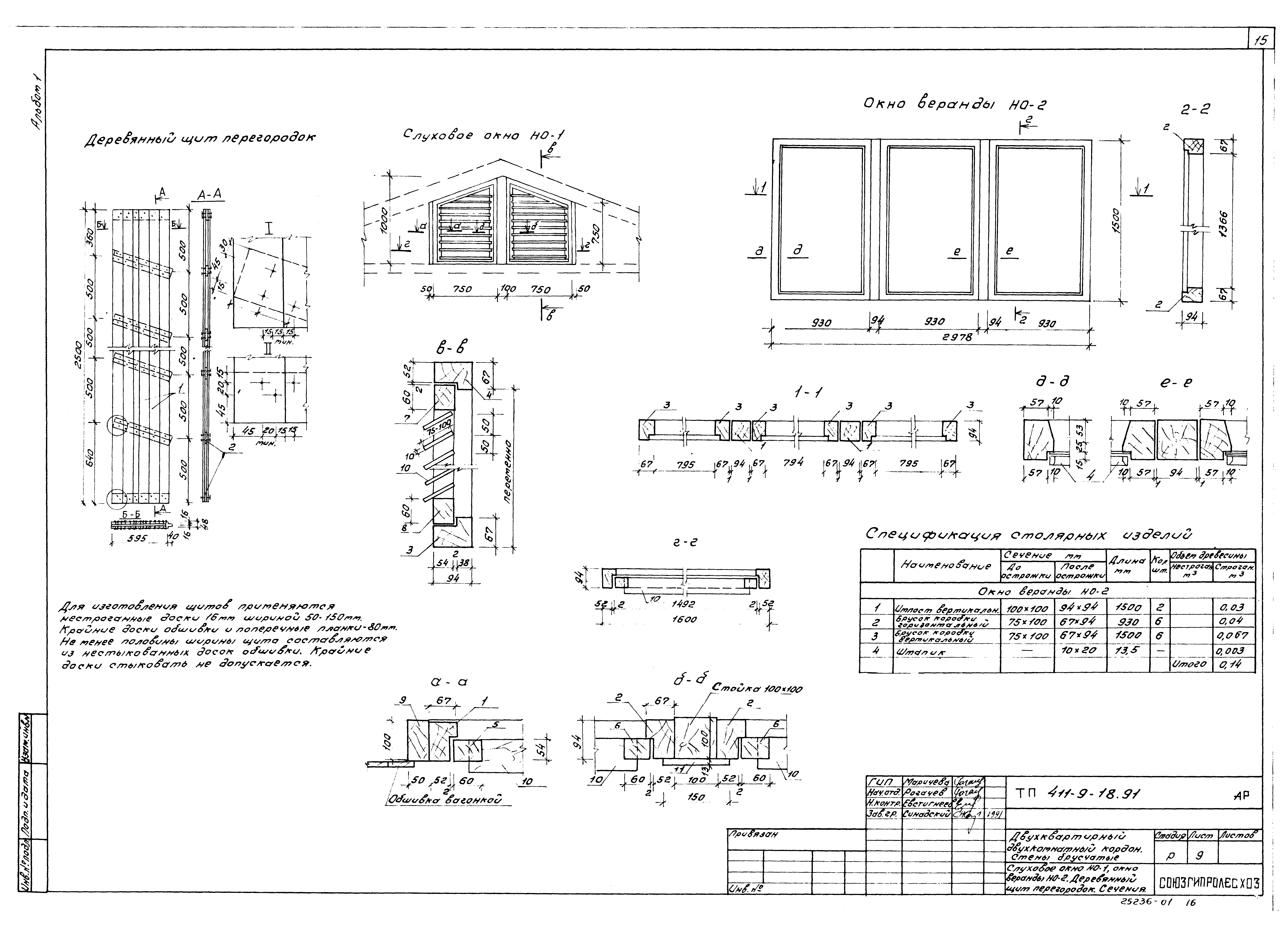
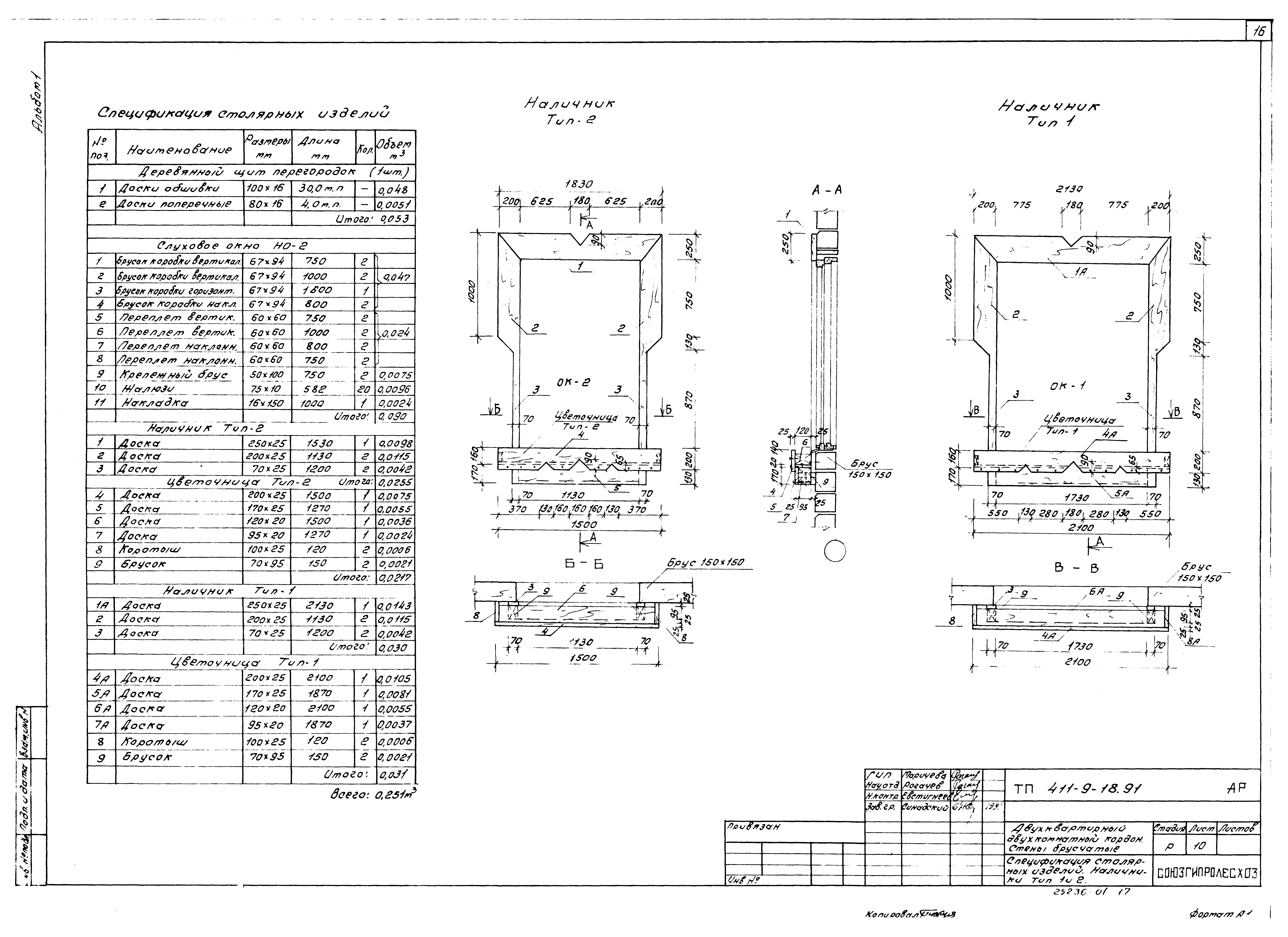
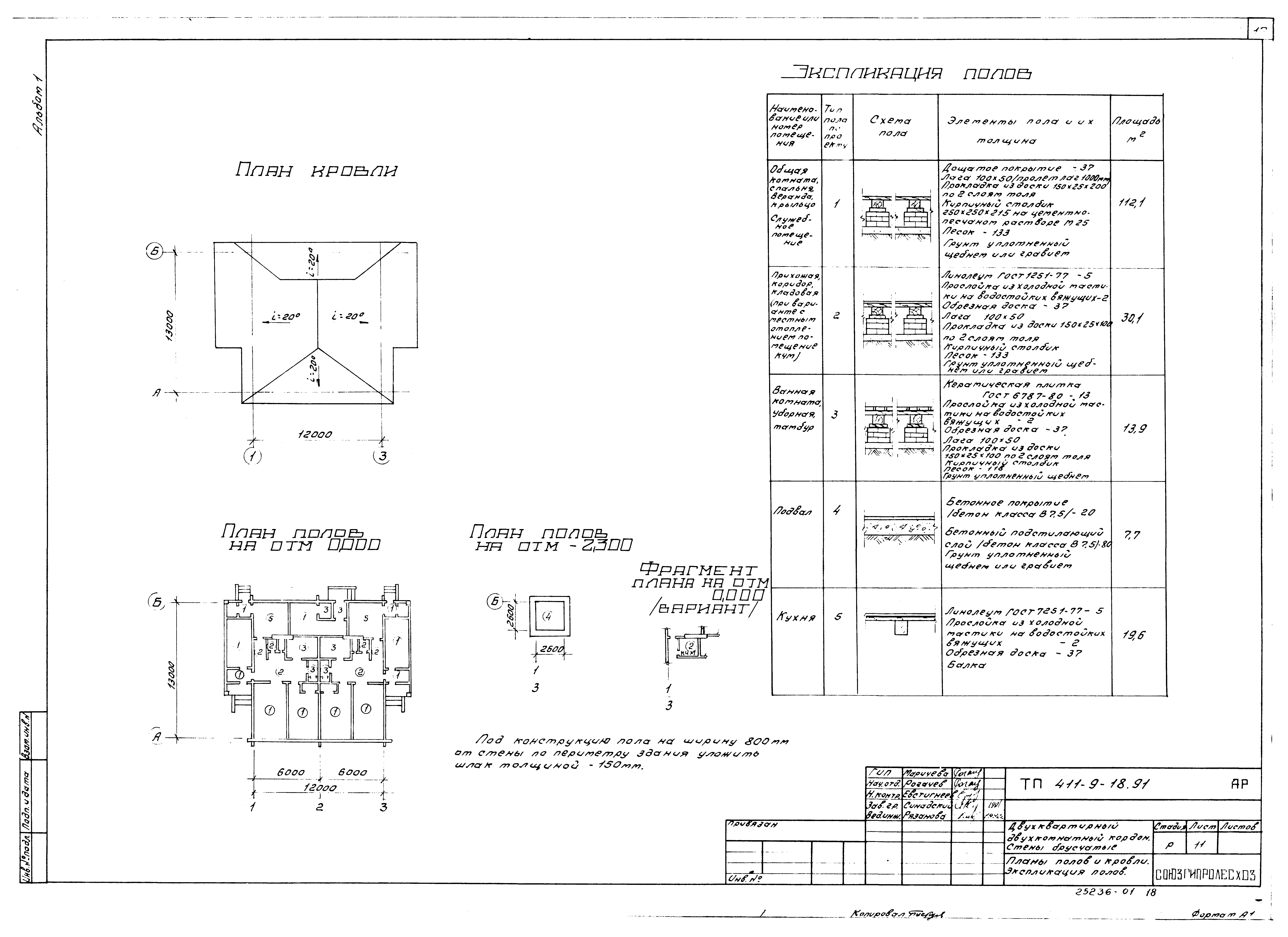
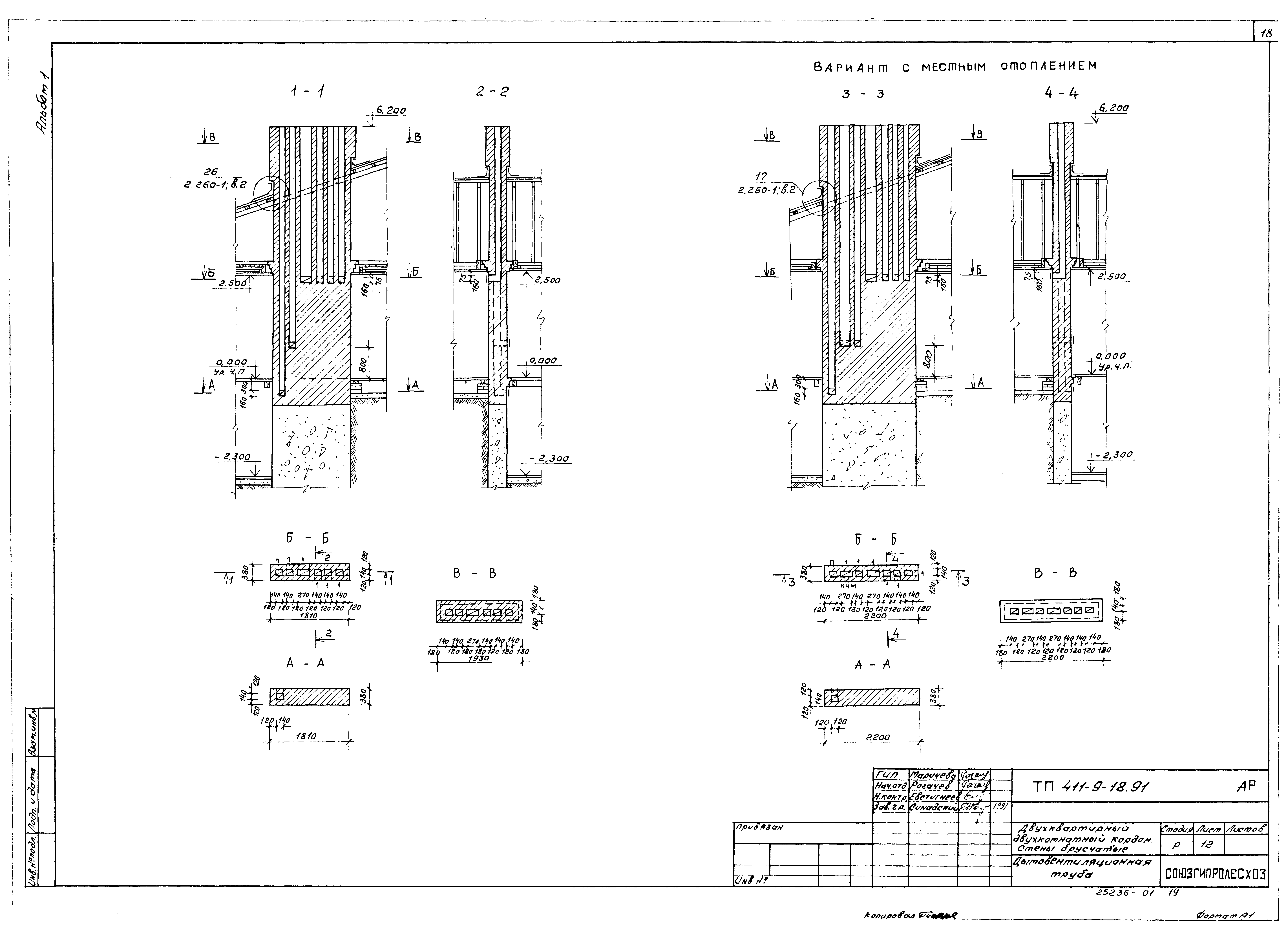
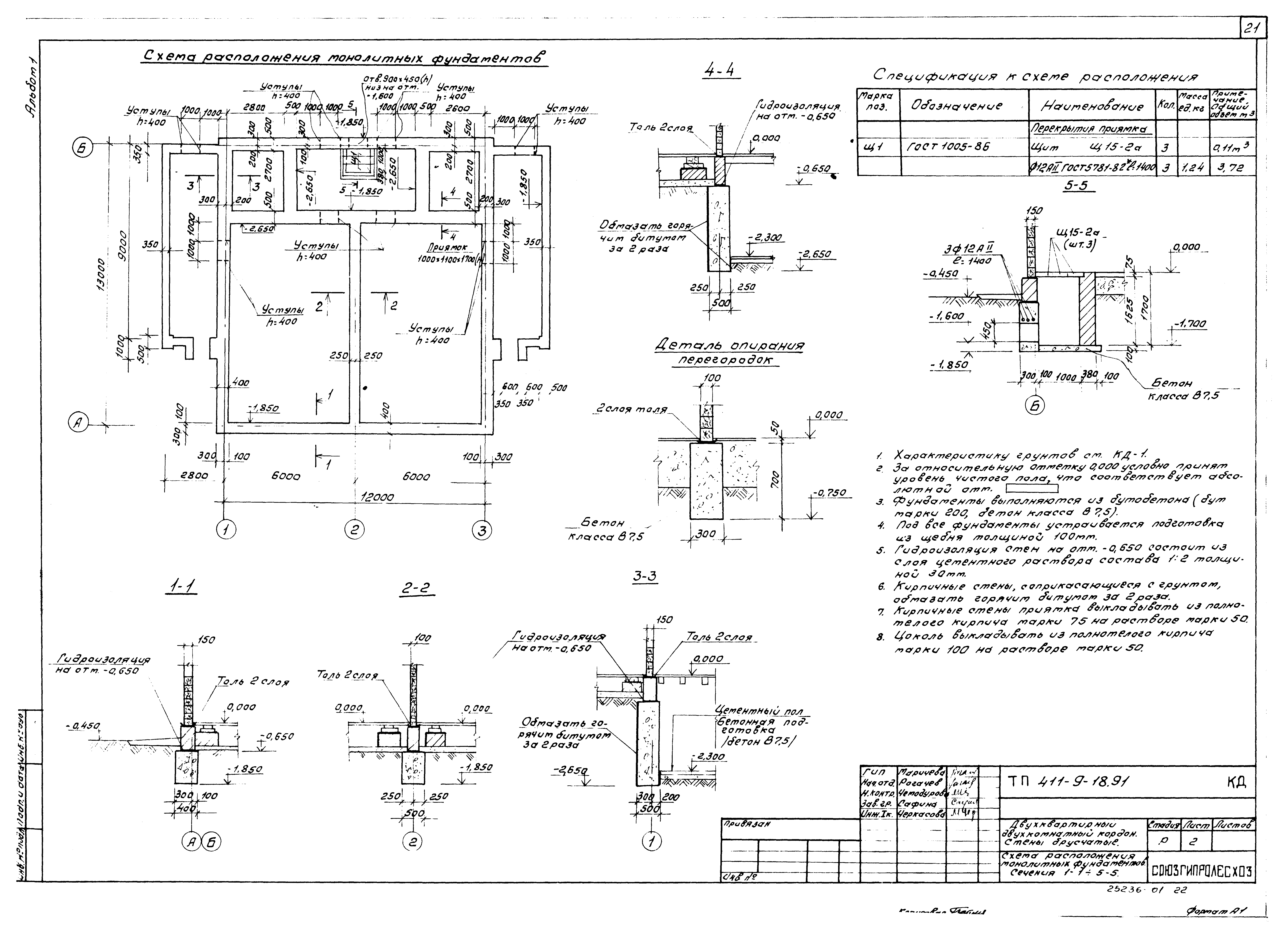
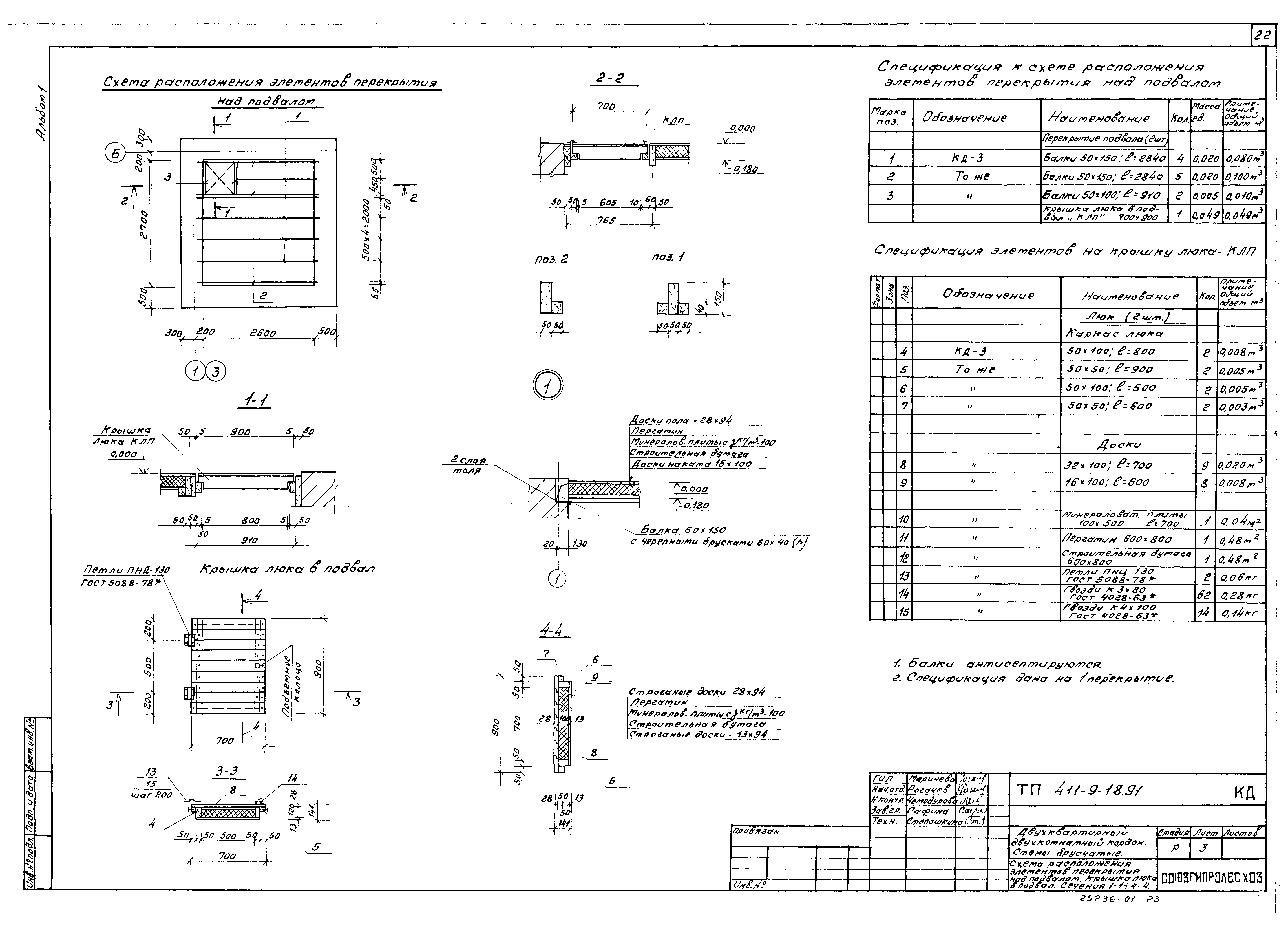
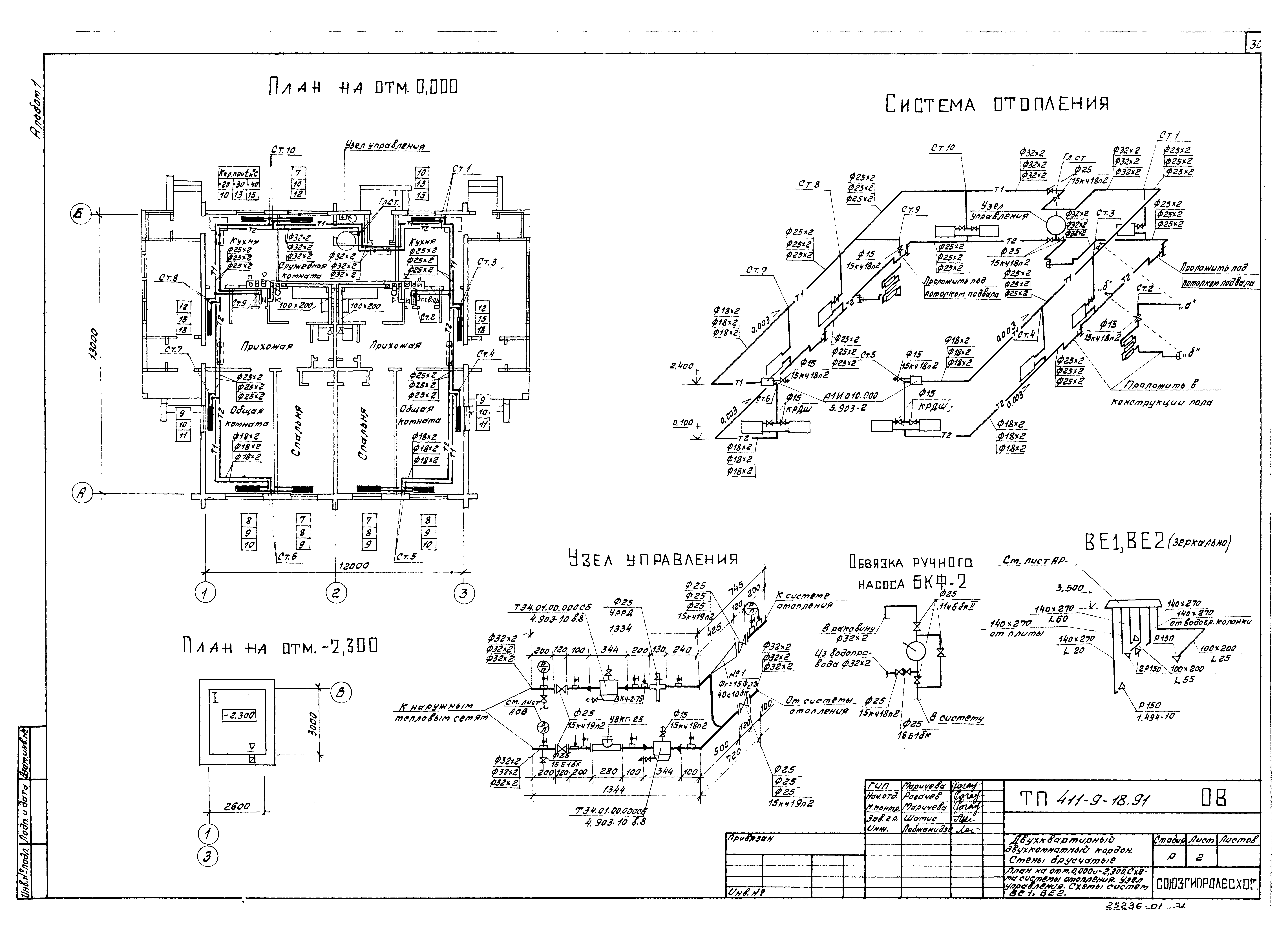
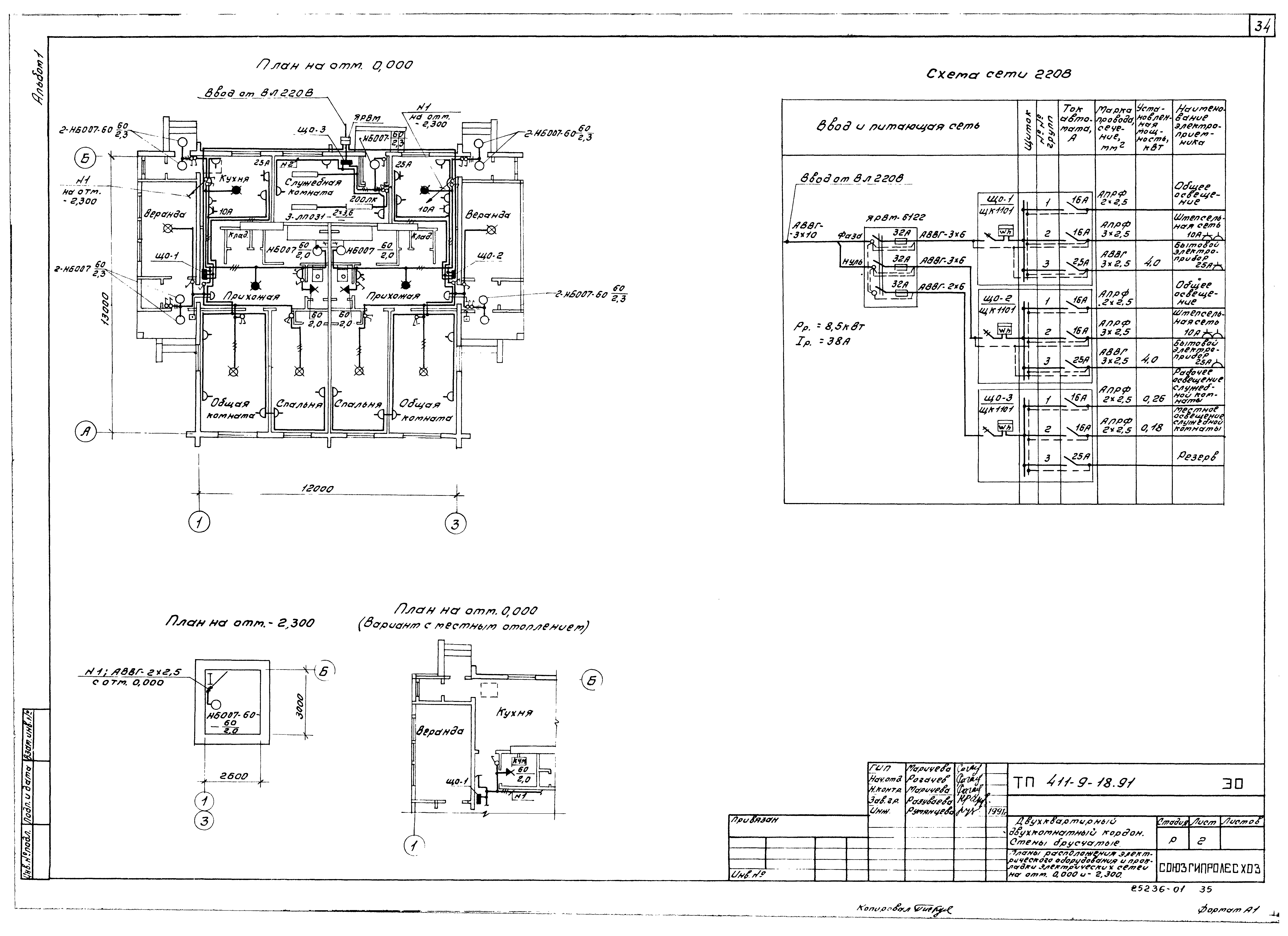
| Оглавление: | Содержание альбома Пояснительная записка Архитектурные решения Общие данные План на отм. 0.000 и - 2.300. Фрагмент 1 План на отм. 0.000 и - 2.300. Фрагмент 1 (вариант с местным отоплением) Разрезы 1-1 и 2-2. Детали разрезов Фасады Порядовка стен по осям "А", "Б", "1", "3". Детали плана Веранда. План. Разрезы 1-1, 2-2. Детали Слуховое окно НО-1, окно веранды НО-2. Деревянный щит перегородок. Сечения Спецификация столярных изделий. Наличники. Тип 1 и 2 Планы полов и кровли. Экспликация полов Дымовентиляционная труба Спецификация элементов заполнения проемов. Ведомость проемов дверей. Схемы Конструкции деревянные Общие данные Схема расположения монолитных фундаментов. Сечения 1-1 - 5-5 Схема расположения элементов перекрытия над подвалом. Крышка люка в подвал. Сечения 1-1 - 4-4 Схема расположения балок и щитов перекрытия Схема расположения балок и щитов перекрытия (с местным отоплением) Схема расположения стропил. Разрез 1-1 Узлы 1 - 5. Разрез 2-2 Внутренние водопровод и канализация Общие данные План на отм. 0.000 с системами В1, К1 Отопление и вентиляция Общие данные План на отм. 0.000 и - 2.300. Схема системы отопления. Узел управления. Схемы систем ВЕ1, ВЕ2 План на отм. 0.000 и - 2.300. Схема системы отопления. Схема обвязки котла. Схемы систем ВЕ1, ВЕ2 (вариант с местным отоплением) Воздуховод асбестоцементный Электроосвещение Общие данные Планы расположения электрического оборудования и прокладки электрических сетей на отм. 0.000 и - 2.300 Связь и сигнализация Общие данные План расположения оборудования и прокладки телефонной и радиотрансляционной сети, телевидение Автоматизация сантехнических систем Общие данные Узел управления теплового пункта Схема функциональная. Схема трубных проводок |
| Разработан: | Союзгипролесхоз |
| Утверждён: | 24.12.1991 Союзгипролесхоз (106) |
| Издан: | АПП ЦИТП (1992 г. ) |






































