Скачать Типовой проект 411-1-154.89 Альбом 1. Пояснительная записка. Технология производства. Архитектурные решения. Конструкции железобетонные. Внутренние водопровод и канализация. Отопление, вентиляция и кондиционирование воздуха. Электрооборудование. Связь и сигнализация. Автоматизация отопления и вентиляцииДата актуализации: 01.01.2021
|
| Обозначение: | Типовой проект 411-1-154.89 |
| Обозначение англ: | 411-1-154.89 |
| Статус: | не определен законодательством |
| Название рус.: | Альбом 1. Пояснительная записка. Технология производства. Архитектурные решения. Конструкции железобетонные. Внутренние водопровод и канализация. Отопление, вентиляция и кондиционирование воздуха. Электрооборудование. Связь и сигнализация. Автоматизация отопления и вентиляции |
| Дата добавления в базу: | 01.10.2014 |
| Дата актуализации: | 01.01.2021 |
| Дата введения: | 31.10.1989 |
| Дата окончания срока действия: | 30.06.2003 |
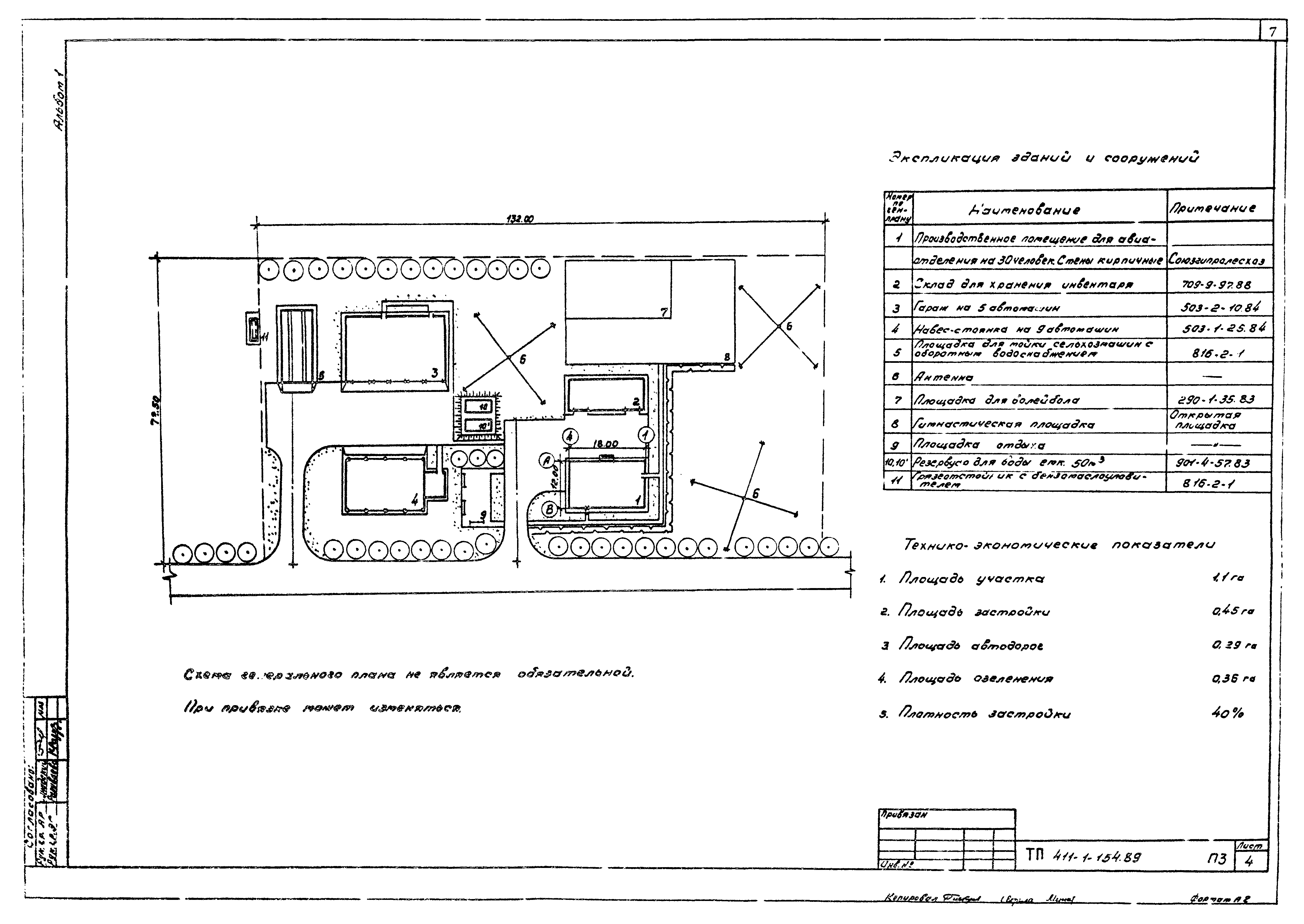
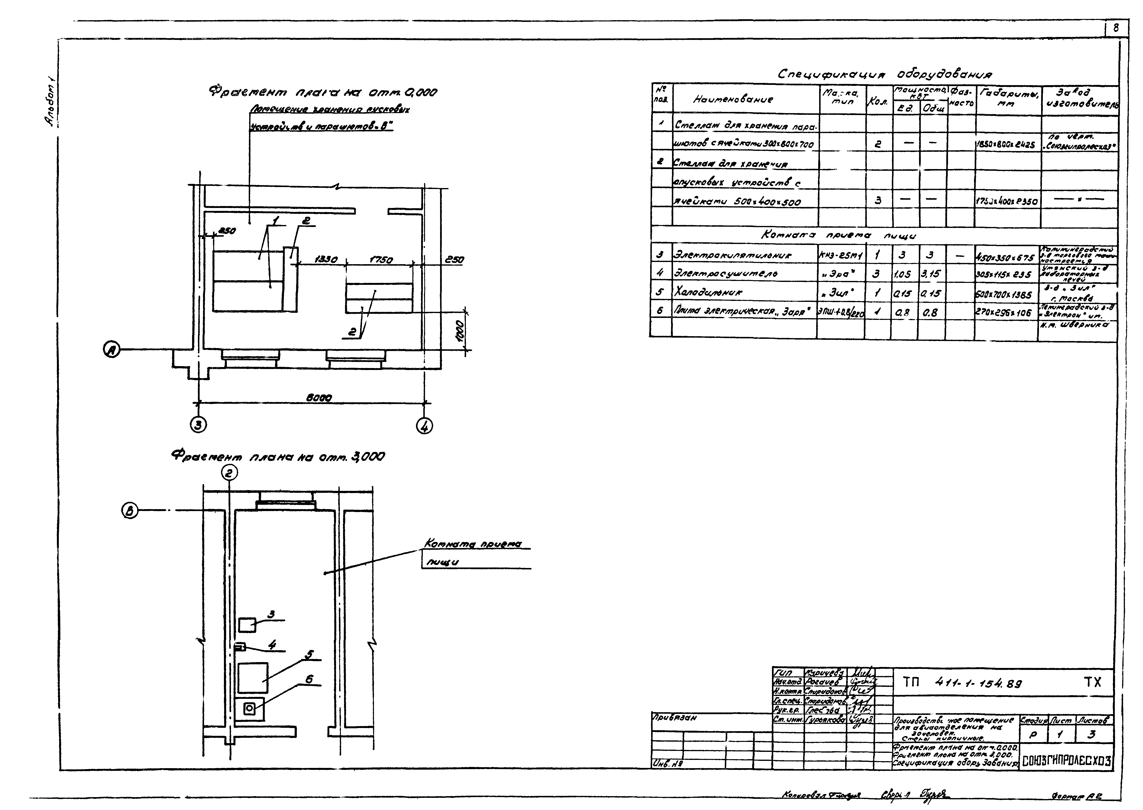
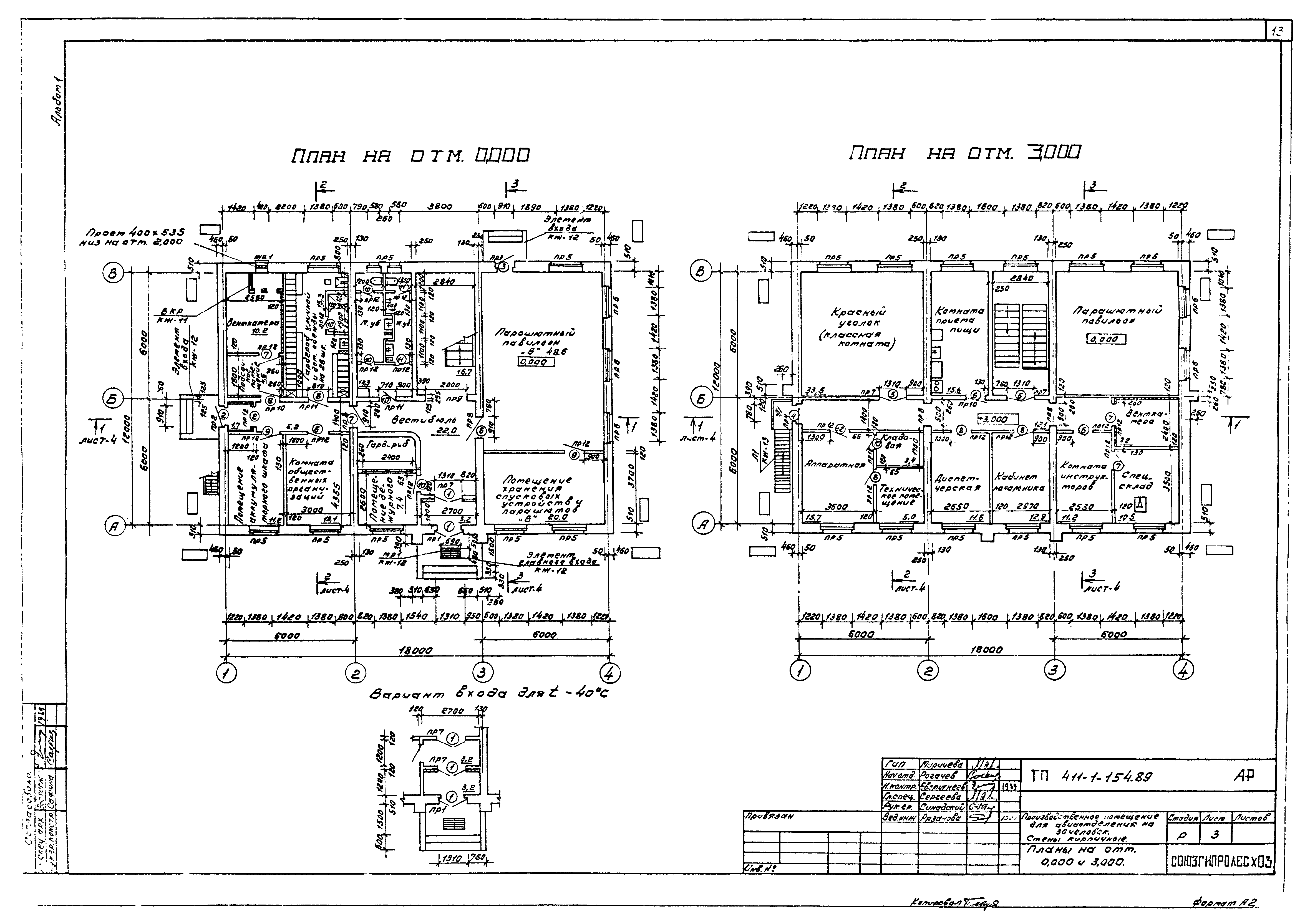
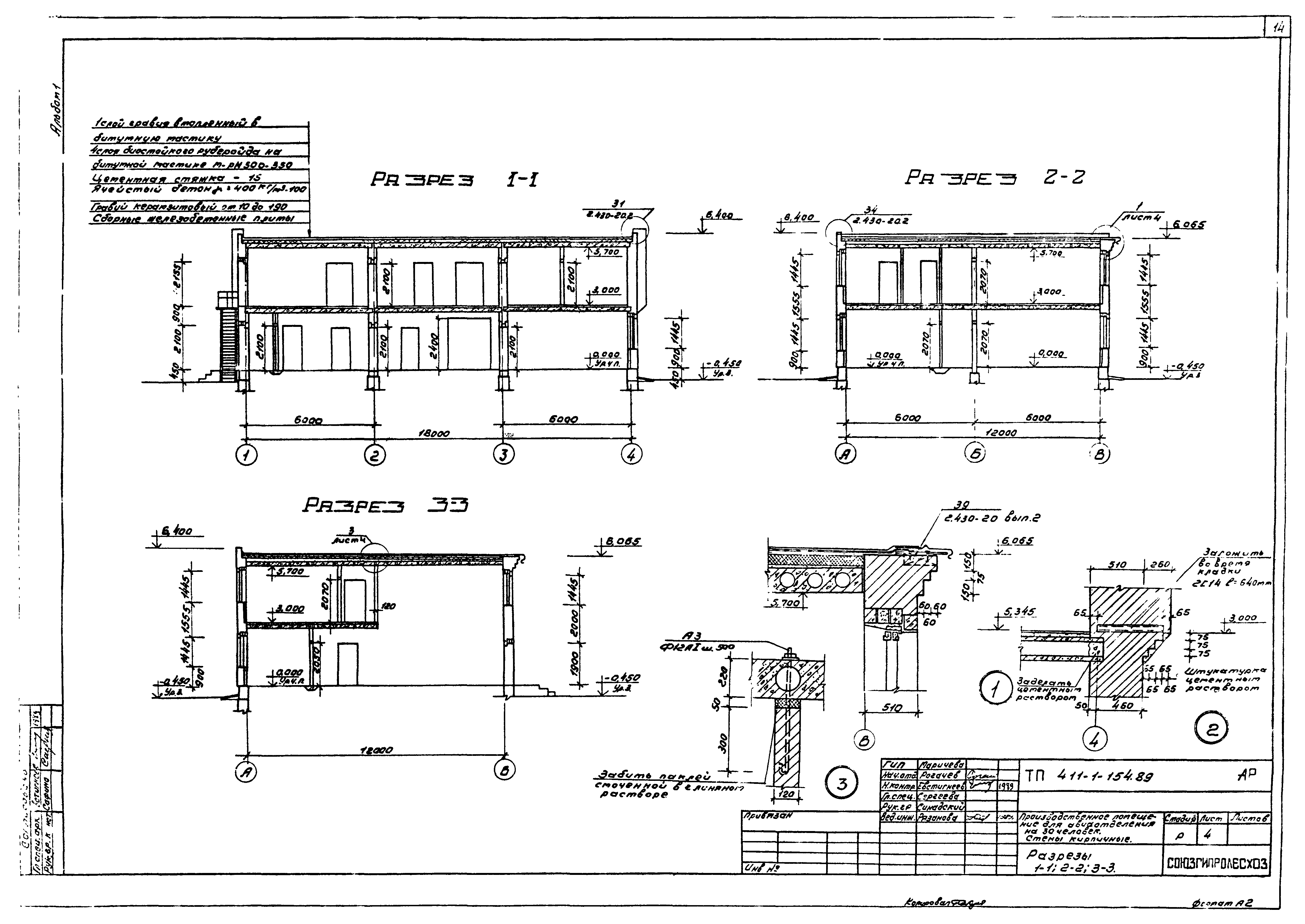
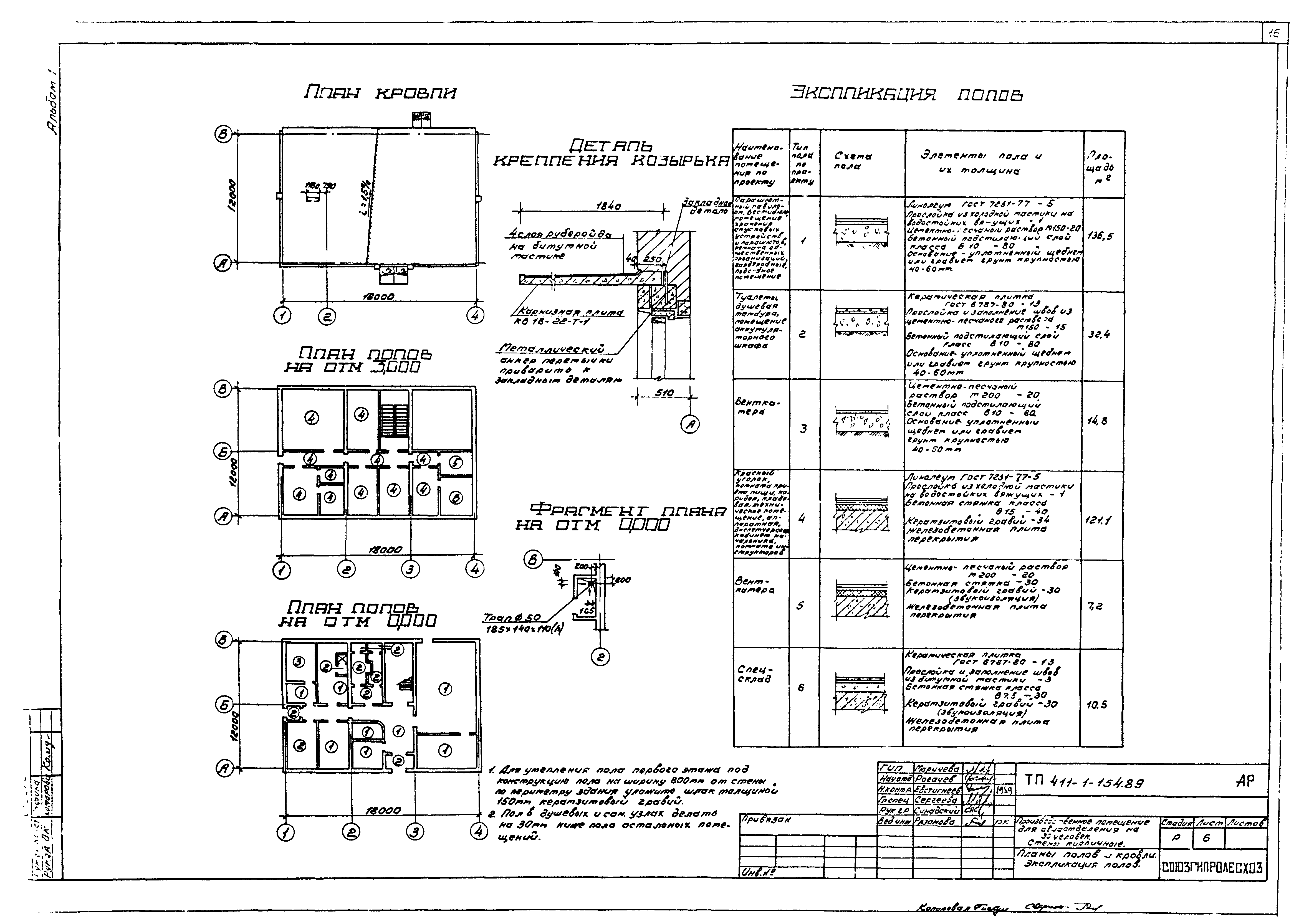
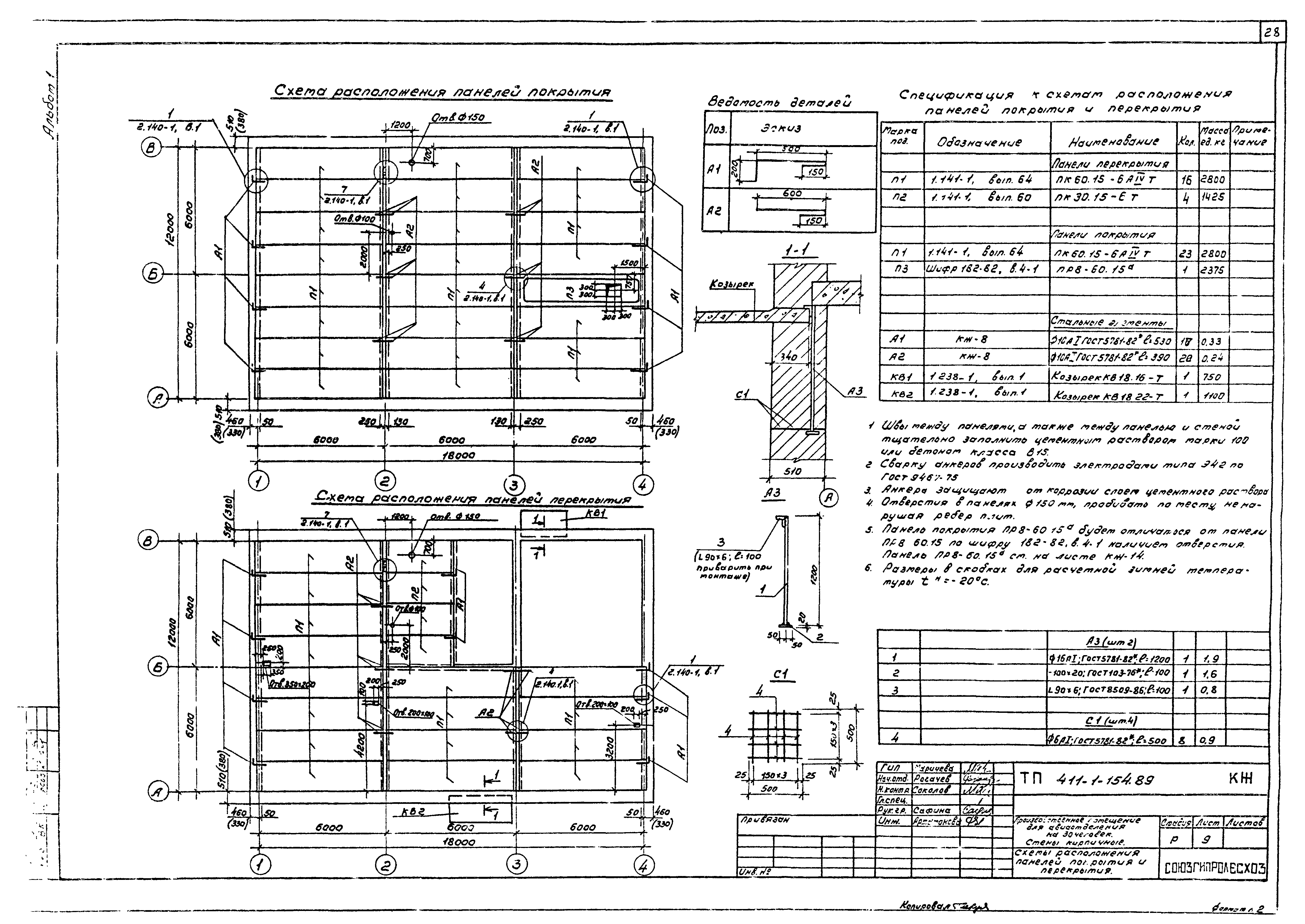
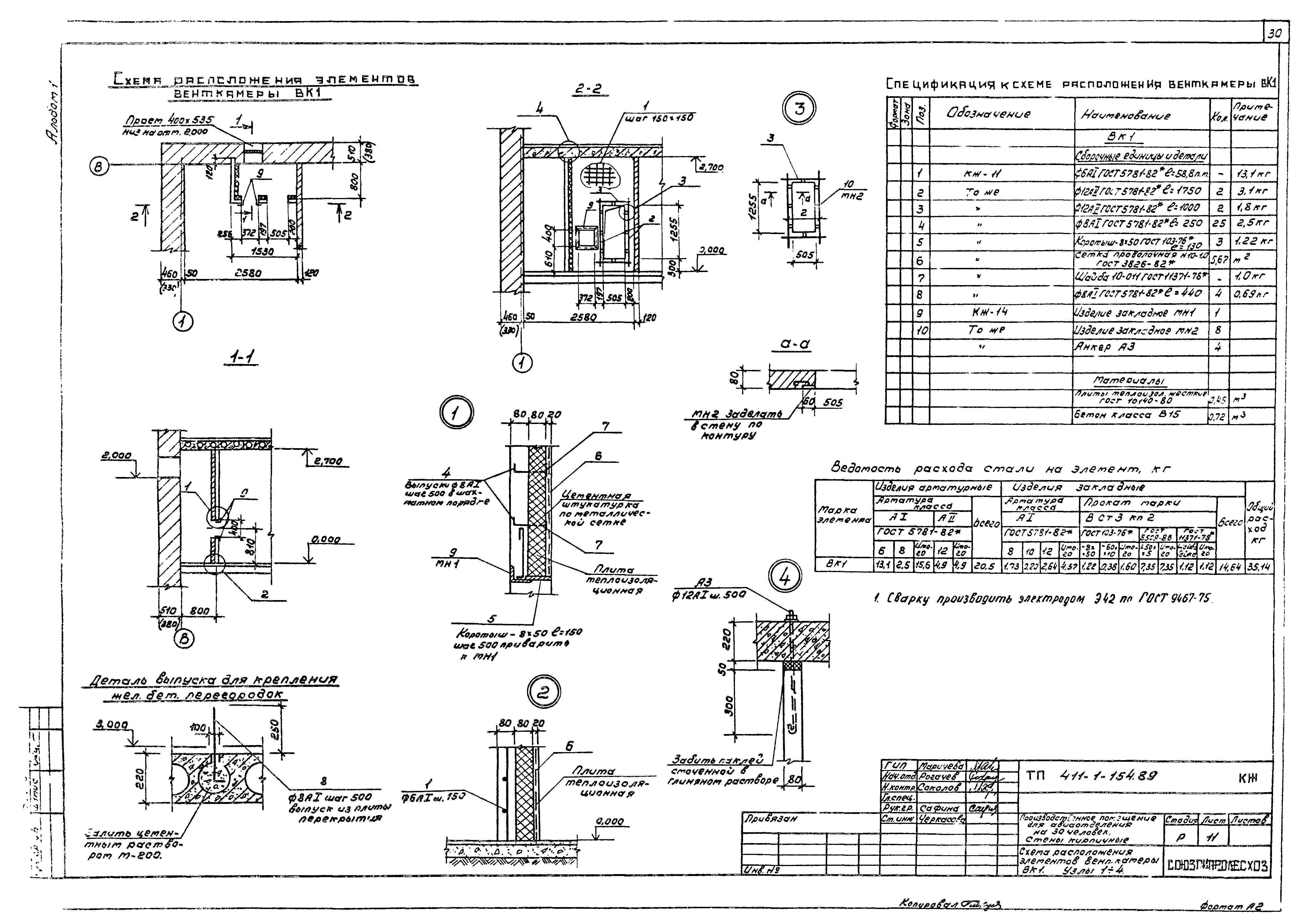
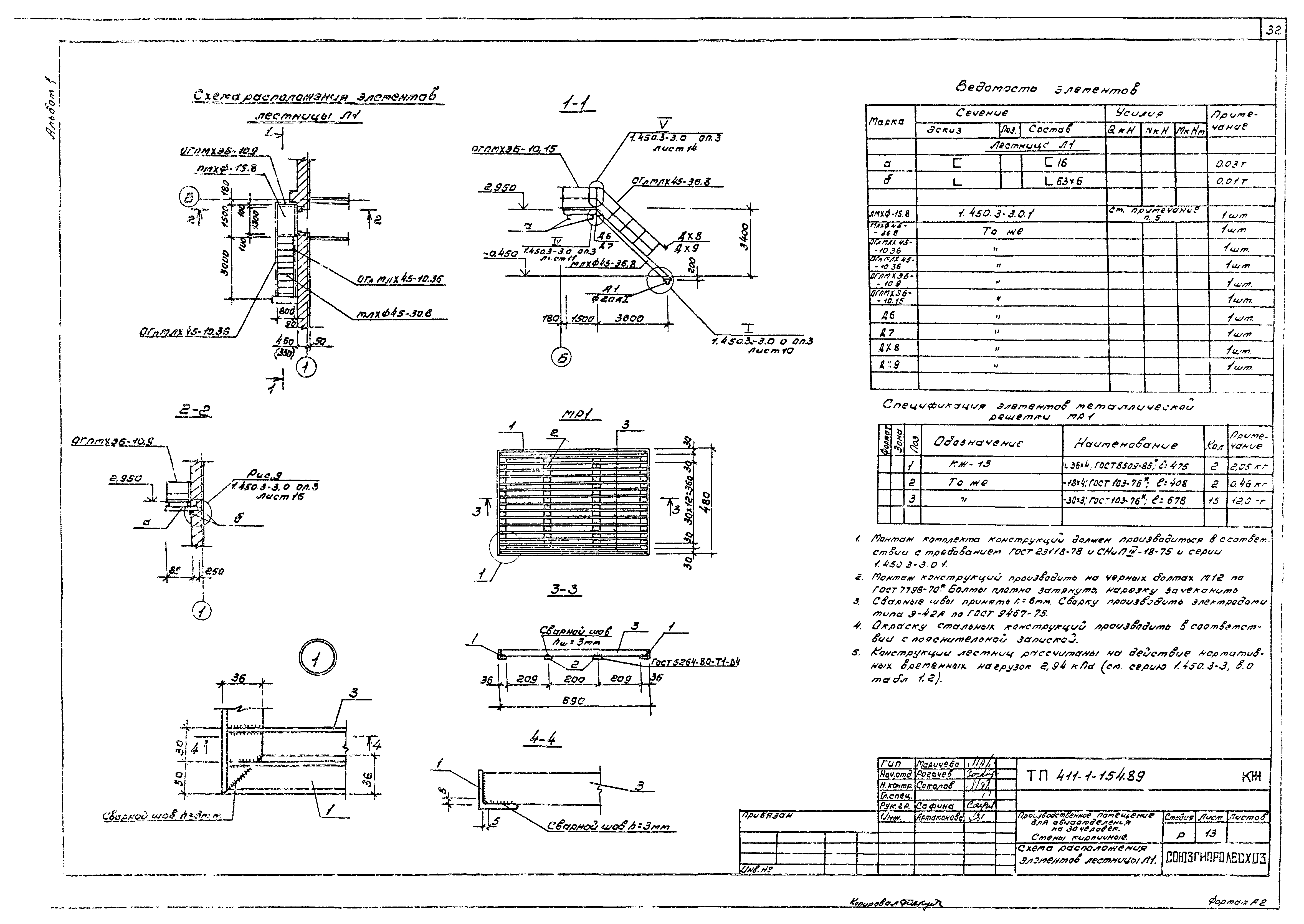
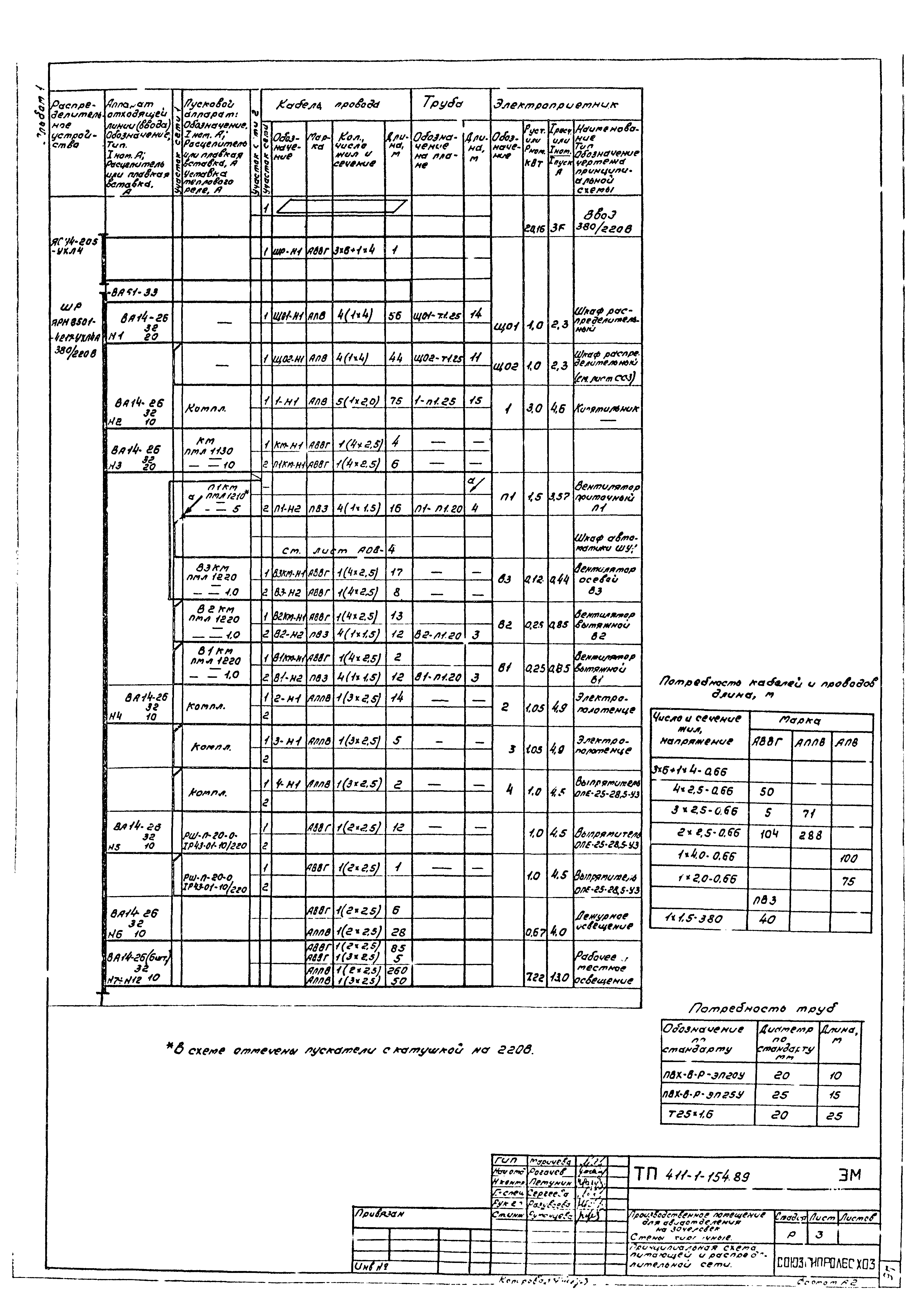
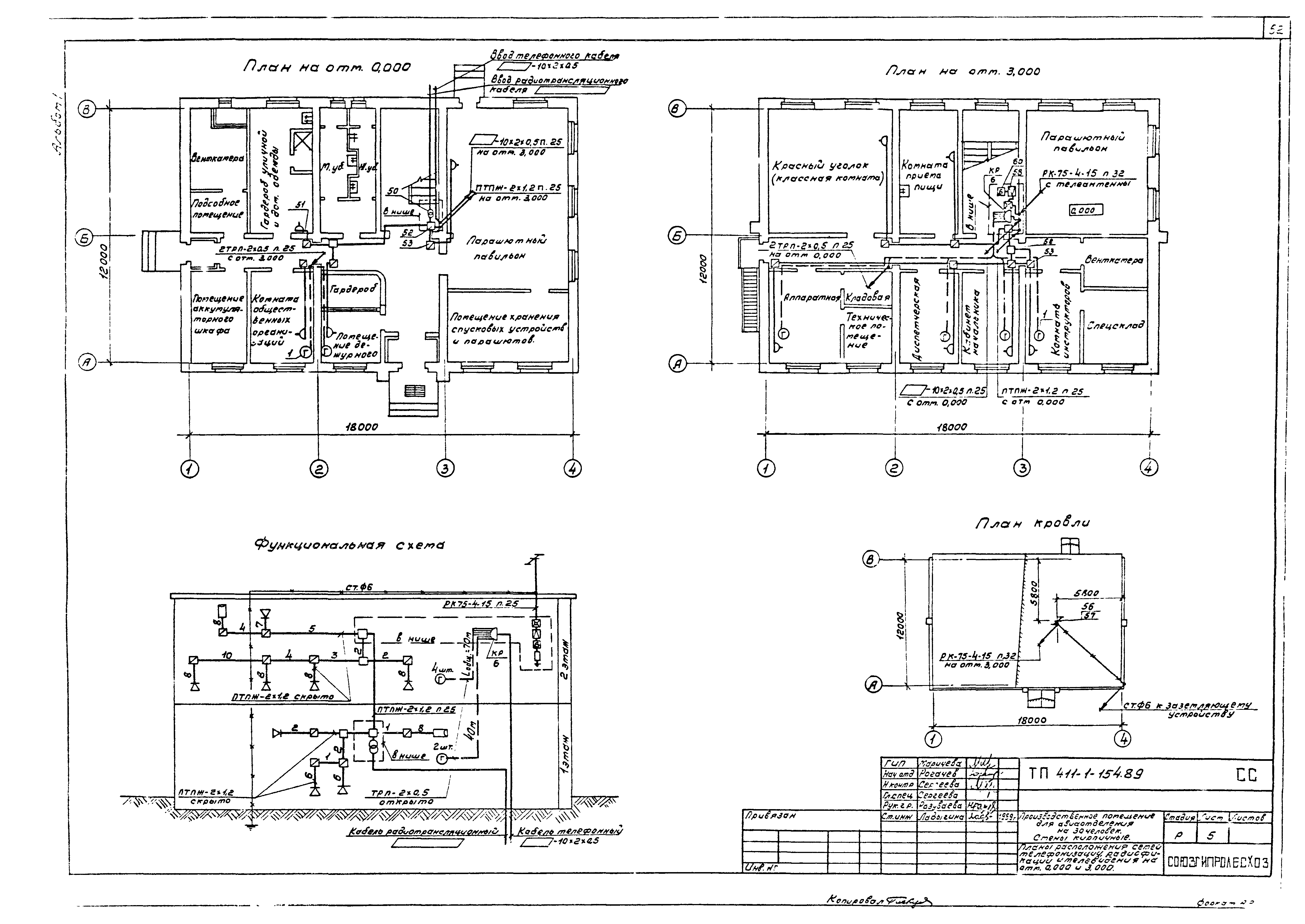
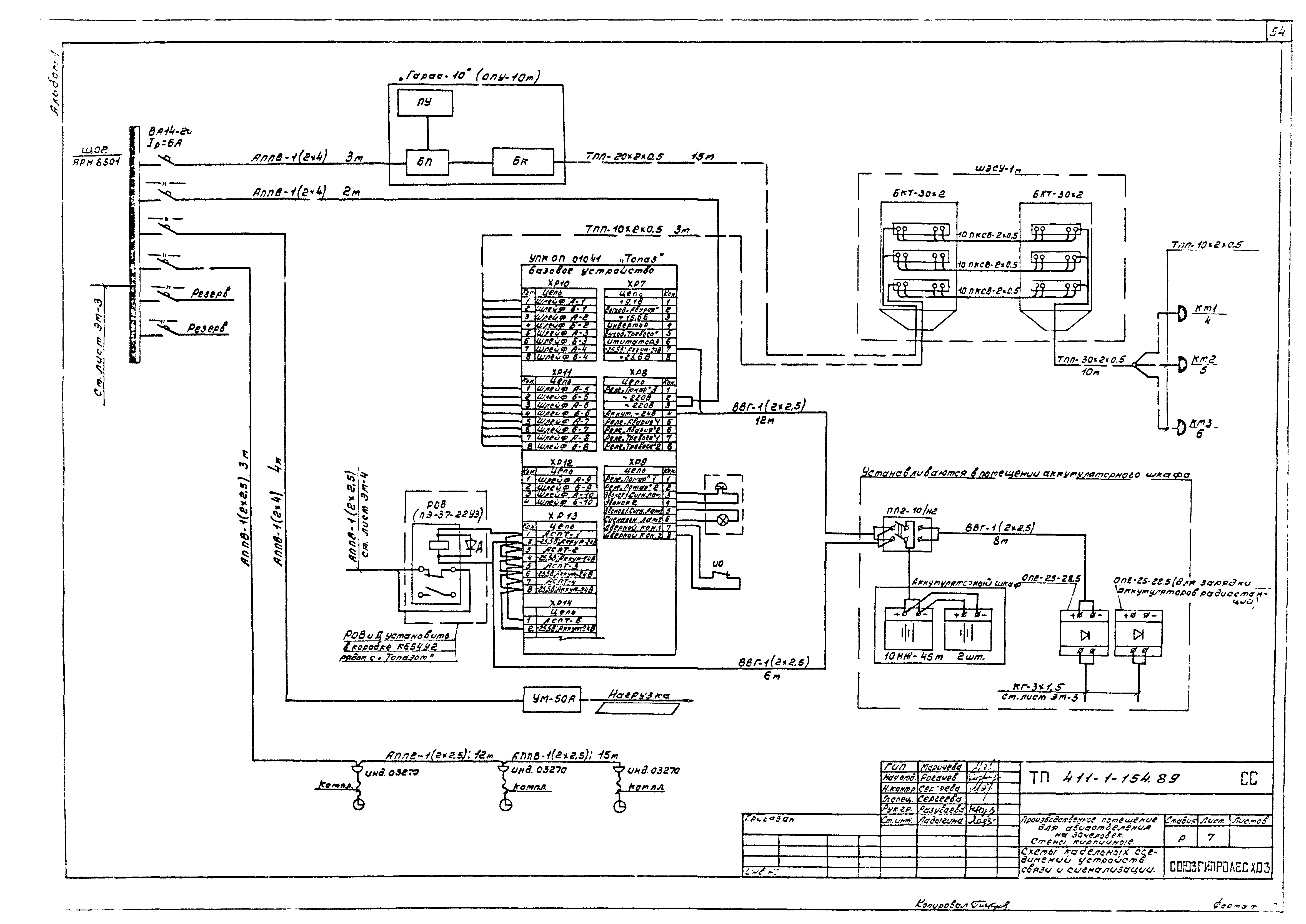
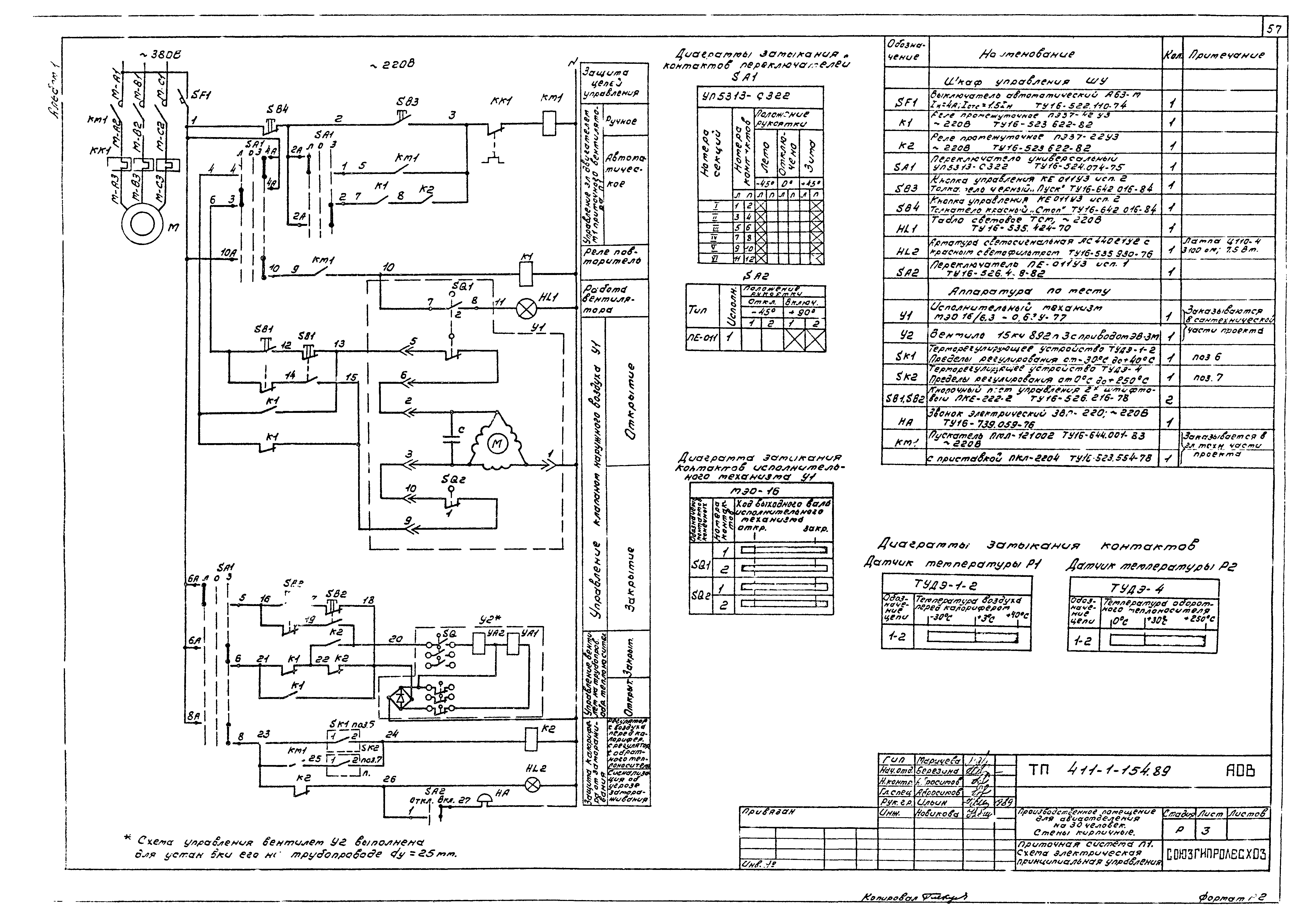
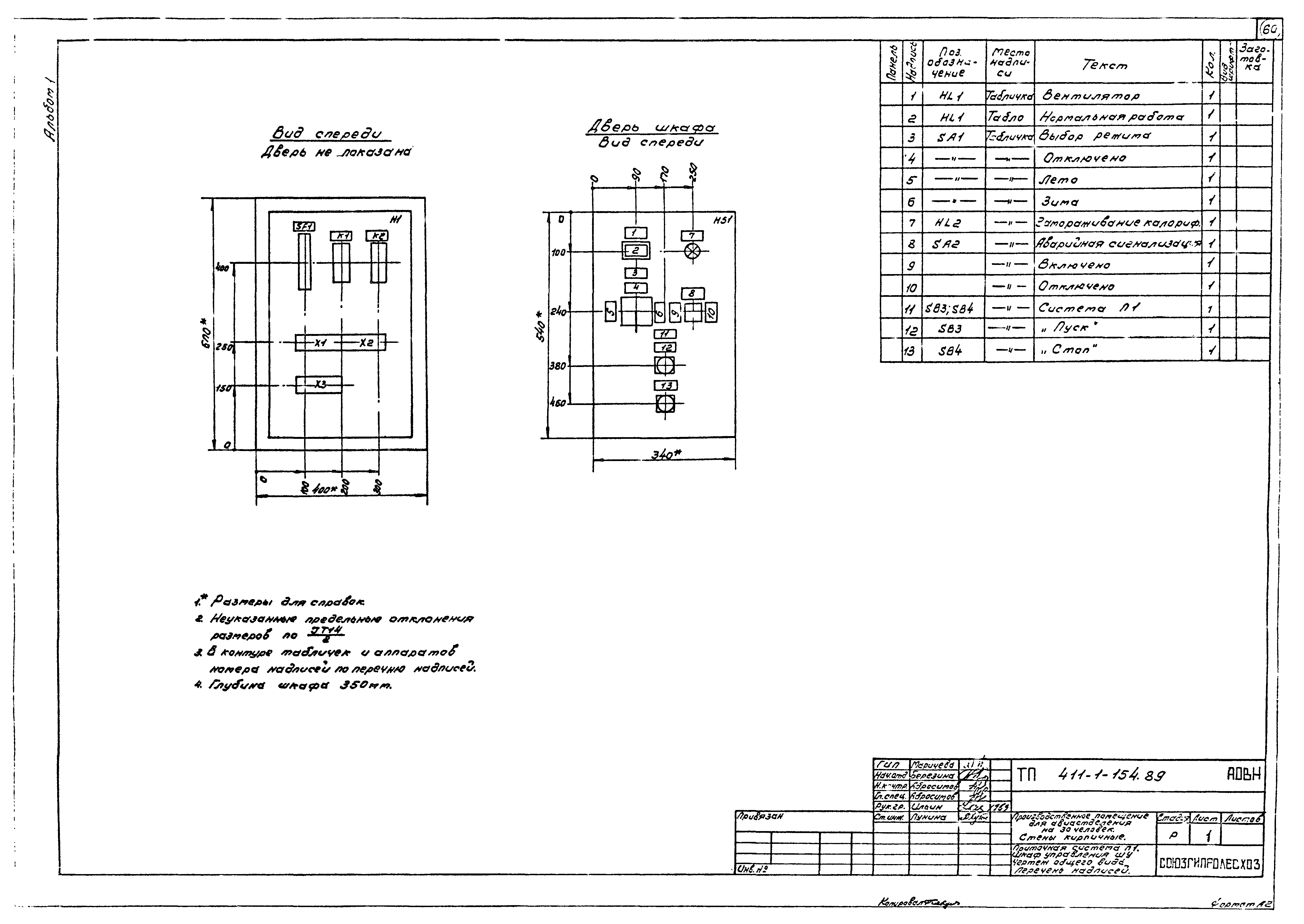
| Оглавление: | Содержание альбома Пояснительная записка Технология производства Фрагмент плана на отм. 0.000 и 3.000. Спецификация оборудования Стеллаж для хранения парашютов с ячейками 300х800х700 мм Стеллаж для хранения спусковых устройств с ячейками 500х400х500 мм Архитектурные решения Общие данные Планы на отм. 0.000 и 3.000 Разрезы 1-1, 2-2, 3-3 Фасады Планы полов и кровли. Экспликация полов План расположения ниш и отверстий на отм. 0.000 и 3.000 Спецификация элементов заполнения проемов. Схемы. Развертка вентиляционных каналов Ведомость перемычек Конструкции железобетонные Общие данные Схема расположения монолитных фундаментов. Сечения 1-1 - 5-5. Для tн = минус 20 градусов Цельсия Схема расположения монолитных фундаментов. Сечения 1-1 - 5-5. Для tн = минус 30, минус 40 градусов Цельсия Схема расположения сборных фундаментов. Сечения 1-1 - 5-5. Для tн = минус 20 градусов Цельсия (вариант) Раскладка блоков для tн = минус 20 градусов Цельсия (вариант) Схема расположения сборных фундаментов. Сечения 1-1 - 5-5. Для tн = минус 30, минус 40 градусов Цельсия (вариант) Раскладка блоков для tн = минус 30, минус 40 градусов Цельсия (вариант) Схема расположения плит перекрытия каналов и приямка Схема расположения плит покрытия и перекрытия Схема расположения элементов лестницы в осях 2 - 3 Схема расположения элементов венткамеры ВК1. Узлы 1 - 4 Элементы входов Схема расположения элементов лестницы Л1 Изделия закладные МН1, МН2, МБ1. Плита ПР8-60-15а Внутренние водопровод и канализация Общие данные Планы на отм. 0.000 и 3.300 и системами В1, Т3, К1 Отопление, вентиляция и кондиционирование воздуха Общие данные Отопление, вентиляция, теплоснабжение. План на отм. 0.000 и 3.000. Узел управления Схема системы отопления. Схемы систем П1, В1, В2, ВЕ1, ВЕ2. Схемы систем теплоснабжения установки П1 Установки систем П1, В1, В2 Воздуховод асбестоцементный Электрооборудование Общие данные План расположения электрооборудования и прокладки электрических сетей на отм. 0.000 и 3.000 План питающей и распределительной сети Отключение вентсистем при пожаре. Схема электрическая принципиальная управления. Схема подключения Ведомость электромонтажных конструкций Связь и сигнализация Общие данные Планы расположения оборудования и прокладки комплексной телефонной сети на отм. 0.000 и 3.000 Охранная сигнализация Планы расположения сетей телефонизации, радиофикации и телевидения на отм. 0.000 и 3.000 Спецификация к чертежам СС-3, СС-5 Схемы кабельных соединений устройств, связи и сигнализации Автоматизация отопления и вентиляции Общие данные Приточная система П1. Схема функциональная Приточная система П1. Схема электрическая принципиальная управления Приточная система П1. Схема внешних проводок. План расположения Узел управления теплового пункта. Схема функциональная. Схема трубных проводок Узел управления теплового пункта. Шкаф управления ШУ1. Чертеж общего вида |
| Разработан: | Союзгипролесхоз |
| Утверждён: | 14.06.1989 Гослесхоз СССР (USSR Gosleskhoz 13) |



























































