Скачать Серия 3.501-67 Свайные основания под металлические прожекторные мачты высотой 21 и 28 мДата актуализации: 01.01.2021
|
| Обозначение: | Серия 3.501-67 |
| Обозначение англ: | Series 3.501-67 |
| Статус: | отменен |
| Название рус.: | Свайные основания под металлические прожекторные мачты высотой 21 и 28 м |
| Дата добавления в базу: | 01.10.2014 |
| Дата актуализации: | 01.01.2021 |
| Дата введения: | 01.07.1971 |
| Дата окончания срока действия: | 01.10.2000 |
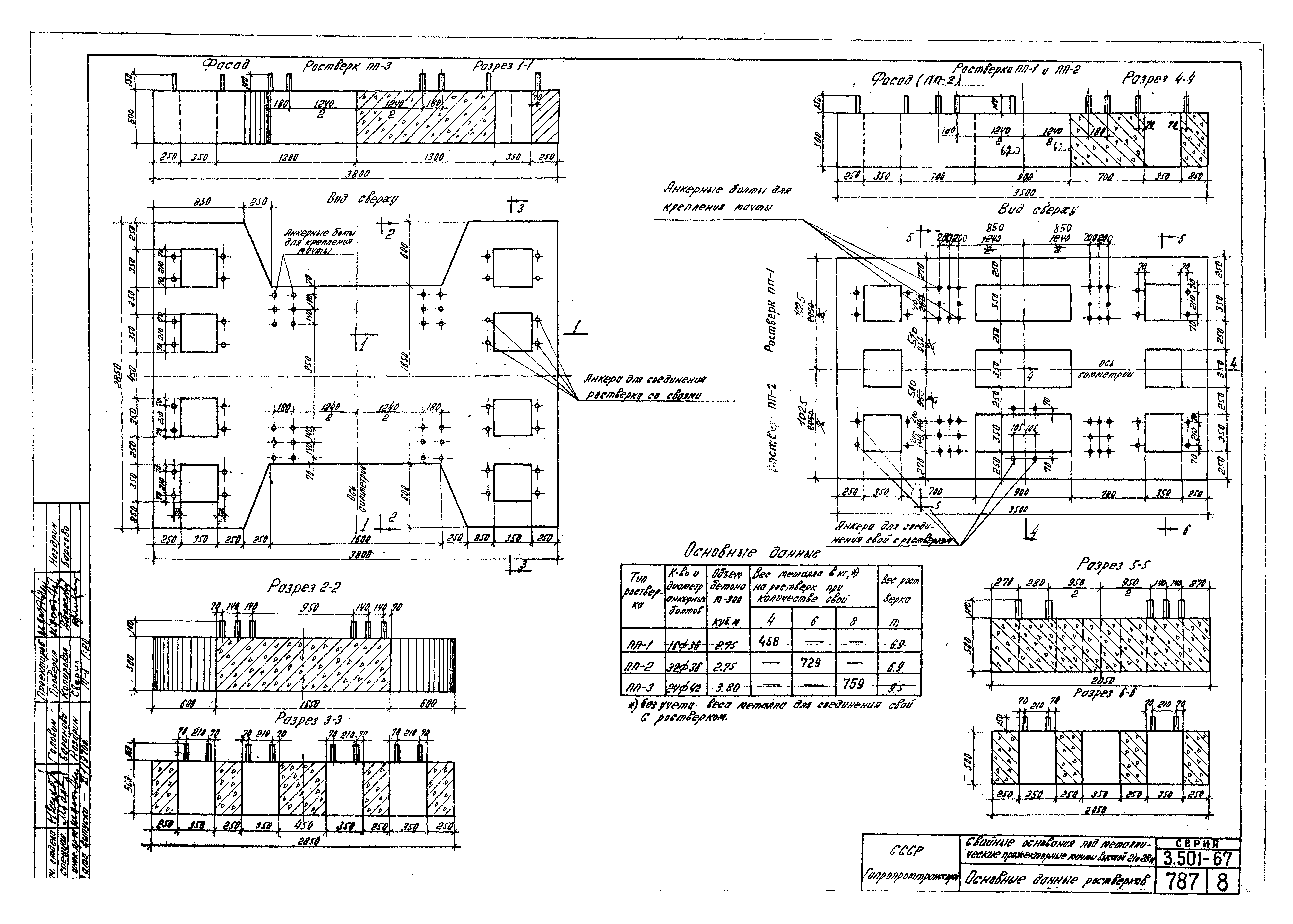
| Оглавление: | Содержание и пояснительная записка Условия применения фундаментов для отдельностоящих мачт Н = 21 и 28 м Условия применения фундаментов для отдельностоящих мачт, совмещенных с контактной сетью Графики для определения Sпр.р свай для мачт, совмещенных с контактной сетью Н = 21 м Графики для определения Sпр.р свай для мачт, совмещенных с контактной сетью Н = 28 м Основные данные для ростверков Арматурный чертеж ростверка ПП-1 Арматурный чертеж ростверка ПП-2 Арматурный чертеж ростверка ПП-3 Спецификация металла ростверка ПП-3. Выборки металла на ростверки Детали соединения свай с ростверком Детали установки анкерных болтов для крепления мачты Закрепление мачт на ростверках Устройство оголовков и схема подъема ростверков Основные данные свай Конструкция для свай длиной 5 м Конструкция для свай длиной 6 м Конструкция для свай длиной 8 м Конструкция для свай длиной 10 м |
| Разработан: | Гипропромтрансстрой |
| Утверждён: | 25.05.1971 Минтрансстрой (Mintransstroy П-14039) |




















