Скачать Типовой проект 902-1-166.1.90 Альбом 2. Технология производства. Внутренний водопровод и канализация. Отопление и вентиляция (из ТП 902-1-164.90)Дата актуализации: 01.01.2021
|
| Обозначение: | Типовой проект 902-1-166.1.90 |
| Обозначение англ: | 902-1-166.1.90 |
| Статус: | не определен законодательством |
| Название рус.: | Альбом 2. Технология производства. Внутренний водопровод и канализация. Отопление и вентиляция (из ТП 902-1-164.90) |
| Дата добавления в базу: | 01.10.2014 |
| Дата актуализации: | 01.01.2021 |
| Дата введения: | 15.05.1990 |
| Дата окончания срока действия: | 30.06.2003 |
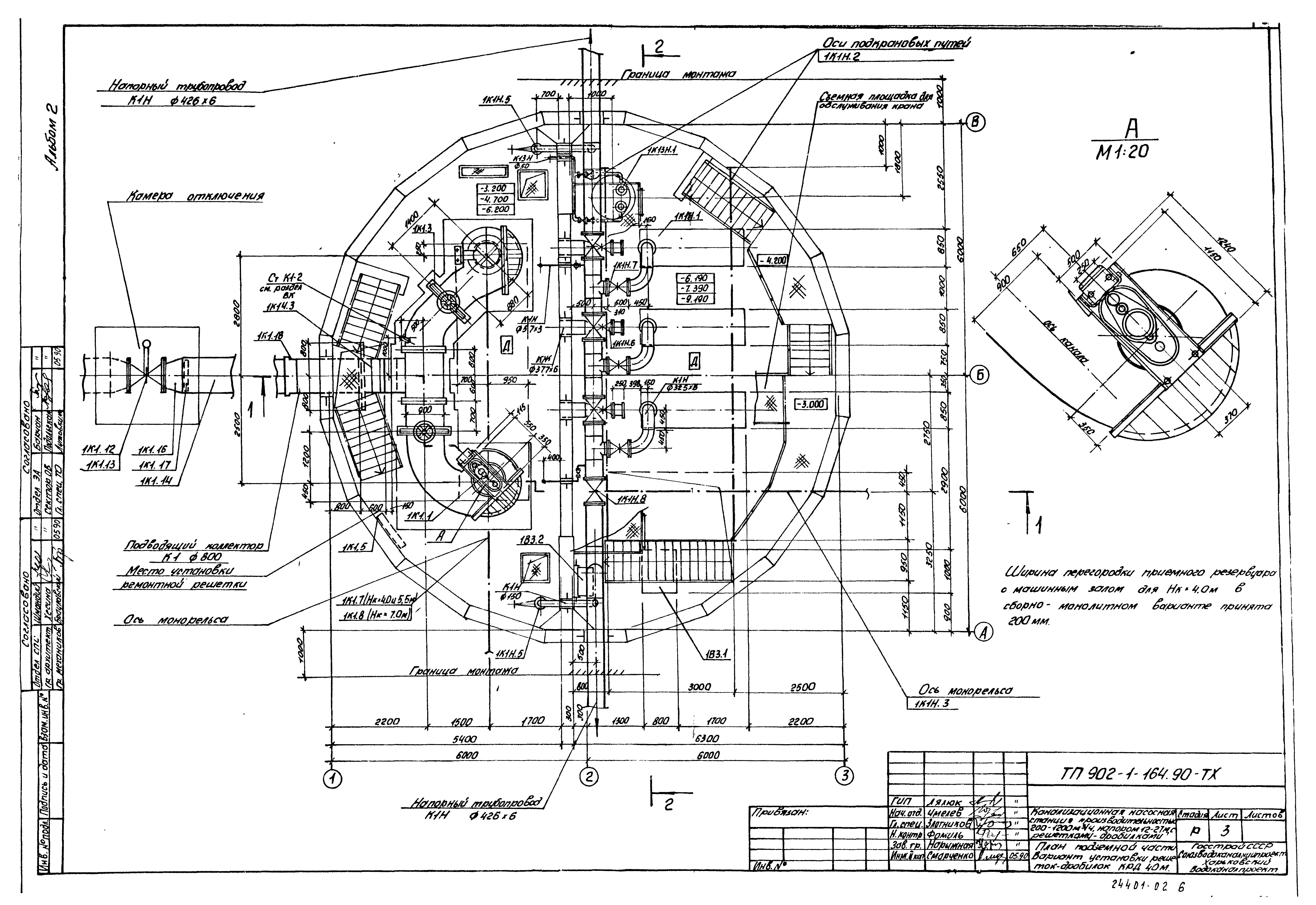
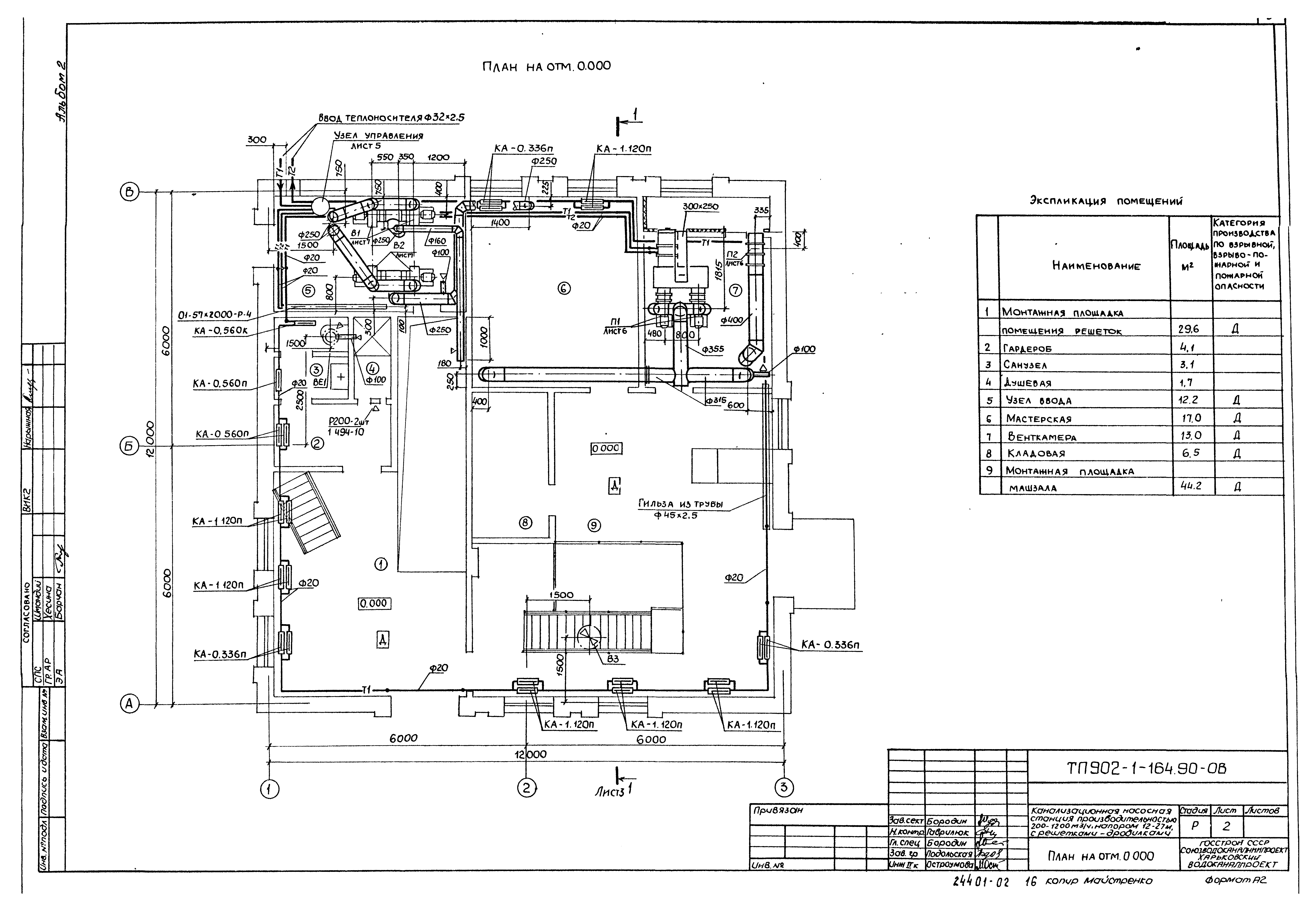
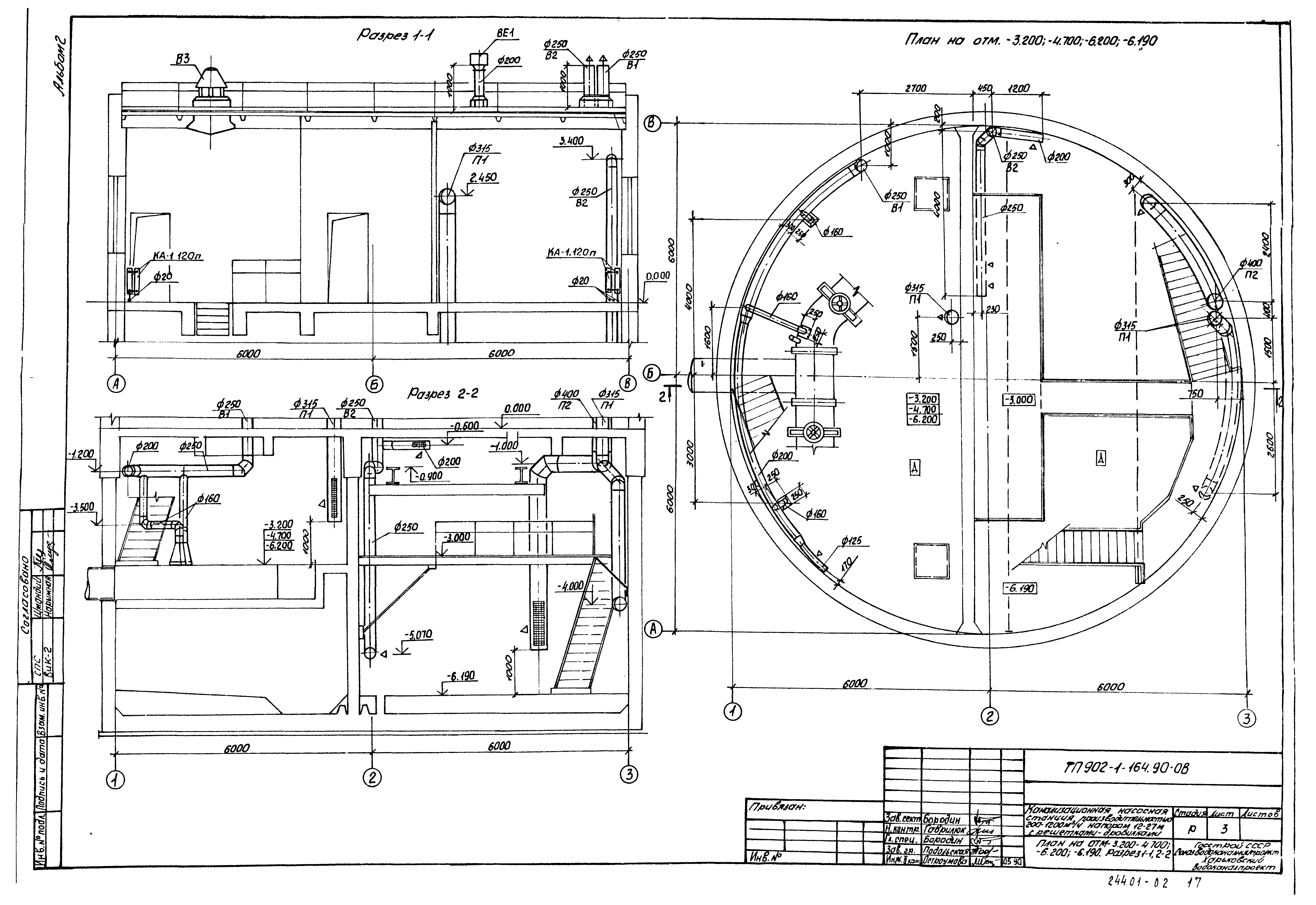
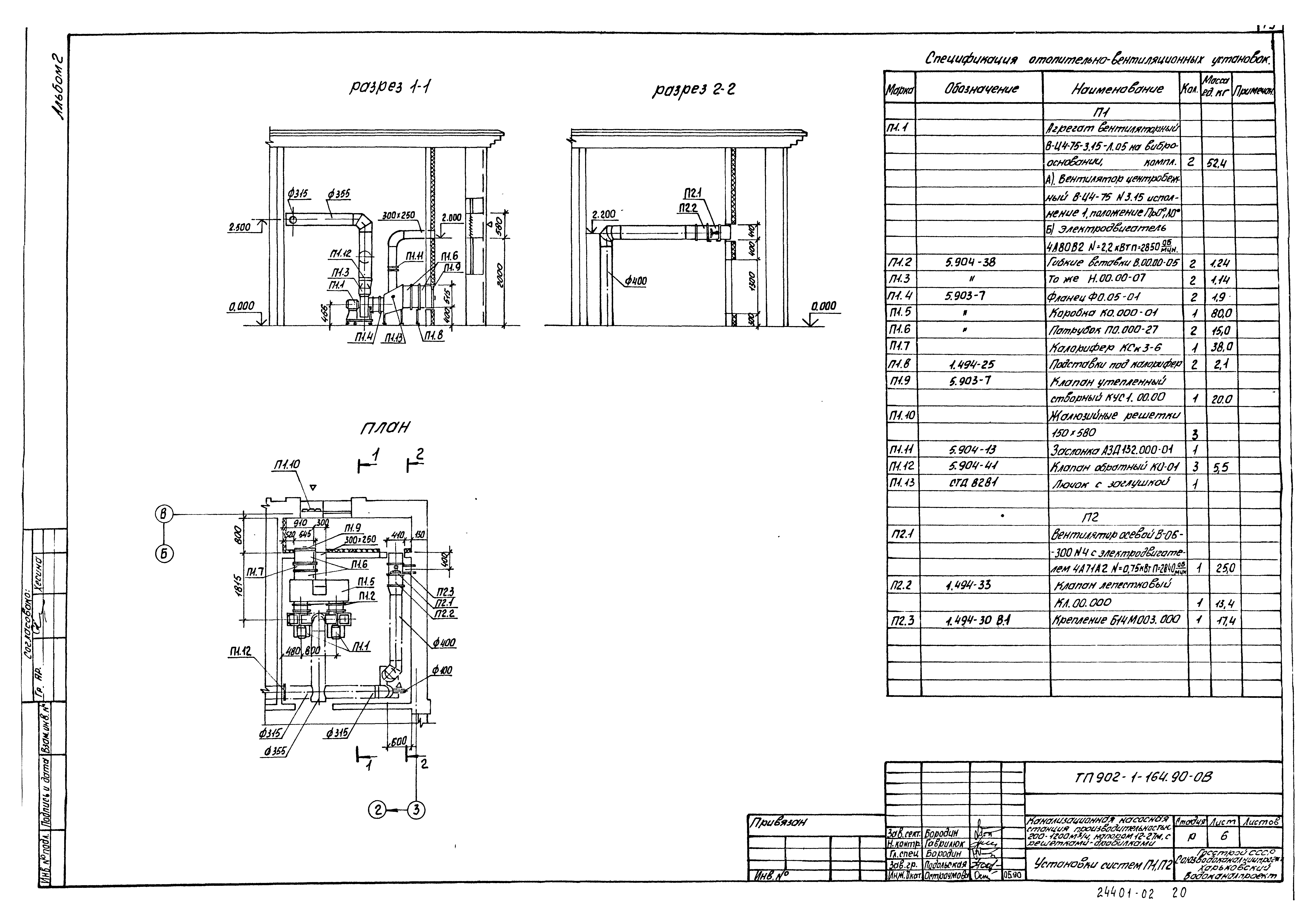
| Оглавление: | Технология производства ТХ Общие данные План подземной части. Вариант установки решеток-дробилок КРД40М План надземной части. Вариант установки решеток-дробилок РД-600 Разрез 1-1 (установка решеток-дробилок КРД40М) Разрез 1-1 (установка решеток-дробилок РД-600) Разрез 2-2 План приемного резервуара. Разрез 3-3 Схема узла подводящего коллектора. Схемы систем 1К1, 1К1Н. Схема управления аварийной заслонкой План машинного зала с системой В3. Схемы систем 1В3, 1К13, 1К13Н Внутренний водопровод и канализация ВК Общие данные. План на отм. 0.000. Схемы систем В1, К1, Т3 Отопление и вентиляция ОВ Общие данные План на отм. 0.000 План на отм. - 3.200; - 4.700; - 6.200; - 6.190. Разрез 1-1, 2-2 План на отм. - 7.390; - 9.190 между осями 2 - 3. Схемы систем П1, П2, В2, ВЕ1 Схемы систем отопления, теплоснабжения водоподогревателя, установки П1. Узла управления Установки систем П1, П2 Установки систем В1, В2 |
| Разработан: | Харьковский Водоканалпроект |
| Утверждён: | 15.05.1990 СоюзводоканалНИИпроект (SoyuzvodokanalNIIproject 9) |
| Заменяет собой: |




















