Скачать Типовой проект 902-3-92.91 Альбом 5. Нетиповые технологические конструкции (из ТП 902-3-94.91)Дата актуализации: 01.01.2021
|
| Обозначение: | Типовой проект 902-3-92.91 |
| Обозначение англ: | 902-3-92.91 |
| Статус: | не определен законодательством |
| Название рус.: | Альбом 5. Нетиповые технологические конструкции (из ТП 902-3-94.91) |
| Дата добавления в базу: | 01.10.2014 |
| Дата актуализации: | 01.01.2021 |
| Дата введения: | 28.02.1991 |
| Дата окончания срока действия: | 30.06.2003 |
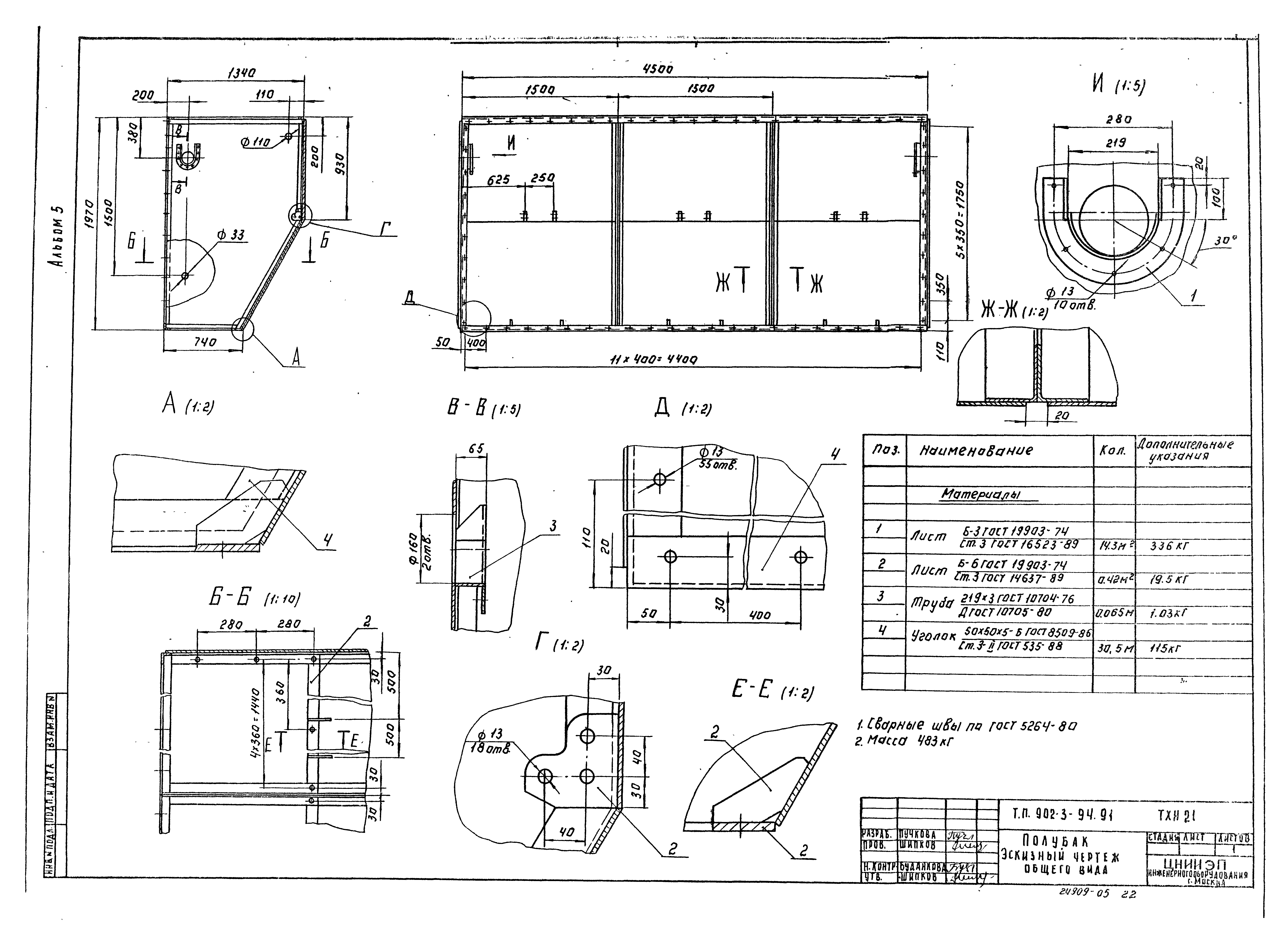
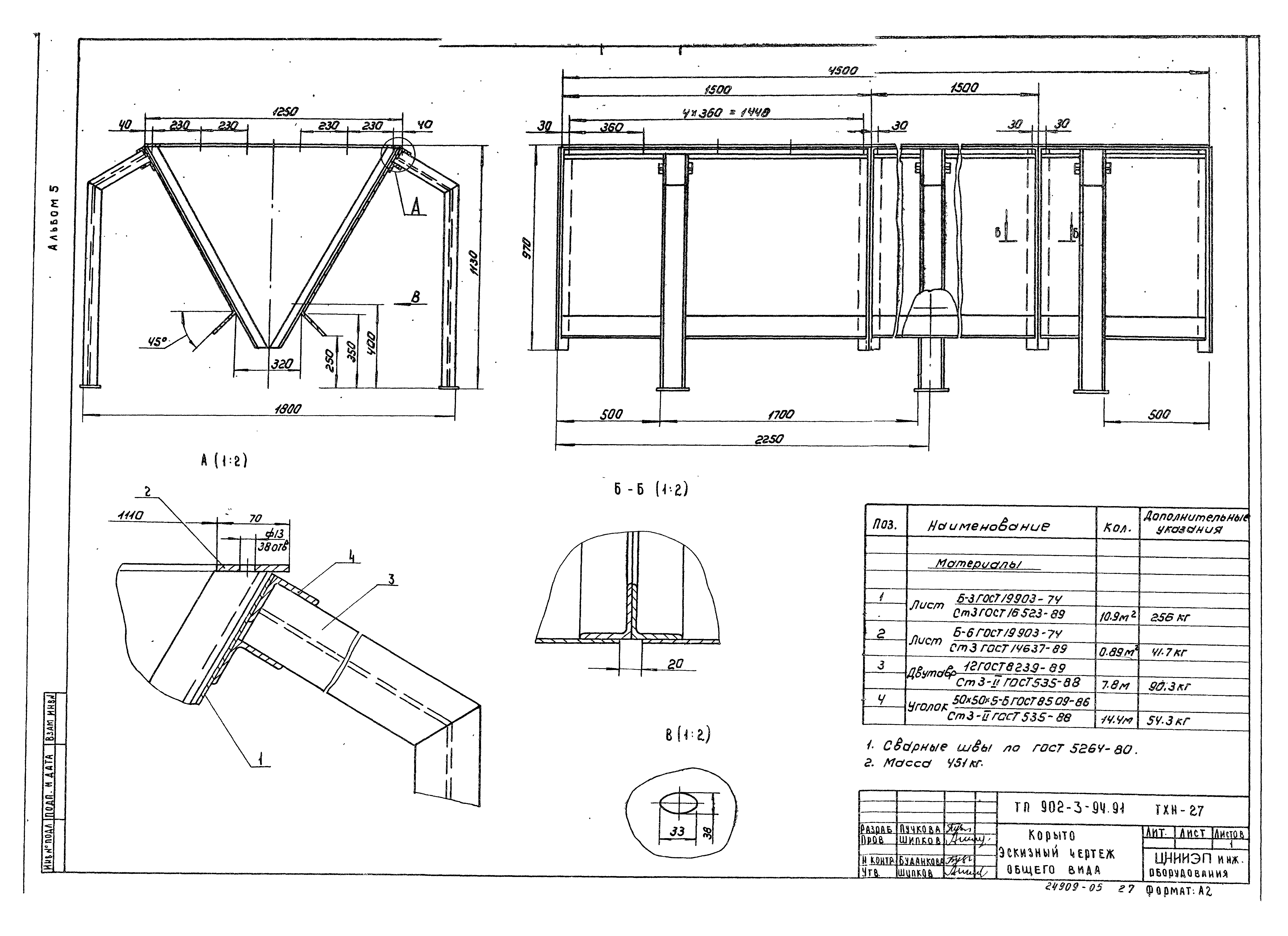
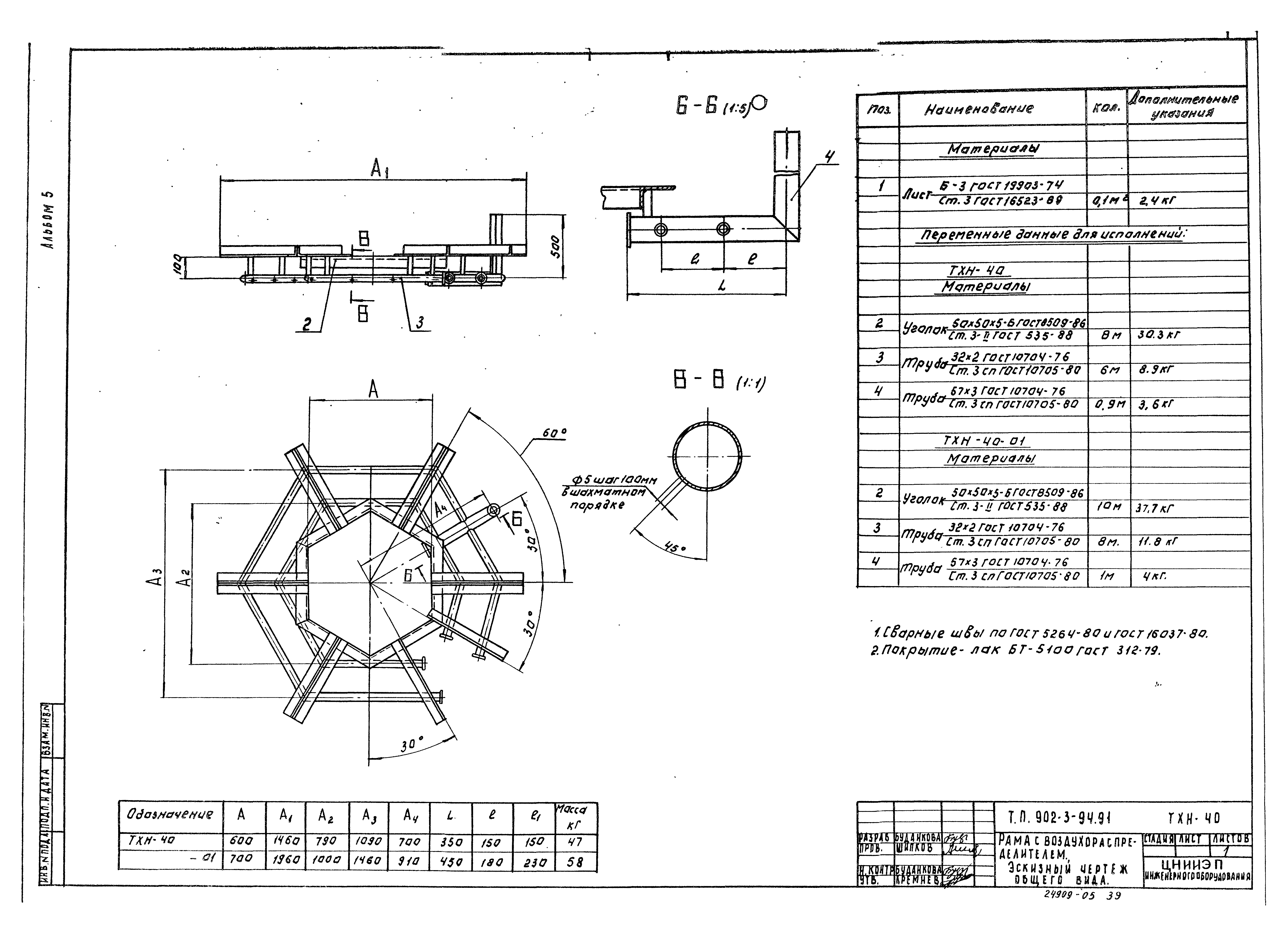
| Оглавление: | Обложка Титульный лист Содержание Полубак. Эскизный чертеж общего вида Корыто. Эскизный чертеж общего вида Бункер. Эскизный чертеж общего вида Лоток. Эскизный чертеж общего вида Скоба. Эскизный чертеж общего вида Полубак. Эскизный чертеж общего вида Элемент тонкослойного модуля. Эскизный чертеж общего вида Корыто. Эскизный чертеж общего вида Полубак. Эскизный чертеж общего вида Корыто. Эскизный чертеж общего вида Полубак. Эскизный чертеж общего вида Корыто. Эскизный чертеж общего вида Полубак. Эскизный чертеж общего вида Корыто. Эскизный чертеж общего вида Полубак. Эскизный чертеж общего вида Корыто. Эскизный чертеж общего вида Полубак. Эскизный чертеж общего вида Корыто. Эскизный чертеж общего вида Илоуплотнитель. Эскизный чертеж общего вида Короб. Эскизный чертеж общего вида Элемент с ершовой загрузкой. Эскизный чертеж общего вида Рама. Эскизный чертеж общего вида Бак дезинфекант. Эскизный чертеж общего вида Камера иловая. Эскизный чертеж общего вида Эрлифт циркулирующего вида. Эскизный чертеж общего вида Эрлифт уплотненного избыточного ила. Эскизный чертеж общего вида Эрлифт избыточного ила. Эскизный чертеж общего вида Лоток. Эскизный чертеж общего вида Элемент с ершовой загрузкой. Эскизный чертеж общего вида Рама с воздухораспределителем. Эскизный чертеж общего вида Дегельминтизатор. Эскизный чертеж общего вида Песколовка. Эскизный чертеж общего вида |
| Разработан: | ЦНИИЭП |
| Утверждён: | 28.02.1991 Госкомархитектура (24) |











































