Скачать Типовой проект 902-5-32.86 Альбом 3. Нестандартизированное оборудование (из ТП 902-5-31.86)Дата актуализации: 01.01.2021
|
| Обозначение: | Типовой проект 902-5-32.86 |
| Обозначение англ: | 902-5-32.86 |
| Статус: | не определен законодательством |
| Название рус.: | Альбом 3. Нестандартизированное оборудование (из ТП 902-5-31.86) |
| Дата добавления в базу: | 01.10.2014 |
| Дата актуализации: | 01.01.2021 |
| Дата введения: | 24.03.1986 |
| Дата окончания срока действия: | 30.06.2003 |
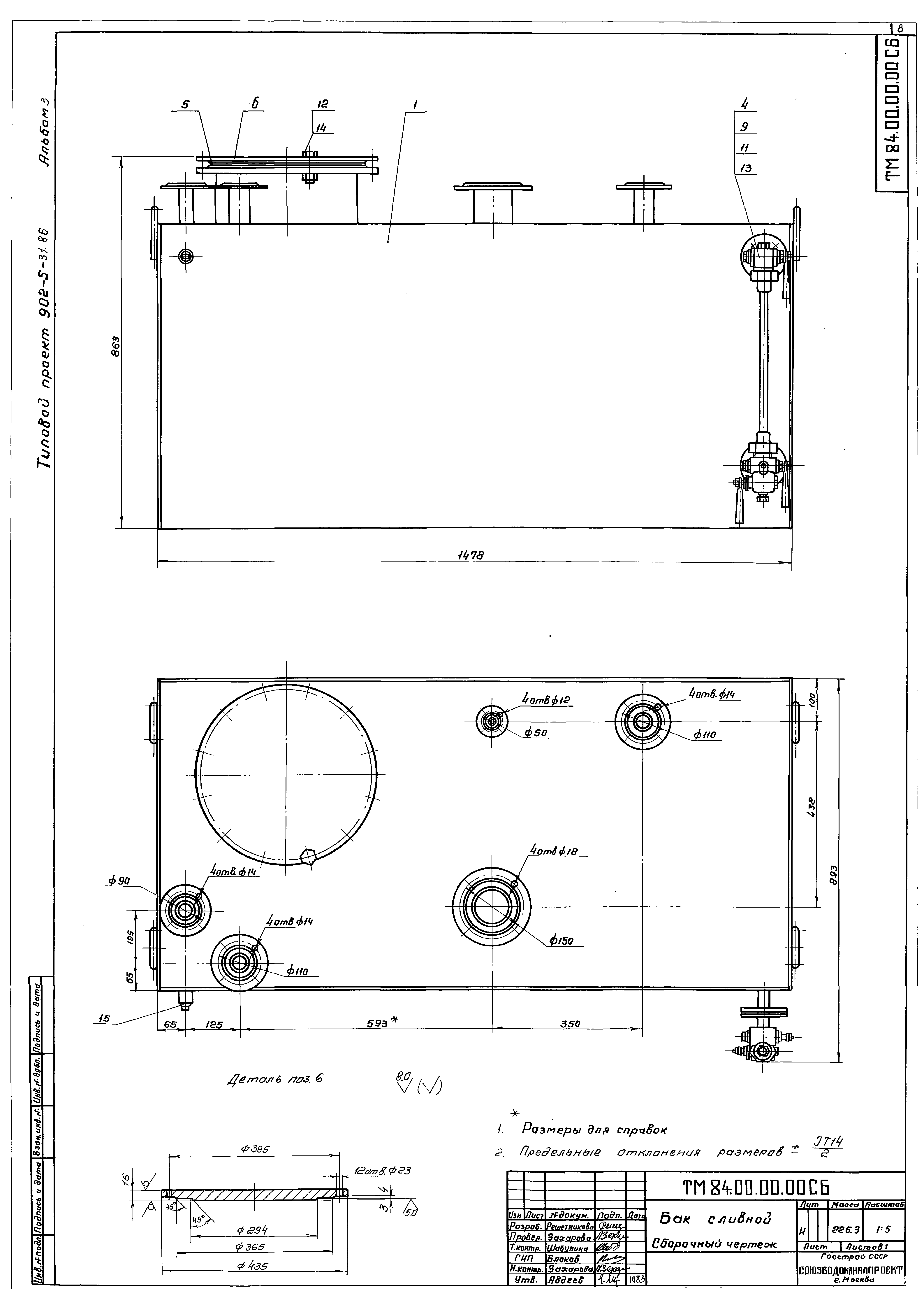
| Оглавление: | Содержание ТМ83.00.00.00 Влагоотделитель ТМ83.00.00.00СБ Влагоотделитель ТМ83.01.00.00 Корпус ТМ83.01.00.00СБ Корпус ТМ83.01.00.01 Труба ТМ83.01.00.03 Заглушка ТМ83.01.00.04 Фланец ТМ83.01.00.05 Обечайка ТМ83.02.00.00 Крышка ТМ83.02.00.00СБ Крышка ТМ84.00.00.00 Бак сливной ТМ84.00.00.00СБ Бак сливной ТМ84.01.00.00 Корпус ТМ84.01.00.00СБ Корпус ТМ84.01.00.01 Лист ТМ84.01.00.02 Заглушка ТМ84.01.00.05 Петля ТМ84.01.00.14 Фланец ТМ85.00.00.00 Насадка для свечи ТМ85.00.00.00СБ Насадка для свечи ТМ85.00.00.01 Лист ТМ85.00.00.02 Косынка ТМ85.00.00.03 Рассекатель ТМ86.00.00.00 Приспособление для фиксации положения пробки крана 11Б6бк и 11Б7бк ТМ86.00.00.00СБ Приспособление для фиксации положения пробки крана 11Б6бк и 11Б7бк ТМ86.00.00.01 Скоба ТМ86.00.00.02 Шайба ТМ86.00.00.03 Основание |
| Разработан: | Союзводоканалпроект |
| Утверждён: | 04.03.1986 МЖКХ РСФСР (111) |














