Скачать Типовой проект 902-5-51.88 Альбом 1. Пояснительная записка. Технология производства. Отопление и вентиляцияДата актуализации: 01.01.2021
|
| Обозначение: | Типовой проект 902-5-51.88 |
| Обозначение англ: | 902-5-51.88 |
| Статус: | не определен законодательством |
| Название рус.: | Альбом 1. Пояснительная записка. Технология производства. Отопление и вентиляция |
| Дата добавления в базу: | 01.10.2014 |
| Дата актуализации: | 01.01.2021 |
| Дата введения: | 07.09.1988 |
| Дата окончания срока действия: | 30.06.2003 |
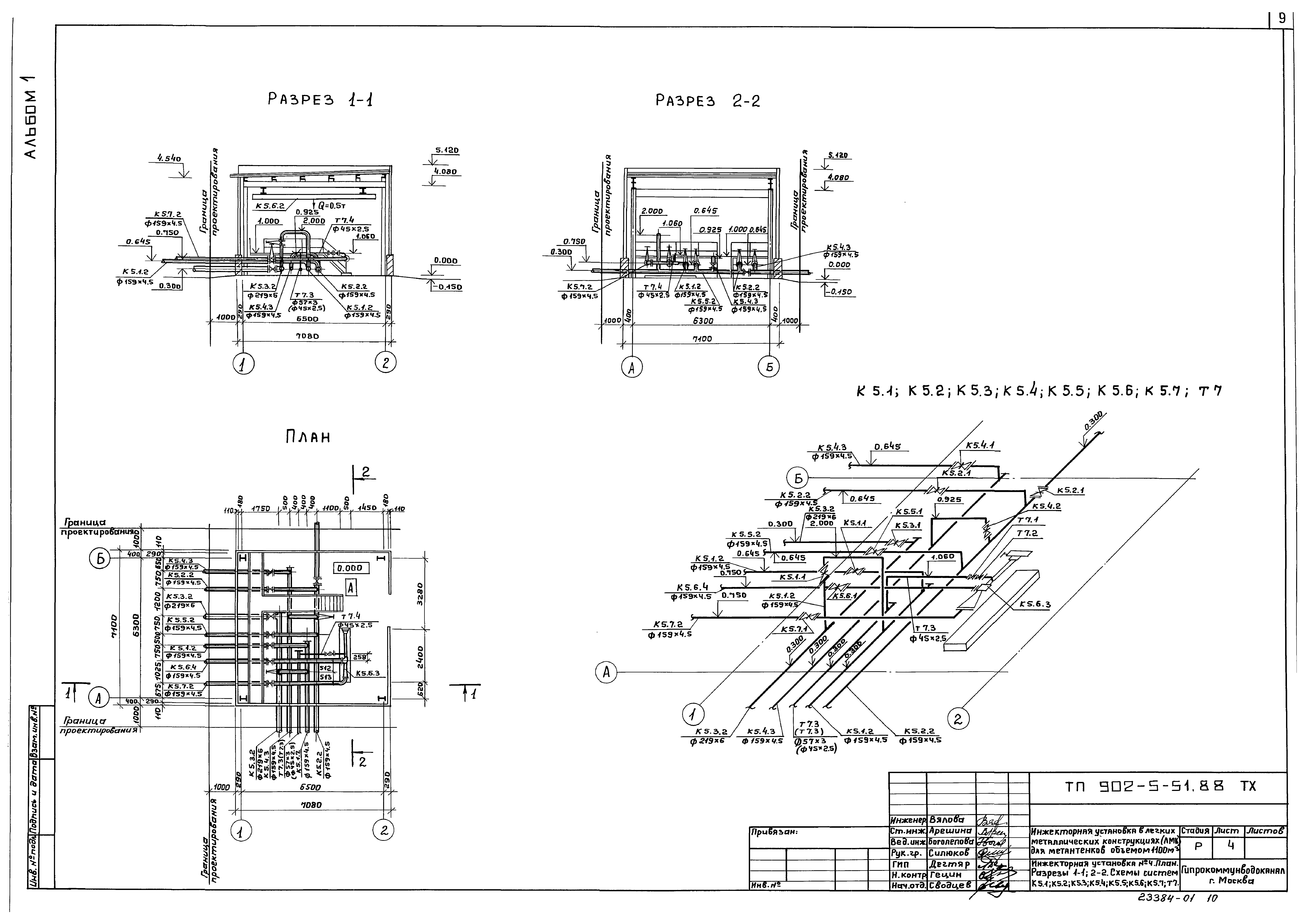
| Оглавление: | Содержание альбома Пояснительная записка Технология производства Общие данные Инжекторная №1. План. Разрезы 1-1, 2-2. Схемы систем К5.1; К5.2; К5.3; К5.4; К5.5; К5.6; К5.7; Т7 Инжекторная №2, 3. План. Разрезы 1-1, 2-2. Схемы систем К5.1; К5.2; К5.3; К5.4; К5.5; К5.6; К5.7; Т7 Инжекторная №4. План. Разрезы 1-1, 2-2. Схемы систем К5.1; К5.2; К5.3; К5.4; К5.5; К5.6; К5.7; Т7 Нестандартизированное оборудование ТХН Подогреватель инжекторный Ду150. Эскизный чертеж общего вида Отопление и вентиляция Общие данные План на отм. 0.000. Разрез 1-1. Схемы систем отопления и вентиляции |
| Разработан: | Гипрокоммунводоканал Минжилкомхоза РСФСР |
| Утверждён: | 07.09.1988 МЖКХ РСФСР (232) |













