Скачать Типовой проект 902-5-51.88 Альбом 2. Архитектурные решения. Конструкции железобетонные. Конструкции металлические (из ТП 902-5-52.88)Дата актуализации: 01.01.2021
|
| Обозначение: | Типовой проект 902-5-51.88 |
| Обозначение англ: | 902-5-51.88 |
| Статус: | не определен законодательством |
| Название рус.: | Альбом 2. Архитектурные решения. Конструкции железобетонные. Конструкции металлические (из ТП 902-5-52.88) |
| Дата добавления в базу: | 01.10.2014 |
| Дата актуализации: | 01.01.2021 |
| Дата введения: | 07.09.1988 |
| Дата окончания срока действия: | 30.06.2003 |
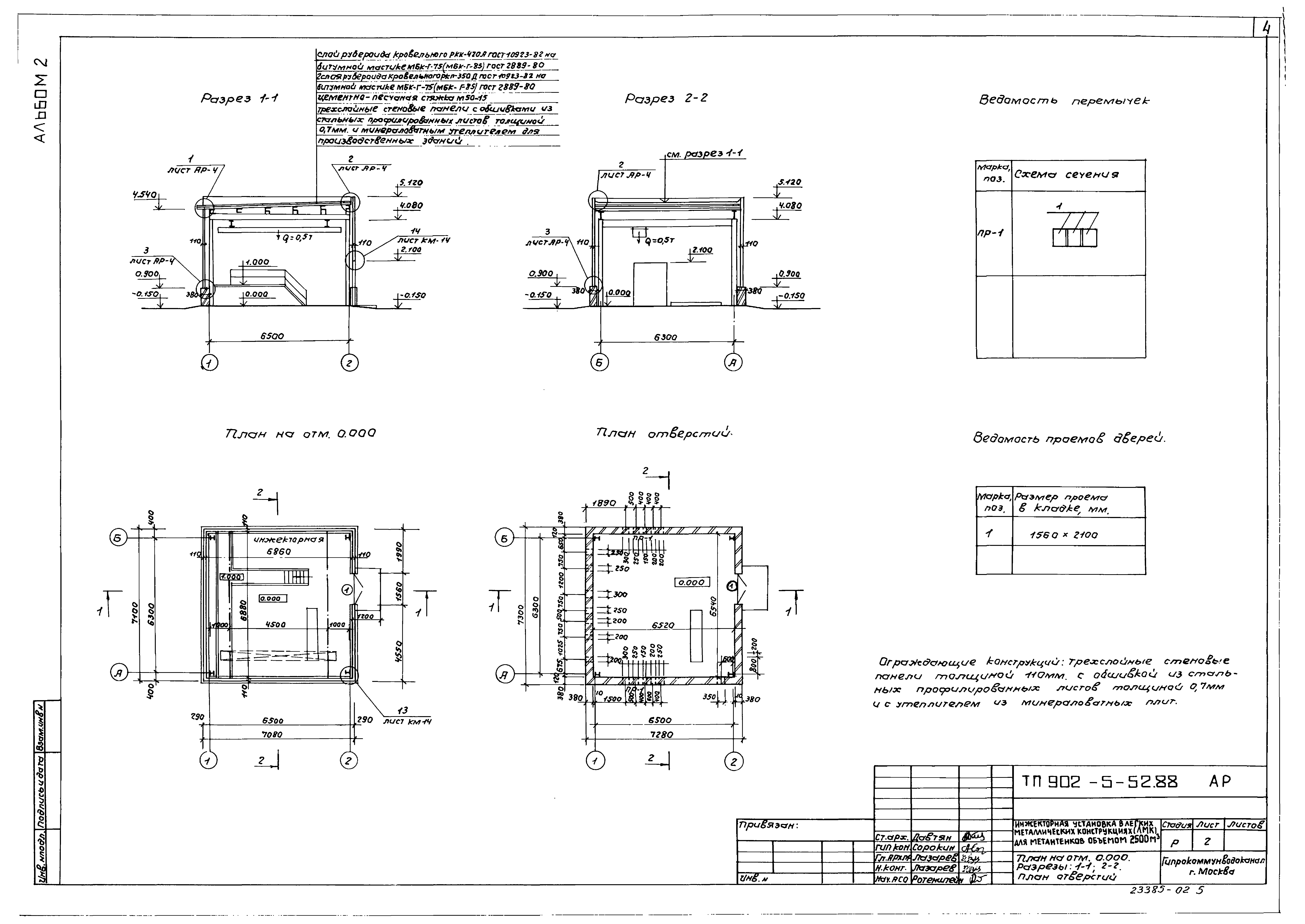
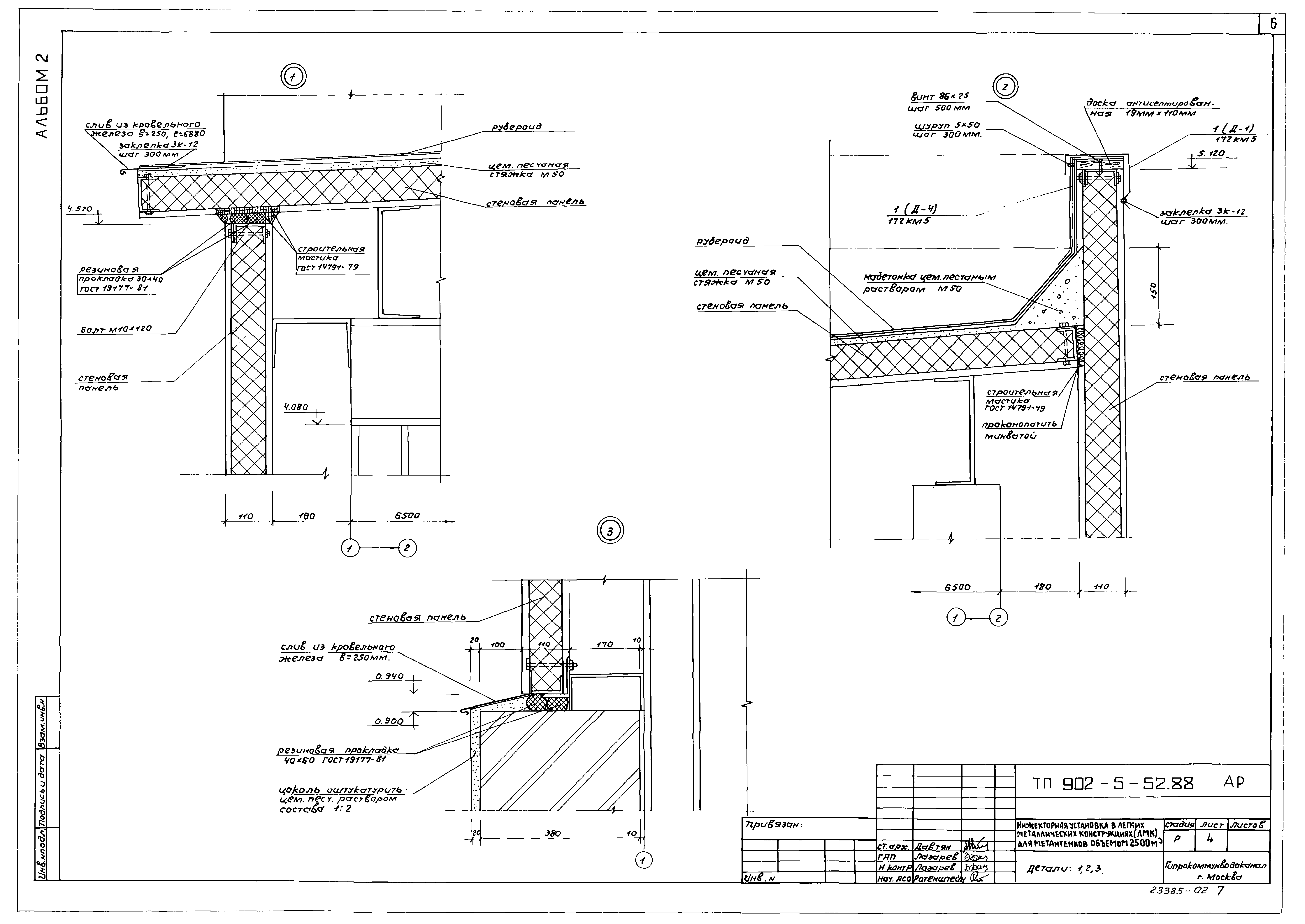
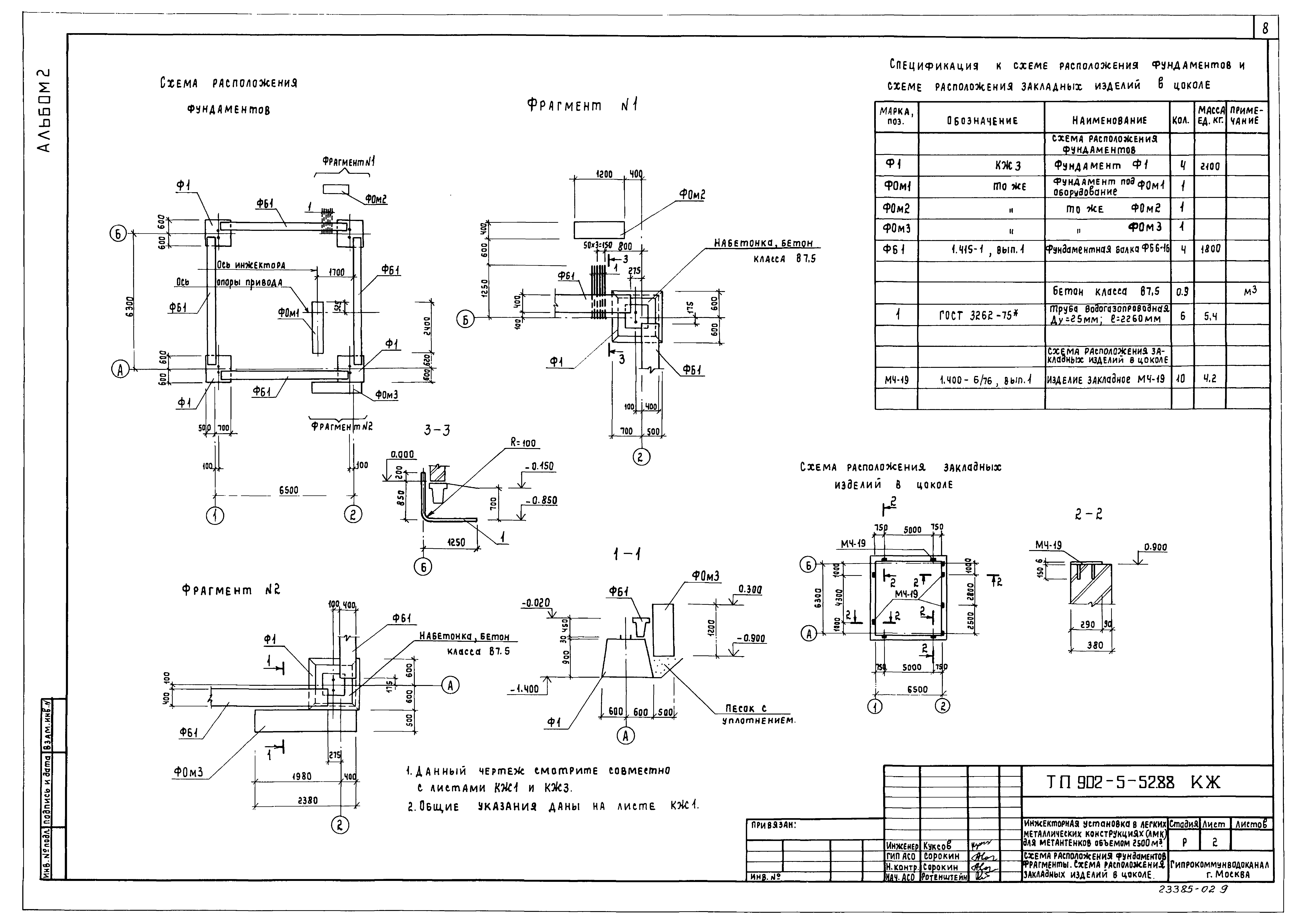
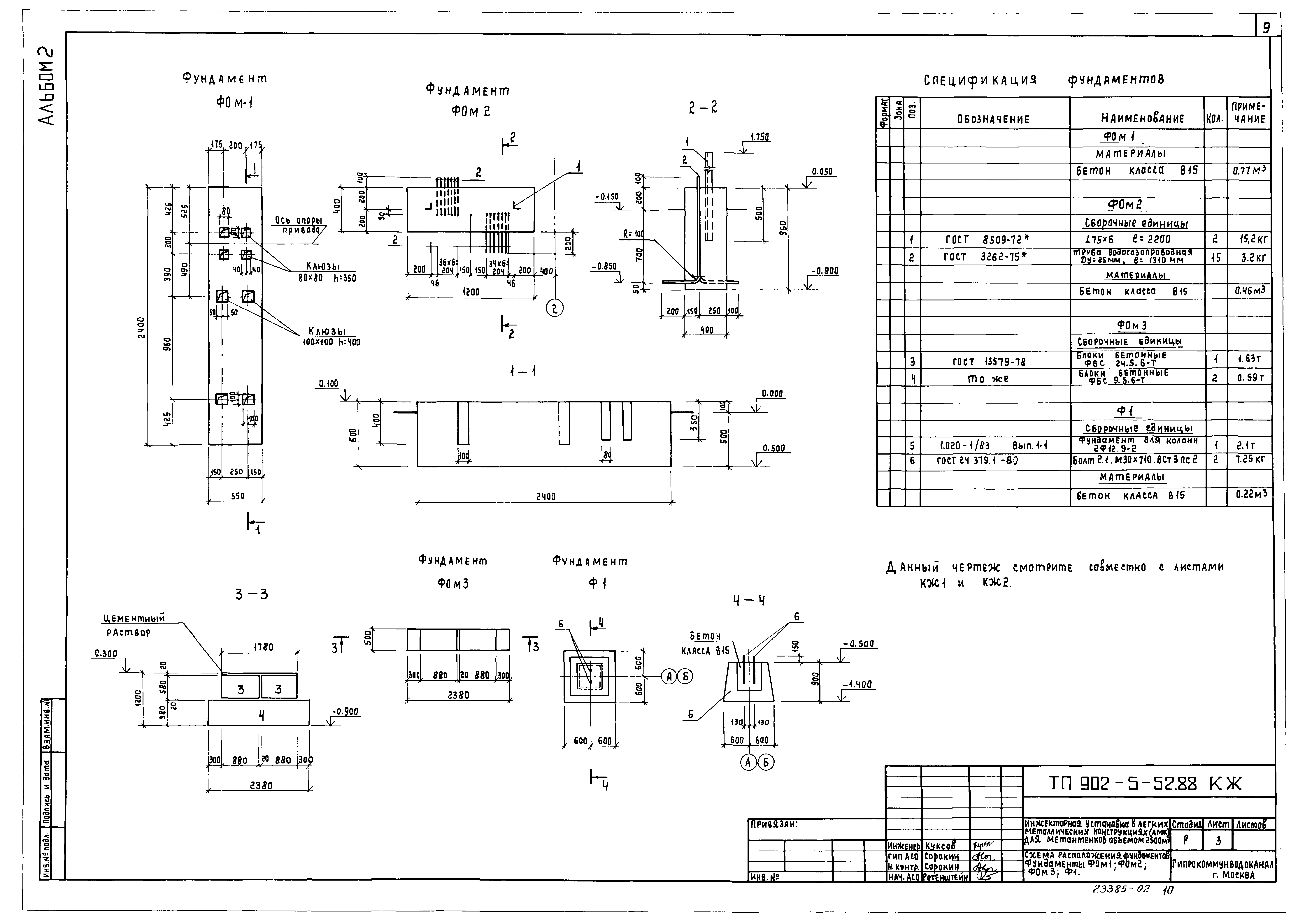
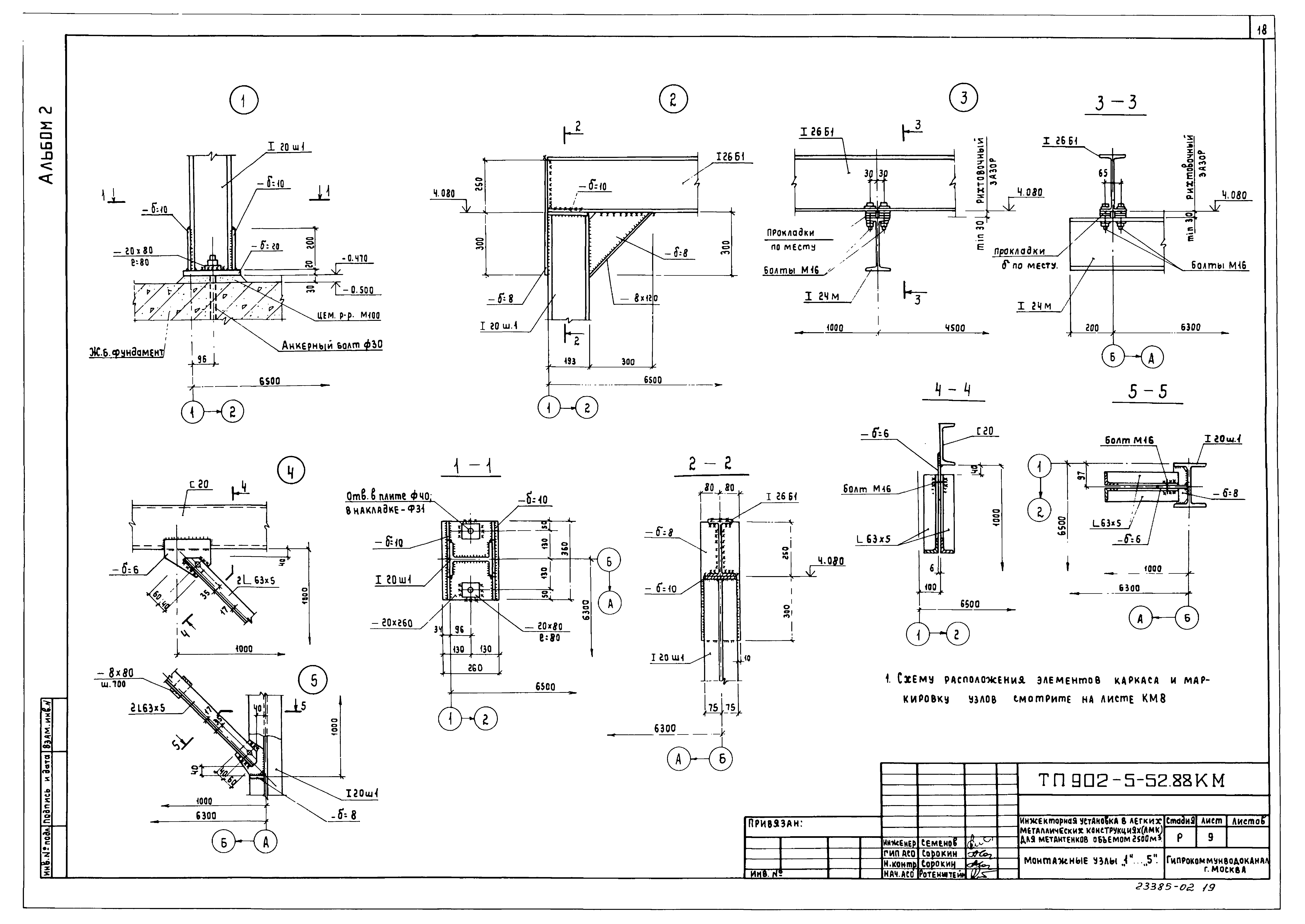
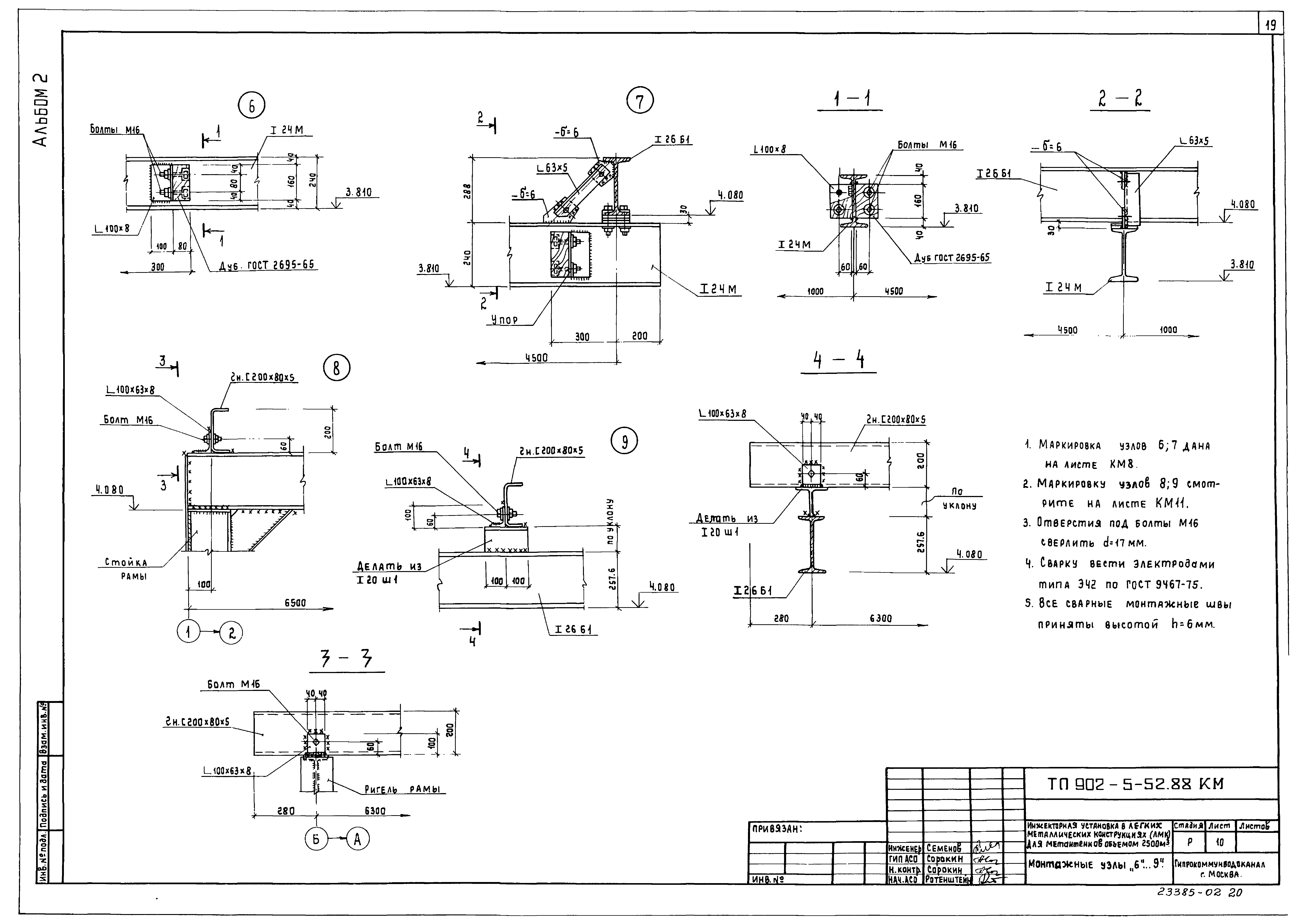
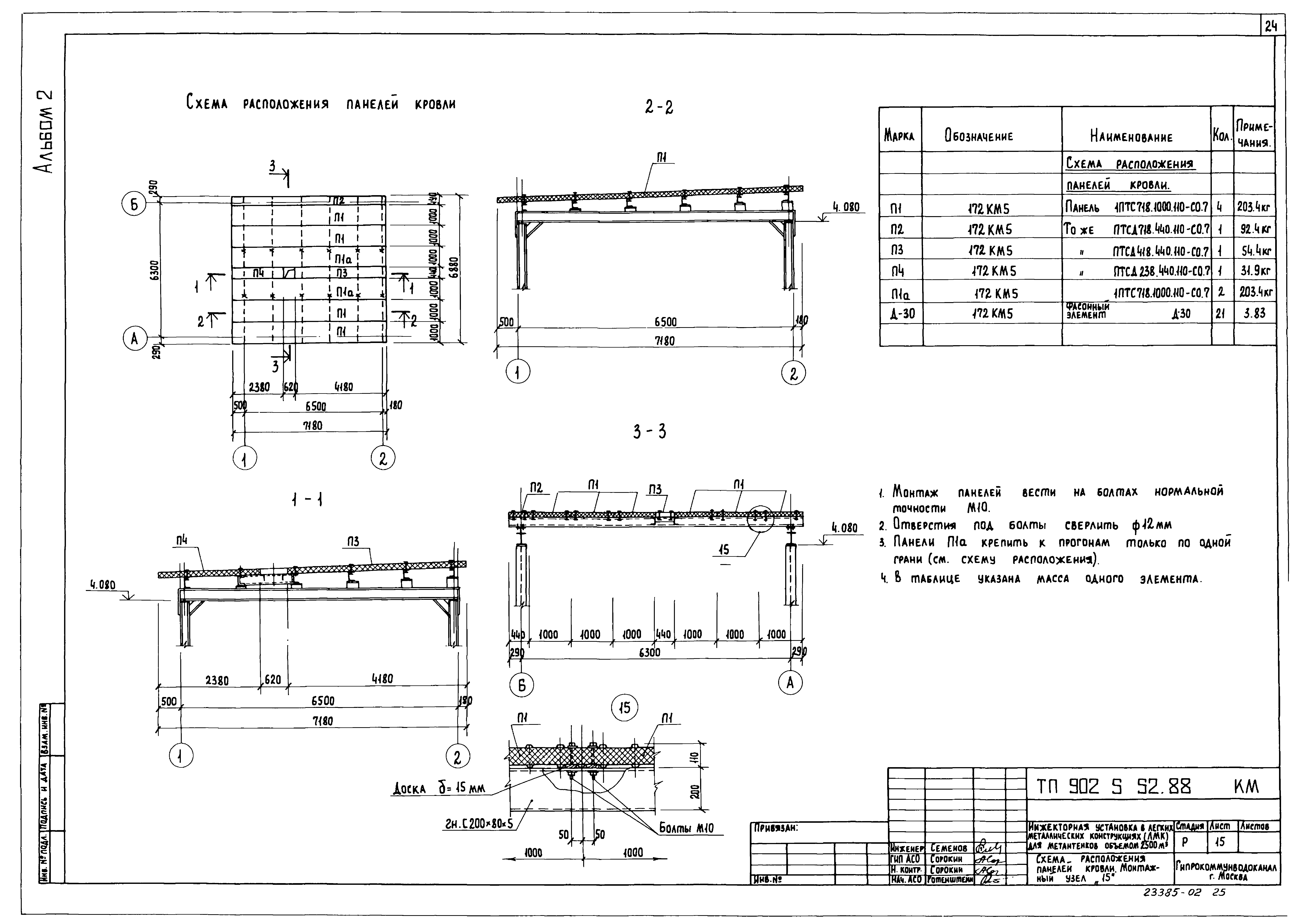
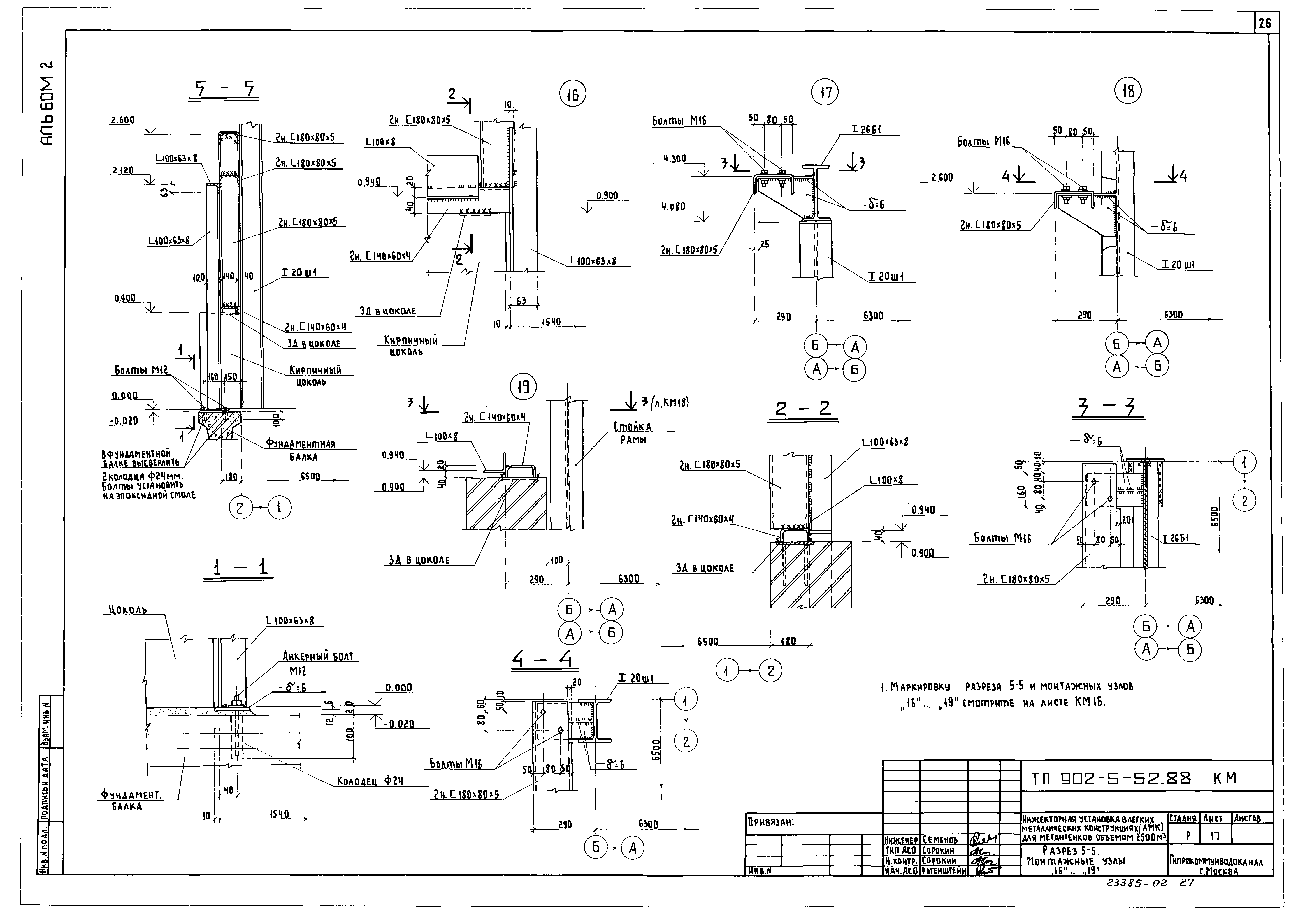
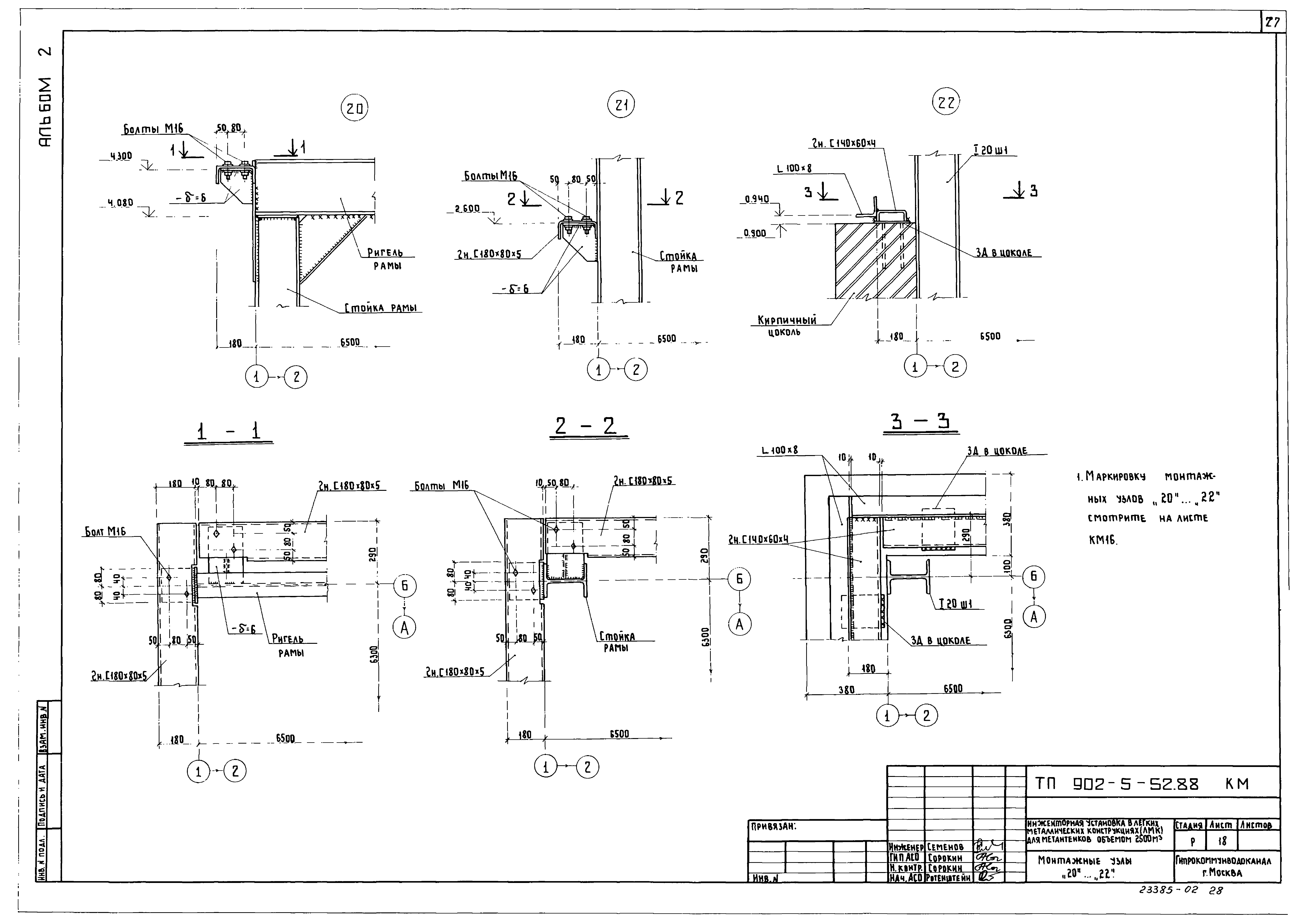
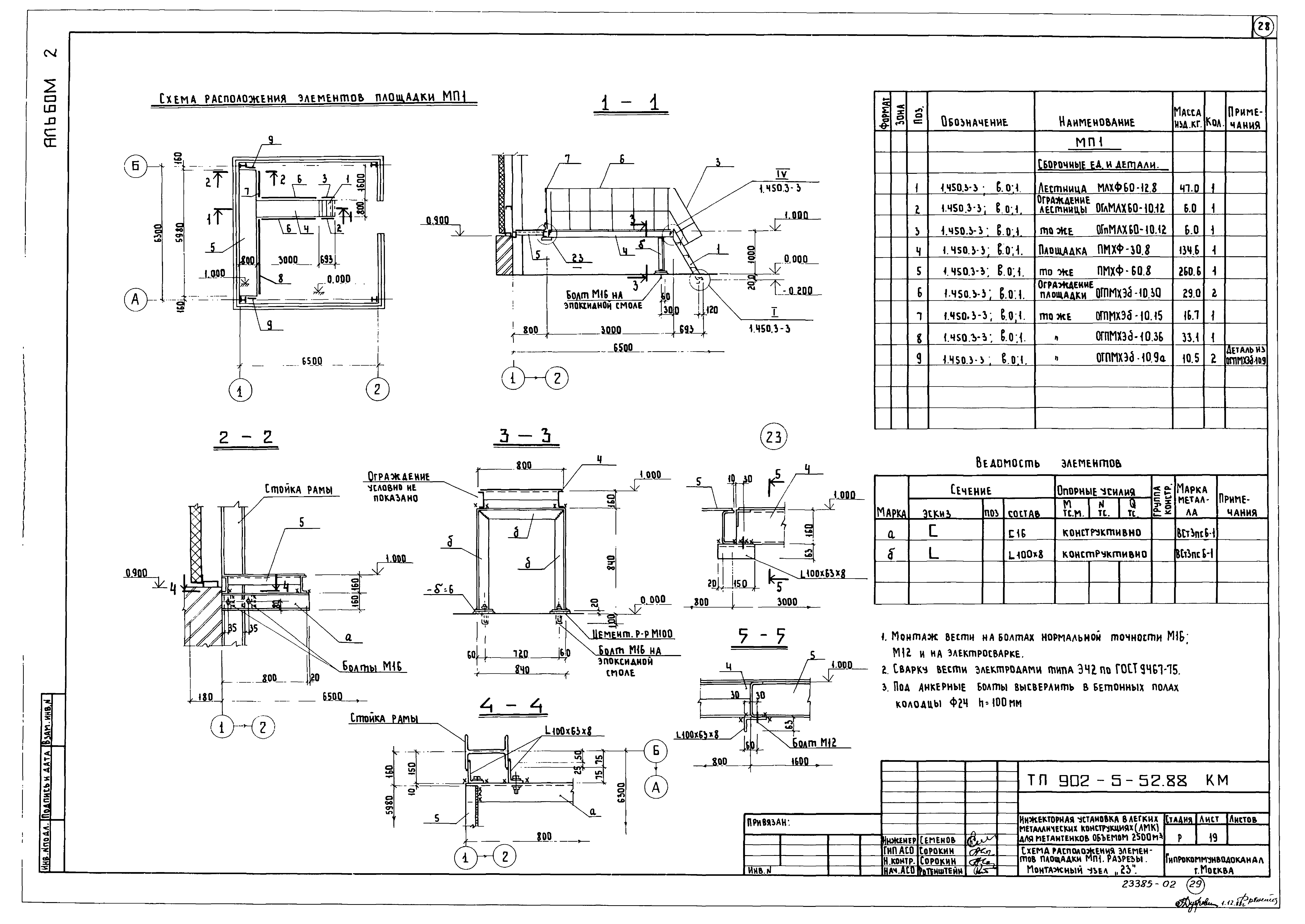
| Оглавление: | Содержание альбома Архитектурные решения Общие данные План на отм. 0.000. Разрезы 1-1, 2-2. План отверстий Фасады 1 - 2; 2 - 1; А - Б; Б - А Детали 1, 2, 3 Конструкции железобетонные Общие данные Схема расположения фундаментов. Фрагменты. Схема расположения закладных изделий в цоколе Схема расположения фундаментов. Фундаменты ФОм1, ФОм2, ФОм3, Ф1 Конструкции металлические Общие данные Схема расположения элементов каркаса и путей подвесного транспорта Монтажные узлы "1"…"5" Монтажные узлы "6"…"9" Схема расположения прогонов кровли Монтажные узлы "10"…"12" Схема расположения стеновых панелей Разрезы 1-1…4-4. Монтажные узлы "13", "14" Схема расположения панелей кровли. Монтажный узел "15" Схема расположения элементов фахверков. Разрезы 1-1…4-4 Разрез 5-5. Монтажные узлы "16"…"19" Монтажные узлы "20"…"22" Схема расположения элементов площадки МП1. Разрезы. Монтажный узел "23" |
| Разработан: | Гипрокоммунводоканал Минжилкомхоза РСФСР |
| Утверждён: | 07.09.1988 МЖКХ РСФСР (232) |




























