Скачать Типовой проект 411-2-191.88 Альбом 1. Пояснительная записка. Технология производстваДата актуализации: 01.01.2021
|
| Обозначение: | Типовой проект 411-2-191.88 |
| Обозначение англ: | 411-2-191.88 |
| Статус: | не определен законодательством |
| Название рус.: | Альбом 1. Пояснительная записка. Технология производства |
| Дата добавления в базу: | 01.10.2014 |
| Дата актуализации: | 01.01.2021 |
| Дата введения: | 20.09.1988 |
| Дата окончания срока действия: | 30.06.2003 |
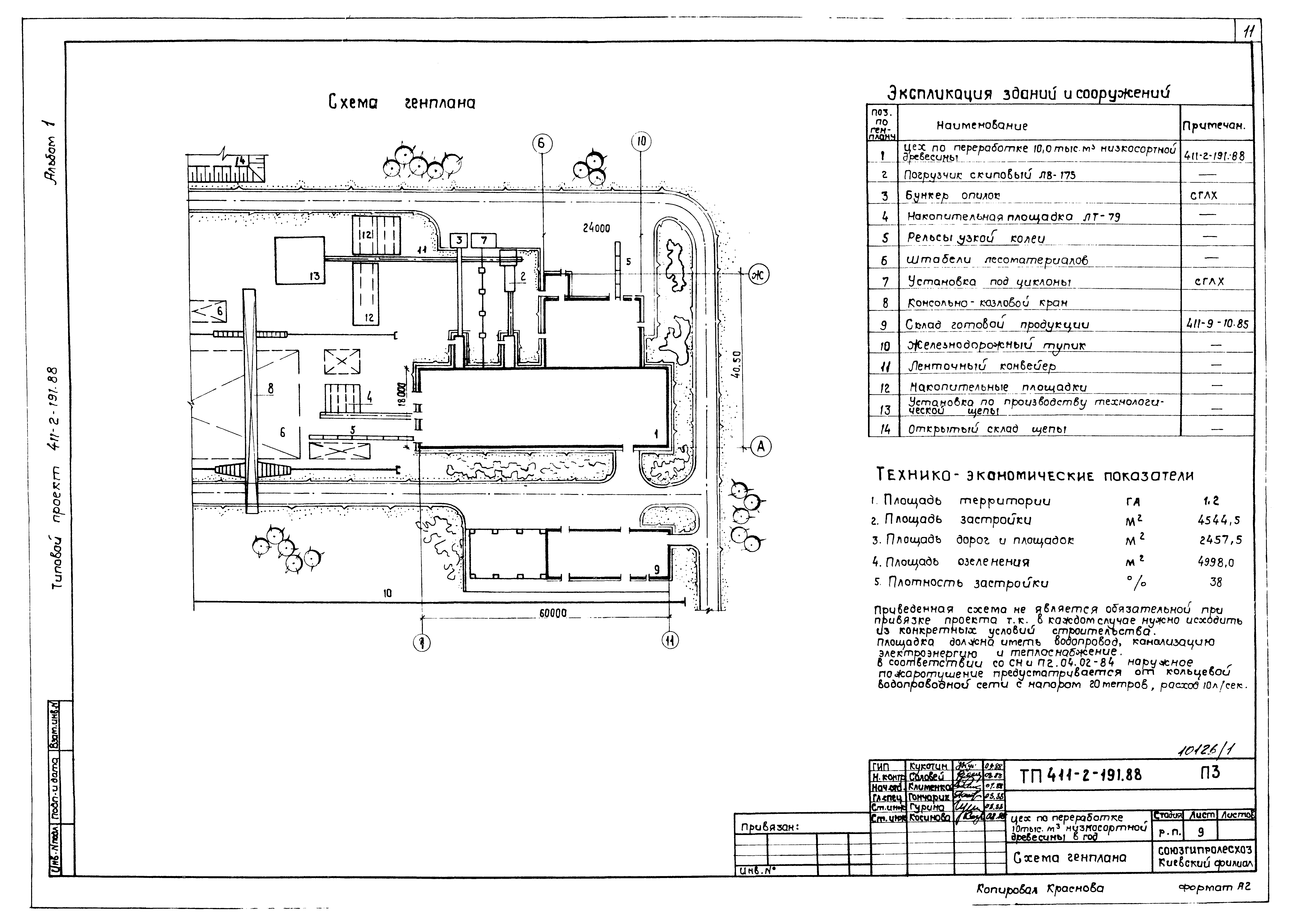
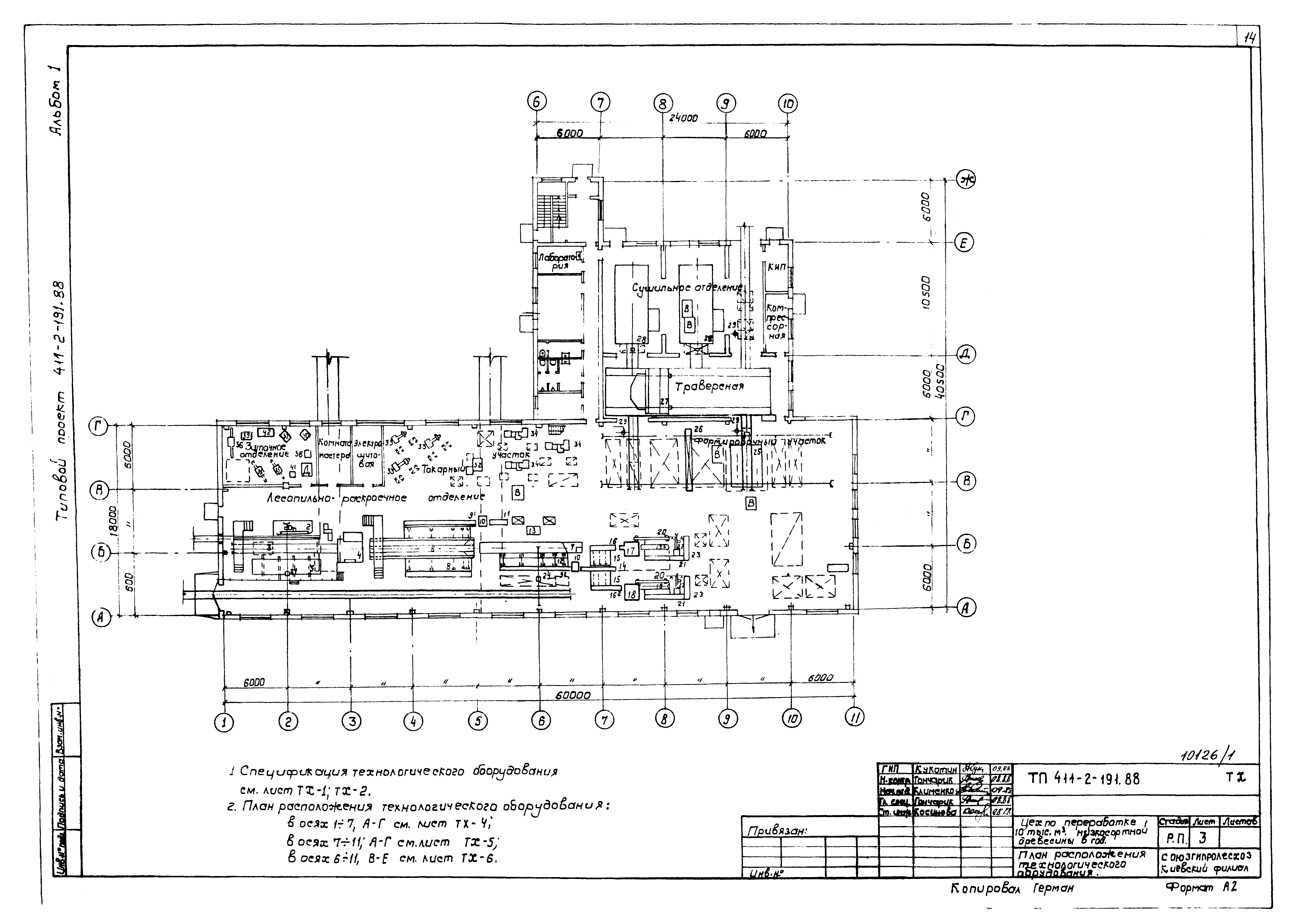
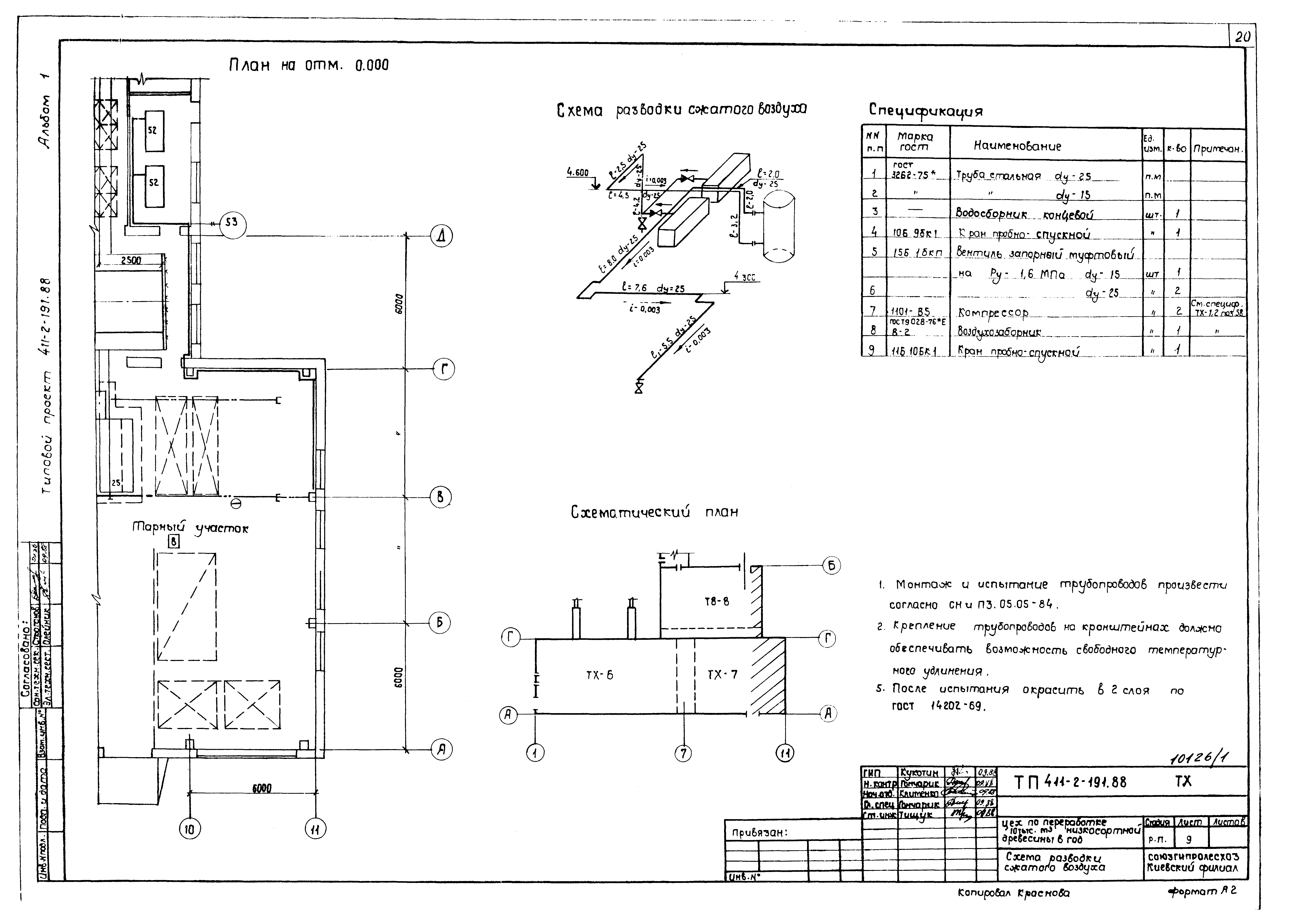
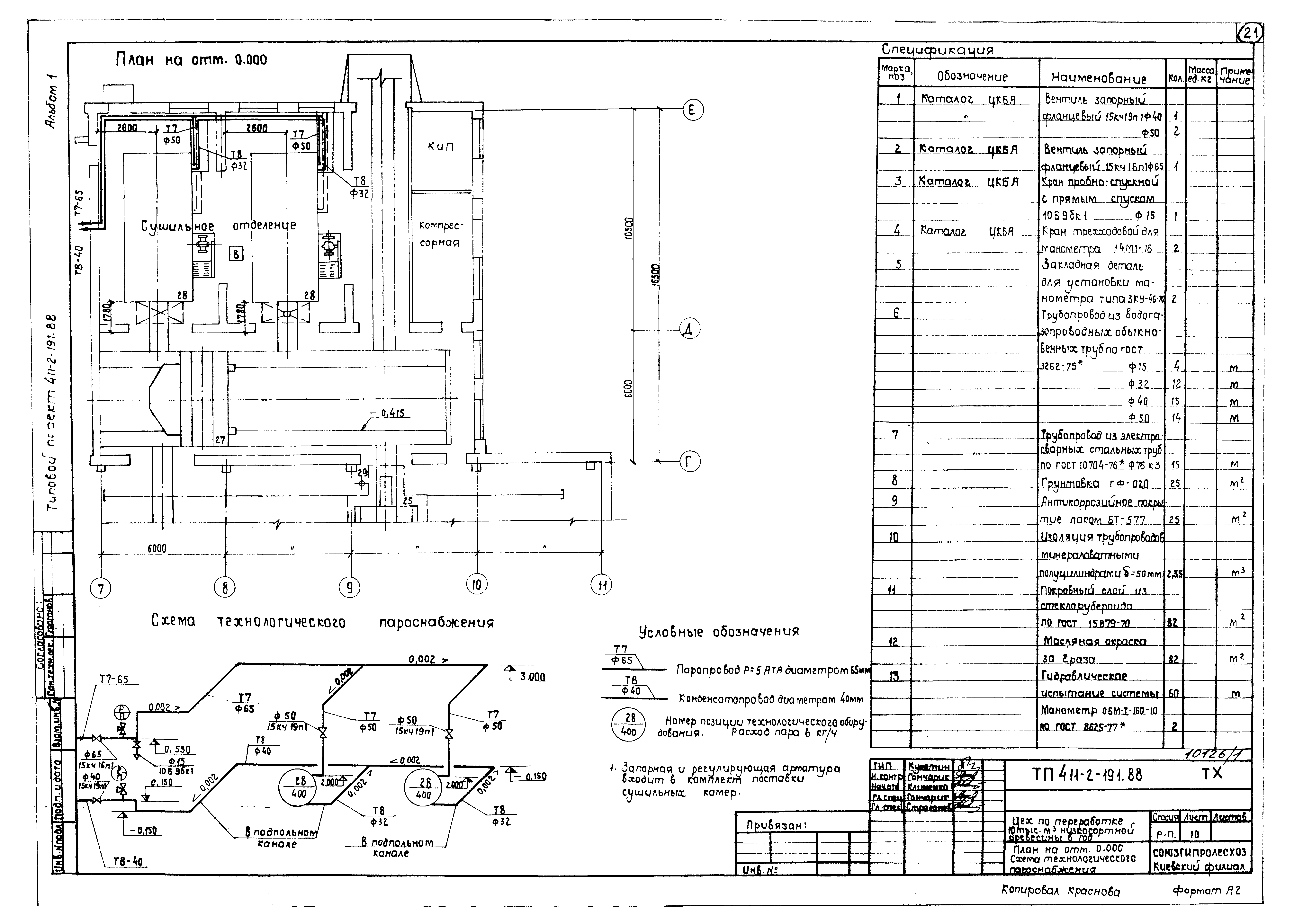
| Оглавление: | Содержание альбома Пояснительная записка Схема генплана Технология производства Общие данные. Спецификация План расположения технологического оборудования План расположения технологического оборудования в осях 1 - 7; А - Г План расположения технологического оборудования в осях 7 - 11; А - Г План расположения технологического оборудования в осях 6 - 11; В - Е Разрезы 1-1, 2-2, 3-3 План конвейеров Схема разводки сжатого воздуха План на отм. 0.000. Схема технологического пароснабжения |
| Разработан: | Союзгипролесхоз |
| Утверждён: | 19.09.1988 Госкомлес СССР (USSR Goskomles 29) |
| Издан: | ЦИТП Госстроя СССР (CITP, Gosstroy (USSR) 1989 г. ) |






















