Скачать Типовой проект 411-2-191.88 Альбом 2. Архитектурные решения. Конструкции железобетонные. Конструкции металлические. Изделия заводского изготовленияДата актуализации: 01.01.2021
|
| Обозначение: | Типовой проект 411-2-191.88 |
| Обозначение англ: | 411-2-191.88 |
| Статус: | не определен законодательством |
| Название рус.: | Альбом 2. Архитектурные решения. Конструкции железобетонные. Конструкции металлические. Изделия заводского изготовления |
| Дата добавления в базу: | 01.10.2014 |
| Дата актуализации: | 01.01.2021 |
| Дата введения: | 20.09.1988 |
| Дата окончания срока действия: | 30.06.2003 |
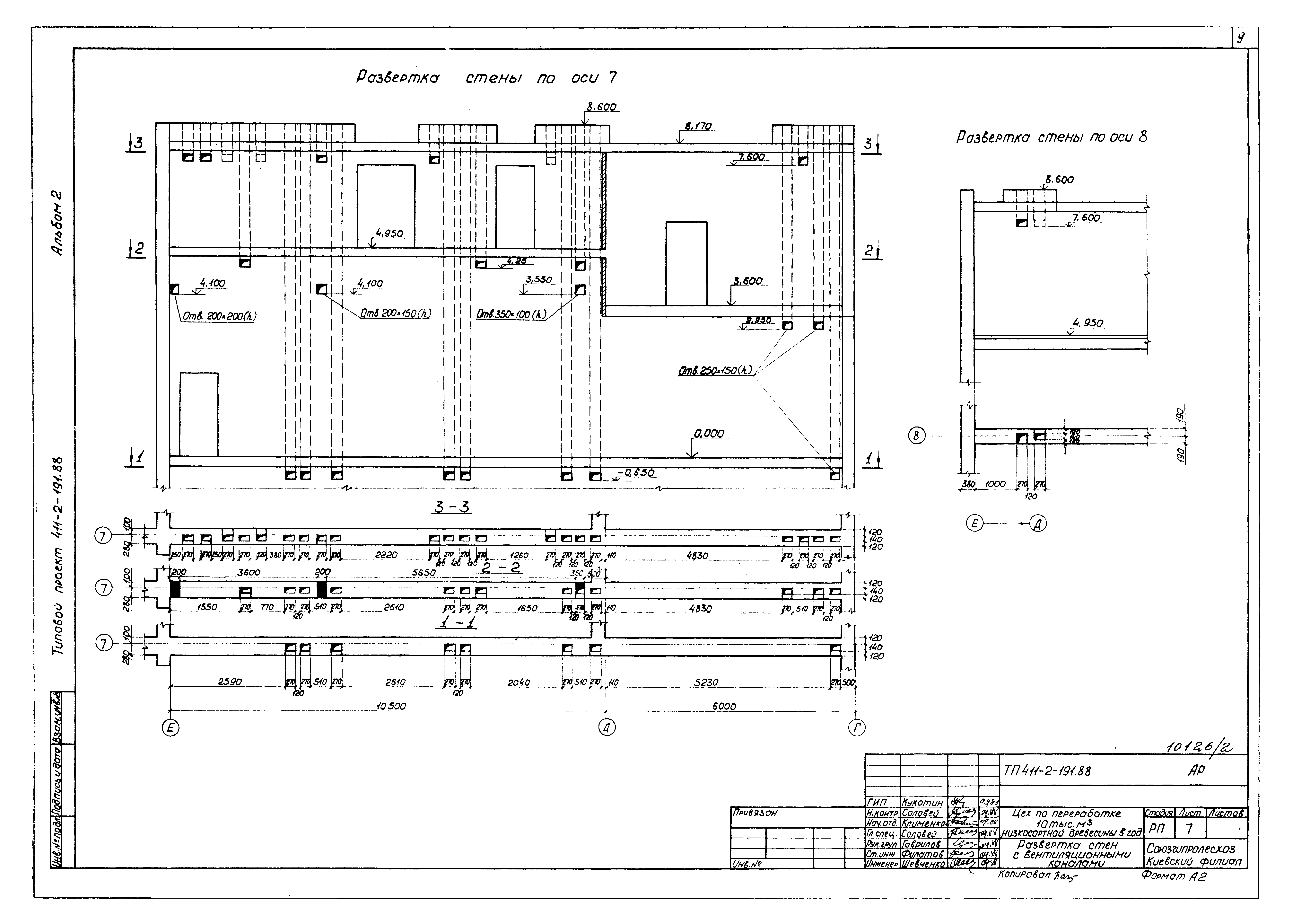
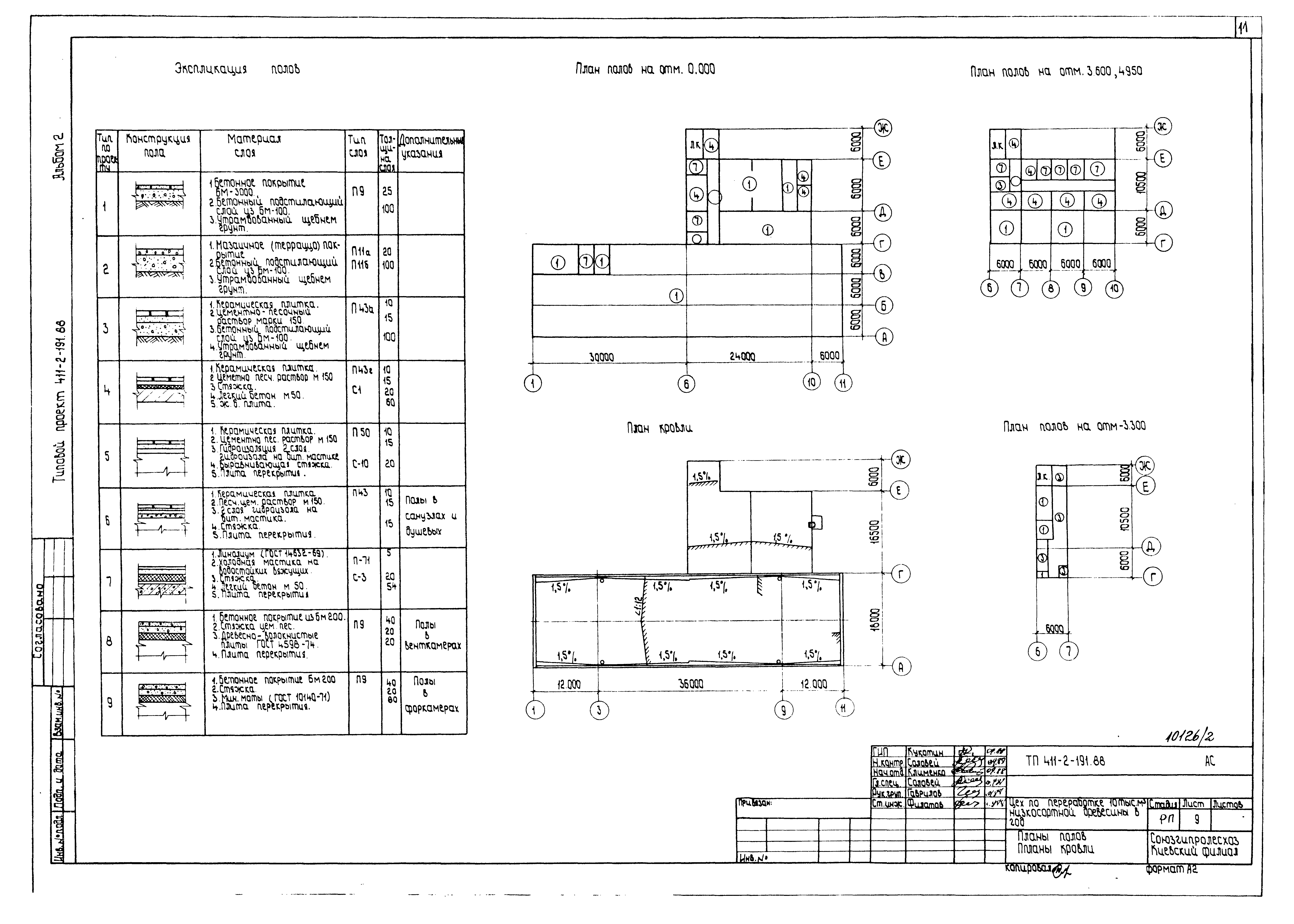
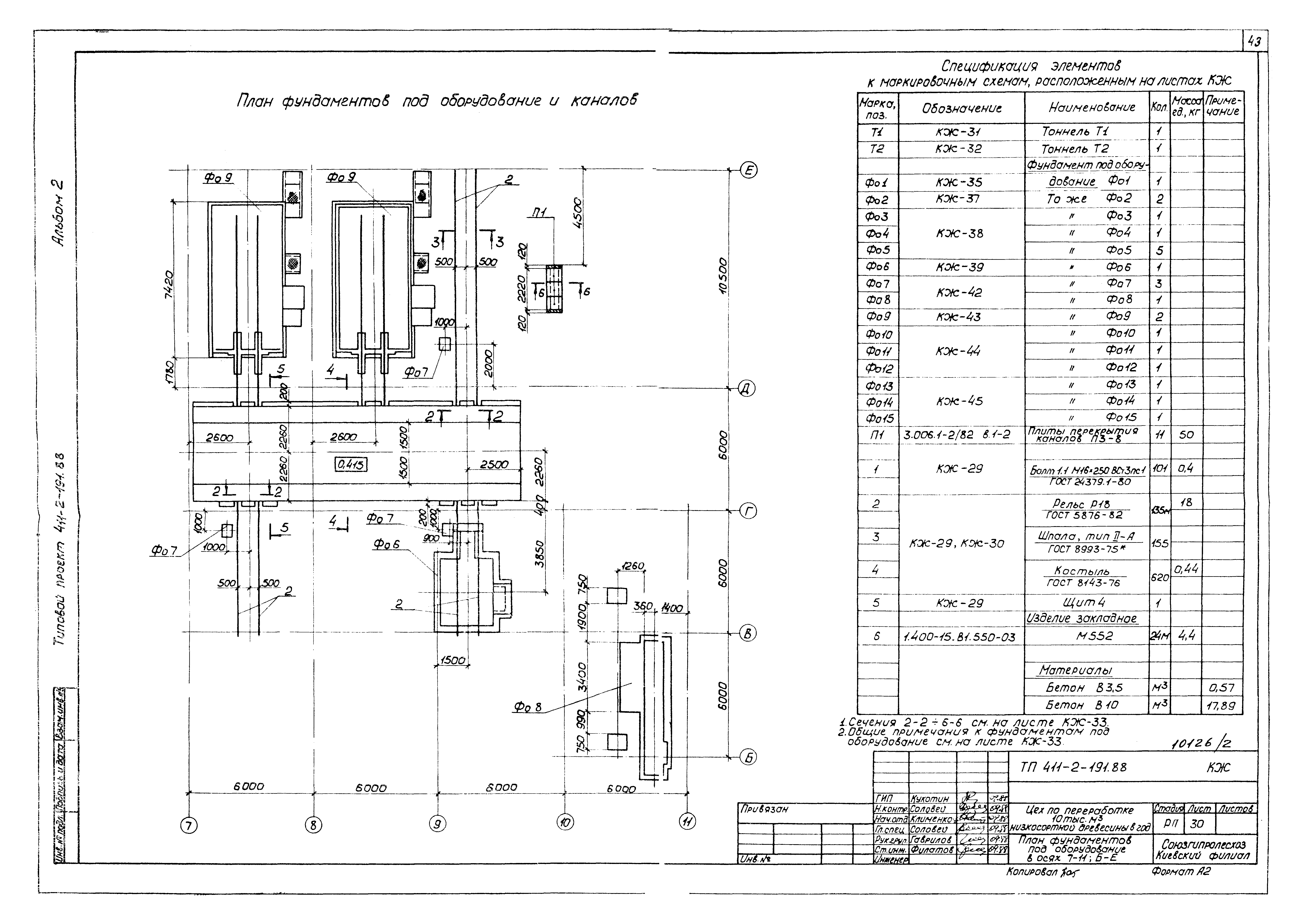
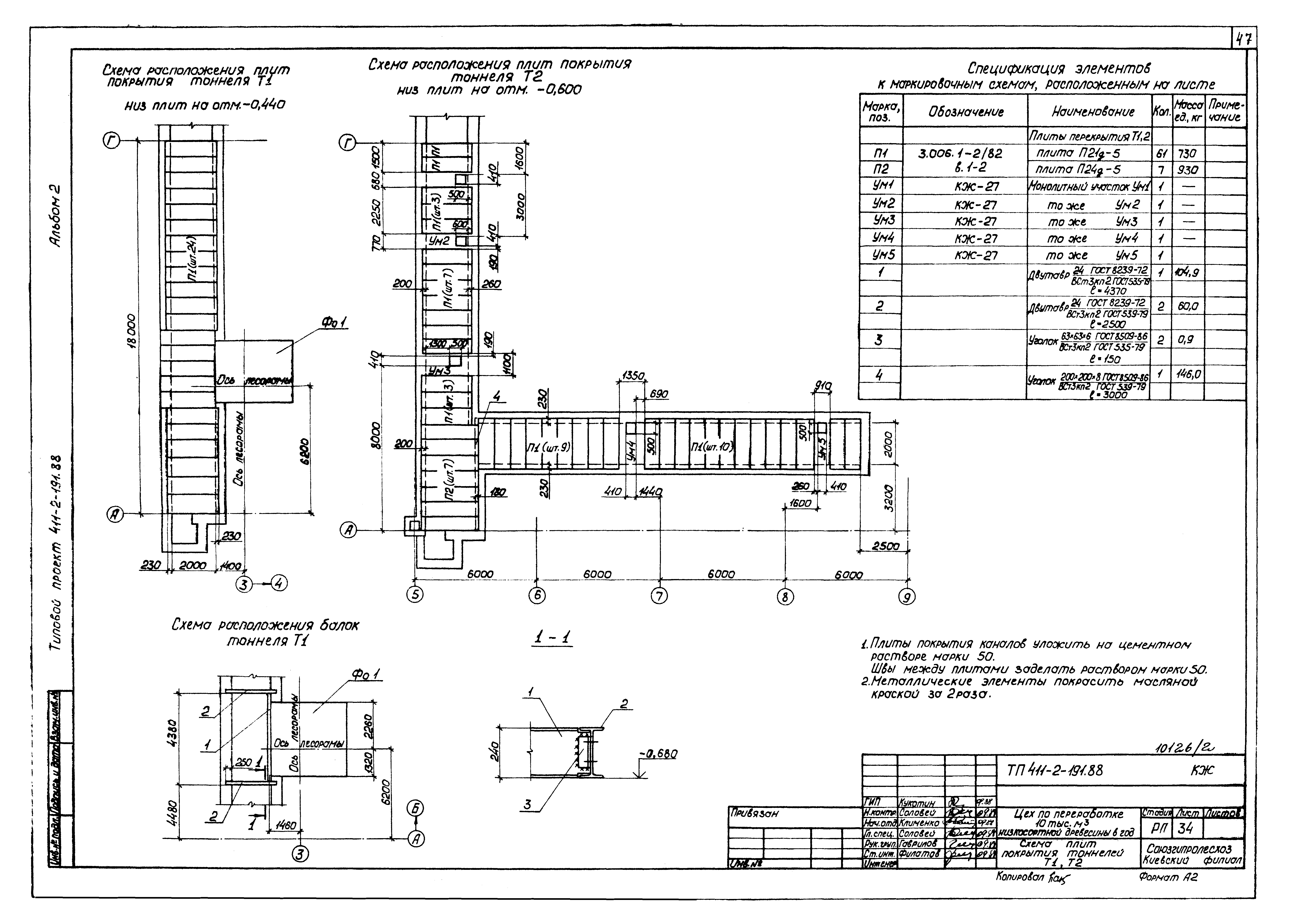
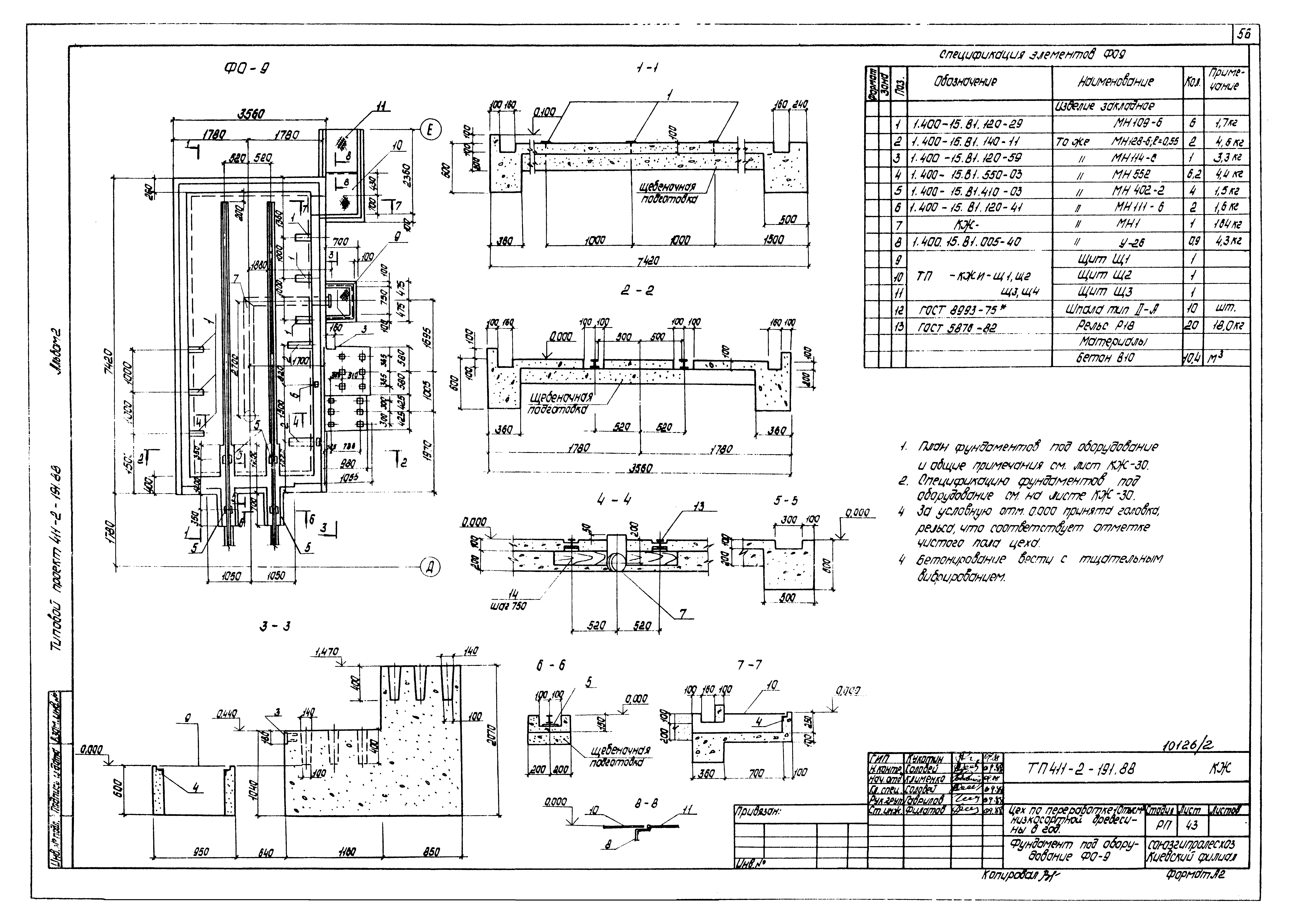
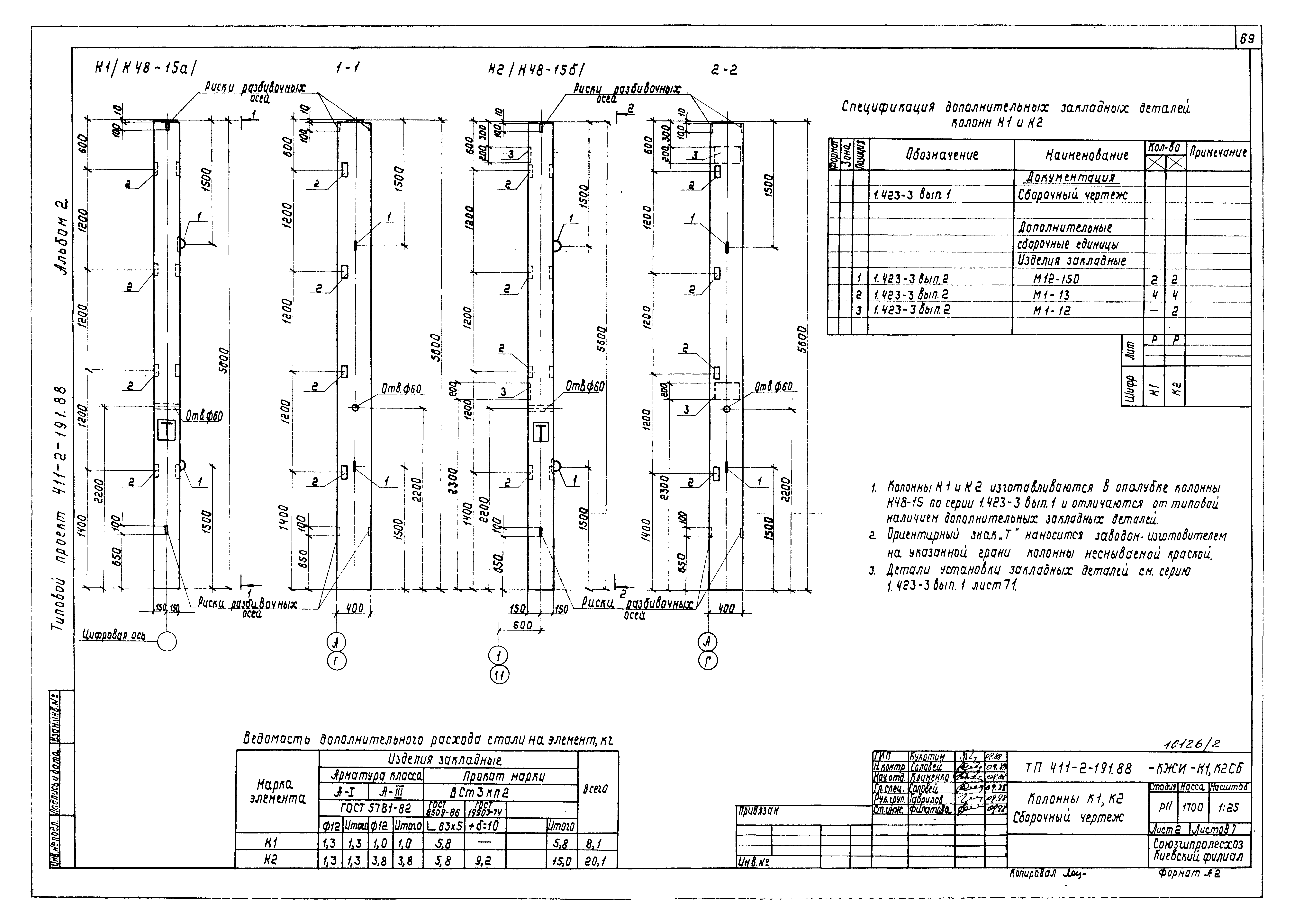
| Оглавление: | Чертежи основного комплекта марки АР Общие данные План на отм. 0.000 Планы на отм. 3.600; 4.950; - 3.300 Разрезы Фасады Развертка стен с вентканалами Развертка стен с вентканалами. Схемы заполнения оконных проемов План кровли. План полов Ведомость перемычек Венткамера Чертежи основного комплекта марки КЖ Общие данные План фундаментов Схема раскладки фундаментных блоков по осям 6, 7, Г. Виды А, Б, В, Г Схема раскладки фундаментных блоков по осям 8, 9, 10, Е, Ж, Д План фундаментов. Сечения 1-1 - 7-7 (сборный вариант) План фундаментов. Сечения 8-8 - 14-14 (сборный вариант) План фундаментов. Сечения 1-1 - 7-7 (монолитный вариант) План фундаментов. Сечения 8-8 - 14-14 (монолитный вариант) План фундаментов. Элемент плана 1 План фундаментов. Элемент плана 2 План фундаментов. Схема нагрузок на фундаменты Фм1 - Фм14 План фундаментов. Спецификации (сборный вариант) План фундаментов. Спецификации (монолитный вариант) Фундаменты Фм1, Фм2, Фм3 Фундаменты Фм4 - Фм6 Фундаменты Фм7 - Фм9 Фундаменты Фм10 - Фм12 Фундаменты Фм13 - Фм16 Маркировочная схема колонн и балок Маркировочная схема плит покрытия Маркировочные схемы плит перекрытия Маркировочные схемы вкладышей и гильз в покрытии и перекрытии Лестница в осях 6 - 7; Е - Ж Балки Бм1, Бм2 Монолитные участки Ум1 - Ум5 Монолитные участки Ум6 - Ум8 План фундаментов под оборудование в осях 1 - 9; А - Г План фундаментов под оборудование в осях 7 - 11; Б - Е Тоннель Т1. Фундаменты под оборудование на отм. - 2.700 Тоннель Т2. Фундаменты под оборудование на отм. - 2.400 План фундаментов под оборудование. Сечение 1-1 - 6-6 Схема плит покрытия тоннелей Т1, Т2 Фундаменты под оборудование Фо1. Опалубка Фундаменты под оборудование Фо1. Армирование Фундамент под оборудование Фо2 Фундаменты под оборудование Фо3, Фо4, Фо5 Фундамент под оборудование Фо6. Опалубка Фундамент под оборудование Фо6. Фрагменты плана 1, 2, 3, 4 Фундамент под оборудование Фо6. Армирование Фундаменты под оборудование Фо7, Фо8 Фундамент под оборудование Фо9 Фундаменты под оборудование Фо10, Фо11, Фо12 Фундаменты под оборудование Фо13, Фо14, Фо15 Эстакада у лесорамы Молниезащита Чертежи основного комплекта марки КМ Общие данные Техническая спецификация металла Техническая спецификация металла на типовые конструкции Монтажная схема путевых балок подвесного транспорта Монтажная схема элементов монорельсов Площадки Пм1 - Пм3 Площадки Пм4 - Пм6 Чертежи основного комплекта марки КЖИ Ведомость документов и технические требования Колонны К1, К2. Сборочный чертеж Колонны К3, К4. Сборочный чертеж Балки Б1 - Б5. Сборочный чертеж Плиты покрытия П1 - П6; П11; П16. Сборочный чертеж Изделия закладные МН1, МН2, МН3, МН4, МН5, В1, В2 Металлические щиты Щ1, Щ2, Щ3, Щ4 |
| Разработан: | Союзгипролесхоз |
| Утверждён: | 19.09.1988 Госкомлес СССР (USSR Goskomles 29) |
| Издан: | ЦИТП Госстроя СССР (CITP, Gosstroy (USSR) 1989 г. ) |











































































