Скачать Типовой проект 407-3-396м.86 Альбом III. Электротехнические и санитарно-технические решенияДата актуализации: 01.01.2021
|
| Обозначение: | Типовой проект 407-3-396м.86 |
| Обозначение англ: | 407-3-396м.86 |
| Статус: | не определен законодательством |
| Название рус.: | Альбом III. Электротехнические и санитарно-технические решения |
| Дата добавления в базу: | 01.10.2014 |
| Дата актуализации: | 01.01.2021 |
| Дата введения: | 21.05.1984 |
| Дата окончания срока действия: | 30.06.2003 |
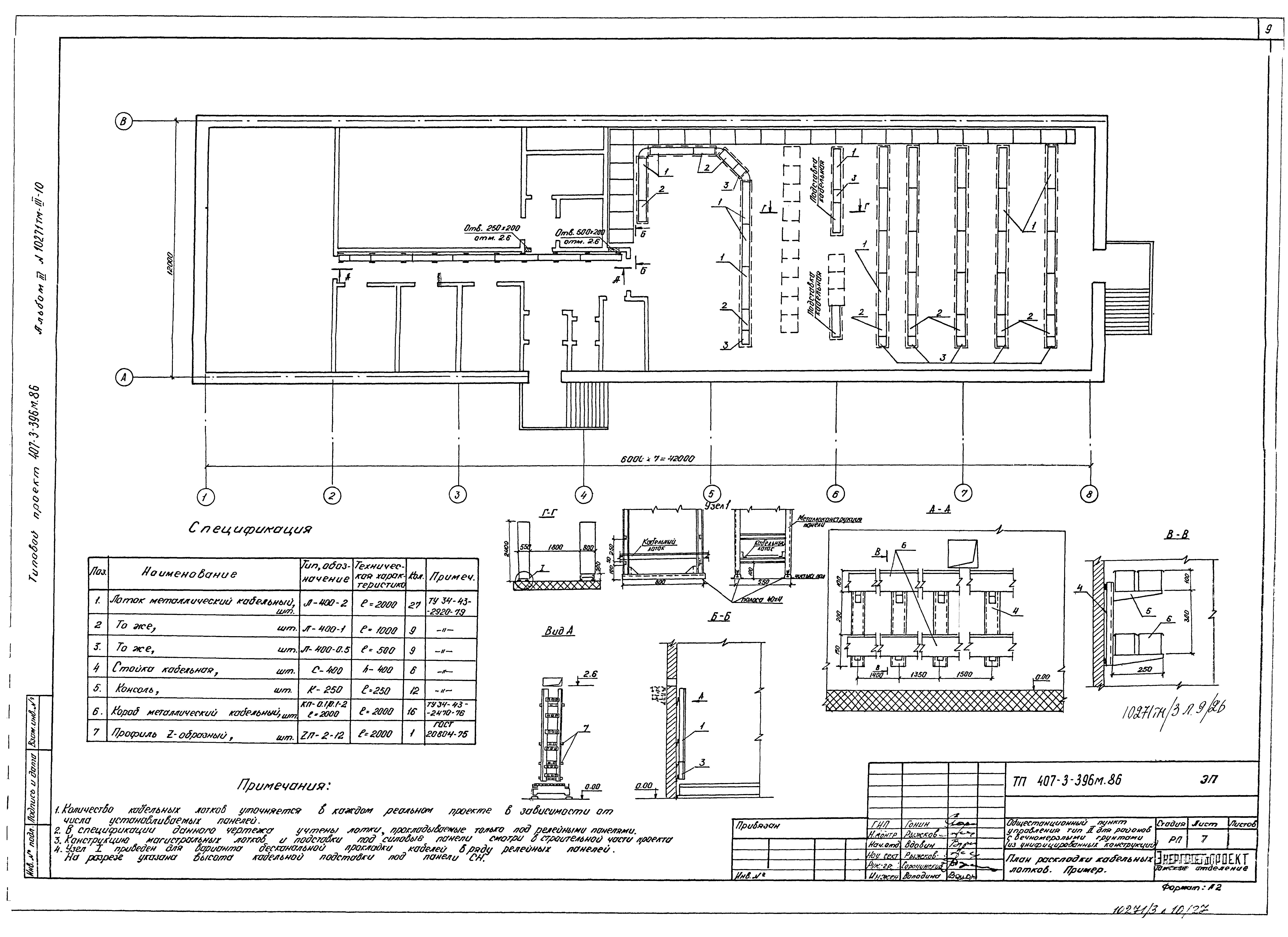
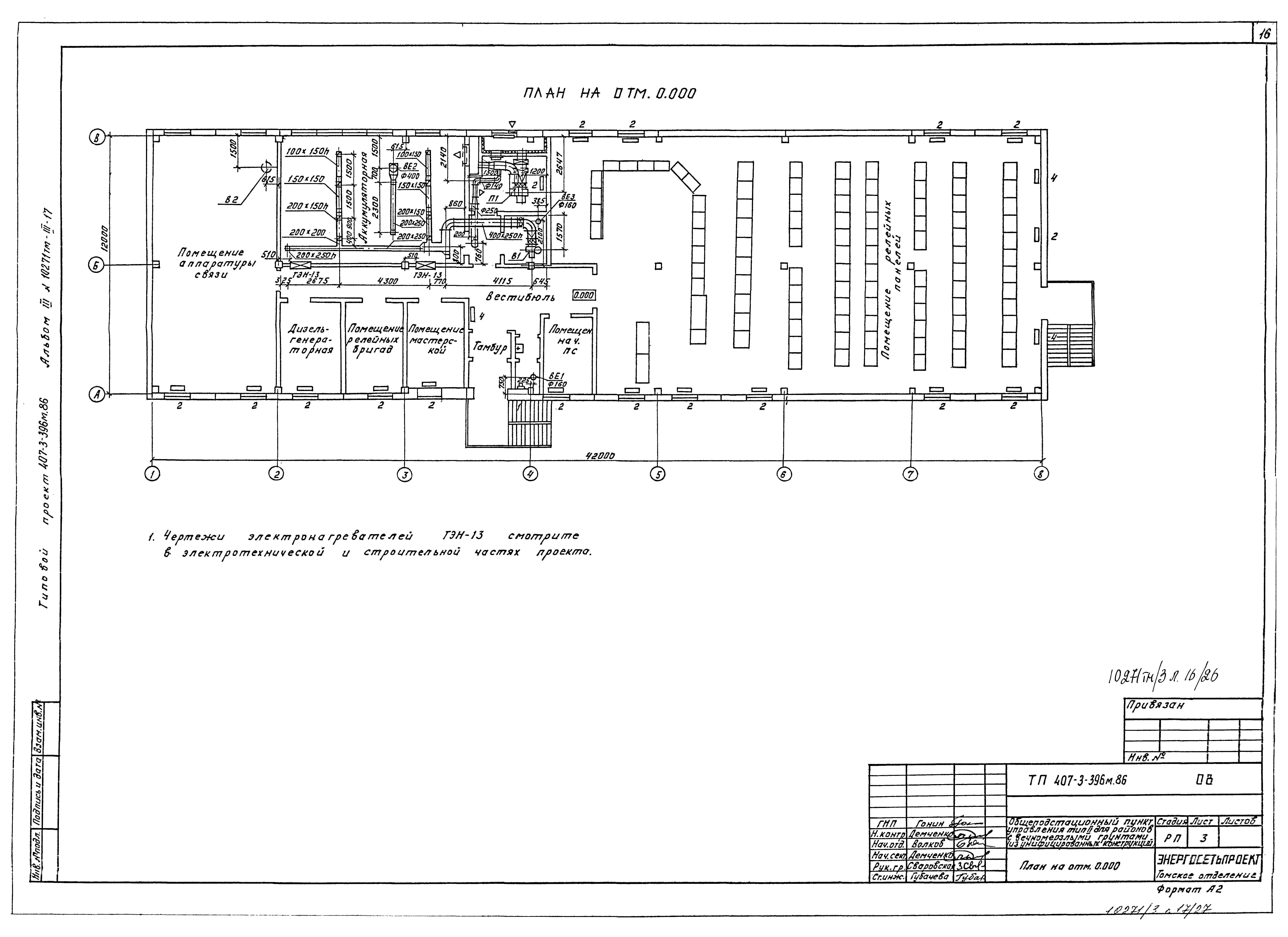
| Оглавление: | Содержание альбома Чертежи основного комплекта марки ЭП Общие данные Расположение электрического и технологического оборудования Электрическое освещение. План и спецификация Электрическое освещение. Расчетная схема Силовое электрооборудование и электроотопление. План сети Силовое электрооборудование и электроотопление. Расчетная схема. Спецификация. Заземление План раскладки кабельных лотков. Пример Расстановка кабельных конструкций под цокольным перекрытием. Пример Установка электронагревателей для помещения аккумуляторной Спецификация оборудования Ведомость потребности в материалах Чертежи основного комплекта марки ОВ Общие данные План на отм. 0.000 Установка системы П1. План. Разрез 1-1, 2-2. Схема. Спецификация Установка системы В1. План. Разрез 1-1. Схемы систем В1, ВЕ1 - ВЕ3. Спецификация Установка 1-ой, 2-х, 3-х, 4-х электрических печей типа ПЭТ-4. Спецификация Спецификация оборудования Чертежи основного комплекта марки ВК Общие данные План на отм. 0.000. Схемы систем К-1 и В-1. Установка поливочного крана Спецификация оборудования |
| Разработан: | Томское отделение Энергосетьпроекта |
| Утверждён: | 21.05.1984 Минэнерго СССР (USSR Minenergo 19) |

























