Скачать Типовой проект 704-1-152с Альбом III. Основание и фундаментыДата актуализации: 01.01.2021
|
| Обозначение: | Типовой проект 704-1-152с |
| Обозначение англ: | 704-1-152с |
| Статус: | действует |
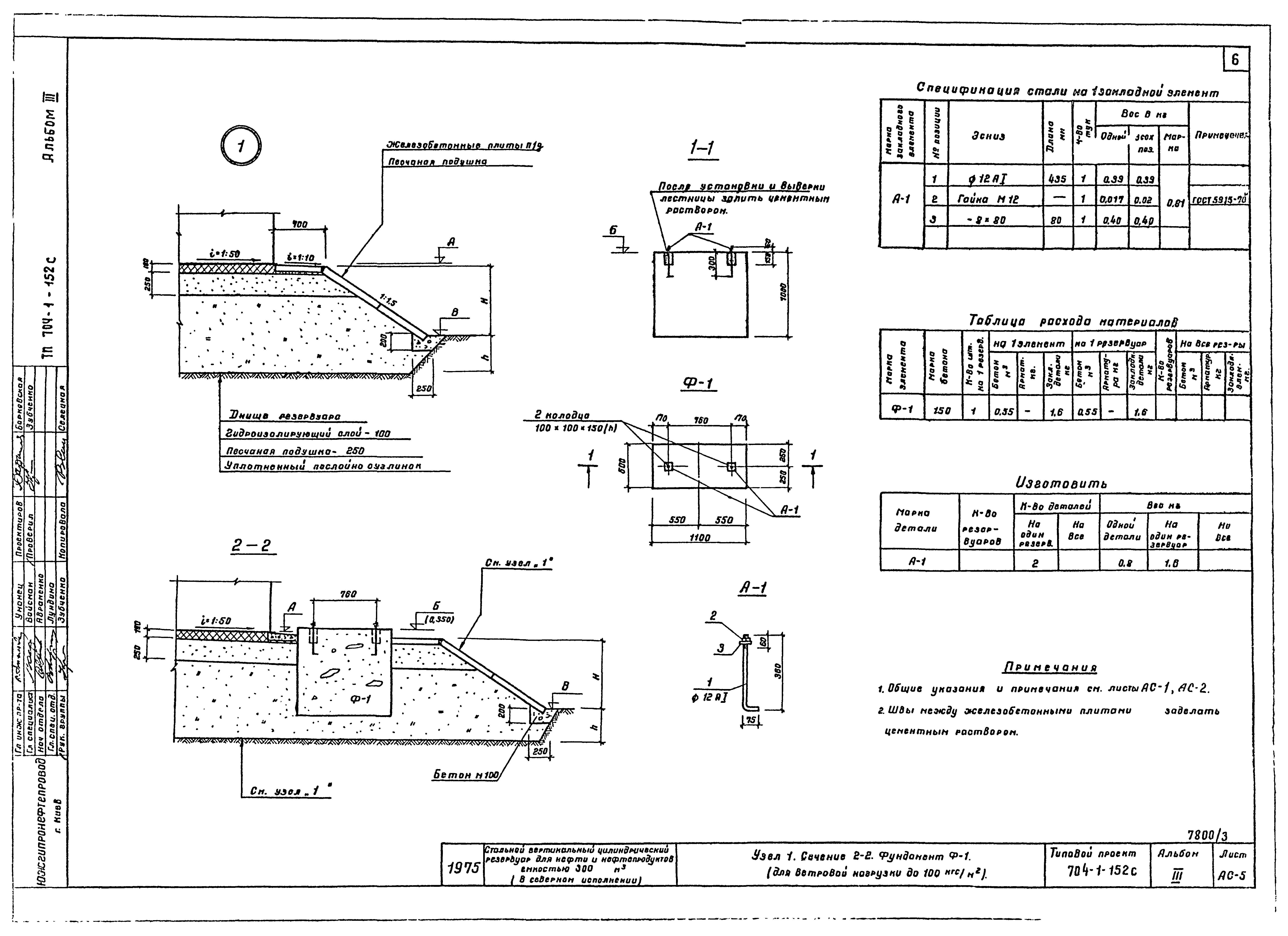
| Название рус.: | Альбом III. Основание и фундаменты |
| Дата добавления в базу: | 01.10.2014 |
| Дата актуализации: | 01.01.2021 |
| Дата введения: | 19.05.1980 |
| Разработан: | ЦНИИпроектстальконструкция |
| Утверждён: | 21.03.1977 Миннефтепром (Minnefteprom ) |








