Скачать Альбом ПП 16-22 Альбом 1. Горизонтальные упорыДата актуализации: 01.01.2021
|
| Обозначение: | Альбом ПП 16-22 |
| Обозначение англ: | ПП 16-22 |
| Статус: | не определен законодательством |
| Название рус.: | Альбом 1. Горизонтальные упоры |
| Дата добавления в базу: | 01.10.2014 |
| Дата актуализации: | 01.01.2021 |
| Дата введения: | 19.01.2006 |
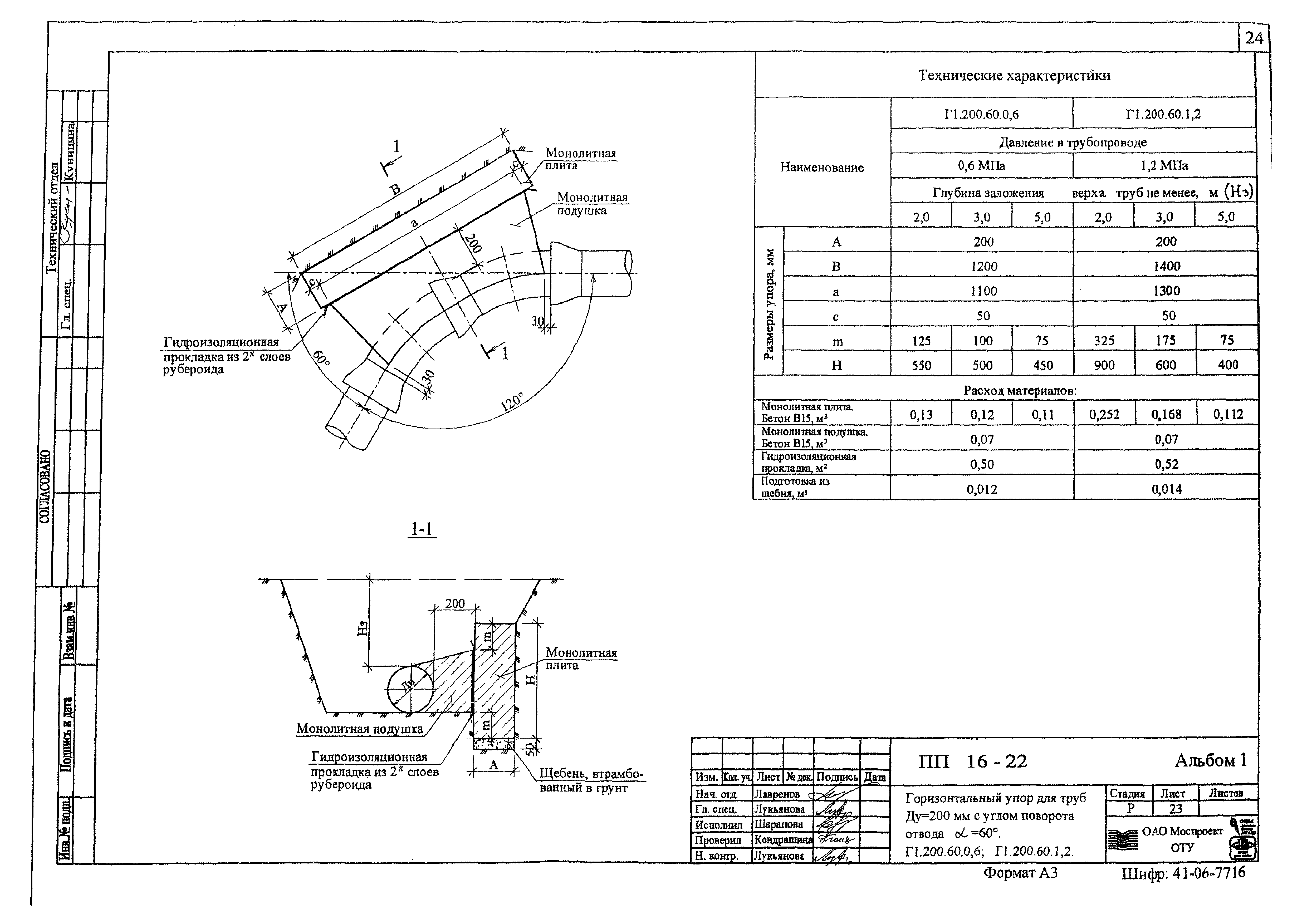
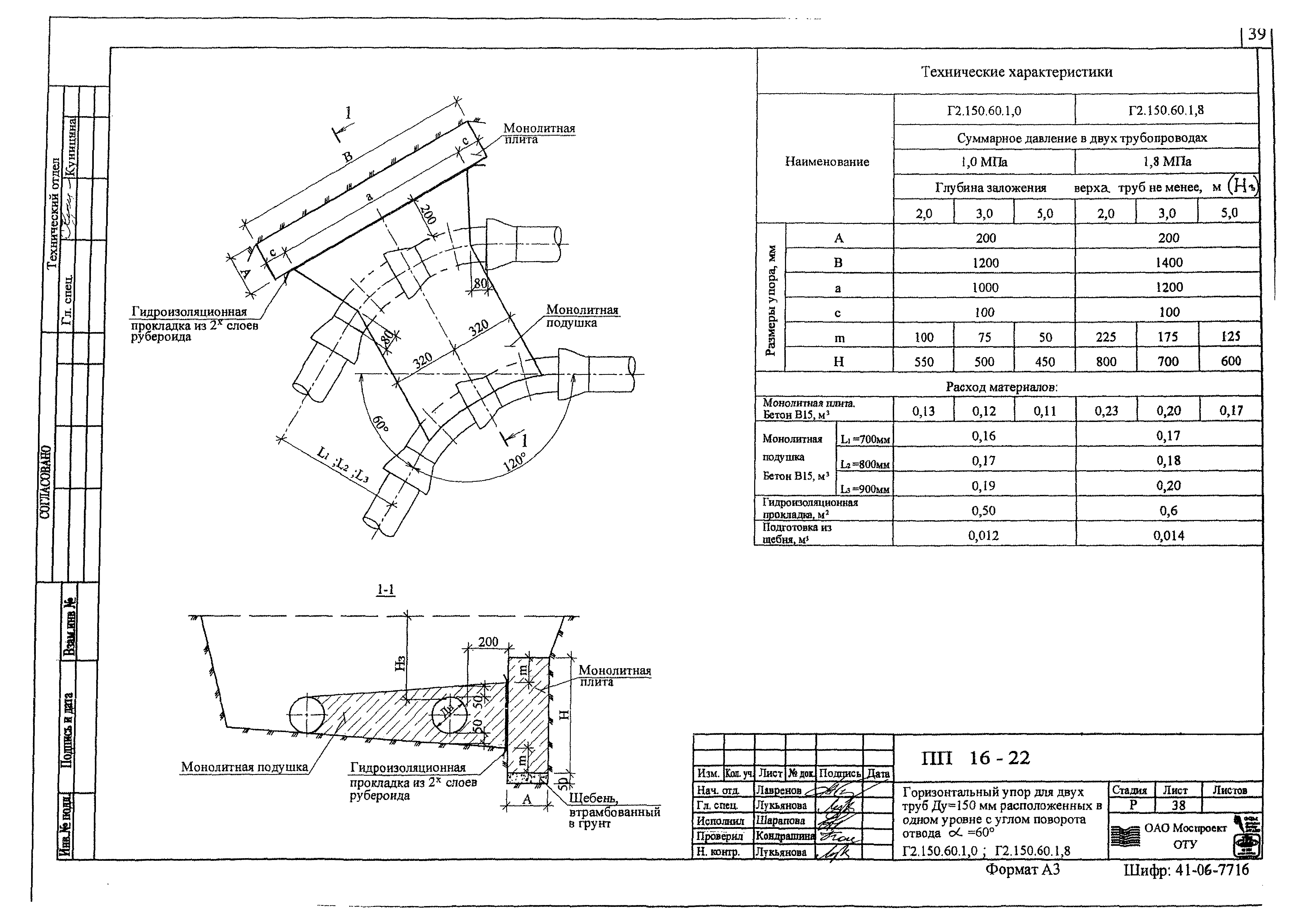
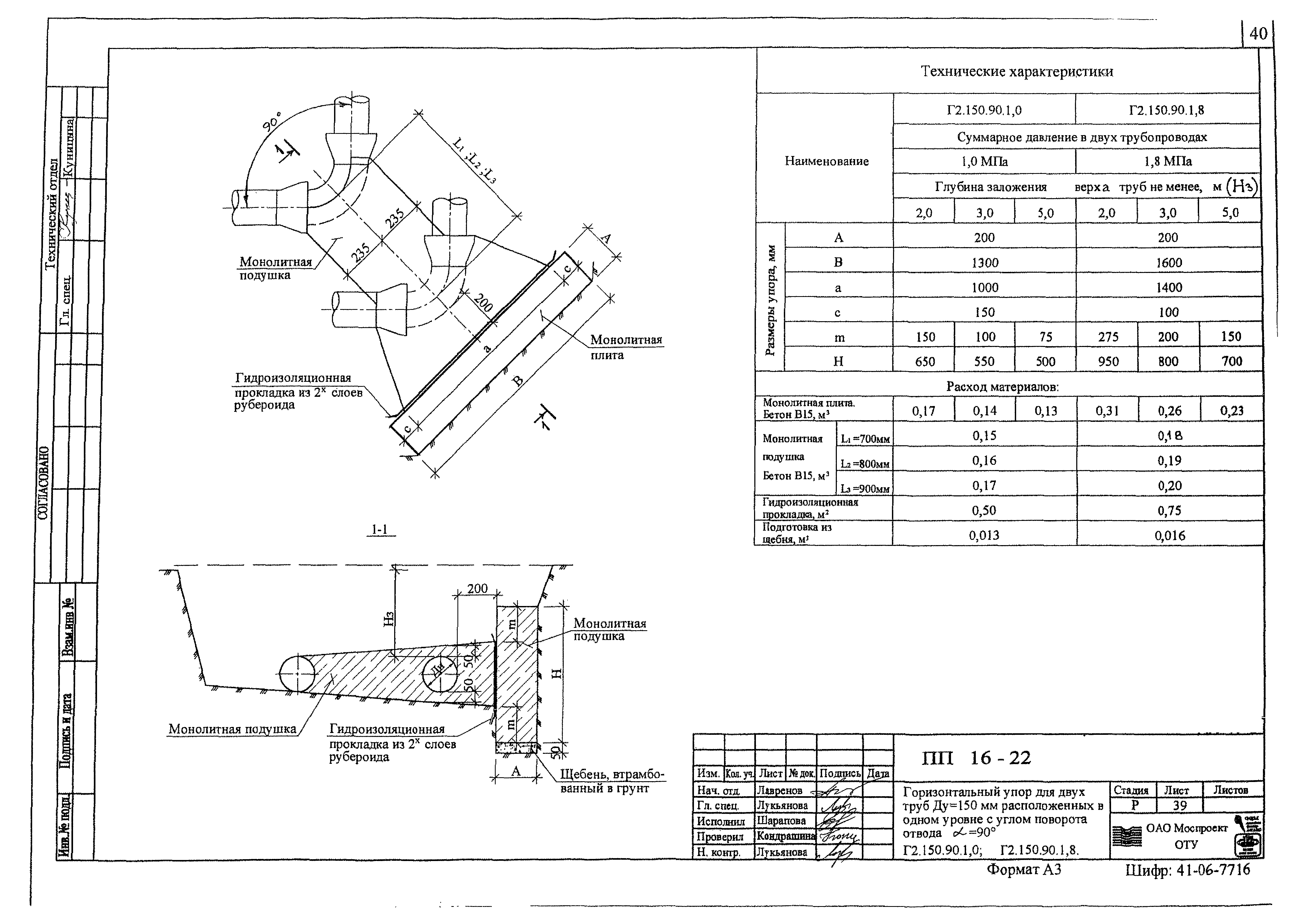
| Оглавление: | Общие данные Схемы горизонтальных бетонных упоров для одного чугунного трубопровода Горизонтальный упор для одной трубы Ду = 100 мм Горизонтальный упор для одной трубы Ду = 150 мм Горизонтальный упор для одной трубы Ду = 200 мм Схемы горизонтальных бетонных упоров для двух чугунных трубопроводов Горизонтальный упор для двух труб Ду = 100 мм Горизонтальный упор для двух труб Ду = 150 мм Горизонтальный упор для двух труб Ду = 200 мм |
| Разработан: | ОАО Моспроект |
| Утверждён: | 19.01.2006 ОАО Моспроект (Mosproject OAO 11) |
| Принят: | 18.08.2006 Мосводопровод |














































