Скачать Типовой проект 407-3-225 Альбом I. Пояснительная записка и электротехническая частьДата актуализации: 01.01.2021
|
| Обозначение: | Типовой проект 407-3-225 |
| Обозначение англ: | 407-3-225 |
| Статус: | действует |
| Название рус.: | Альбом I. Пояснительная записка и электротехническая часть |
| Дата добавления в базу: | 01.10.2014 |
| Дата актуализации: | 01.01.2021 |
| Дата введения: | 01.10.1975 |
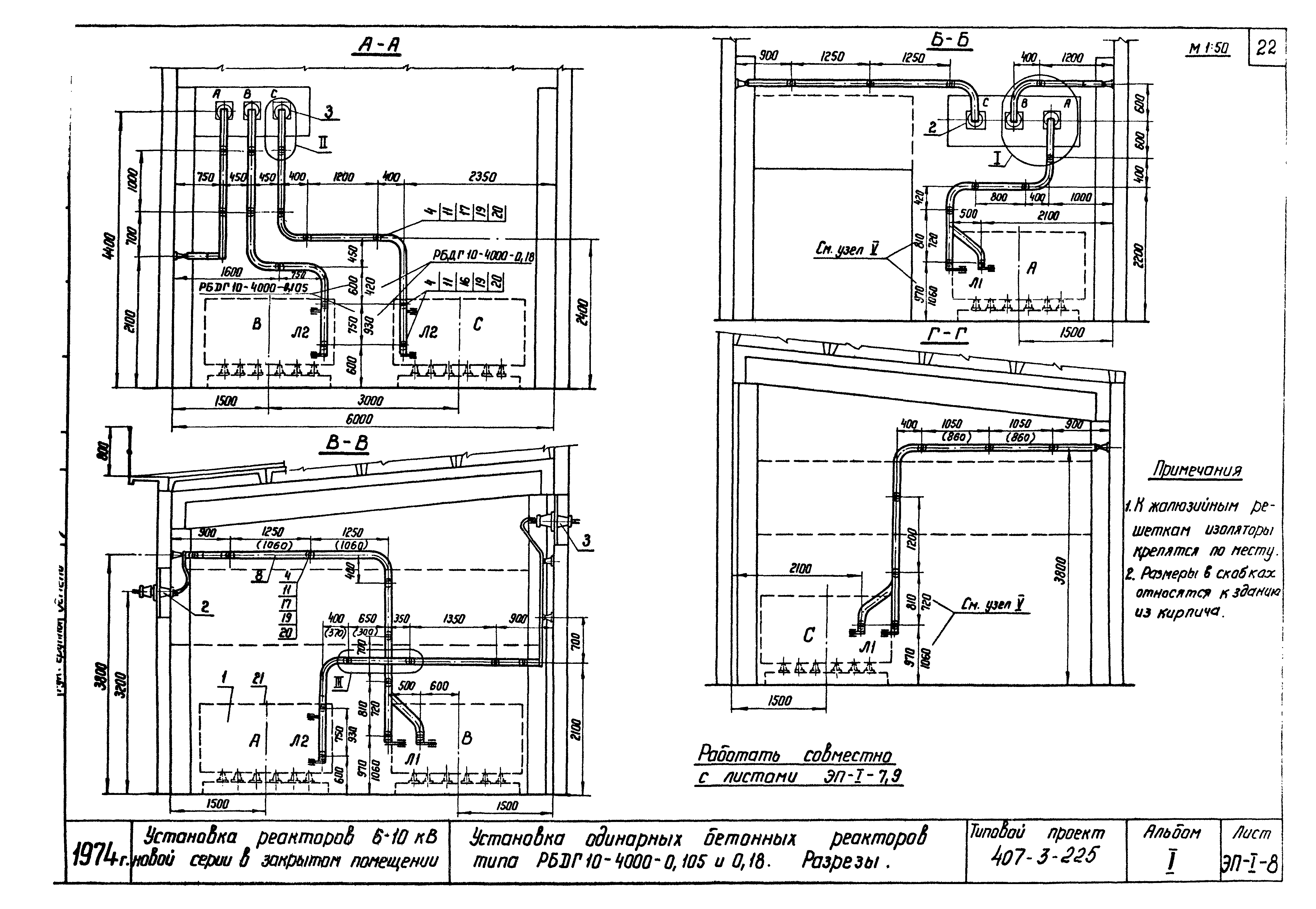
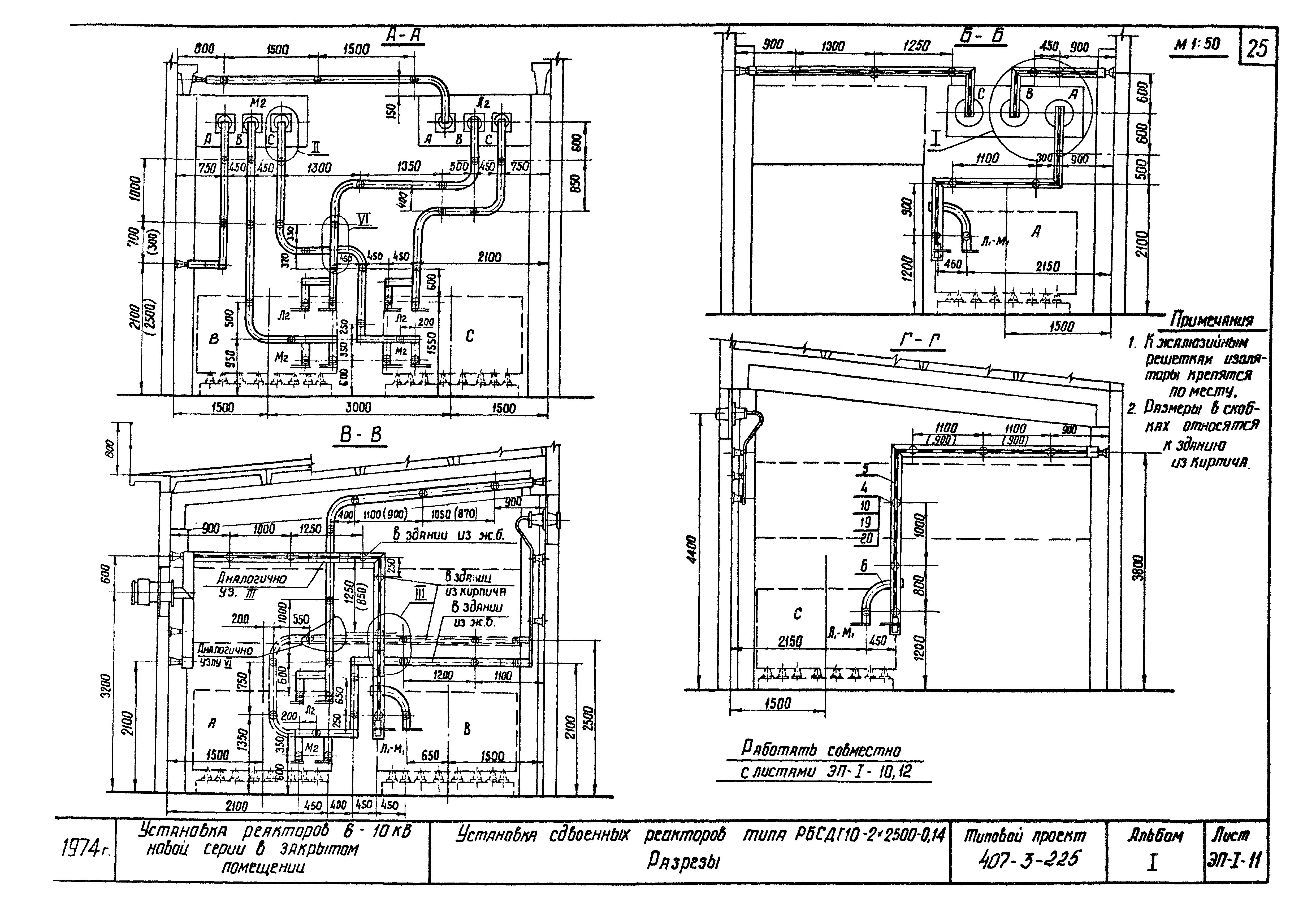
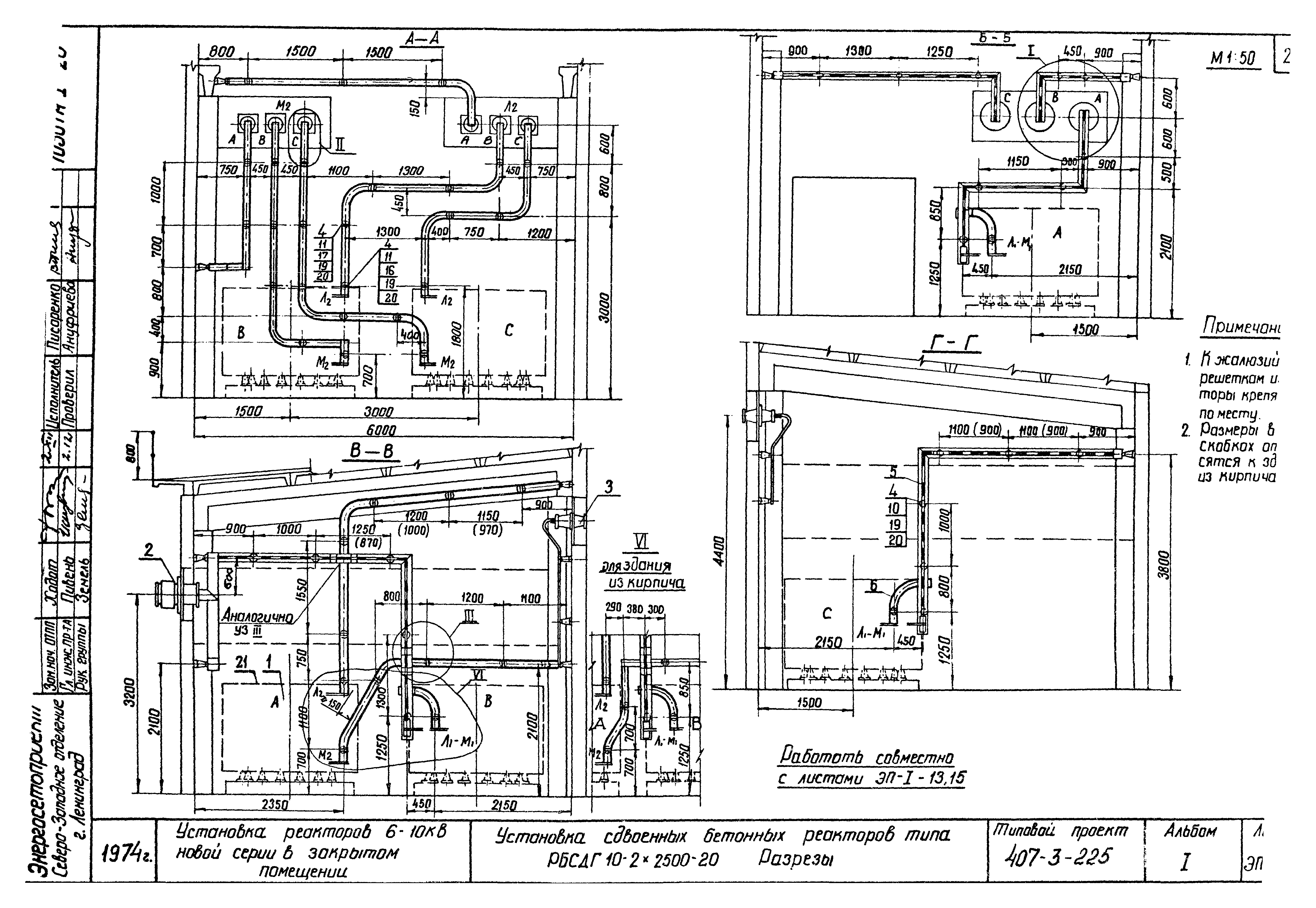
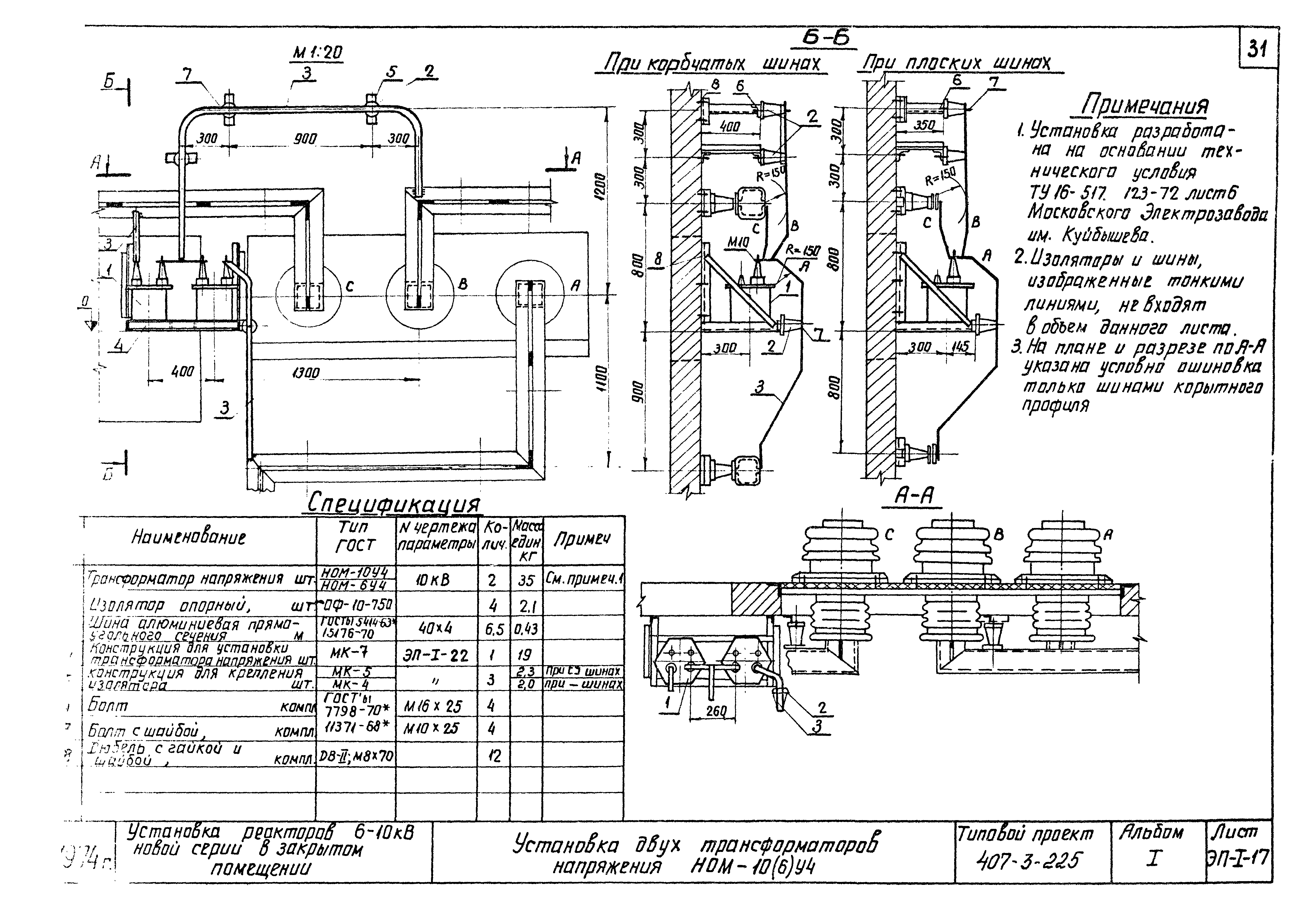
| Оглавление: | Перечень листов Пояснительная записка Таблица 1. Технические данные токоограничивающих реакторов на 10 кВ рассматриваемых в проекте Таблицы 2 и 3. Выбор реакторов при двухобмоточных трансформаторах и автотрансформаторах Таблица 4. Выбор реакторов при трехобмоточных трансформаторах Таблица 5. Определение области использования реакторов 6 - 10 кВ Варианты примыкания камер реакторов к ЗРУ и схемы включения Размеры контактных пластинок реакторов 10 кВ Установка одинарных бетонных реакторов типа РБДГ10-1600-0,14; 0,20; 0,25 и 0,35. План и спецификация Установка одинарных бетонных реакторов типа РБДГ10-1600-0,14; 0,20; 0,25 и 0,35. Разрезы Установка одинарных бетонных реакторов типа РБДГ10-1600-0,14; 0,20; 0,25 и 0,35. Узлы Установка одинарных бетонных реакторов типа РБДГ10-2500-0,14 и 0,20; РБДГ-10-2500-0,25 и 0,35. План и спецификация Установка одинарных бетонных реакторов типа РБДГ10-2500-0,14 и 0,20; РБДГ-10-2500-0,25 и 0,35. Разрезы Установка одинарных бетонных реакторов типа РБДГ10-2500-0,14 и 0,20; РБДГ-10-2500-0,25 и 0,35. Узлы Установка одинарных бетонных реакторов типа РБДГ10-4000-0,105 и 0,18. План и спецификация Установка одинарных бетонных реакторов типа РБДГ10-4000-0,105 и 0,18. Разрезы Установка одинарных бетонных реакторов типа РБДГ10-4000-0,105 и 0,18. Узлы Установка сдвоенных бетонных реакторов типа РБСДГ10-2х2500-0,14. План и спецификация Установка сдвоенных бетонных реакторов типа РБСДГ10-2х2500-0,14. Разрезы Установка сдвоенных бетонных реакторов типа РБСДГ10-2х2500-0,14. Узлы Установка сдвоенных бетонных реакторов типа РБСДГ10-2х2500-0,20. План и спецификация Установка сдвоенных бетонных реакторов типа РБСДГ10-2х2500-0,20. Разрезы Установка сдвоенных бетонных реакторов типа РБСДГ10-2х2500-0,20. Узлы Щиты, направляющие поток охлаждающего воздуха Установка двух трансформаторов напряжения НОМ-10(6)У4 Доска проходная наружной установки с изоляторами ПН10/2000-1250; ПН20/2000-1250; ПН20/3200-1260. Общий вид Доска проходная наружной установки с изоляторами ПН10/2000-1250; ПН20/2000-1250; ПН20/3200-1260. Узлы Доска проходная наружной установки с изоляторами ПН10/5000-4250; ПН10/6300-4250. Общий вид Доска проходная наружной установки с изоляторами ПН10/5000-4250; ПН10/6300-4250. Узлы Металлоконструкции. Марки МК1-7 Установки реакторов типа РБГ и РБДГ-10 кВ. Заземление и освещение. План Установки реакторов типа РБГ и РБДГ-10 кВ. Заземление и освещение. Разрезы Установки реакторов типа РБСДГ-10 кВ. Заземление и освещение. План Установки реакторов типа РБСДГ-10 кВ. Заземление и освещение. Разрезы Установка датчика температуры и шкафа управления вентиляторами Шкаф управления вентиляционной установкой реакторных камер. Фасад (задание заводу) Шкаф управления вентиляционной установкой реакторных камер. Принципиальная схема (задание заводу) Шкаф управления вентиляционной установкой реакторных камер. Монтажная схема (задание заводу) |
| Разработан: | Северо-западное отделение института Энергосетьпроект |
| Утверждён: | 01.10.1975 Минэнерго СССР (USSR Minenergo 175) |












































