Скачать Типовой проект 407-3-229 Альбом III. Электротехническая часть. Установочные чертежи оборудованияДата актуализации: 01.01.2021
|
| Обозначение: | Типовой проект 407-3-229 |
| Обозначение англ: | 407-3-229 |
| Статус: | действует |
| Название рус.: | Альбом III. Электротехническая часть. Установочные чертежи оборудования |
| Дата добавления в базу: | 01.10.2014 |
| Дата актуализации: | 01.01.2021 |
| Дата введения: | 27.01.1975 |
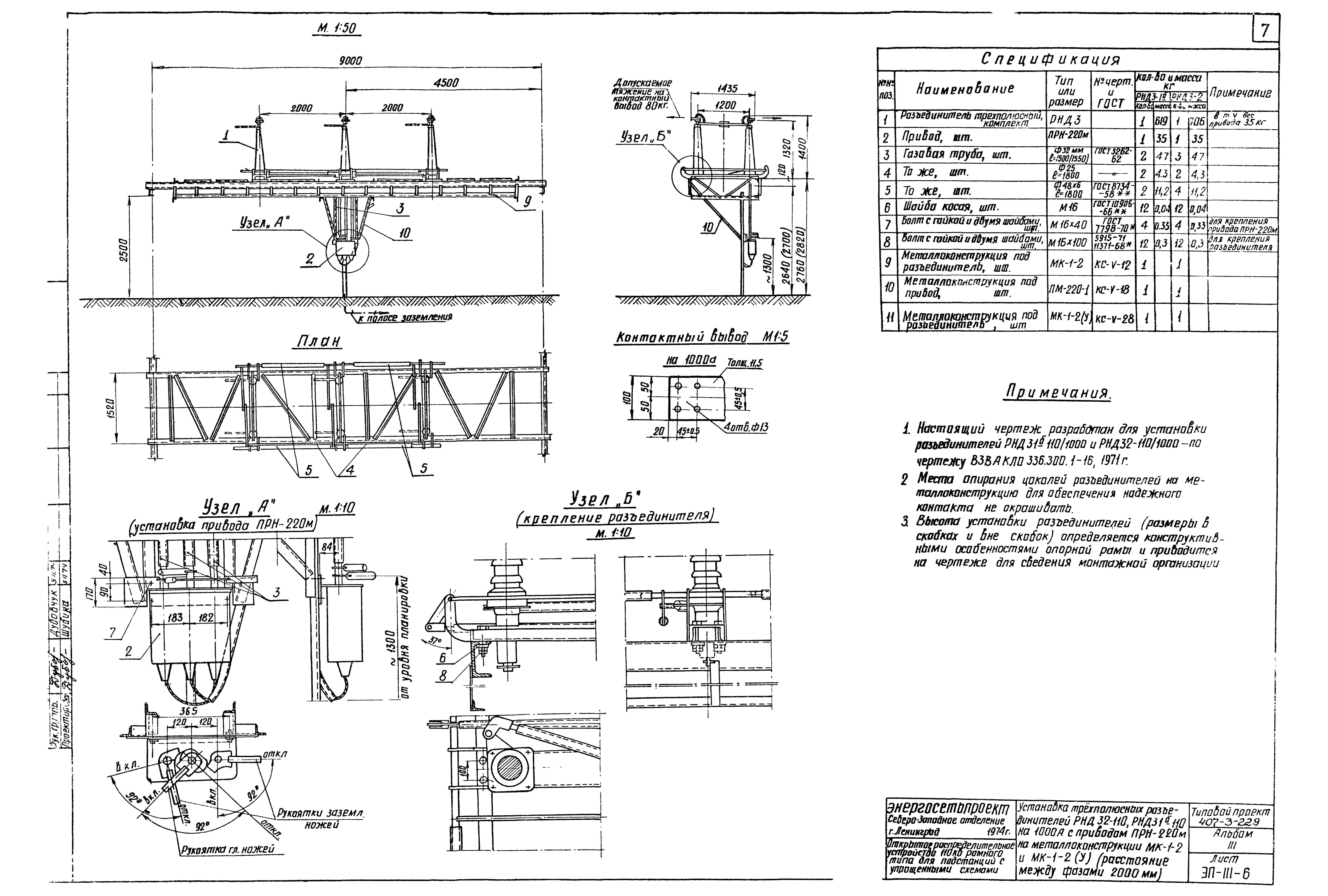
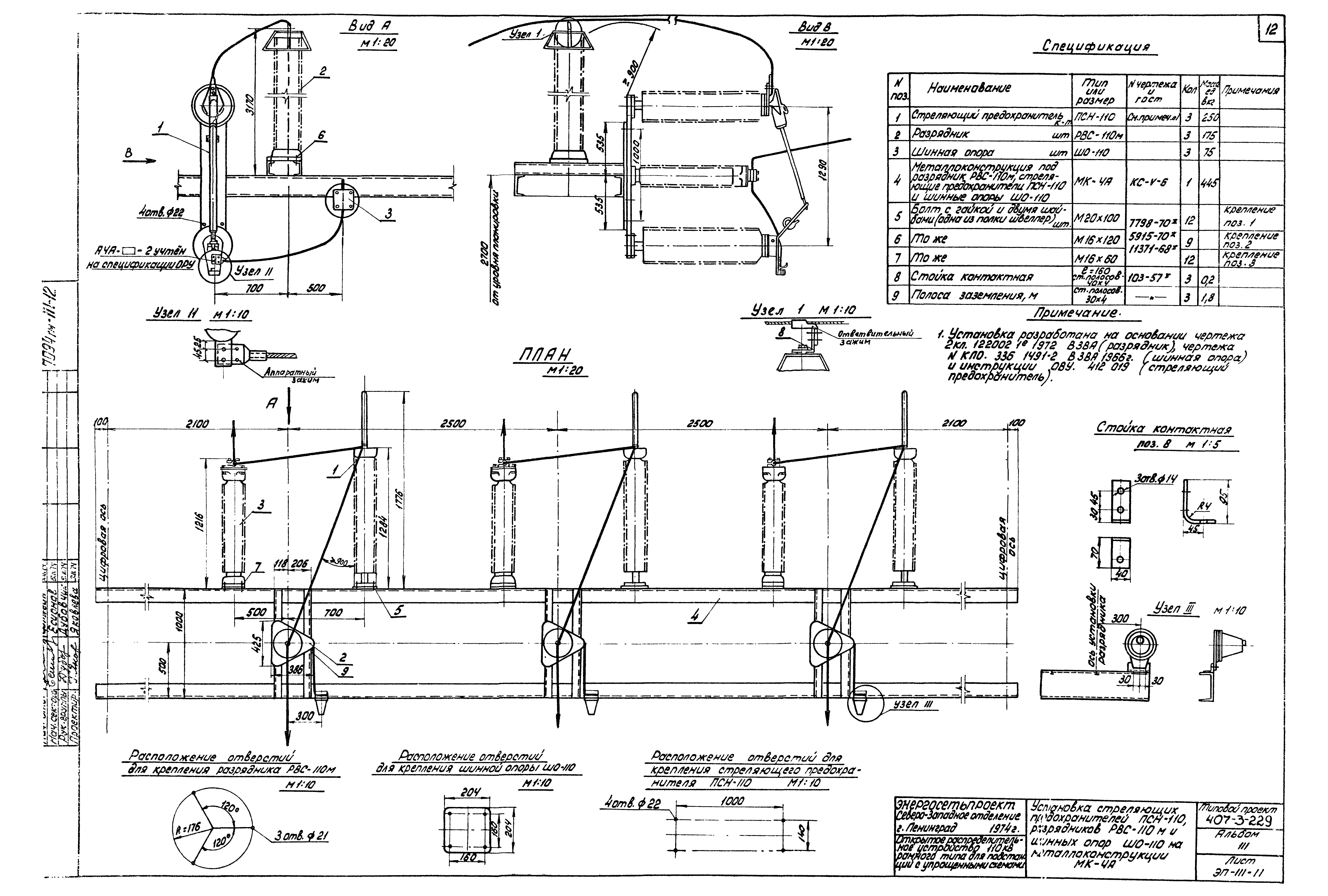
| Оглавление: | Содержание альбома Установка отделителя ОД-110м на 630 А с приводом ШПОМ на металлоконструкции МК-3-2,5 (расстояние между фазами 2500 мм) Установка отделителя РД31б-110м на 630 А с приводом ШПОМ на металлоконструкции МК-3-2,5 (расстояние между фазами 2500 мм) Установка трехполюсных разъединителей РНД32-110 на 1000 А с приводом ПРН-220м на металлоконструкции МК-1-2,5 (расстояние между фазами 2500 мм) Установка трехполюсных разъединителей РНД31б-110 на 1000 А с приводом ПРН-220м на металлоконструкции МК-1-2,5 (расстояние между фазами 2500 мм) Установка трехполюсных разъединителей РНД32-110, РНД31б-110 на 1000 А с приводом ПРН-220м на металлоконструкциях МК-1-2, МК-1-2(У) (расстояние между фазами 2000 мм) Установка трехполюсных разъединителей РНД31б-110 на 1000 А с приводом ПРН-220м на металлоконструкции МК-1-2,7 (расстояние между фазами 2700 мм) Ступенчато-килевая установка разъединителя РНД31а-110 на 1000 А с приводом ПРН-220м на металлоконструкции МК-1(К). План, разрез I-I Ступенчато-килевая установка разъединителя РНД31а-110 на 1000 А с приводом ПРН-220м на металлоконструкции МК-1(К). Разрез II-II и узлы Установка короткозамыкателя КЗ-110м на металлоконструкции МК-12, привода ШПКМ на металлоконструкции МК-14, 14А, трансформаторов тока ТШЛ-0,5 на металлоконструкции МК-13, 13А Установка стреляющих предохранителей ПСН-110, разрядников РВС-110м и шинных опор ШО-110 на металлоконструкции МК-4А Установка трансформаторов напряжения НКФ-110-57 на металлоконструкции МК-6 и установка трансформаторов тока ТФНД-110м, ТФНД-110м-II на металлоконструкциях МК-8-2; МК-8-2,7; МК-8А-2; МК-8А-2,7; МК-8А(У) Установка шинной опоры ШО-110 на металлоконструкции МК-7 и 7А и вентильных разрядников РВС-110м на металлоконструкции МК-4 Установка конденсаторов связи СМР-110V3 на металлоконструкции МК-5А Проверка электрических габаритов в ячейке воздушного выключателя (схема 110-9) и килевого разъединителя Монтажные таблицы гибкой ошиновки ОРУ-110 кВ Подключение высокочастотных заградителей в перемычке 110 кВ (схема №110-8) Детали заземления (пример выполнения) и гирлянда поддерживающая (подвеска на проводе) Разрезы I-I - VI-VI и узлы к плану расстановки металлоконструкций для прокладки кабелей |
| Разработан: | Северо-западное отделение института Энергосетьпроект |
| Утверждён: | 27.01.1975 Минэнерго СССР (USSR Minenergo 20) |




















