Скачать Типовой проект 411-2-187.88 Альбом 3. Внутренние водопровод и канализация. Отопление и вентиляция. Чертежи общих видов нетиповых конструкций систем отопления и вентиляцииДата актуализации: 01.01.2021
|
| Обозначение: | Типовой проект 411-2-187.88 |
| Обозначение англ: | 411-2-187.88 |
| Статус: | не определен законодательством |
| Название рус.: | Альбом 3. Внутренние водопровод и канализация. Отопление и вентиляция. Чертежи общих видов нетиповых конструкций систем отопления и вентиляции |
| Дата добавления в базу: | 01.10.2014 |
| Дата актуализации: | 01.01.2021 |
| Дата введения: | 27.06.1988 |
| Дата окончания срока действия: | 30.06.2003 |
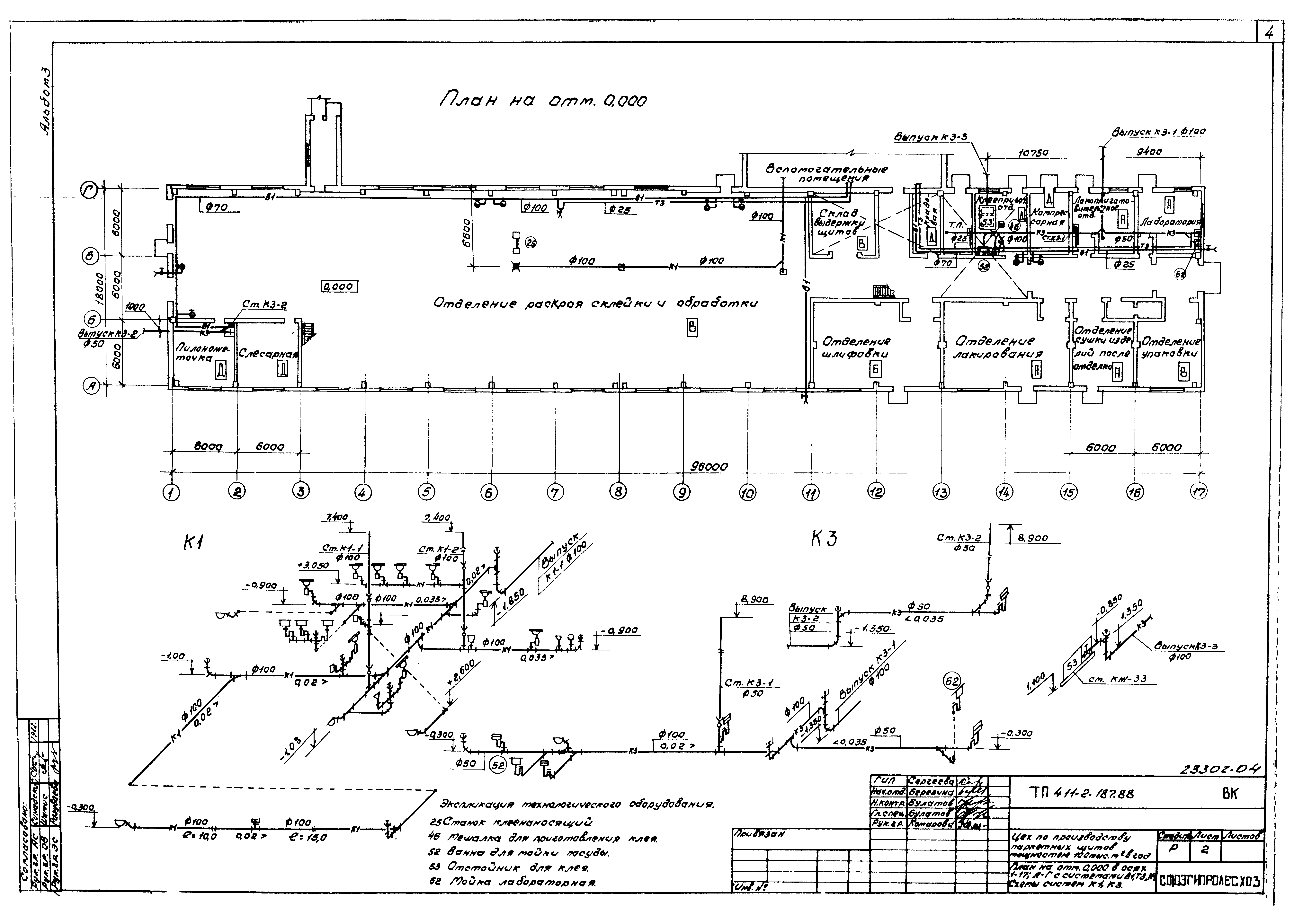
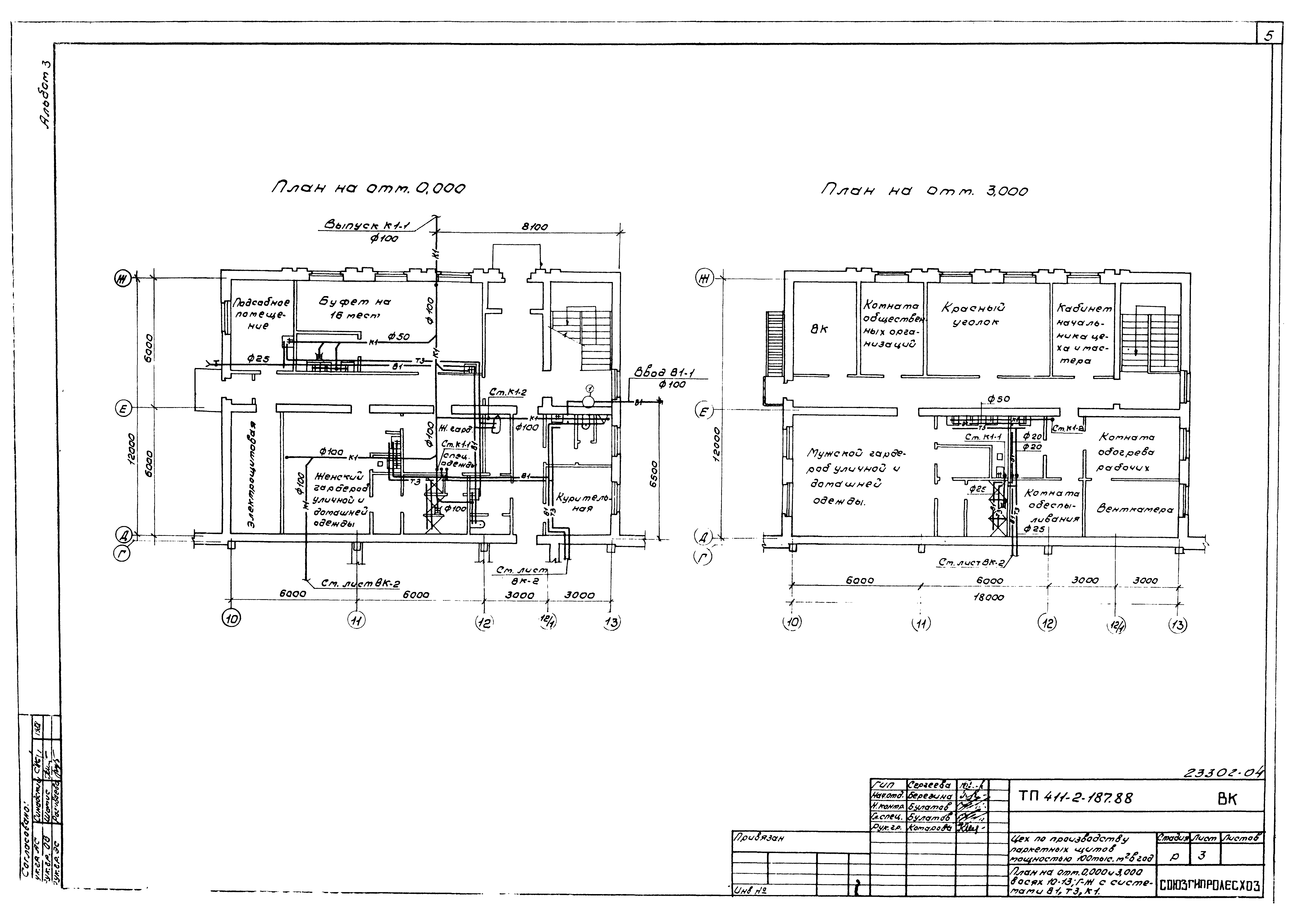
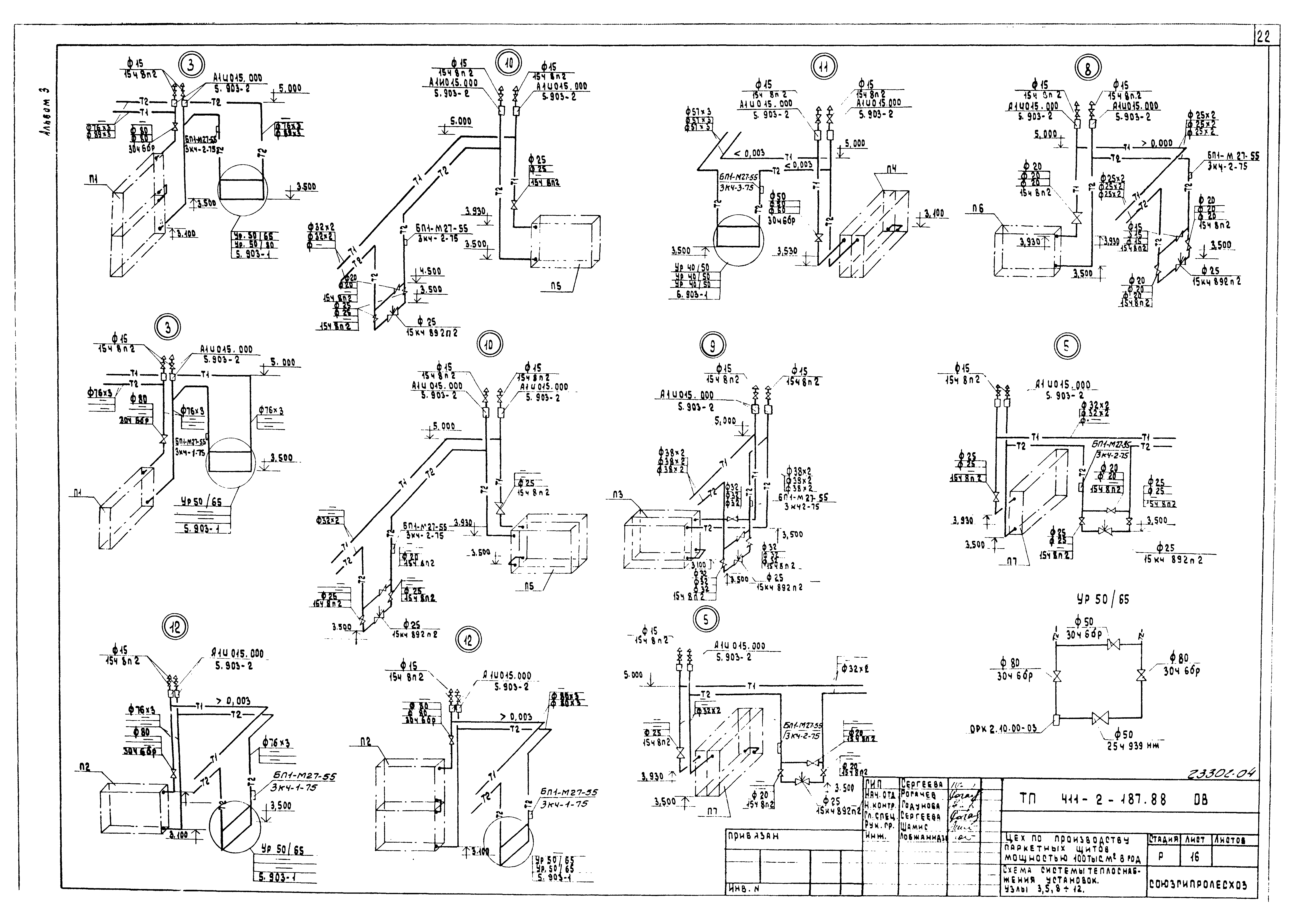
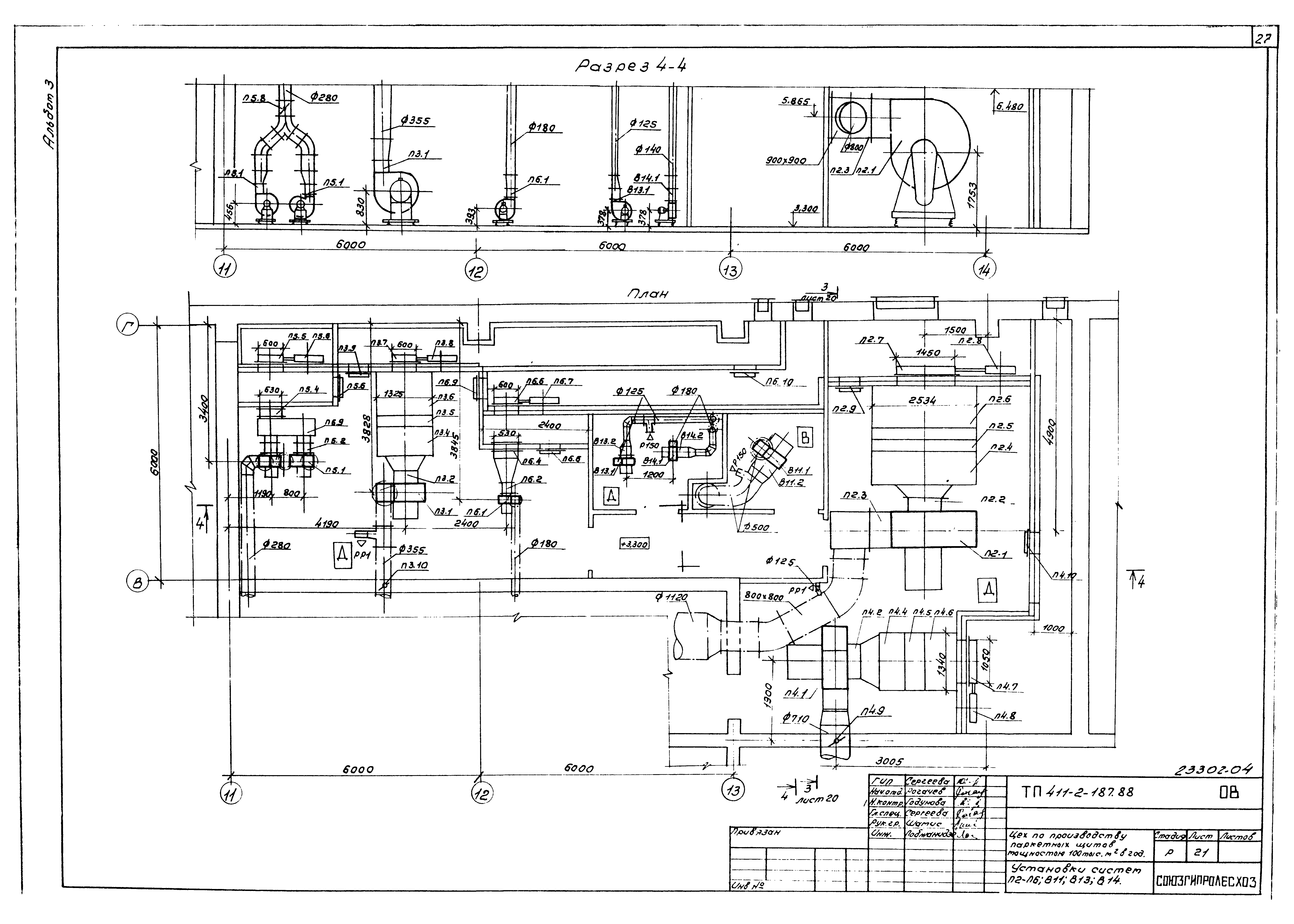
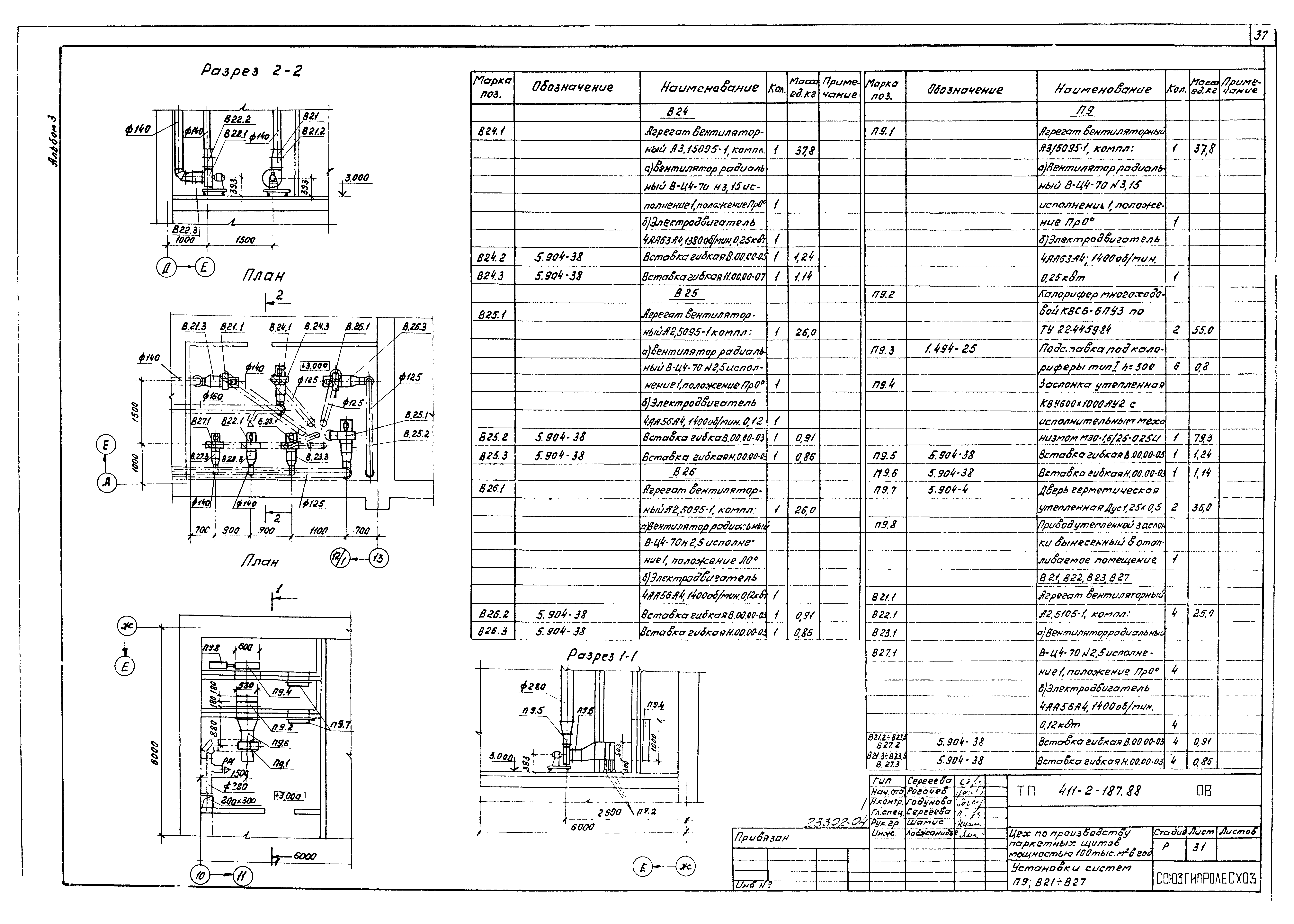
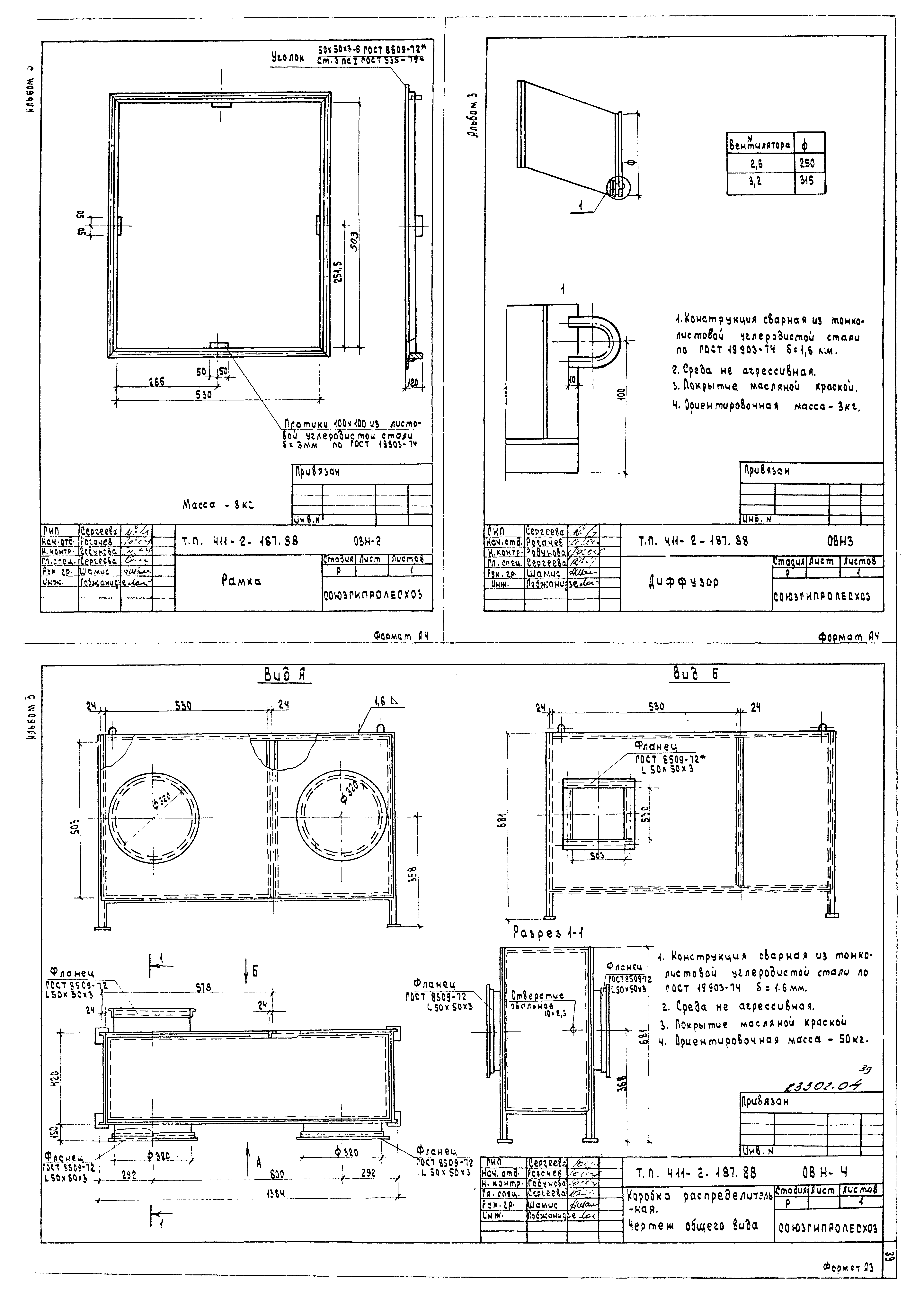
| Оглавление: | Содержание альбома Внутренние водопровод и канализация Общие данные План на отм. 0.000 в осях 1 - 17; А - Г с системами В1, К1. Схема систем К1, К3 План на отм. 0.000 и 3.000 в осях 10 - 13, Г - Ж с системами В1, Т3, К1 Схемы систем В1, Т3, Т4 Отопление и вентиляция Общие данные Отопление. План на отм. 0.000. Планы на отм. 3.300 между осями 1 - 3 и А - Б; 11 - 14 и Б/1 - Г Теплоснабжение. План на отм. 0.000. Планы на отм. 3.300 между осями 1 - 3 и А - Б; 11 - 14 и В - Г. Схема системы теплоснабжения установок П1 - П8; У1 - У4 Вентиляция. План на отм. 0.000. План на отм. 3.300 между осями 1 - 3 и А - Б; 11 - 14 и Г - В Местные отсосы от технологического оборудования Схема системы отопления 1. Узлы 1 - 4 Схема системы отопления 2. Узлы 1 - 13 Схема системы теплоснабжения установок. Узлы 1, 2, 4, 6, 7 Схема системы теплоснабжения установок. Узлы 3, 5, 8 - 12 Схема узла управления Схемы систем П1 - П8, В15 - В20, У4, ВЕ1 - ВЕ3 Схемы систем В1 - В14 Установки систем П1, П7, П8, У4, В10 Установки систем П2 - П6, В11, В13, В14 Установки систем П1, П7, П8, У4, В10 Установки систем П2, П3, П4 Установки систем П5, П6, В11, В13, В14 Установки систем В12, В15 - В20 Установки систем В1, В2, В3 Установки систем В4, В5 План на отм. 0.000 между осями 10 - 13; Г - Ж. План на отм. 3.000 между осями 10 - 13; Г - Ж Схема системы отопления 3. Схема системы теплоснабжения установки П9. Узел 1. Схемы систем П9, В21 - В27 Установки систем П9, В21 - В27 Чертежи общих видов нетиповых конструкций систем отопления и вентиляции Содержание альбома Уловитель крупных отходов Рамка Диффузор Коробка распределительная. Чертеж общего вида Воздуховод раздаточный Воздуховод асбестоцементный. Чертеж общего вида Унифицированный узел прохода в воздуховод. Общий вид. Детали Зонт вытяжной. Чертеж общего вида Факельный выброс. Чертеж общего вида |
| Разработан: | Союзгипролесхоз |
| Утверждён: | 20.06.1988 Госкомлес СССР (USSR Goskomles 16) |
| Издан: | ЦИТП Госстроя СССР (CITP, Gosstroy (USSR) 1989 г. ) |










































