Скачать Типовой проект 411-2-187.88 Альбом 7. Часть 2. Чертежи нестандартизированного оборудованияДата актуализации: 01.01.2021
|
| Обозначение: | Типовой проект 411-2-187.88 |
| Обозначение англ: | 411-2-187.88 |
| Статус: | не определен законодательством |
| Название рус.: | Альбом 7. Часть 2. Чертежи нестандартизированного оборудования |
| Дата добавления в базу: | 01.10.2014 |
| Дата актуализации: | 01.01.2021 |
| Дата введения: | 27.06.1988 |
| Дата окончания срока действия: | 30.06.2003 |
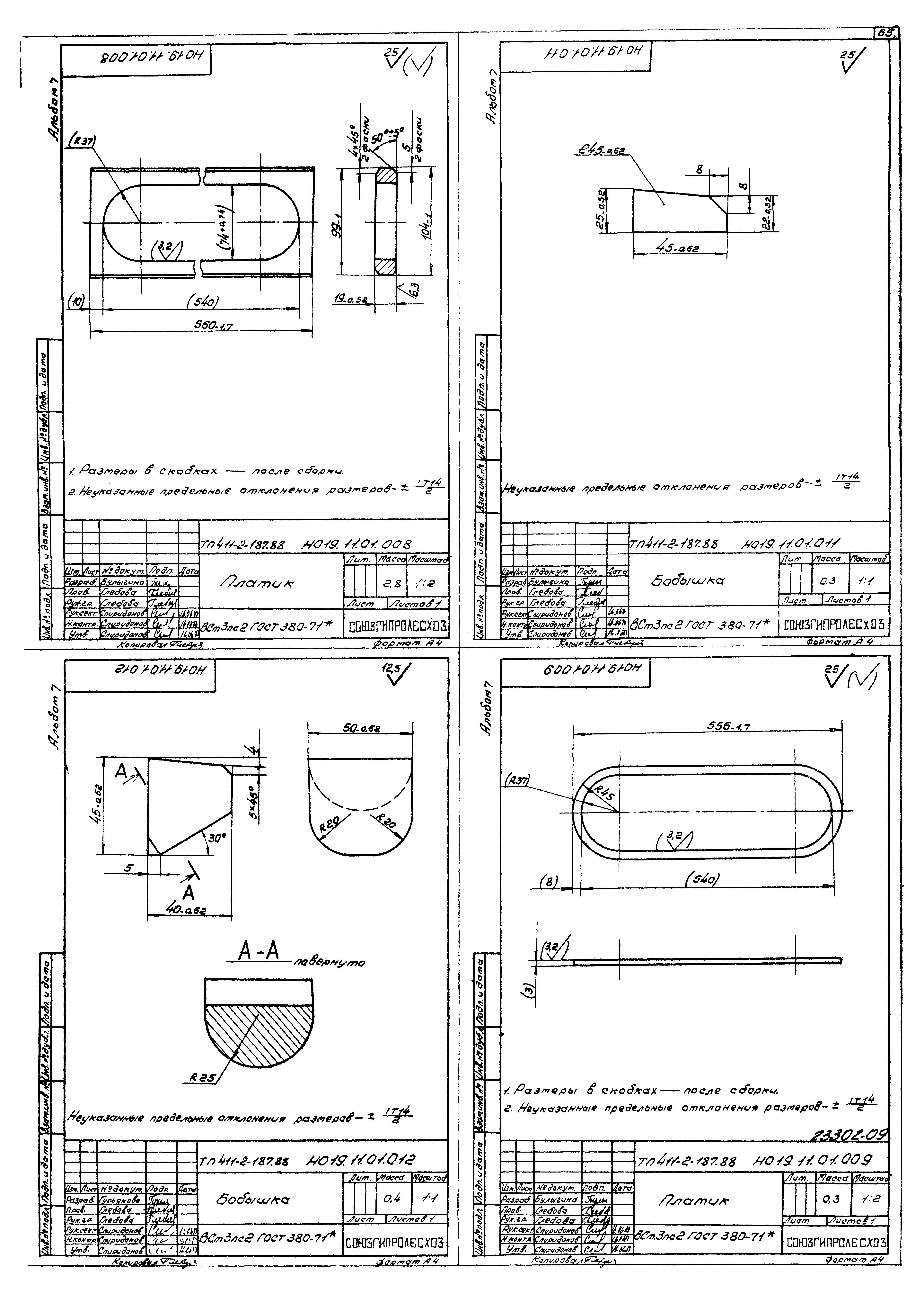
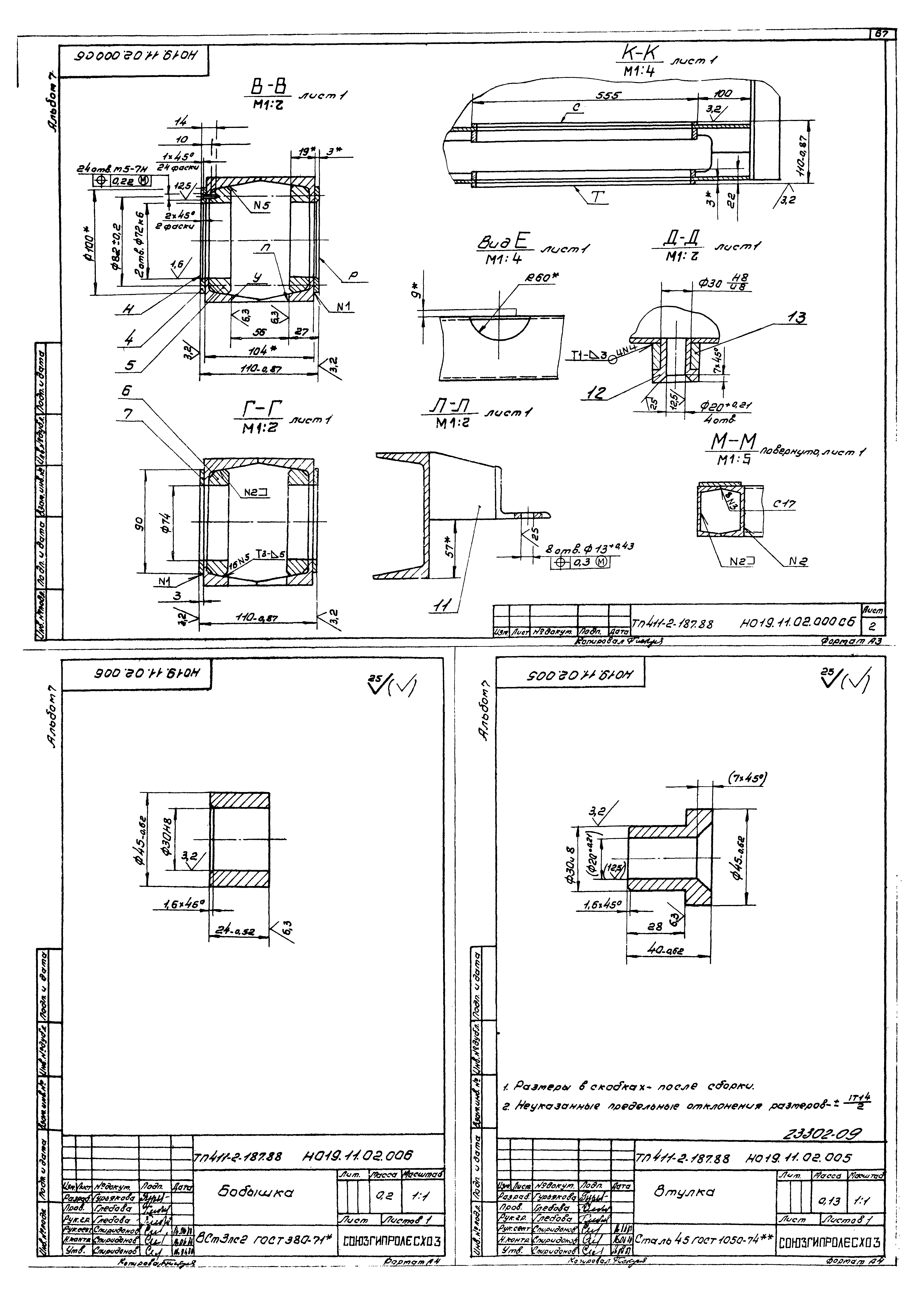
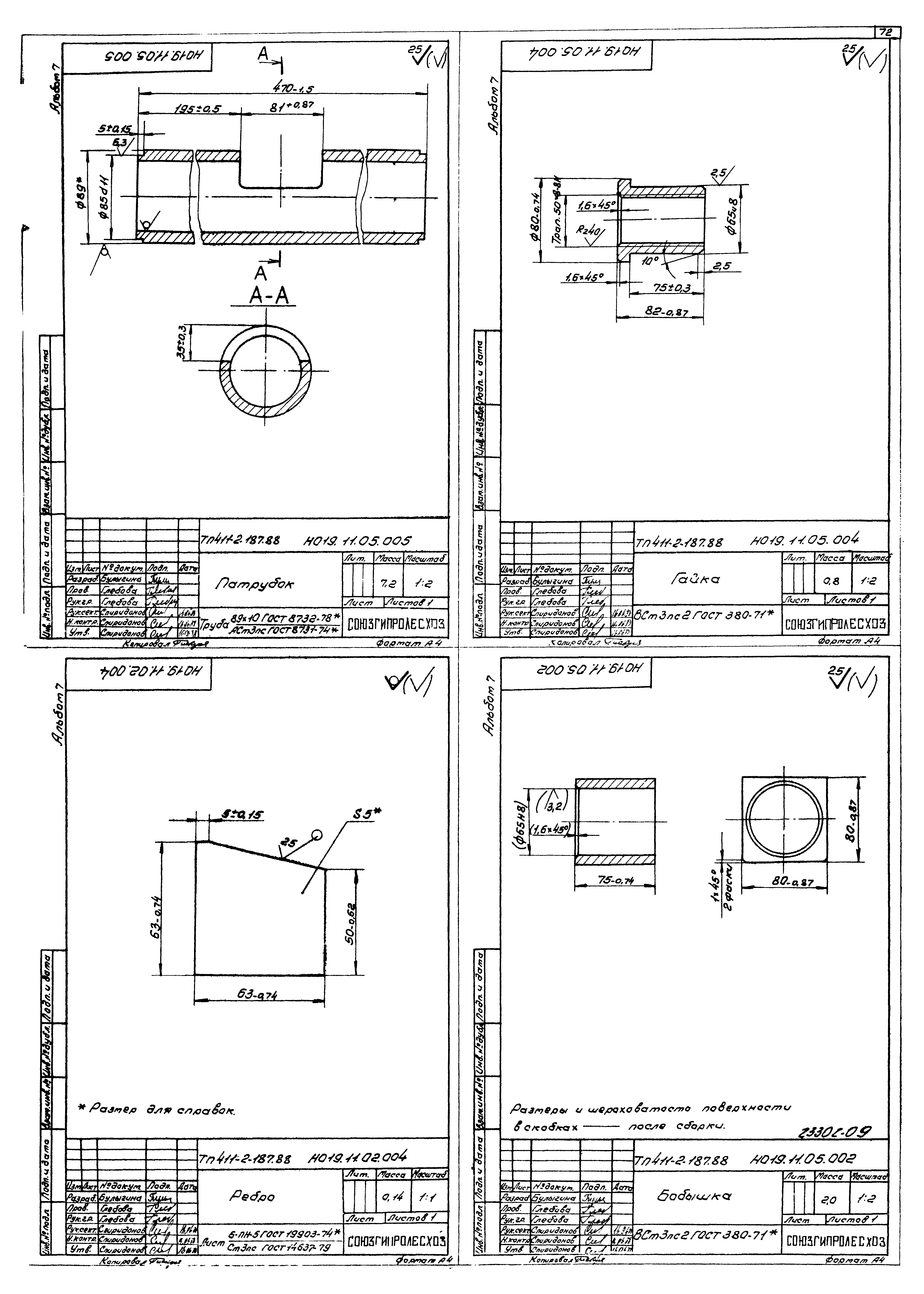
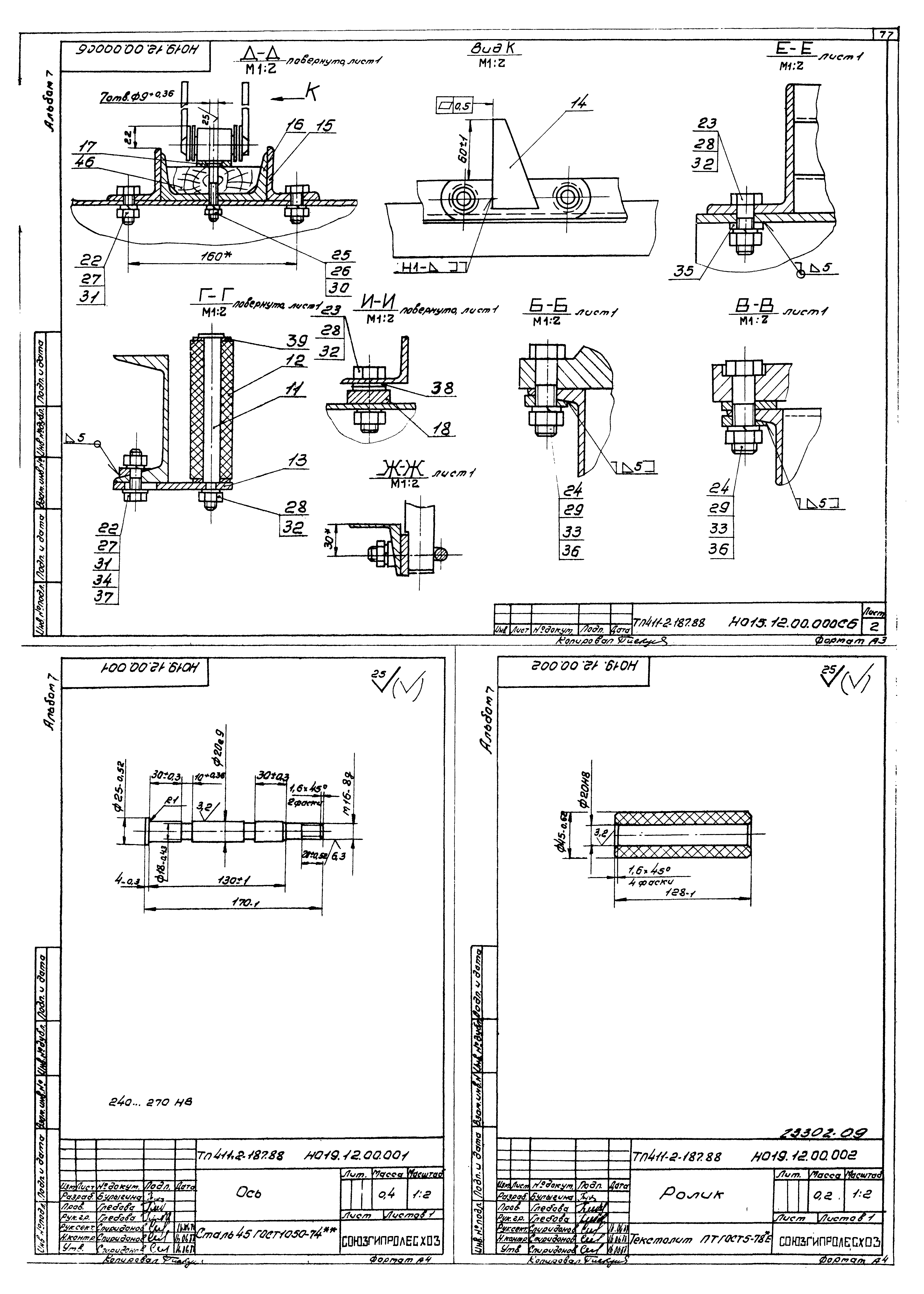
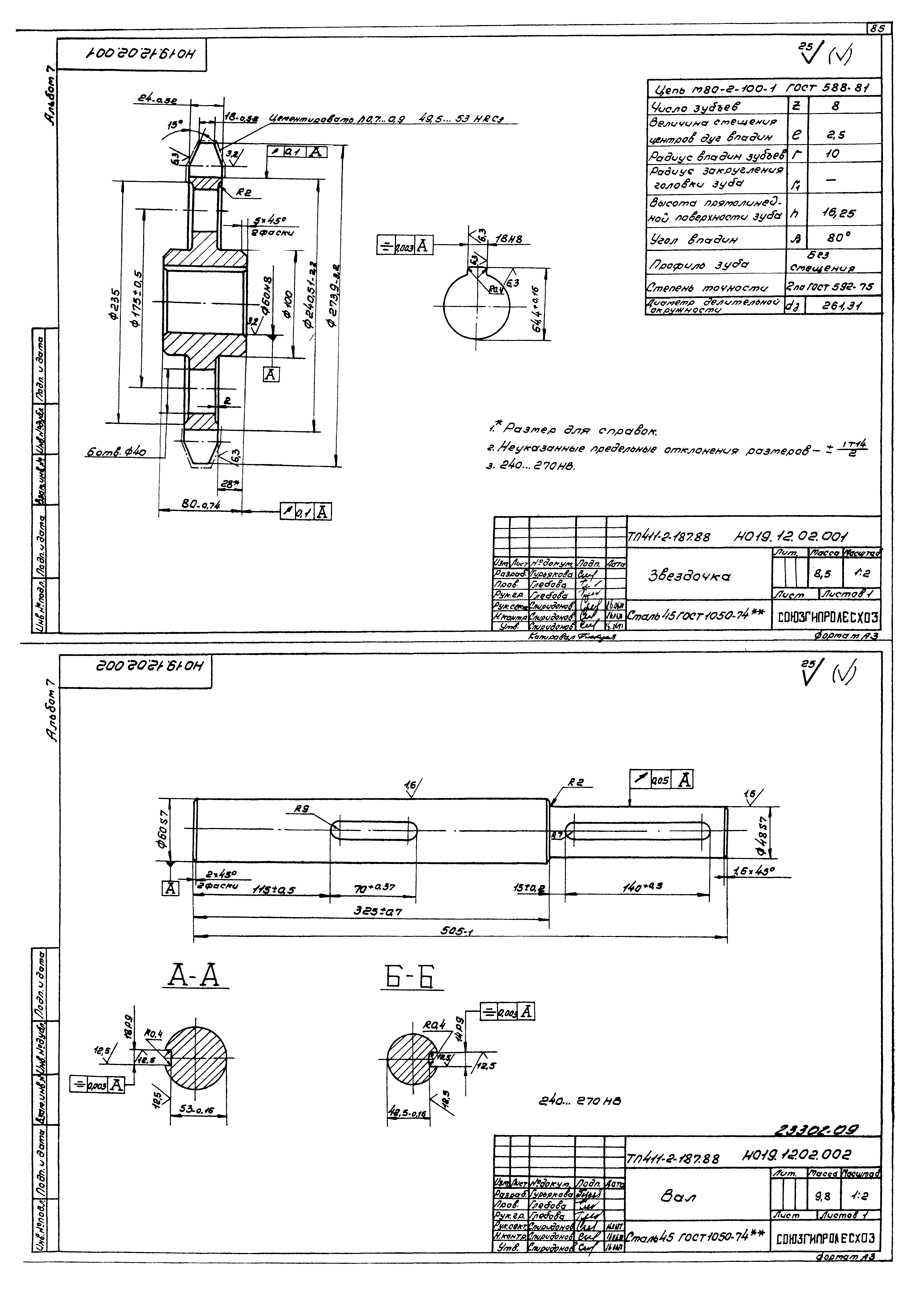
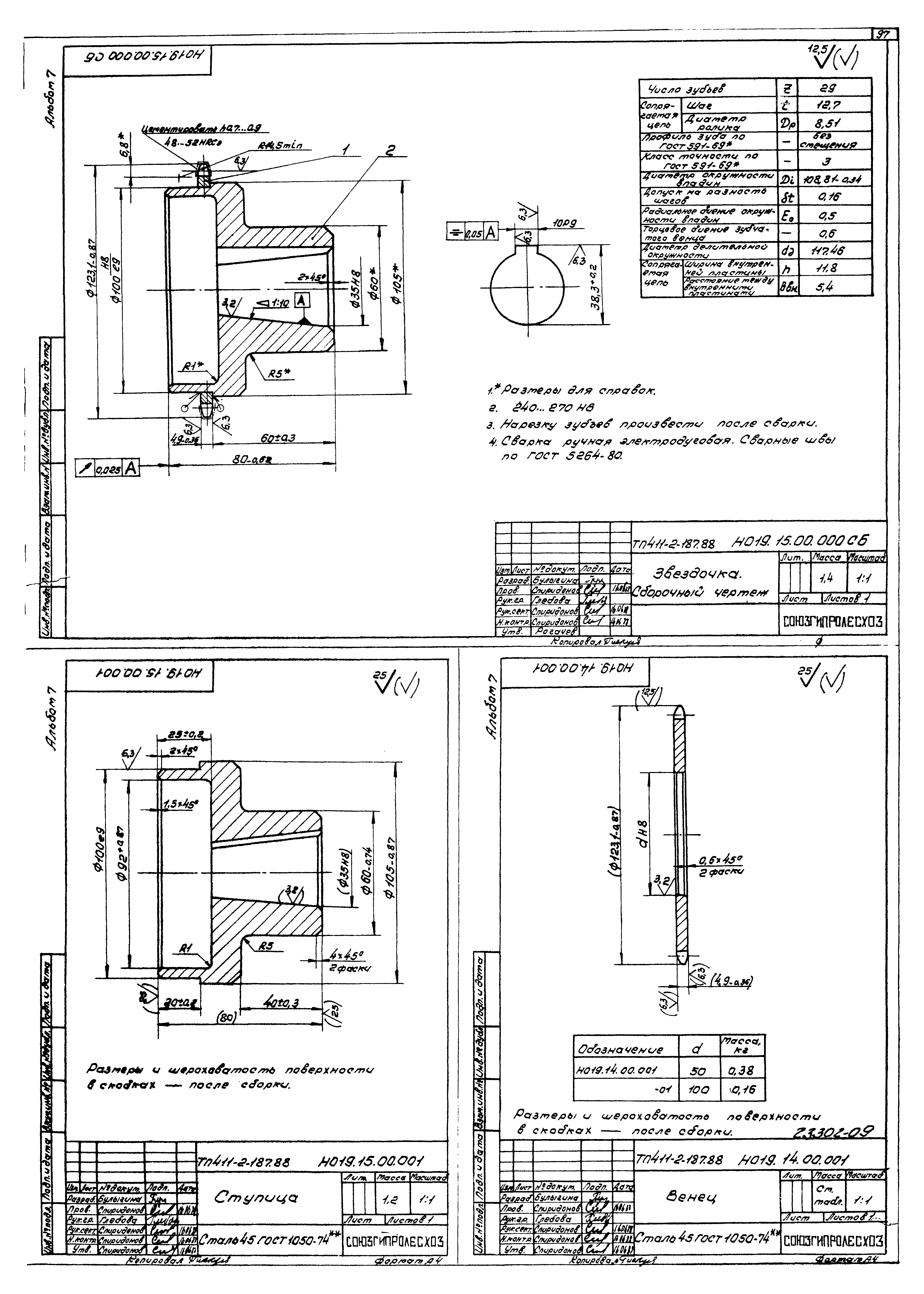
| Оглавление: | НО19.11.00.000 Стол подъемный НО19.11.01.000 Рама нижняя НО19.11.07.000 Ось толкателя НО19.11.00.000СБ Стол подъемный. Сборочный чертеж НО19.11.00.000ЭЗ Стол подъемный. Схема электрическая принципиальная НО19.11.00.003 Прокладка НО19.11.00.002 Втулка НО19.11.00.004 Крышка НО19.11.00.009 Крышка НО19.11.00.005 Ось НО19.11.00.006 Ось НО19.11.00.007 Настил НО19.11.00.008 Ограждение НО19.12.07.002 Звездочка НО19.11.00.001 Винт НО19.11.00.011 Флажок НО19.11.01.000 Рама нижняя НО19.11.02.000 Рама верхняя НО19.11.05.000 Гайка-толкатель НО19.11.01.000СБ Рама нижняя. Сборочный чертеж НО19.11.01.002 Балка НО19.11.00.011 Крышка НО19.11.01.005 Фиксатор НО19.00.00.001 Ролик НО19.11.01.008 Платик НО19.11.01.011 Бобышка НО19.11.01.012 Бобышка НО19.11.01.009 Платик НО19.11.02.000СБ Рама верхняя. Сборочный чертеж НО19.11.02.006 Бобышка НО19.11.02.005 Втулка НО19.11.03.000СБ Рычаг. Сборочный чертеж НО19.11.04.000СБ Рычаг. Сборочный чертеж НО19.11.03.003 Рычаг НО19.11.03.001 Втулка НО19.11.03.004 Платик НО19.11.04.001 Рычаг НО19.11.03.002 Втулка НО19.11.05.000СБ Гайка-толкатель. Сборочный чертеж НО19.11.05.001 Ребро НО19.11.05.003 Фланец НО19.11.05.005 Патрубок НО19.11.05.004 Гайка НО19.11.02.004 Ребро НО19.11.05.002 Бобышка НО19.11.06.000СБ Корпус подшипника. Сборочный чертеж НО19.11.06.001 Корпус НО19.11.06.002 Основание НО19.11.07.001 Ось НО19.11.07.000СБ Ось толкателя. Сборочный чертеж НО19.11.00.012 Флажок НО19.11.07.002 Фланец НО19.12.00.000 Конвейер загрузочный НО19.12.06.000 Секция промежуточная НО19.12.00.000СБ Конвейер загрузочный. Сборочный чертеж НО19.12.00.001 Ось НО19.12.00.002 Ролик НО19.12.00.000ВП Конвейер загрузочный. Ведомость покупных изделий НО19.13.00.000СБ Конвейер загрузочный. Сборочный чертеж НО19.12.00.004 Упор НО19.12.00.003 Кронштейн НО19.12.03.000 Станция натяжная НО19.12.07.000 Звездочка поддерживающая НО19.12.01.000 Привод НО19.12.00.000 Конвейер загрузочный НО19.12.01.000СБ Привод. Сборочный чертеж НО19.12.02.003 Прокладка НО19.12.02.004 Кольцо НО19.12.01.100СБ Звездочка. Сборочный чертеж НО19.12.01.101 Венец НО19.12.01.102 Ступица НО19.12.02.000 Вал приводной НО19.12.07.001 Ось НО19.12.07.004 Скоба НО19.12.02.000СБ Вал приводной. Сборочный чертеж НО19.12.02.001 Звездочка НО19.12.02.002 Вал НО19.12.03.000СБ Станция натяжная. Сборочный чертеж НО19.12.03.001 Звездочка НО19.12.03.002 Ось НО19.12.03.006 Ребро НО19.12.04.000 Секция начальная НО19.12.05.000 Секция конечная НО19.12.04.000СБ Секция начальная. Сборочный чертеж НО19.12.05.000СБ Секция конечная. Сборочный чертеж НО19.12.06.000СБ Секция промежуточная. Сборочный чертеж НО19.12.07.000СБ Звездочка поддерживающая. Сборочный чертеж НО19.12.03.003 Крышка НО19.12.07.003 Прокладка НО19.13.00.000 Конвейер разгрузочный НО19.12.01.100 Звездочка НО19.13.00.000СБ Конвейер разгрузочный. Сборочный чертеж НО19.14.00.000 Звездочка НО19.15.00.000 Звездочка НО19.11.04.000 Рычаг НО19.11.06.000 Корпус подшипника НО19.14.00.000СБ Звездочка. Сборочный чертеж НО19.14.00.002 Ступица НО19.11.03.000 Рычаг НО19.15.00.000СБ Звездочка. Сборочный чертеж НО19.15.00.001 Ступица НО19.14.00.001 Венец НО19.13.00.000ВП Конвейер разгрузочный. Ведомость покупных изделий |
| Разработан: | Союзгипролесхоз |
| Утверждён: | 20.06.1988 Госкомлес СССР (USSR Goskomles 16) |
| Издан: | ЦИТП Госстроя СССР (CITP, Gosstroy (USSR) 1989 г. ) |



















































