Скачать Типовые проектные решения 820-04-19.85 Альбом III. Водосбросы на расход воды до 95 куб. м/с. Железобетонные конструкции шахты. Сборно-монолитный вариантДата актуализации: 01.01.2021
|
| Обозначение: | Типовые проектные решения 820-04-19.85 |
| Обозначение англ: | 820-04-19.85 |
| Статус: | справочные материалы, мп, тпр |
| Название рус.: | Альбом III. Водосбросы на расход воды до 95 куб. м/с. Железобетонные конструкции шахты. Сборно-монолитный вариант |
| Дата добавления в базу: | 01.10.2014 |
| Дата актуализации: | 01.01.2021 |
| Дата окончания срока действия: | 29.04.1985 |
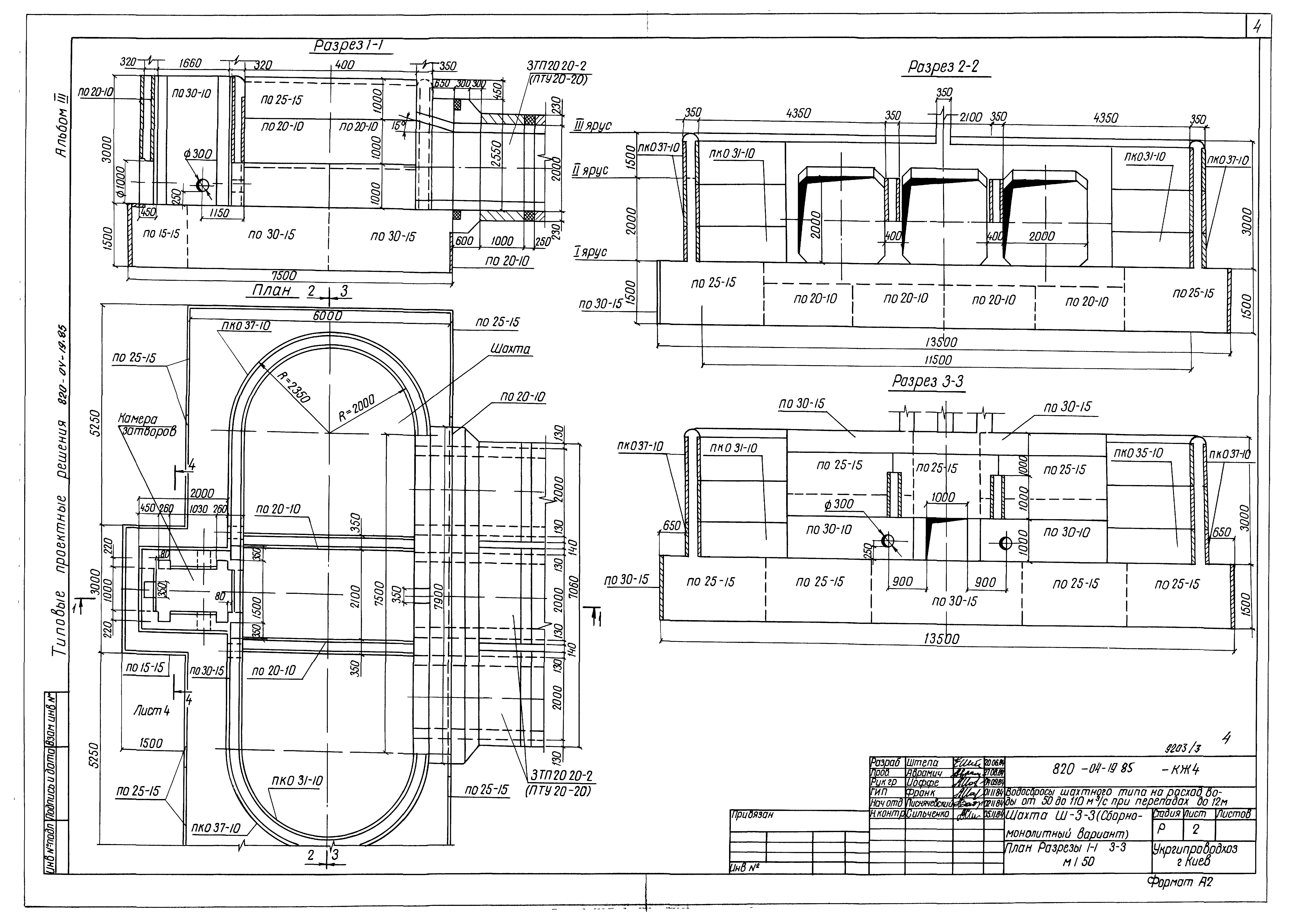
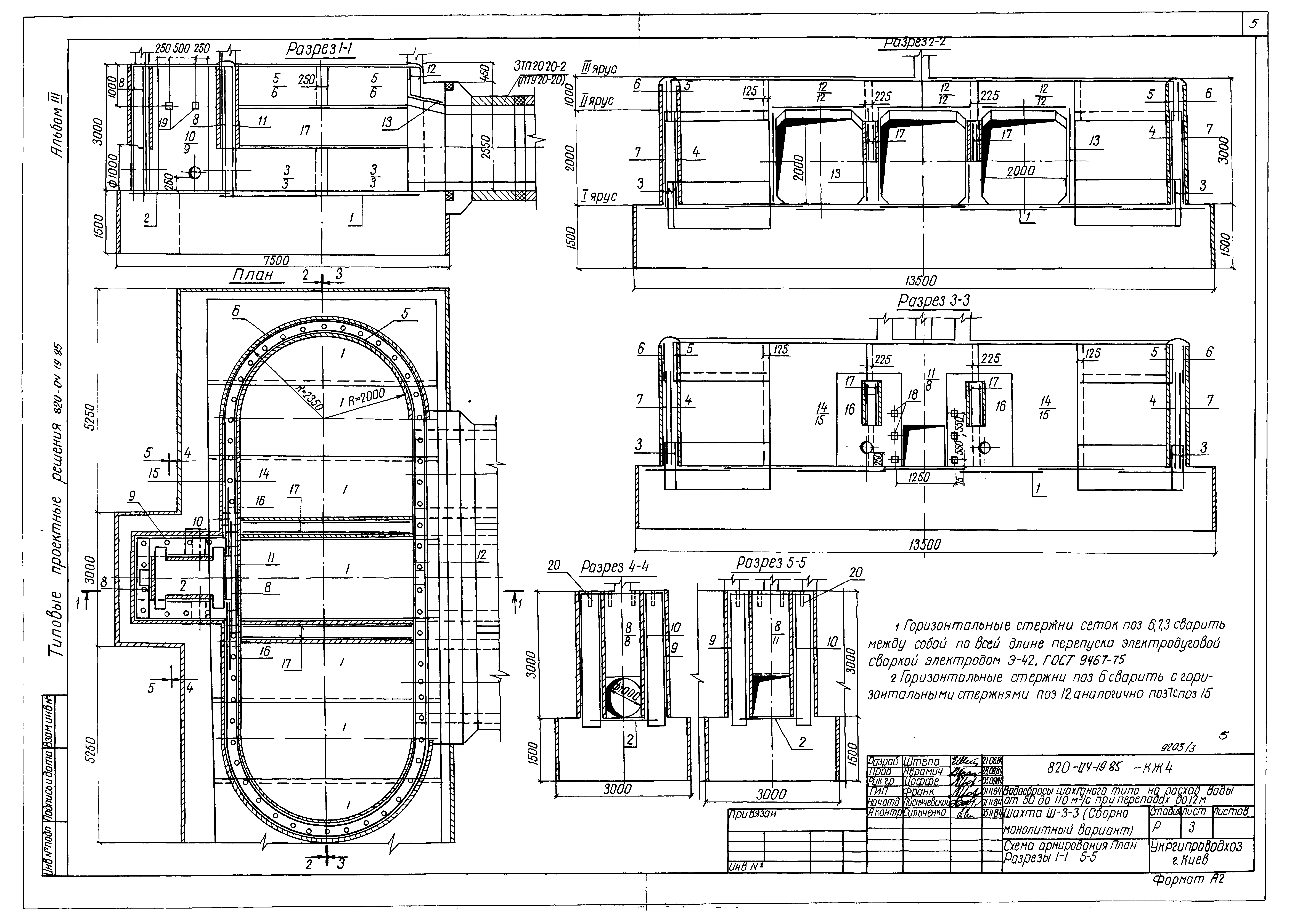
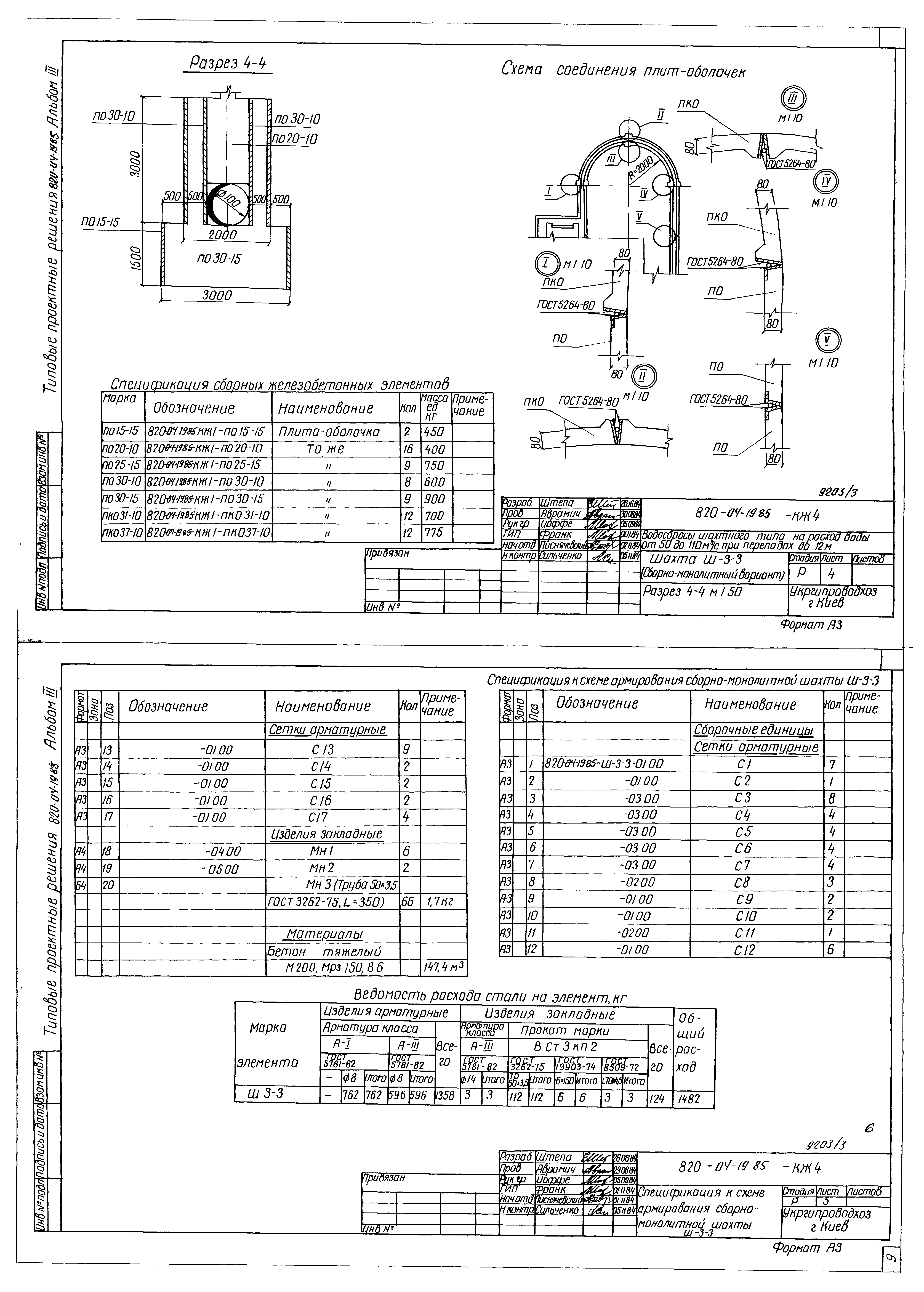
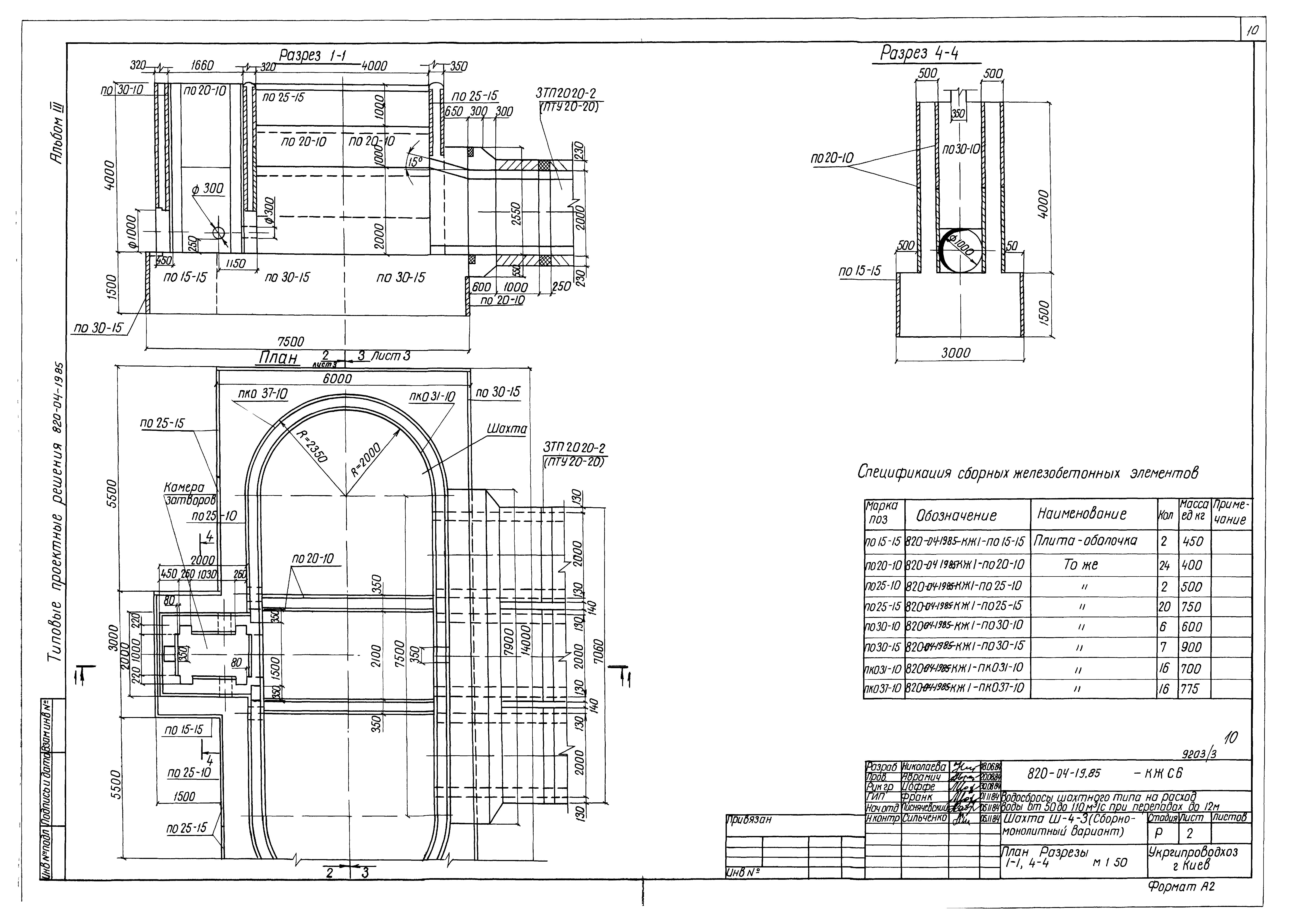
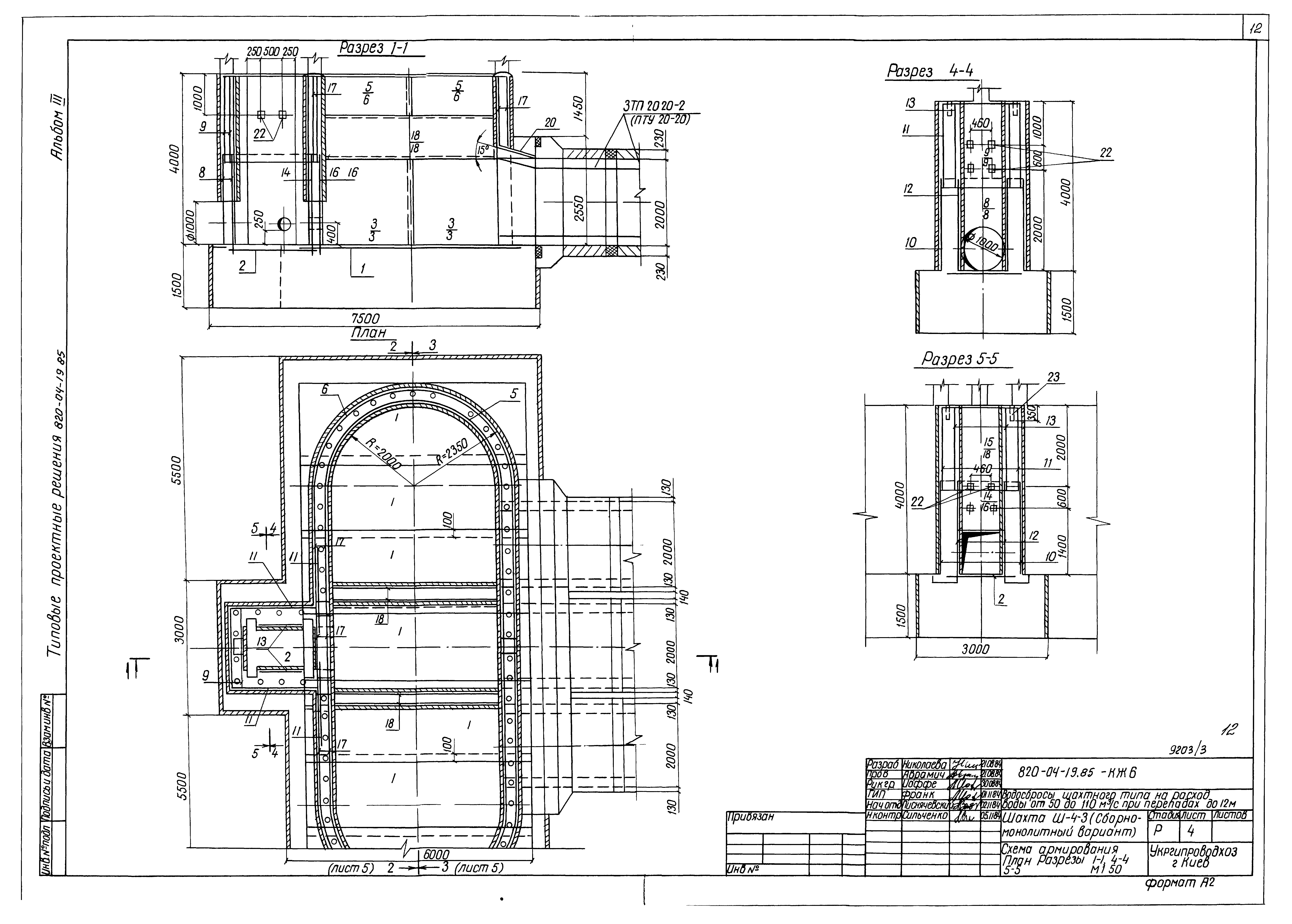
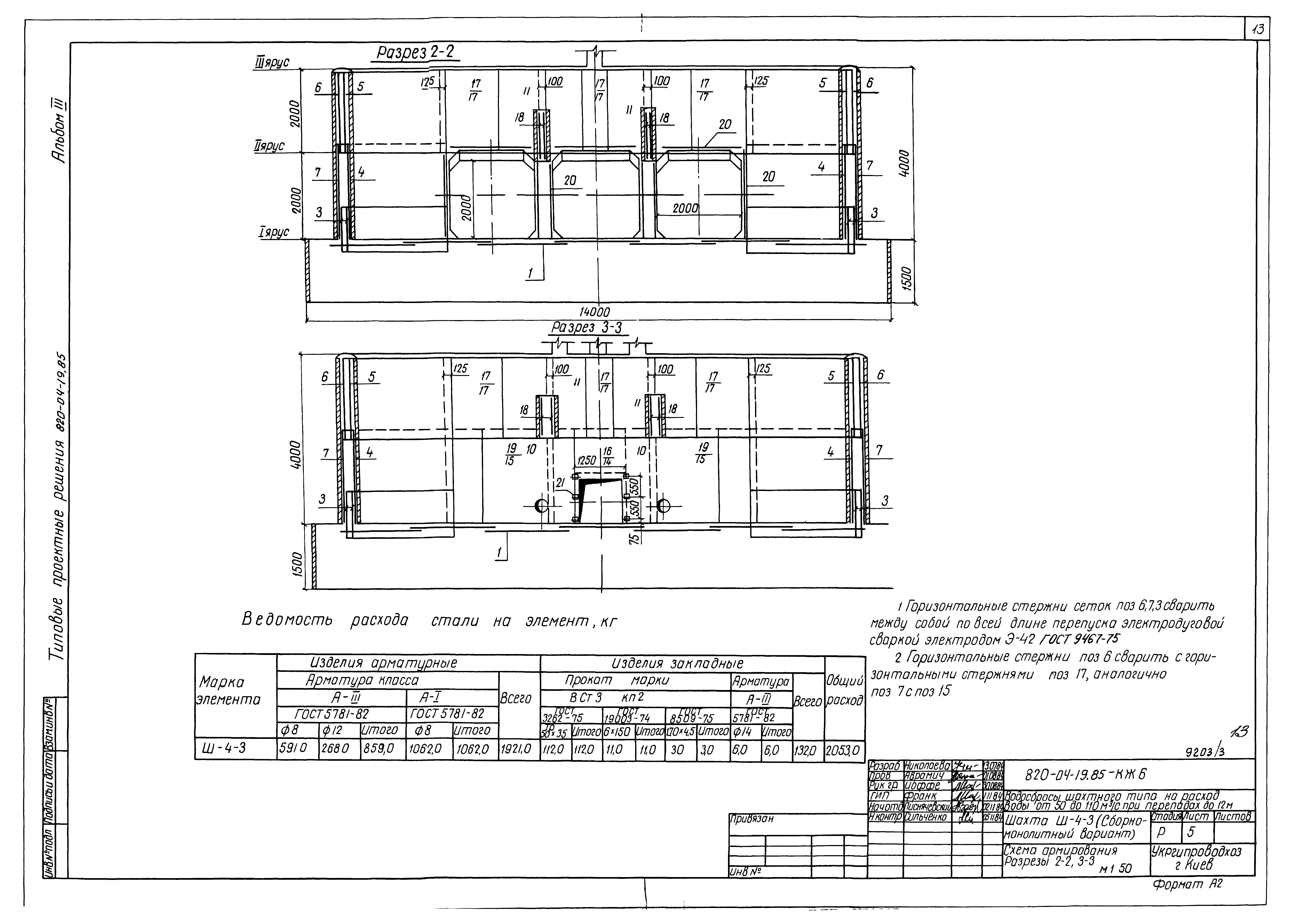
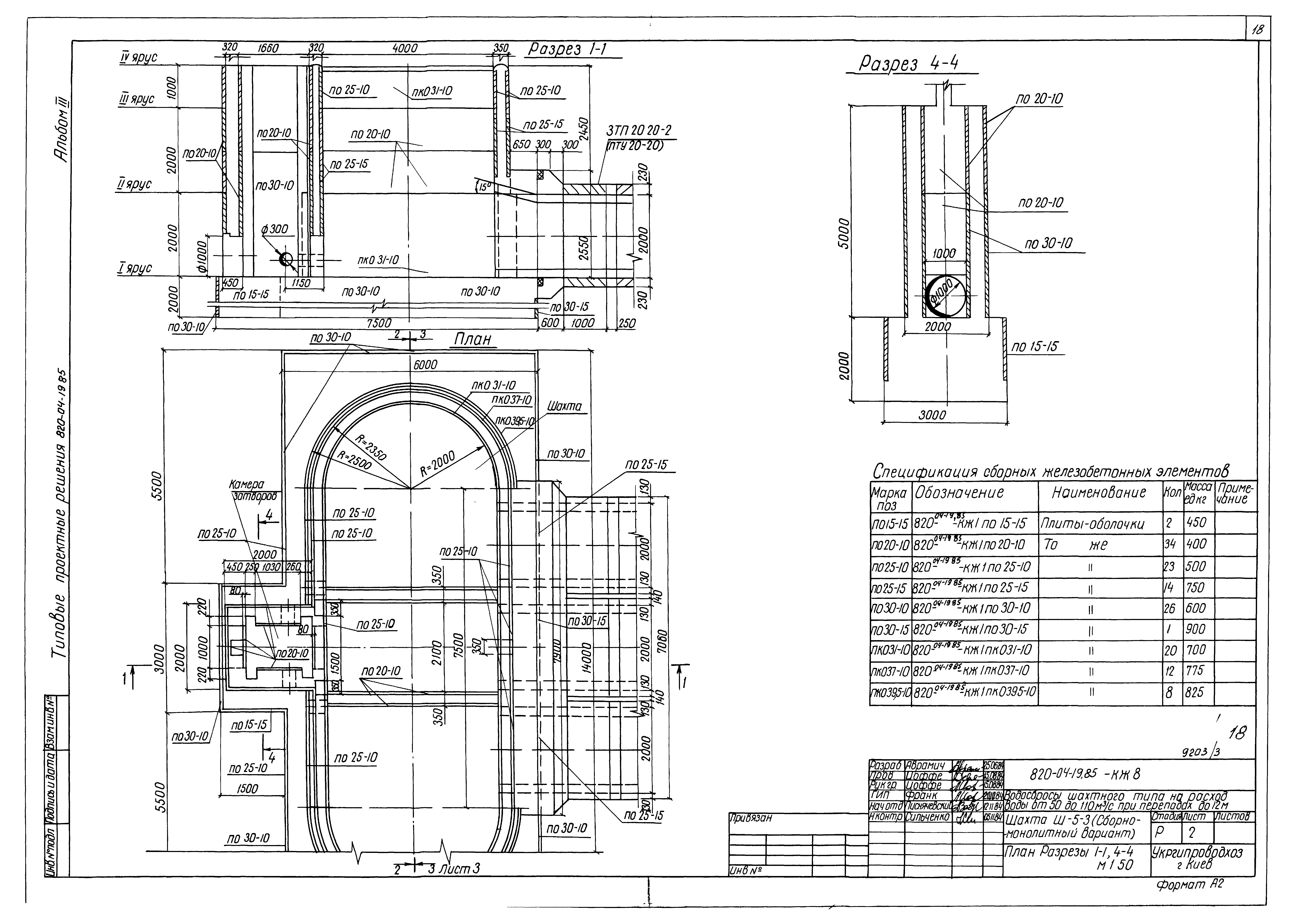
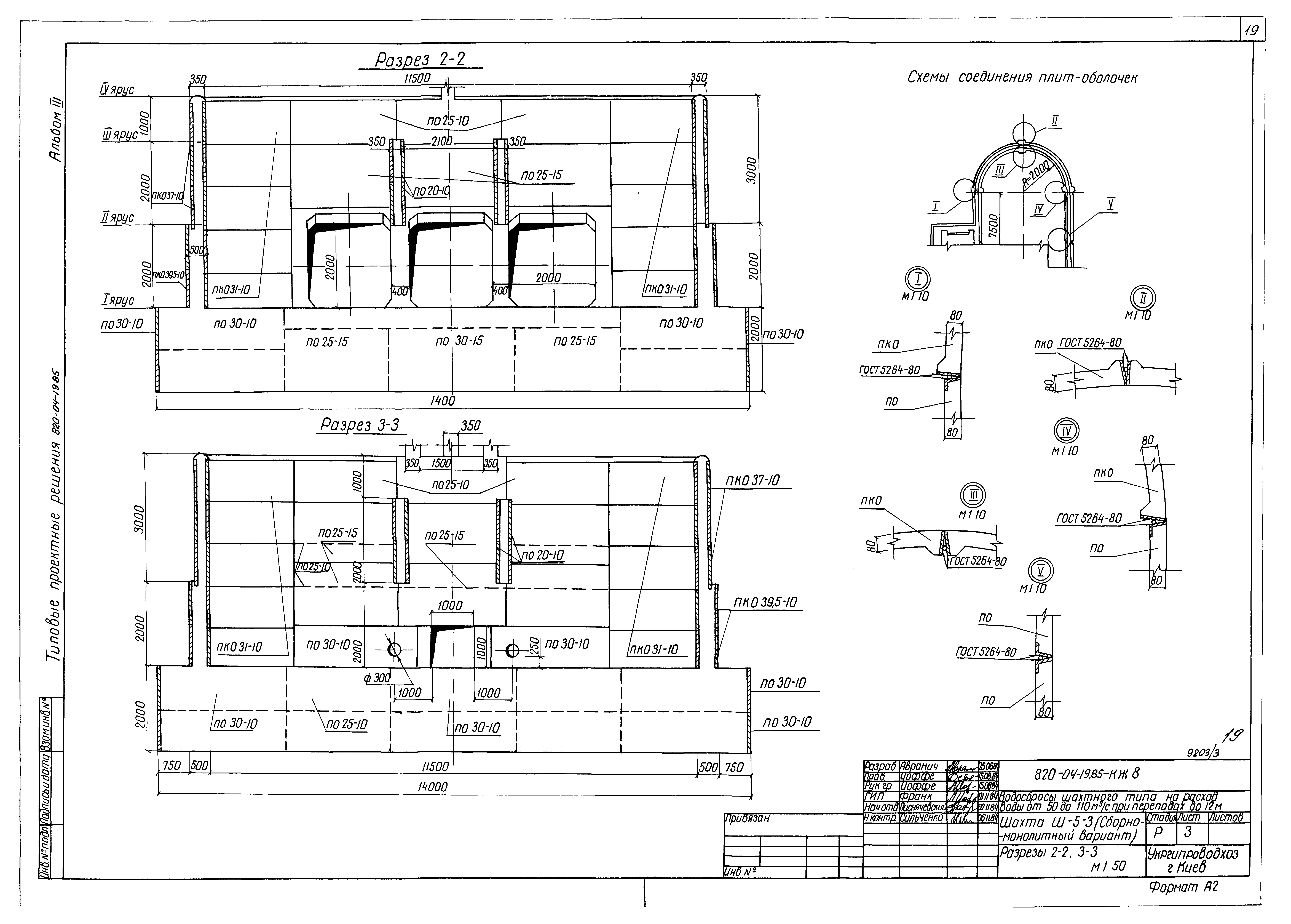
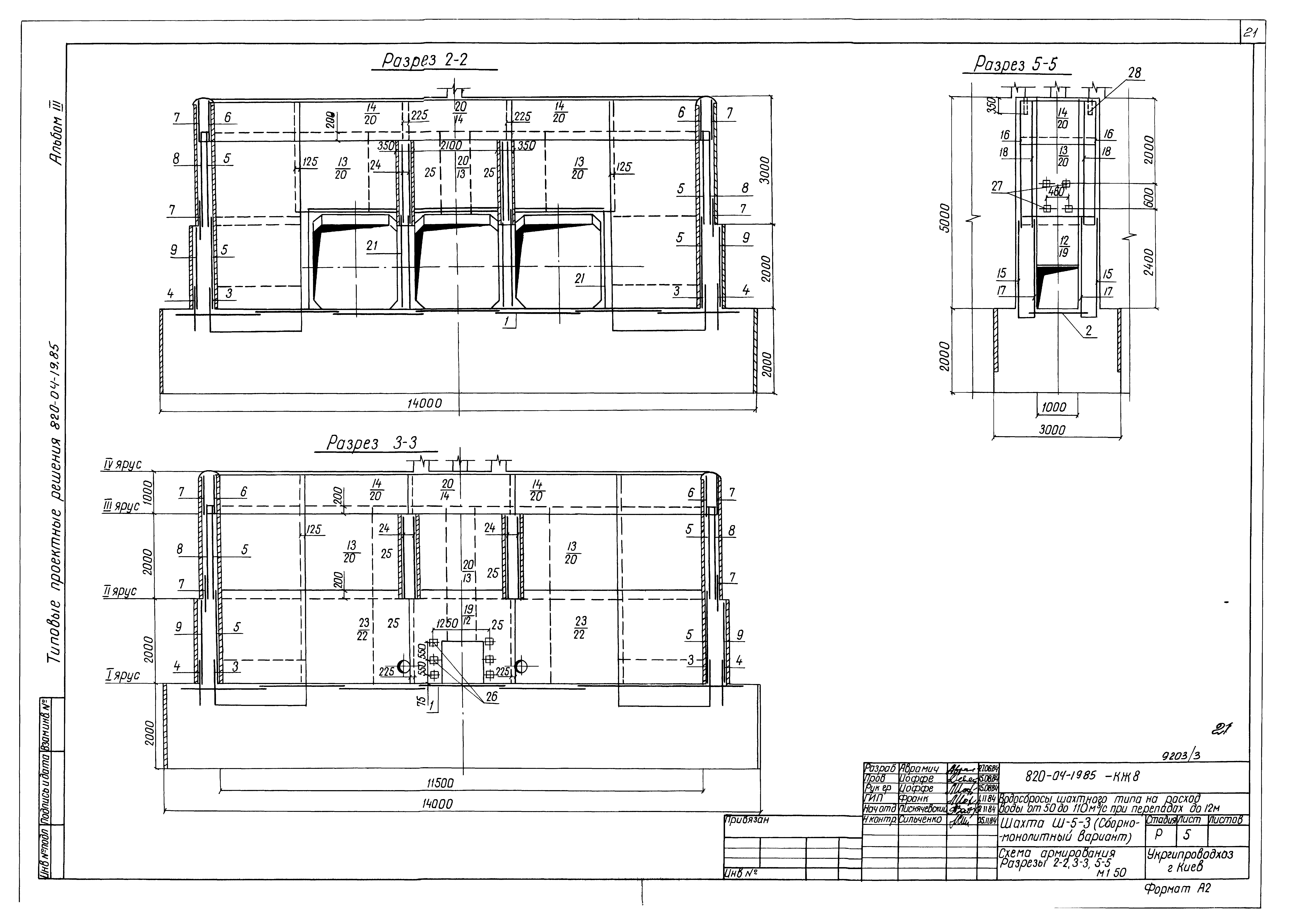
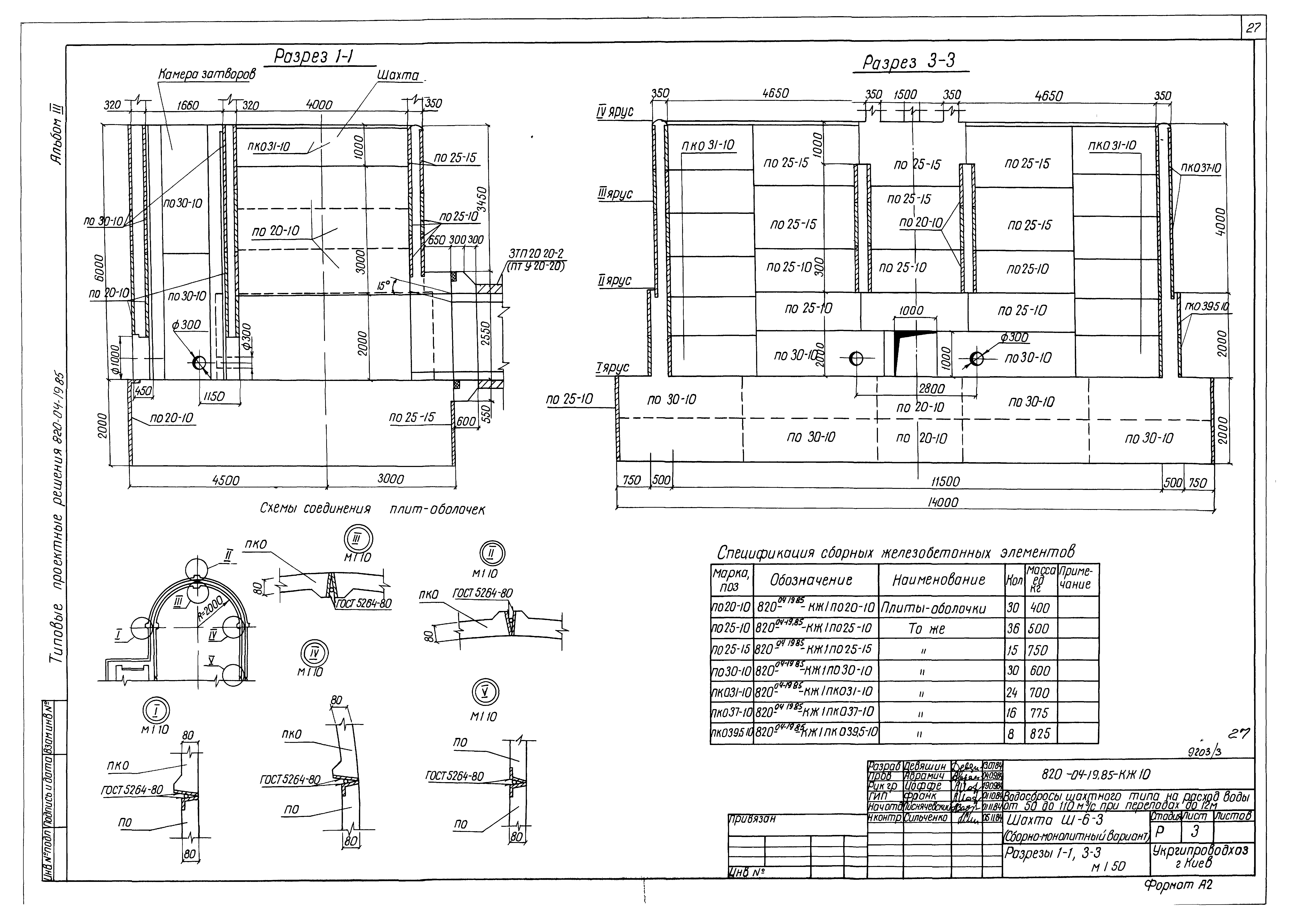
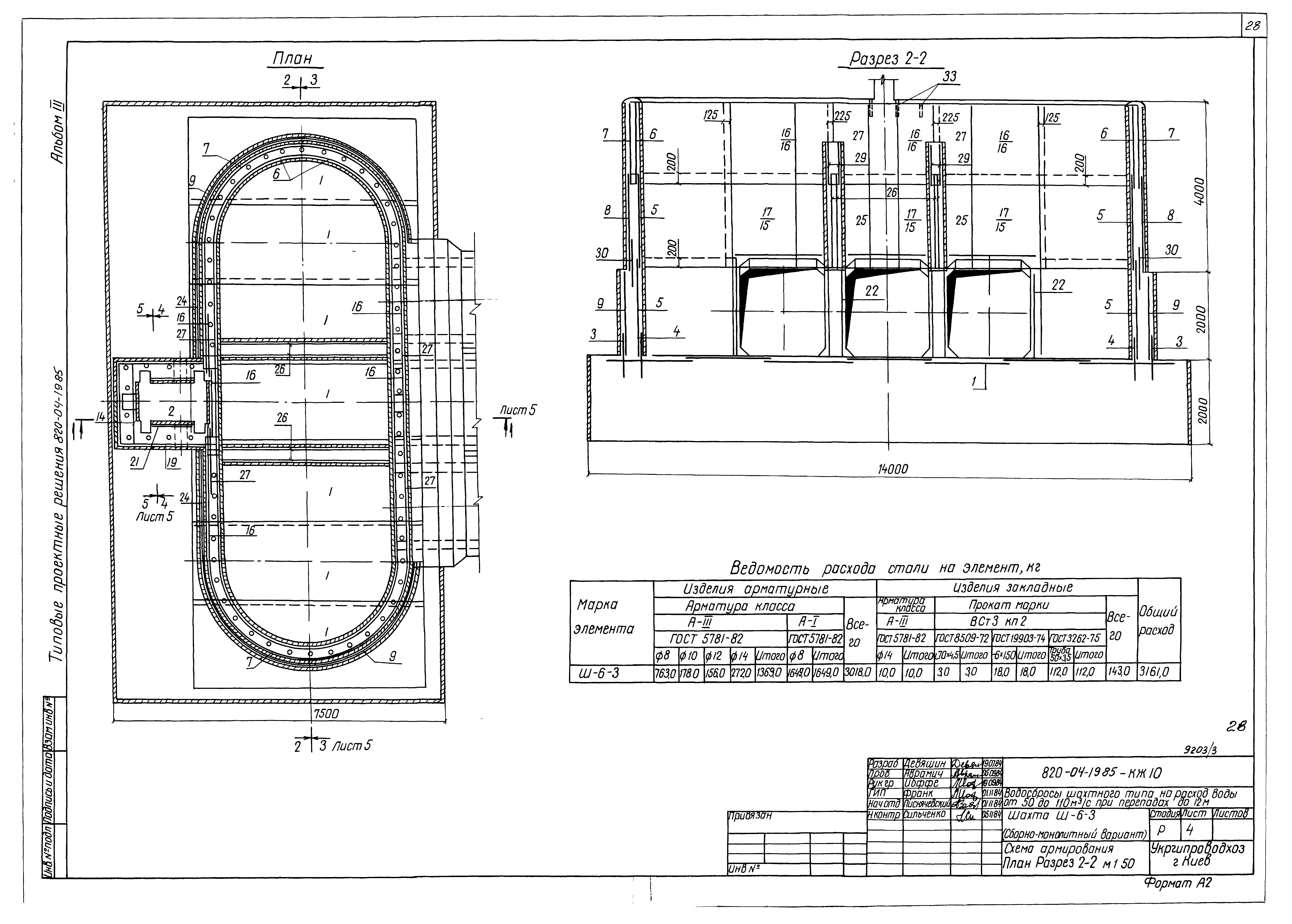
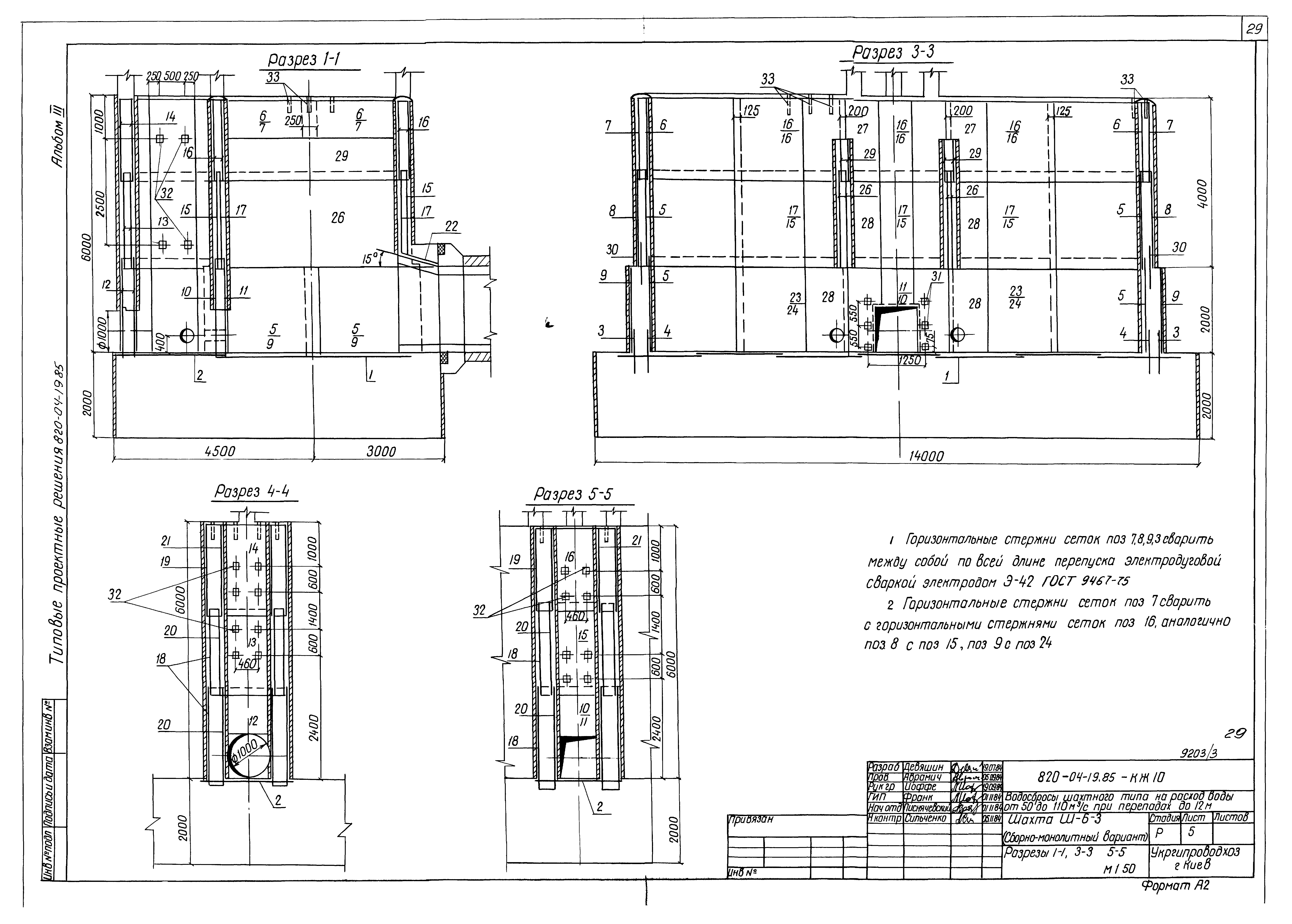
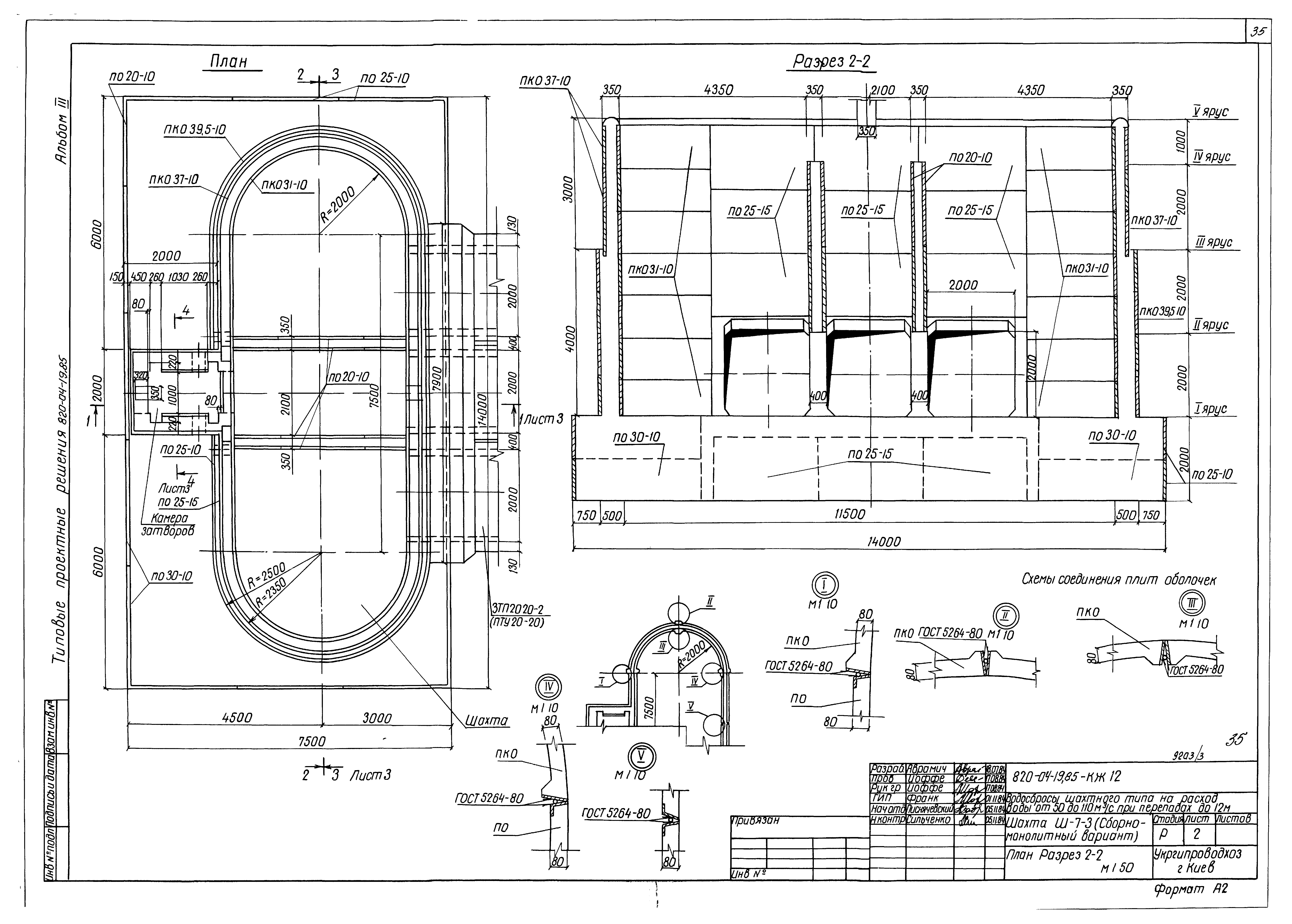
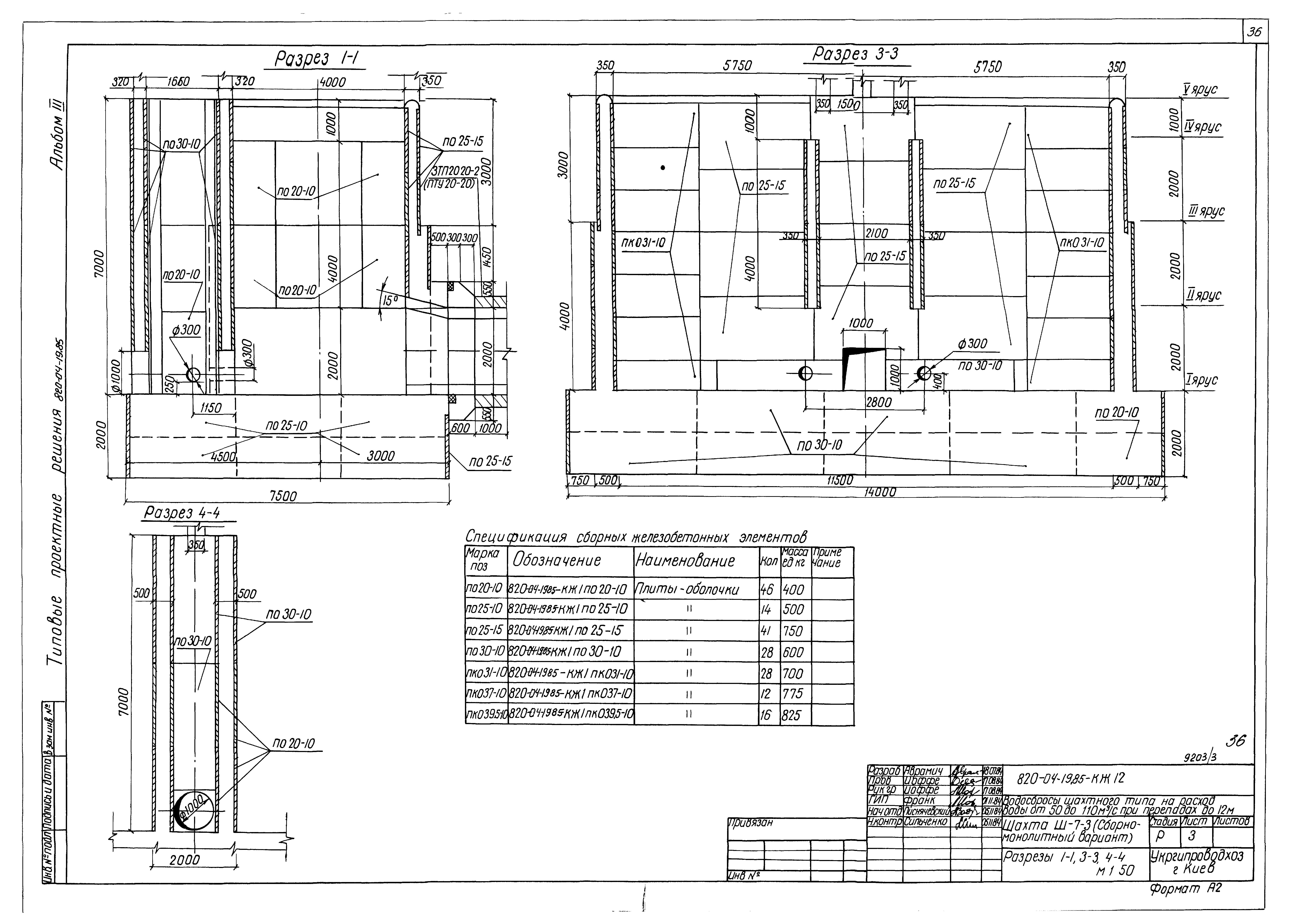
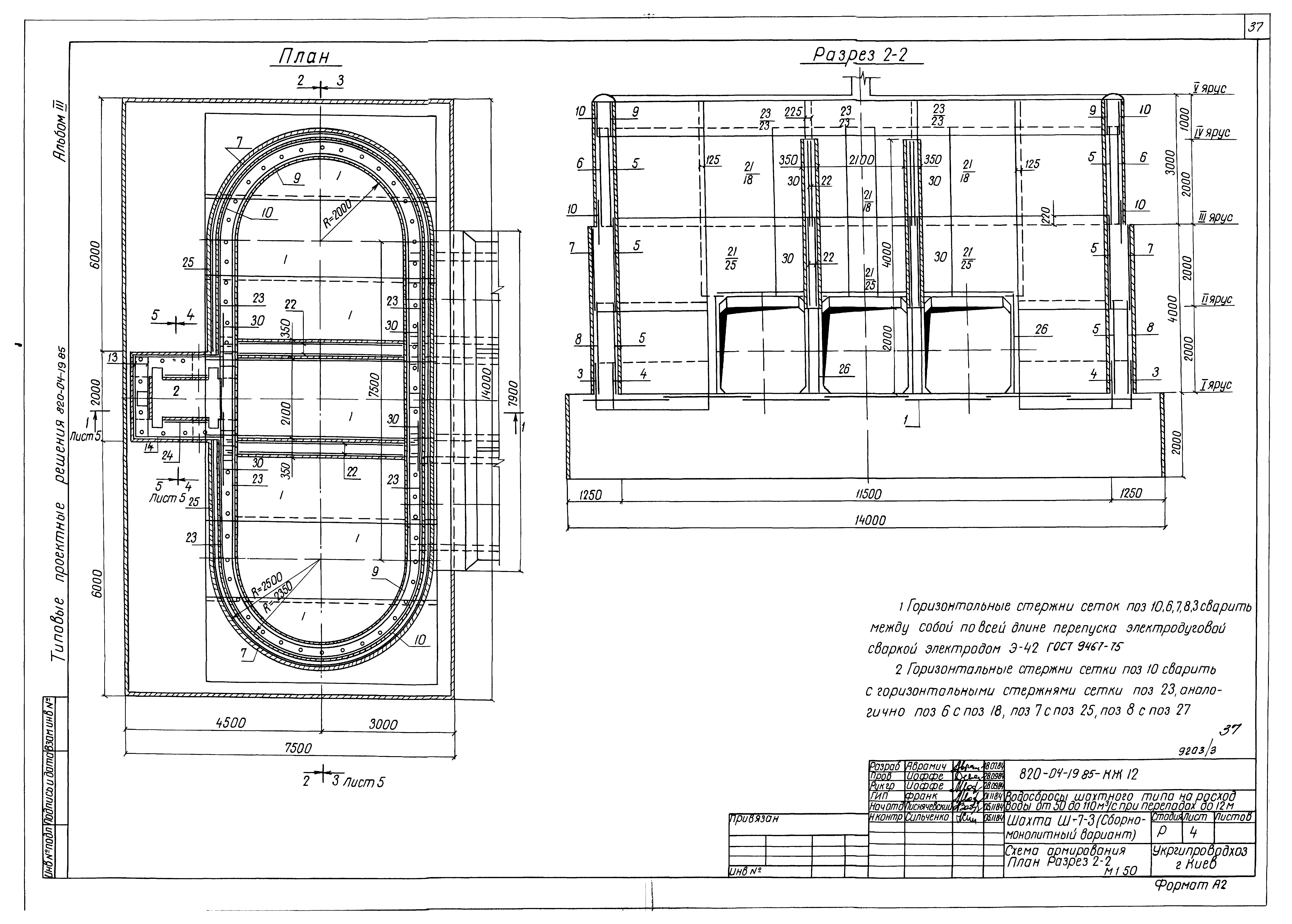
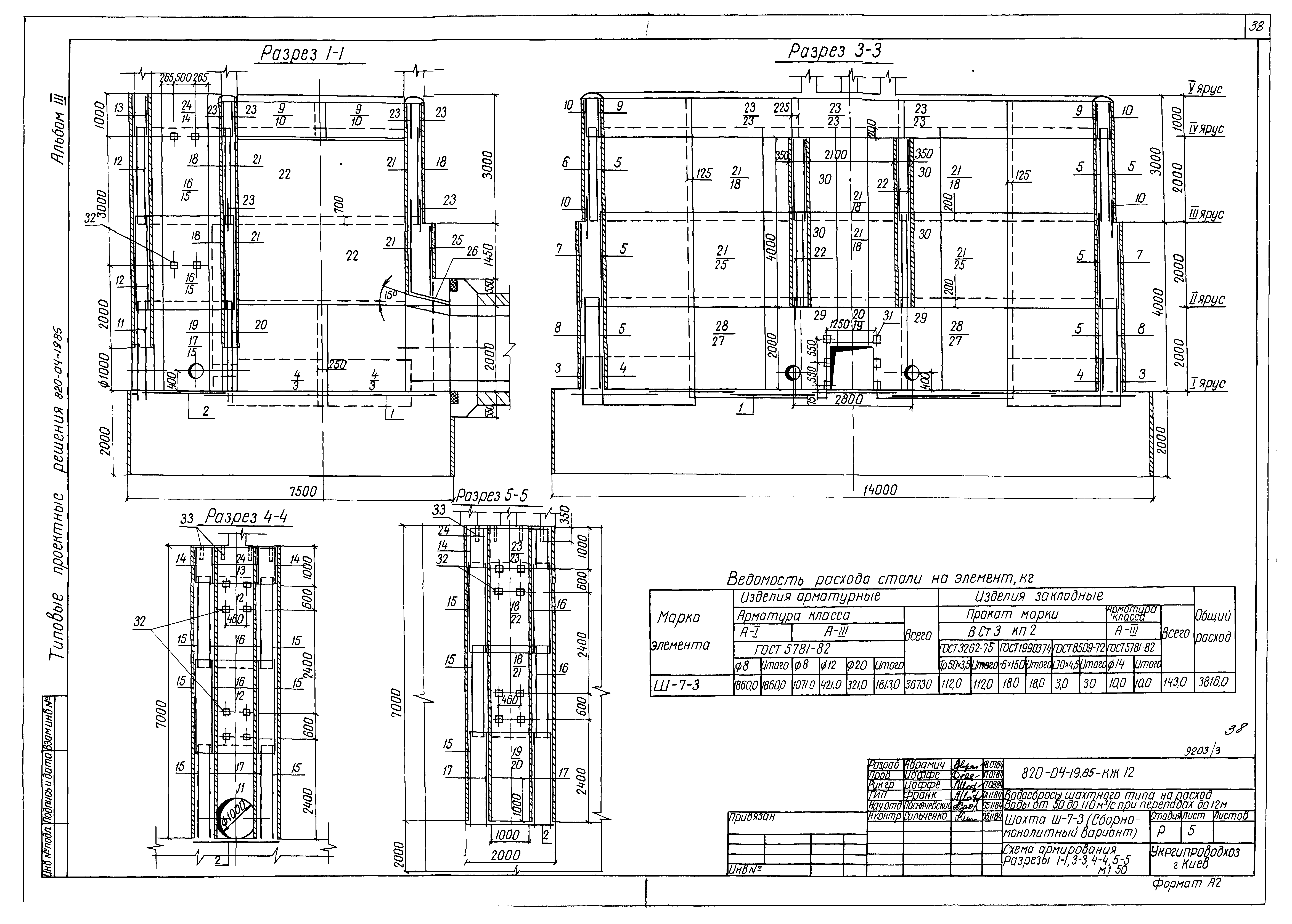
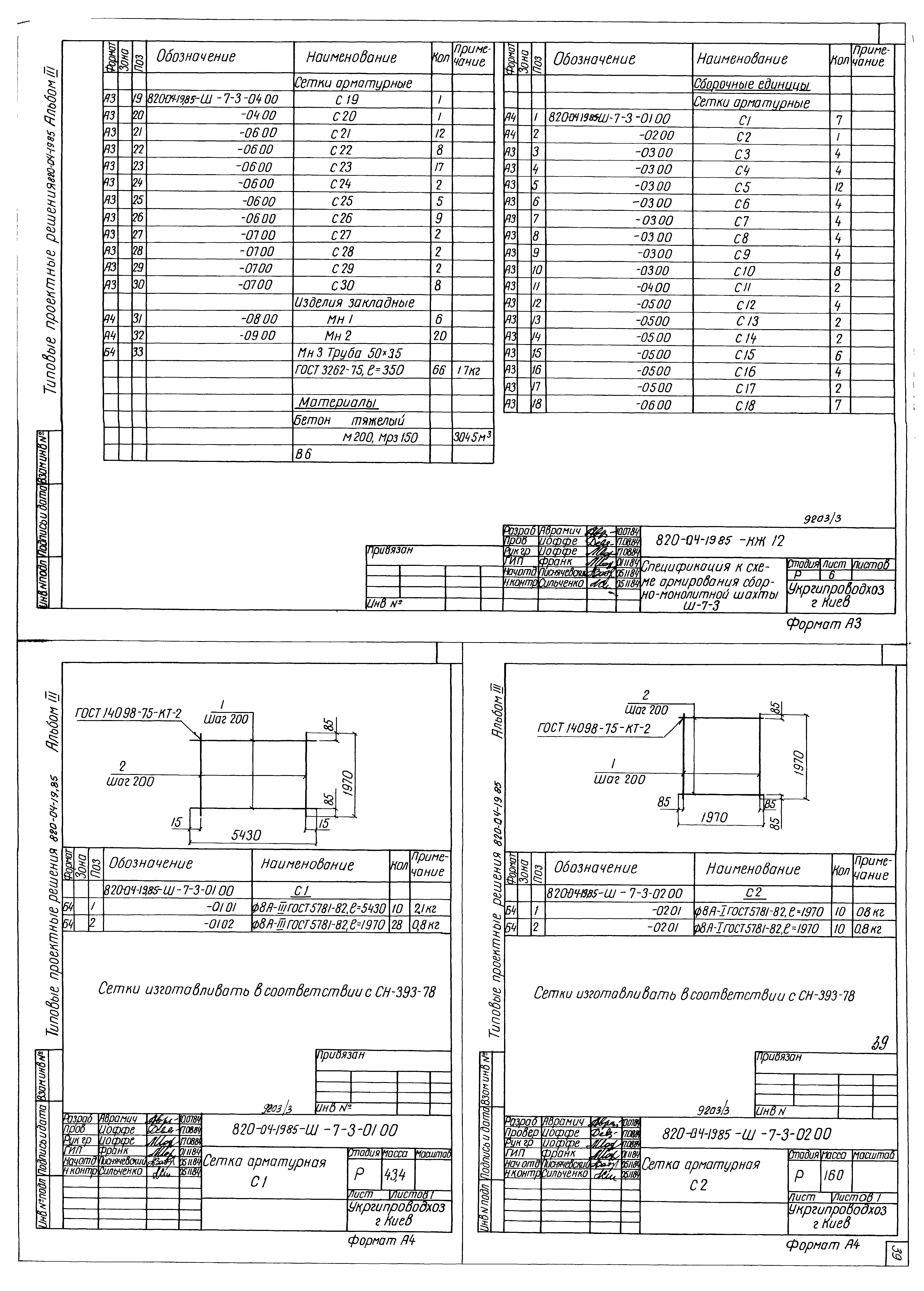
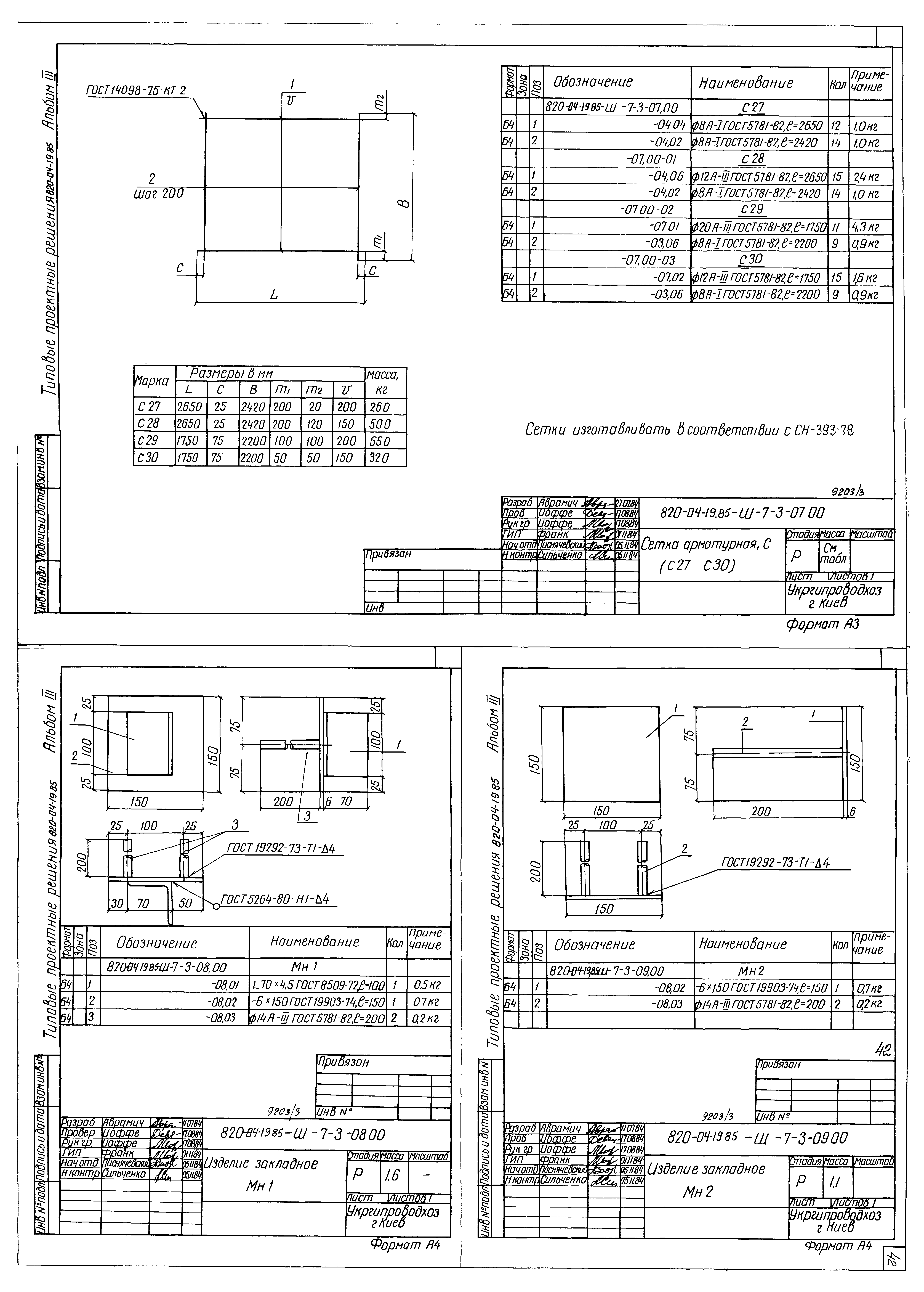
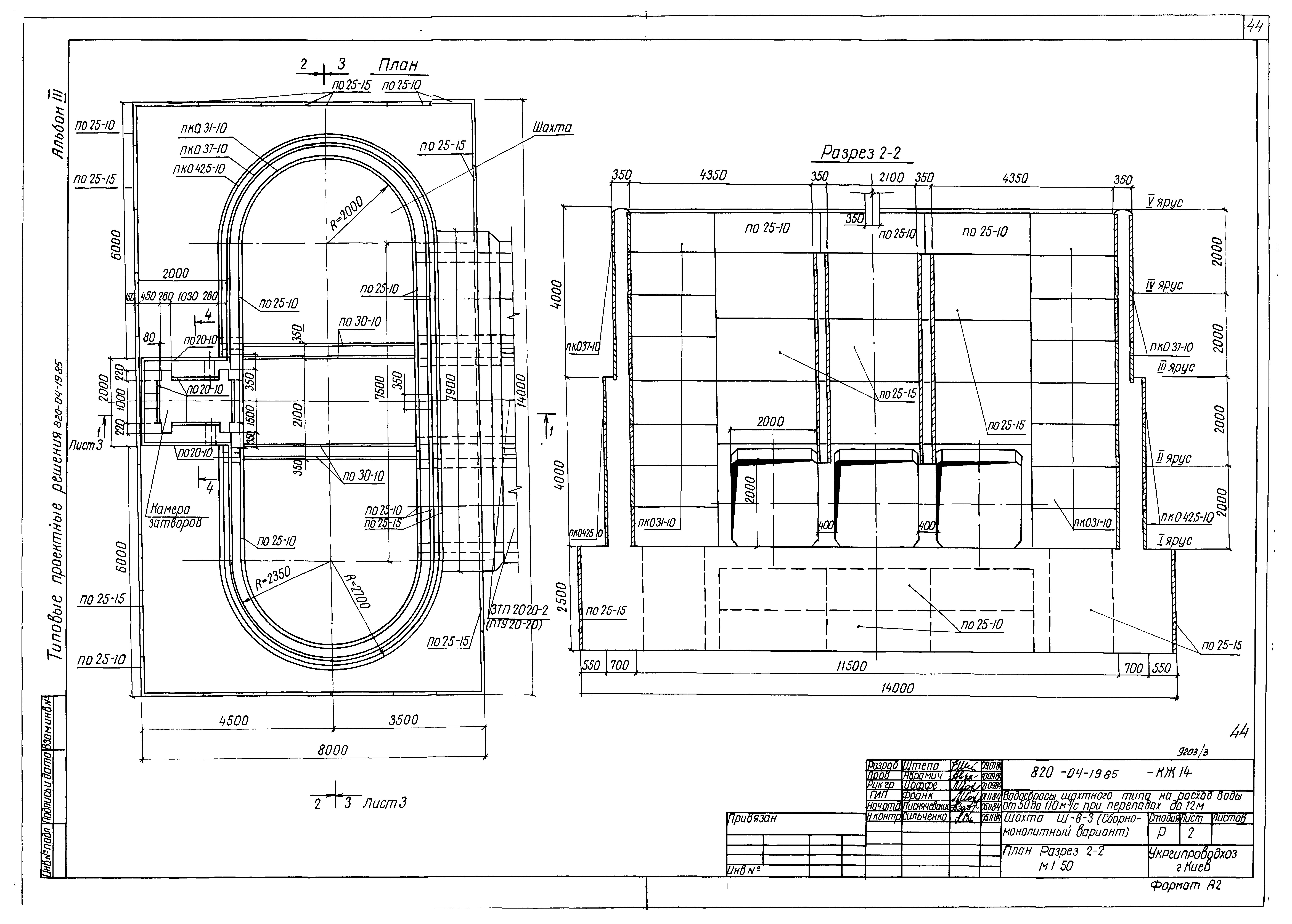
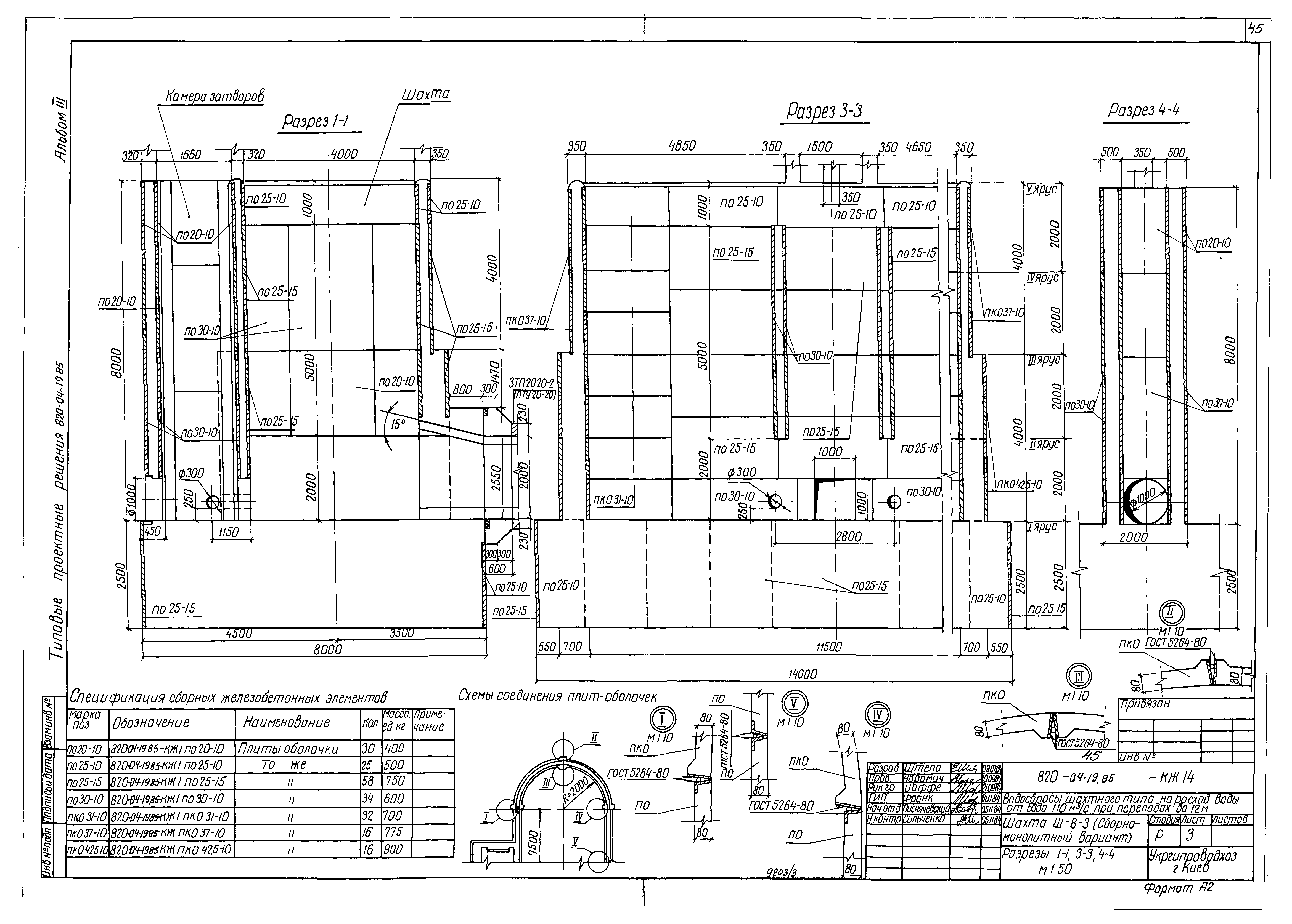
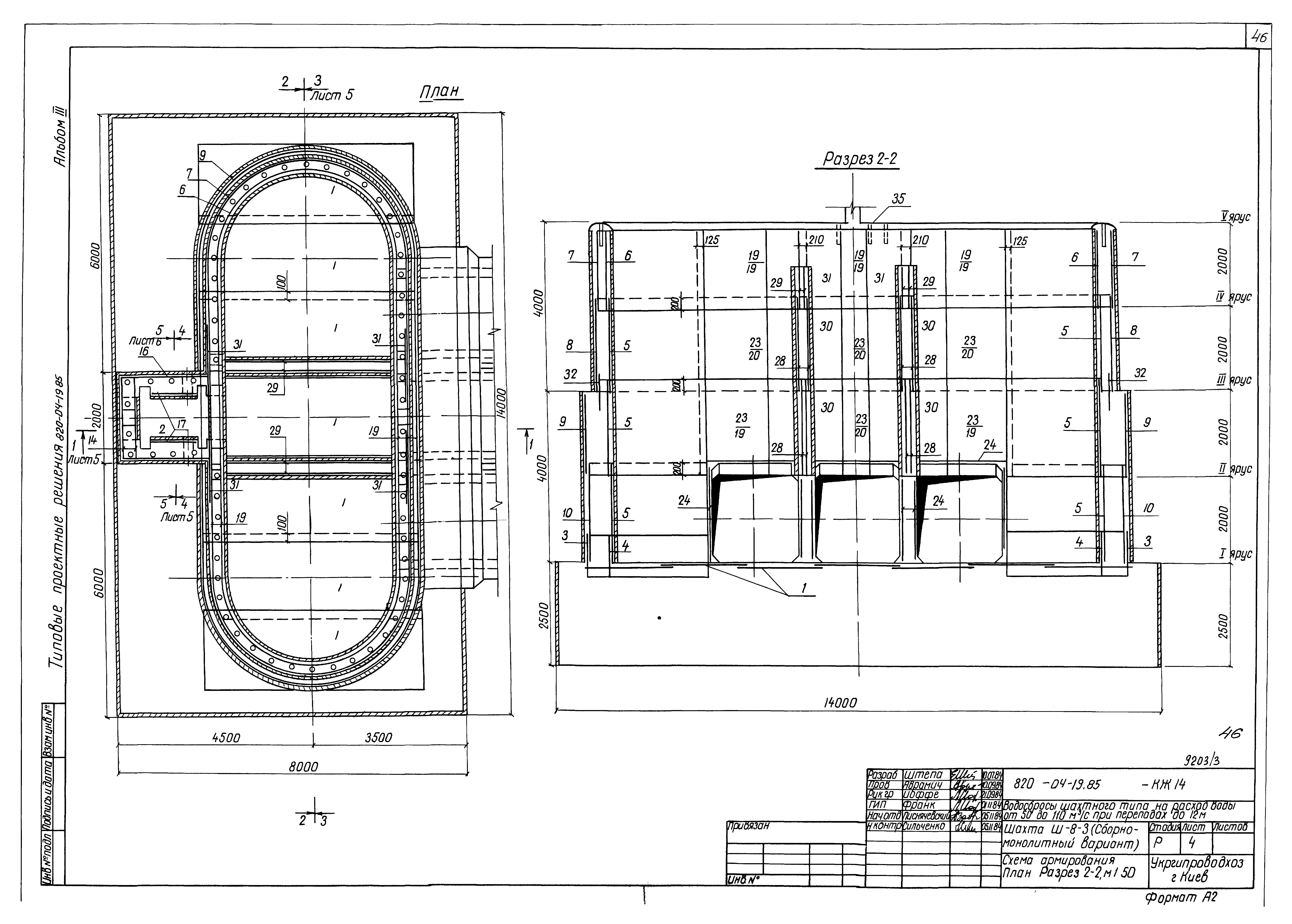
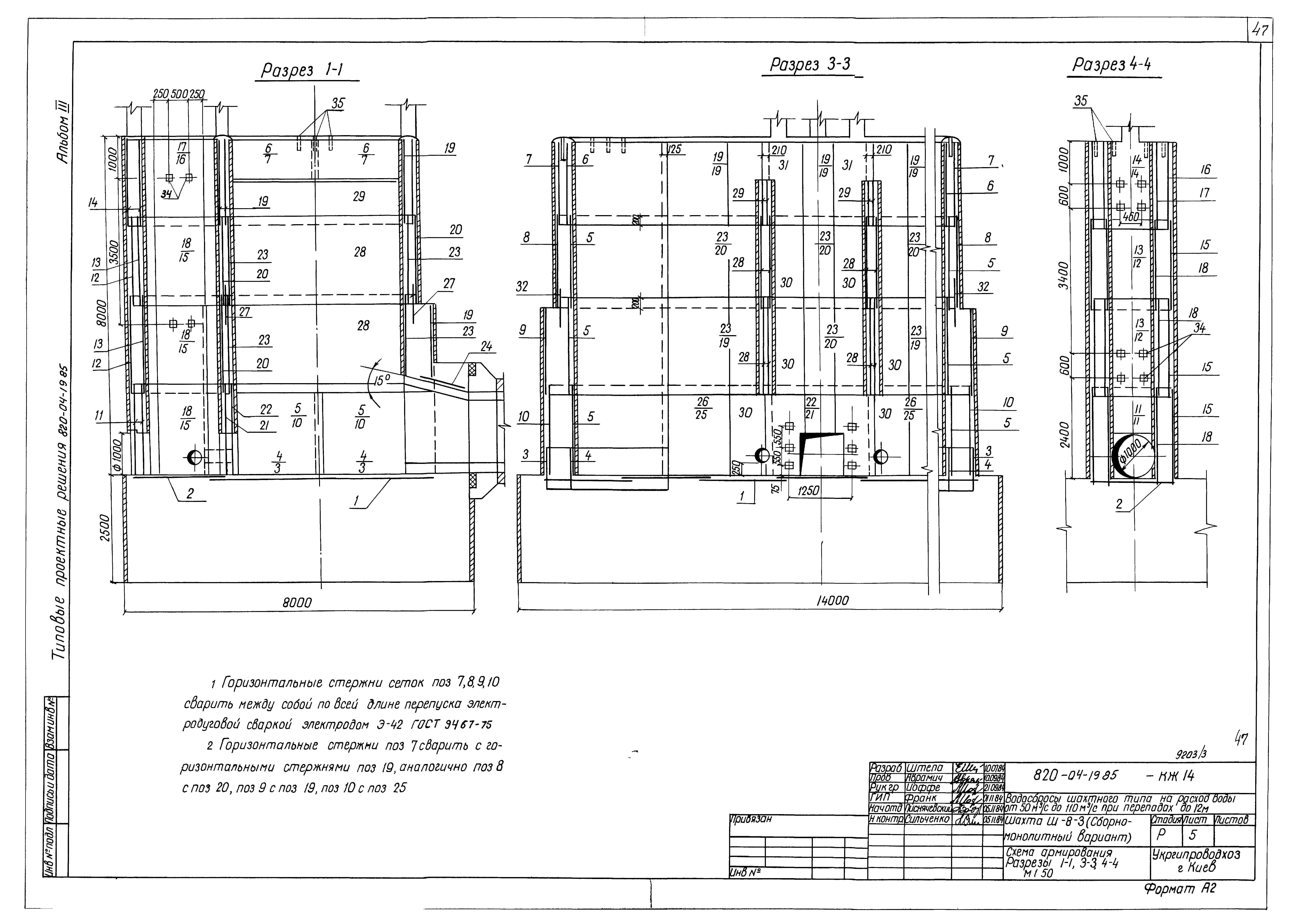
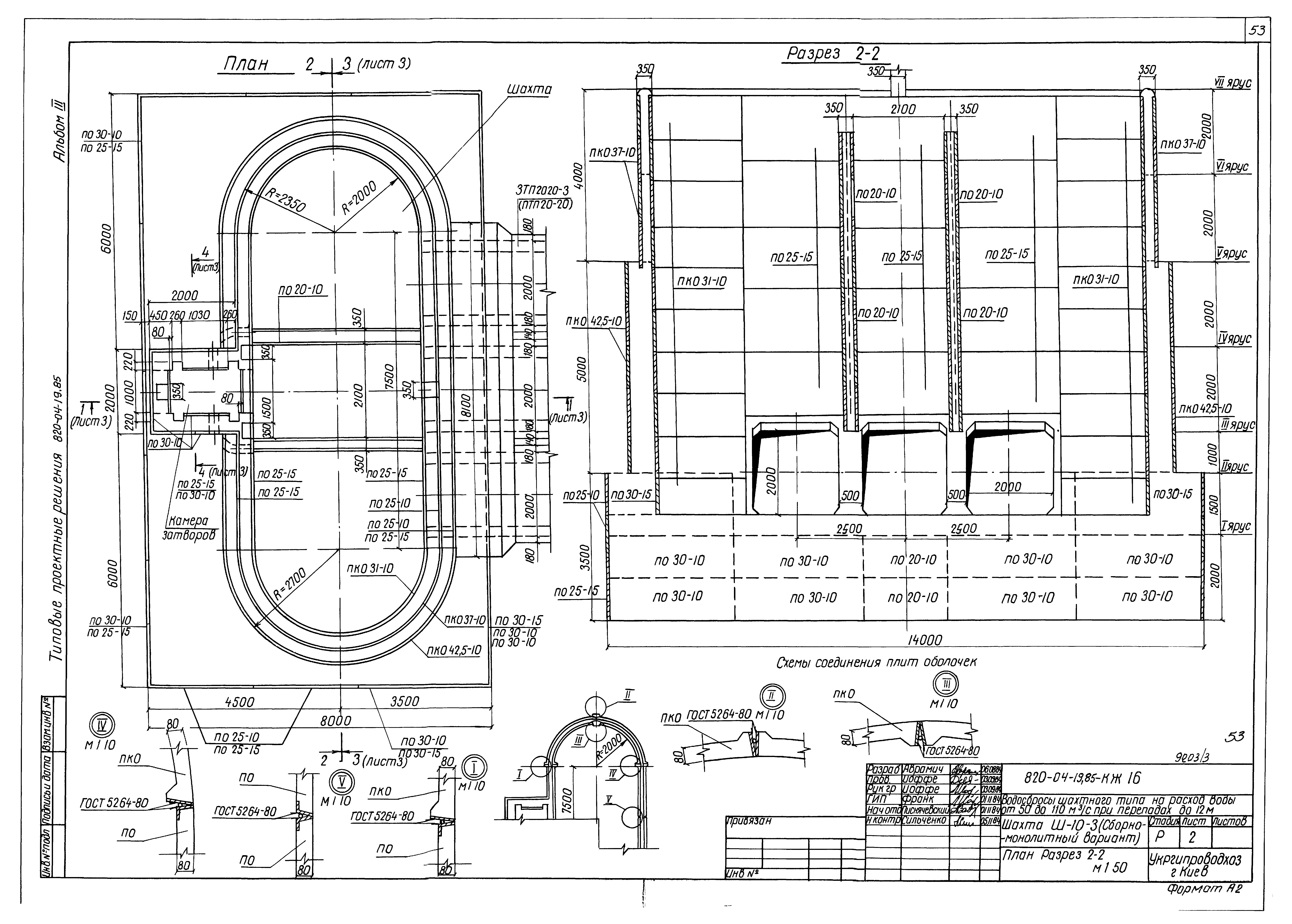
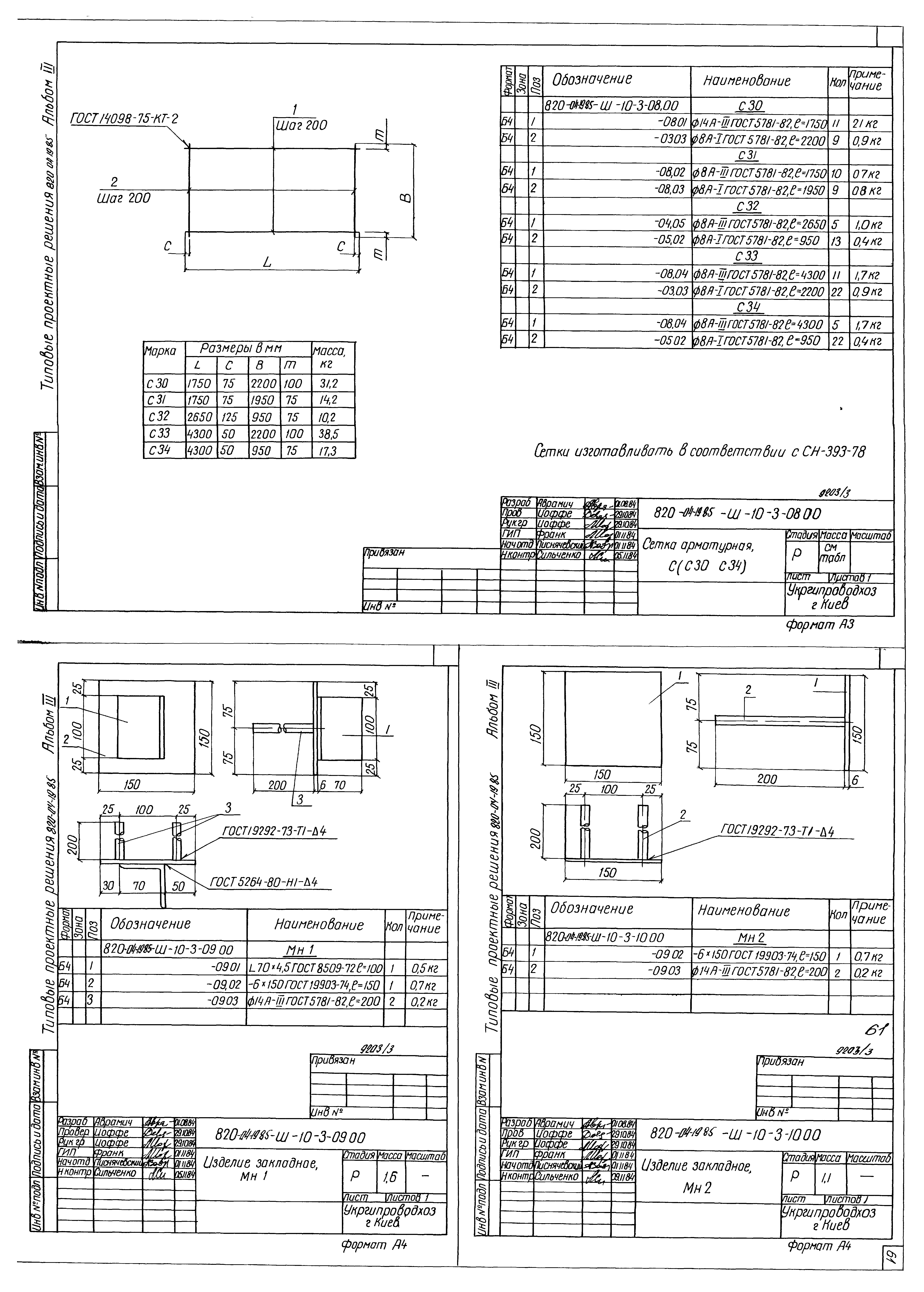
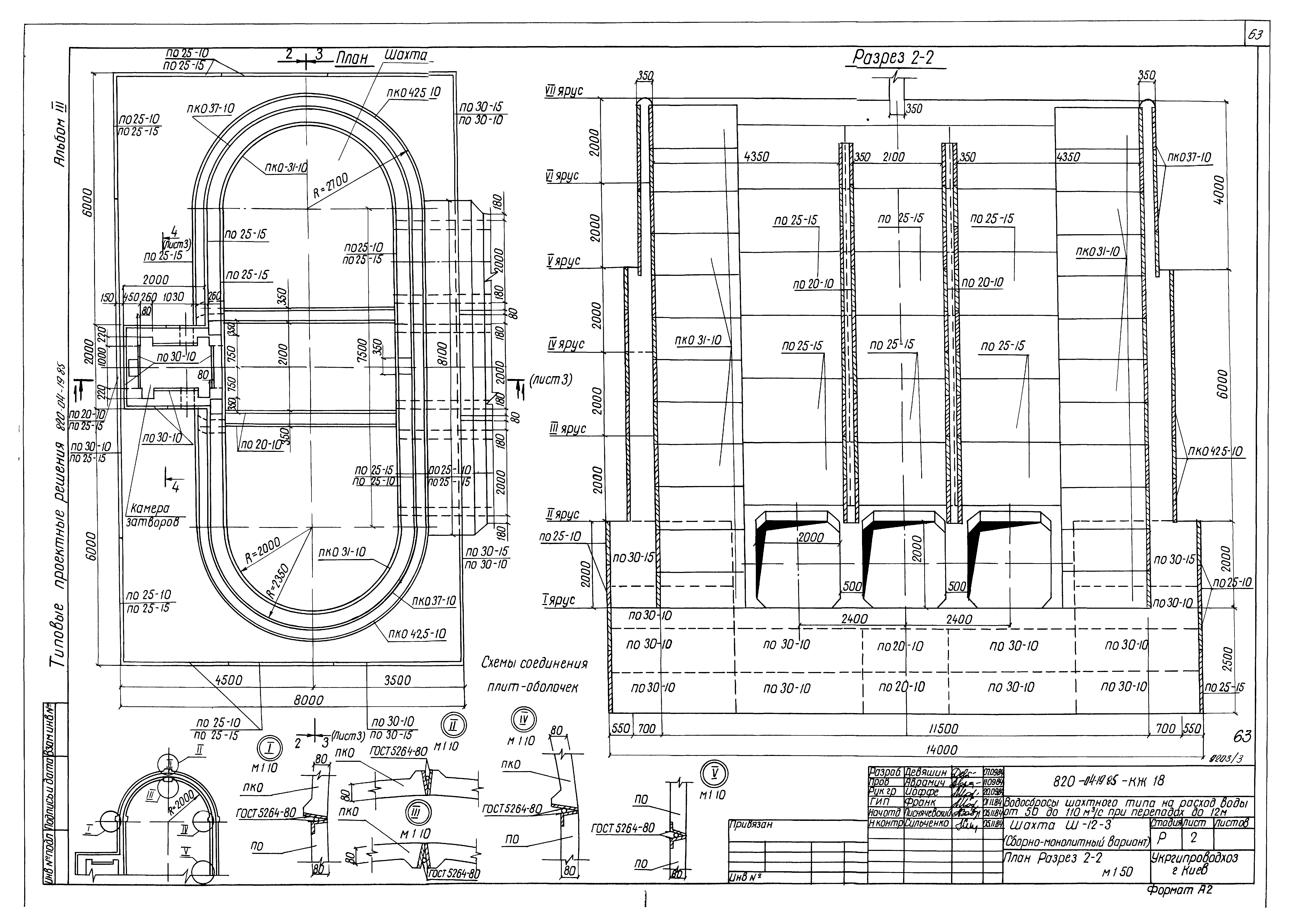
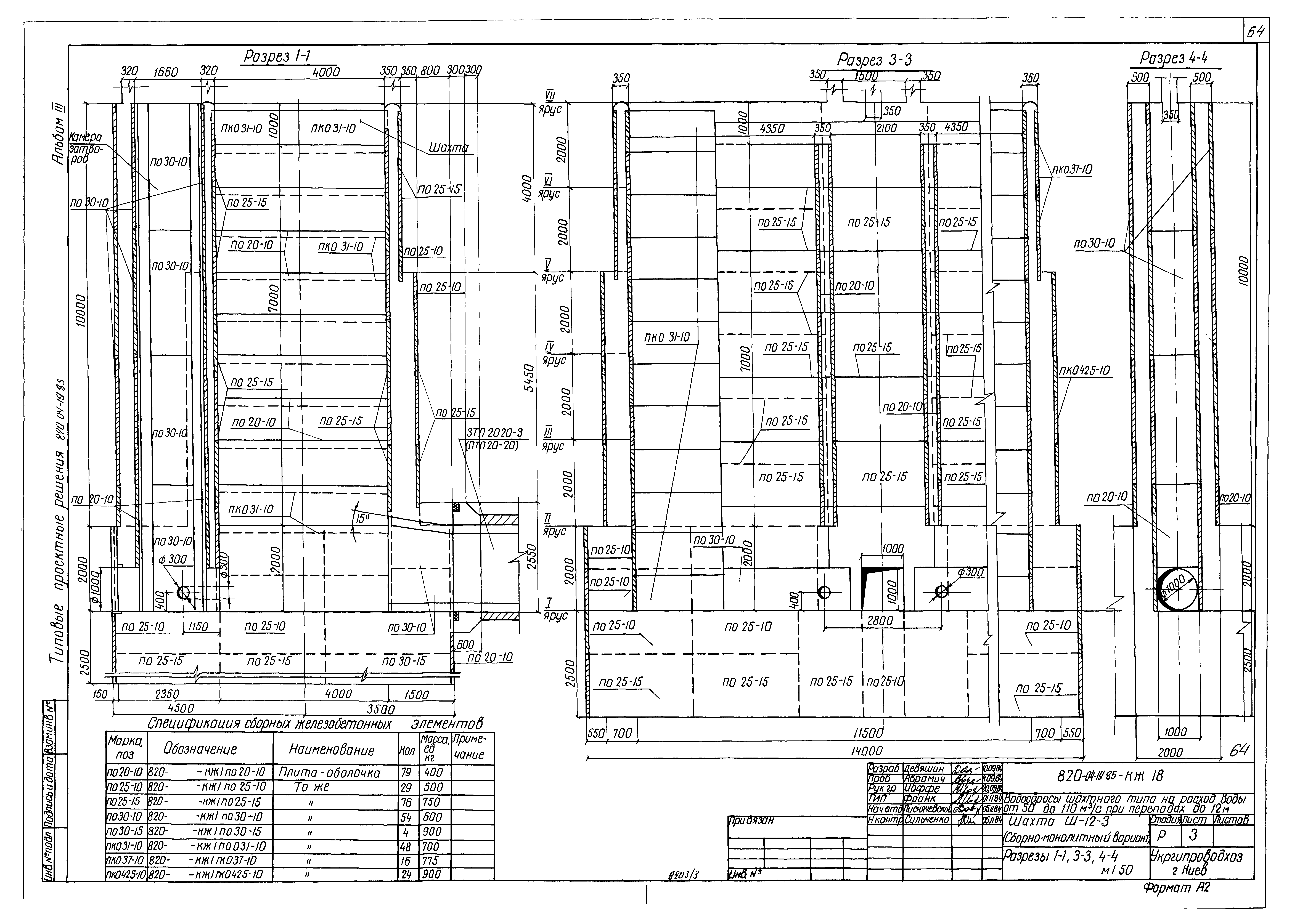
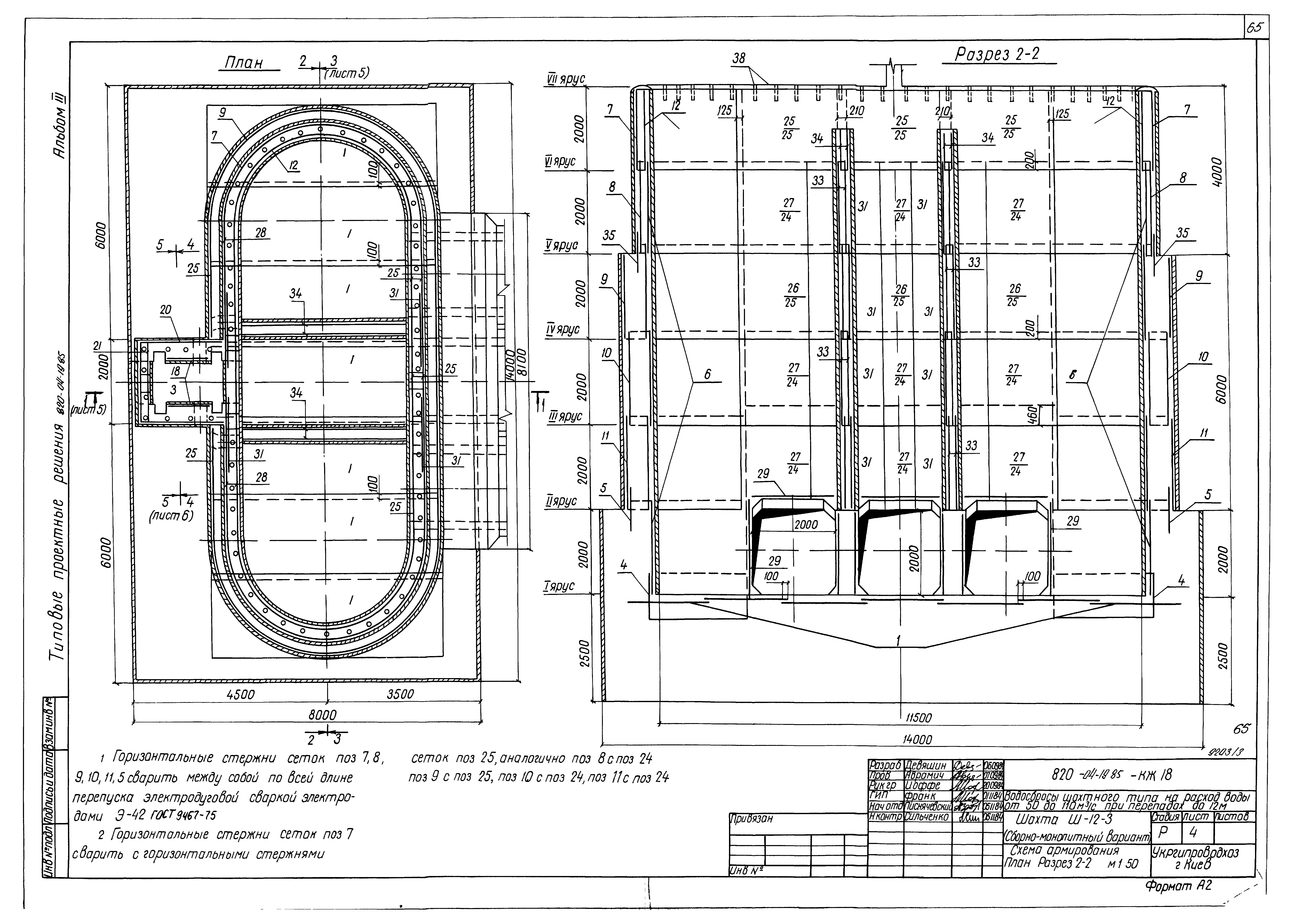
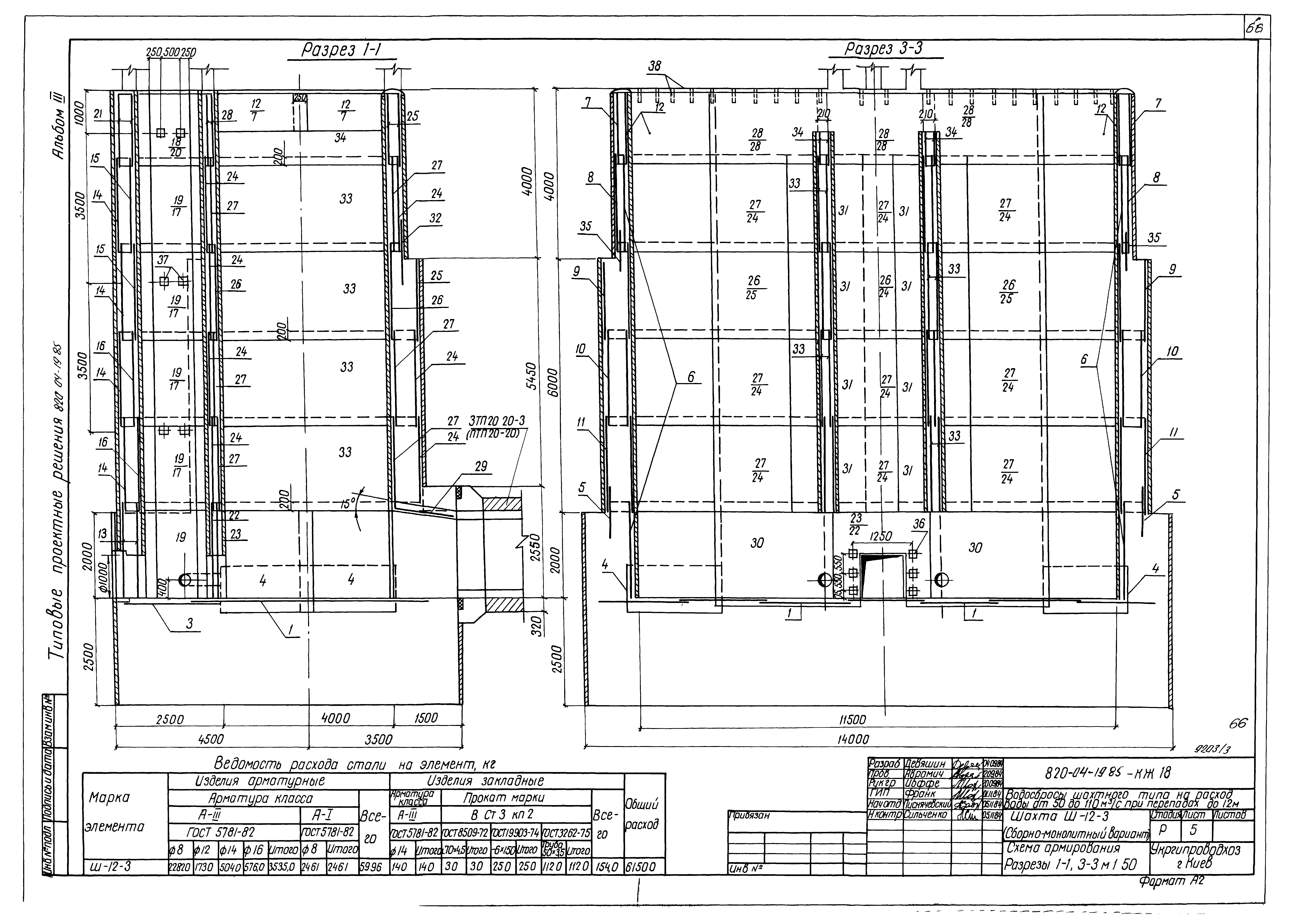
| Оглавление: | Шахта Ш-3-3 (сборно-монолитный вариант) Общие данные План. Разрезы 1-1 - 3-3 Схема армирования. План. Разрезы 1-1 - 5-5 Разрез 4-4 Спецификация к схеме армирования сборно-монолитной шахты Ш-3-3 Сетка арматурная С (С1, С2, С9, С10, С12, С13) Сетка арматурная С (С8, С11) Сетка арматурная С (С3 - С7) Изделие закладное МН1 Изделие закладное МН2 Шахта Ш-4-3 (сборно-монолитный вариант) Общие данные План. Разрезы 1-1, 4-4 Разрезы 2-2, 3-3 Схема армирования. План. Разрезы 1-1, 4-4, 5-5 Схема армирования. Разрезы 2-2, 3-3 Спецификация к схеме армирования сборно-монолитной шахты Ш-4-3 Сетка арматурная С (С1, С2, С9, С10) Сетка арматурная С (С11, С12, С13, С15) Сетка арматурная С (С8, С14) Сетка арматурная С16 Сетка арматурная С (С17 - С19) Сетка арматурная С20 Сетка арматурная С (С3 - С6) Сетка арматурная С7 Изделие закладное МН1 Изделие закладное МН2 Шахта Ш-5-3 (сборно-монолитный вариант) Общие данные План. Разрезы 1-1, 4-4 Разрезы 2-2, 3-3 Схема армирования. План. Разрезы 1-1, 4-4 Схема армирования. Разрезы 2-2, 3-3, 5-5 Спецификация к схеме армирования сборно-монолитной шахты Ш-5-3 Сетка арматурная С (С1, С2, С11, С13 - С17) Сетка арматурная С (С18, С20 - С25) Сетка арматурная С (С10, С12, С19) Сетка арматурная С (С3 - С9) Изделие закладное МН1 Изделие закладное МН2 Шахта Ш-6-3 (сборно-монолитный вариант) Общие данные План. Разрезы 2-2, 4-4 Разрезы 1-1, 3-3 Схема армирования. План. Разрез 2-2 Разрезы 1-1, 3-3, 5-5 Спецификация к схеме армирования сборно-монолитной шахты Ш-6-3 Сетка арматурная С (С1, С2, С13, С14) Сетка арматурная С (С15 - С18) Сетка арматурная С (С19 - С22) Сетка арматурная С (С10 - С12) Сетка арматурная С (С3 - С9, С30) Сетка арматурная С (С23 - С29) Изделие закладное МН1 Изделие закладное МН2 Шахта Ш-7-3 (сборно-монолитный вариант) Общие данные План. Разрез 2-2 Разрезы 1-1, 3-3, 4-4 Схема армирования. План. Разрез 2-2 Схема армирования. Разрезы 1-1, 3-3, 4-4, 5-5 Спецификация к схеме армирования сборно-монолитной шахты Ш-7-3 Сетка арматурная С1 Сетка арматурная С2 Сетка арматурная С (С3 - С10) Сетка арматурная С (С11, С19, С20) Сетка арматурная С (С12 - С17) Сетка арматурная С (С18, С21 - С26) Сетка арматурная С (С27 - С30) Изделие закладное МН1 Изделие закладное МН2 Шахта Ш-8-3 (сборно-монолитный вариант) Общие данные План. Разрез 2-2 Разрезы 1-1, 3-3, 4-4 Схема армирования. План. Разрез 2-2 Схема армирования. Разрезы 1-1, 3-3, 4-4 Схема армирования. Разрез 5-5 Спецификация к схеме армирования сборно-монолитной шахты Ш-8-3 Сетка арматурная С (С1, С2, С14, С16 - С19) Сетка арматурная С (С25, С27 - С31) Сетка арматурная С (С12, С13, С15, С20, С23, С24, С26) Сетка арматурная С (С11, С21, С22) Сетка арматурная С (С - С10, С32) Изделие закладное МН1 Изделие закладное МН2 Шахта Ш-10-3 (сборно-монолитный вариант) Общие данные План. Разрез 2-2 Разрезы 1-1, 3-3, 4-4 Схема армирования. План. Разрез 2-2 Схема армирования. Разрезы 1-1, 3-3 Схема армирования. Разрезы 4-4, 5-5 Сетка арматурная С1 Сетка арматурная С3 Сетка арматурная С (С4 - С11) Сетка арматурная С (С12, С20, С21) Сетка арматурная С (С13 - С17) Сетка арматурная С (С18, С19, С22 - С24) Сетка арматурная С (С25 - С29) Сетка арматурная С (С30 - С34) Изделие закладное МН1 Изделие закладное МН2 Шахта Ш-12-3 (сборно-монолитный вариант) Общие данные План. Разрез 2-2 Разрезы 1-1, 3-3, 4-4 Схема армирования. План. Разрез 2-2 Схема армирования. Разрезы 1-1, 3-3 Схема армирования. Разрезы 4-4, 5-5 Сетка арматурная С (С1, С3, С14 - С19) Сетка арматурная С (С4 - С12, С35) Сетка арматурная С (С13, С22, С23) Сетка арматурная С (С20, С21, С24 - С29) Сетка арматурная С (С30 - С34) Изделие закладное МН1 Изделие закладное МН2 |
| Разработан: | Укргипроводхоз Минводхоза СССР |
| Утверждён: | 29.04.1985 Минводхоз СССР (USSR Minvodkhoz 434) |






































































