Скачать Типовой проект 902-5-56.88 Альбом 3. Силовое электрооборудование. Технологический контрольДата актуализации: 01.01.2021
|
| Обозначение: | Типовой проект 902-5-56.88 |
| Обозначение англ: | 902-5-56.88 |
| Статус: | не определен законодательством |
| Название рус.: | Альбом 3. Силовое электрооборудование. Технологический контроль |
| Дата добавления в базу: | 01.10.2014 |
| Дата актуализации: | 01.01.2021 |
| Дата введения: | 26.10.1988 |
| Дата окончания срока действия: | 30.06.2003 |
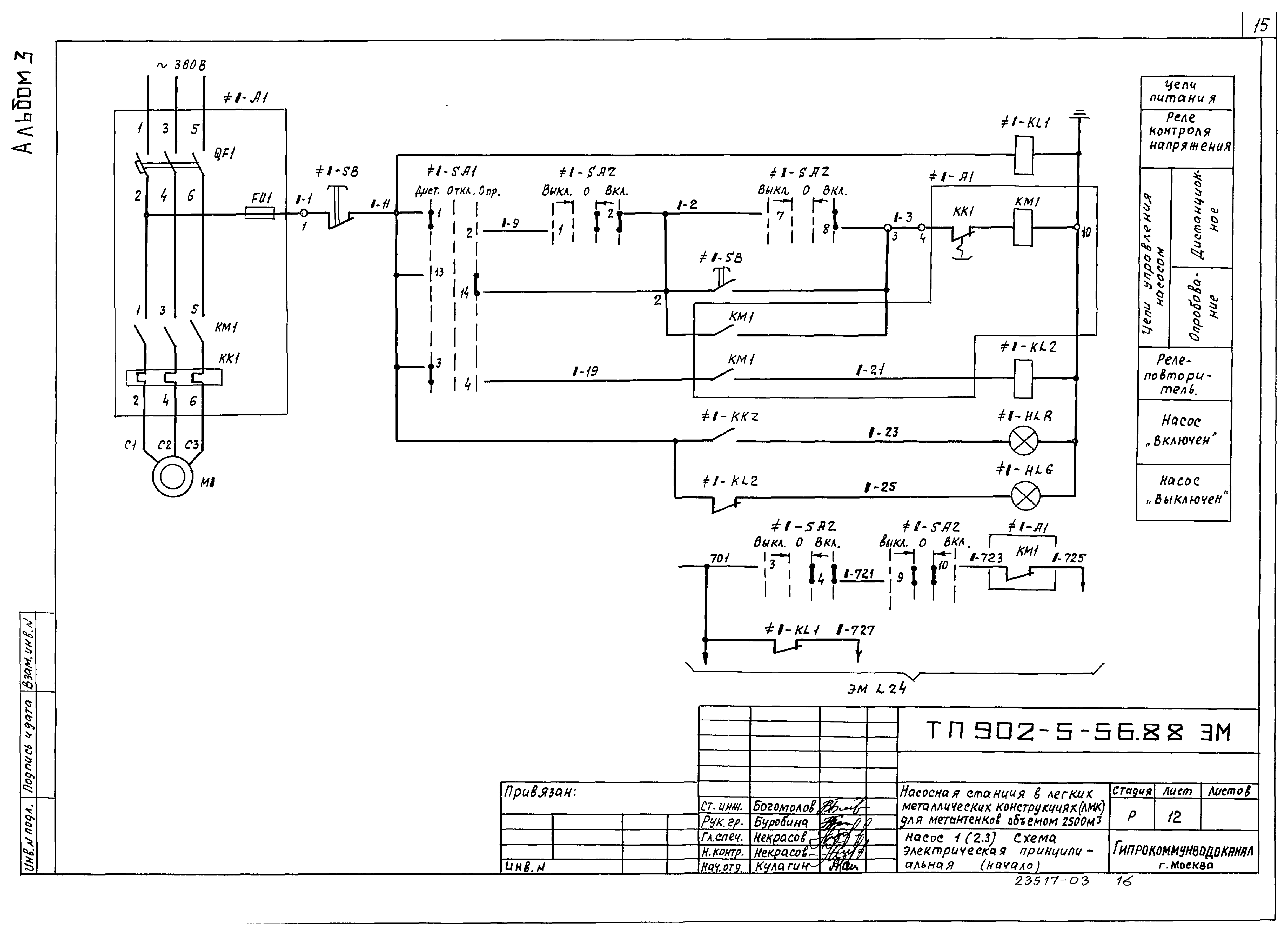
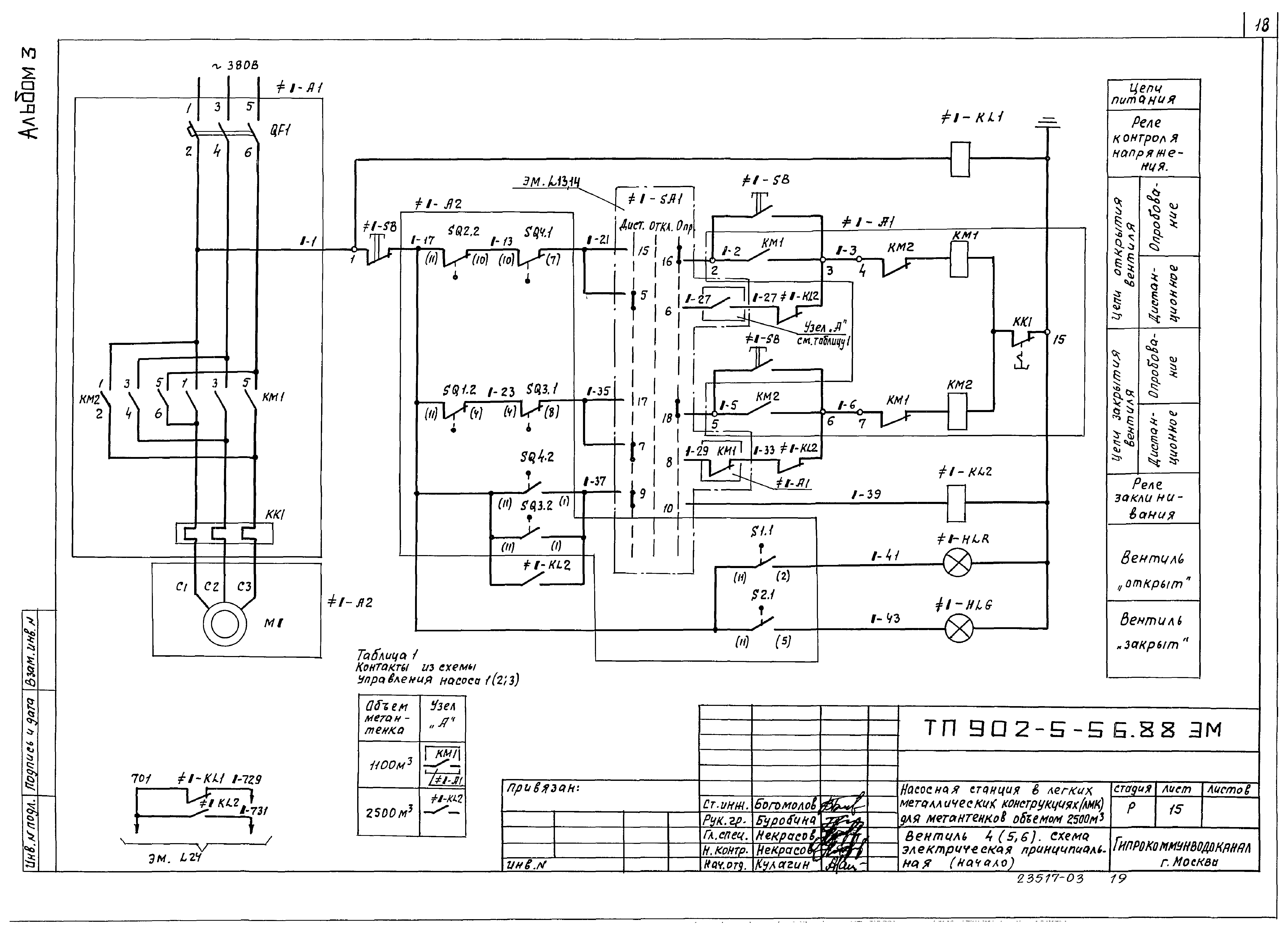
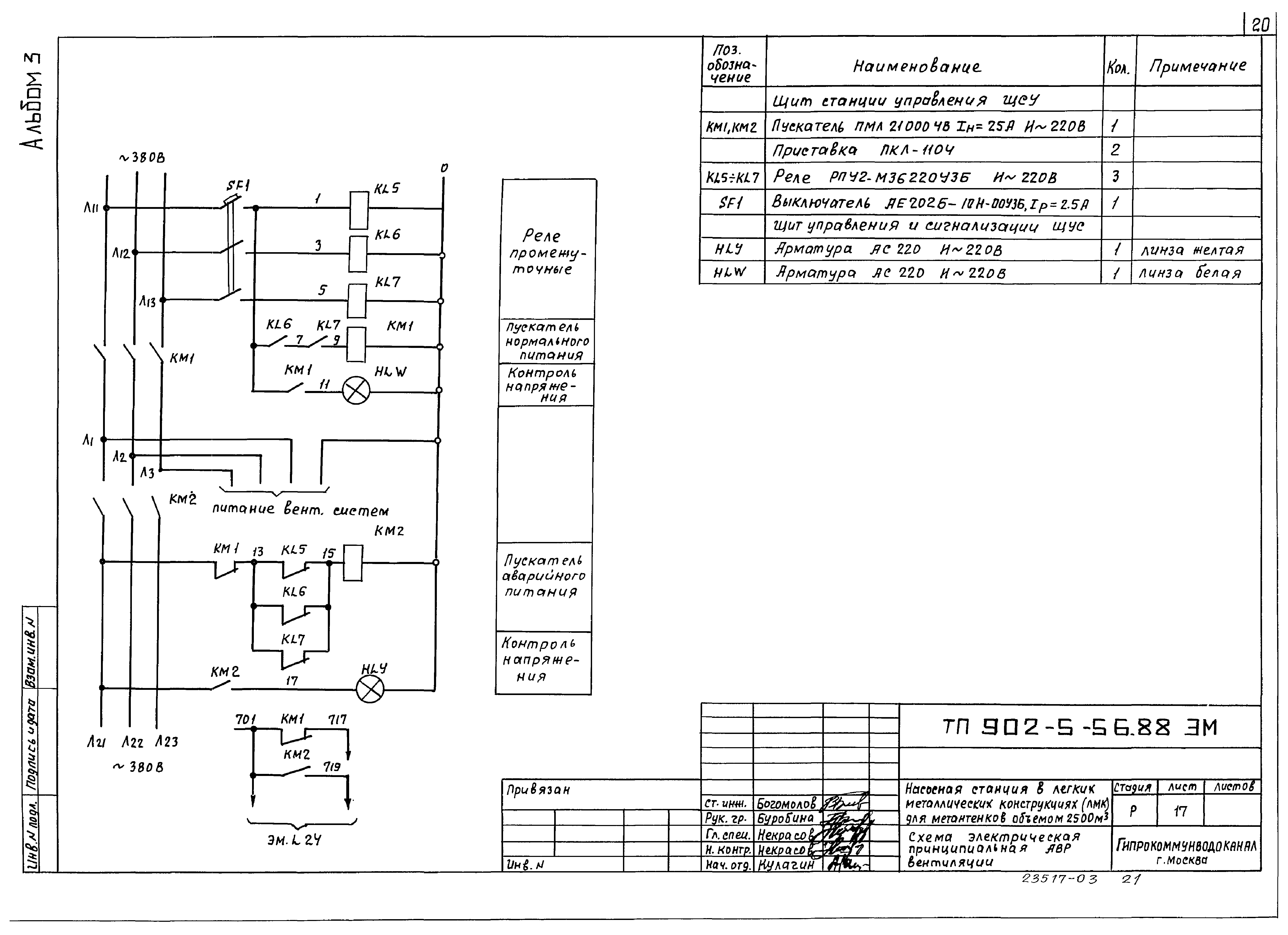
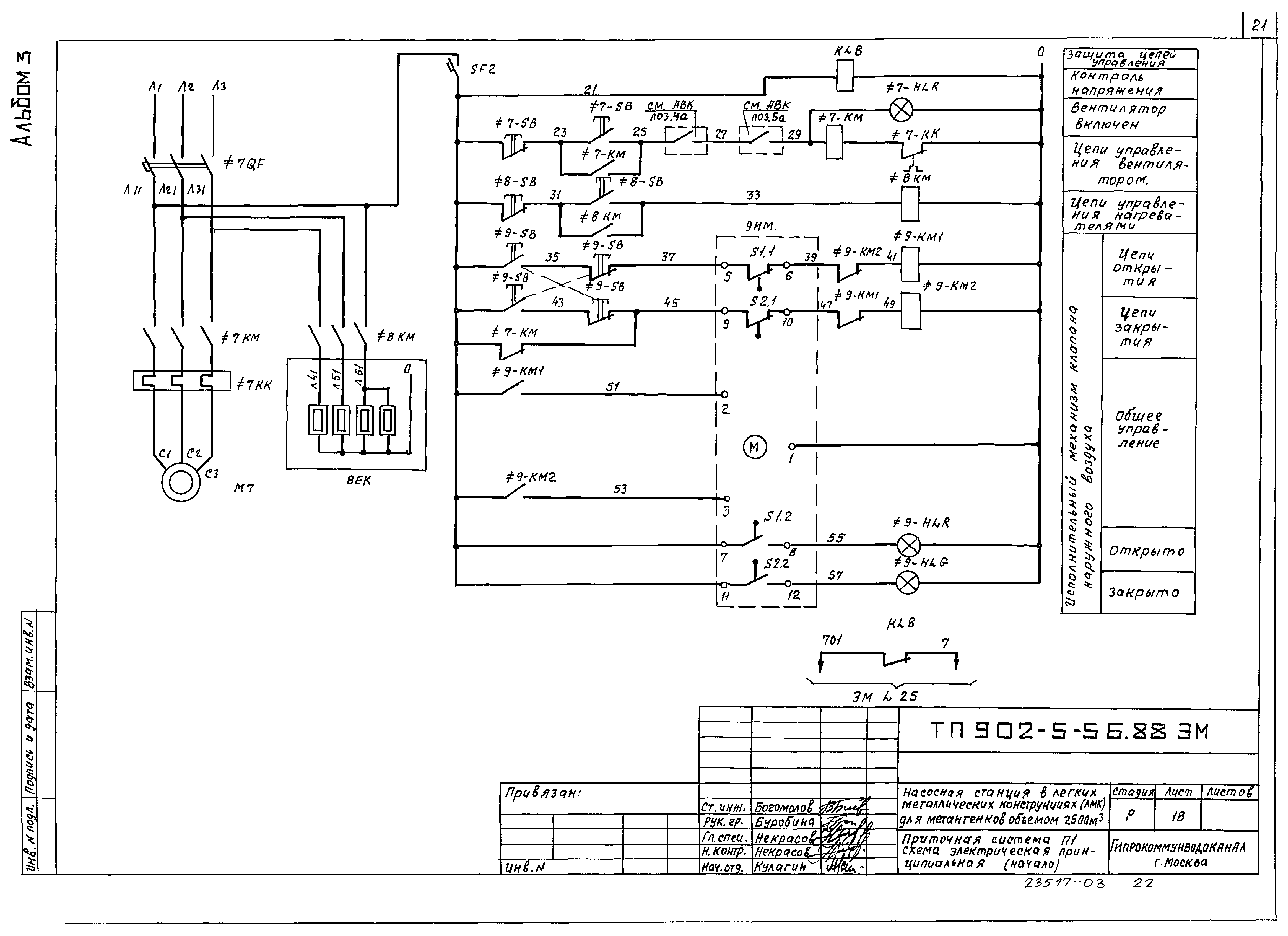
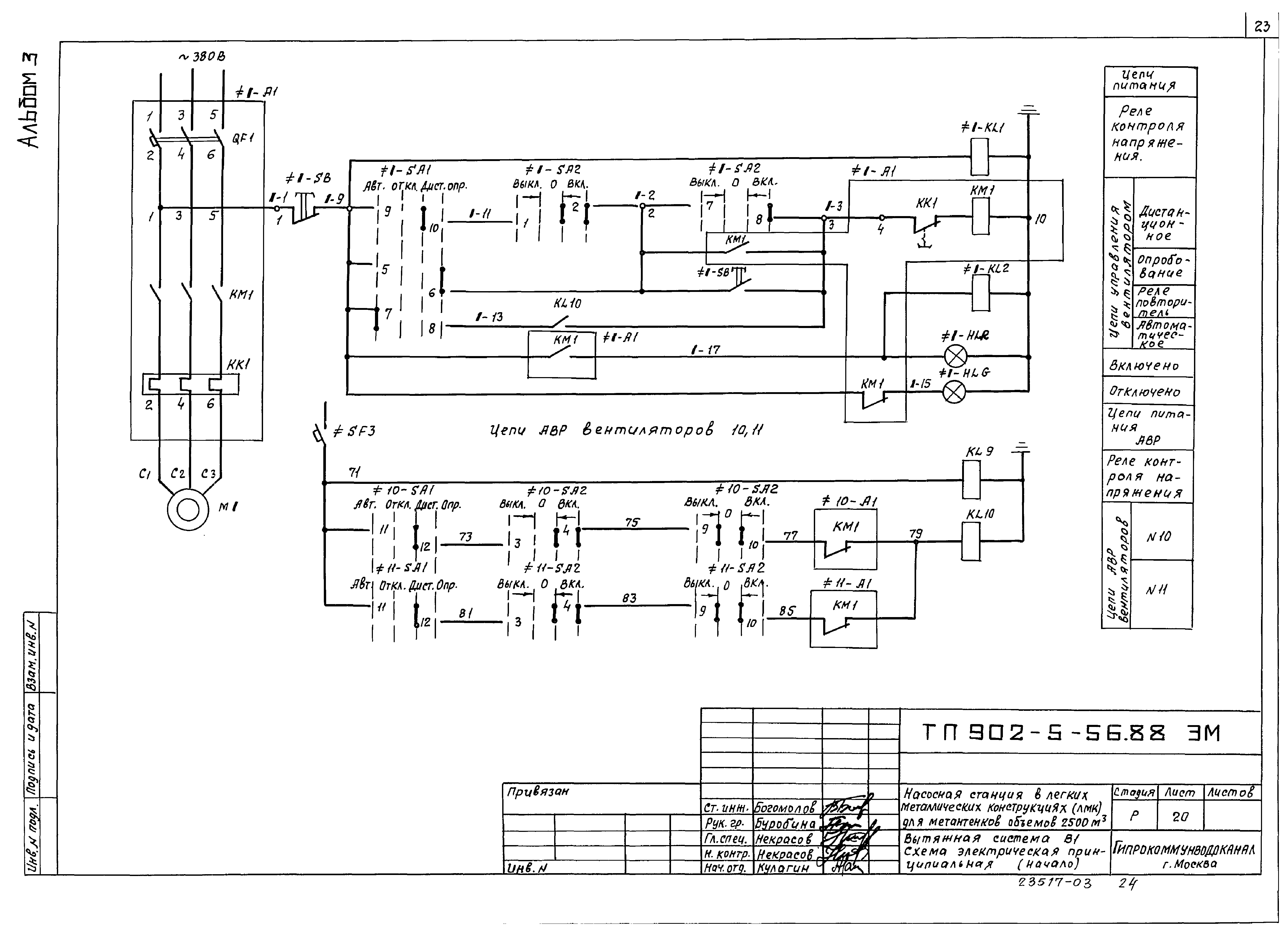
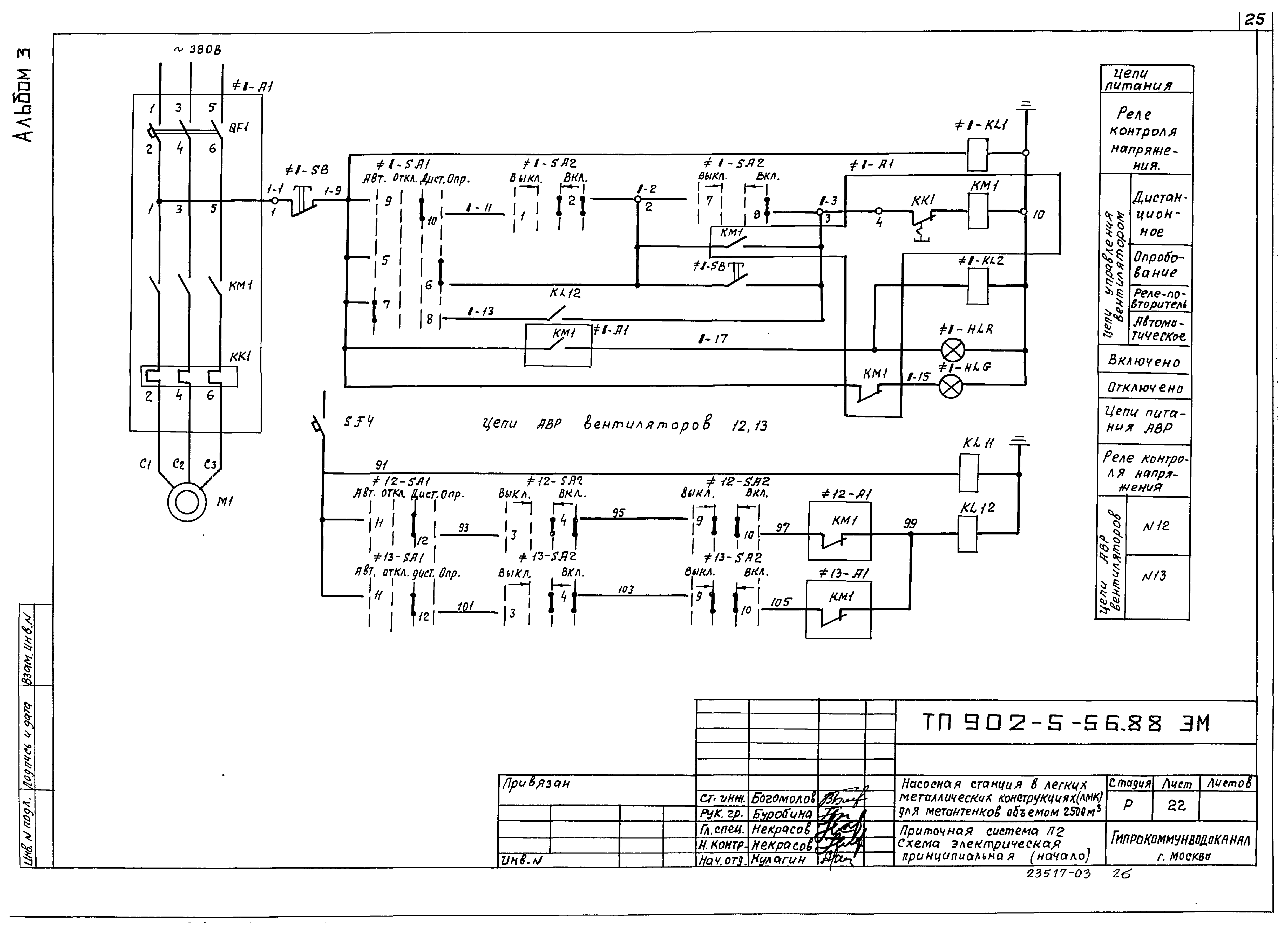
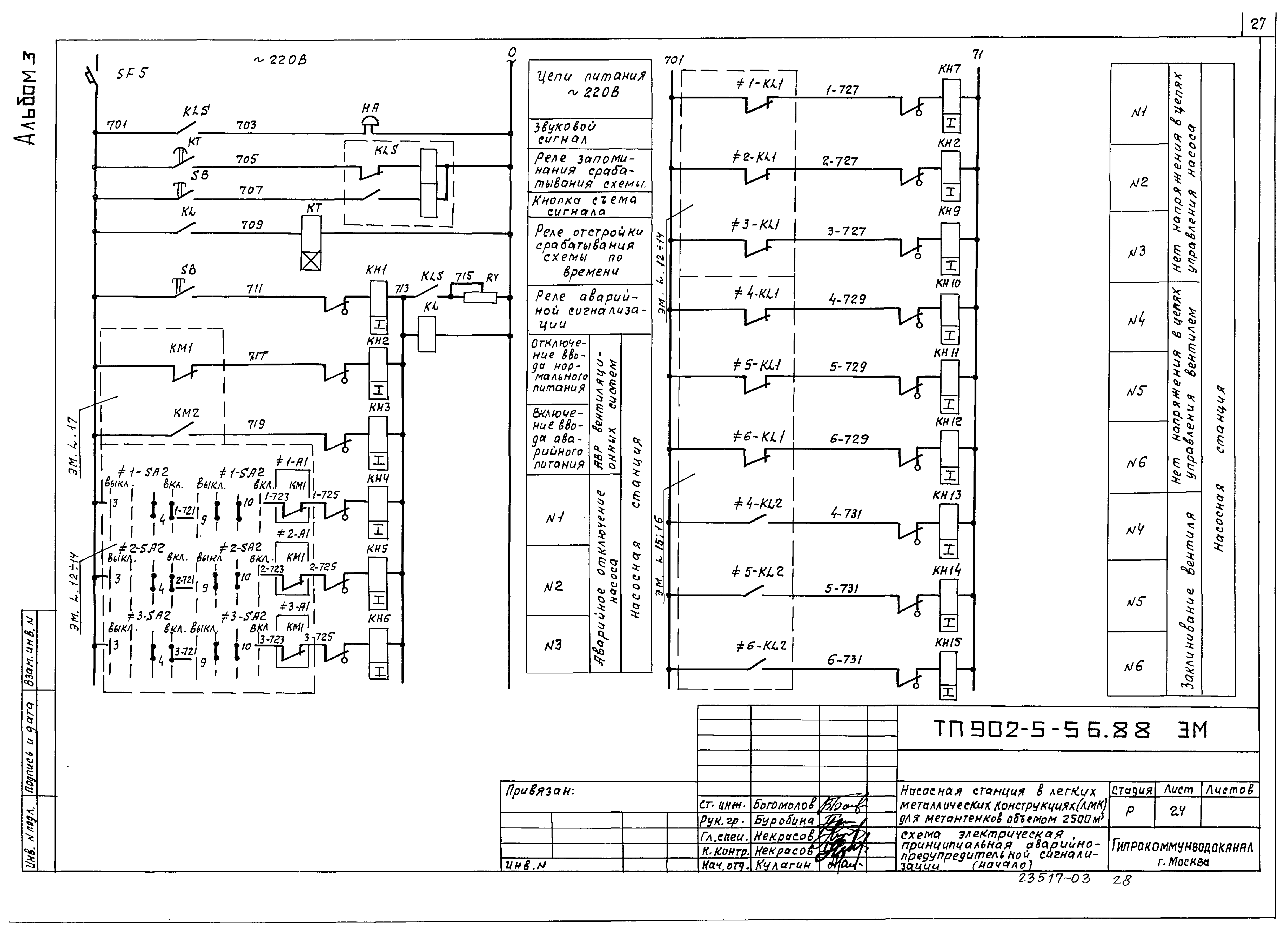
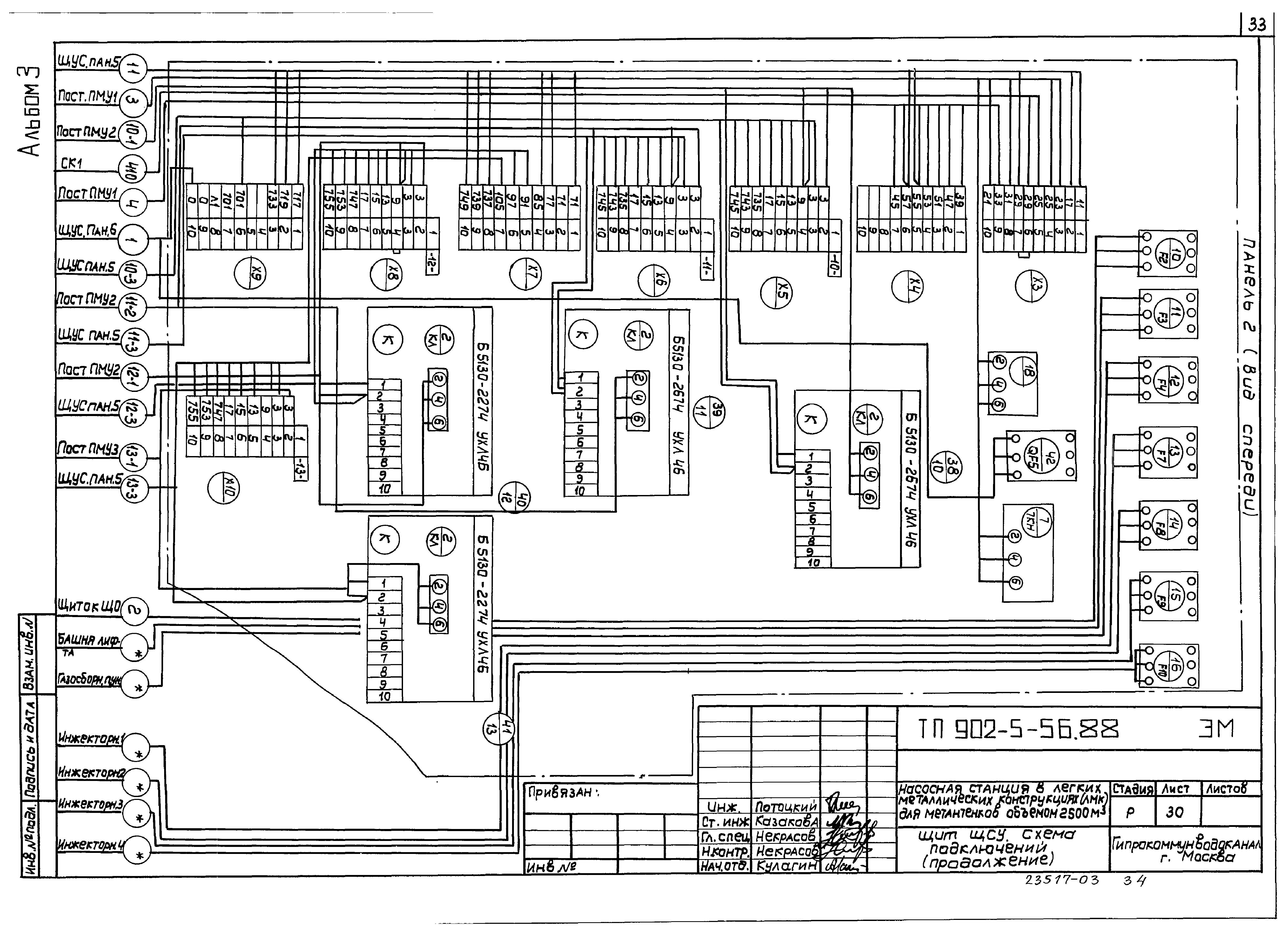
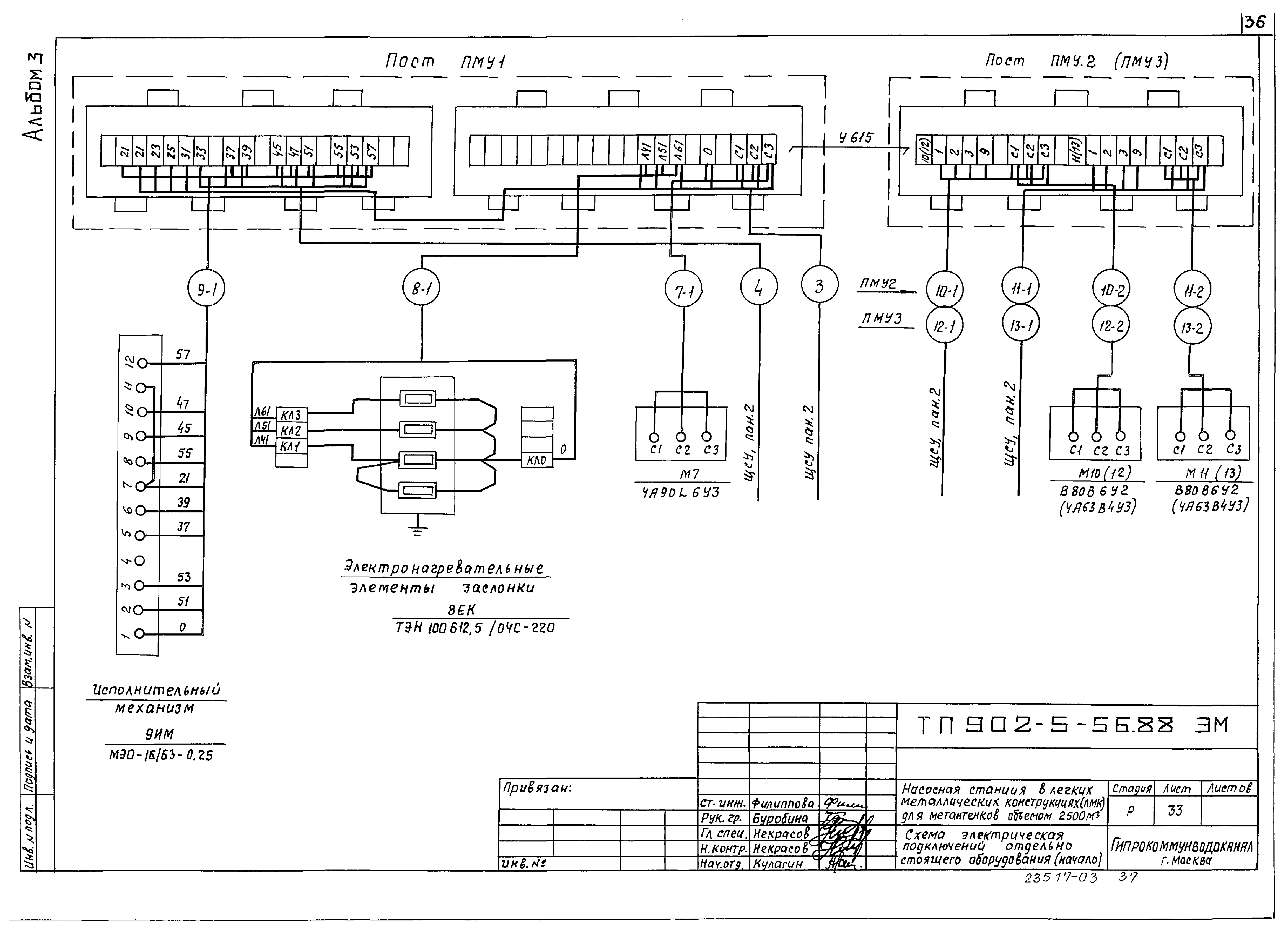
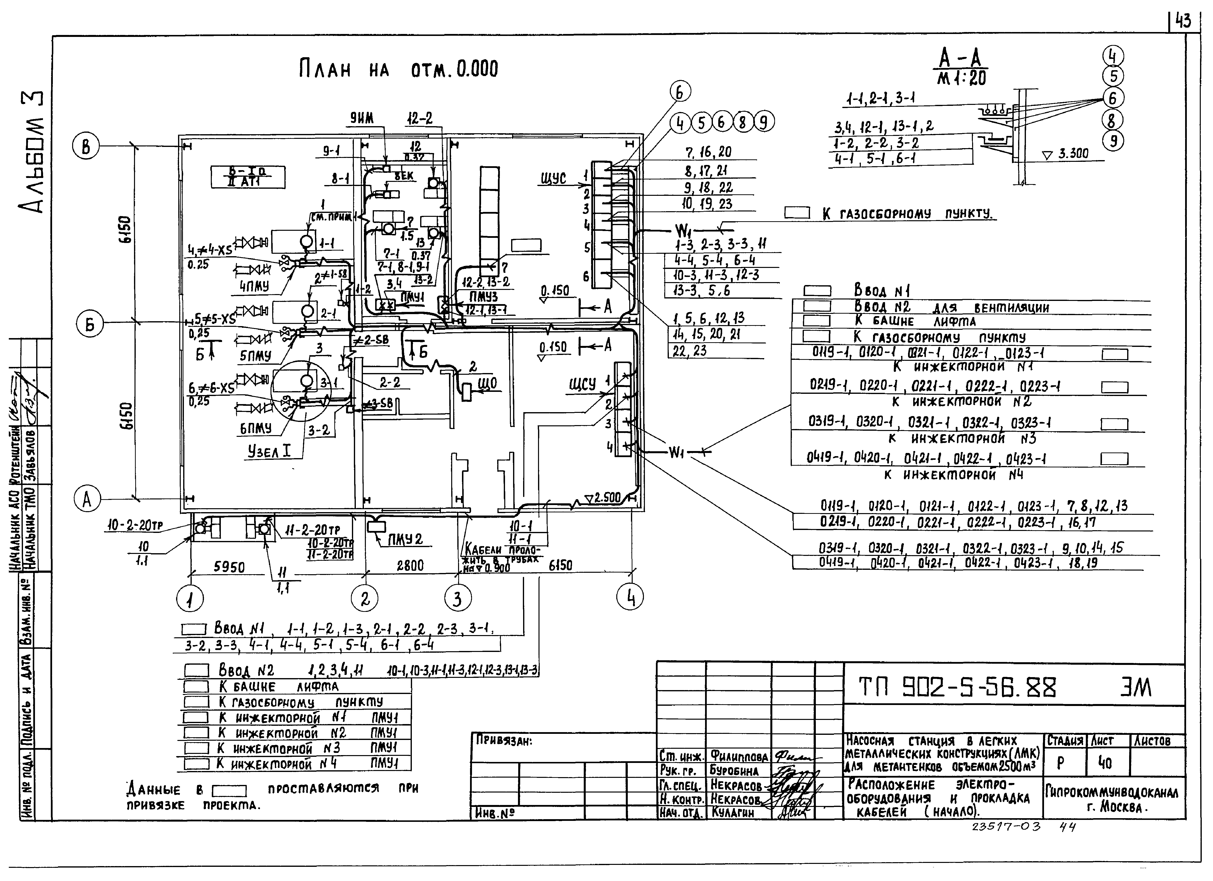
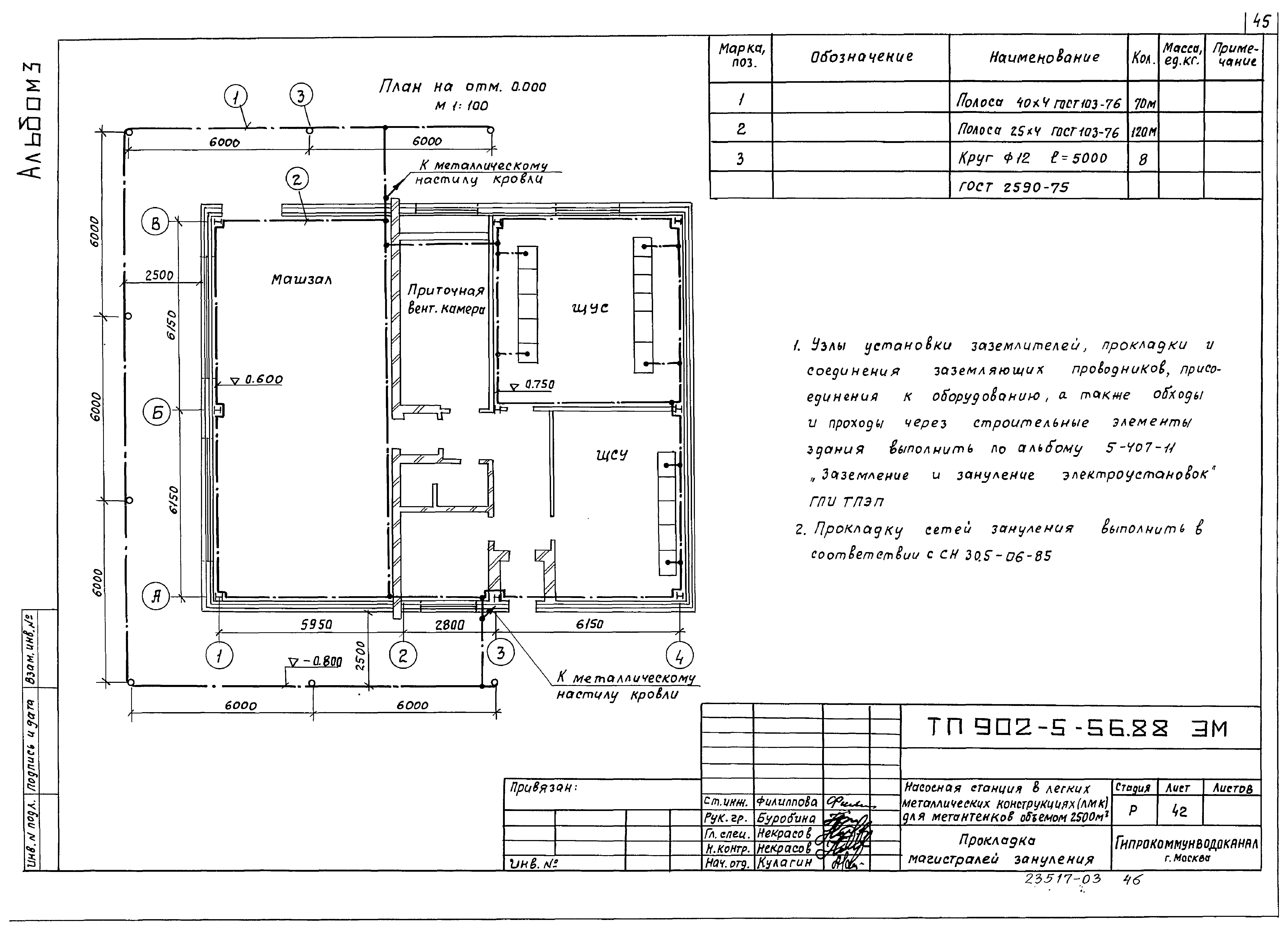
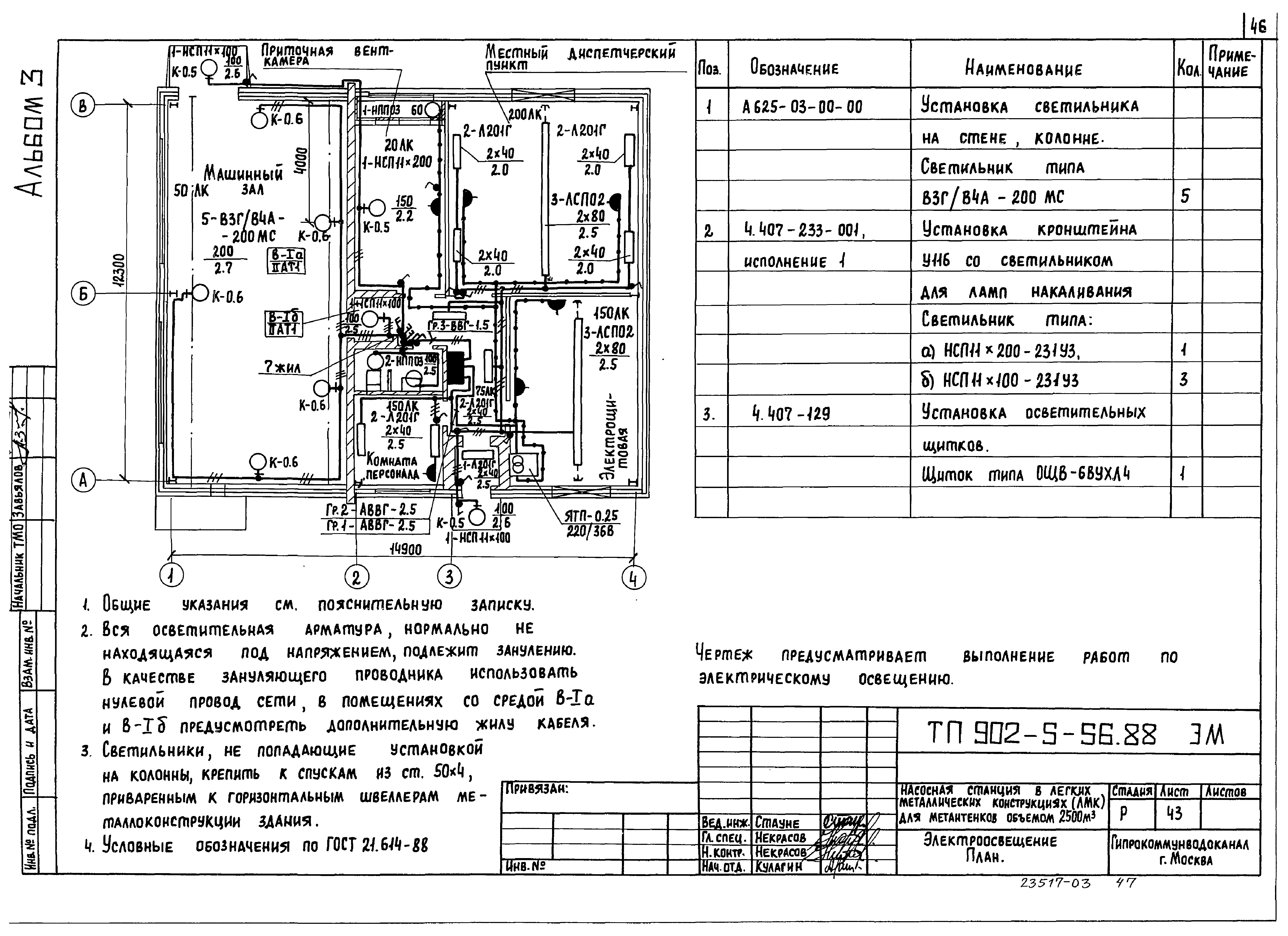
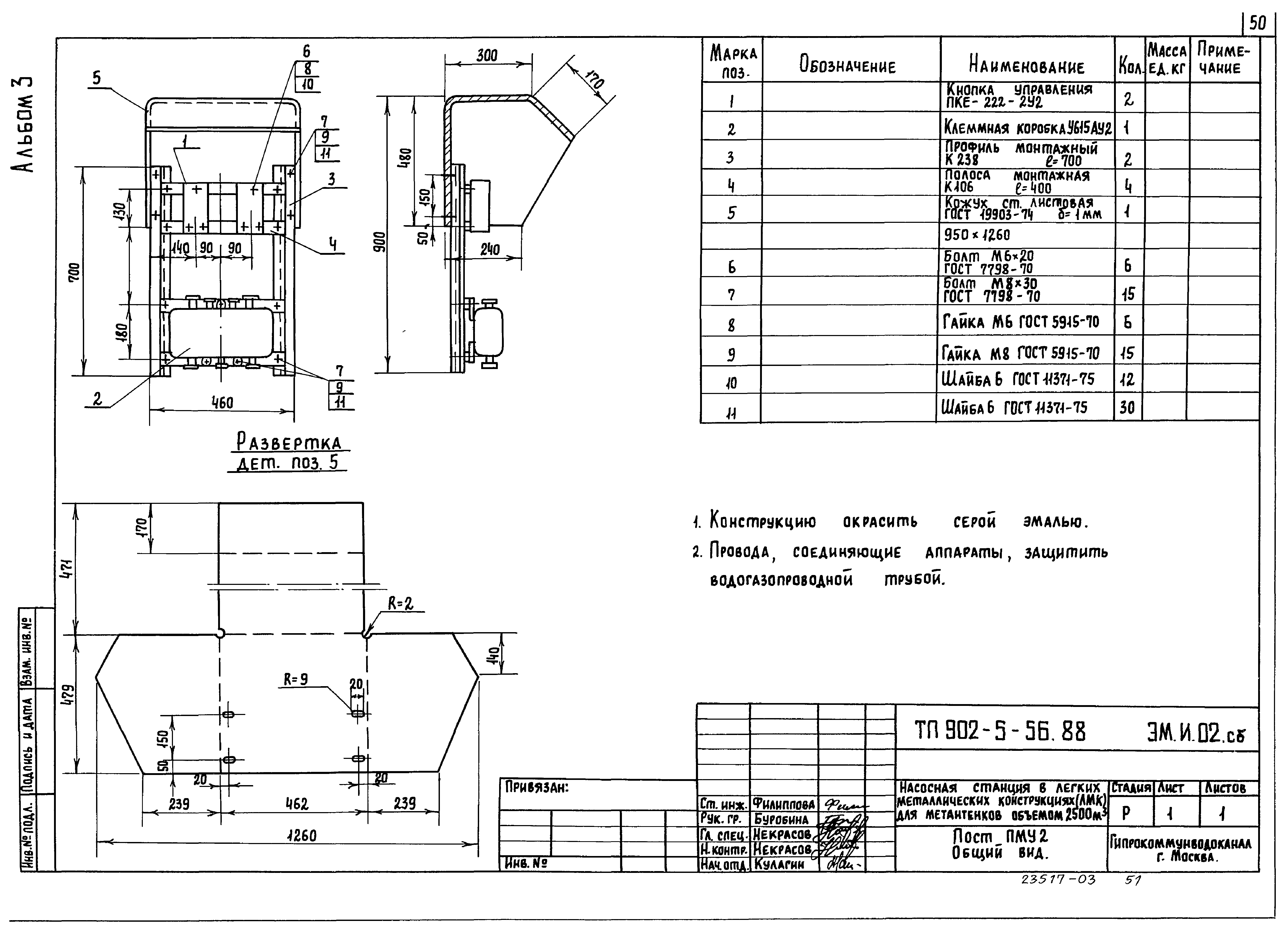
| Оглавление: | Содержание Чертежи основного комплекта марки ЭМ Общие данные Схема электрическая принципиальная однолинейная 380/220 В Насос 1(2, 3). Схема электрическая принципиальная Насос 1(2, 3). Схема электрическая принципиальная (вариант для объема 1100 куб. м) Насос 1(2, 3). Схема электрическая принципиальная (вариант для объема 2500 куб. м) Вентиль 4(5, 6). Схема электрическая принципиальная Схема электрическая принципиальная АВР вентиляции Приточная система П1. Схема электрическая принципиальная Вытяжная система В1. Схема электрическая принципиальная Приточная система П2. Схема электрическая принципиальная Схема электрическая принципиальная аварийно-предупредительной сигнализации Щит ЩСУ. Схема подключений Схема электрическая подключений отдельно стоящего оборудования Кабельный журнал. Потребность кабелей и проводов Расположение электрооборудования и прокладка кабелей Прокладка магистралей зануления Электроосвещение. План Прилагаемые документы основного комплекта марки ЭМ Щит ЩСУ. Эскиз общего вида Пост ПМУ1. Общий вид Пост ПМУ1. Схема соединений Пост ПМУ2. Общий вид Пост ПМУ2. Схема соединений Пост ПМУ3. Общий вид Пост ПМУ3. Схема соединений Пост ПМУ (5ПМУ, 6ПМУ). Общий вид Пост ПМУ (5ПМУ, 6ПМУ). Схема соединений Ведомость электромонтажных конструкций и деталей, подлежащих изготовлению в МЭЗ; ведомость изделий и материалов для изготовления электромонтажных конструкций и деталей в МЭЗ Чертежи основного комплекта марки АТХ Общие данные Схема автоматизации Схема электрическая принципиальная питания приборов Схема внешних электрических и трубных проводок План расположения средств автоматизации и проводов Щит ЩУС. Схема подключения |
| Разработан: | Гипрокоммунводоканал Минжилкомхоза РСФСР |
| Утверждён: | 26.10.1988 МЖКХ РСФСР (275) |





































































