Скачать Типовой проект 902-5-55.88 Альбом 2. Архитектурные решения. Конструкции железобетонные. Конструкции металлические (из ТП 902-5-56.88)Дата актуализации: 01.01.2021
|
| Обозначение: | Типовой проект 902-5-55.88 |
| Обозначение англ: | 902-5-55.88 |
| Статус: | не определен законодательством |
| Название рус.: | Альбом 2. Архитектурные решения. Конструкции железобетонные. Конструкции металлические (из ТП 902-5-56.88) |
| Дата добавления в базу: | 01.10.2014 |
| Дата актуализации: | 01.01.2021 |
| Дата введения: | 26.10.1988 |
| Дата окончания срока действия: | 30.06.2003 |
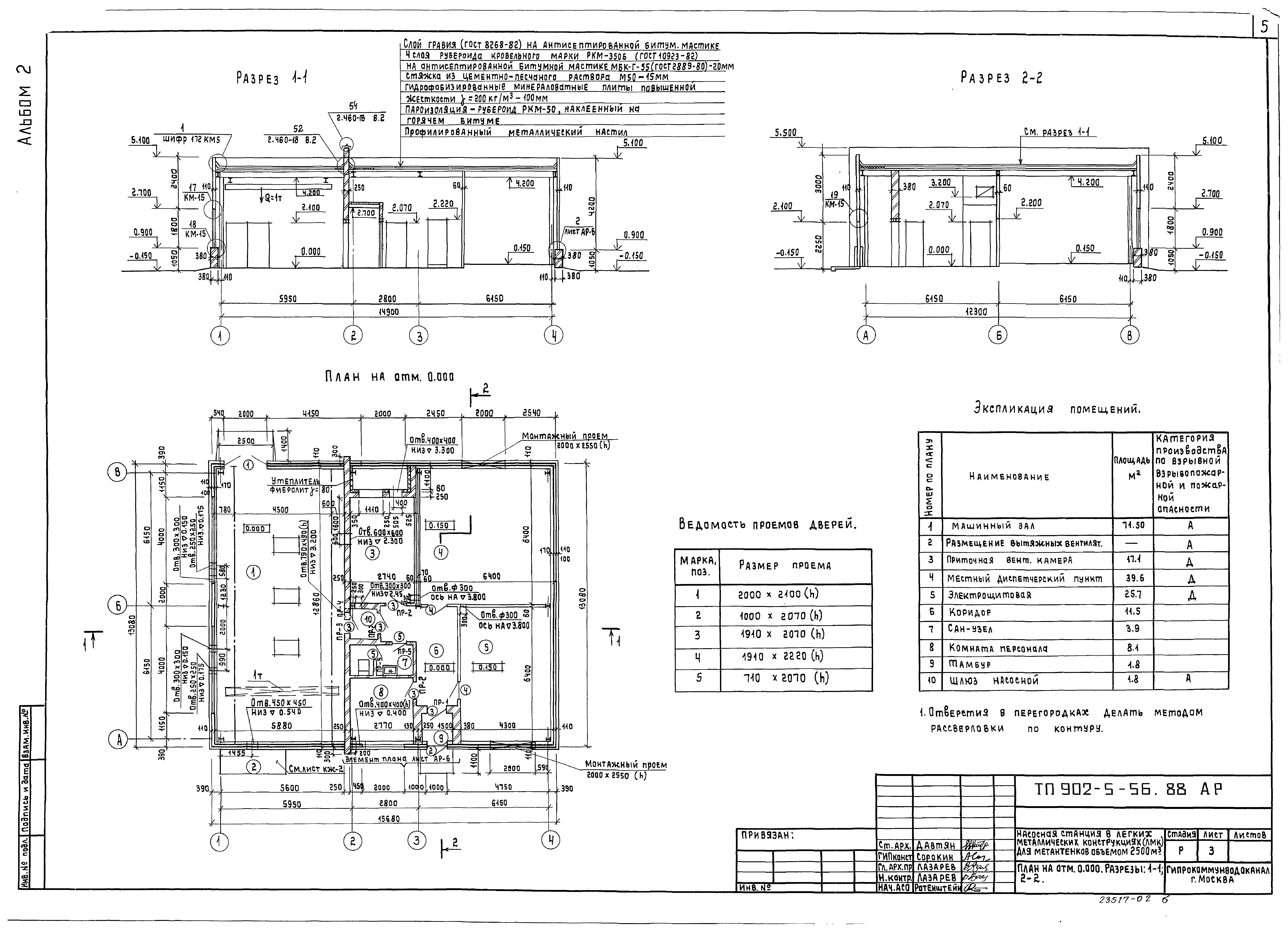
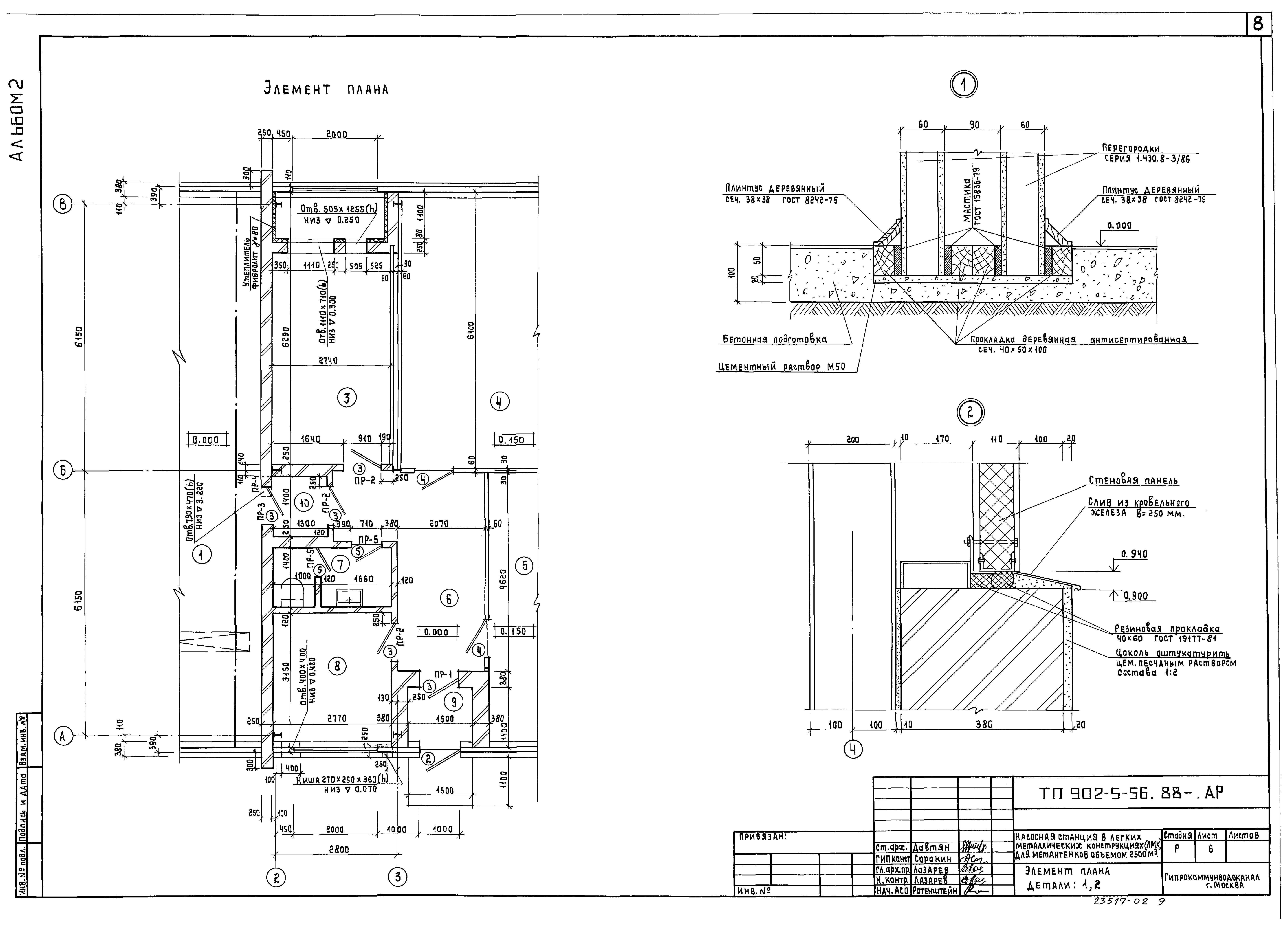
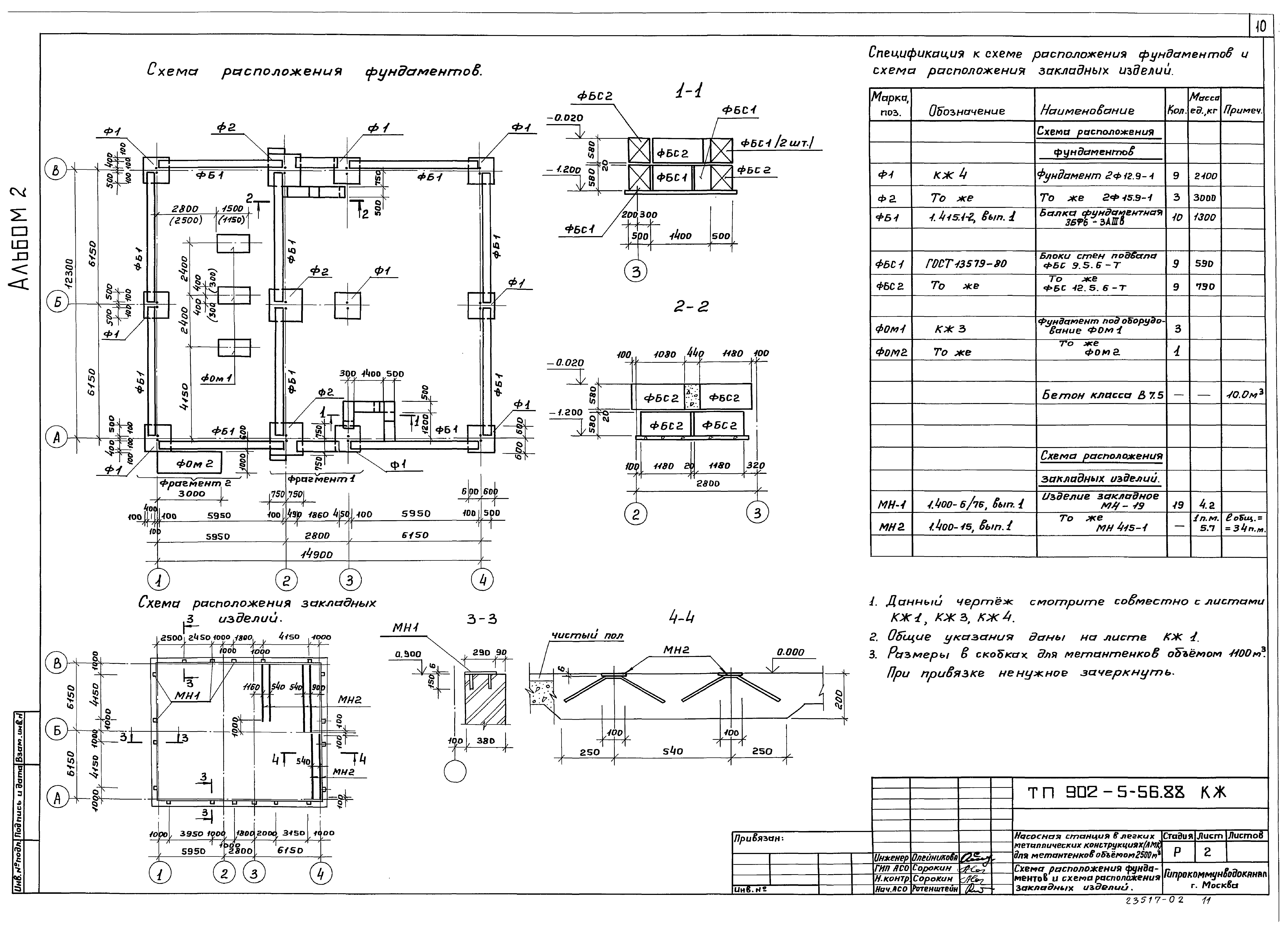
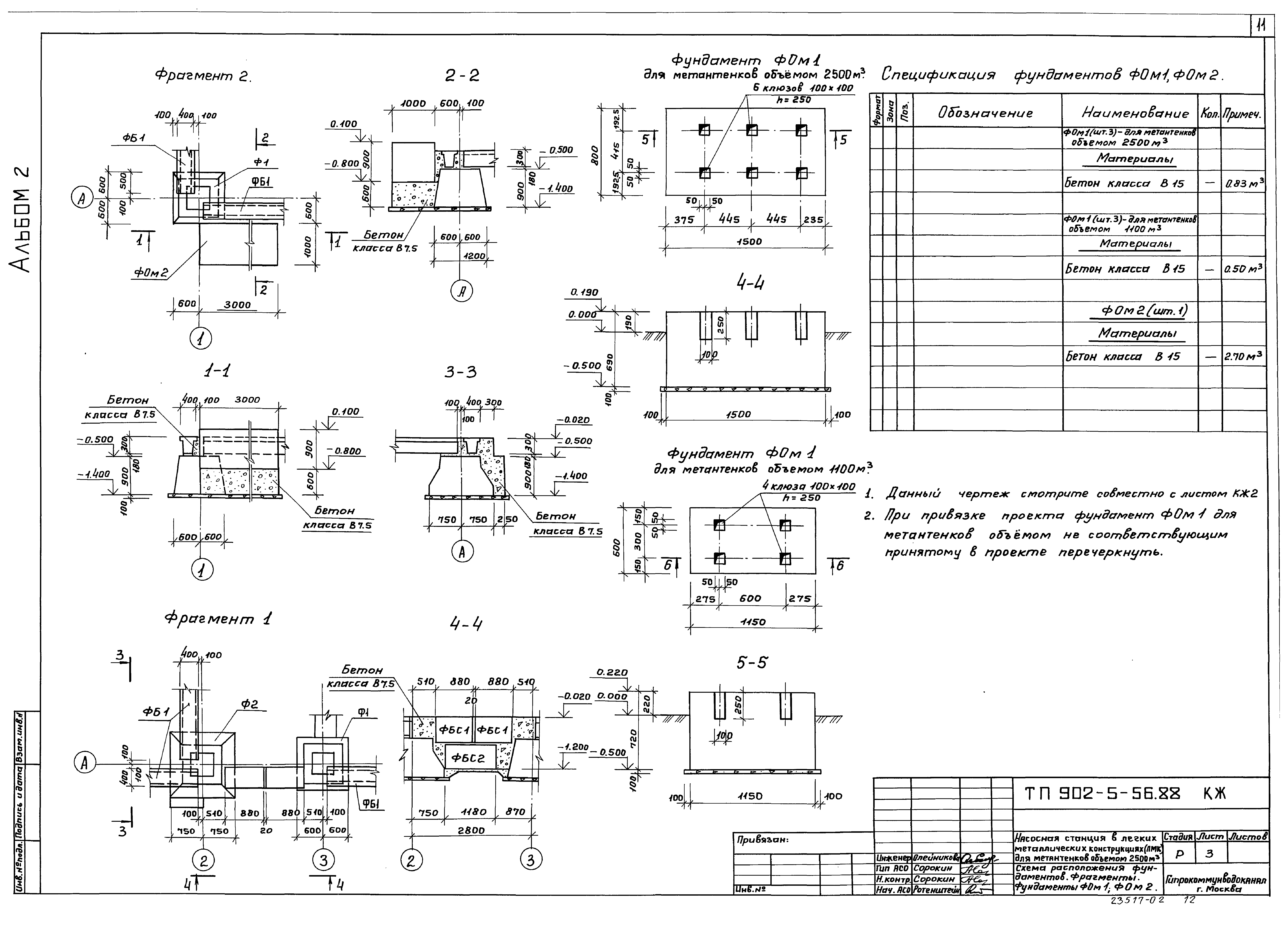
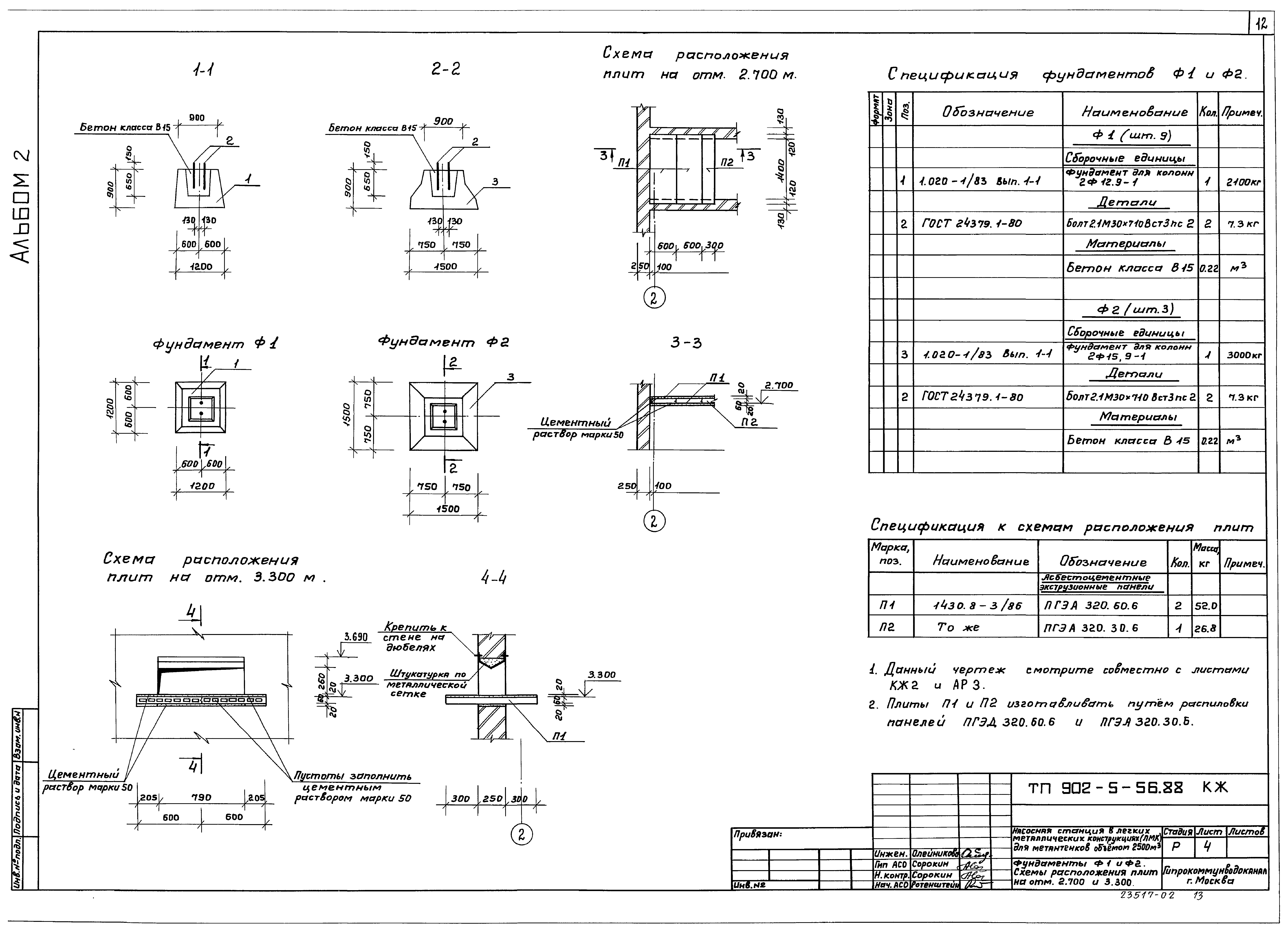
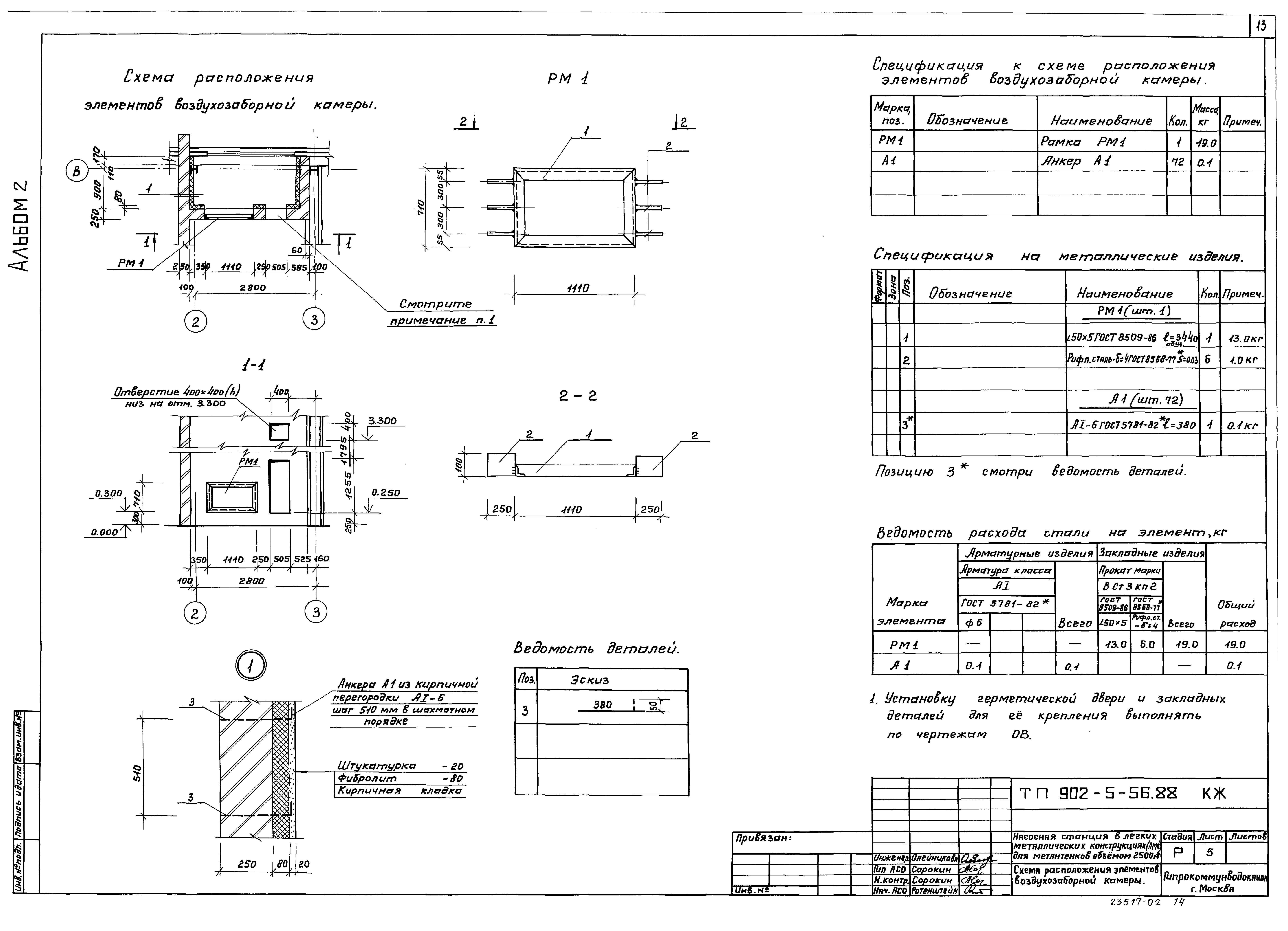
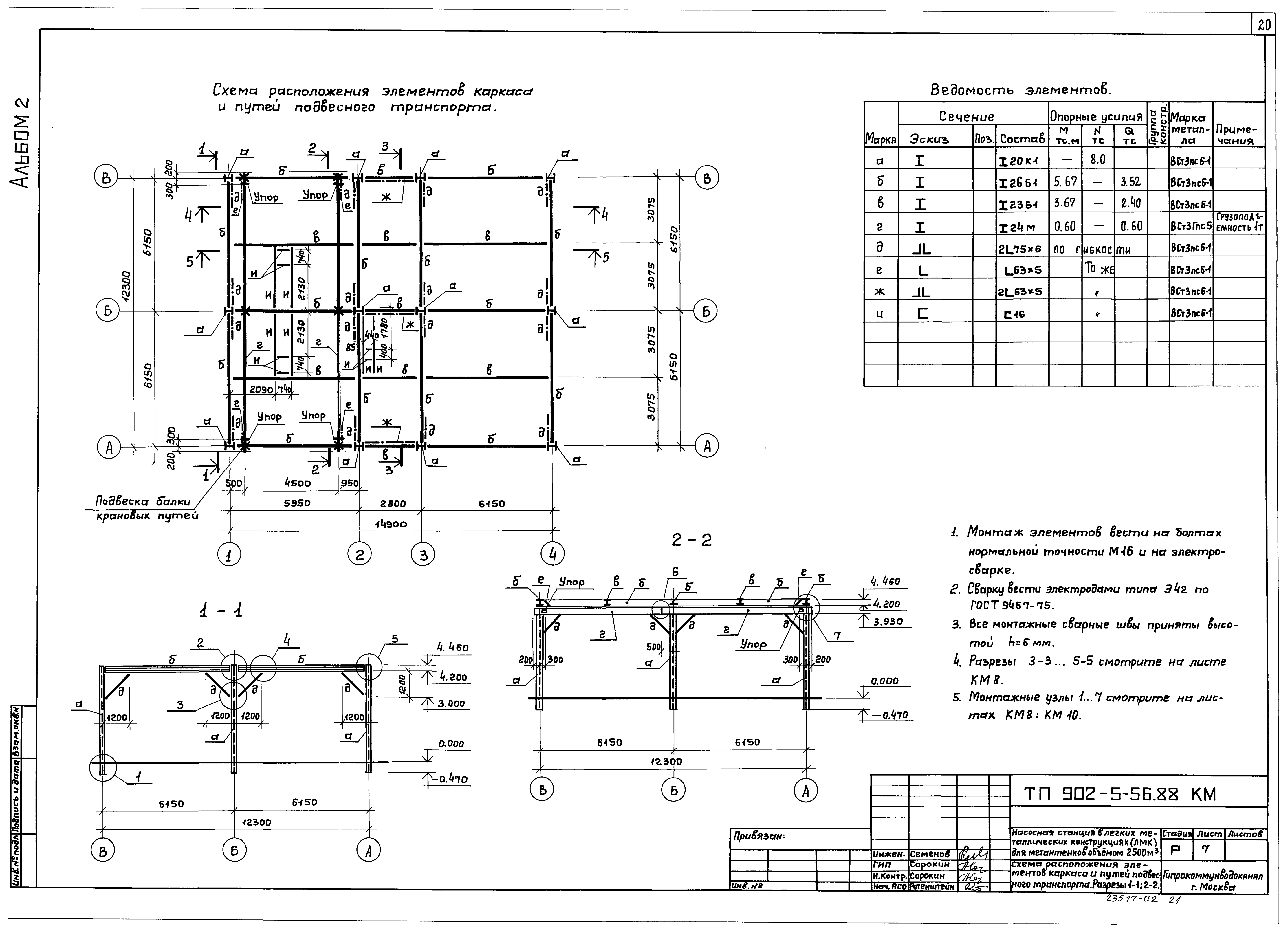
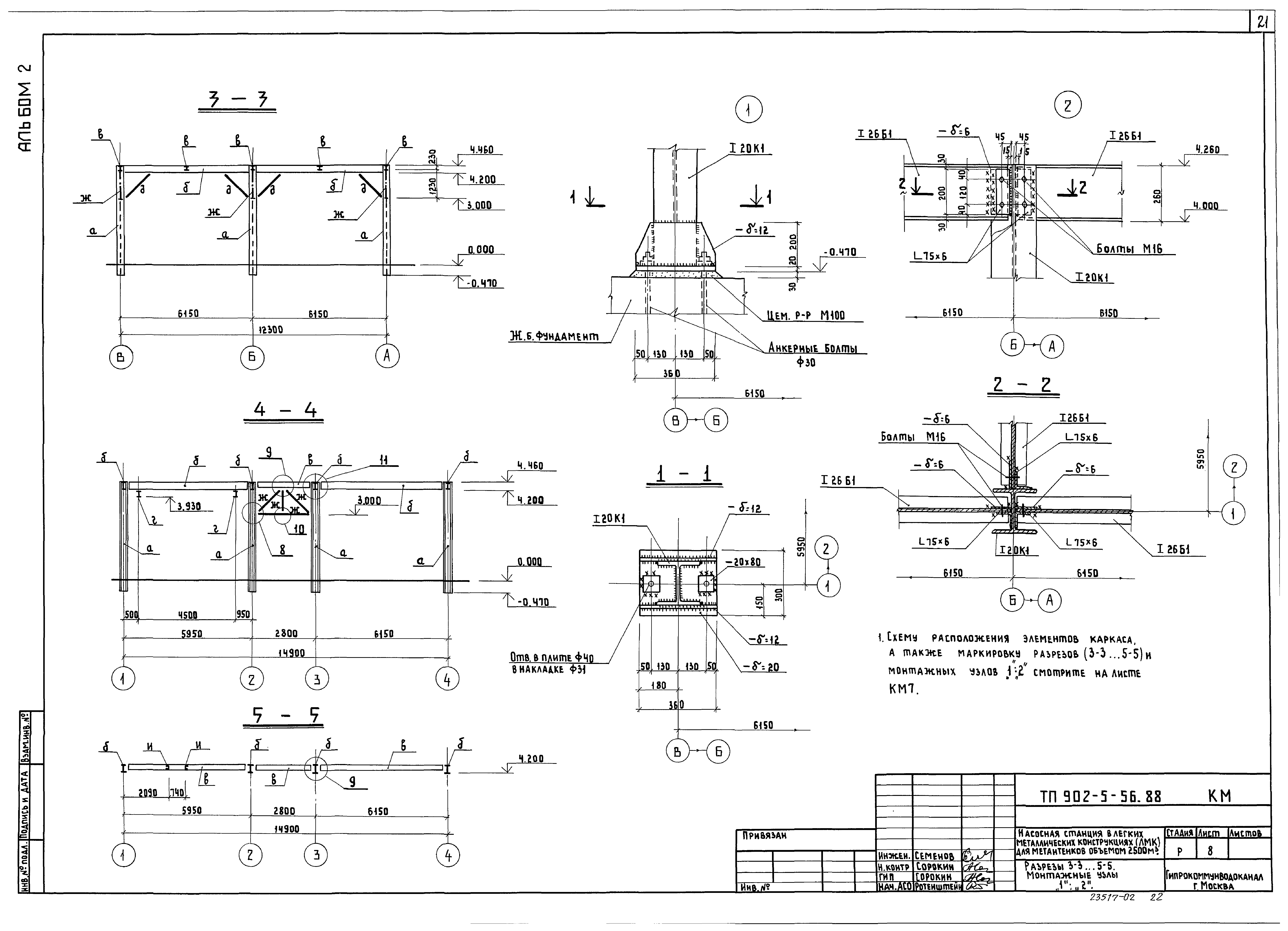
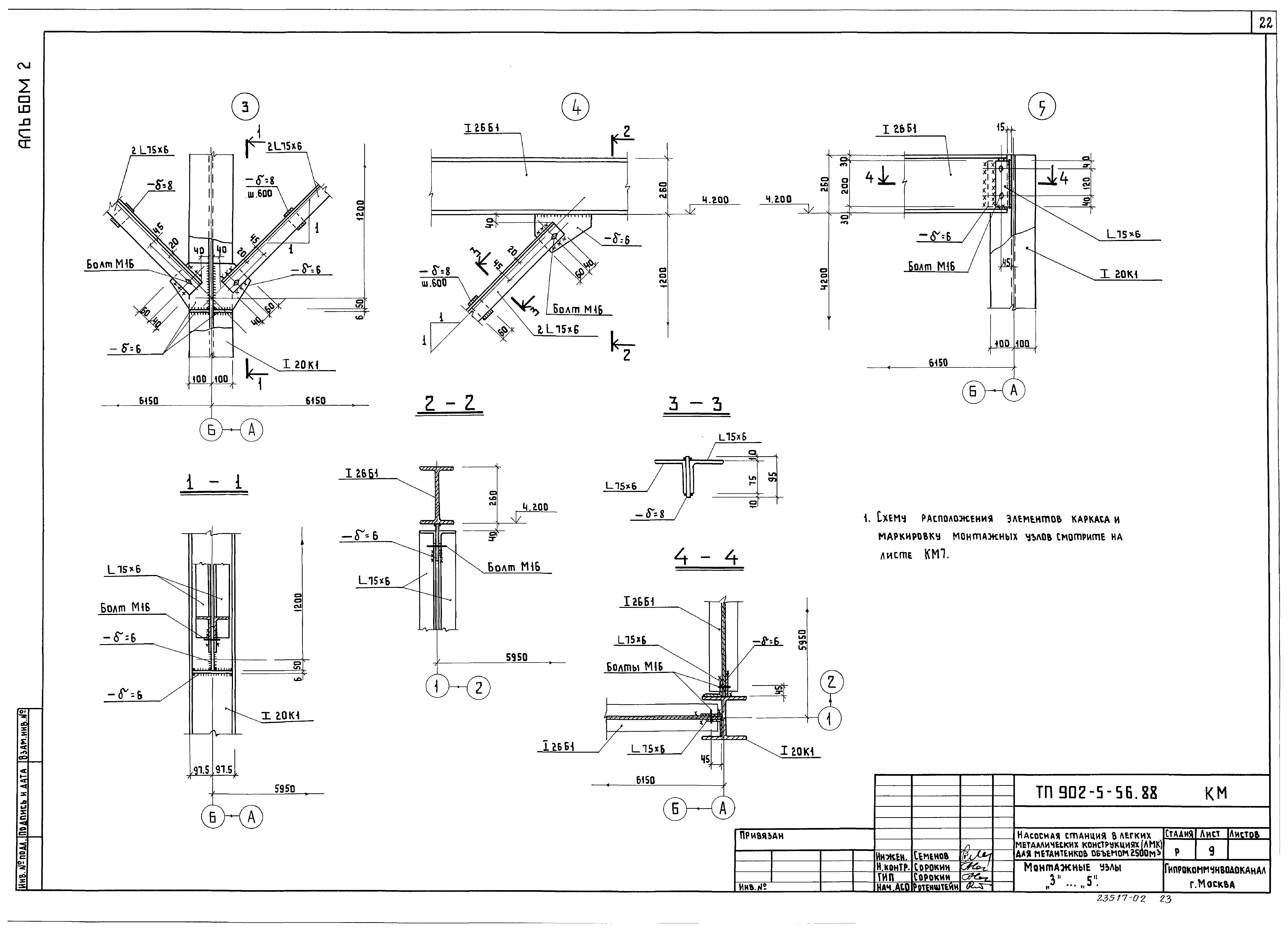
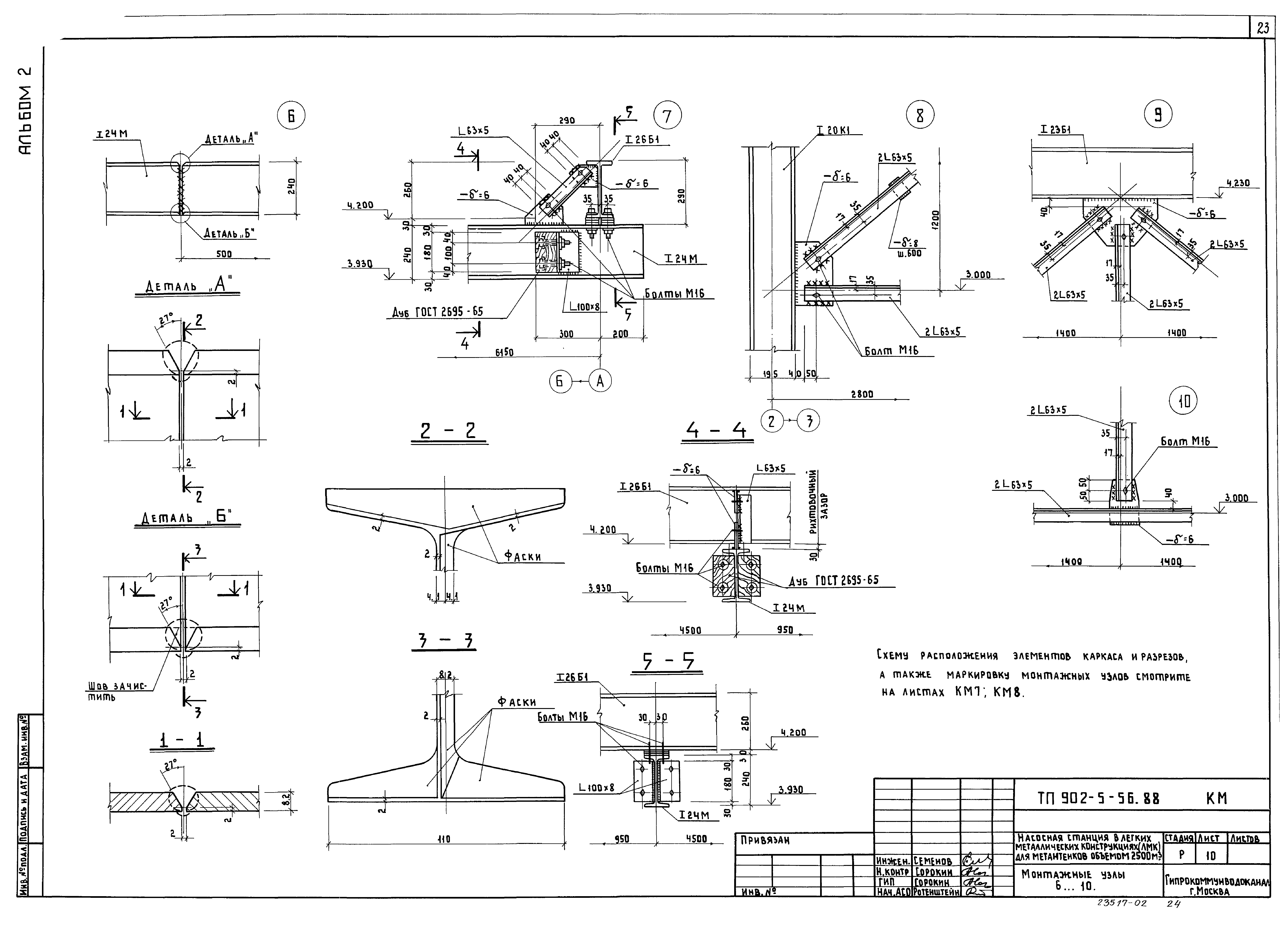
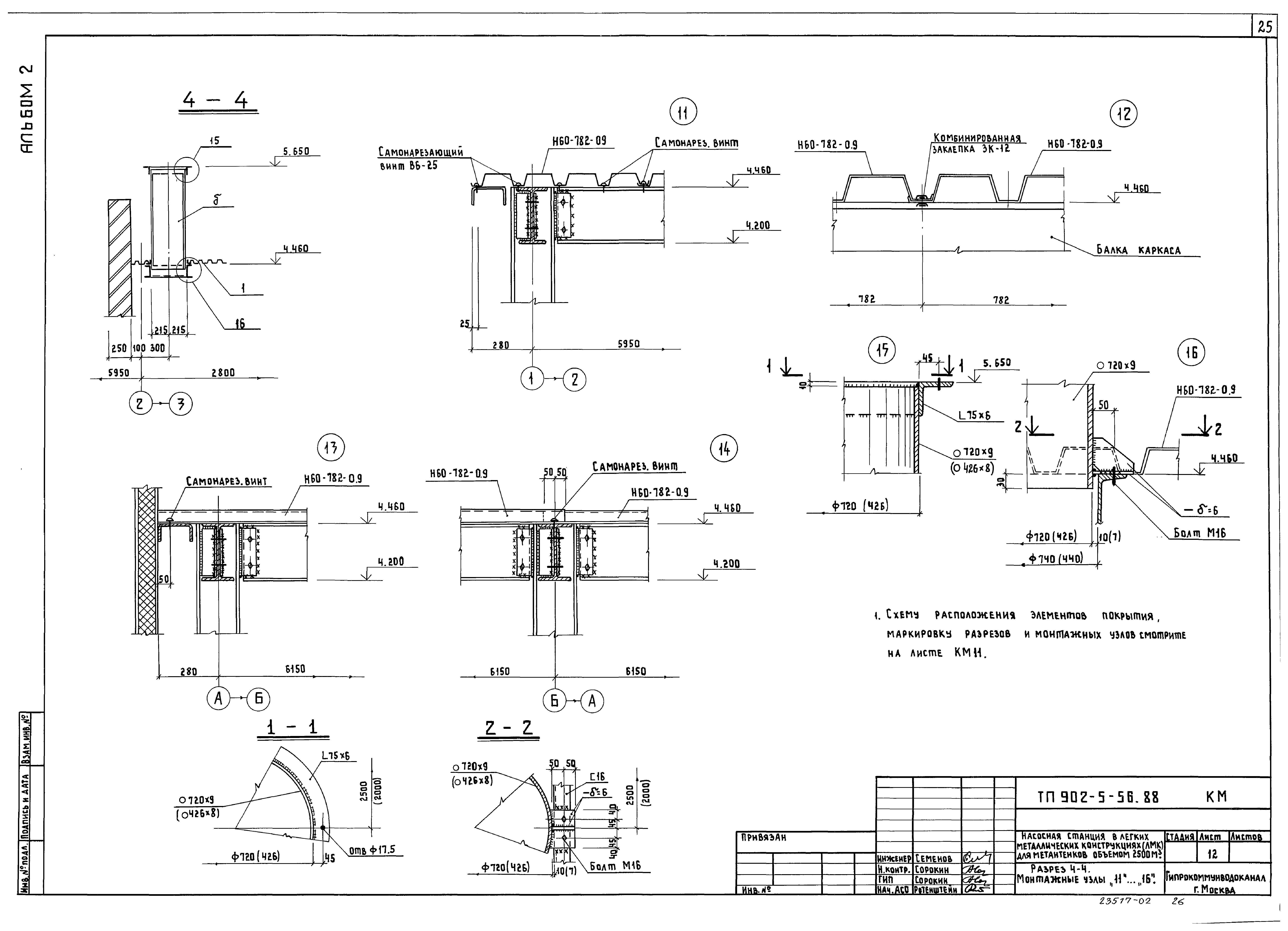
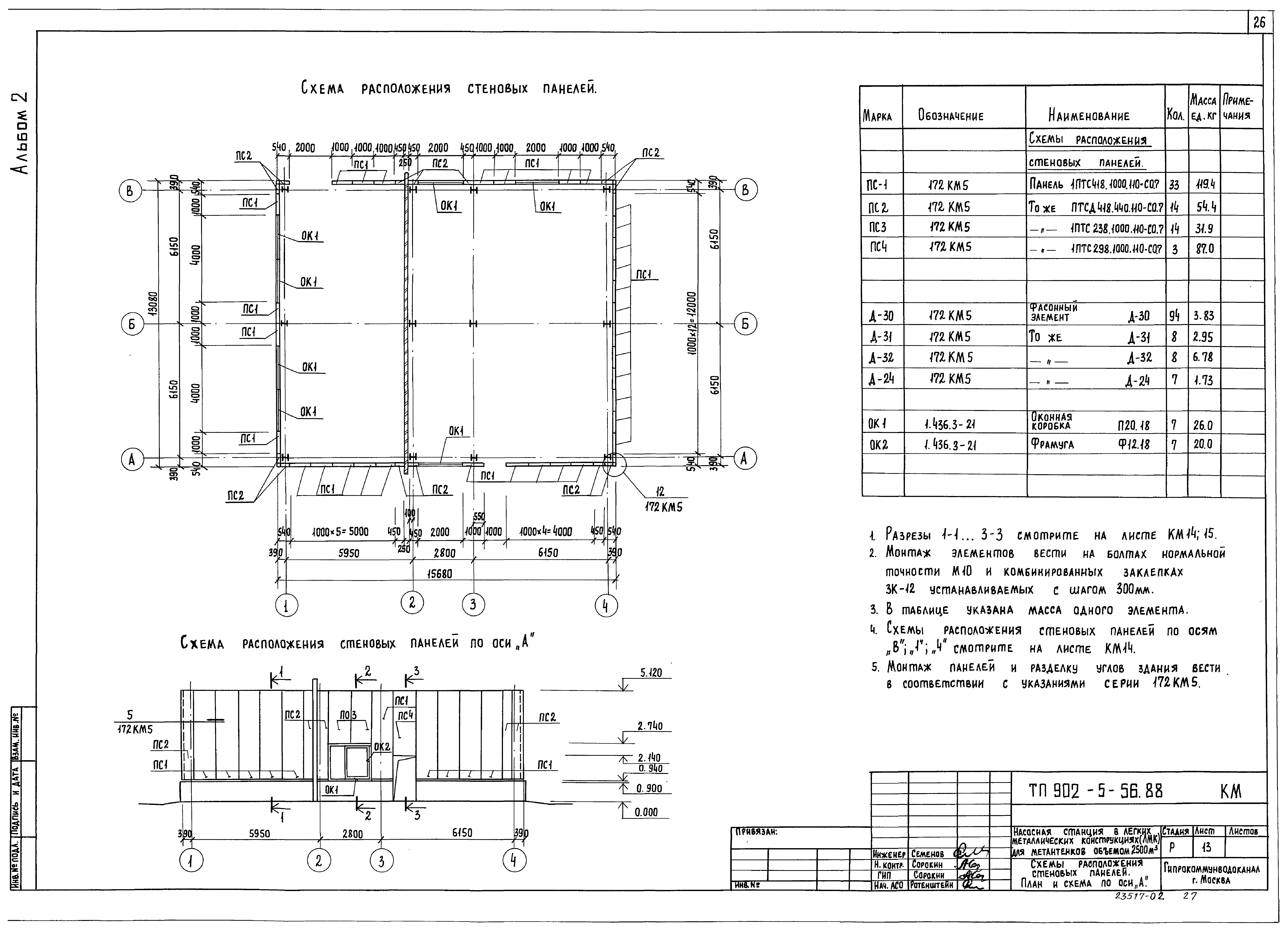
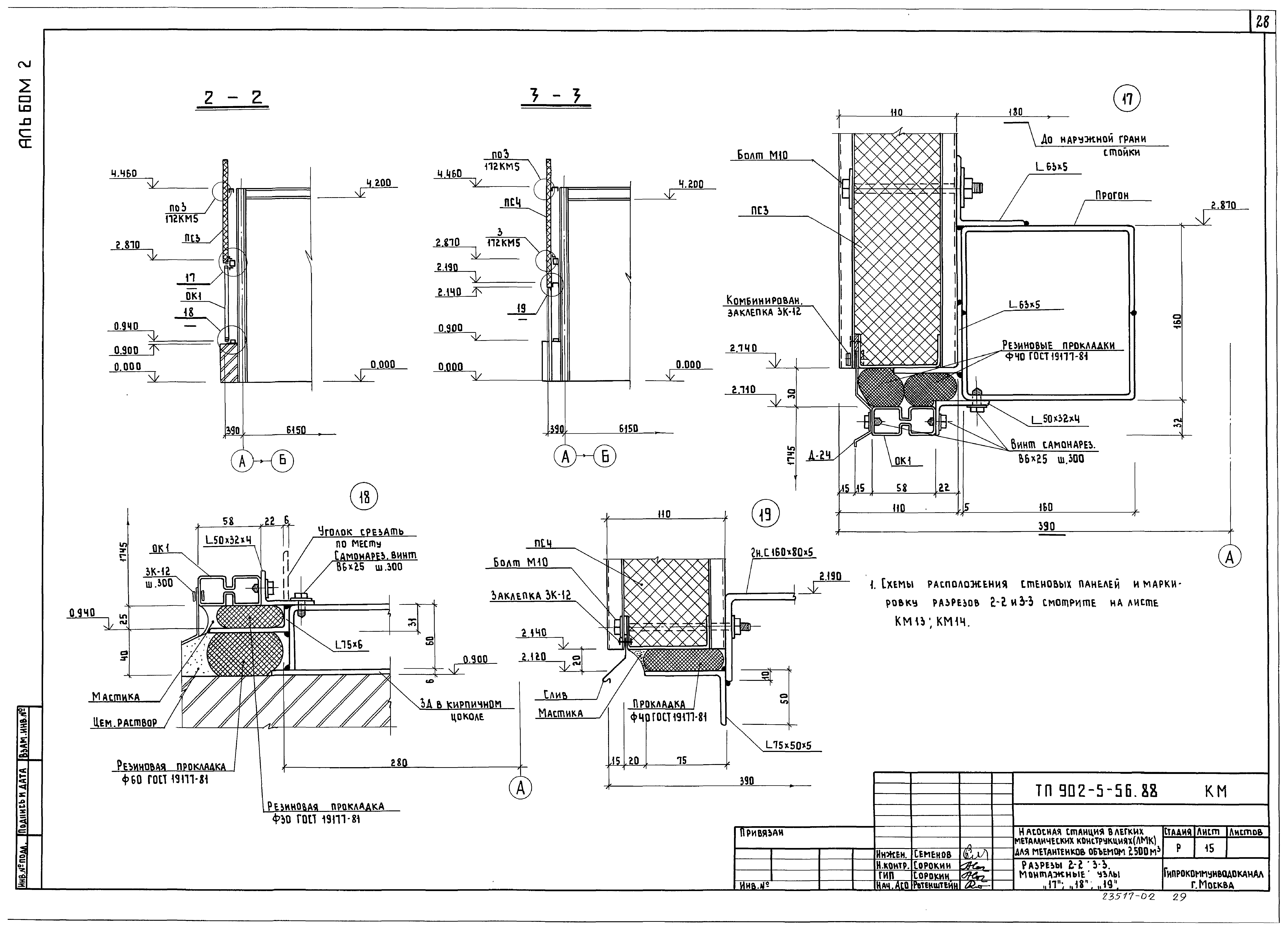
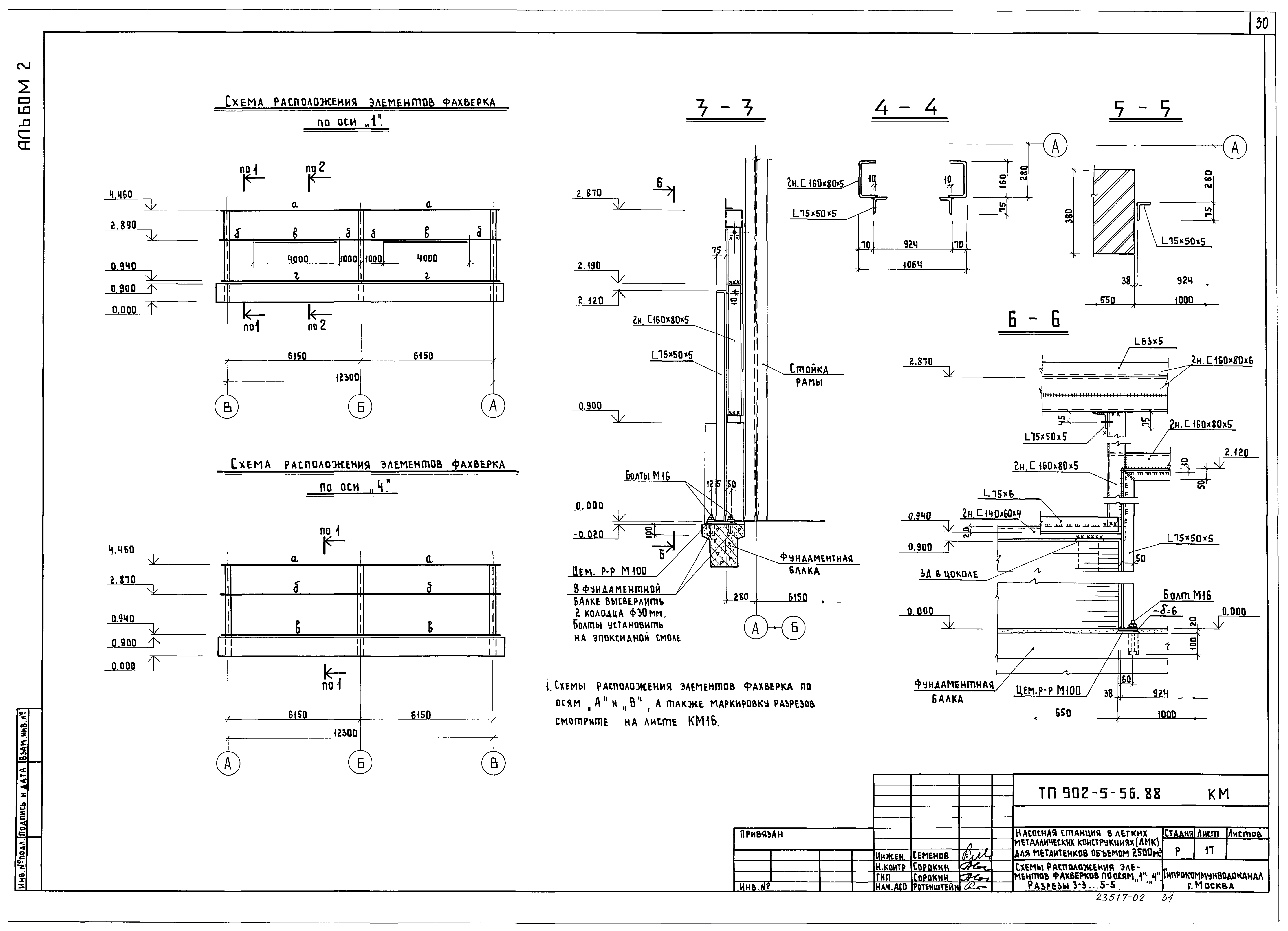
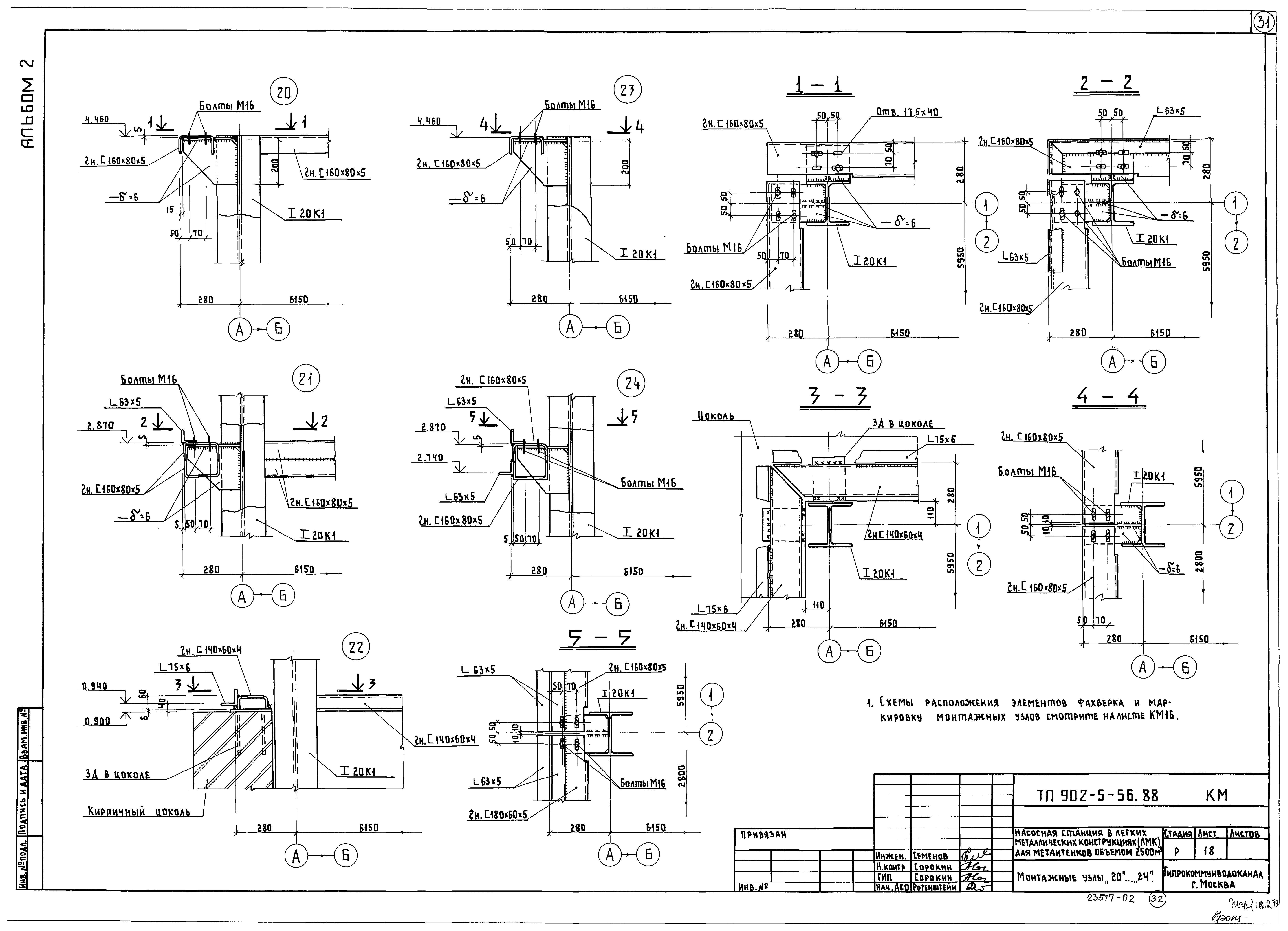
| Оглавление: | Содержание альбома Чертежи основного комплекта марки АР Общие данные План на отм. 0.000. Разрезы 1-1, 2-2 Фасады 1 - 4; 4 - 1; А - В; В - А Схема расположения сборных перегородок Элемент плана. Детали 1, 2 Чертежи основного комплекта марки КЖ Общие данные Схема расположения фундаментов и схема расположения закладных изделий Схема расположения фундаментов. Фрагменты. Фундаменты ФОм1 и ФОм2 Фундаменты Ф1 и Ф2. Схемы расположения плит на отм. 2.700 и 3.300 Схема расположения элементов воздухозаборной камеры Чертежи основного комплекта марки КМ Общие данные Схема расположения элементов каркаса и путей подвесного транспорта. Разрезы 1-1, 2-2 Разрезы 3-3…5-5. Монтажные узлы "1", "2" Монтажные узлы "3"… "5" Монтажные узлы "6"... "10" Схема расположения элементов покрытия. Разрезы 1-1…3-3 Разрез 4-4. Монтажные узлы "11"…"16" Схемы расположения стеновых панелей. План и схема по оси "А" Схемы расположения стеновых панелей по осям "В", "1", "4". Разрез 1-1 Разрезы 2-2, 3-3. Монтажные узлы "17", "18", "19" Схемы расположения элементов фахверка по осям "А"…"В". Разрезы 1-1, 2-2 Схемы расположения элементов фахверка по осям "1"…"4". Разрезы 3-3…4-4 Монтажные узлы "20"…"24" |
| Разработан: | Гипрокоммунводоканал Минжилкомхоза РСФСР |
| Утверждён: | 26.10.1988 МЖКХ РСФСР (275) |































