Скачать Типовой проект 904-1-86.91 Альбом 5. Архитектурные решения. Конструкции железобетонные. Конструкции металлические. Отопление и вентиляция. Внутренние водопровод и канализацияДата актуализации: 01.01.2021
|
| Обозначение: | Типовой проект 904-1-86.91 |
| Обозначение англ: | 904-1-86.91 |
| Статус: | не определен законодательством |
| Название рус.: | Альбом 5. Архитектурные решения. Конструкции железобетонные. Конструкции металлические. Отопление и вентиляция. Внутренние водопровод и канализация |
| Дата добавления в базу: | 01.10.2014 |
| Дата актуализации: | 01.01.2021 |
| Дата введения: | 18.10.1990 |
| Дата окончания срока действия: | 30.06.2003 |
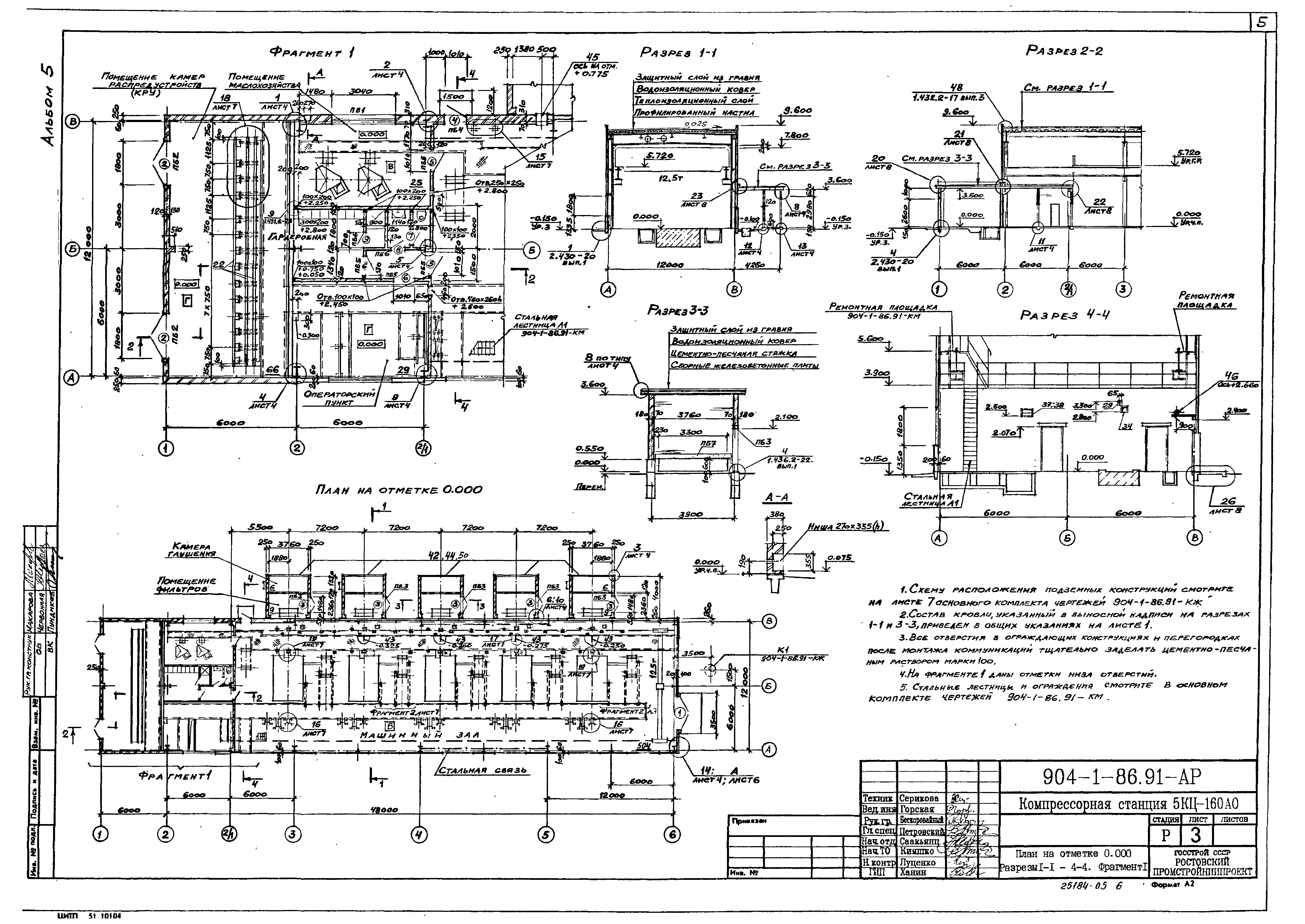
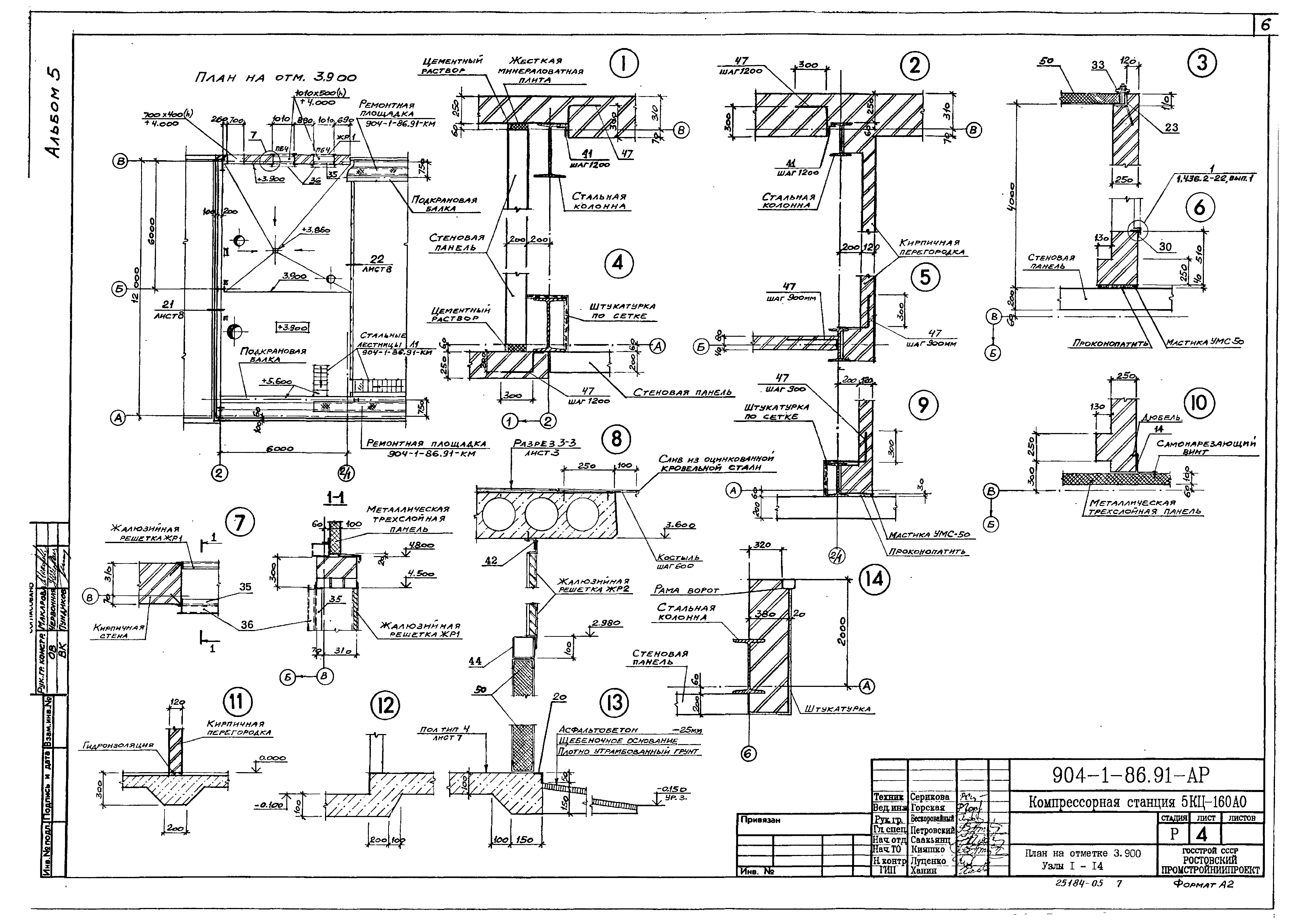
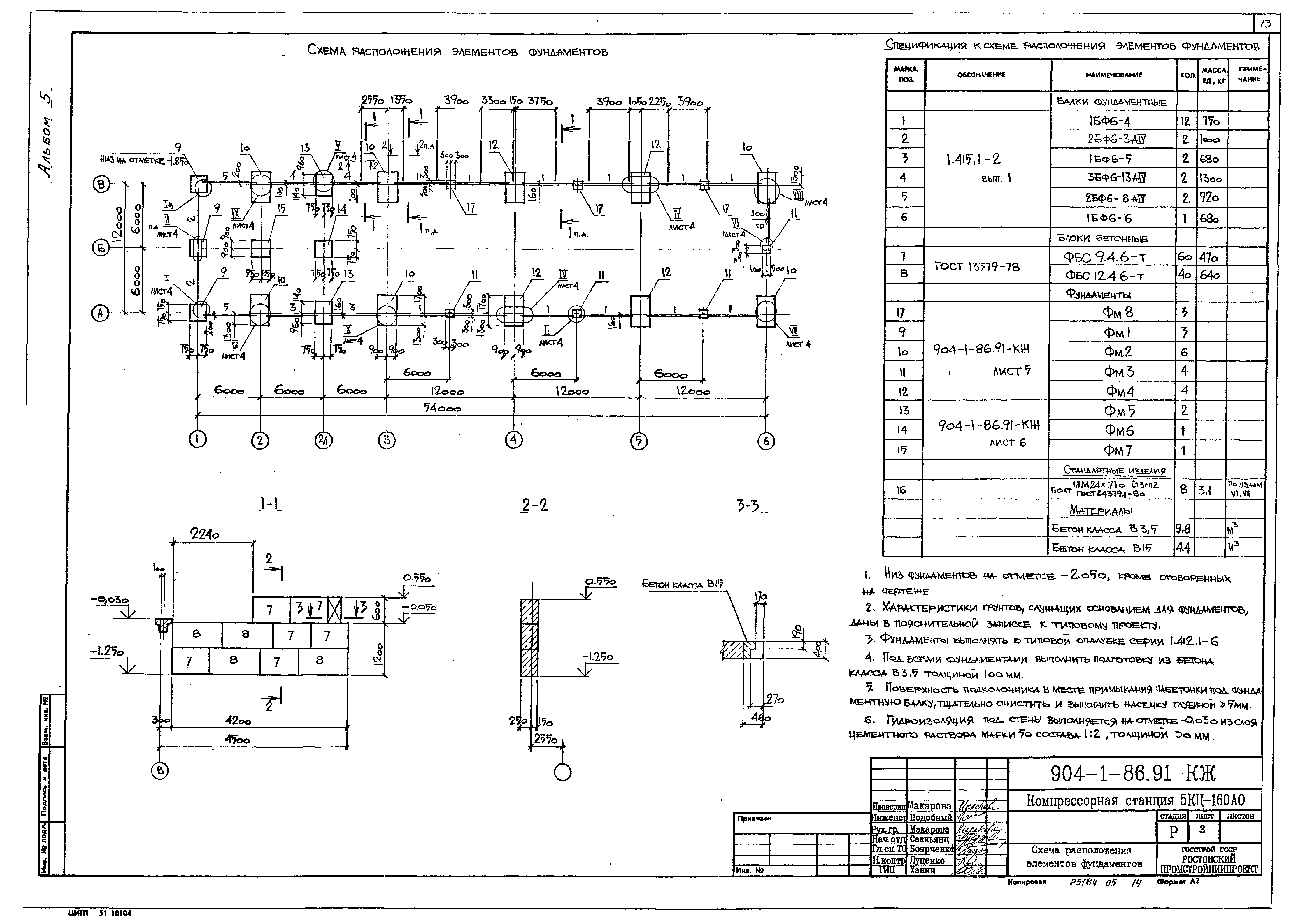
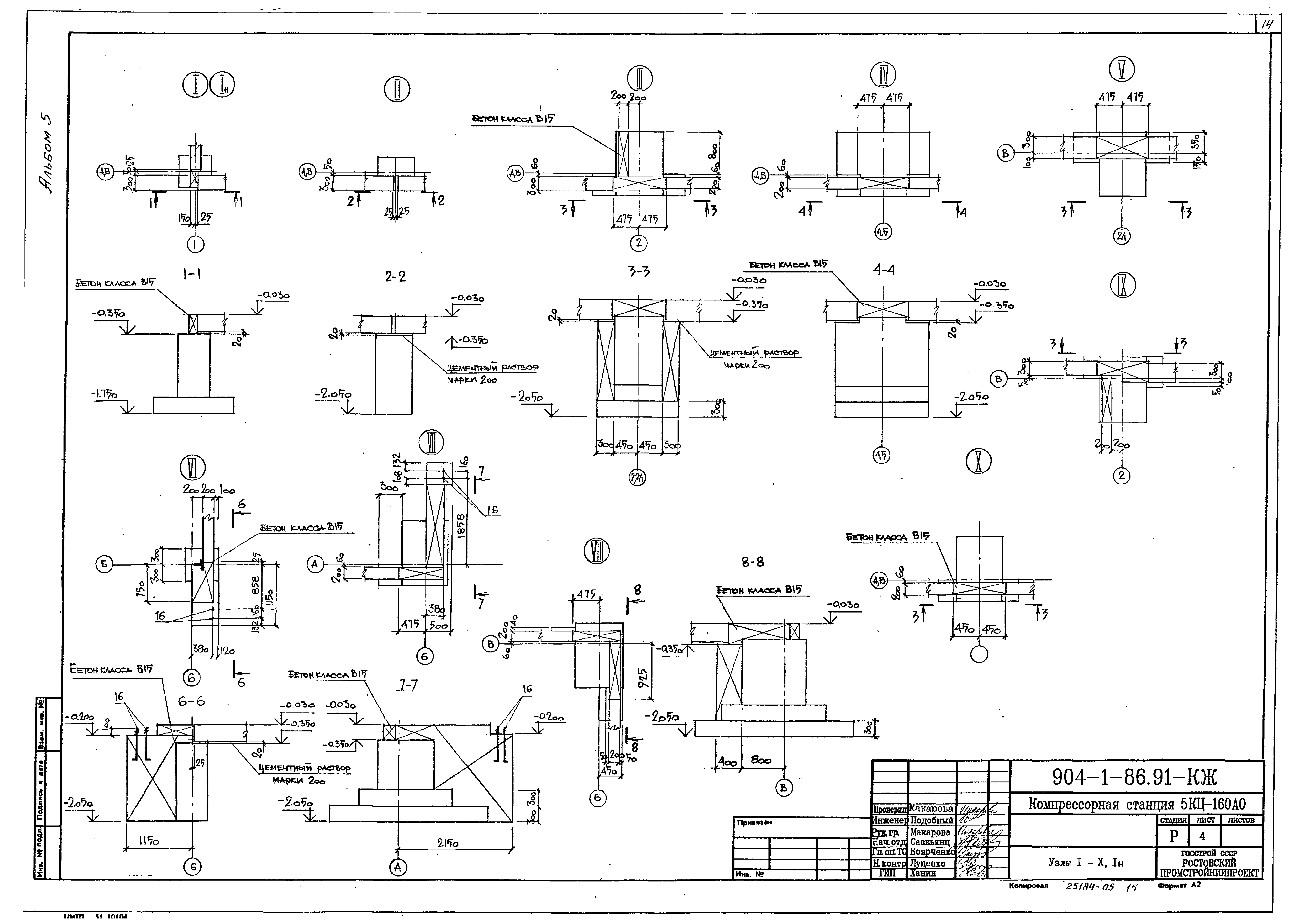
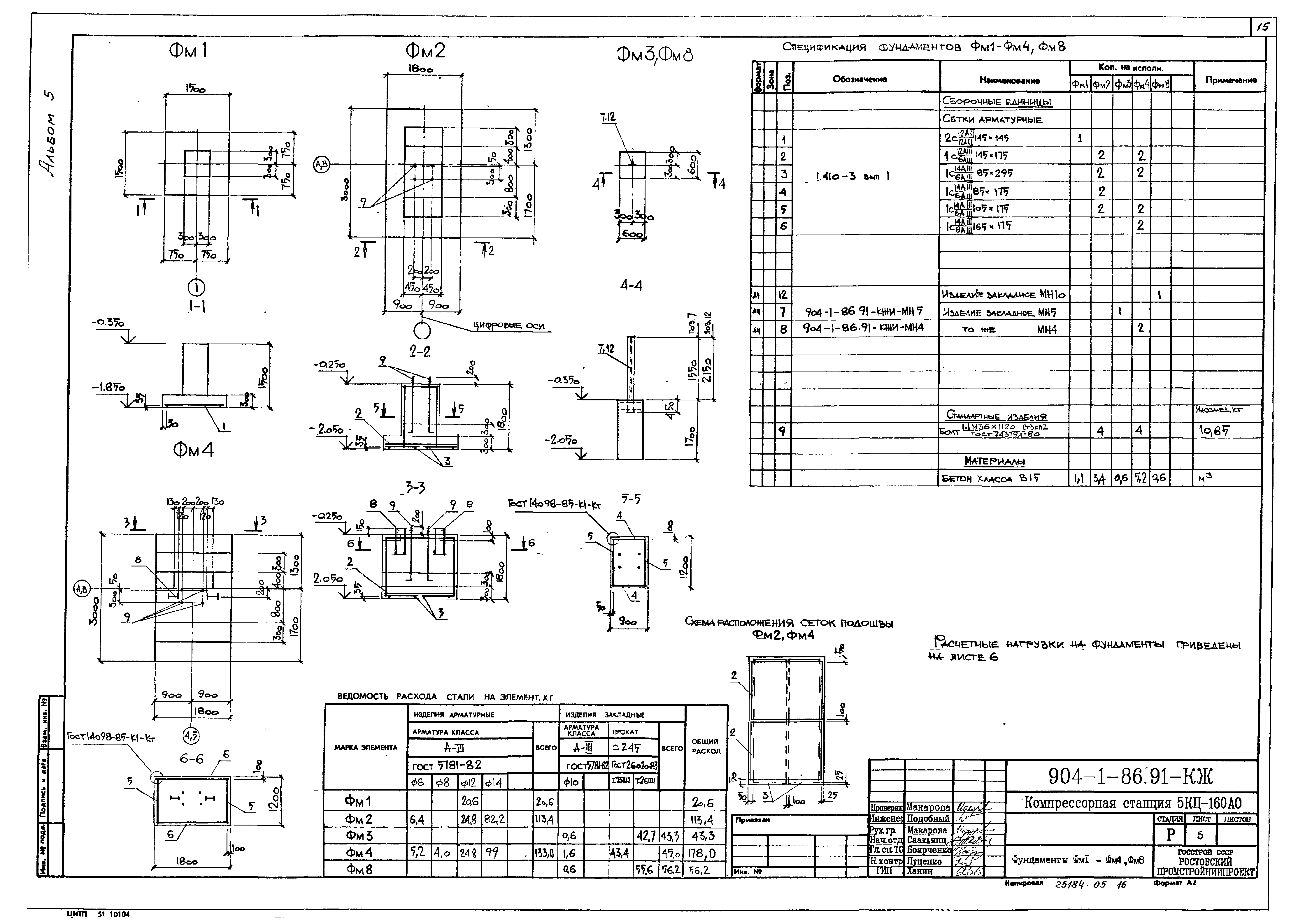
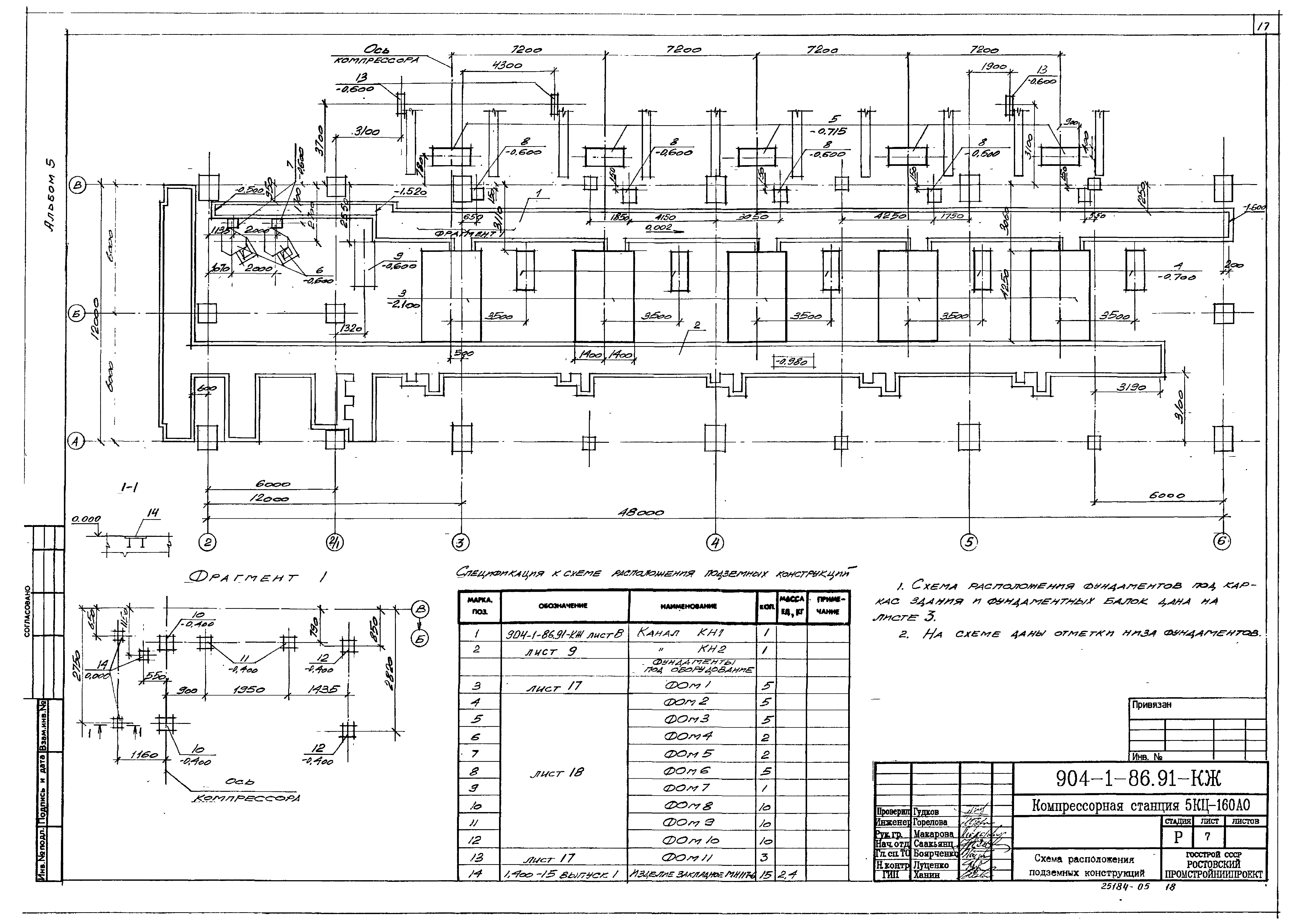
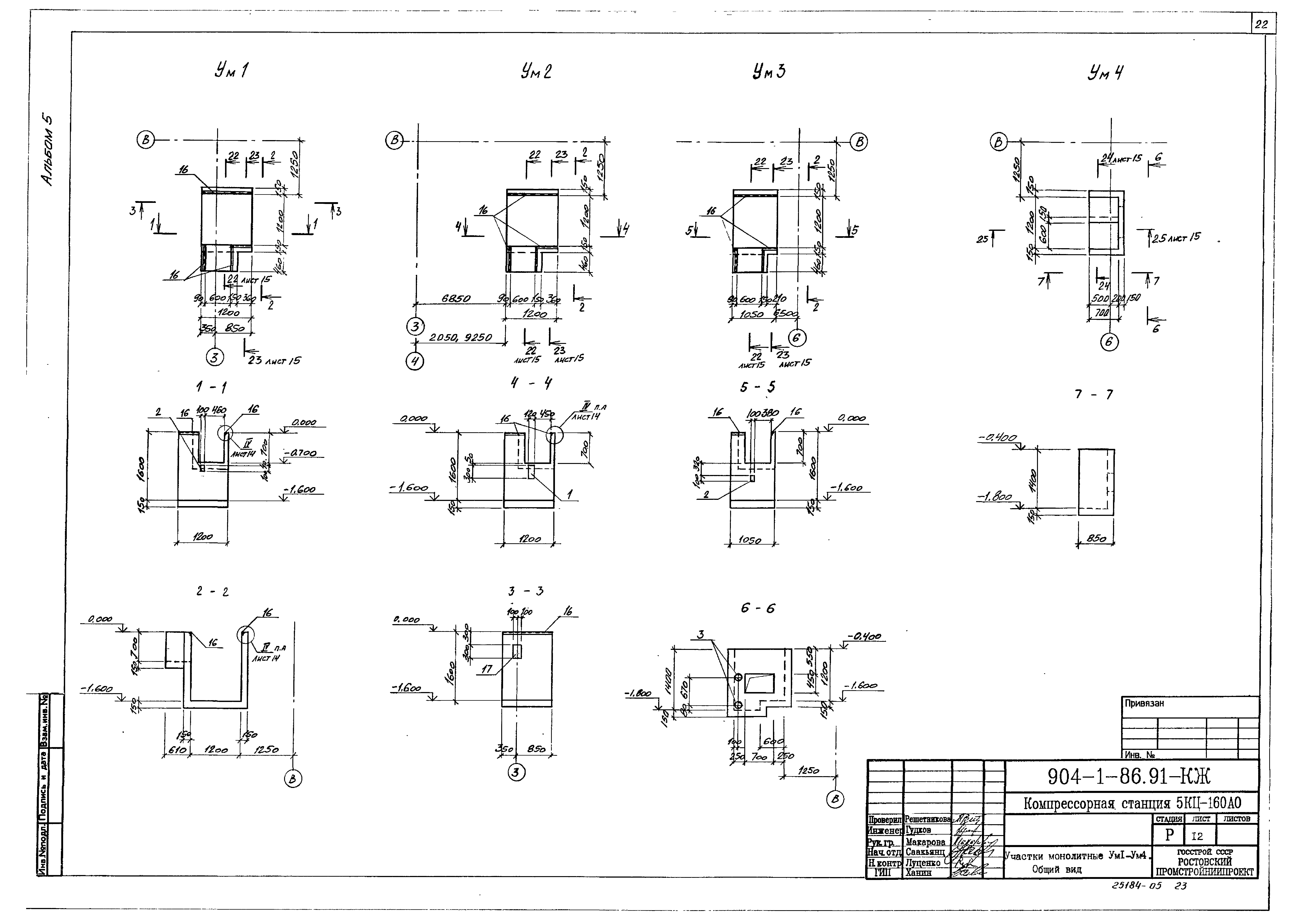
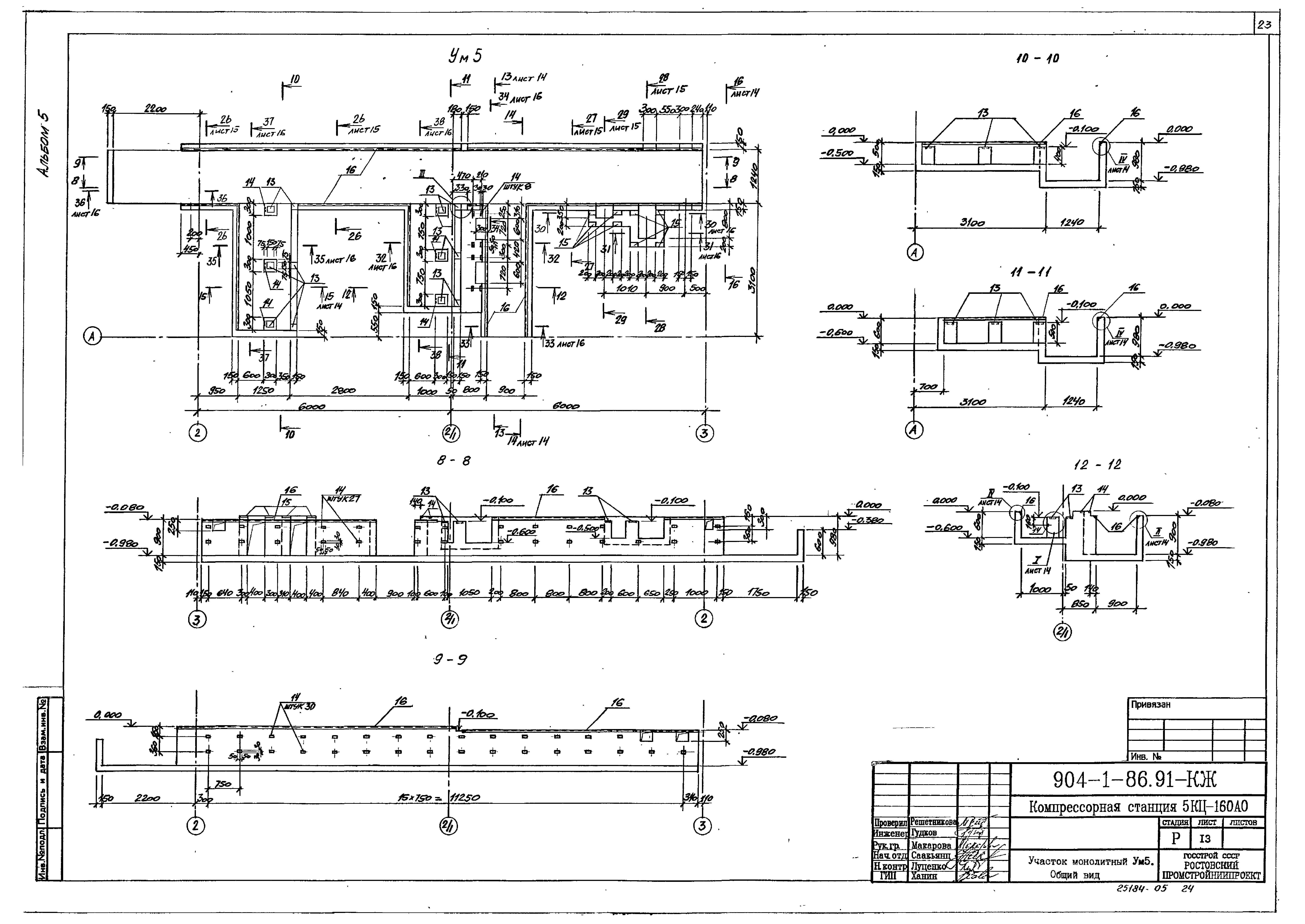
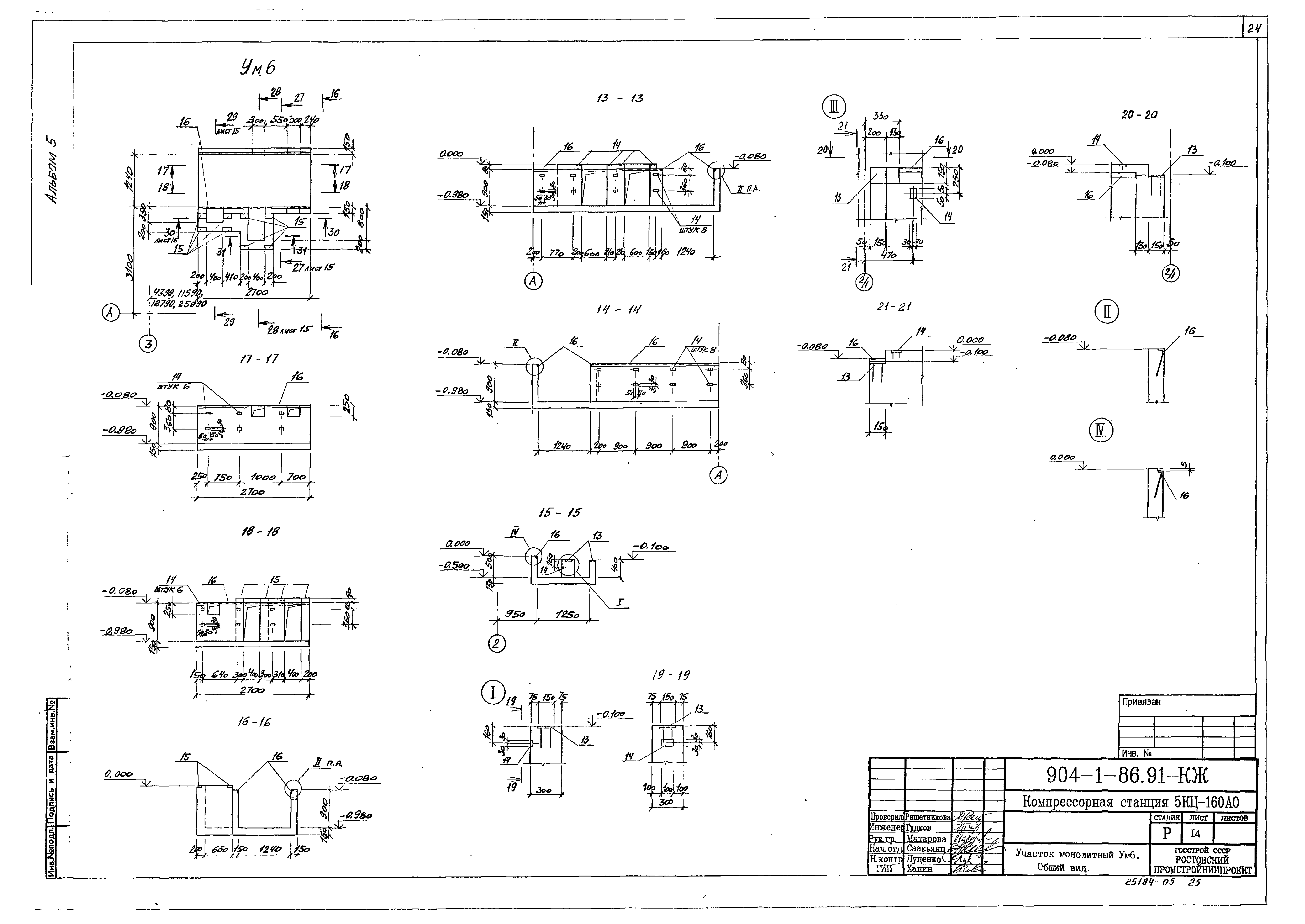
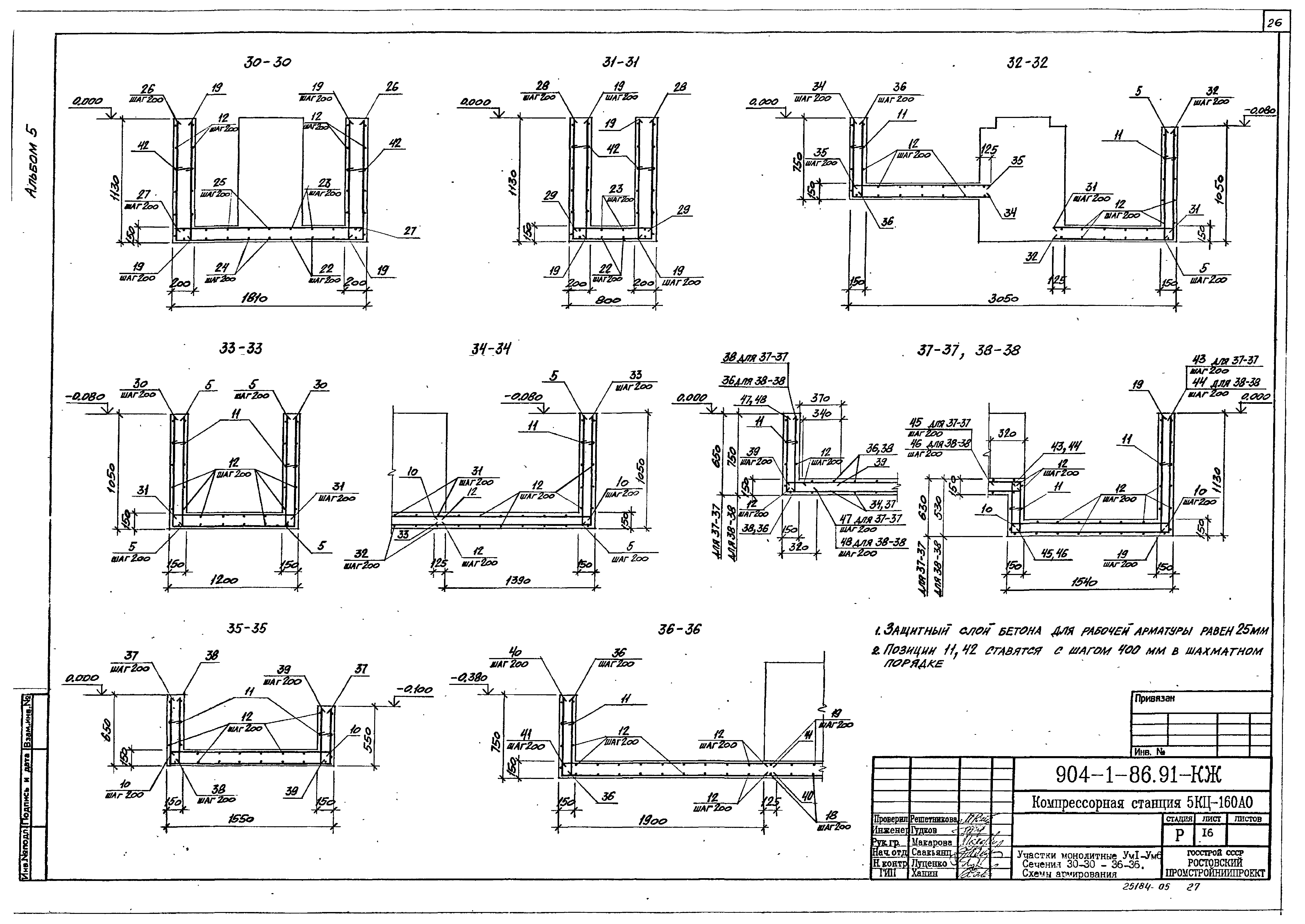
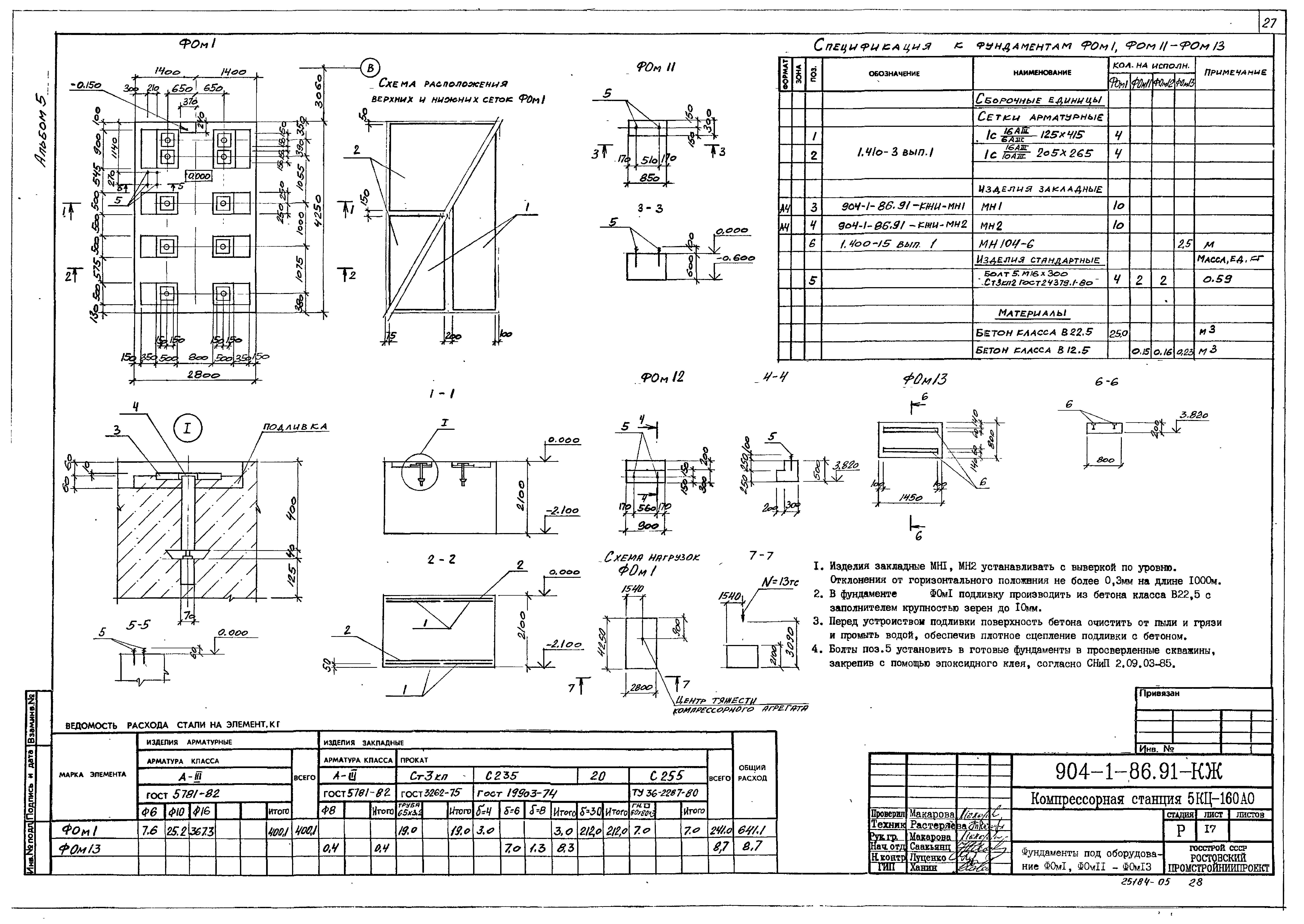
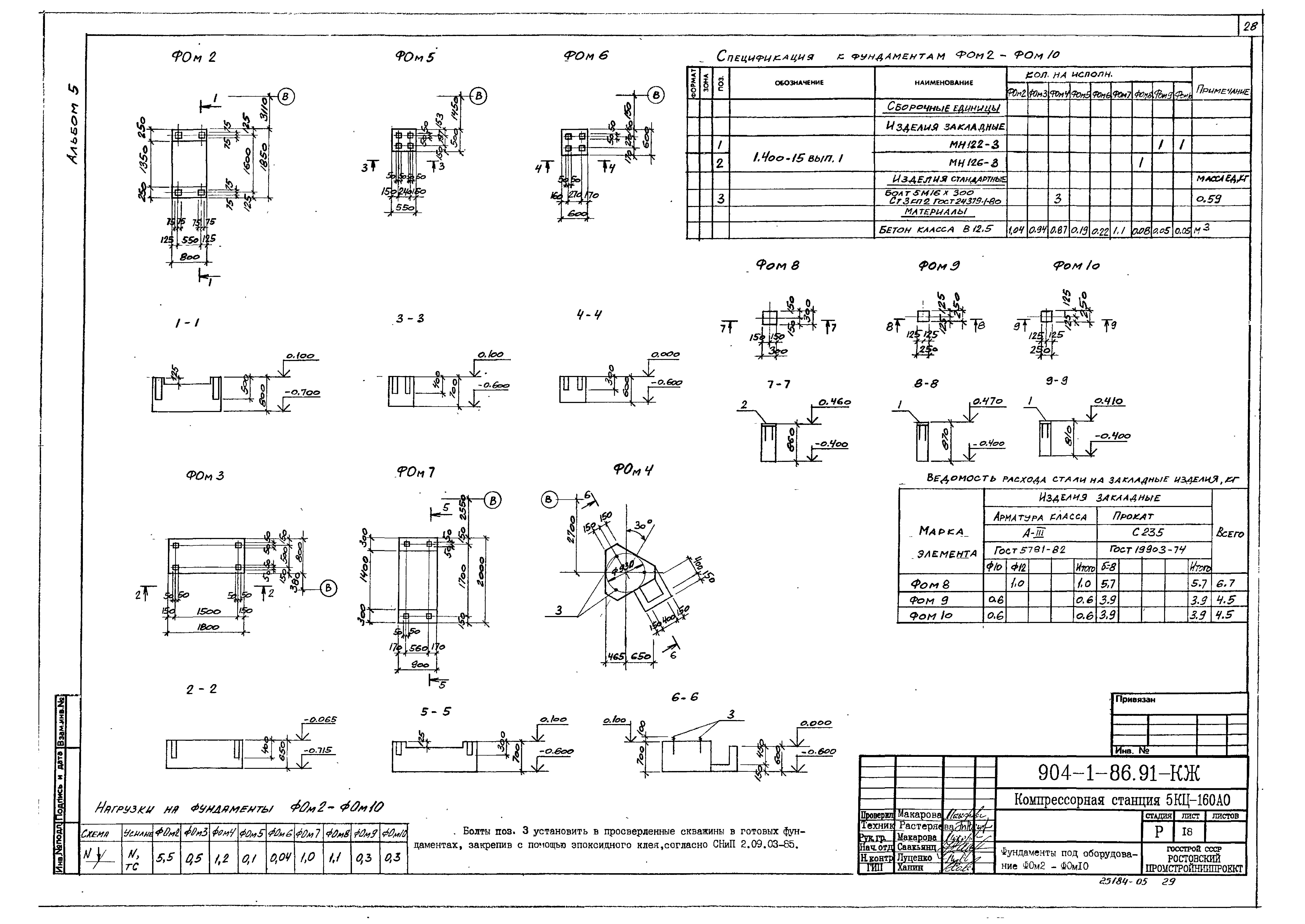
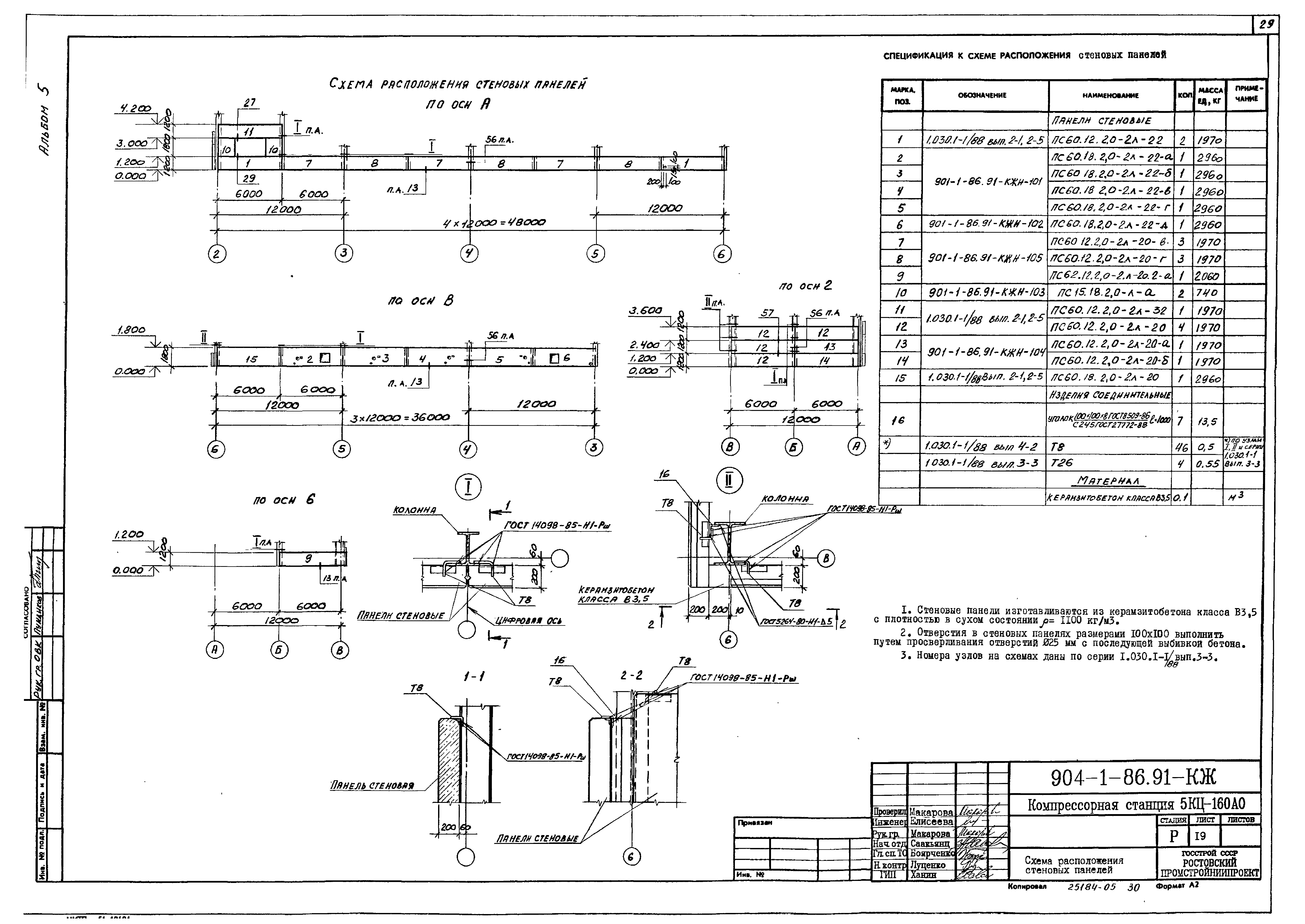
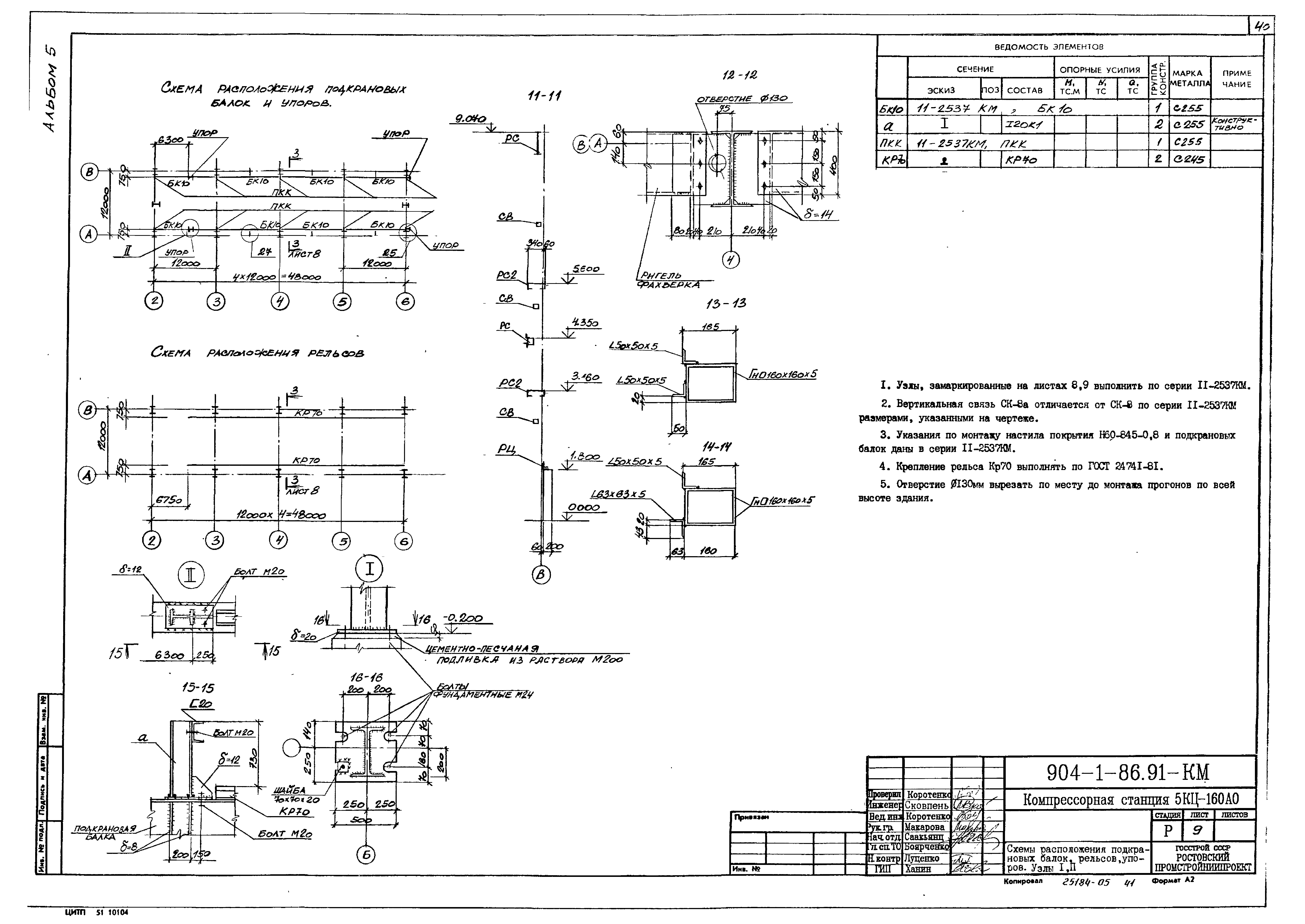
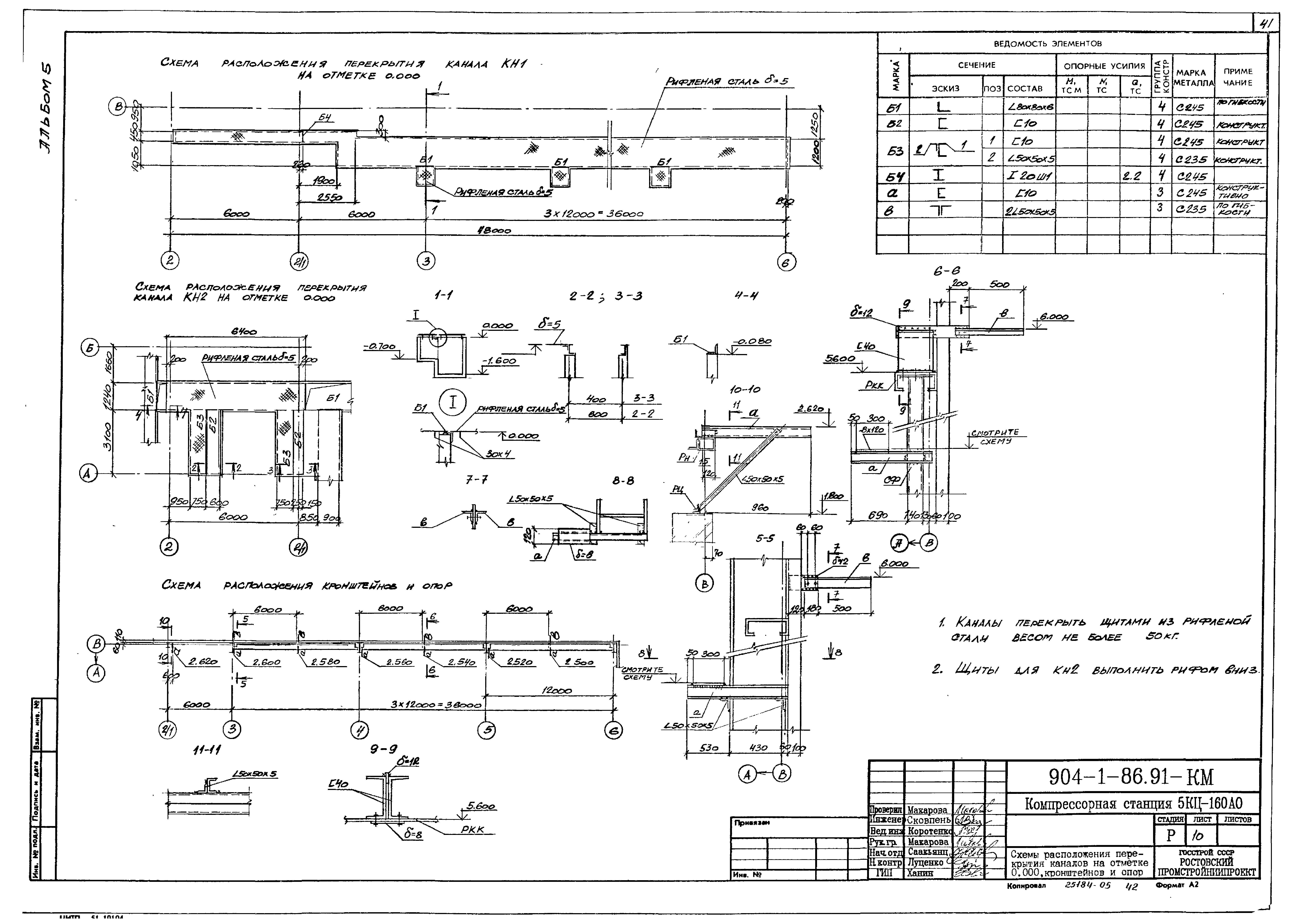
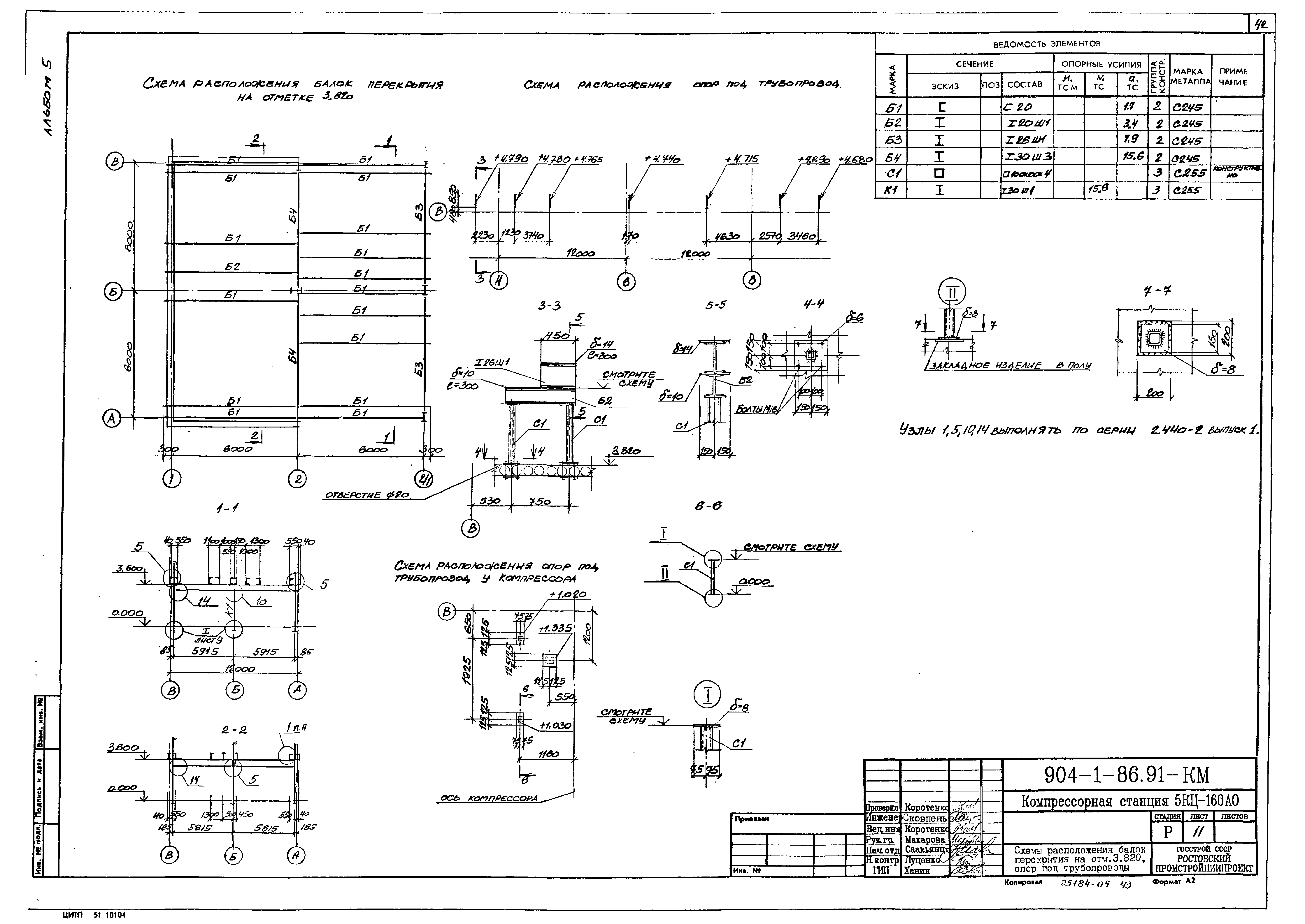
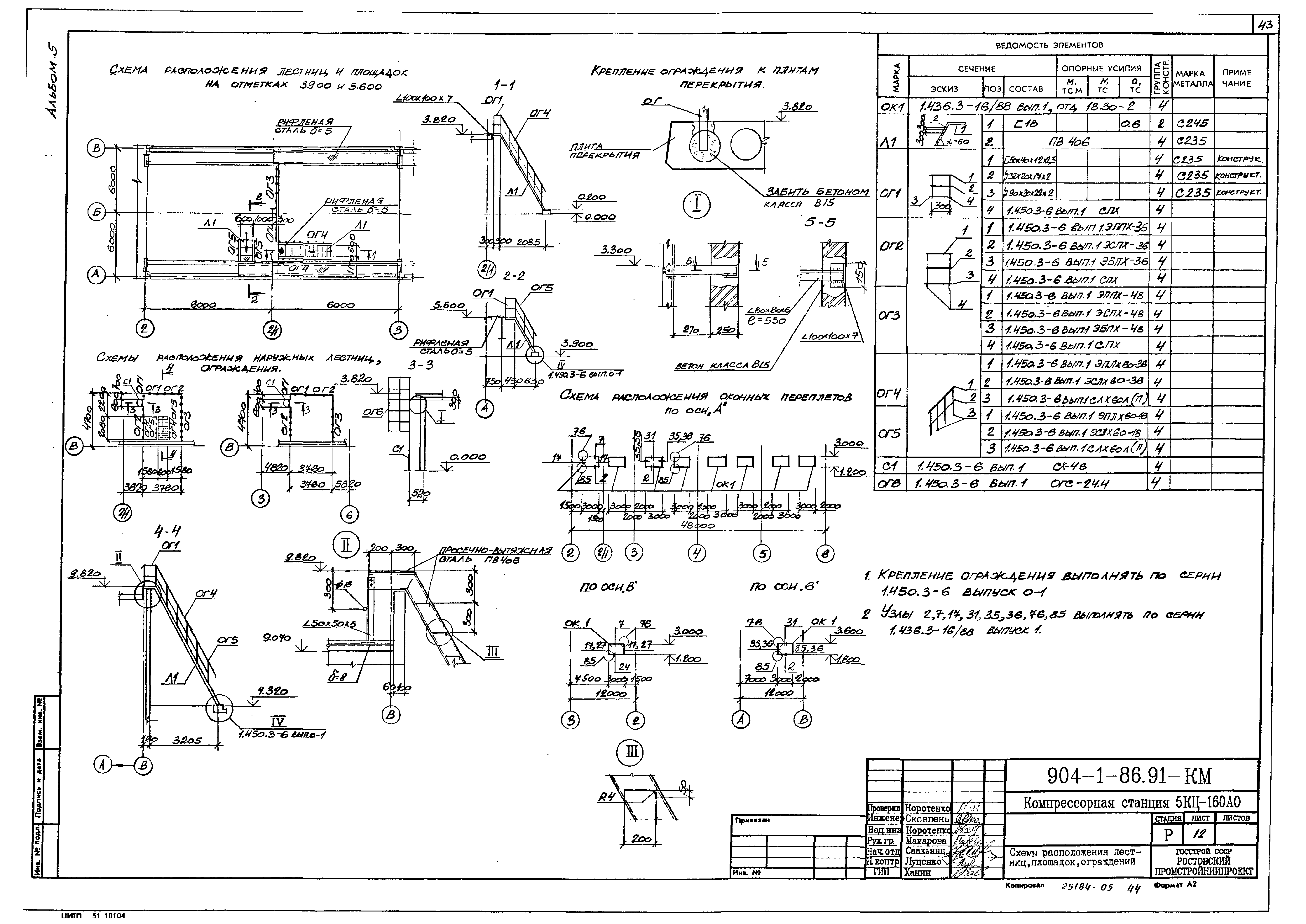
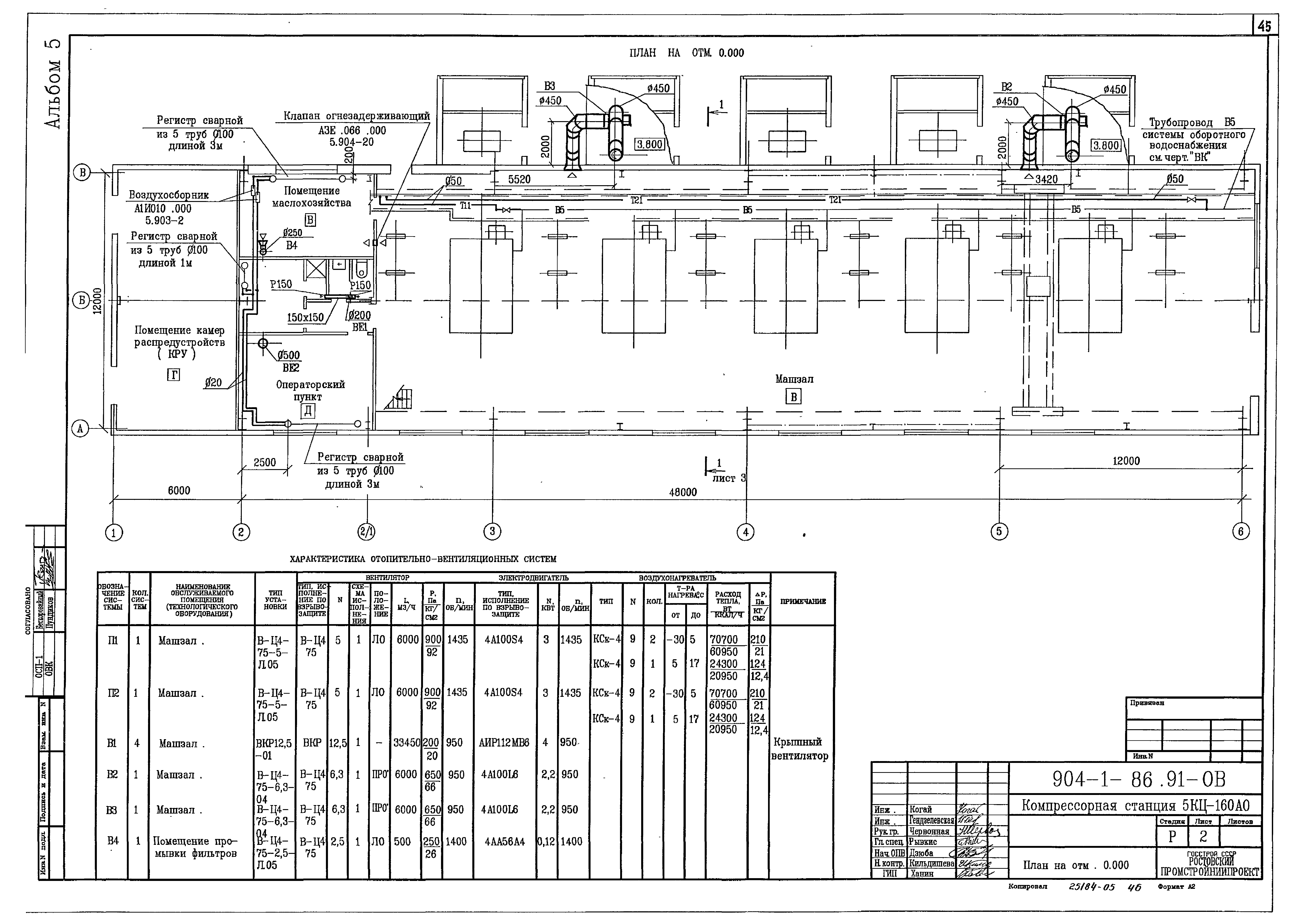
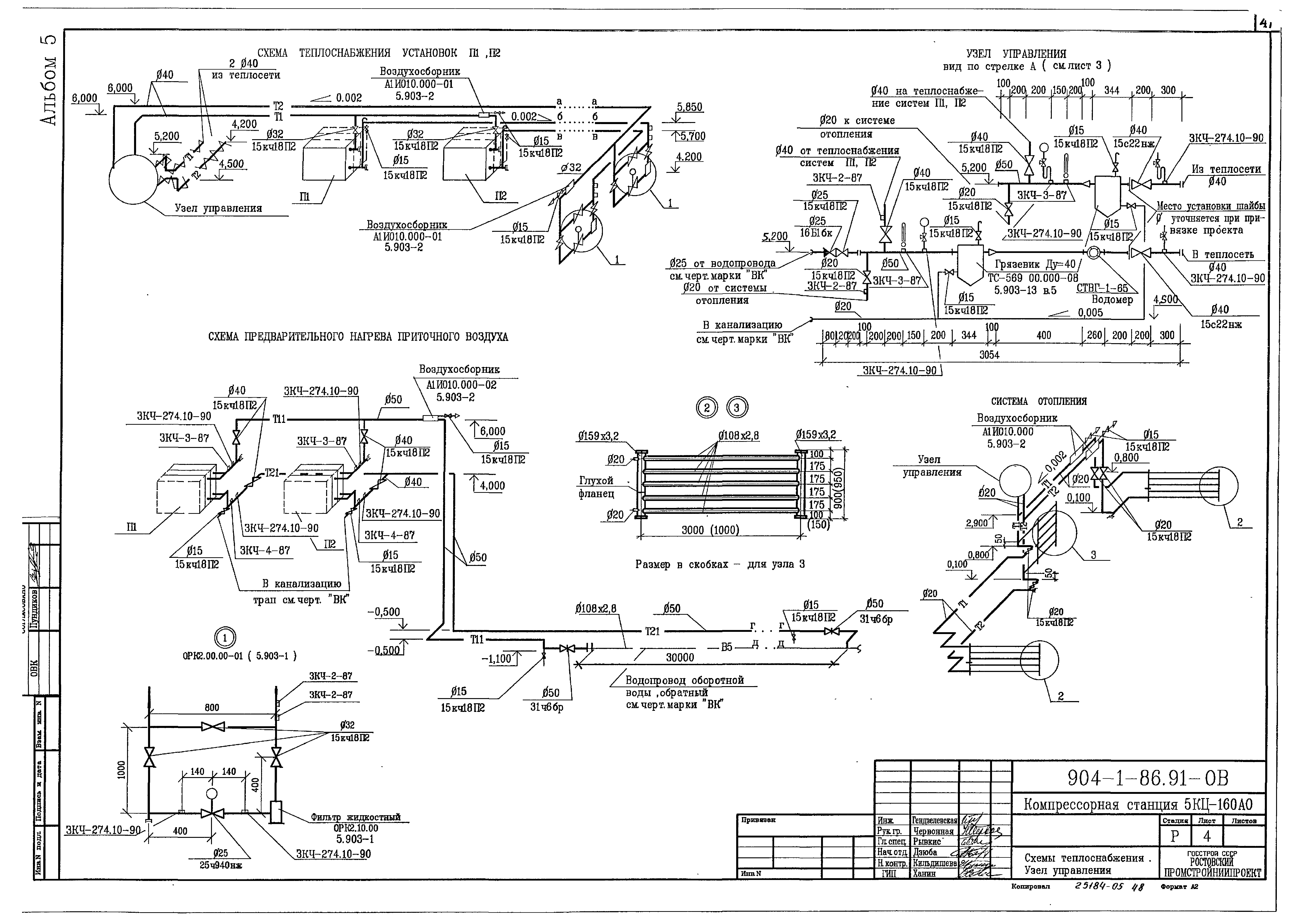
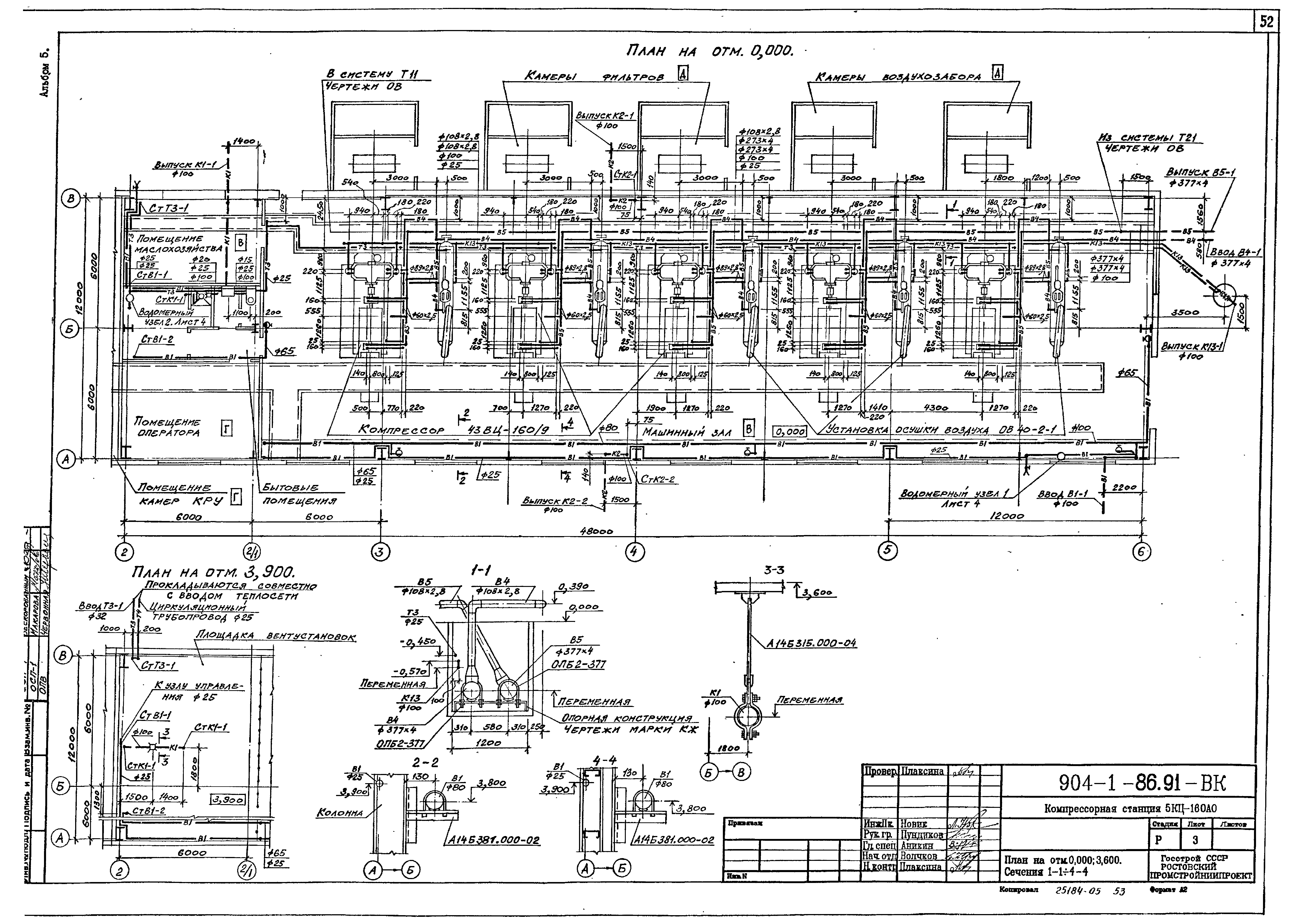
| Оглавление: | Содержание альбома Архитектурные решения Общие данные Ведомости отделки помещений перемычек, ворот, дверей. Спецификация элементов к планам на отм. 0.000 и 3.900 План на отм. 0.000. Разрезы 1-1 - 4-4. Фрагмент 1 План на отм. 3.900. Узлы 1 - 14 Фасады. План кровли. Схемы расположения закладных изделий в проемах тип 2 и 3 Схемы раскладки трехслойных стеновых панелей План полов. Узлы 15 - 19 Узлы 20 - 27 Конструкции железобетонные Общие данные Схема расположения элементов фундаментов Узлы 1-X, 1н Фундаменты Фм1 - Фм4, Фм8 Фундаменты Фм5 - Фм7 Схема расположения подземных конструкций Схема расположения элементов канала КН1 Схема расположения элементов канала КН2 Схема расположения плит перекрытия канала КН2. Колодец К1 Участки монолитные Ум1 - Ум6 Участки монолитные Ум1 - Ум4. Общий вид Участок монолитный Ум5. Общий вид Участок монолитный Ум6. Общий вид Участки монолитные Ум1 - Ум6. Сечения 22-22 - 29-29. Схема армирования Участки монолитные Ум1 - Ум6. Сечения 30-30 - 36-36. Схема армирования Фундаменты под оборудование ФОм1, ФОм11 - ФОм13 Фундаменты под оборудование ФОм2 - ФОм10 Схема расположения стеновых панелей Схемы расположения плит перекрытия Участки монолитные Ум7 - Ум10 Конструкции металлические Общие данные Техническая спецификация металла на лестницы Схемы расположения элементов каркаса и прогонов Схемы расположения подкрановых балок, рельсов, упоров. Узлы 1 - 11 Схемы расположения перекрытия каналов на отм. 0.000, кронштейнов и опор Схемы расположения балок перекрытия на отм. 3.820, опор под трубопроводы Схемы расположения лестниц, площадок, ограждений Отопление и вентиляция Общие данные План на отм. 0.000 План на отм. 3.900 Схемы теплоснабжения. Узел управления Схемы воздуховодов систем П1, П2, В2 - В4, ВЕ1 - ВЕ3 Установка систем П1, П2 Внутренние водопровод и канализация Общие данные План на отм. 0.000; 3.900. Сечения 1-1 - 4-4 Схемы систем В1, Т3, Т4, К1 План кровли. Схемы систем В4, В5, К2, К13 |
| Разработан: | Гипрониистройдормаш |
| Утверждён: | 18.10.1990 Минтяжмаш СССР (USSR Mintyazhmash 14) |






















































