Скачать Типовой проект 904-1-86.91 Альбом 7. Спецификации оборудованияДата актуализации: 01.01.2021
|
| Обозначение: | Типовой проект 904-1-86.91 |
| Обозначение англ: | 904-1-86.91 |
| Статус: | не определен законодательством |
| Название рус.: | Альбом 7. Спецификации оборудования |
| Дата добавления в базу: | 01.10.2014 |
| Дата актуализации: | 01.01.2021 |
| Дата введения: | 18.10.1990 |
| Дата окончания срока действия: | 30.06.2003 |
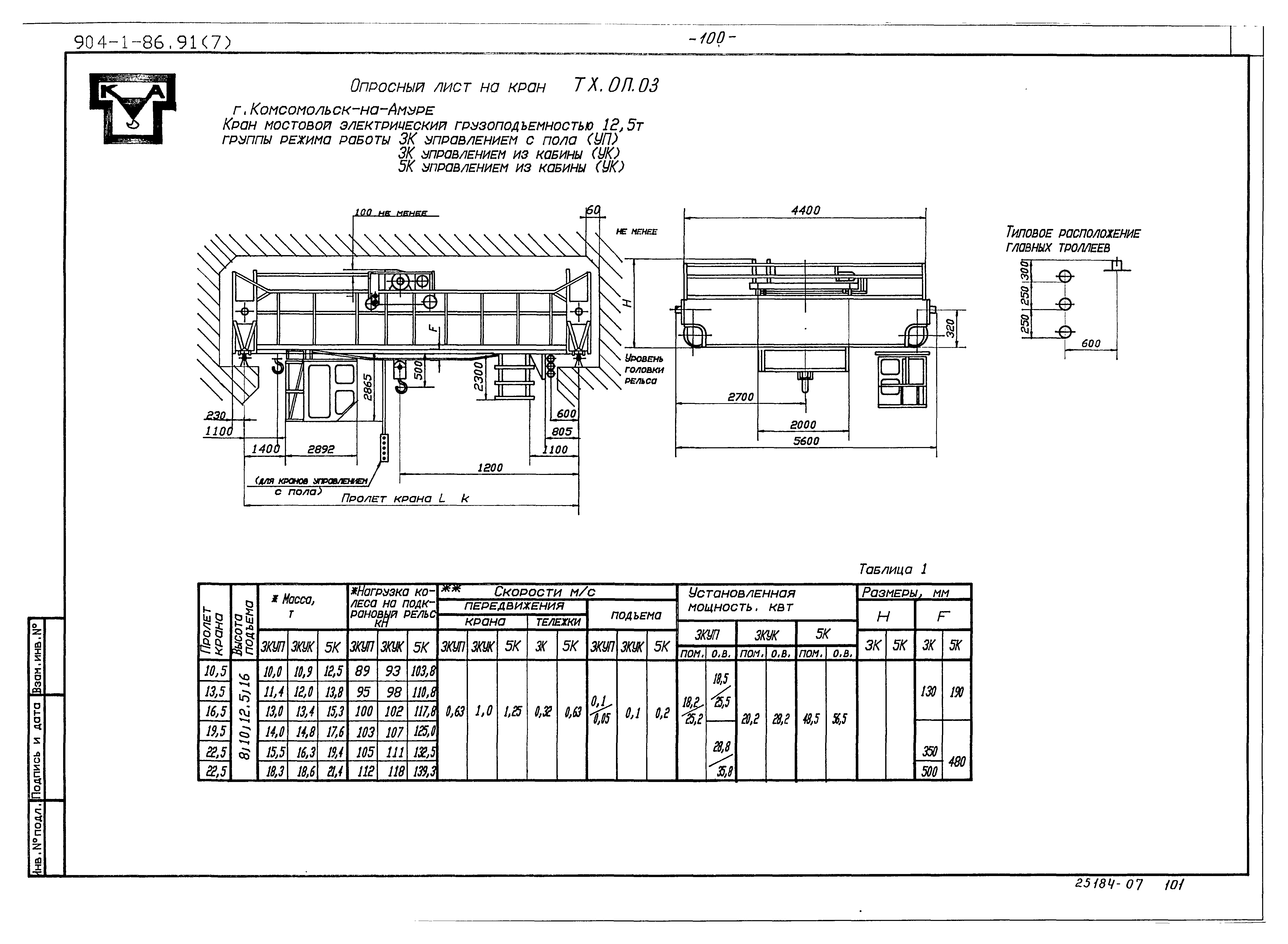
| Оглавление: | ТХ.СО Спецификация оборудования к основному комплекту чертежей марки ТХ ЭС.СО Спецификация оборудования к основному комплекту чертежей марки ЭС ЭМ.СО Спецификация оборудования к основному комплекту чертежей марки ЭМ ЭО.СО Спецификация оборудования к основному комплекту чертежей марки ЭО СС.СО Спецификация оборудования к основному комплекту чертежей марки СС ВК.СО Спецификация оборудования к основному комплекту чертежей марки ВК ОВ.СО Спецификация оборудования к основному комплекту чертежей марки ОВ АС.СО Спецификация оборудования к основному комплекту чертежей марки АС АТХ.СО Спецификация оборудования к основному комплекту чертежей марки АТХ АОВ.СО Спецификация оборудования к основному комплекту чертежей марки АОВ Опросные листы |
| Разработан: | Гипрониистройдормаш |
| Утверждён: | 18.10.1990 Минтяжмаш СССР (USSR Mintyazhmash 14) |







































































































