Скачать Типовые проектные решения 904-2-056.95 Альбом III. Блок утилизации теплоты до 20 тыс. куб. м/ч. Технология производства. Архитектурно-строительные решенияДата актуализации: 01.01.2021
|
| Обозначение: | Типовые проектные решения 904-2-056.95 |
| Обозначение англ: | 904-2-056.95 |
| Статус: | справочные материалы, мп, тпр |
| Название рус.: | Альбом III. Блок утилизации теплоты до 20 тыс. куб. м/ч. Технология производства. Архитектурно-строительные решения |
| Дата добавления в базу: | 01.10.2014 |
| Дата актуализации: | 01.01.2021 |
| Дата введения: | 24.11.1995 |
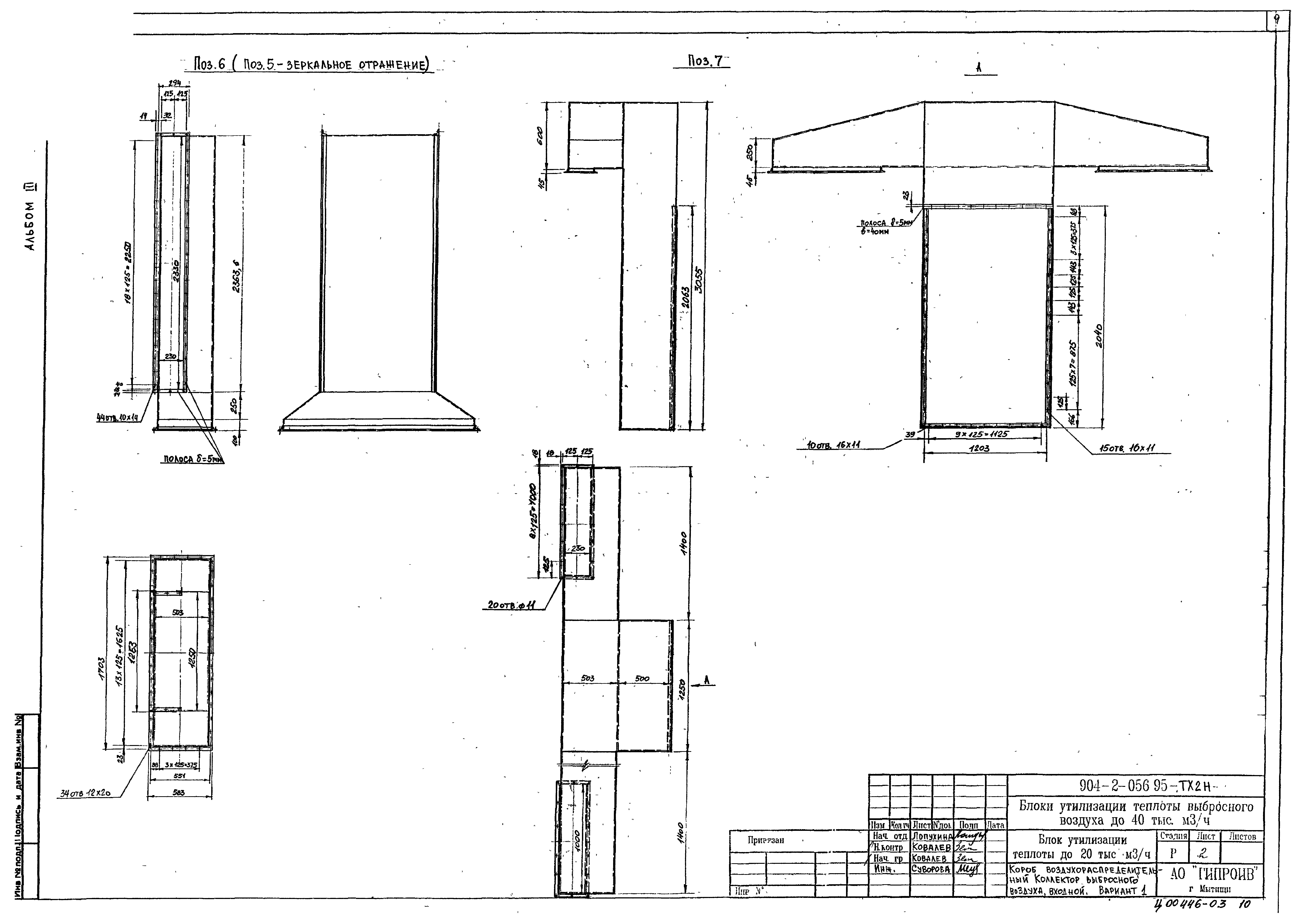
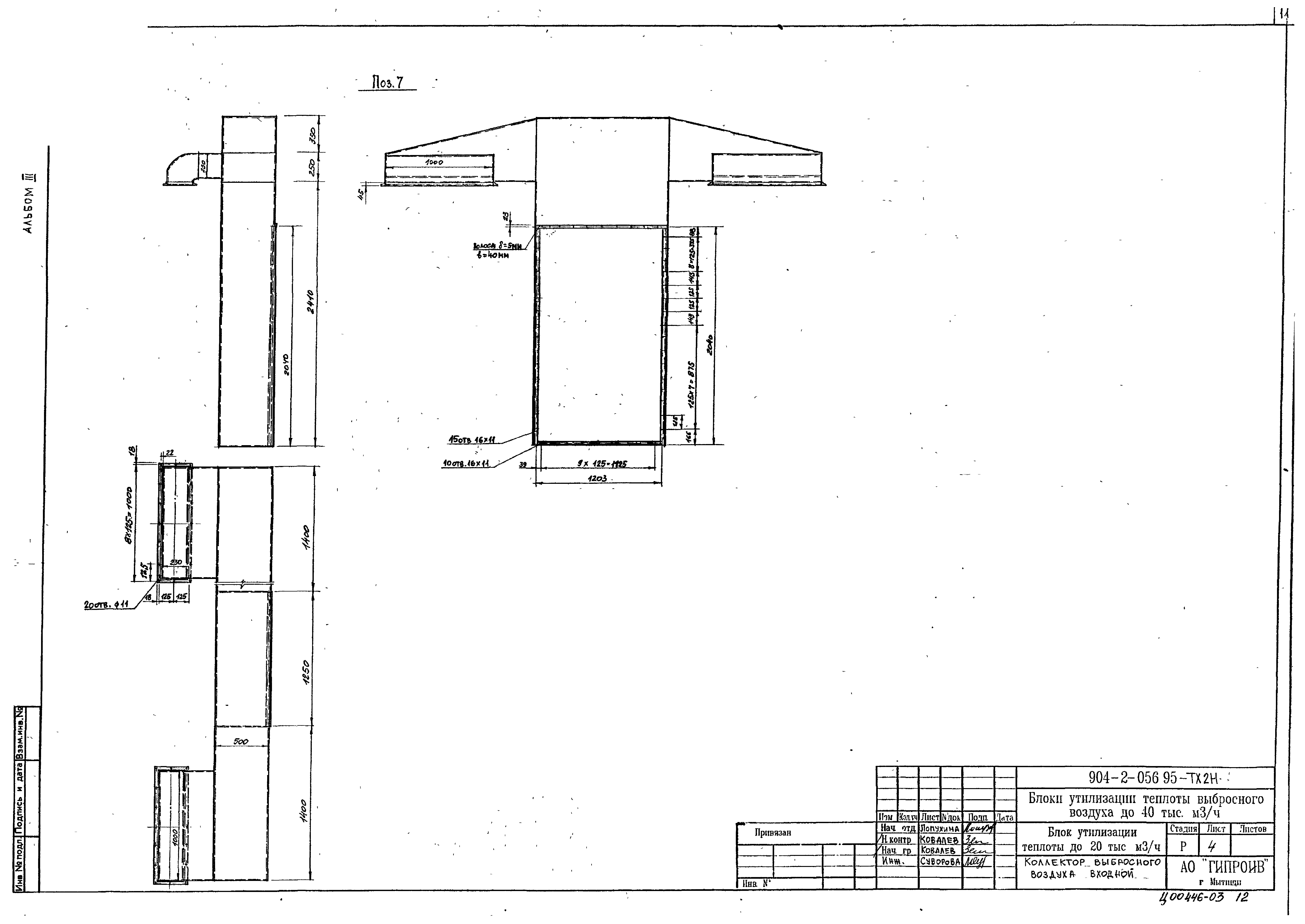
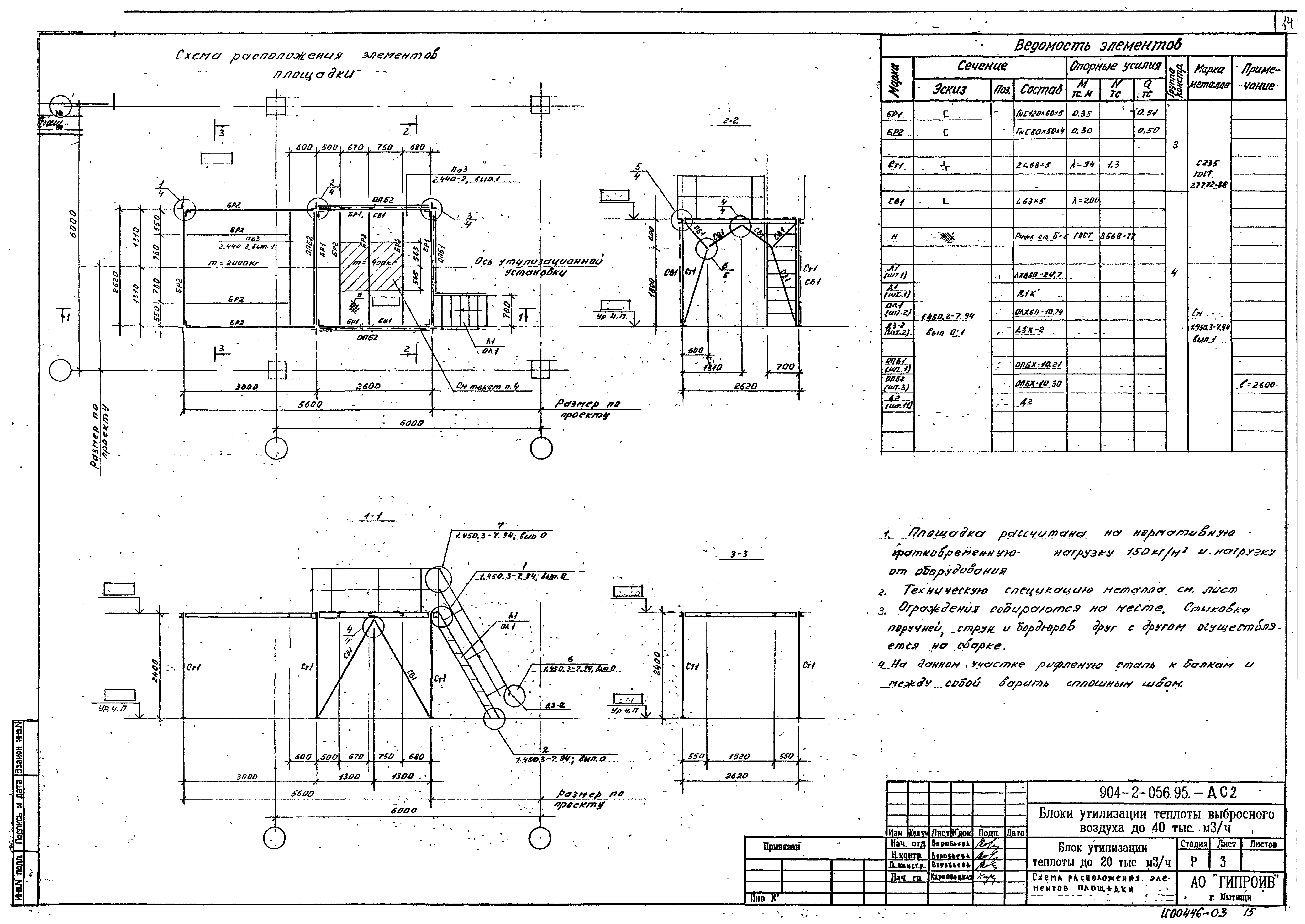
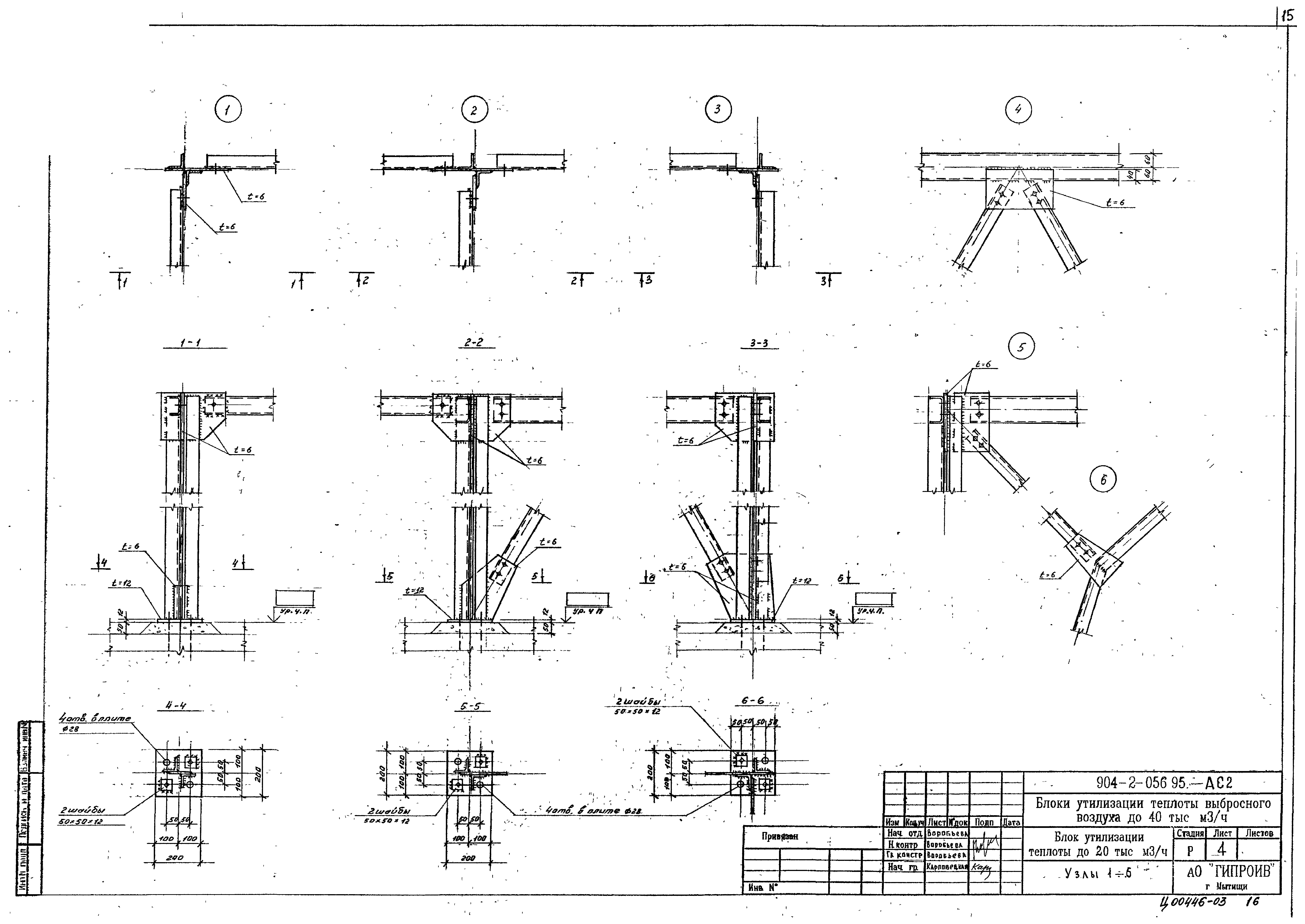
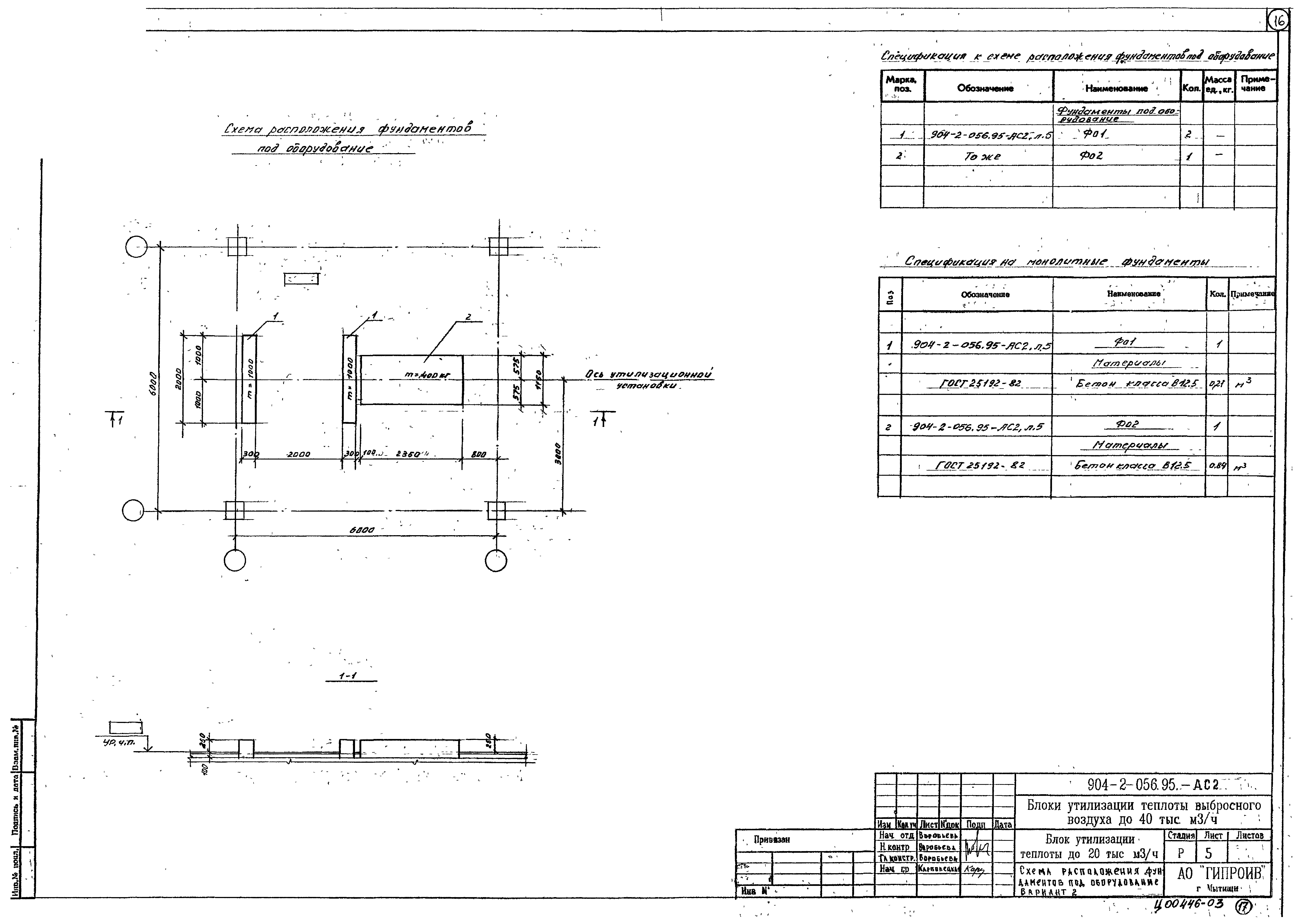
| Оглавление: | Содержание альбома Технология производства Общие данные Принципиальная схема Планы. Разрез "1-1", "2-2". Вариант 1 Спецификация. Вариант 1 План. Разрез "1-1". Спецификация. Вариант 2 Эскизные чертежи общих видов нестандартизированного оборудования Короб воздухораспределительный. Коллектор выбросного воздуха выходной. Вариант 1 Короб воздухораспределительный. Коллектор выбросного воздуха входной. Вариант 1 Короб воздухораспределительный. Коллектор выбросного воздуха выходной. Вариант 2 Короб воздухораспределительный. Коллектор выбросного воздуха входной. Вариант 2 Архитектурно-строительные решения Общие данные Техническая спецификация стали. Вариант 1 Схема расположения элементов площадки. Вариант 1 Узлы 1 - 6 Схема расположения фундаментов под оборудование. Вариант 2 |
| Разработан: | АО Гипроив |
| Утверждён: | 24.11.1995 Комитет РФ по химической и нефтехимической промышленности (09/1-11-99) |
















