Скачать А3-814 Временные рекомендации по проведению инвентаризации вентиляционных выбросовДата актуализации: 01.01.2021
|
| Обозначение: | А3-814 |
| Обозначение англ: | А3-814 |
| Статус: | справочные материалы, мп, тпр |
| Название рус.: | Временные рекомендации по проведению инвентаризации вентиляционных выбросов |
| Дата добавления в базу: | 01.10.2014 |
| Дата актуализации: | 01.01.2021 |
| Область применения: | Документ выпущен с целью унификации методических подходов к организации контроля выбросов, а также к отбору и анализу проб воздуха для получения достоверных и сопоставимых результатов. В "Рекомендациях" рассмотрены вопросы отбора и анализа проб воздуха в воздуховодах на содержание вредных веществ при контроле выбросов, испытания пылеулавливающих и газоочистных установок, состав технического отчета по проведенной работе и т.д. |
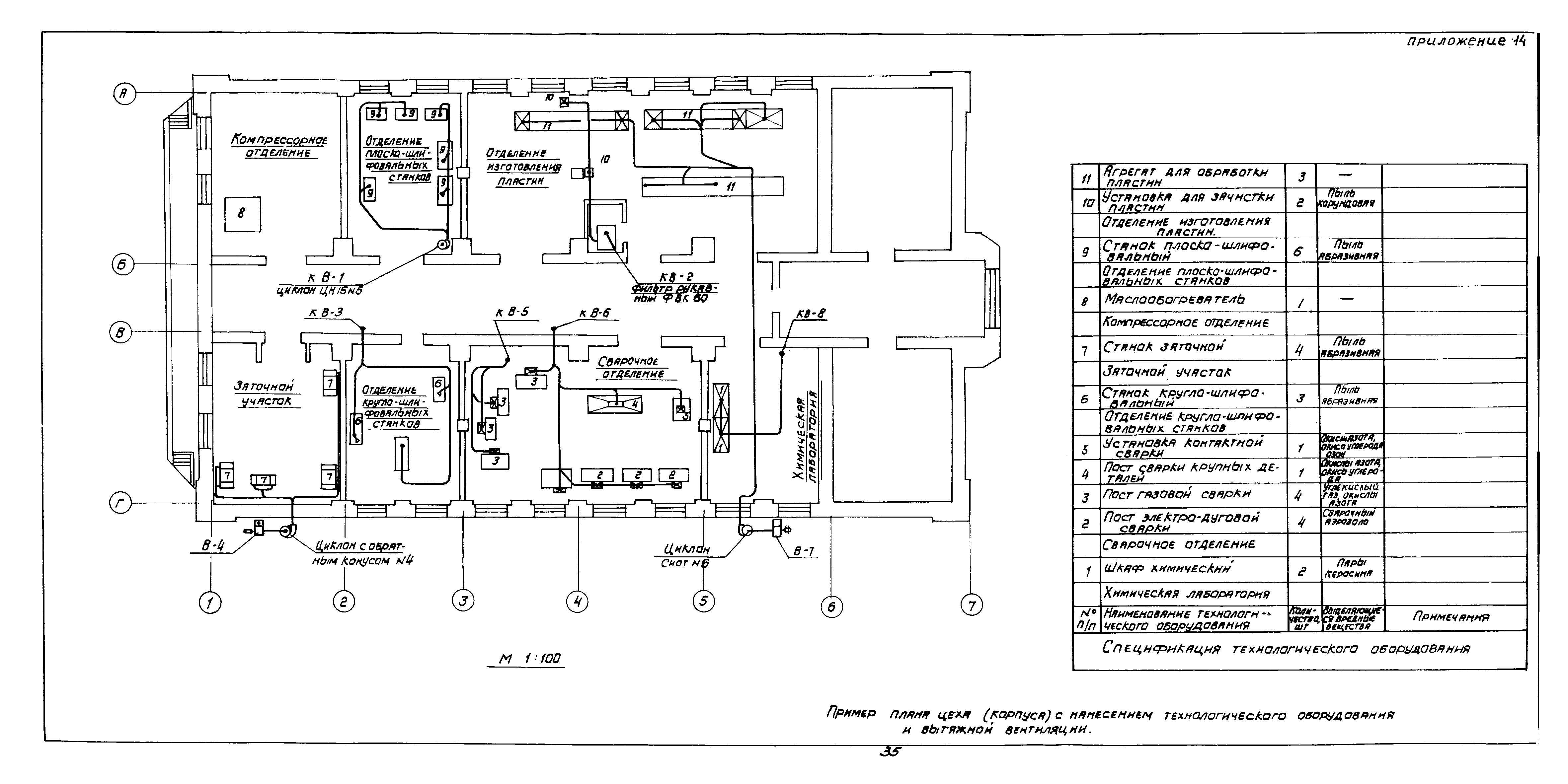
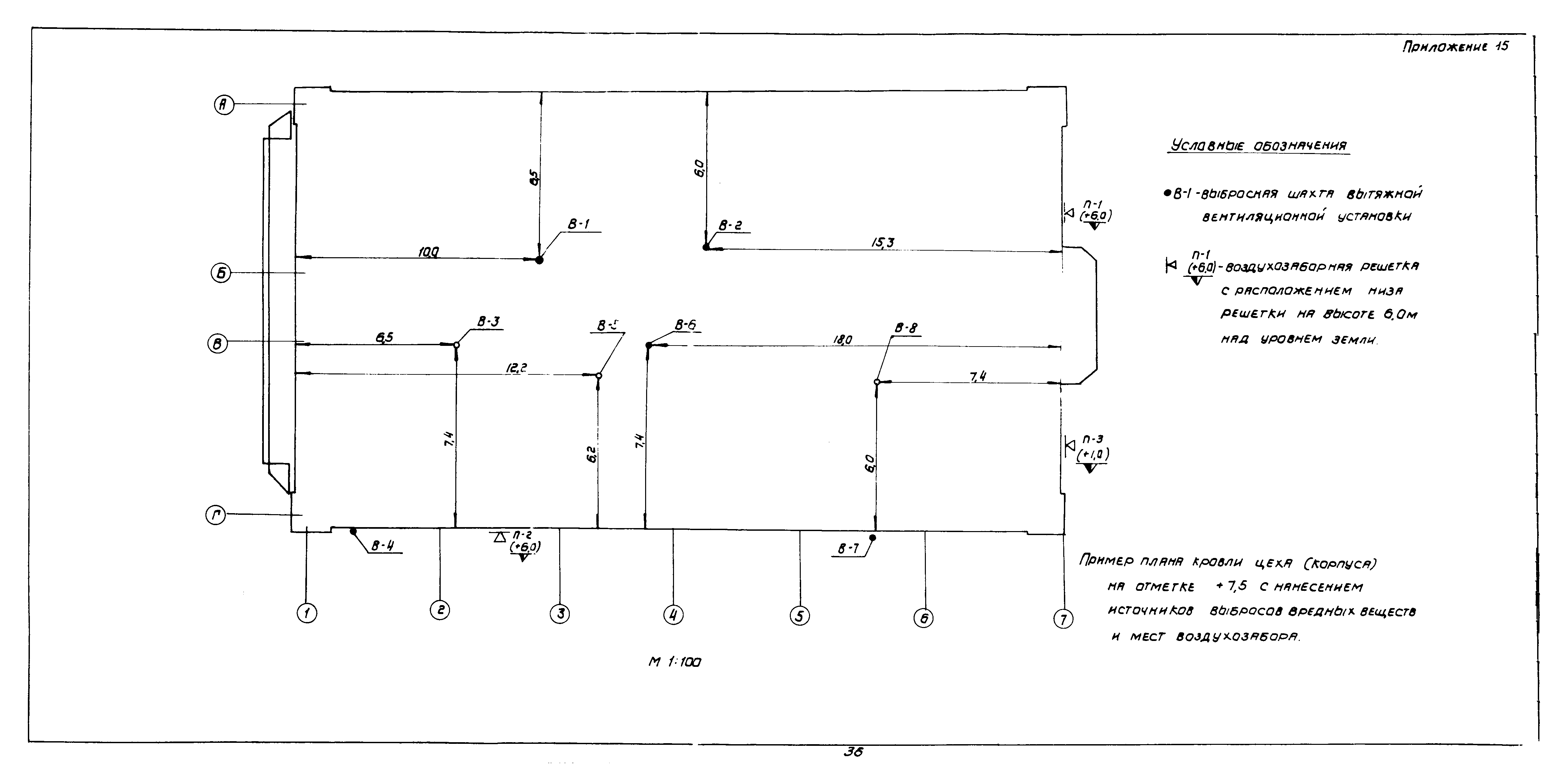
| Оглавление: | 1. Общие положения 2. Отбор и анализ проб воздуха на содержание вредных веществ 3. Испытание газоочистных и пылеулавливающих установок 4. Математическая обработка результатов измерений 5. Состав и содержание технического отчета Приложение 1. Схема отбора проб методом внешней фильтрации Приложение 2. Схема отбора проб пылей и аэрозолей методом внутренней фильтрации с применением закрытого аллонжа Приложение 3. Схема отбора проб пылей и аэрозолей методом внутренней фильтрации с применением патрона НИИОГАЗа Приложение 4. Техническая характеристика фильтров АФА Приложение 5. Номограмма института Проектпромвентиляция для подбора диаметра наконечника пылеотборной трубки и определения расхода аспирируемого воздуха Приложение 6. Пример расположения точек отбора пылей и аэрозолей и их координаты в воздуховодах круглого сечения Приложение 7. Пример расположения точек отбора пылей и аэрозолей в воздуховодах прямоугольного сечения Приложение 8. График зависимости концентрации вредных веществ в воздуховоде от цикличности работы технологического оборудования Приложение 9. Пример математической обработки результатов измерений Приложение 10. Значения нормированного отклонения (по Стьюденту) Приложение 11. Результаты обследования вентиляционных выбросов Приложение 12. Результаты испытания газоочистных (пылеулавливающих) установок Приложение 13. Пример генерального плана промышленной площадки Приложение 14. Пример плана цеха (корпуса) с нанесением технологического оборудования и вытяжной вентиляции Приложение 15. Пример плана кровли цеха (корпуса) с нанесением источников выбросов вредных веществ и мест воздухозабора |
| Разработан: | ГПИ Сантехпроект Госстроя СССР |
| Утверждён: | ГПИ Сантехпроект |





































