Скачать Типовой проект 902-1-46 Альбом I. Технологические решения. Отопление и вентиляция. Внутренний водопровод и канализацияДата актуализации: 01.01.2021
|
| Обозначение: | Типовой проект 902-1-46 |
| Обозначение англ: | 902-1-46 |
| Статус: | заменен |
| Название рус.: | Альбом I. Технологические решения. Отопление и вентиляция. Внутренний водопровод и канализация |
| Дата добавления в базу: | 01.10.2014 |
| Дата актуализации: | 01.01.2021 |
| Дата введения: | 10.05.1978 |
| Дата окончания срока действия: | 01.02.1985 |
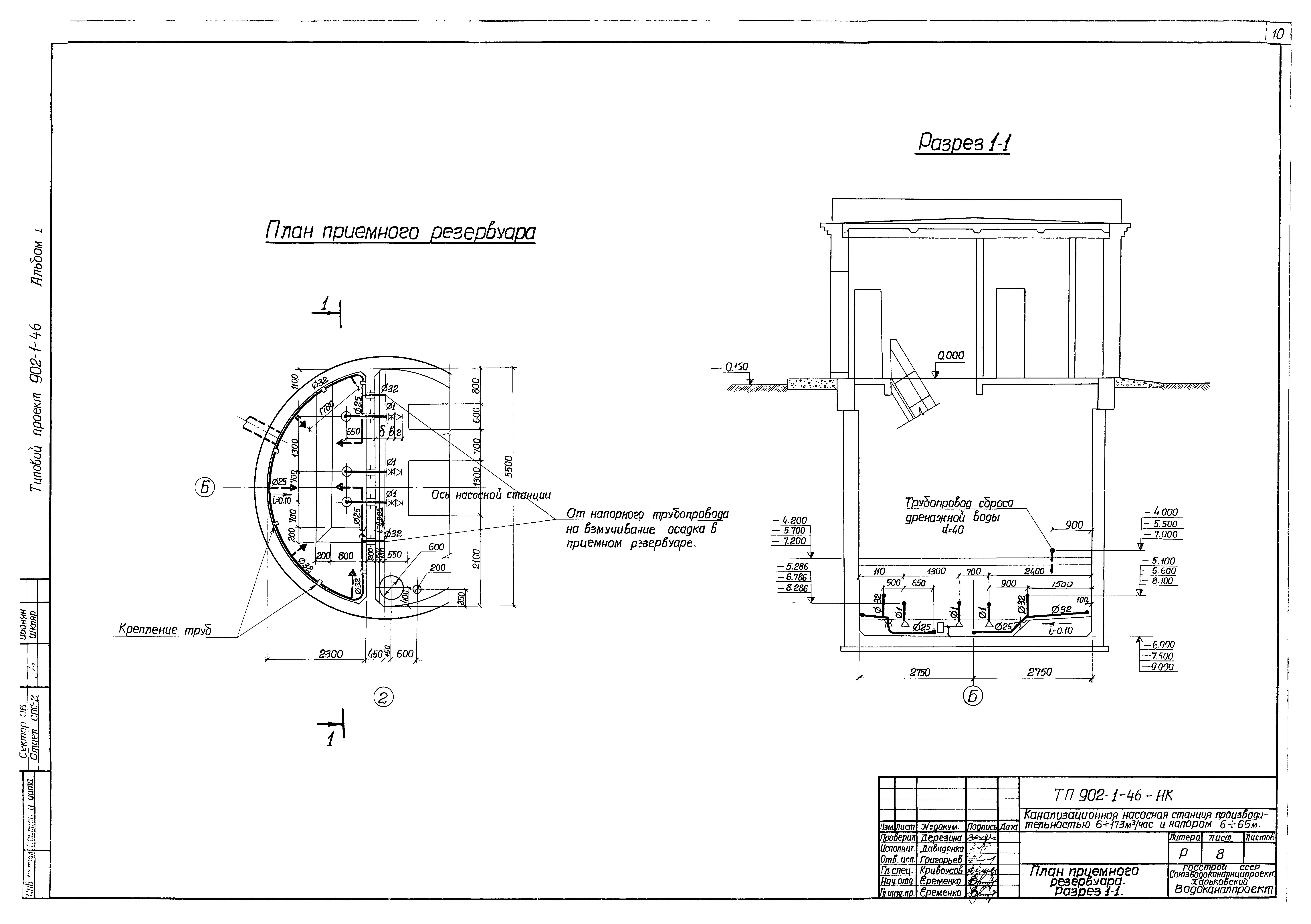
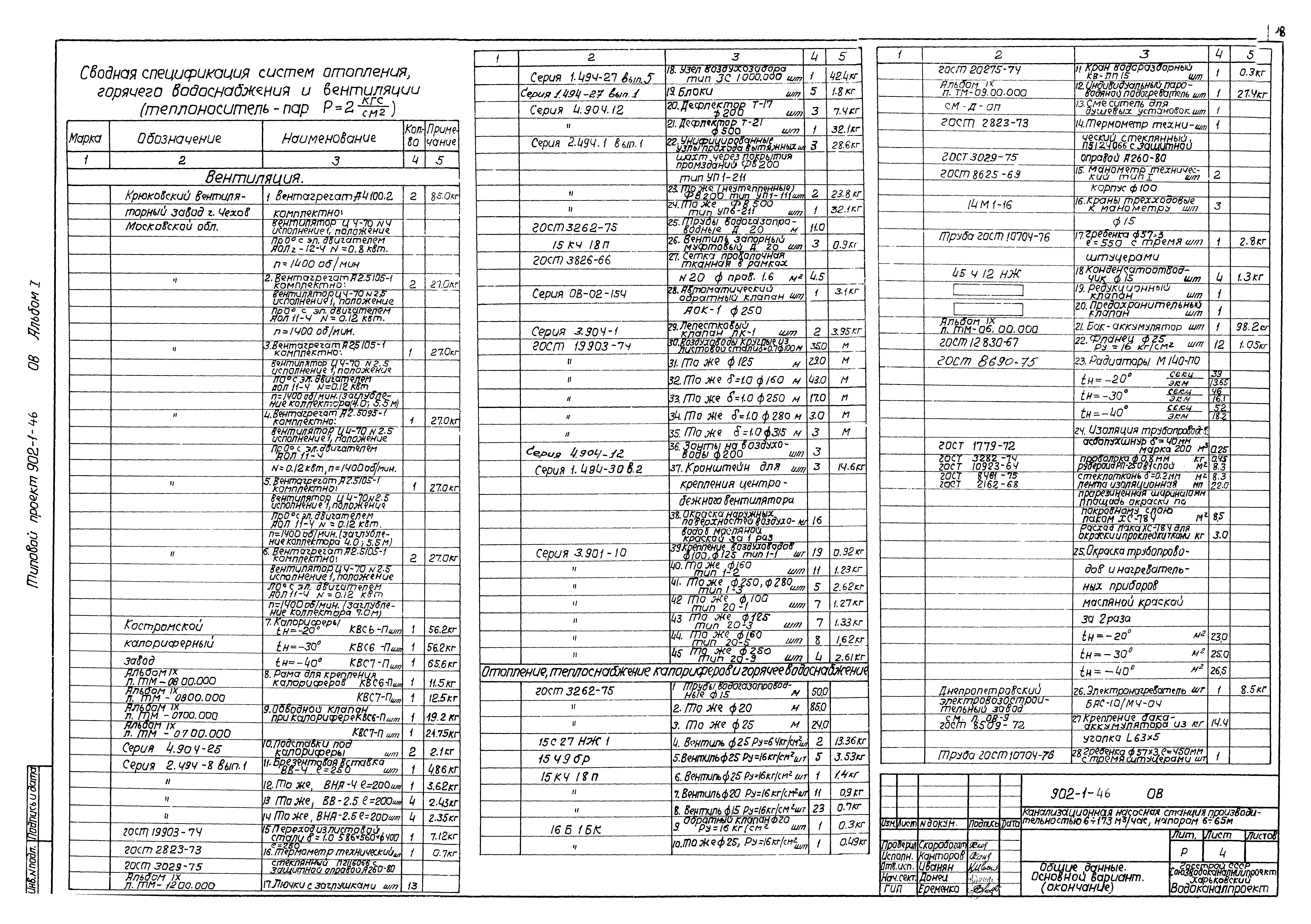
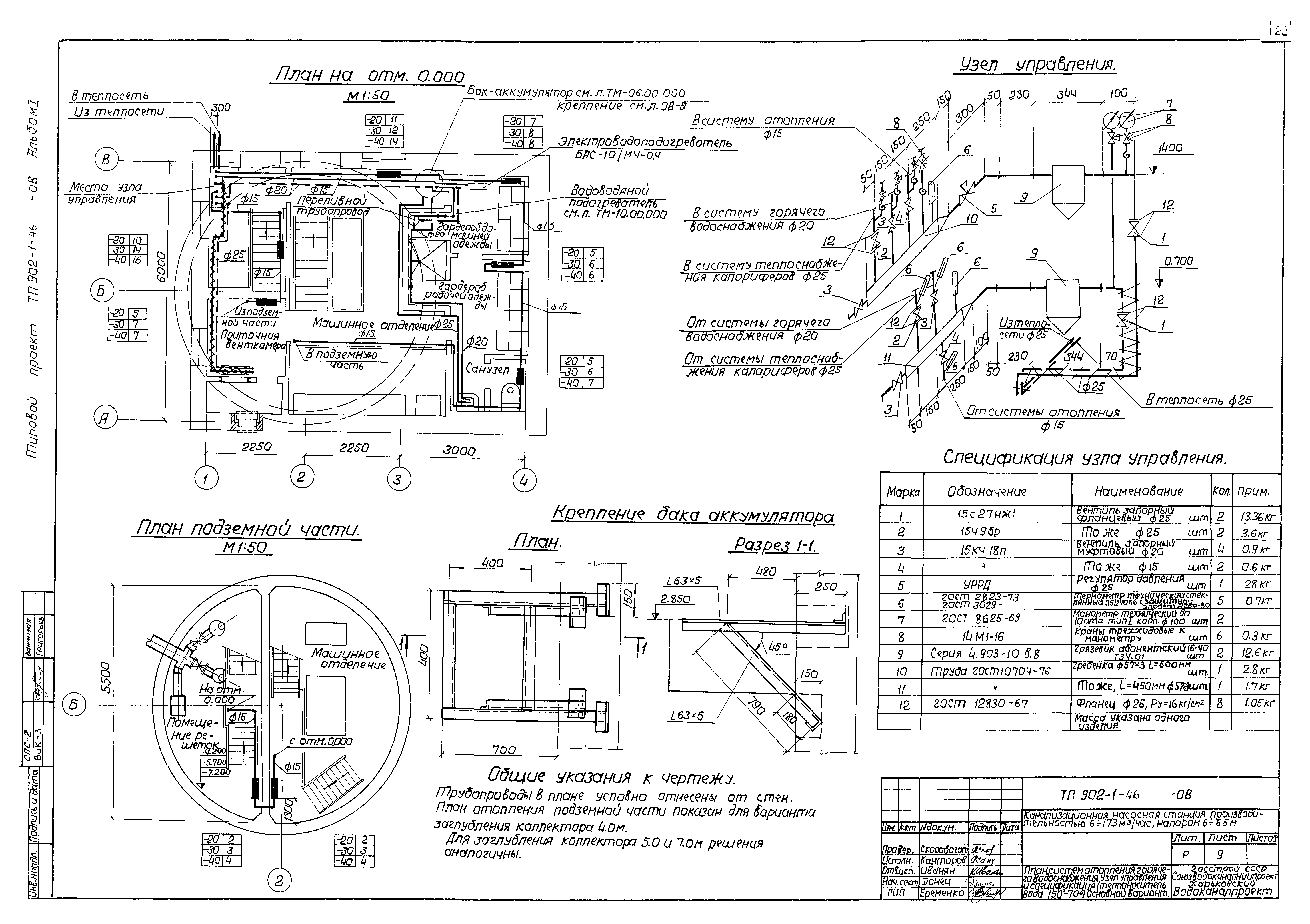
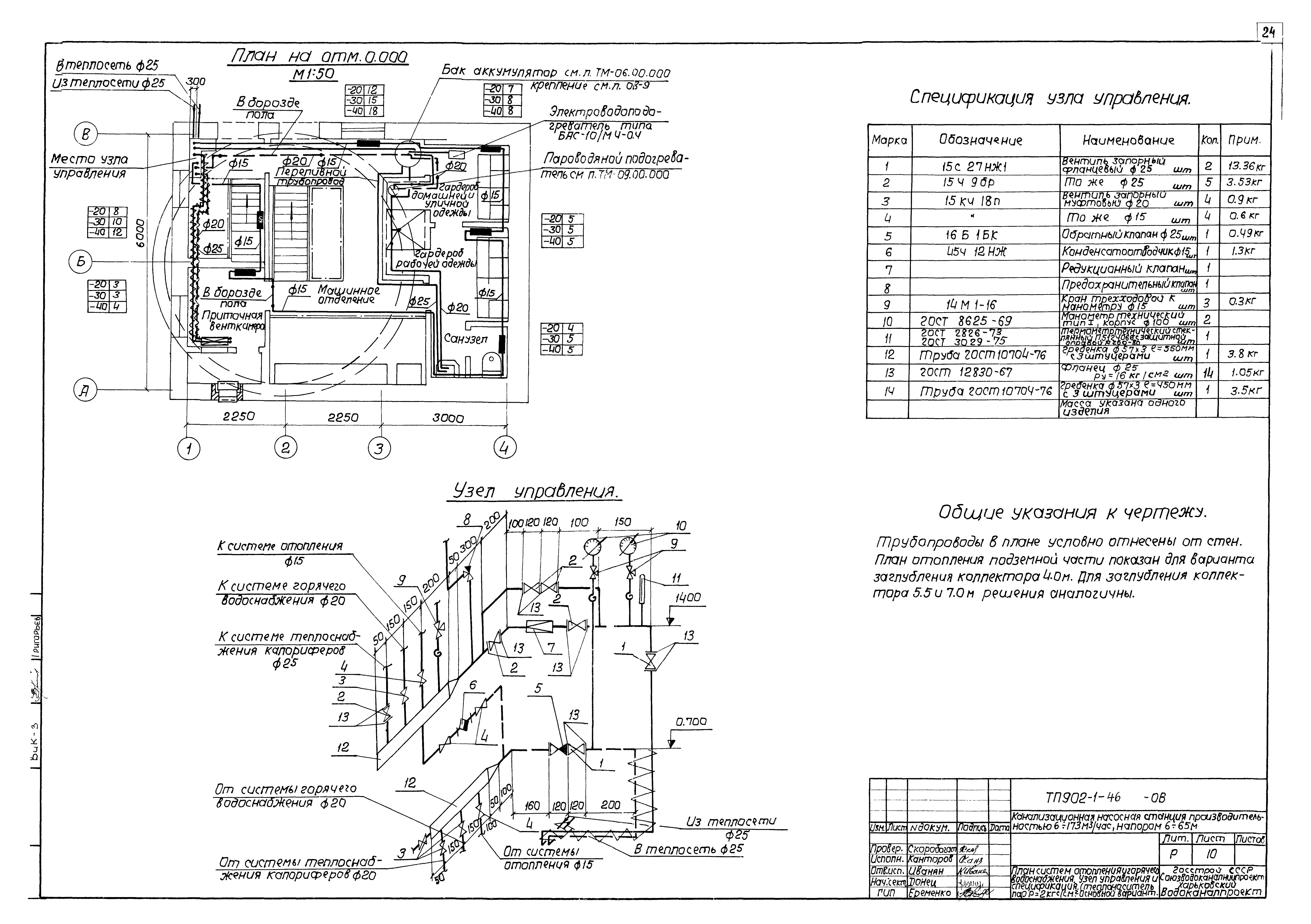
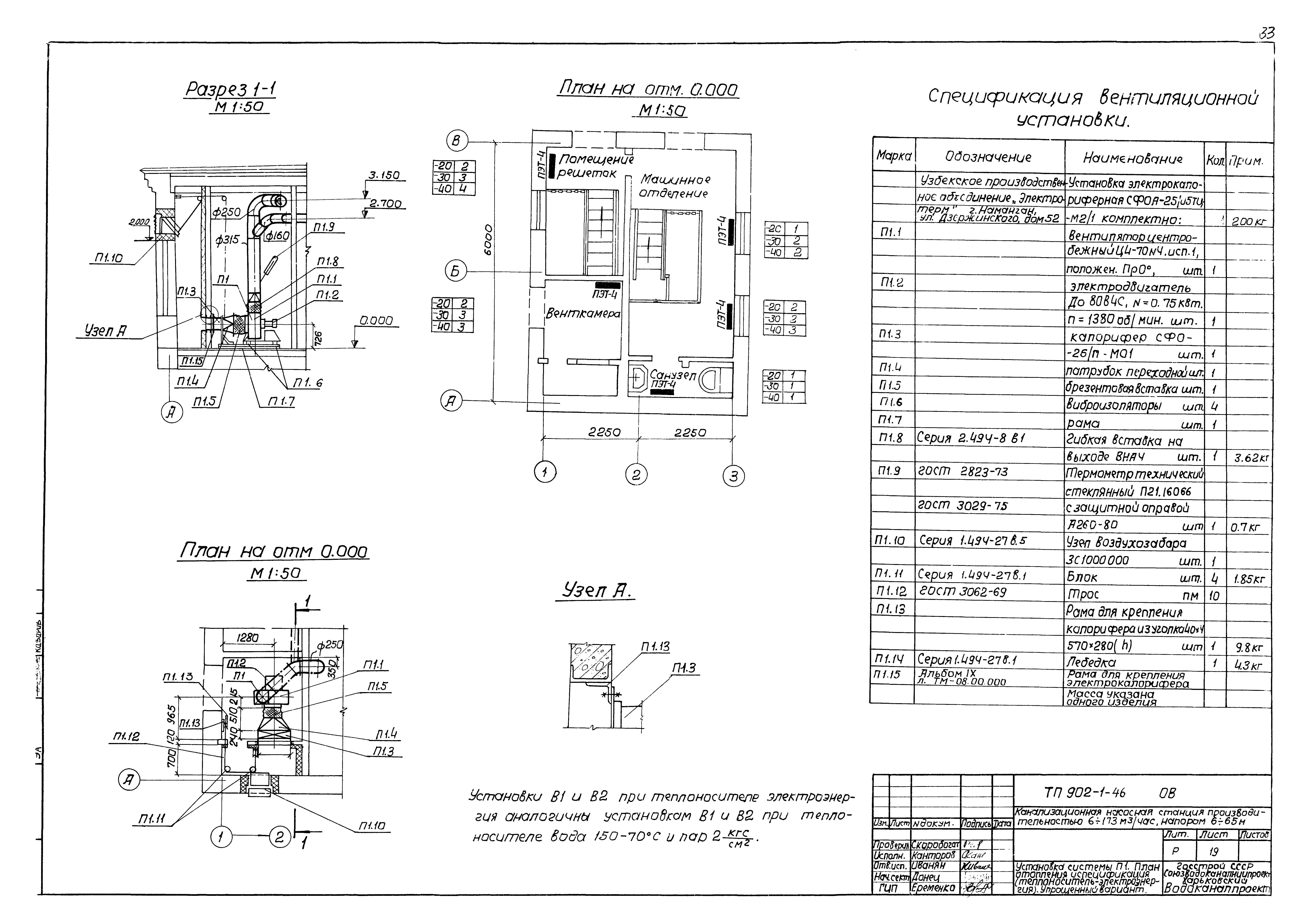
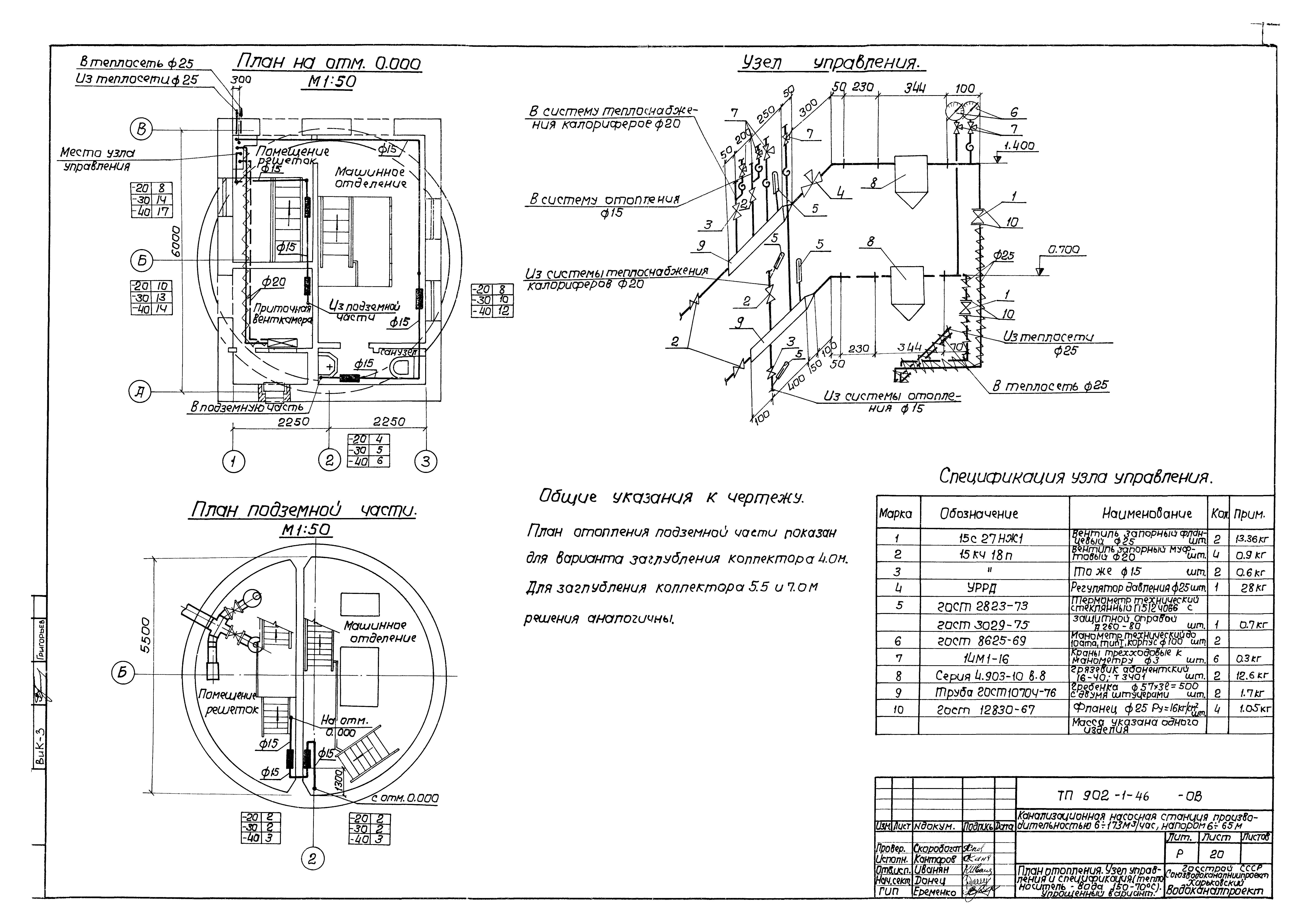
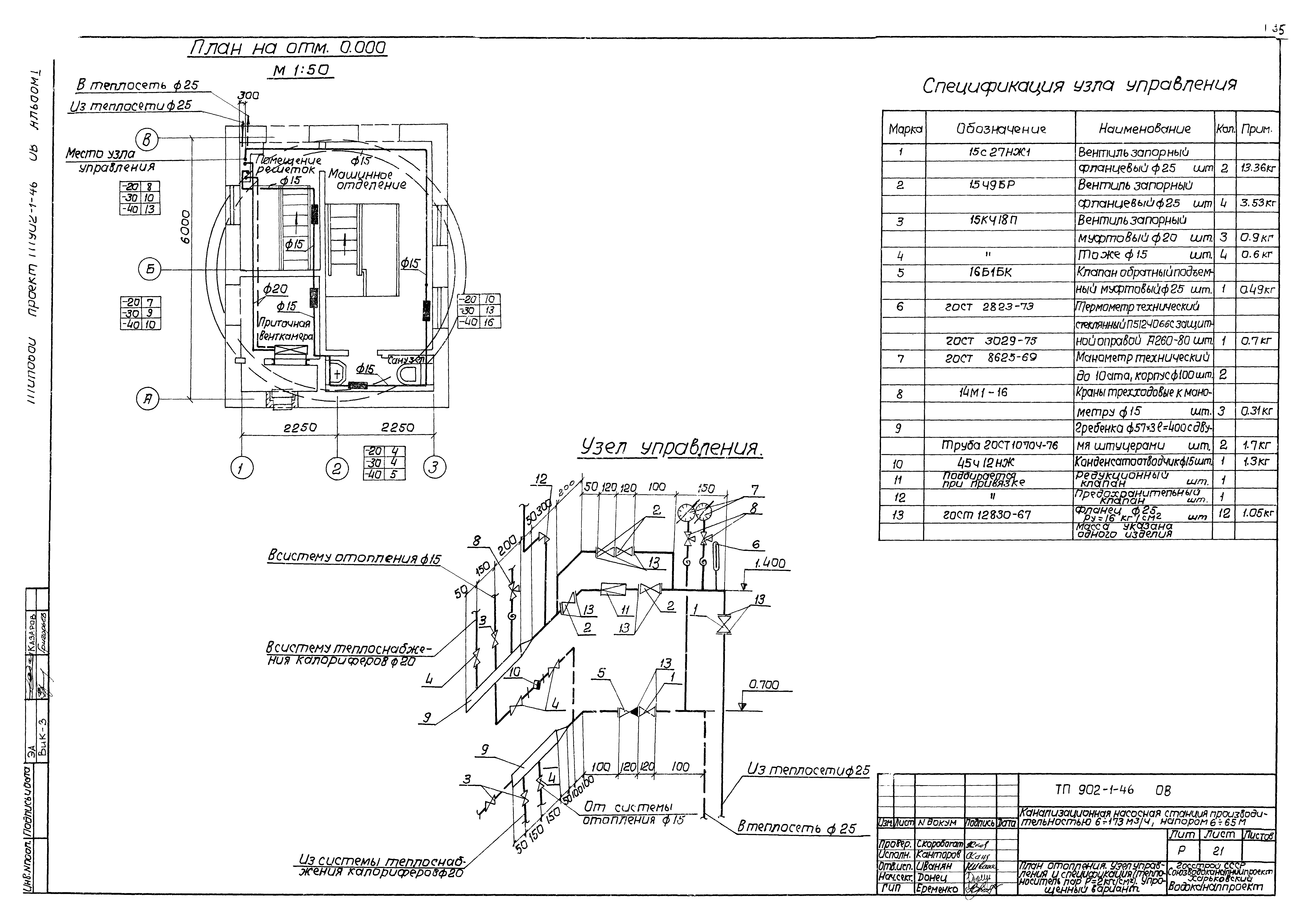
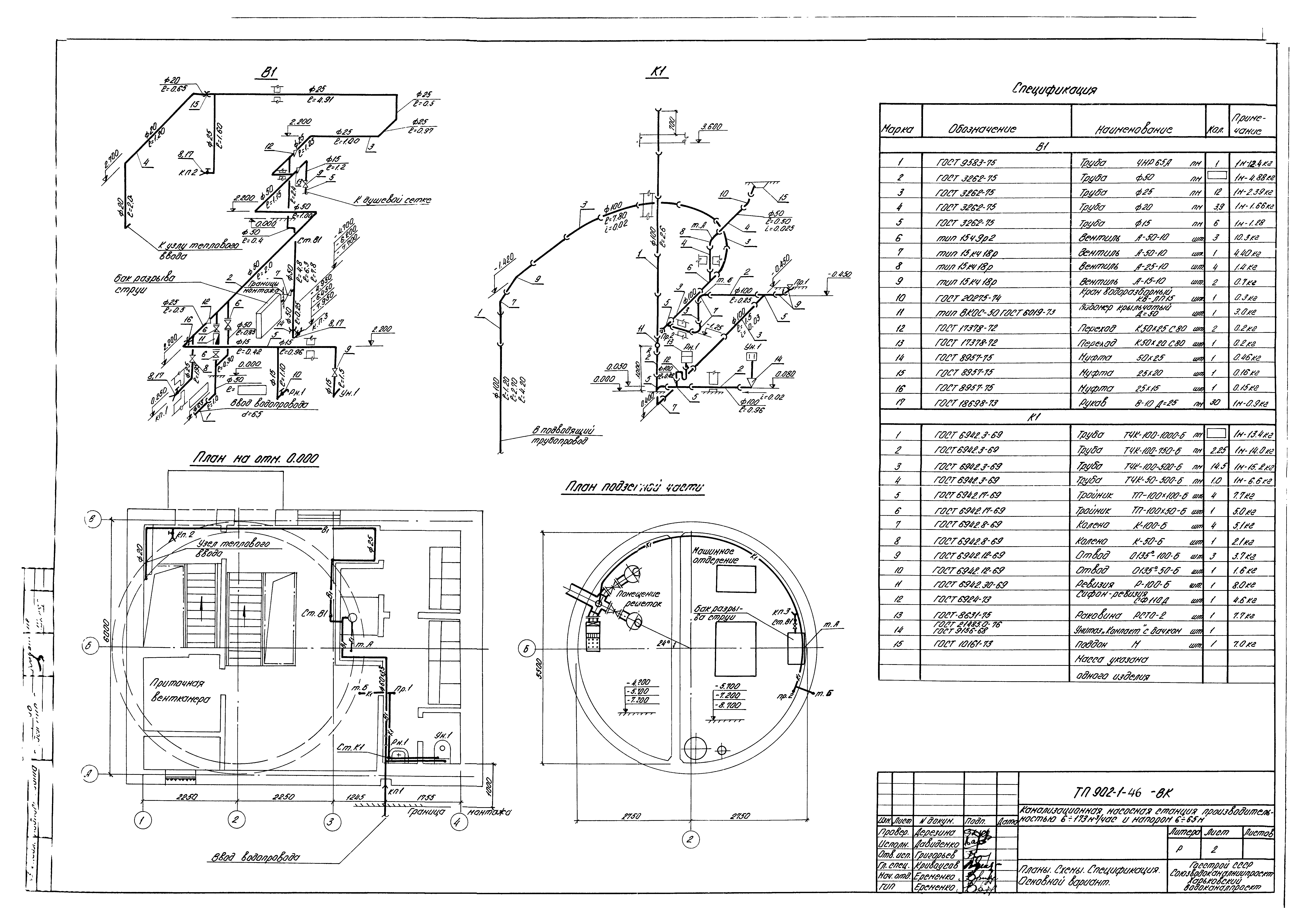
| Оглавление: | Содержание альбома Технологические решения (НК) Общие данные. Ведомость чертежей основного комплекта. Пояснительная записка Сводная спецификация Примечания План. Спецификация. Таблица размеров, диаметров и фасонных частей трубопроводов Разрезы 1-1 и 2-2 План приемного резервуара. Разрез 1-1 Схема технологических трубопроводов Технологические трубопроводы. Спецификация Технический водопровод. План. Схема. Спецификация Отопление и вентиляция (ОВ) Общие данные. Основной вариант План вентиляции на отм. 0.000. Разрез 1-1. Основной вариант План вентиляции подземной части. Разрезы 2-2 и 3-3. Основной вариант Схемы систем П1, В1, В2, В3. Основной вариант Установки систем П1, В1. Планы. Разрезы 1-1, 2-2 и 3-3. Основной вариант План систем отопления и горячего водоснабжения. Узел управления и спецификация (теплоноситель - вода 150 - 70 градусов Цельсия). Основной вариант План систем отопления и горячего водоснабжения. Узел управления и спецификация (теплоноситель - пар 2 кгс/кв. см). Основной вариант Схемы систем отопления, теплоснабжения калориферов и горячего водоснабжения. Основной вариант Общие данные. Упрощенный вариант План вентиляции. Разрезы 1-1 и 2-2. Упрощенный вариант Схемы систем П1, В1, В2. Упрощенный вариант Установки систем П1, В1. Планы. Разрезы 1-1 и 2-2 (теплоноситель - вода 150 - 70 градусов Цельсия и пар 2 кгс/кв. см). Упрощенный вариант Установка системы П1. План отопления и спецификация (теплоноситель - электроэнергия). Упрощенный вариант План от отопления. Узел управления и спецификация (теплоноситель - вода 150 - 70 градусов Цельсия). Упрощенный вариант План от отопления. Узел управления и спецификация (теплоноситель - пар 2 кгс/кв. см). Упрощенный вариант Схемы систем отопления и теплоснабжения калориферов (теплоноситель - вода 150 - 70 градусов Цельсия и пар 2 кгс/кв. см). Упрощенный вариант Внутренний водопровод и канализация (ВК) Общие данные Планы. Схемы. Основной вариант Планы. Схемы. Упрощенный вариант |
| Разработан: | Харьковский Водоканалпроект |
| Утверждён: | 08.12.1975 СоюзводоканалНИИпроект (SoyuzvodokanalNIIproject 105) |
| Заменяет собой: |
|
| Чем заменён: |
|






































