Скачать Типовой проект 902-1-46 Альбом II. Архитектурно-строительные решения. Надземная часть и общие чертежи. Узлы и деталиДата актуализации: 01.01.2021
|
| Обозначение: | Типовой проект 902-1-46 |
| Обозначение англ: | 902-1-46 |
| Статус: | заменен |
| Название рус.: | Альбом II. Архитектурно-строительные решения. Надземная часть и общие чертежи. Узлы и детали |
| Дата добавления в базу: | 01.10.2014 |
| Дата актуализации: | 01.01.2021 |
| Дата введения: | 10.05.1978 |
| Дата окончания срока действия: | 01.02.1985 |
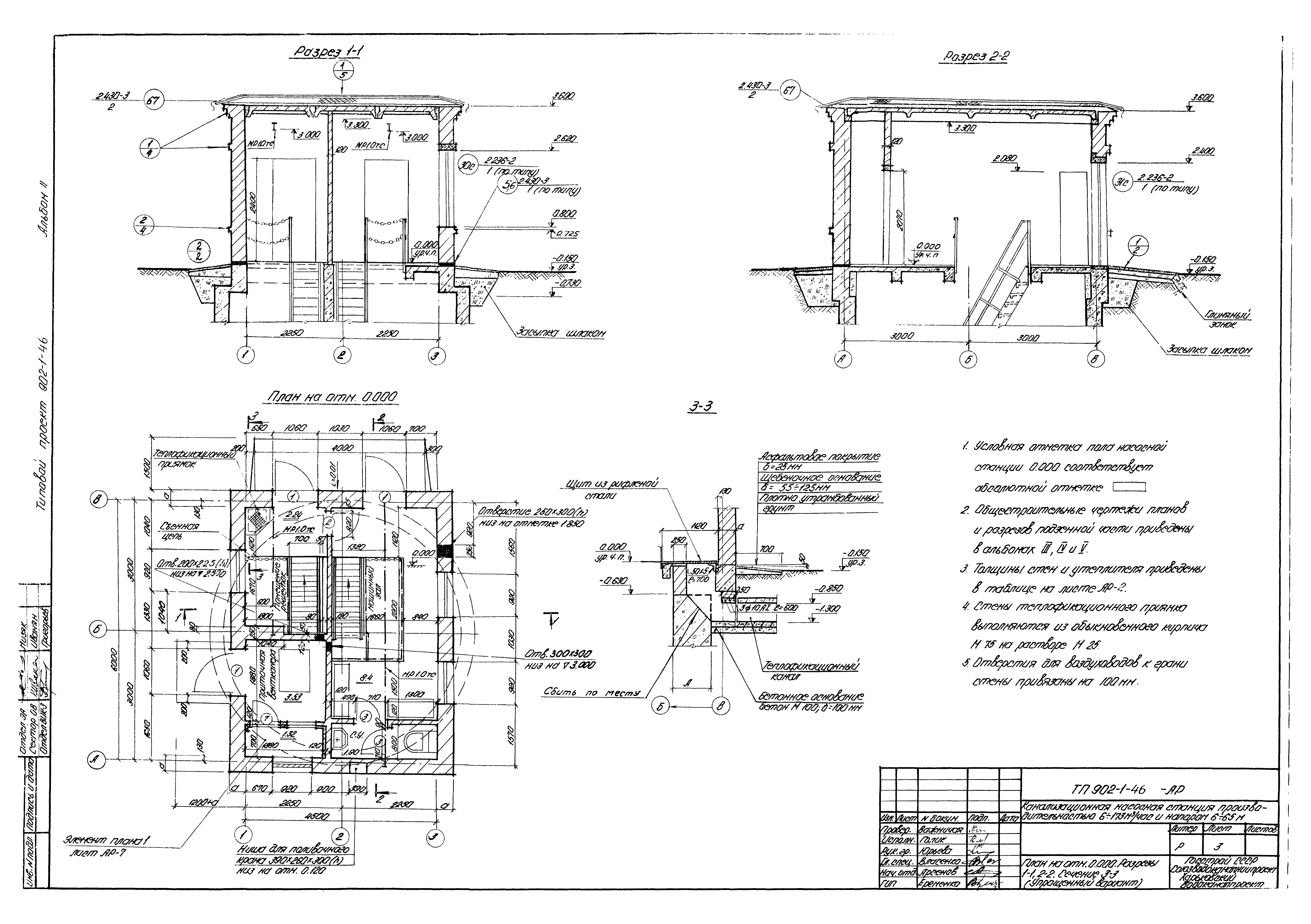
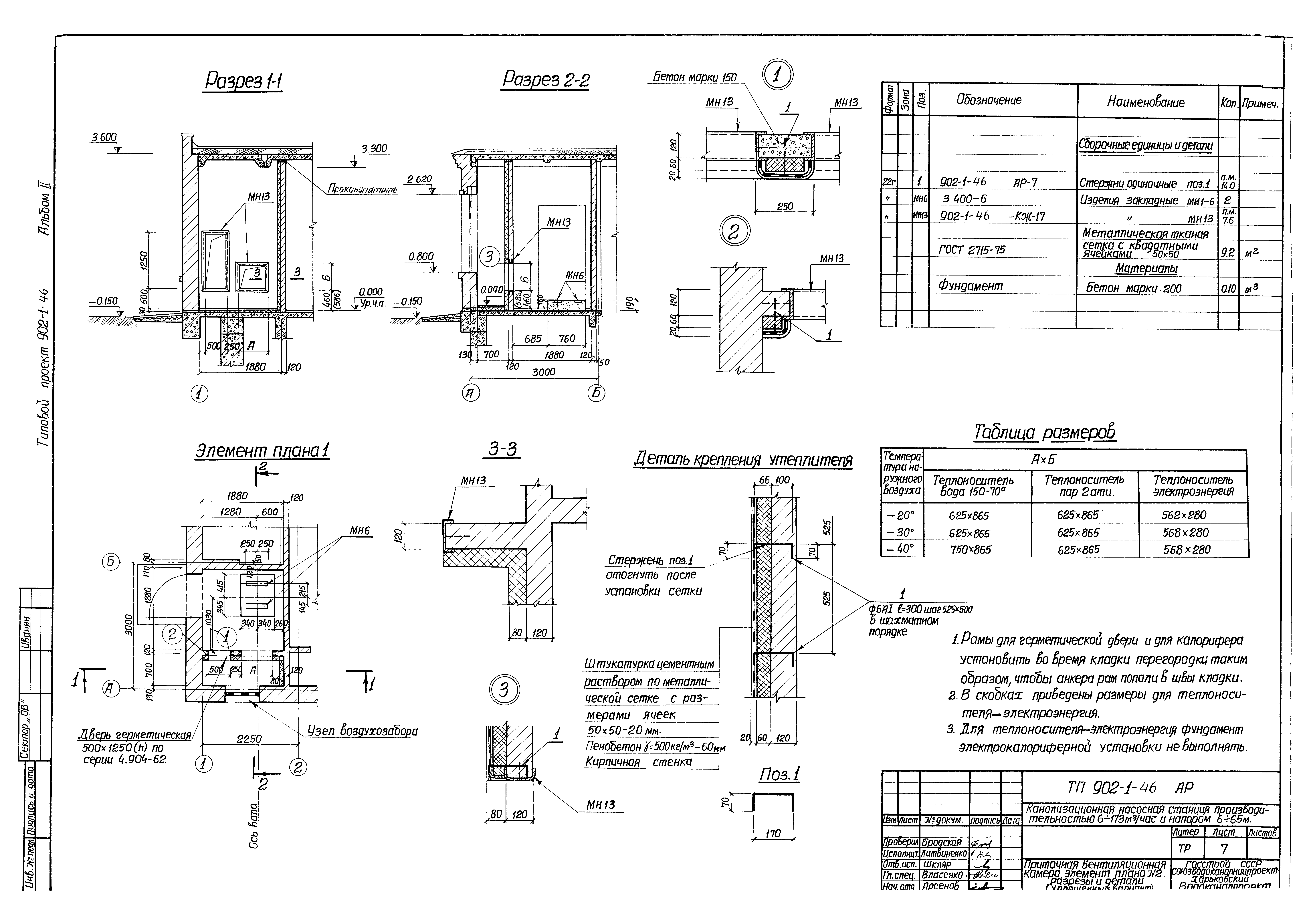
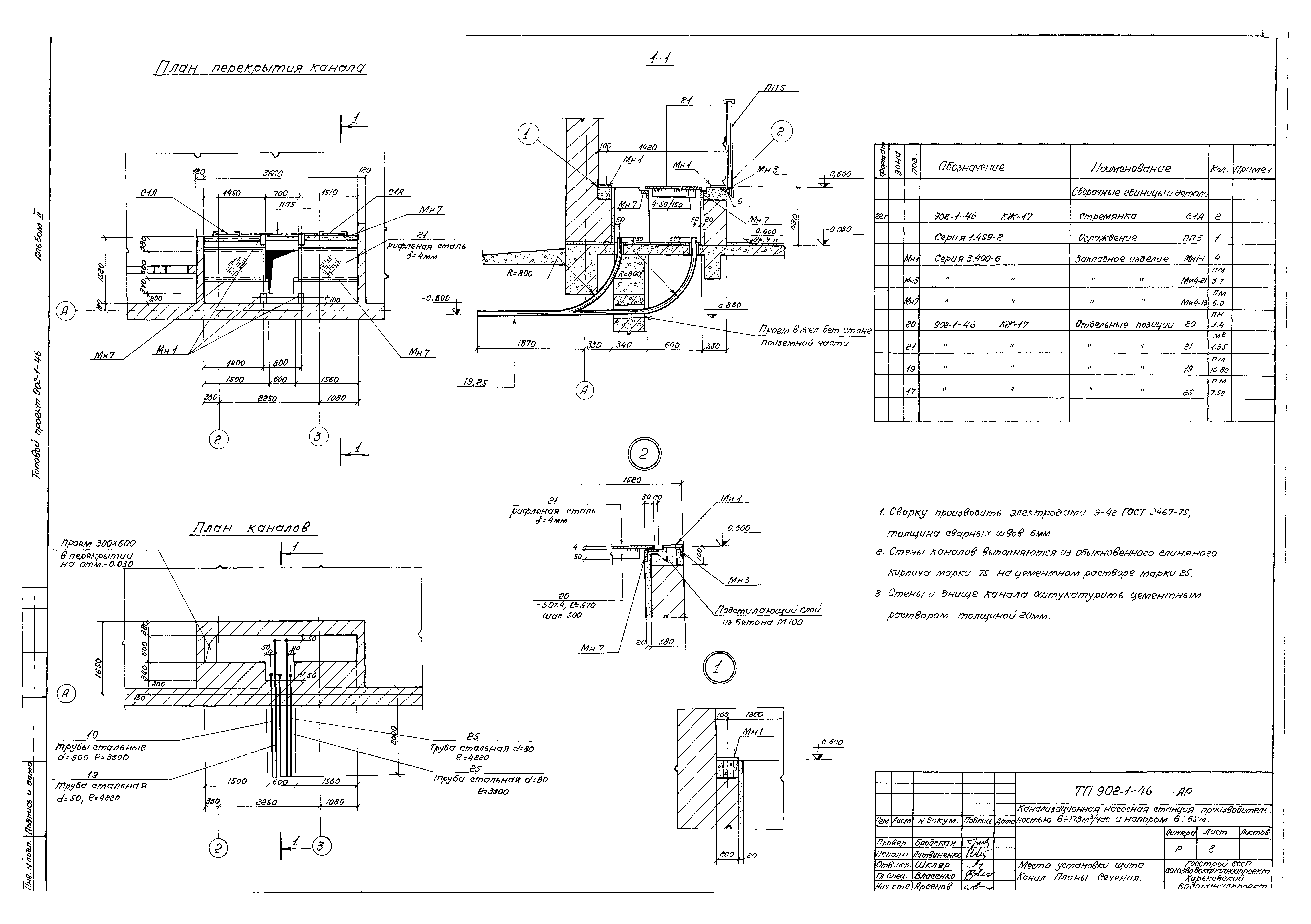
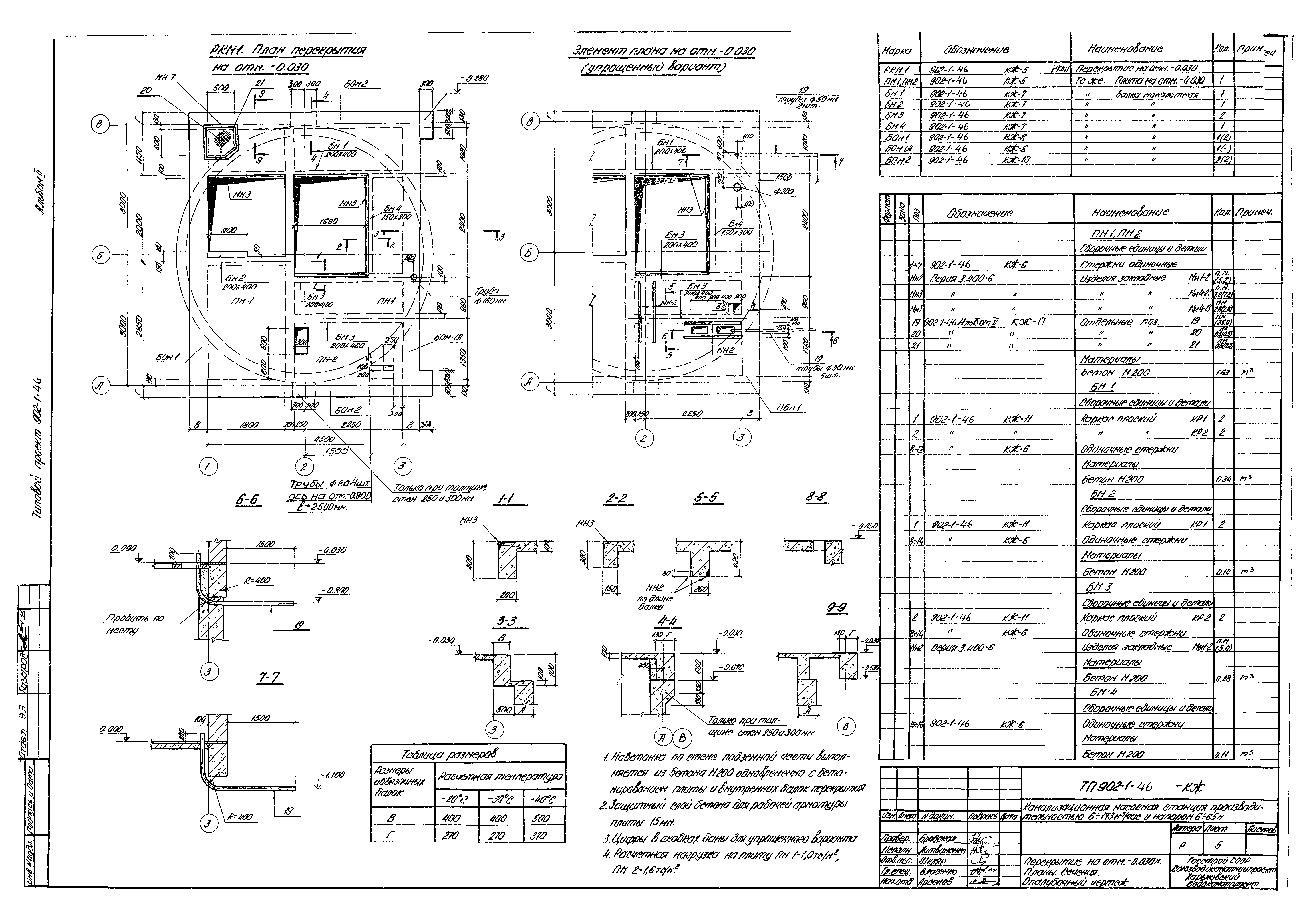
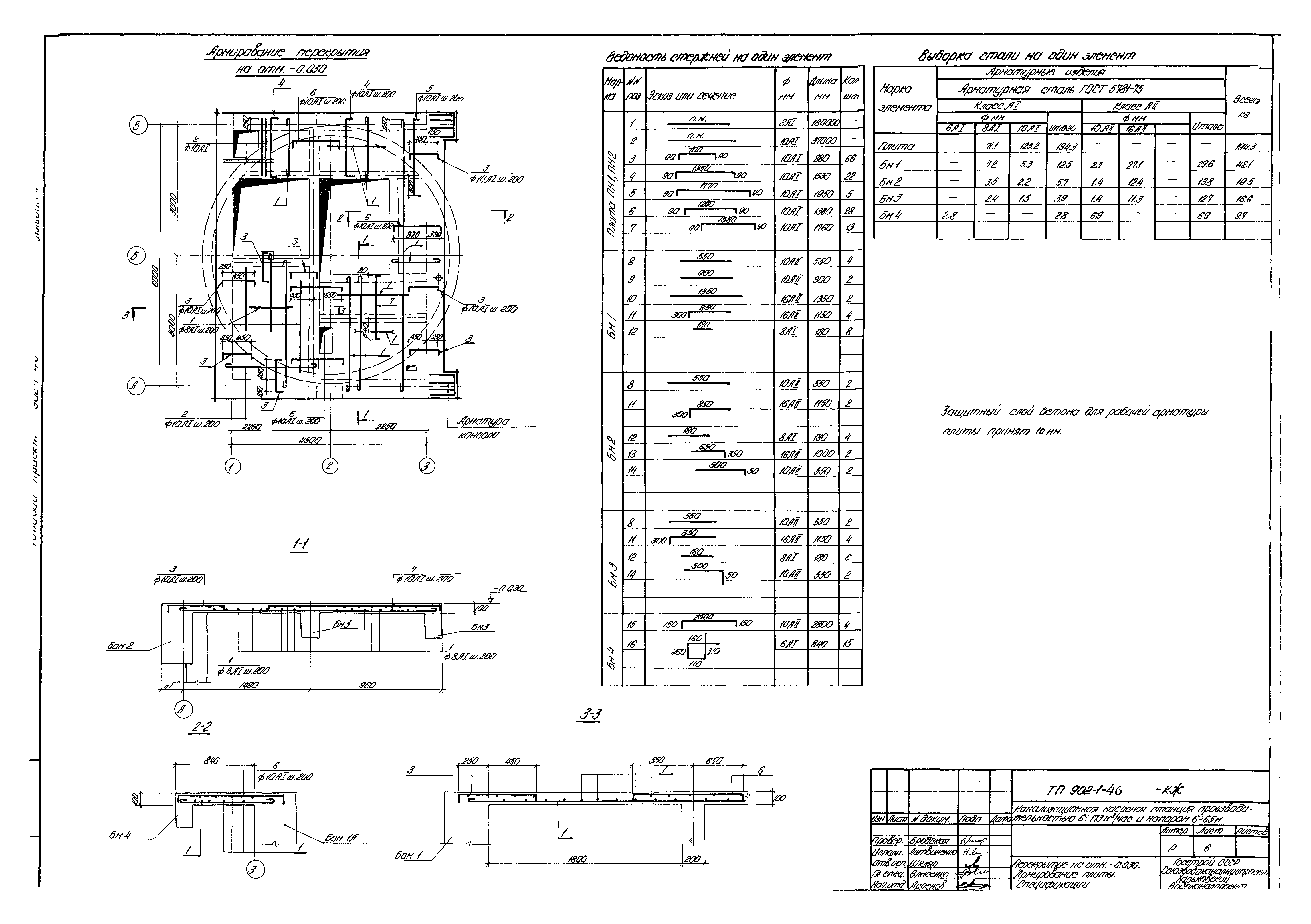
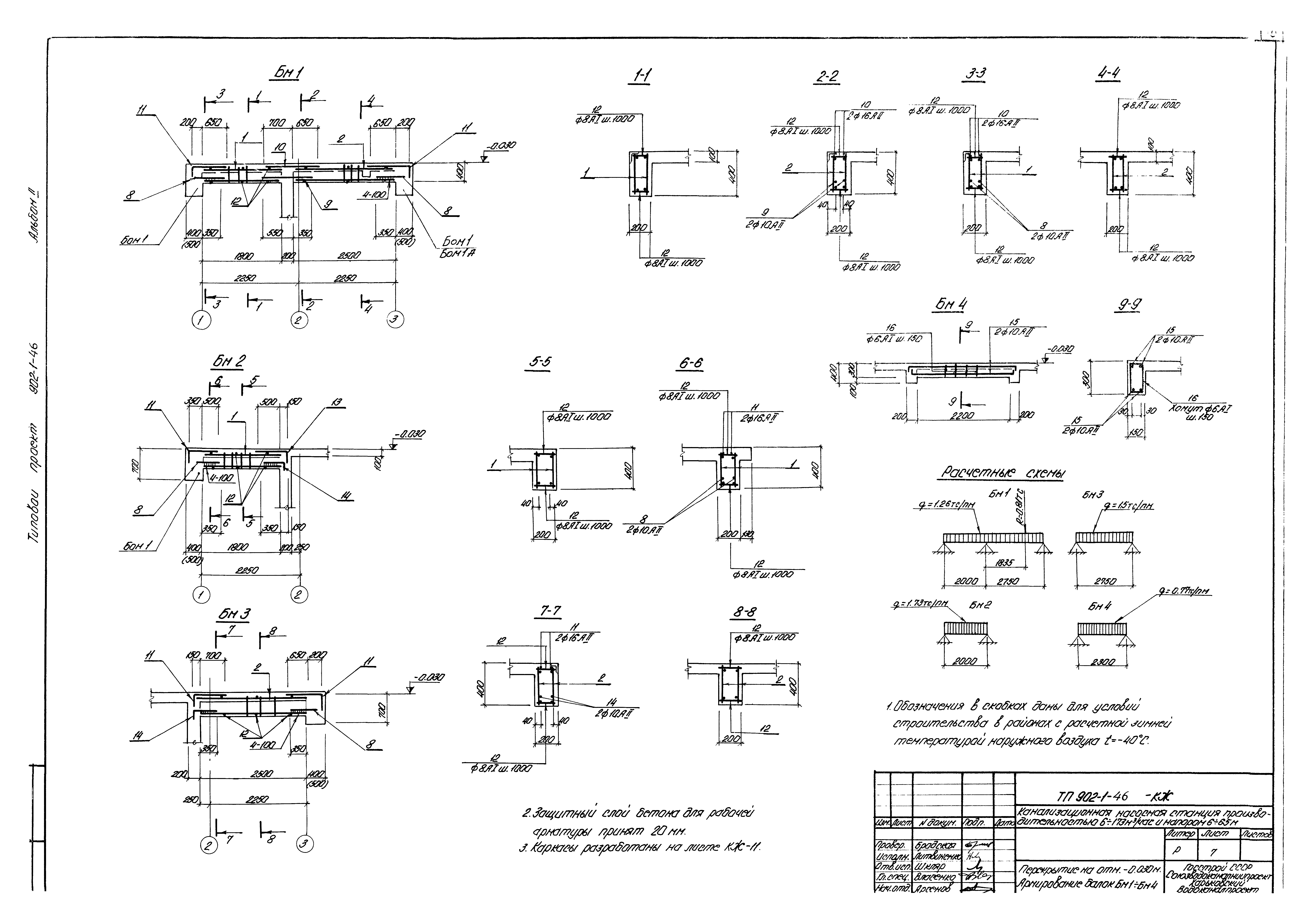
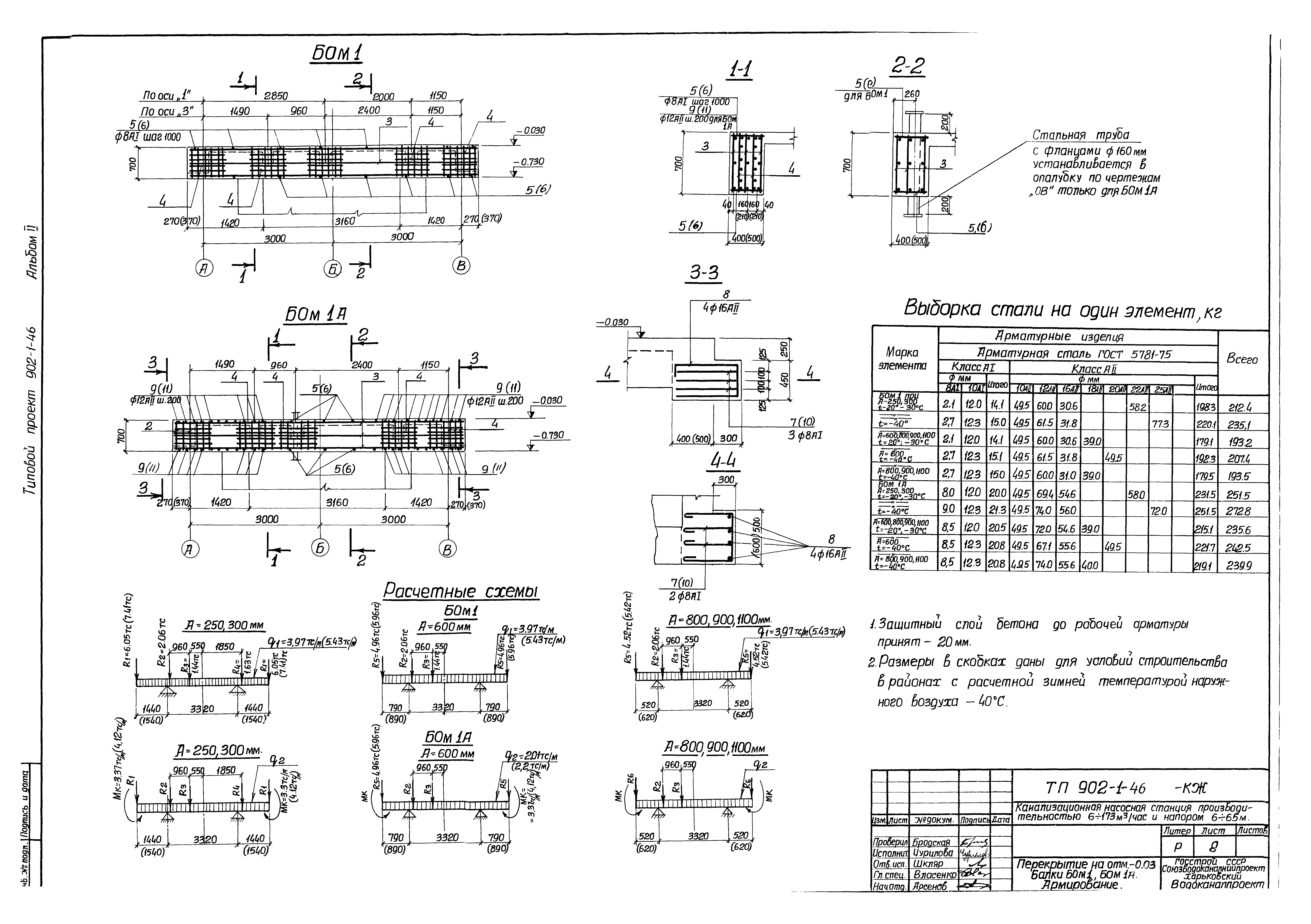
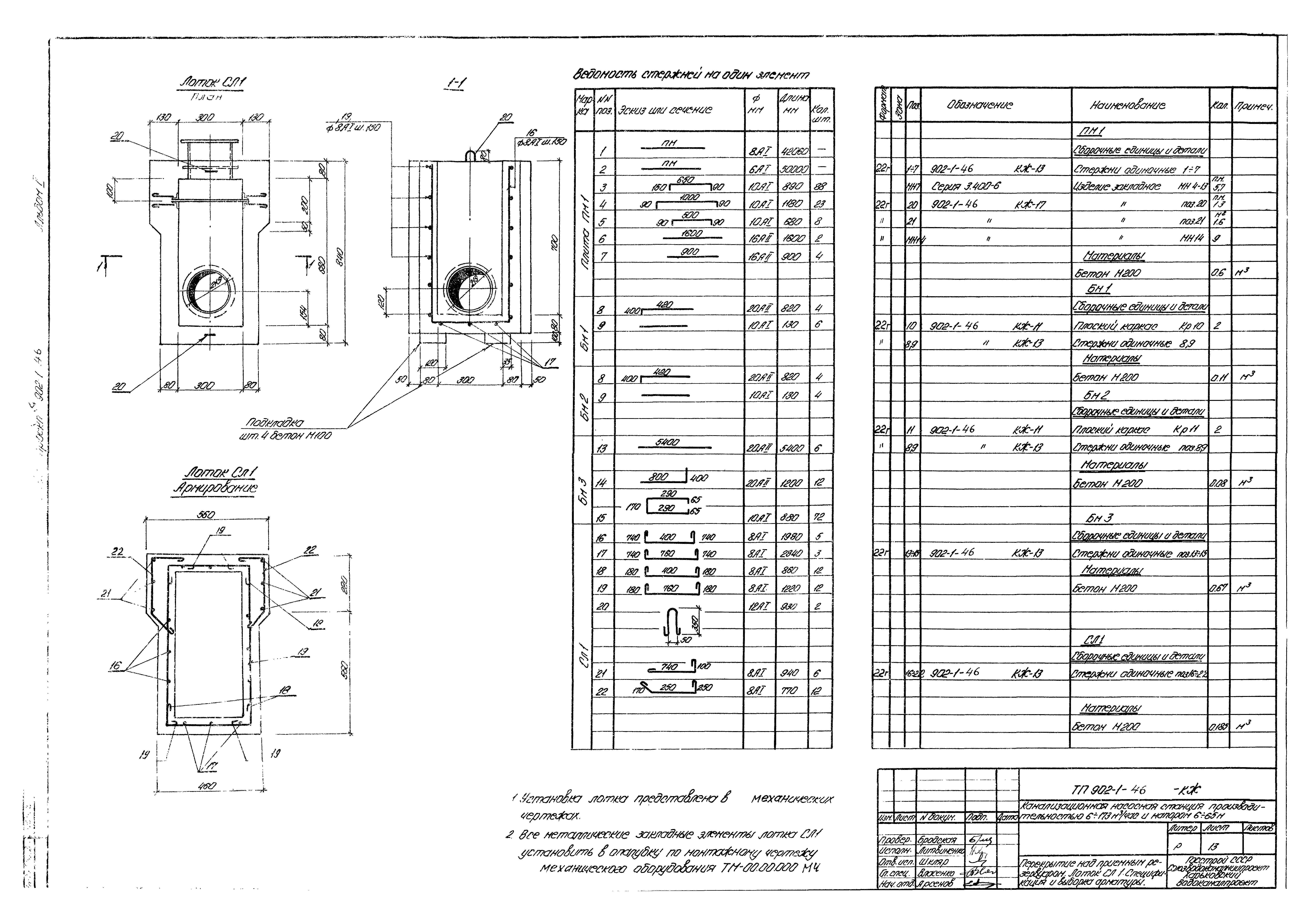
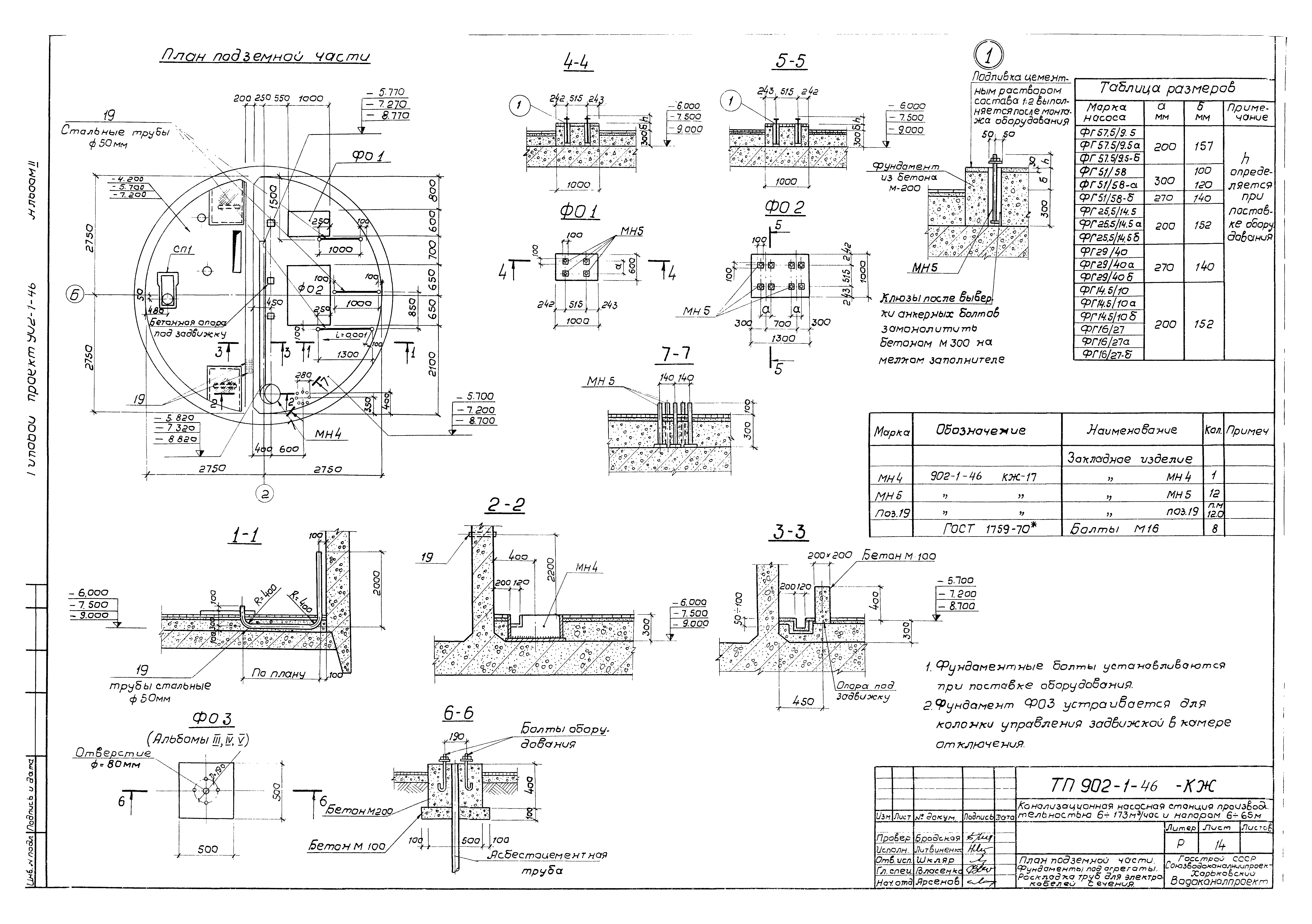
| Оглавление: | Содержание альбома Пояснительная записка Архитектурно-строительные решения (АР) Общие данные План на отм. 0.000. Разрезы 1-1, 2-2. Сечения 3-3, 4-4. Узлы 1, 2 (основной вариант) План на отм. 0.000. Разрезы 1-1, 2-2. Сечение 3-3 (упрощенный вариант) Фасады. Схемы заполнения оконных проемов Планы полов и перемычек. Планы кровли. Экспликация полов. Ведомость перемычек Приточная вентиляционная камера. Элемент плана №1. Разрезы и детали (основной вариант) Приточная вентиляционная камера. Элемент плана №2. Разрезы и детали (упрощенный вариант) Место установки щита. Канал. Планы и сечения Конструкции железобетонные (КЖ) Общие данные Подземная часть. Детали гидроизоляции стен и днища Монтажные планы плит покрытия и перекрытия. Спецификация элементов Перекрытие на отм. - 0.030 м. Планы. Сечения. Опалубочный чертеж Перекрытие на отм. - 0.030 м. Армирование плиты. Спецификации Перекрытие на отм. - 0.030 м. Армирование балок Бм1 - Бм4 Перекрытие на отм. - 0.030 м. Балки БОм1, БОм1а. Армирование Перекрытие на отм. - 0.030 м. Балки БОм1, БОм1а. Выборка сборочных единиц и деталей Перекрытие на отм. - 0.030 м. Балка БОм2. Армирование и спецификации Перекрытие на отм. - 0.030 м. Перекрытие над приемным резервуаром. Сетки и каркасы Перекрытие над приемным резервуаром. Плита Пм1. Балки Бм1 - Бм3. Опалубочный чертеж и армирование Перекрытие над приемным резервуаром. Лоток СЛ1. Спецификация и выборка стали План подземной части. Фундаменты под агрегаты. Раскладка труб для электрокабелей. Сечения Плиты ПВрII-4А/1,5х6-1(2) и ПВрII-7А/1,5х6-1(2). Опалубочный чертеж. Сечения. Спецификация Монорельсы МР1,0тс надземной части. Схема расположения. Узлы. Спецификация Закладные элементы МН4 - МН10; МН12 - МН14. Спецификация стали |
| Разработан: | Харьковский Водоканалпроект |
| Утверждён: | 08.12.1975 СоюзводоканалНИИпроект (SoyuzvodokanalNIIproject 105) |
| Заменяет собой: |
|
| Чем заменён: |
|




























