Скачать Типовой проект 902-1-46 Альбом VI. Электрооборудование, автоматизация и технологический контроль. Чертежи монтажной зоны (основной вариант)Дата актуализации: 01.01.2021
|
| Обозначение: | Типовой проект 902-1-46 |
| Обозначение англ: | 902-1-46 |
| Статус: | заменен |
| Название рус.: | Альбом VI. Электрооборудование, автоматизация и технологический контроль. Чертежи монтажной зоны (основной вариант) |
| Дата добавления в базу: | 01.10.2014 |
| Дата актуализации: | 01.01.2021 |
| Дата введения: | 10.05.1978 |
| Дата окончания срока действия: | 04.09.1980 |
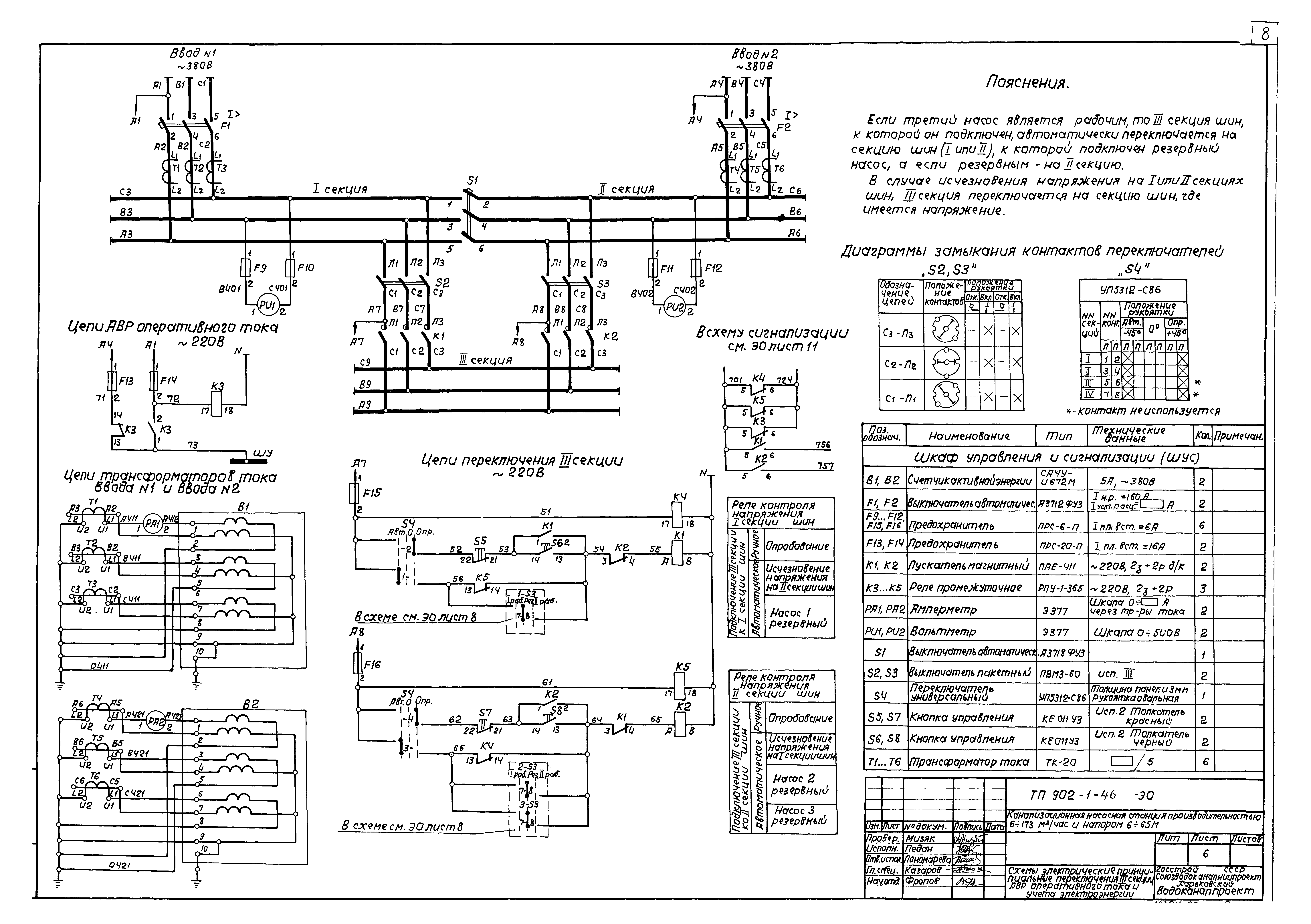
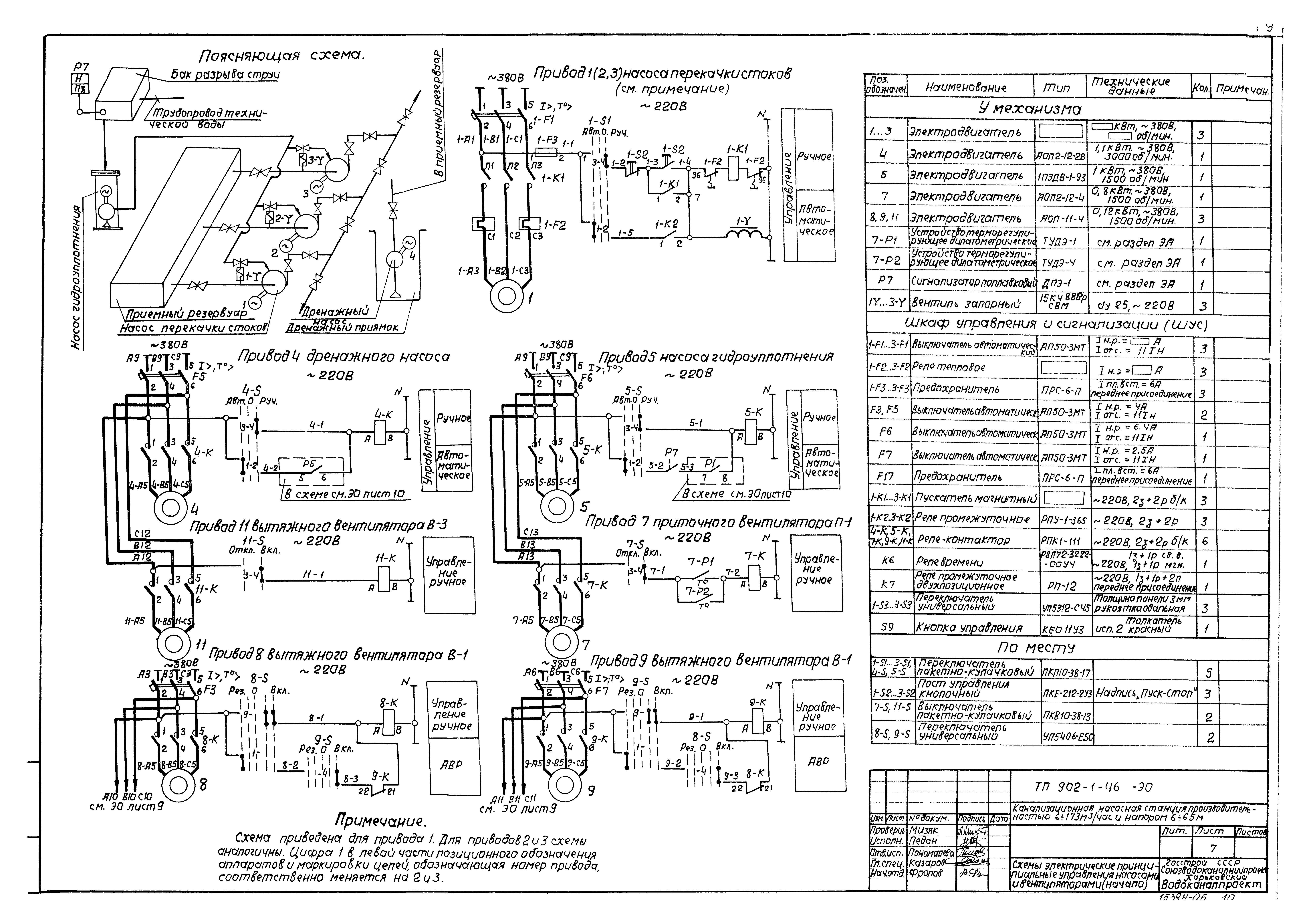
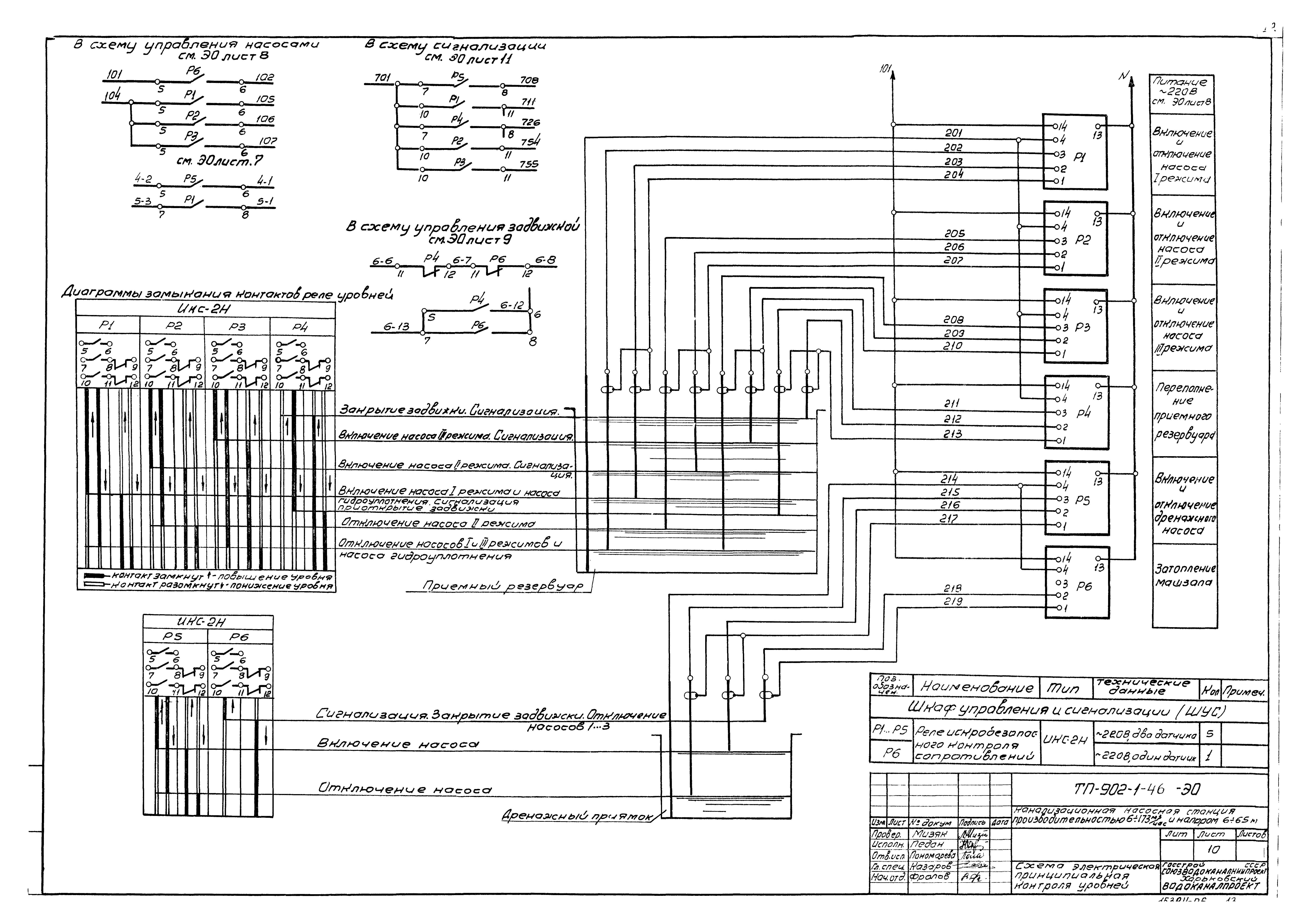
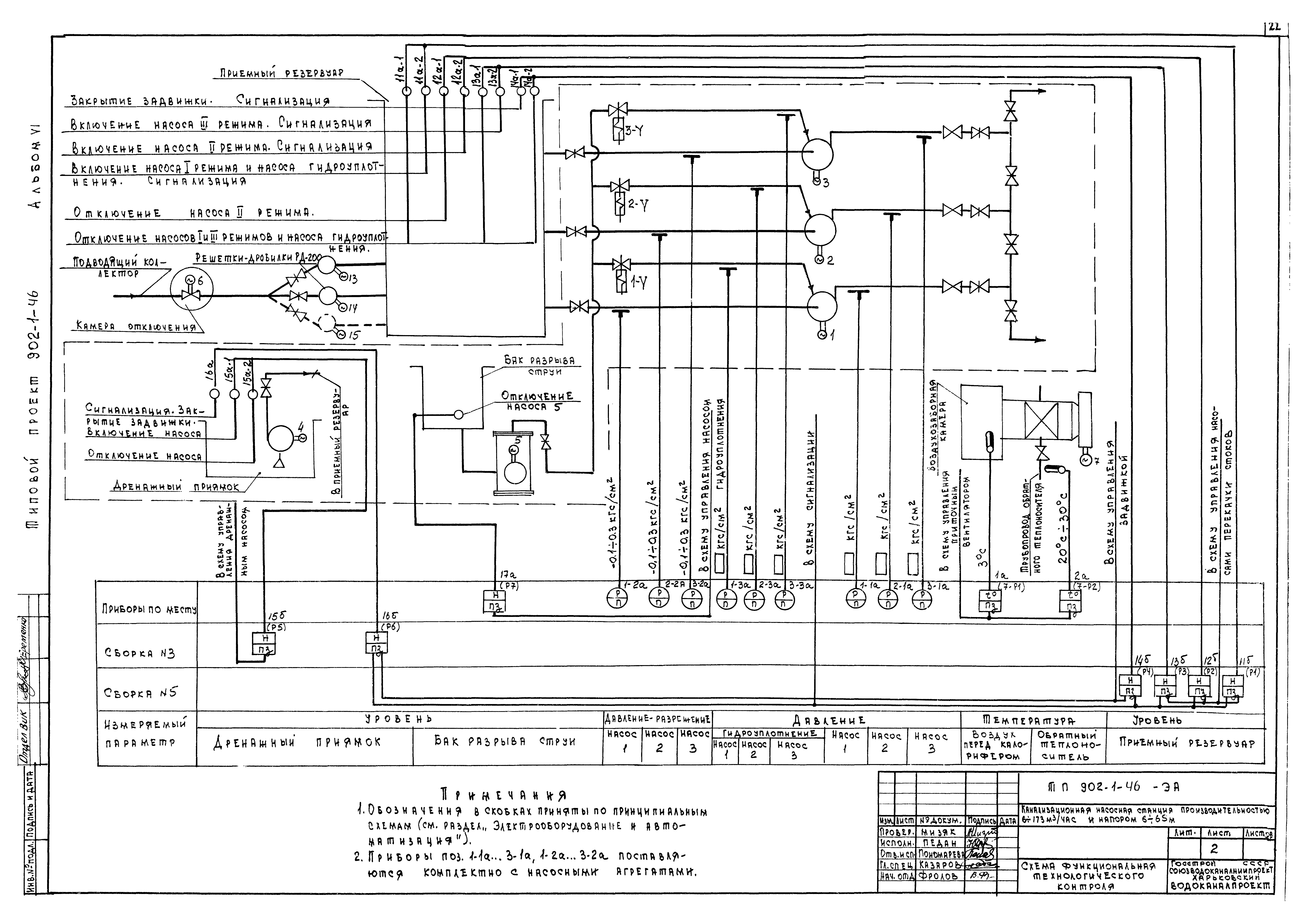
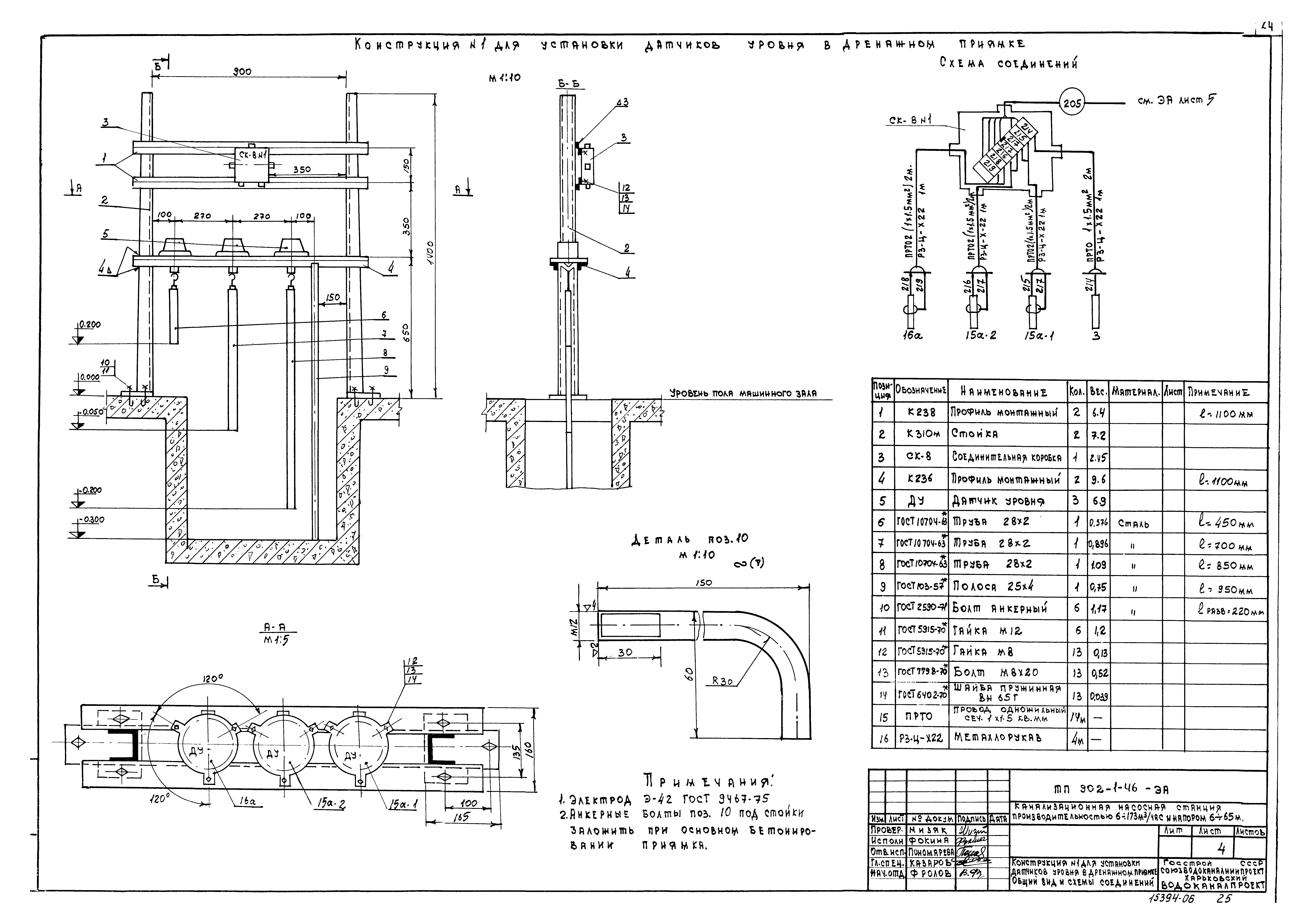
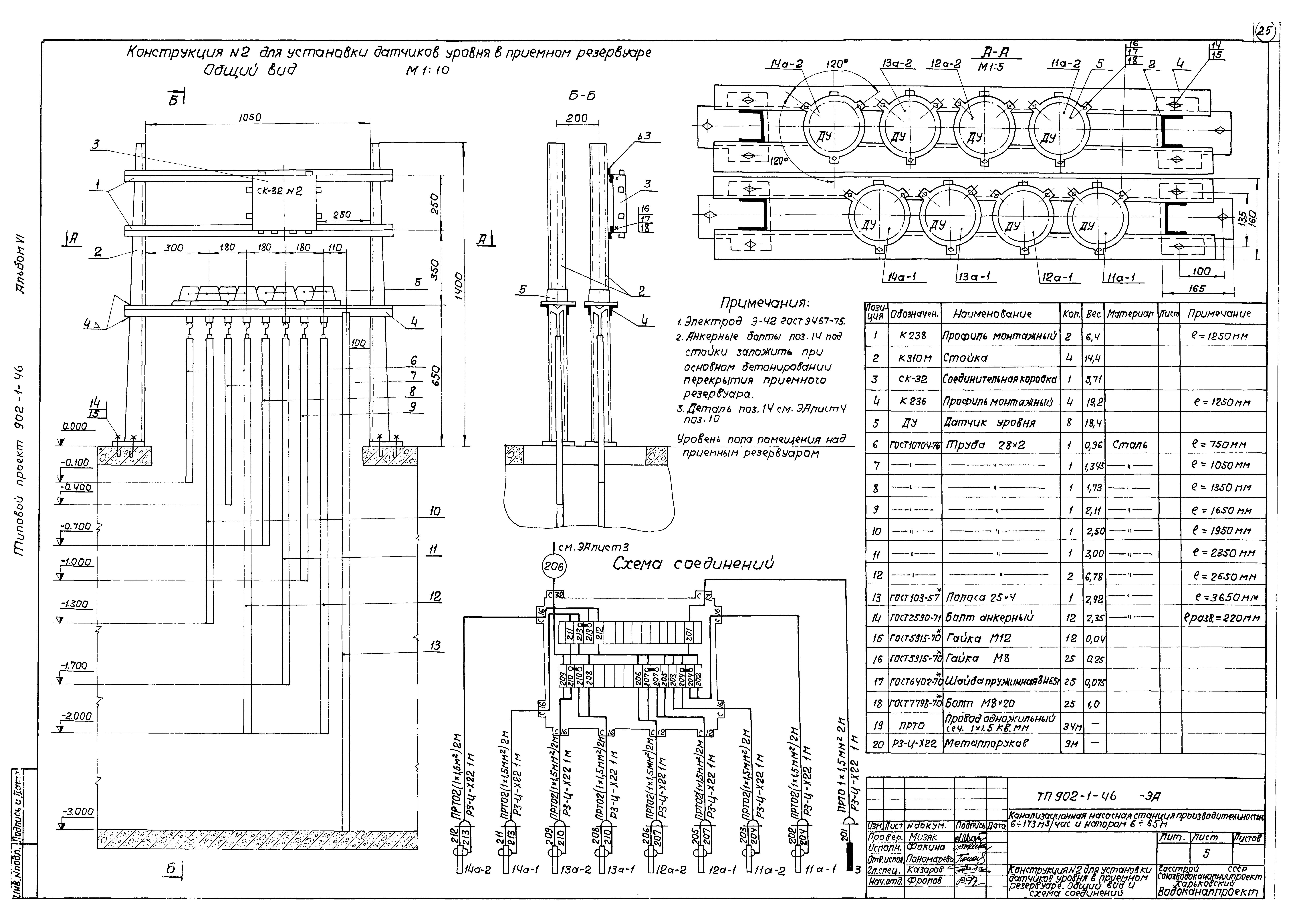
| Оглавление: | Содержание альбома Силовое электрооборудование Общие данные Схема электрическая принципиальная однолинейная распределительной сети 380/220 В Схемы электрические принципиальные переключения III секции, АВР оперативного тока и учета электроэнергии Схемы электрические принципиальные управления насосами и вентиляторами Схемы электрические принципиальные управления задвижкой и решетками-дробилками Схема электрическая принципиальная контроля уровней Схема электрическая принципиальная сигнализации Схема подключения шкафа управления и сигнализации ШУС Схема подключения электрооборудования Схема подключения электрооборудования. Прокладка кабелей Кабельный журнал Электроосвещение Зануление Технологический контроль Общие данные Схема функциональная технологического контроля Схема внешних электрических и трубных проводок. План расположения средств автоматизации и проводок Конструкция №1 для установки датчиков уровня в дренажном приямке. Общий вид и схема соединений Конструкция №2 для установки датчиков уровня в приемном устройстве. Общий вид и схема соединений |
| Разработан: | Харьковский Водоканалпроект |
| Утверждён: | 08.12.1975 СоюзводоканалНИИпроект (SoyuzvodokanalNIIproject 105) |
| Заменяет собой: |
|


























