Скачать Типовой проект 902-1-46 Альбом VII. Электрооборудование. Автоматизация. Задание заводу-изготовителю (основной вариант)Дата актуализации: 01.01.2021
|
| Обозначение: | Типовой проект 902-1-46 |
| Обозначение англ: | 902-1-46 |
| Статус: | заменен |
| Название рус.: | Альбом VII. Электрооборудование. Автоматизация. Задание заводу-изготовителю (основной вариант) |
| Дата добавления в базу: | 01.10.2014 |
| Дата актуализации: | 01.01.2021 |
| Дата введения: | 10.05.1978 |
| Дата окончания срока действия: | 01.02.1985 |
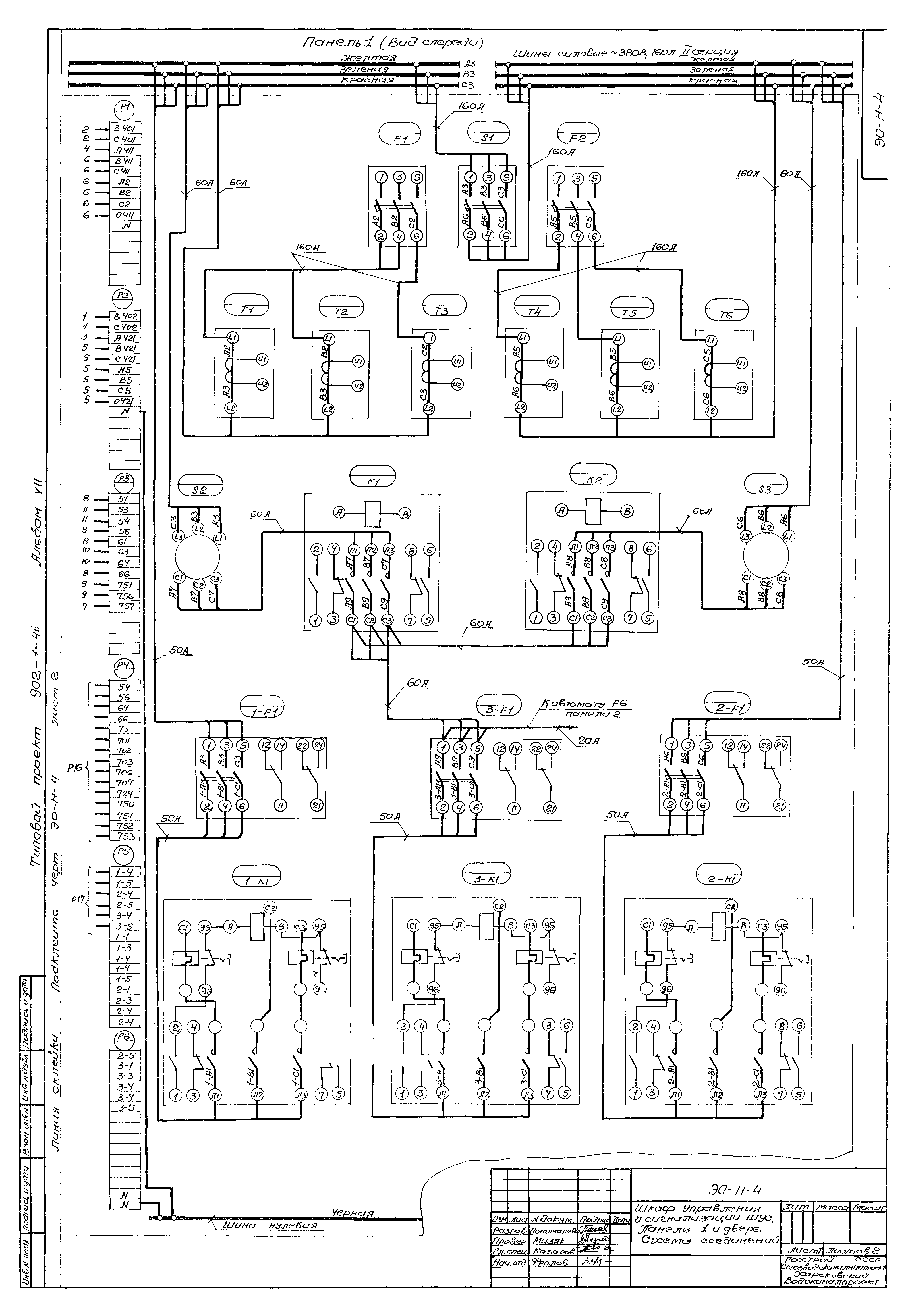
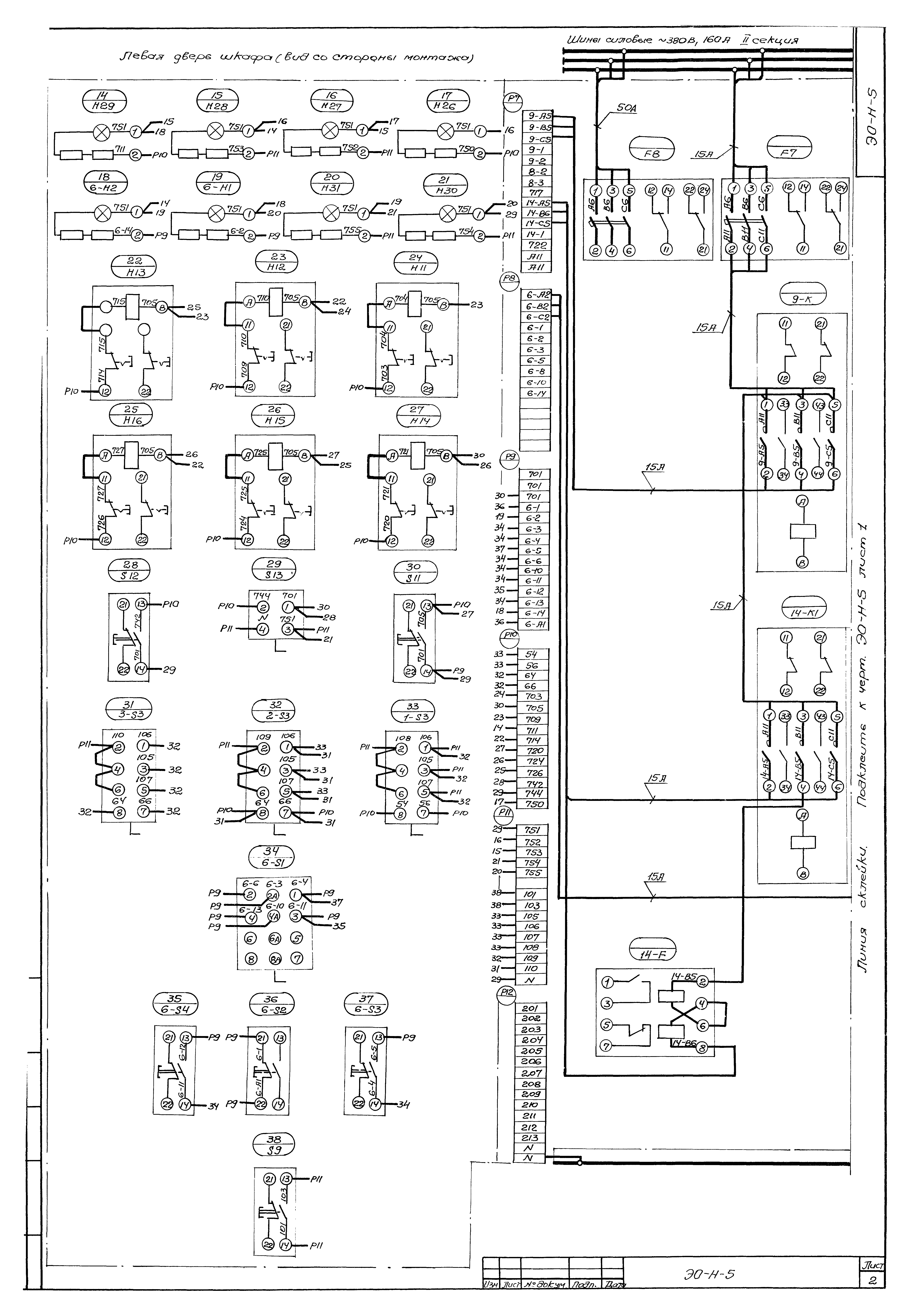
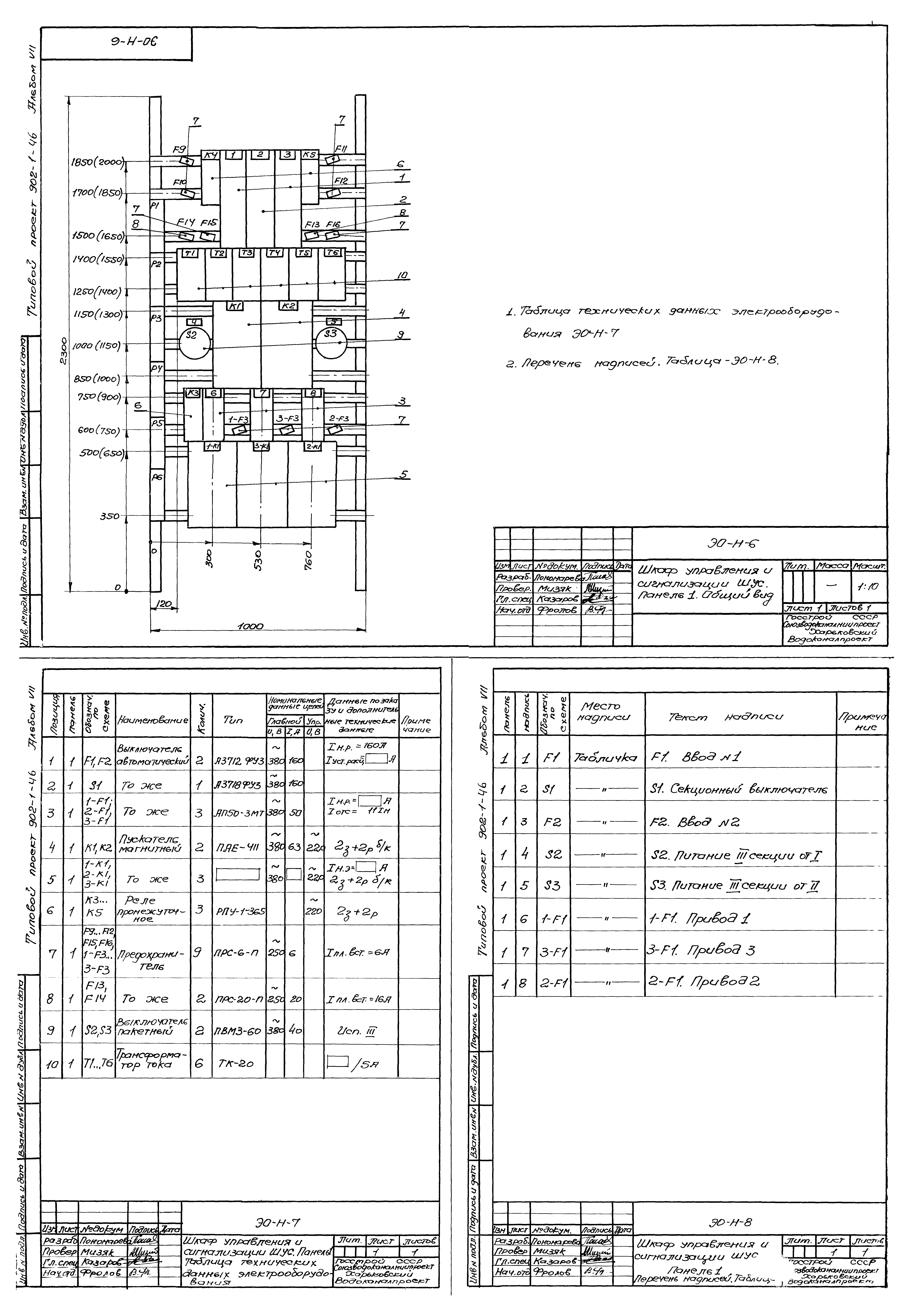
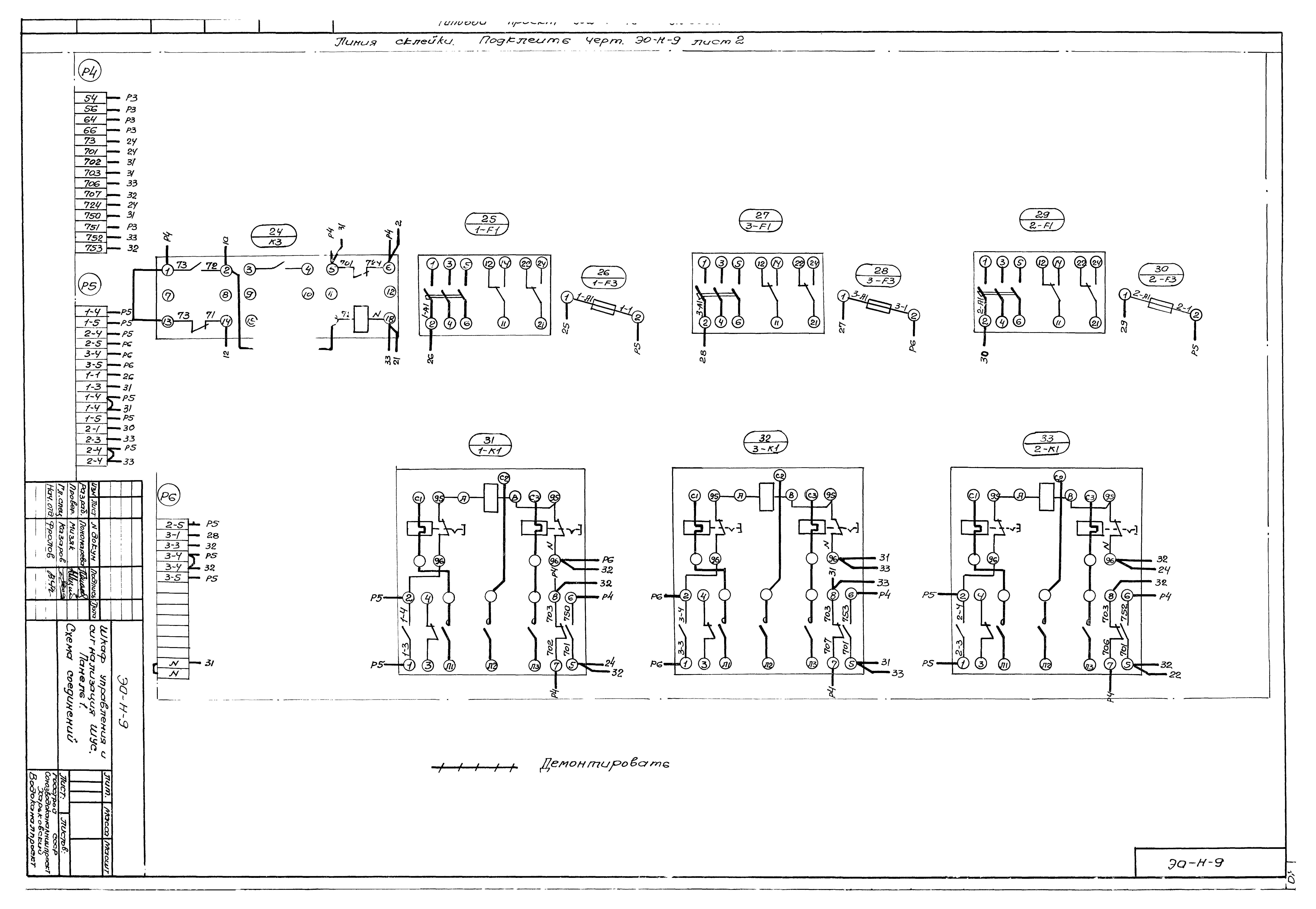
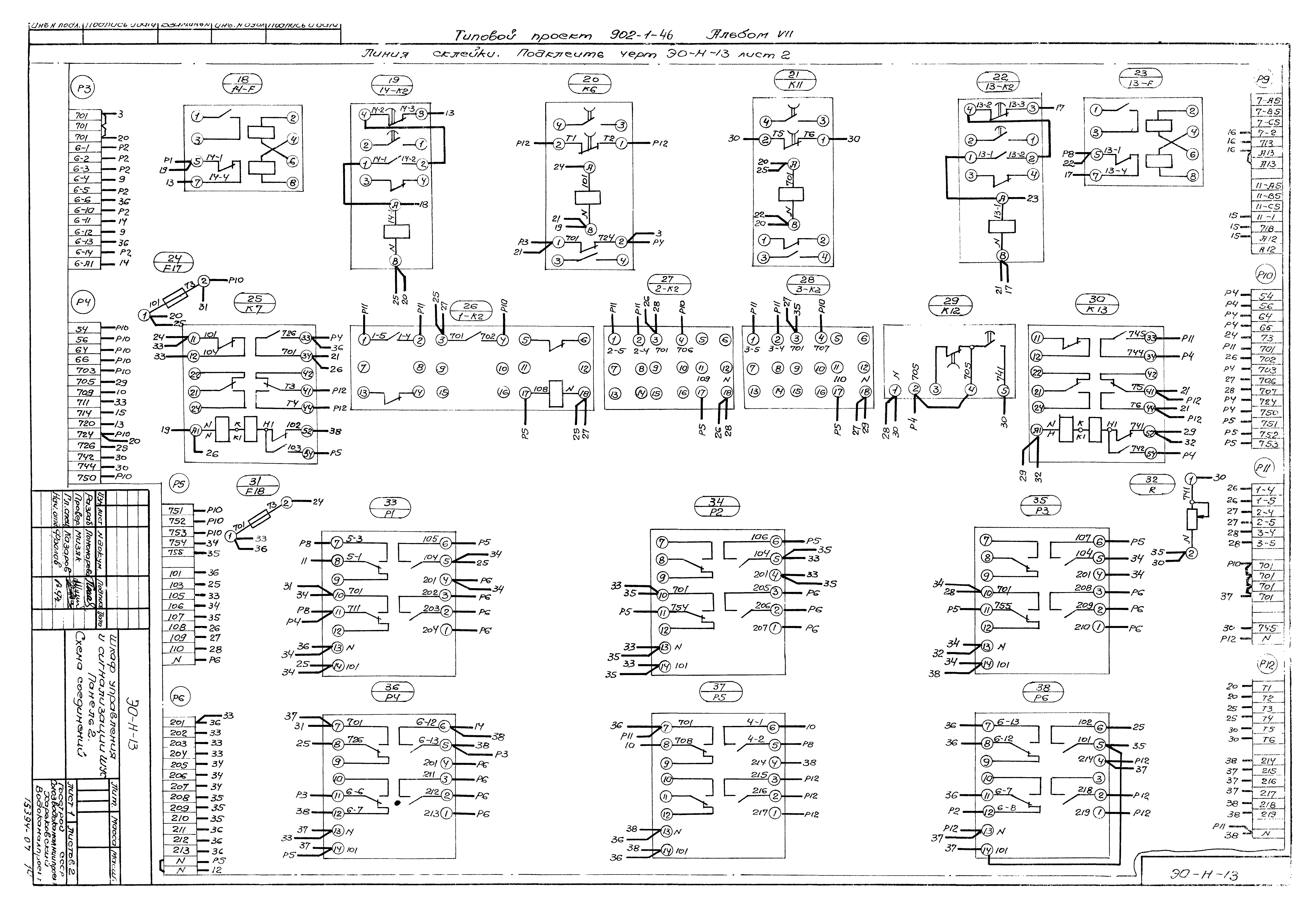
| Оглавление: | Общие данные Шкаф управления и сигнализации ШУС. Общий вид Шкаф управления и сигнализации ШУС. Таблица технических данных электрооборудования Шкаф управления и сигнализации ШУС. Перечень надписей. Таблица Шкаф управления и сигнализации ШУС. Панель 1 и дверь. Схема соединений Шкаф управления и сигнализации ШУС. Панель 2 и дверь. Схема соединений Шкаф управления и сигнализации ШУС. Панель 1. Общий вид Шкаф управления и сигнализации ШУС. Панель 1. Таблица технических данных электрооборудования Шкаф управления и сигнализации ШУС. Панель 1. Перечень надписей. Таблица Шкаф управления и сигнализации ШУС. Панель 1. Схема соединений Шкаф управления и сигнализации ШУС. Панель 2. Общий вид Шкаф управления и сигнализации ШУС. Панель 2. Таблица технических данных электрооборудования Шкаф управления и сигнализации ШУС. Панель 2. Перечень надписей. Таблица Шкаф управления и сигнализации ШУС. Панель 2. Схема соединений |
| Разработан: | Харьковский Водоканалпроект |
| Утверждён: | 08.12.1975 СоюзводоканалНИИпроект (SoyuzvodokanalNIIproject 105) |
| Заменяет собой: |
|
| Чем заменён: |
|















