Скачать Типовой проект 902-1-46 Альбом VIII. Электрооборудование, автоматизация и технологический контроль. Чертежи монтажной зоны (упрощенный вариант)Дата актуализации: 01.01.2021
|
| Обозначение: | Типовой проект 902-1-46 |
| Обозначение англ: | 902-1-46 |
| Статус: | заменен |
| Название рус.: | Альбом VIII. Электрооборудование, автоматизация и технологический контроль. Чертежи монтажной зоны (упрощенный вариант) |
| Дата добавления в базу: | 01.10.2014 |
| Дата актуализации: | 01.01.2021 |
| Дата введения: | 10.05.1978 |
| Дата окончания срока действия: | 01.02.1985 |
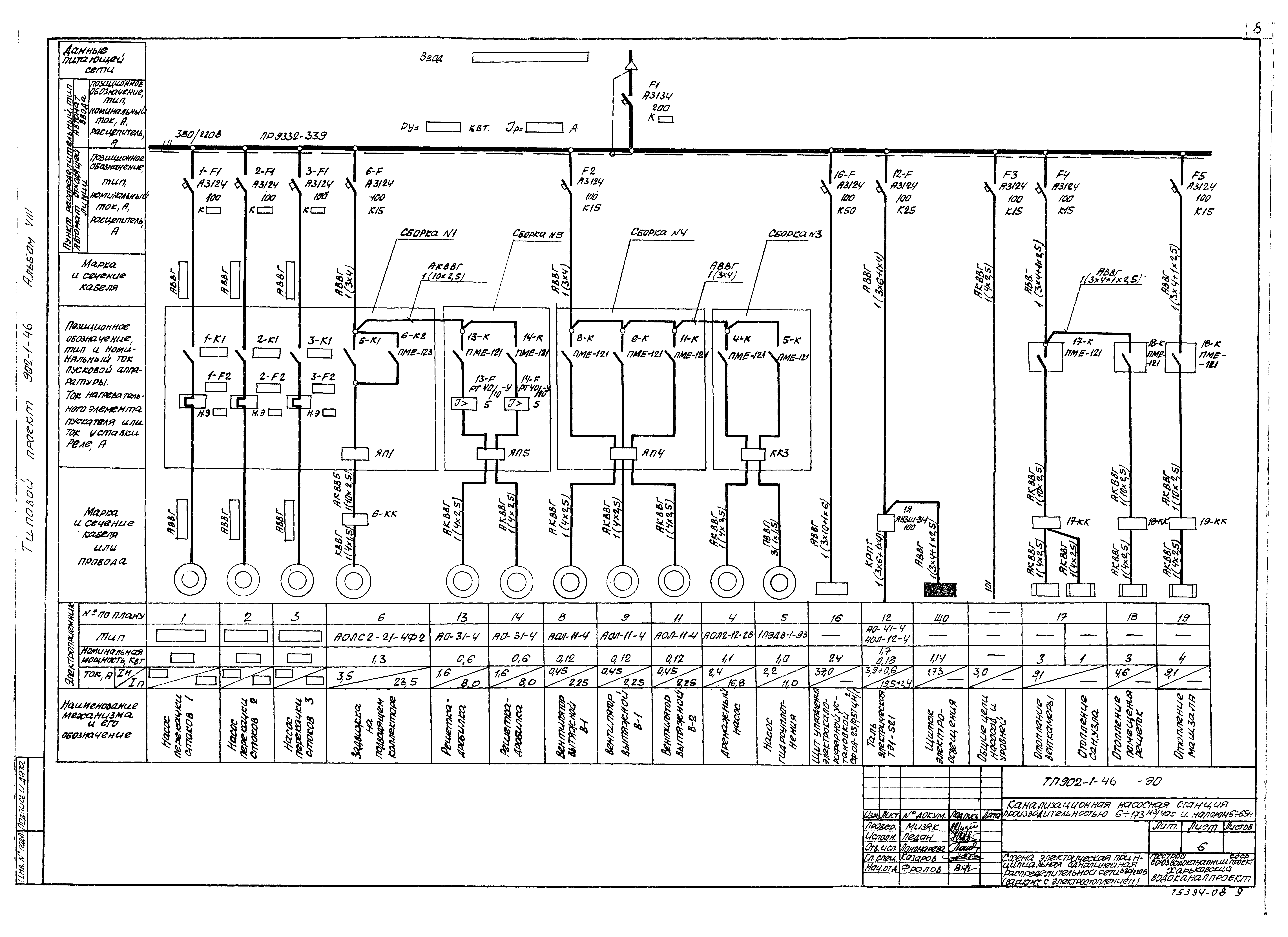
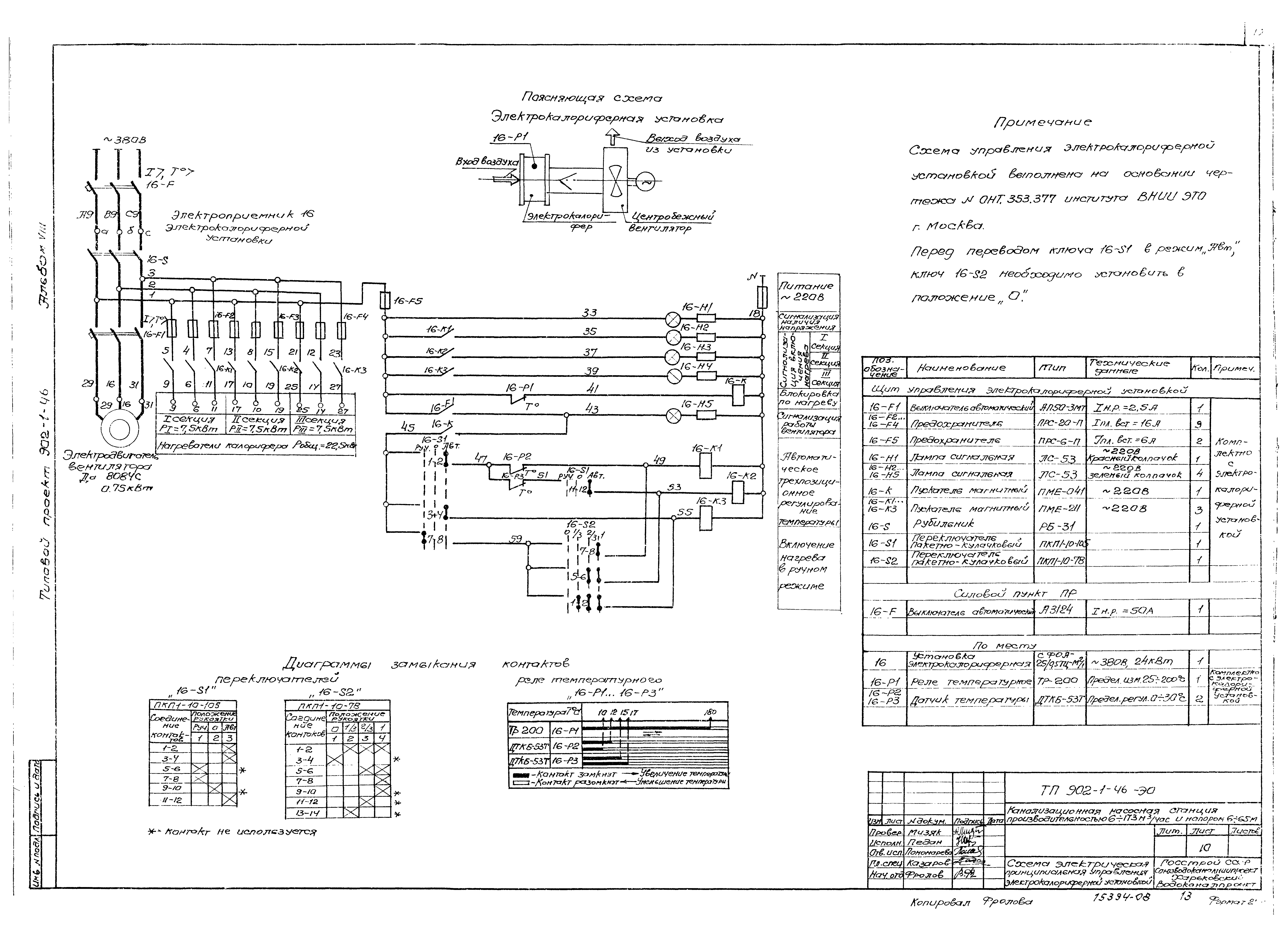
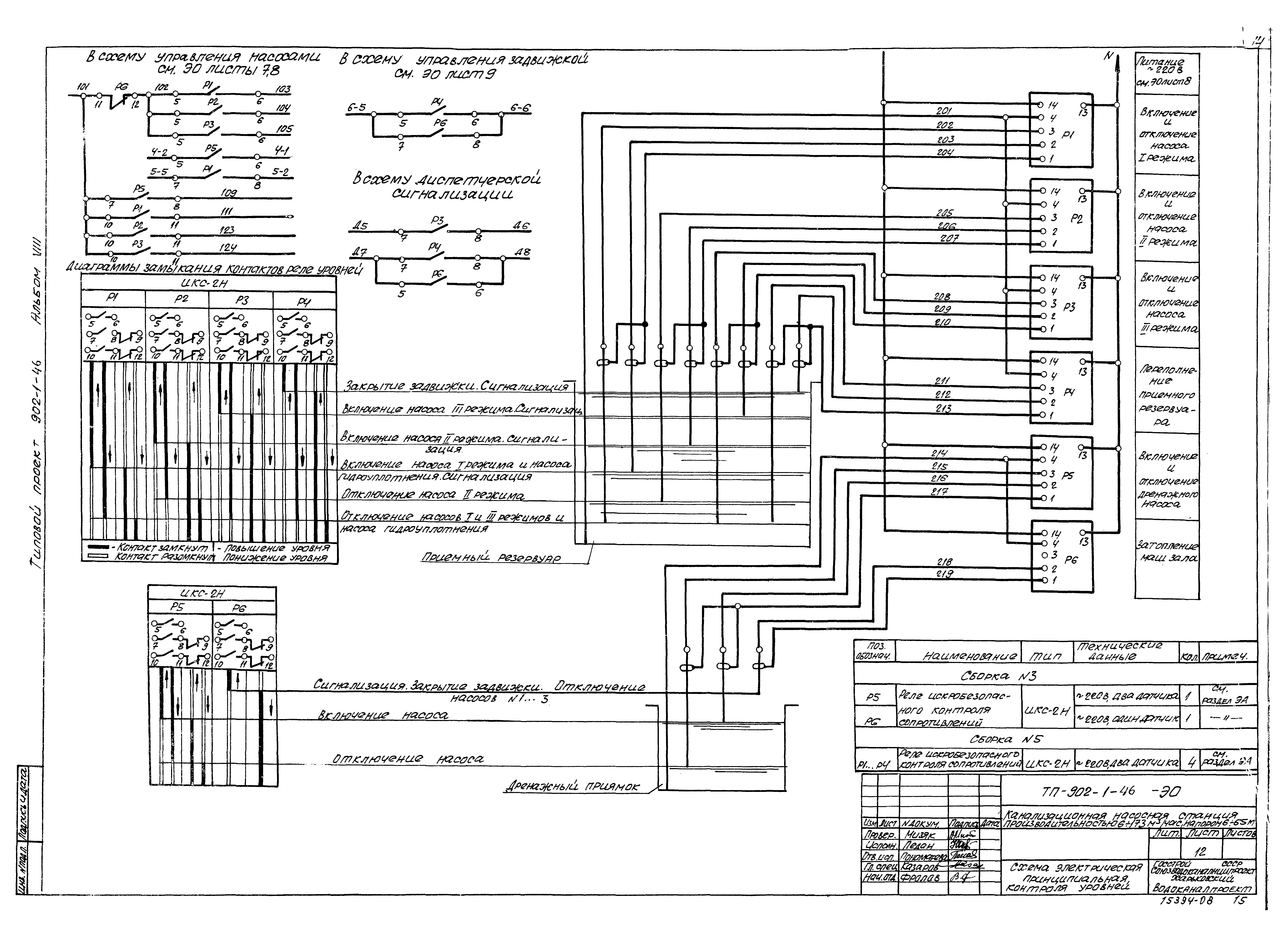
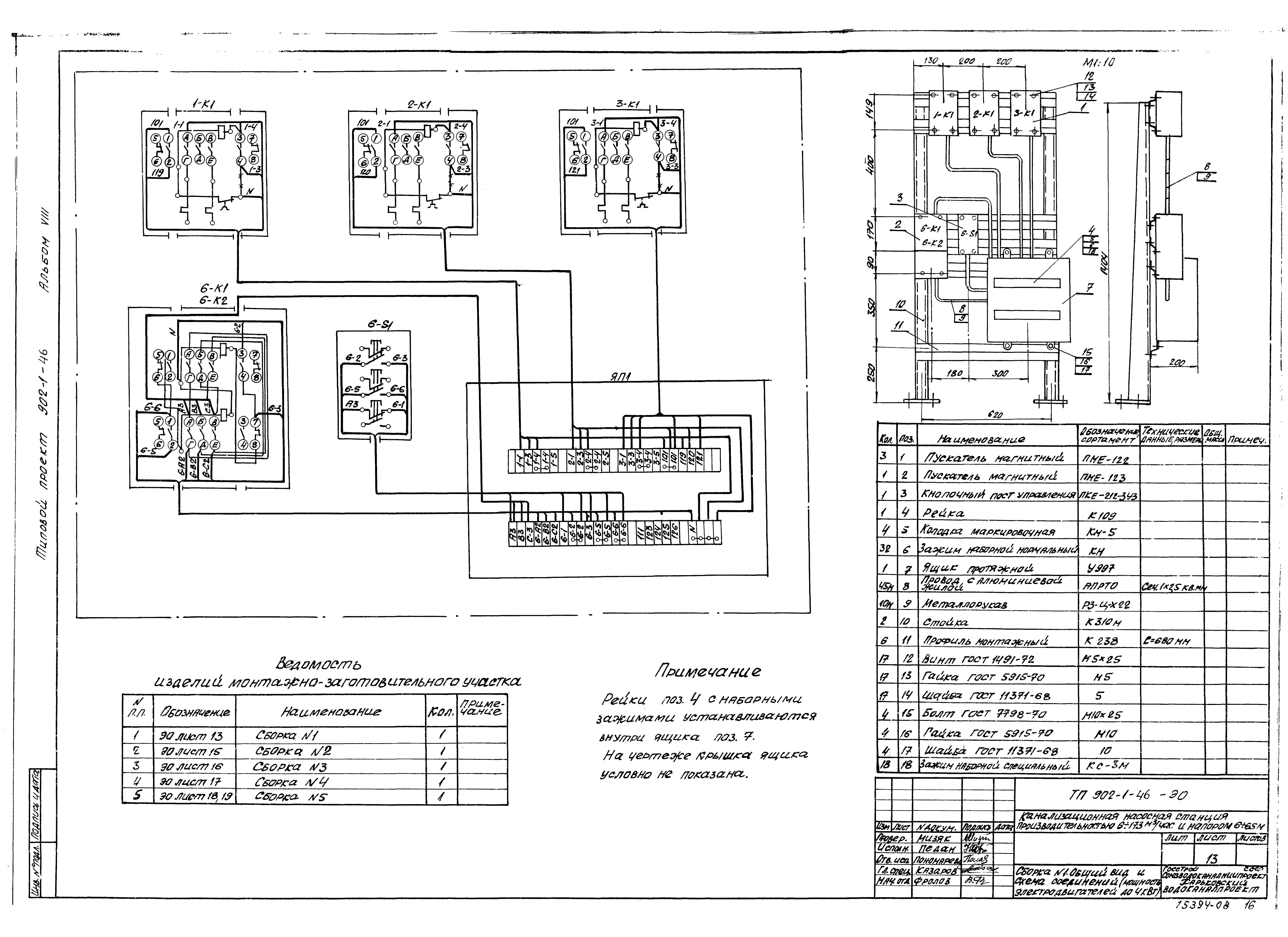
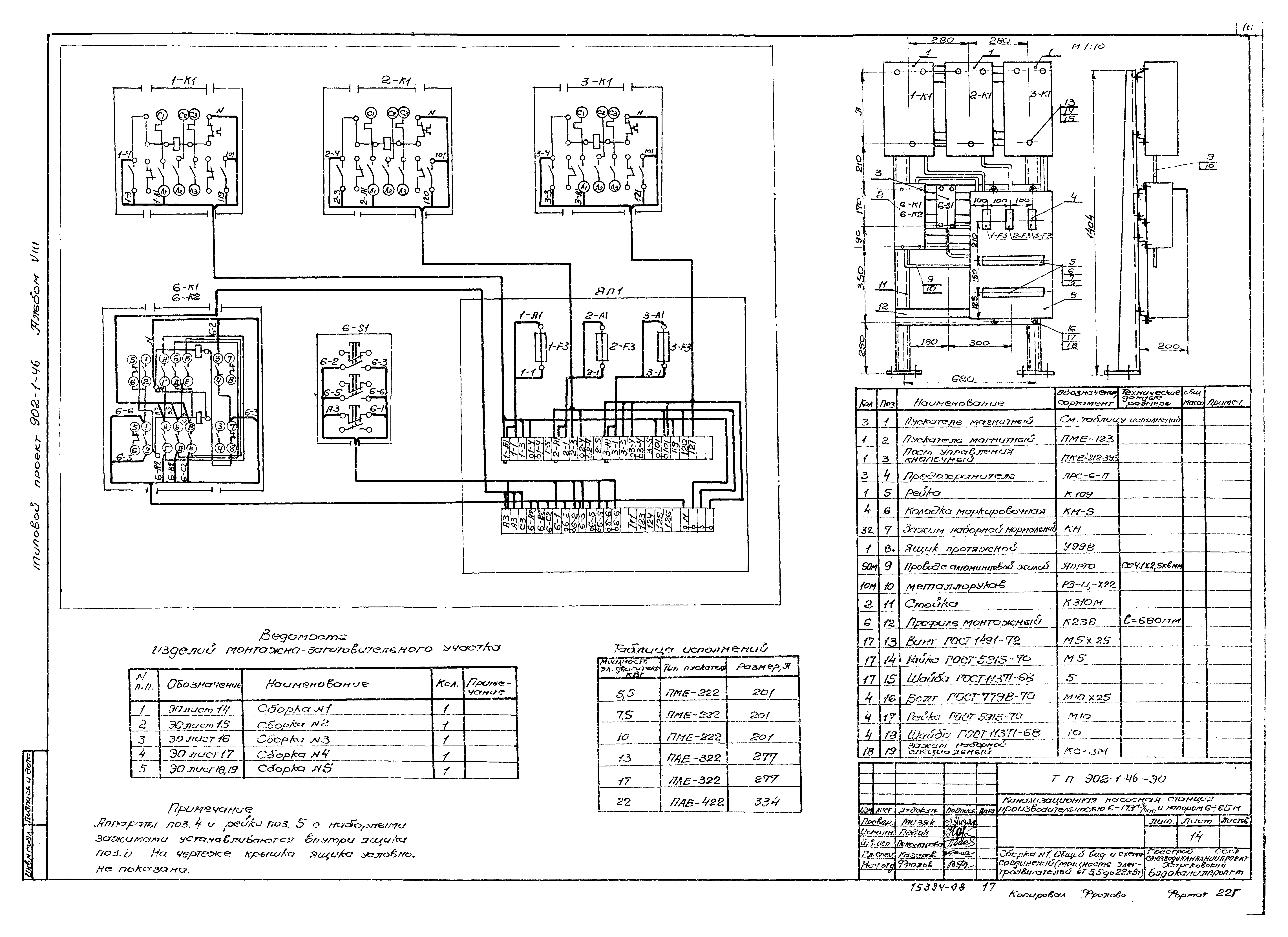
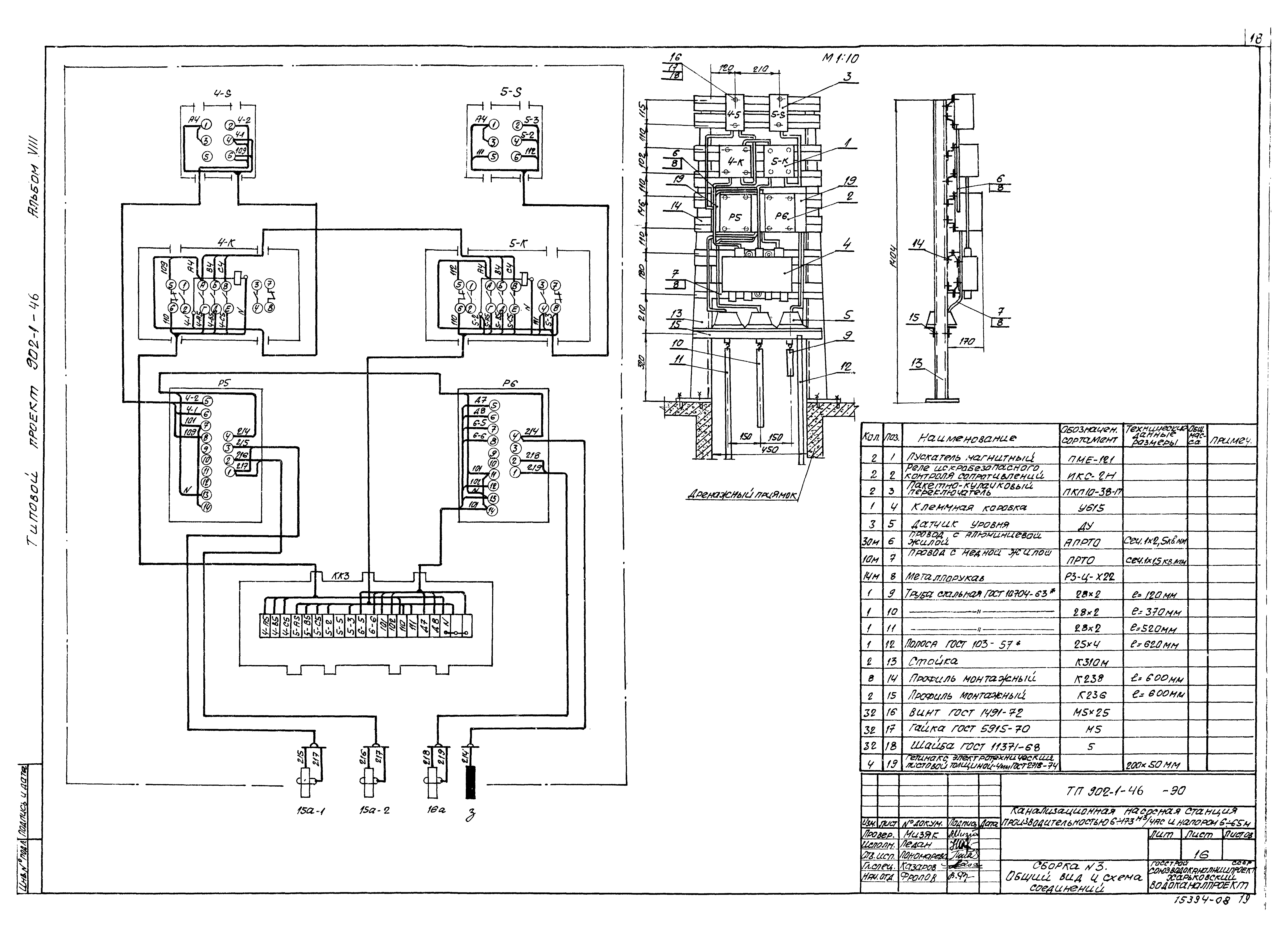
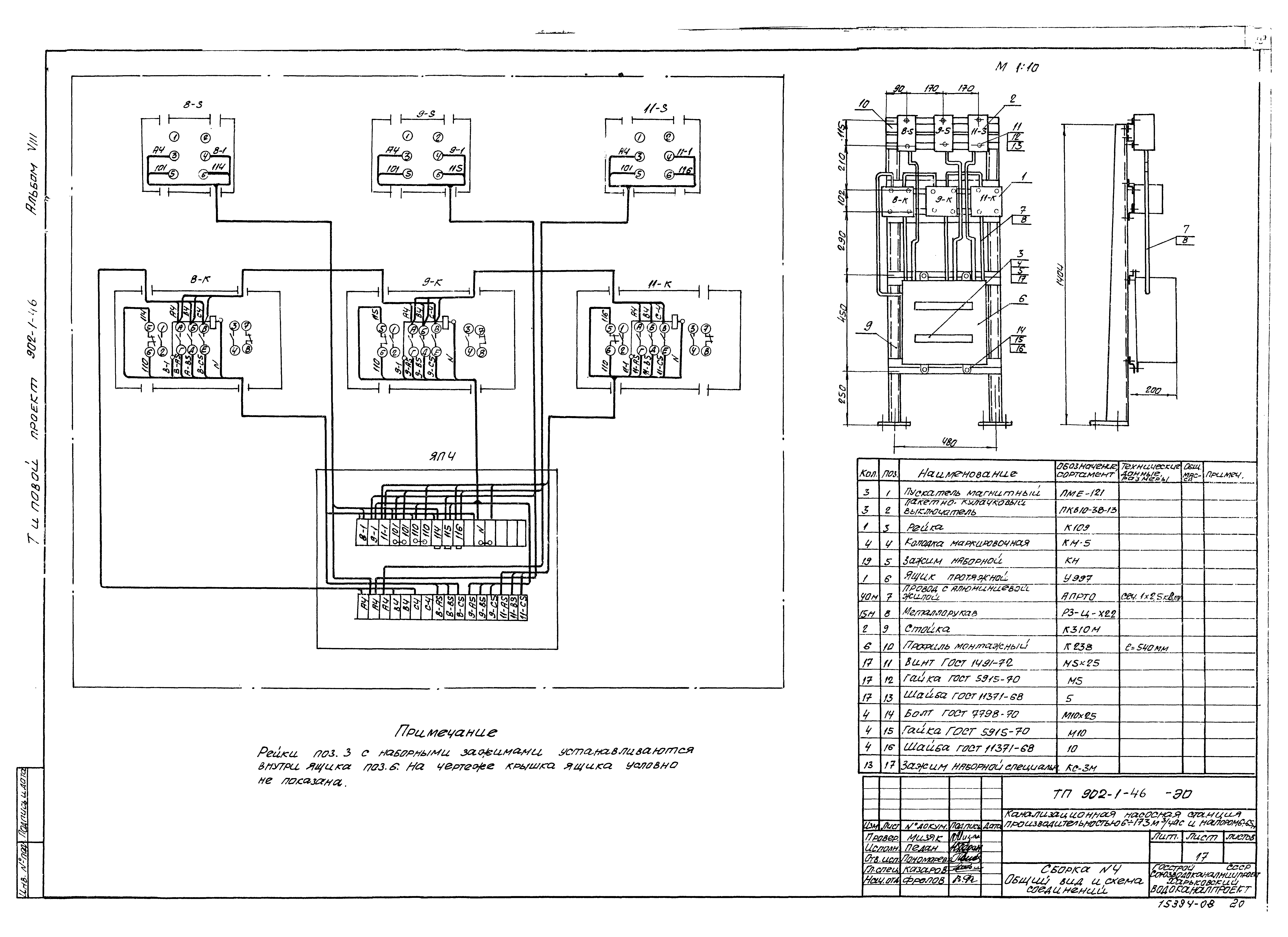
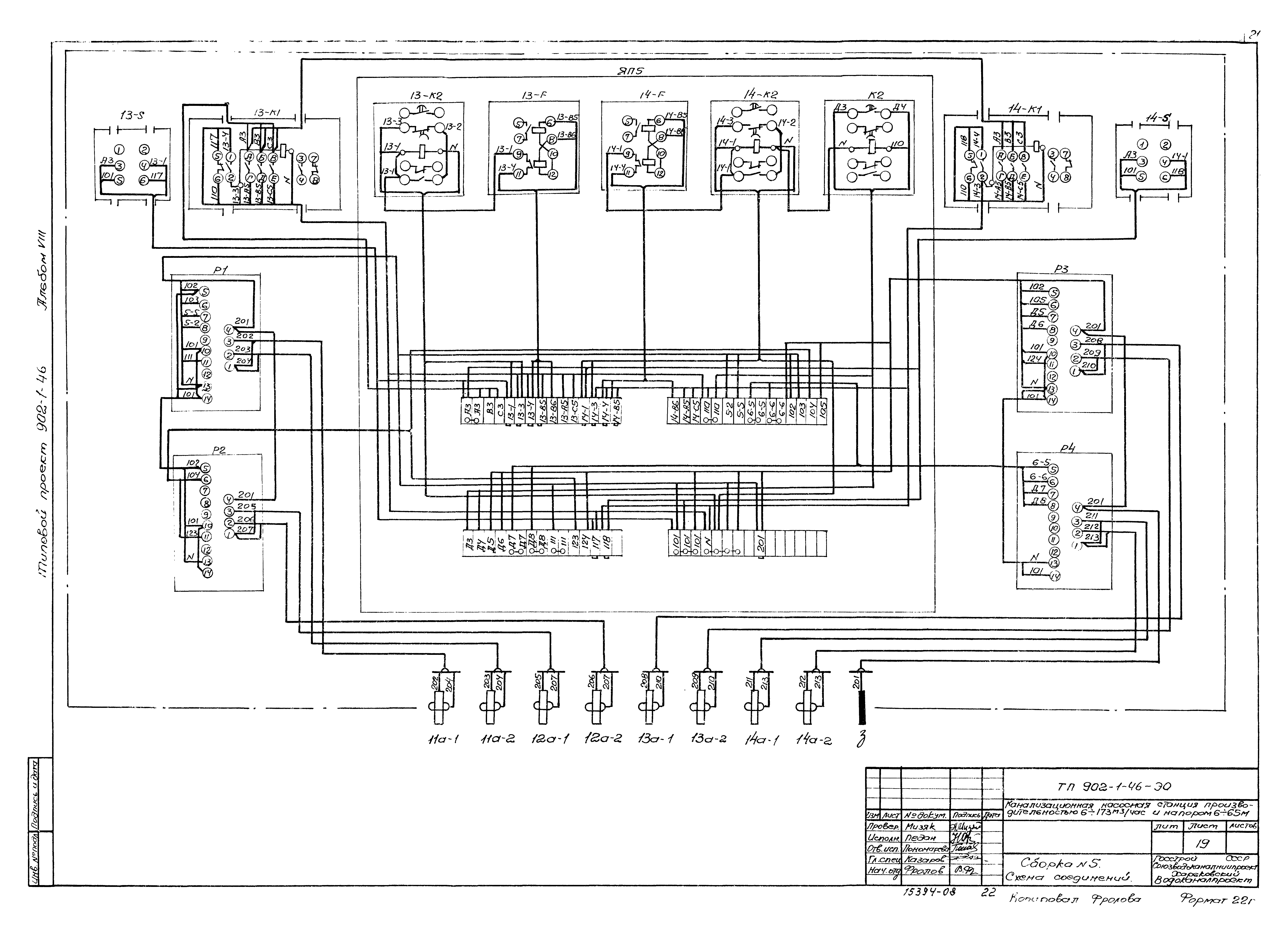
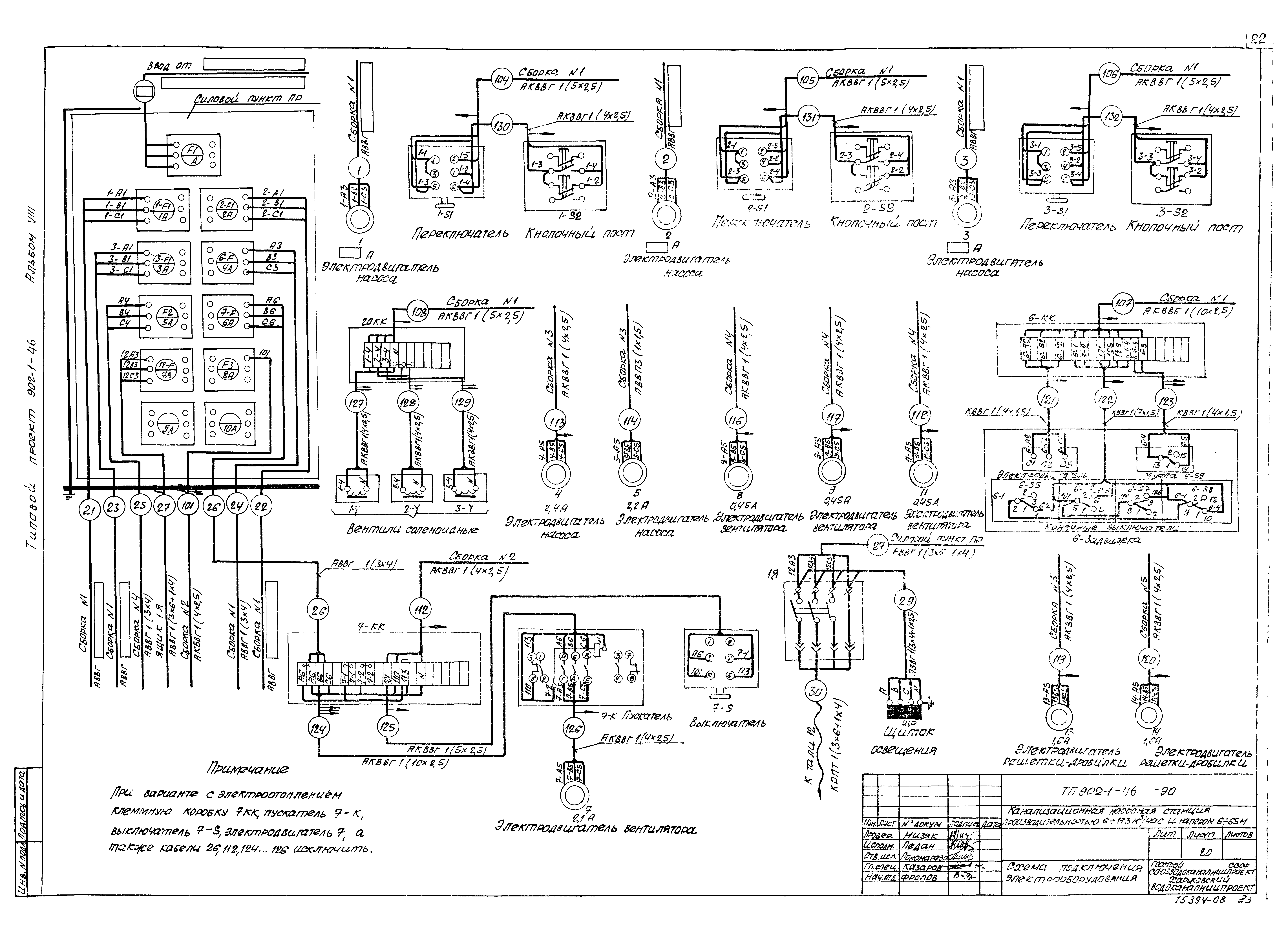
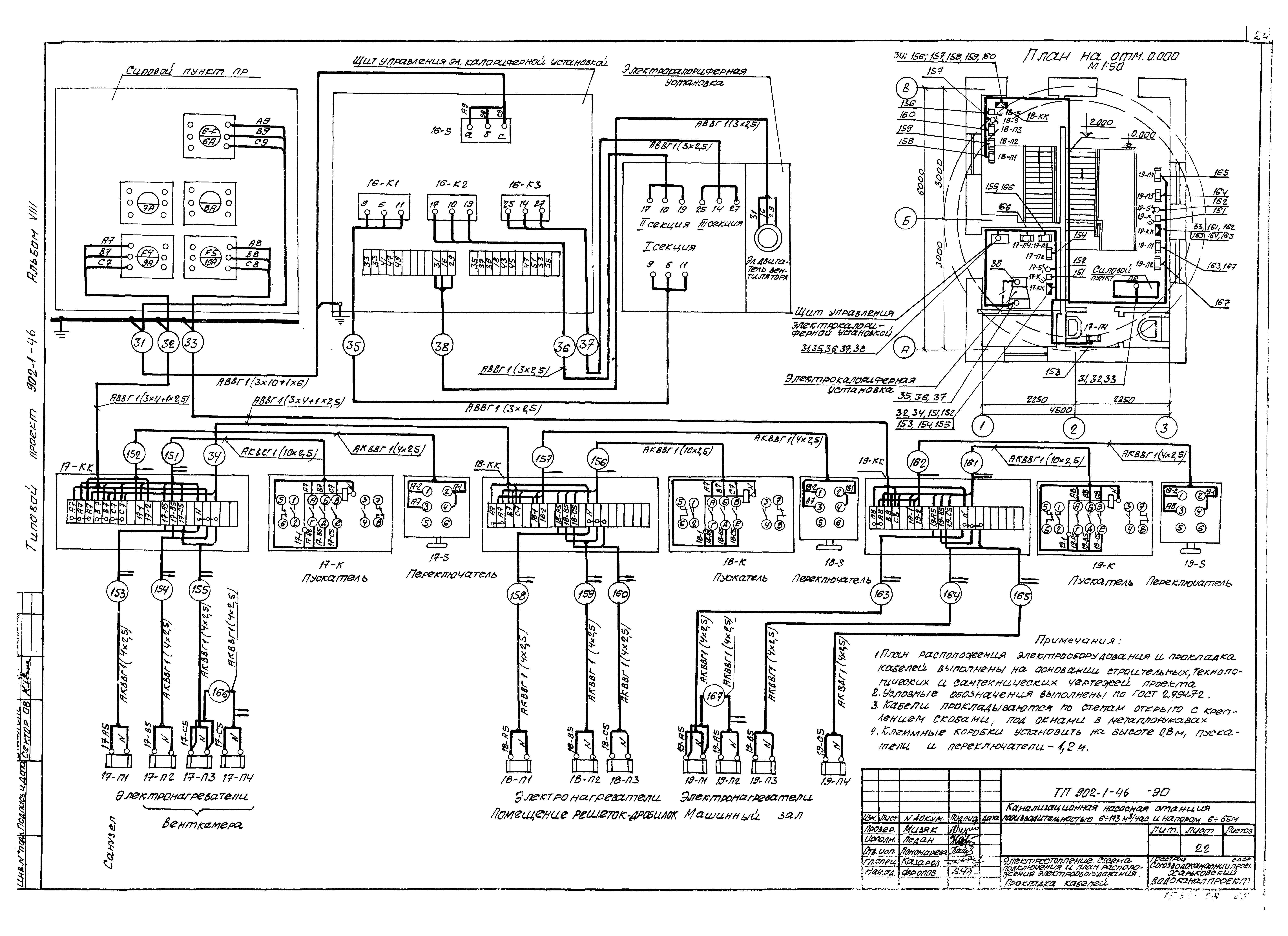
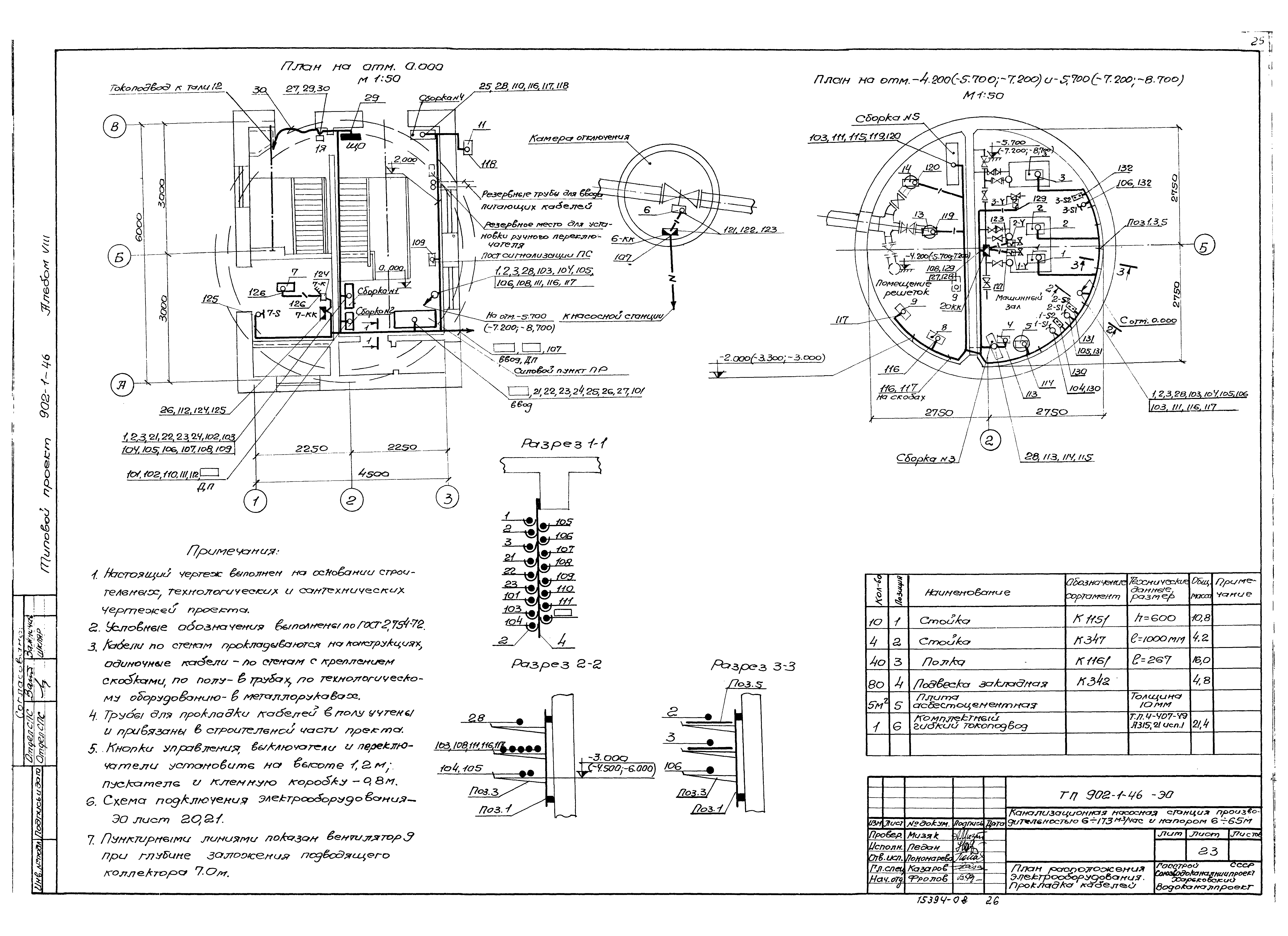
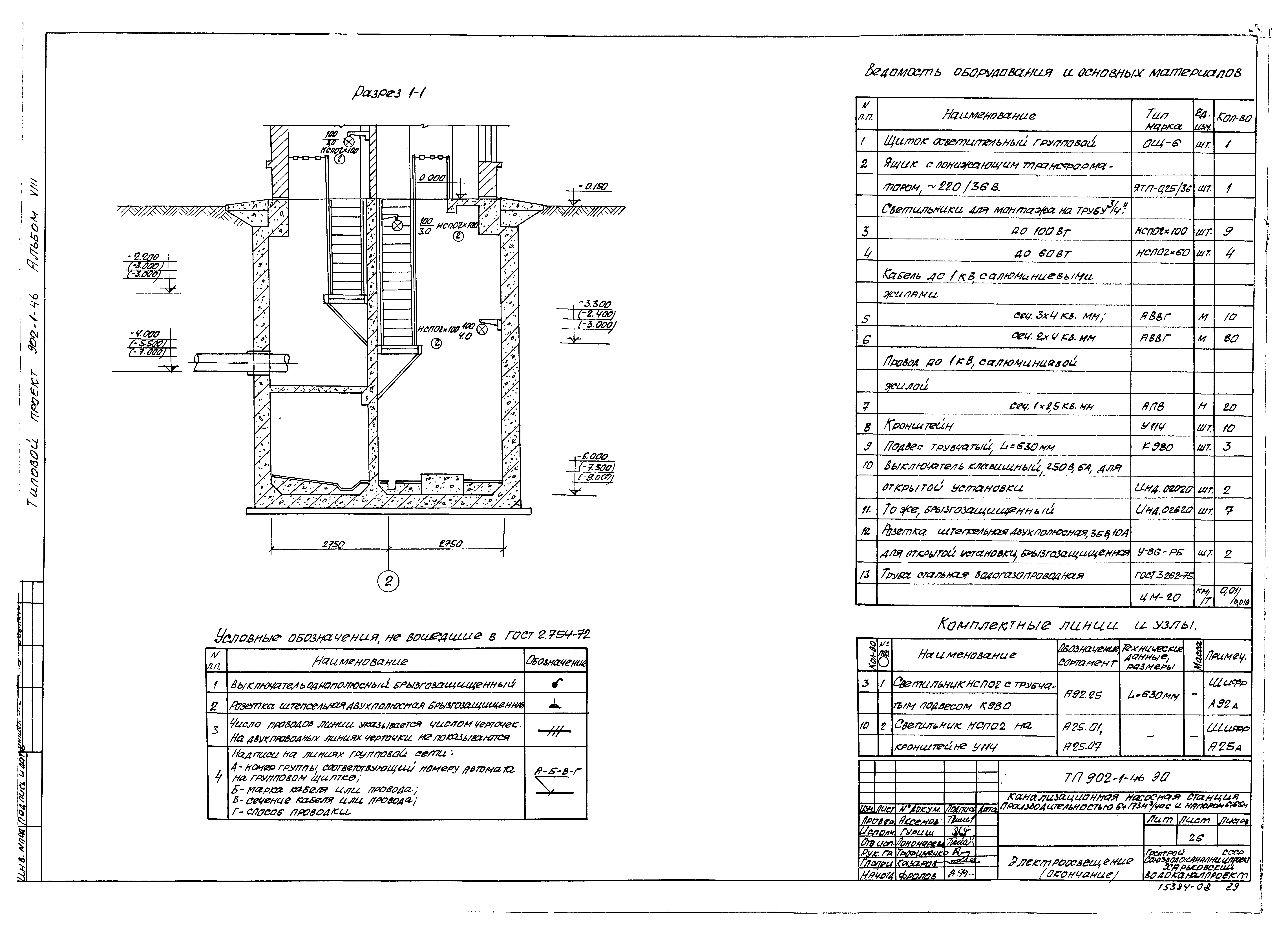
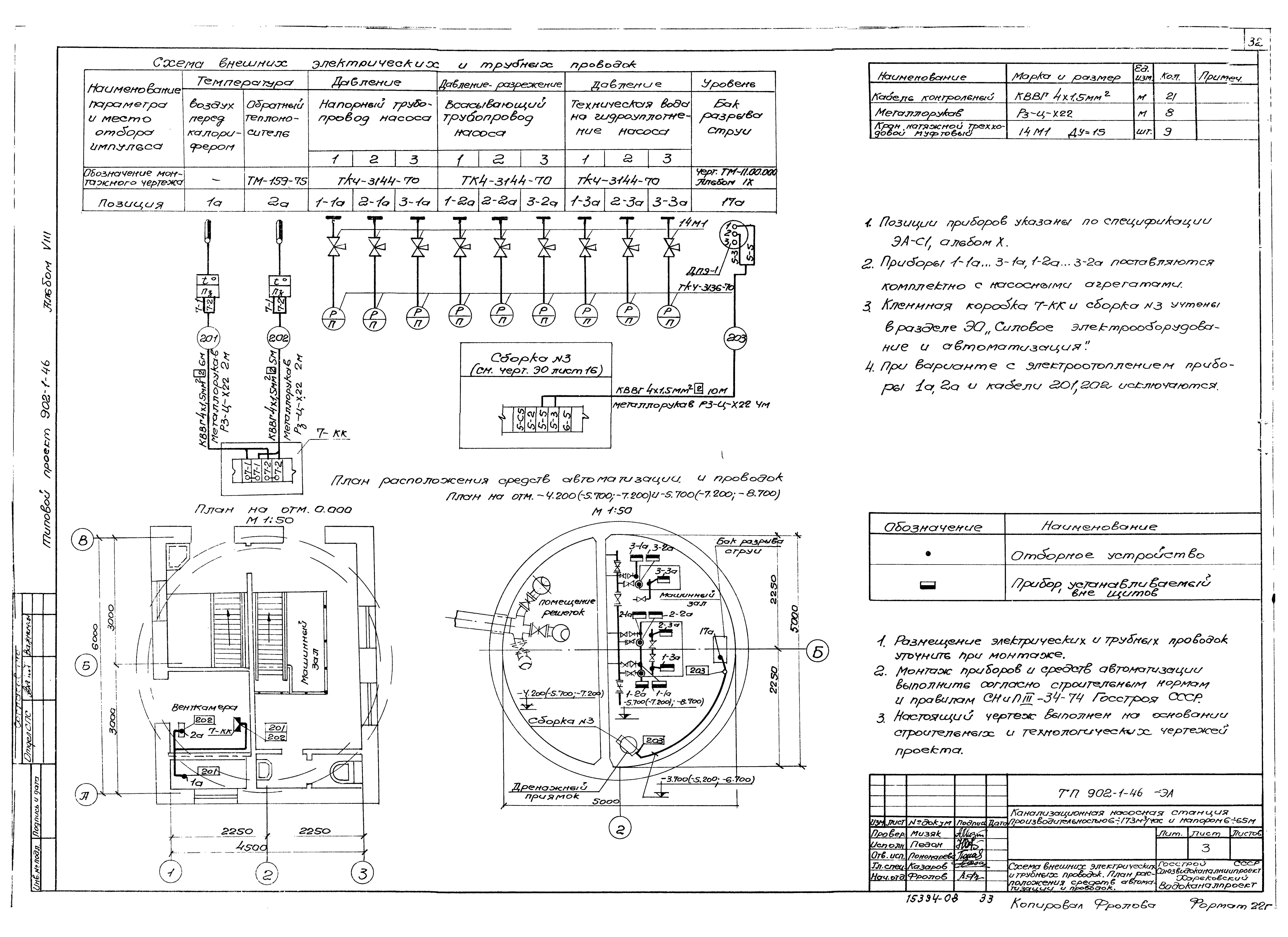
| Оглавление: | Содержание альбома Электрооборудование и автоматизация Общие данные Схема электрическая принципиальная однолинейная распределительной сети 380/220 В (вариант без электроотопления) Схема электрическая принципиальная однолинейная распределительной сети 380/220 В (вариант с электроотоплением) Схемы электрические принципиальные управления насосами и вентиляторами Схемы электрические принципиальные управления задвижкой и решетками-дробилками Схема электрическая принципиальная управления электрокалориферной установкой Схемы электрические принципиальные управления электроотоплением Схема электрическая принципиальная контроля уровней Сборка №1. Общий вид и схема соединений (мощность электродвигателей до 4 кВт) Сборка №1. Общий вид и схема соединений (мощность электродвигателей от 5,5 до 22 кВт) Сборка №2. Общий вид и схема соединений Сборка №3. Общий вид и схема соединений Сборка №4. Общий вид и схема соединений Сборка №5. Общий вид Сборка №5. Схема соединений Схема подключения электрооборудования Схема подключения сборок №№1…5 и поста сигнализации ПС Электроотопление. Схема подключения и план расположения электрооборудования. Прокладка кабелей План расположения электрооборудования. Прокладка кабелей Кабельный журнал Электроосвещение Зануление Технологический контроль Общие данные Схема функциональная технологического контроля Схема внешних электрических и трубных проводок. План расположения средств автоматизации и проводок Электроотопление. Схемы технологического контроля и внешних электрических и трубных проводок. План расположения средств автоматизации и проводок |
| Разработан: | Харьковский Водоканалпроект |
| Утверждён: | 08.12.1975 СоюзводоканалНИИпроект (SoyuzvodokanalNIIproject 105) |
| Заменяет собой: |
|
| Чем заменён: |
|


































