Скачать Типовой проект 407-3-659.02 Альбом 1. Пояснительная записка. Архитектурно-строительные решения. Электротехническая часть. Электромонтажные конструкцииДата актуализации: 01.01.2021
|
| Обозначение: | Типовой проект 407-3-659.02 |
| Обозначение англ: | 407-3-659.02 |
| Статус: | не определен законодательством |
| Название рус.: | Альбом 1. Пояснительная записка. Архитектурно-строительные решения. Электротехническая часть. Электромонтажные конструкции |
| Дата добавления в базу: | 01.10.2014 |
| Дата актуализации: | 01.01.2021 |
| Дата введения: | 04.03.2002 |
| Дата окончания срока действия: | 30.06.2003 |
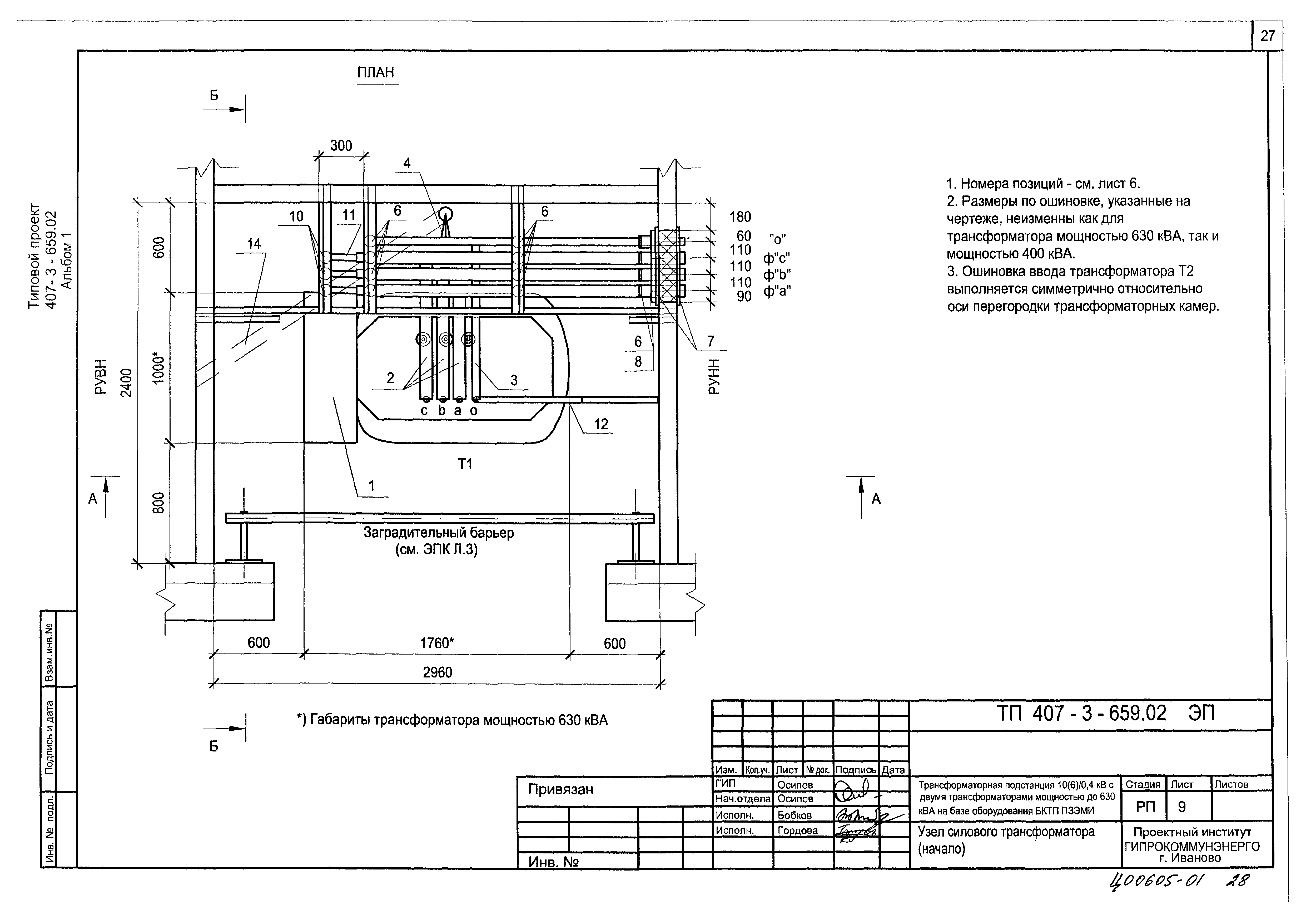
| Оглавление: | Содержание альбома Пояснительная записка Архитектурно-строительные решения Общие данные План на отм. 0.000 Разрезы 1-1, 2-2 Фасады План полов на отм. 0.000. План кровли Схемы расположения фундаментов Схемы расположения блоков в осях 1 - 2; 2 - 1; А - Б; Б - А. Сечения 3-3, 4-4 Схемы расположения кабельных каналов Схемы перекрытия кабельных каналов Схема расположения плит покрытия Схемы расположения горизонтальной диафрагмы Схемы расположения закладных изделий Электротехнические чертежи Общие данные Схема электрических соединений 10(6) кВ Схема электрических соединений 0,4 кВ План и разрезы ТП Узел силового трансформатора Электрическое освещение и отопление Заземление и молниезащита РУНН-0,4 кВ, панели №2, 3 (АВР). Схема электрическая принципиальная Автоматика обогрева. Схема электрическая принципиальная Кабельный журнал Панель управления наружным освещением. Схема электрическая принципиальная Прилагаемые документы марки ЭПК Ведомость изделий МЭЗ Детали оборудования трансформаторных вводов Барьер в камере трансформатора Подставка изолирующая |
| Разработан: | ОГУП ПИ Гипрокоммунэнерго |
| Утверждён: | 04.03.2002 ЗАО ПЗЭМИ (21) |








































