Скачать Типовой проект 501-3-18 Альбом I. Пояснительная записка. Технология производства. Архитектурно-строительные решения. Электроосвещение и силовое электрооборудование. Автоматизация технологии производства. Нестандартизированное оборудование. Заказные спецификацииДата актуализации: 01.01.2021
|
| Обозначение: | Типовой проект 501-3-18 |
| Обозначение англ: | 501-3-18 |
| Статус: | действует |
| Название рус.: | Альбом I. Пояснительная записка. Технология производства. Архитектурно-строительные решения. Электроосвещение и силовое электрооборудование. Автоматизация технологии производства. Нестандартизированное оборудование. Заказные спецификации |
| Дата добавления в базу: | 01.10.2014 |
| Дата актуализации: | 01.01.2021 |
| Дата введения: | 01.03.1982 |
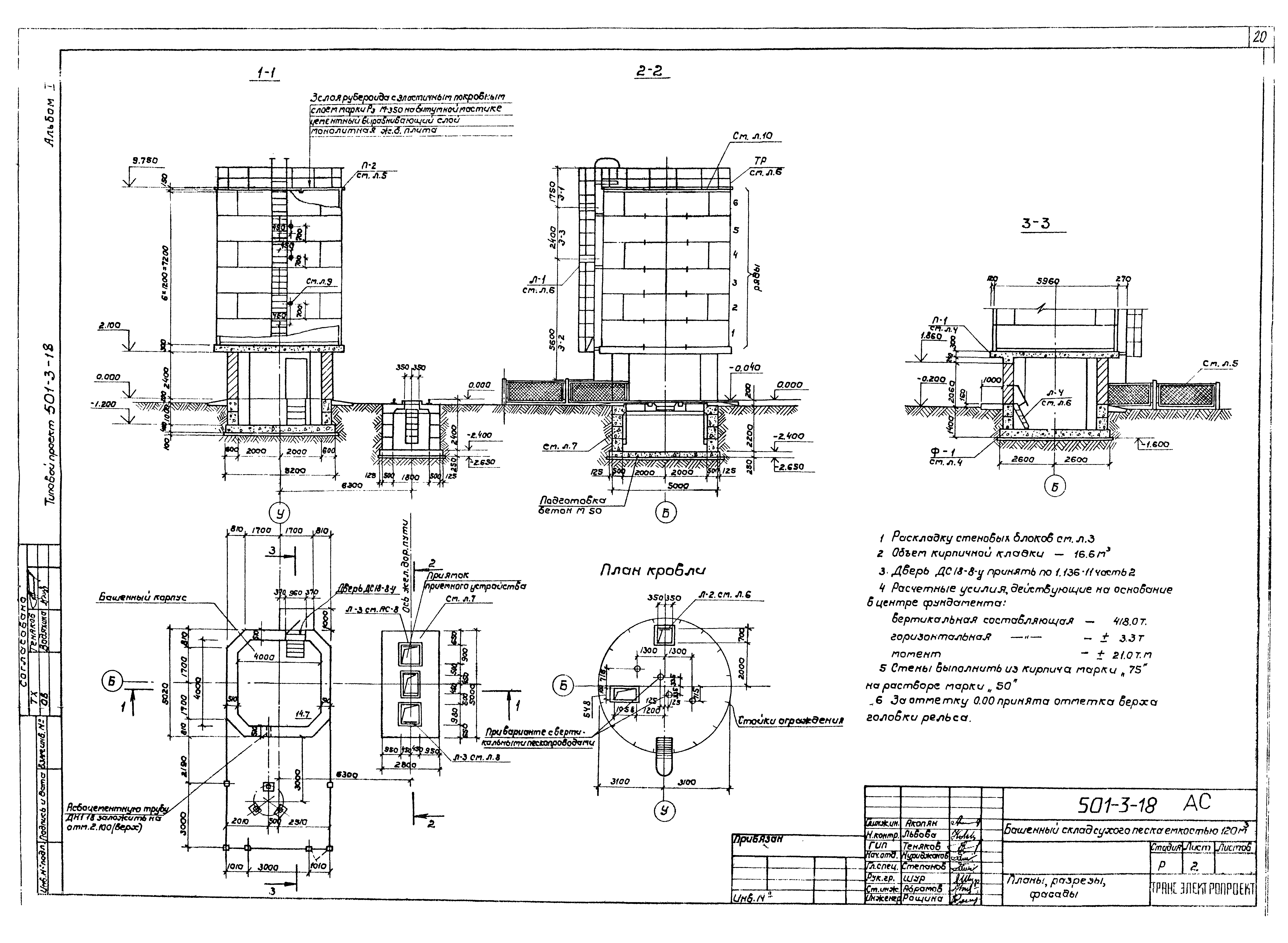
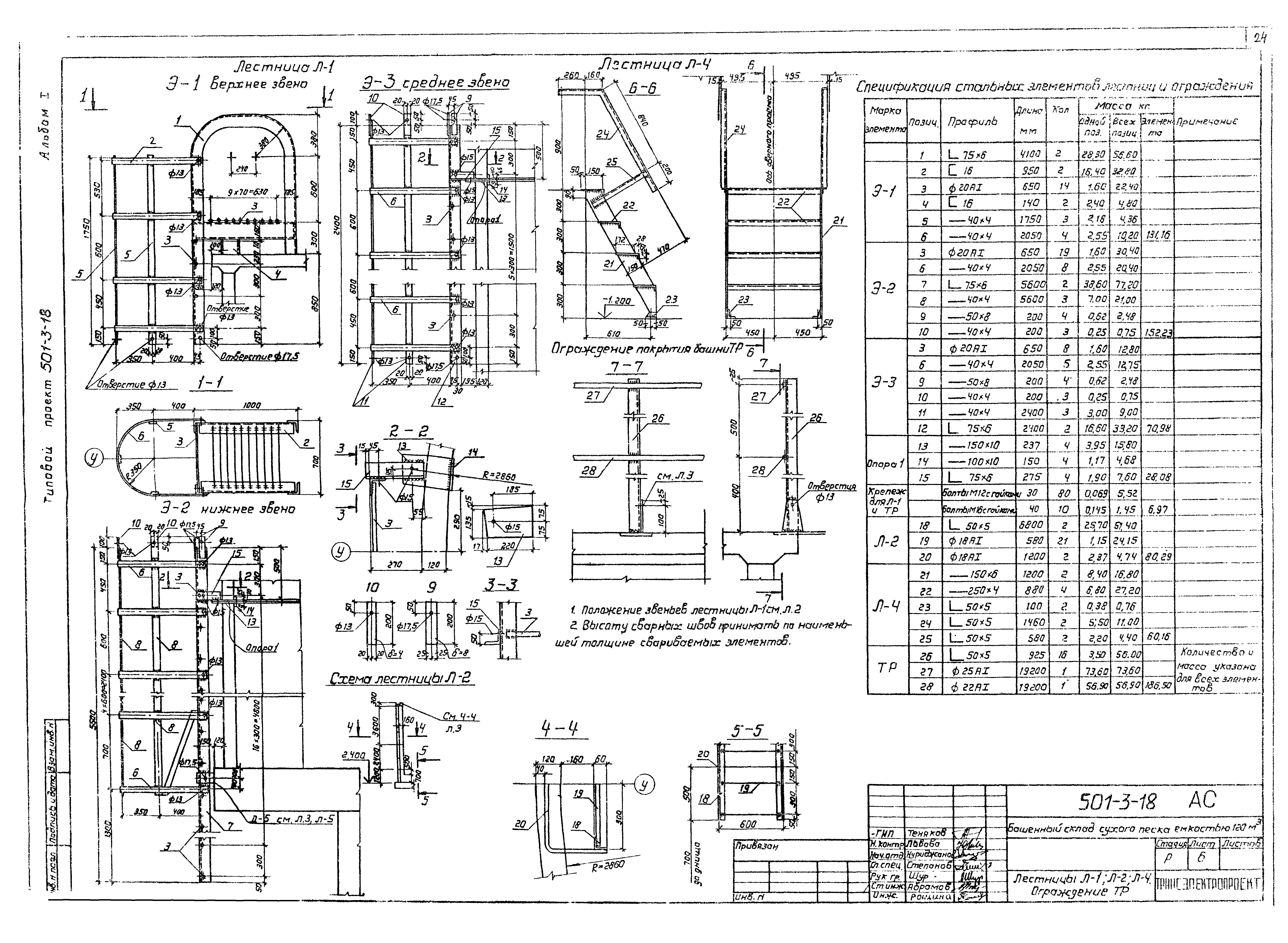
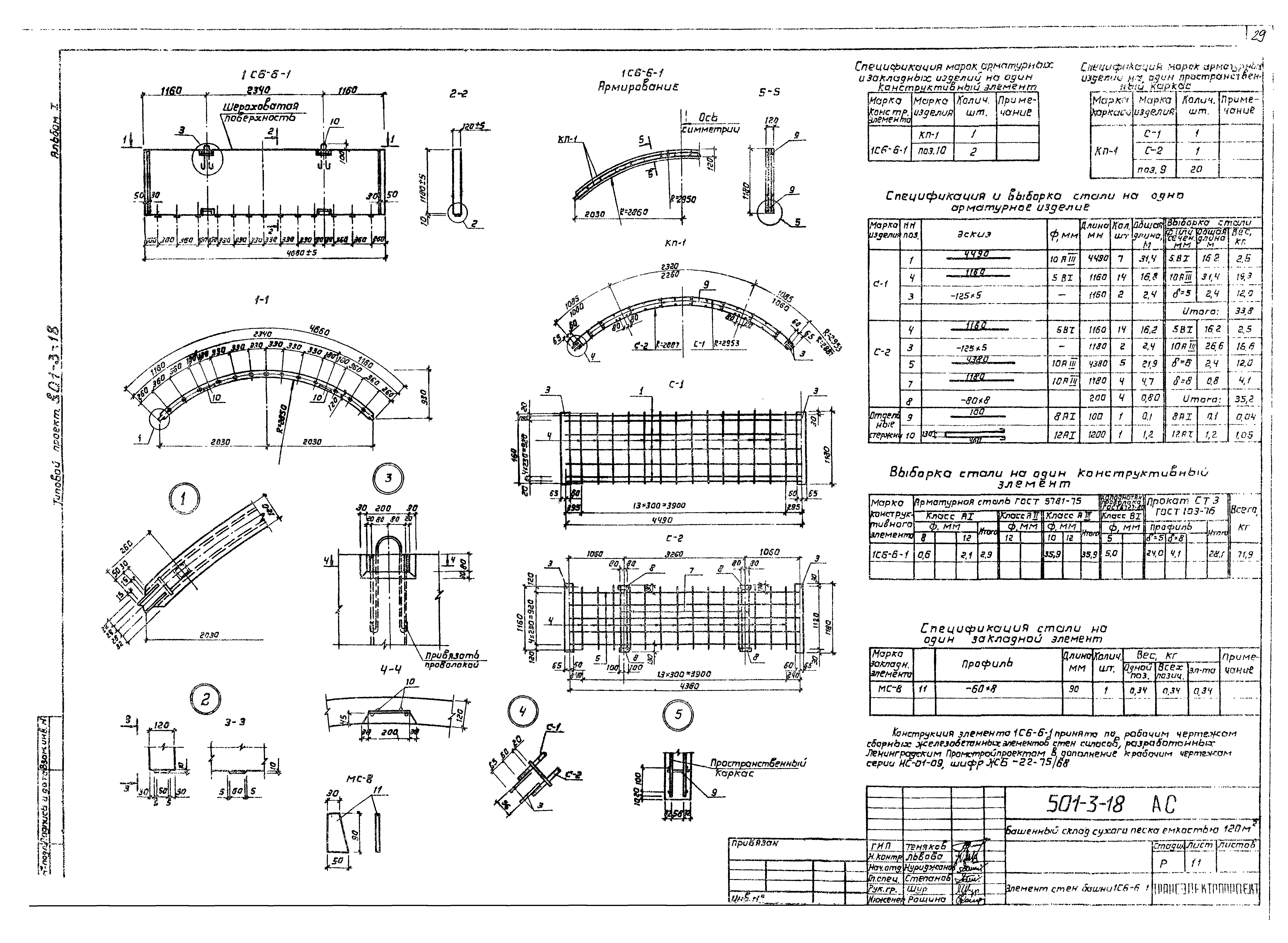
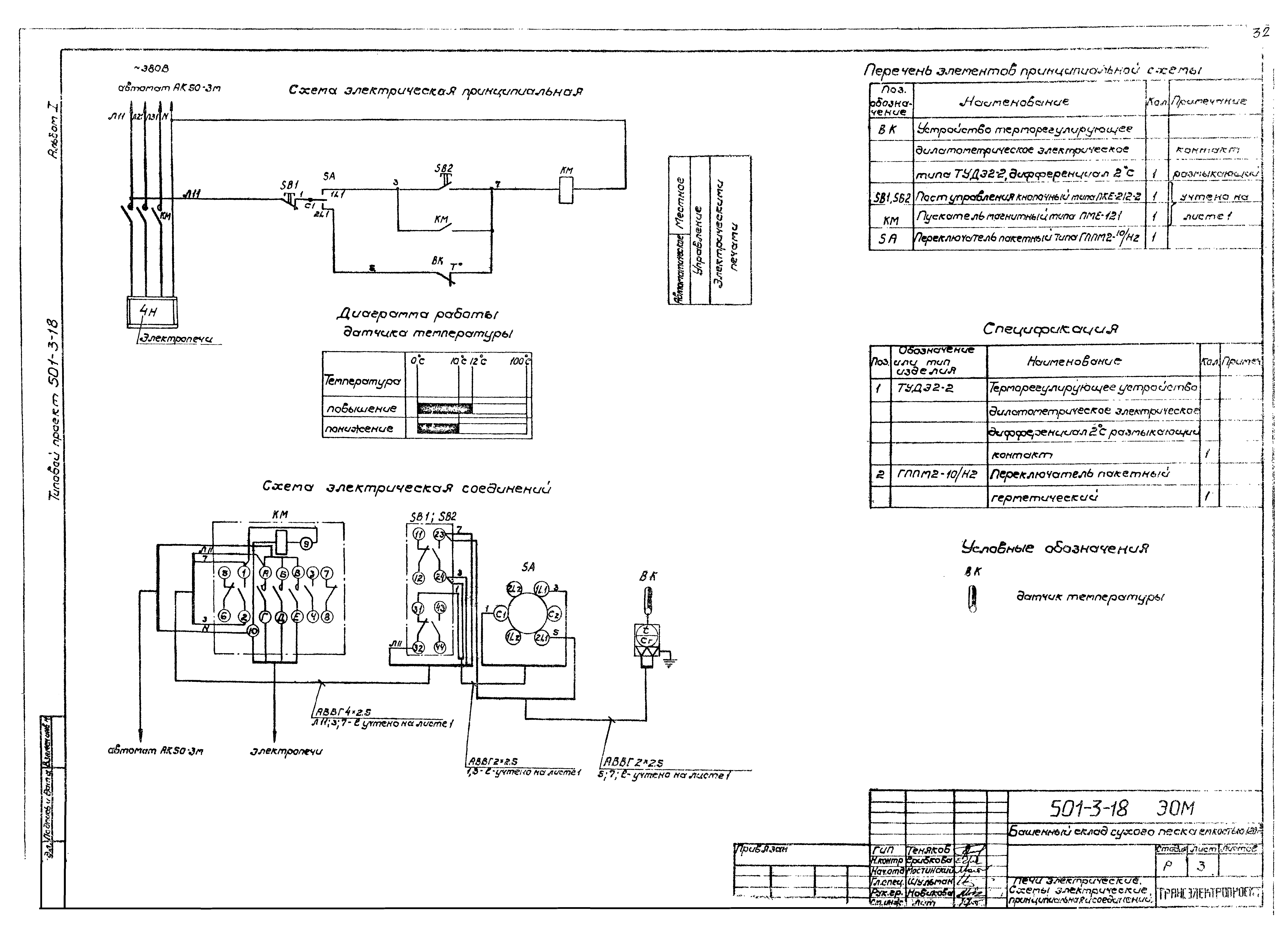
| Оглавление: | Содержание альбома Пояснительная записка Технология производства Общие данные Общий вид склада с вертикальными пескопроводами Общий вид склада с горизонтальными пескопроводами Установка пневмотранспортная с вертикальными пескопроводами Установка пневмотранспортная с горизонтальными пескопроводами Установка пневмотранспортная. Схема принципиальная Установка пневмотранспортная. Схема монтажная воздухопроводов Установка пневмотранспортная. Узел управления Установка воздухосборника емкостью 6,3 куб. м Установка лебедки для передвижки вагона Архитектурно-строительные решения Общие данные Планы, разрезы, фасады План стеновых блоков. Расположение закладных элементов в днище и покрытии Фундамент и днище башни Покрытие башни. Ограждение рессивера. Детали днища и покрытия Лестницы Л1, Л-2, Л-4. Ограждение ТР Планы и разрезы. Лестница Л-3 Плиты П3 и Ф-2. Армирование Установка уровнемера Карниз кровли. Стыки стен башни Элемент стен башни 1СБ-6-1 Электроосвещение и силовое электрооборудование Общие данные и спецификация электрооборудования Электрооборудование. План Печи электрические. Схемы электрические принципиальная и соединений Автоматизация технологии производства Пневмотранспорт песка. Схема электрическая принципиальная. План Пневмотранспорт песка. Схема электрическая соединений Нестандартизированное оборудование Воронка разгрузочная Воронка разгрузочная. Сборочный чертеж Кожух Кожух. Сборочный чертеж Фланец Патрубок Лист Конус Патрубок Фланец Штуцер Труба Труба. Сборочный чертеж Козырек Фланец Прокладка Шифер Шифер. Сборочный чертеж Течка Течка. Сборочный чертеж Бункер Бункер. Сборочный чертеж Стенка Фланец Заказные спецификации |
| Разработан: | Трансэлектропроект МПС |
| Утверждён: | 01.03.1982 Министерство путей сообщения СССР (USSR Ministry of Railroads П-6591) |

















































