Скачать Типовой проект 409-10-63.89 Альбом V. Силовое электрооборудование. Электрическое освещение. Автоматизация технологии производства. Автоматизация отопления и вентиляции. Связь и сигнализацияДата актуализации: 01.01.2021
|
| Обозначение: | Типовой проект 409-10-63.89 |
| Обозначение англ: | 409-10-63.89 |
| Статус: | не определен законодательством |
| Название рус.: | Альбом V. Силовое электрооборудование. Электрическое освещение. Автоматизация технологии производства. Автоматизация отопления и вентиляции. Связь и сигнализация |
| Дата добавления в базу: | 01.10.2014 |
| Дата актуализации: | 01.01.2021 |
| Дата введения: | 15.12.1989 |
| Дата окончания срока действия: | 30.06.2003 |
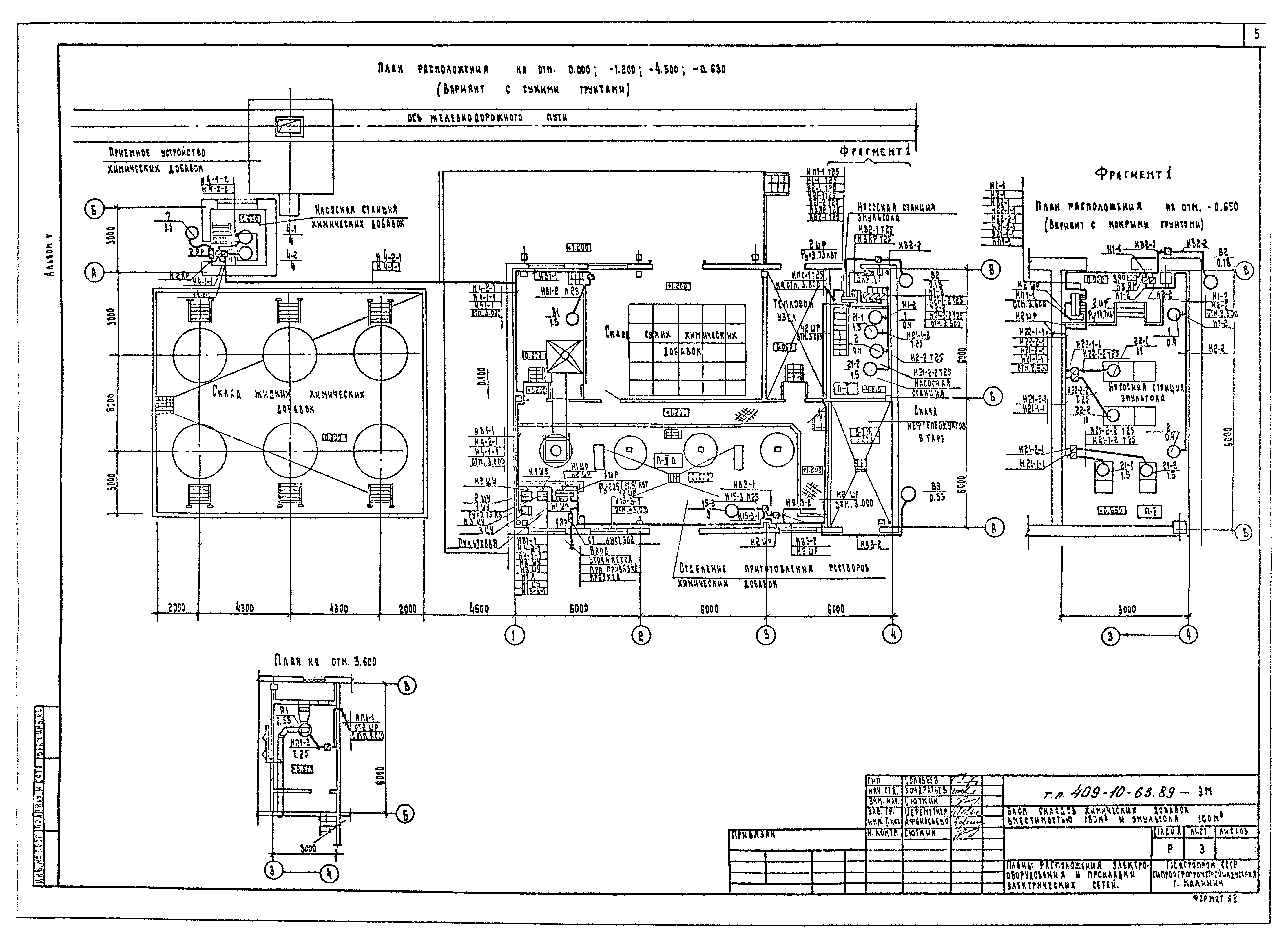
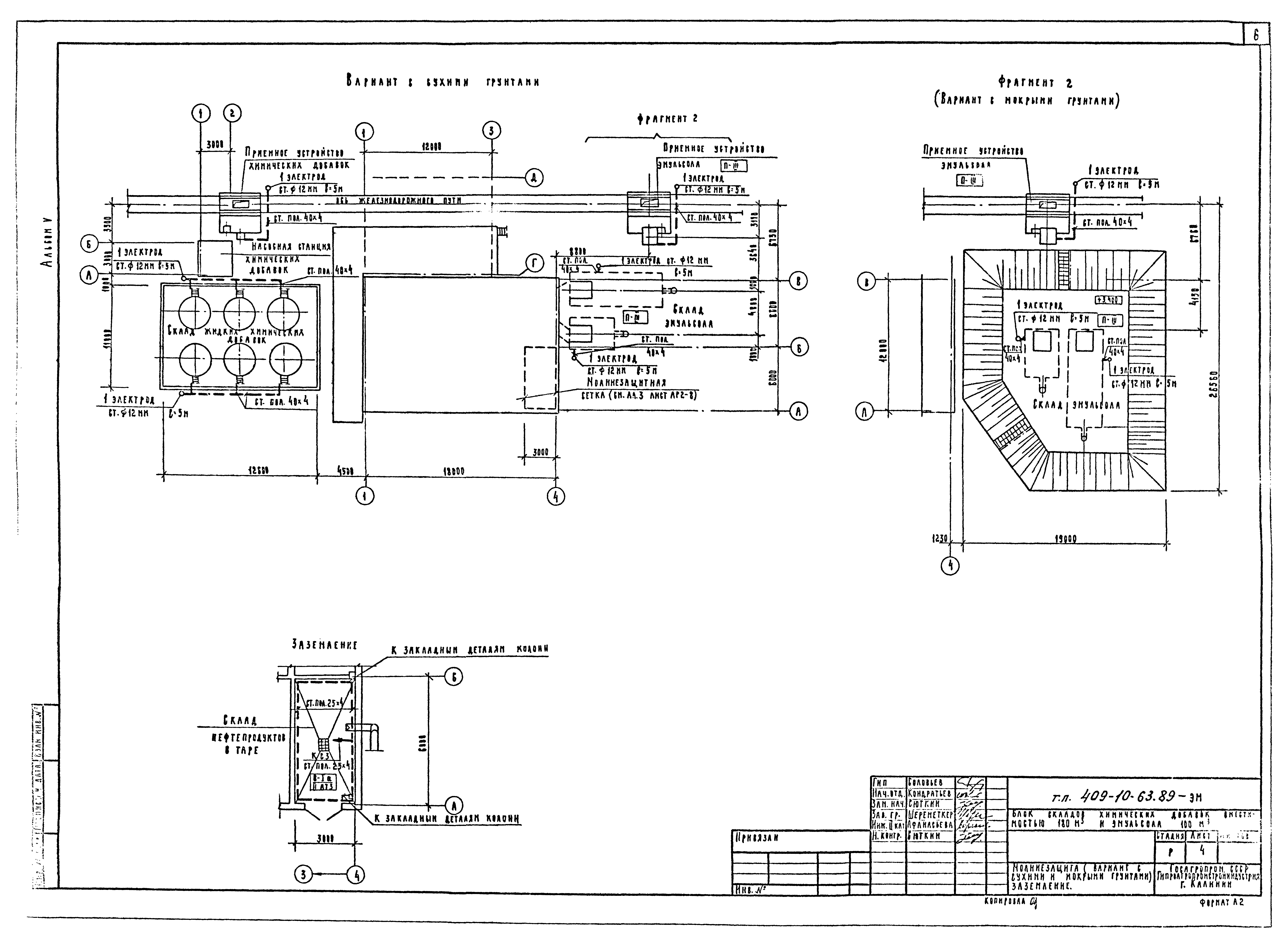
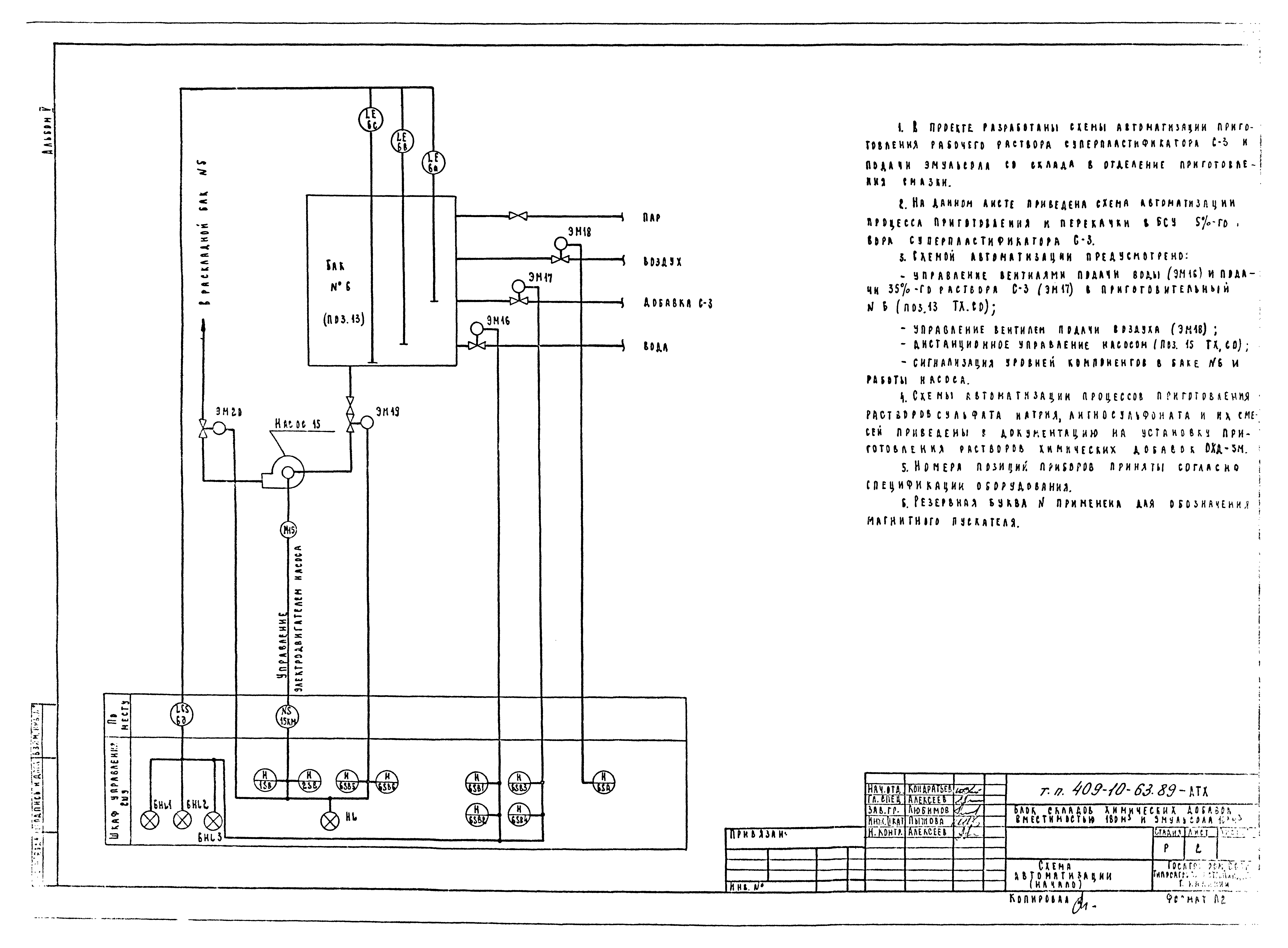
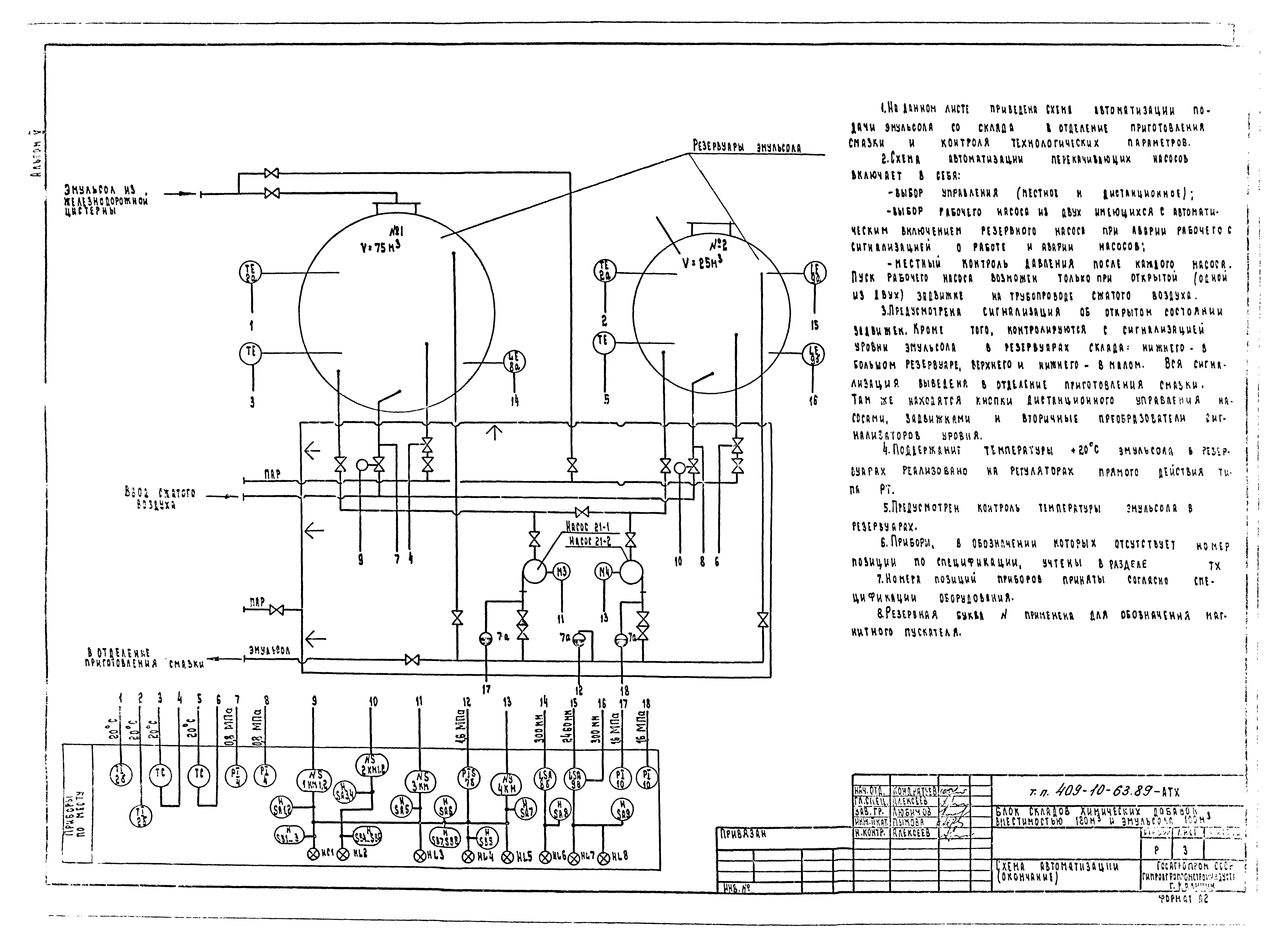
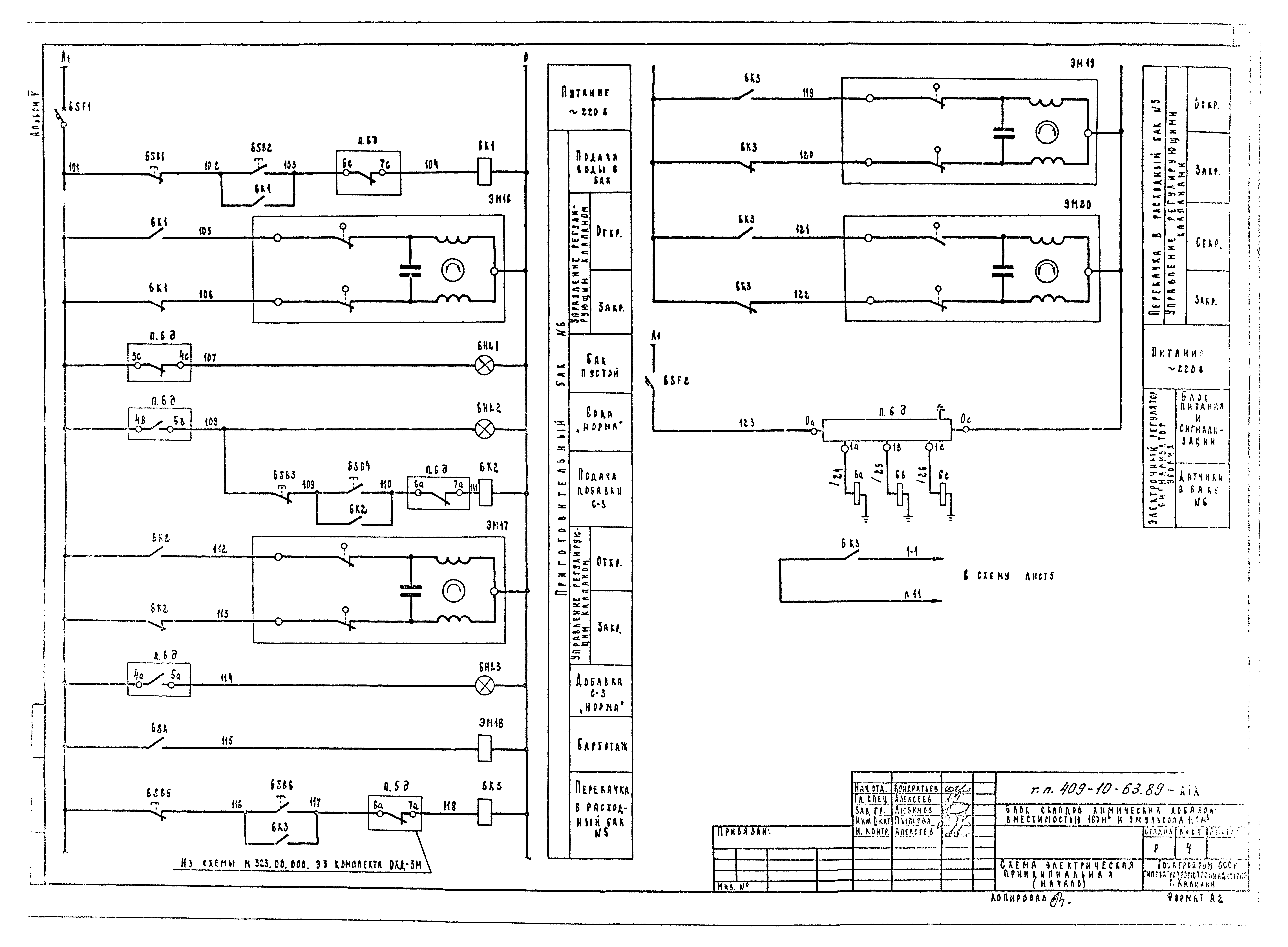
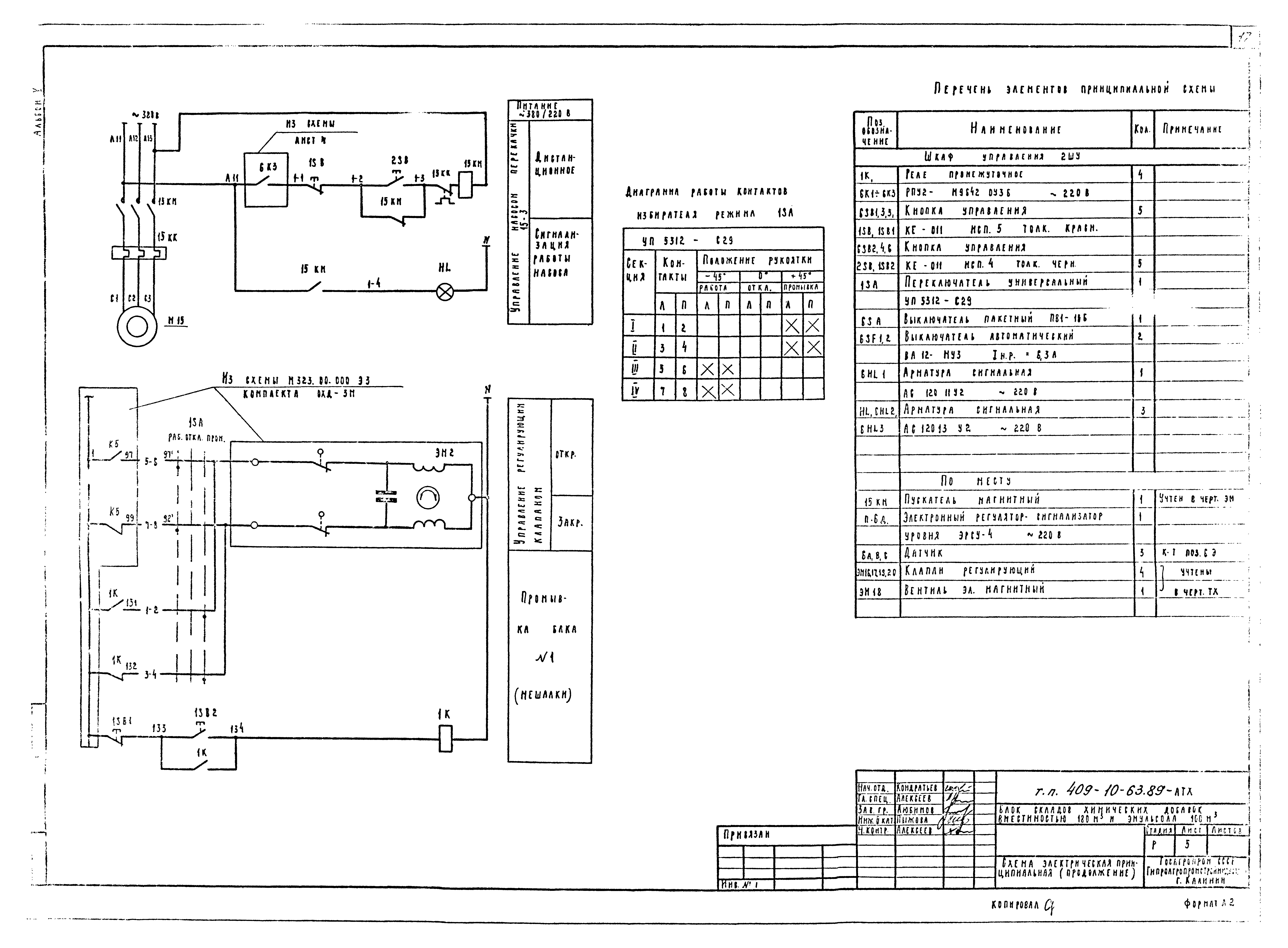
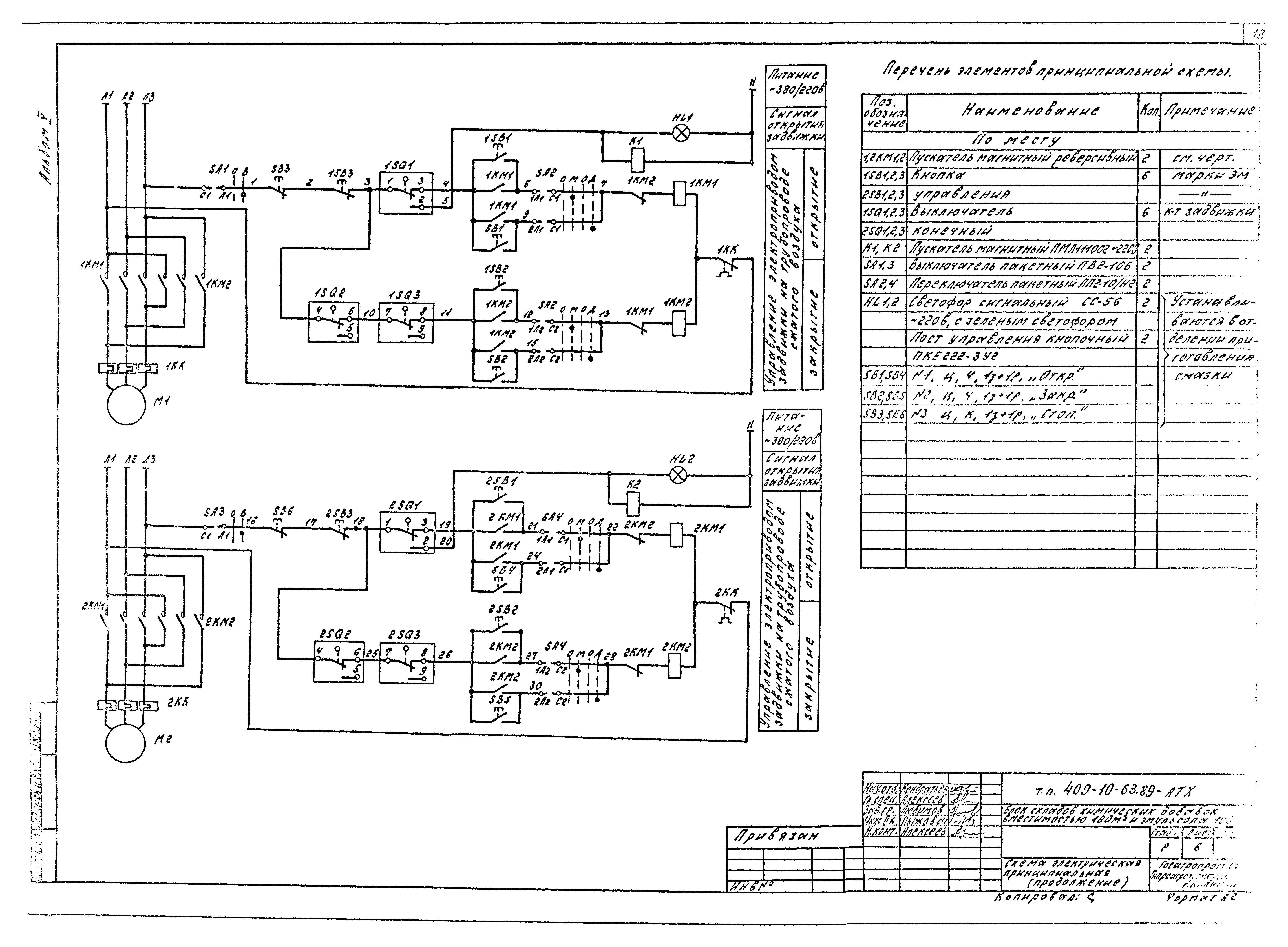
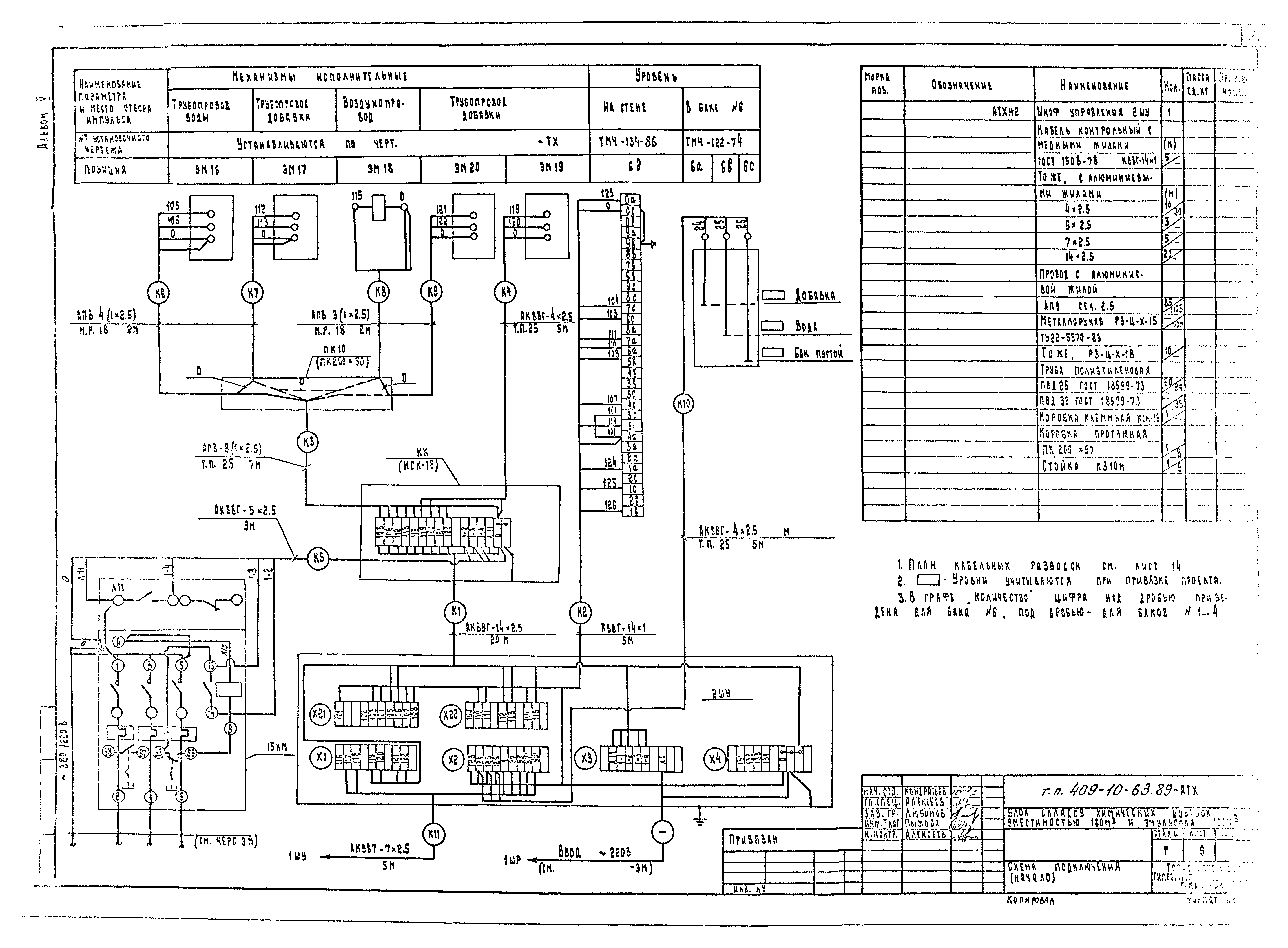
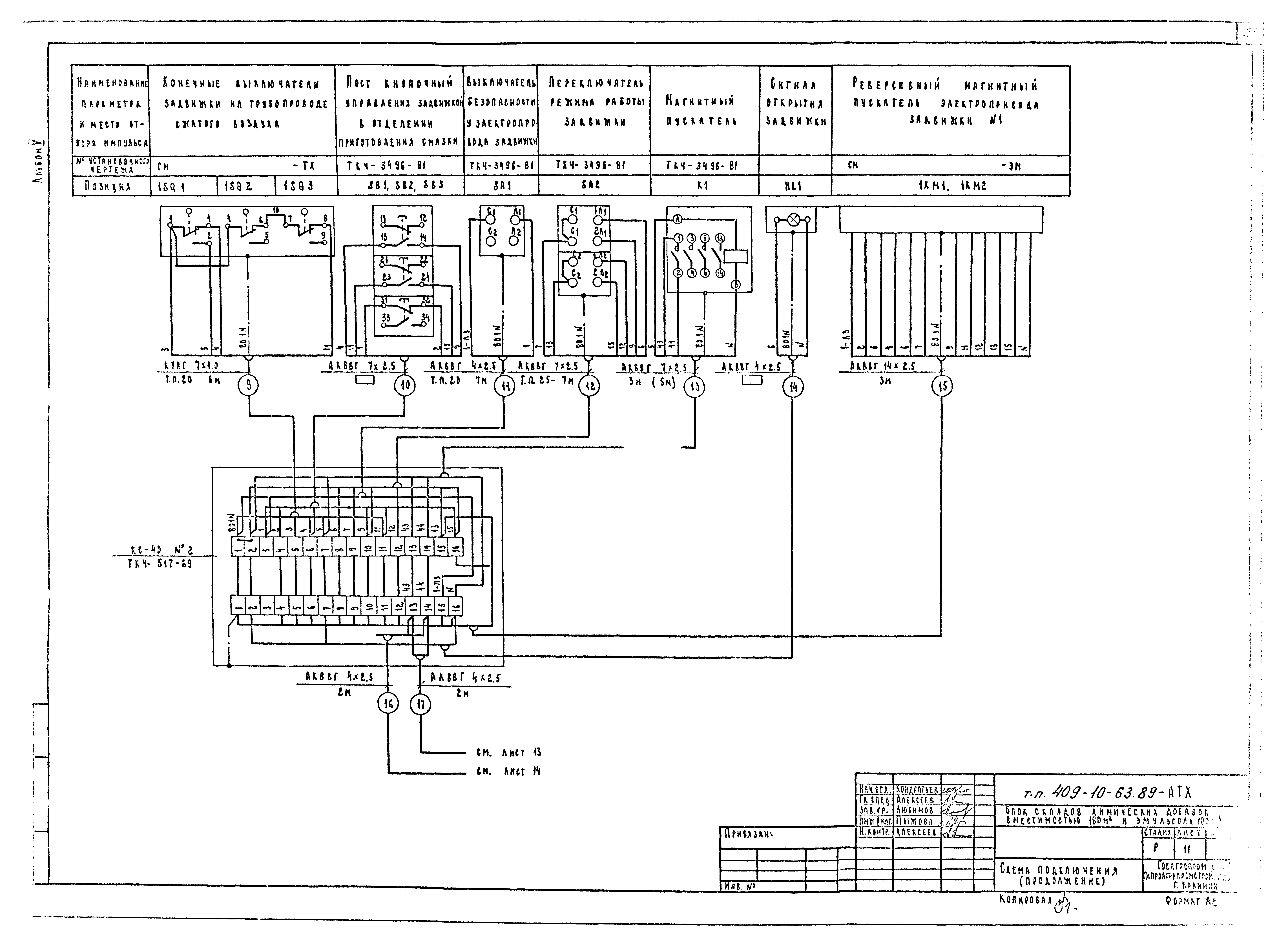
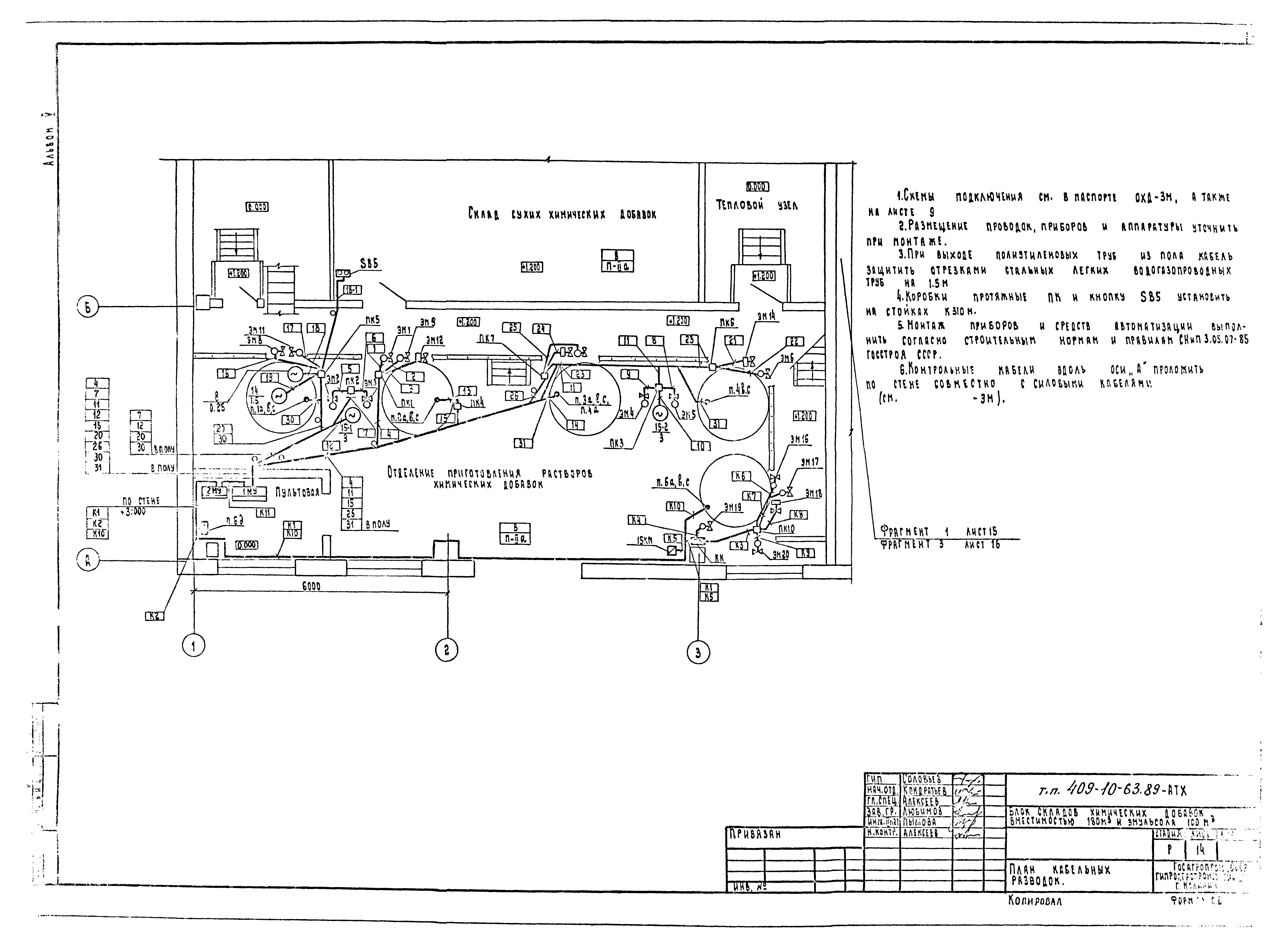
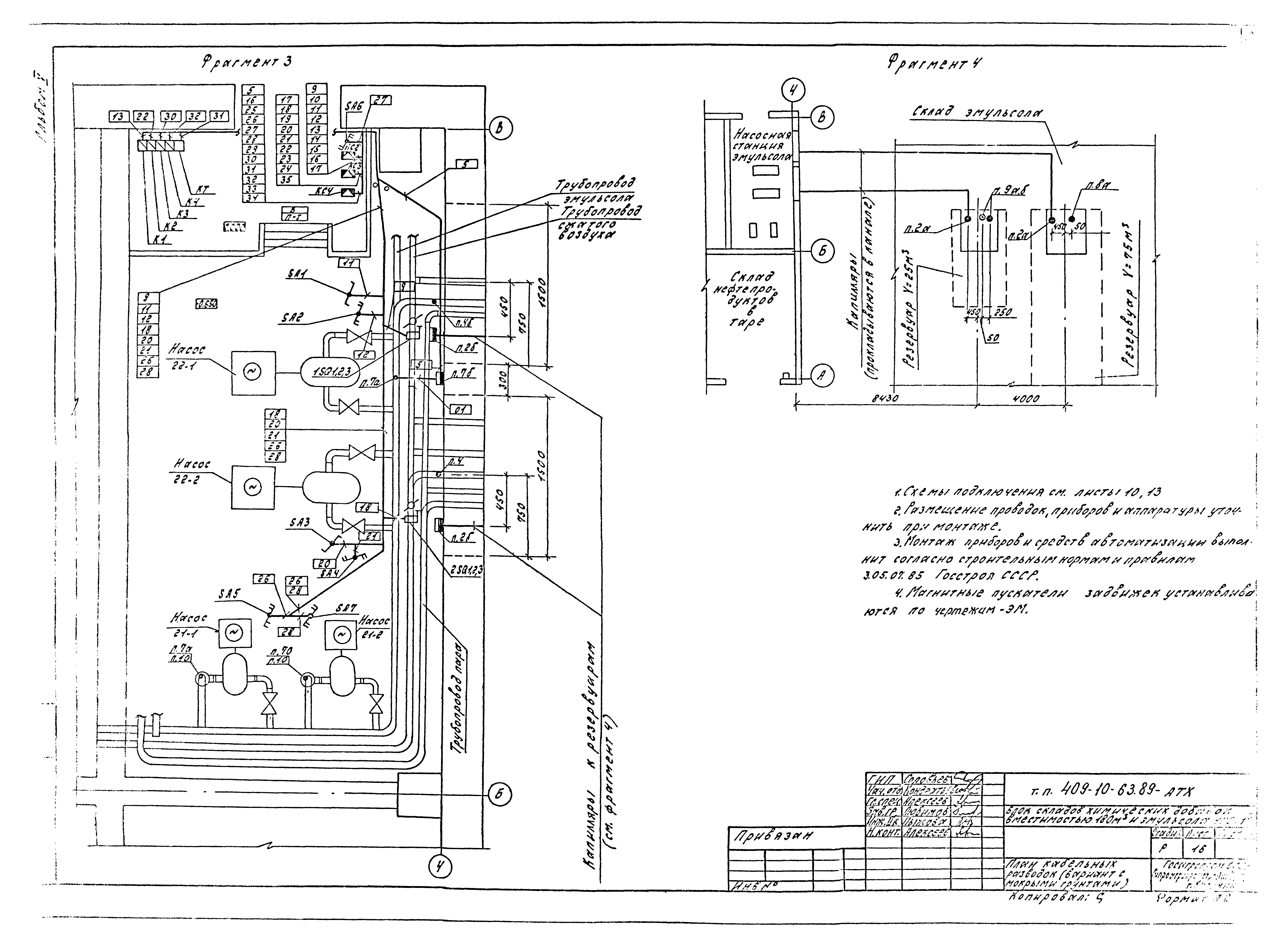
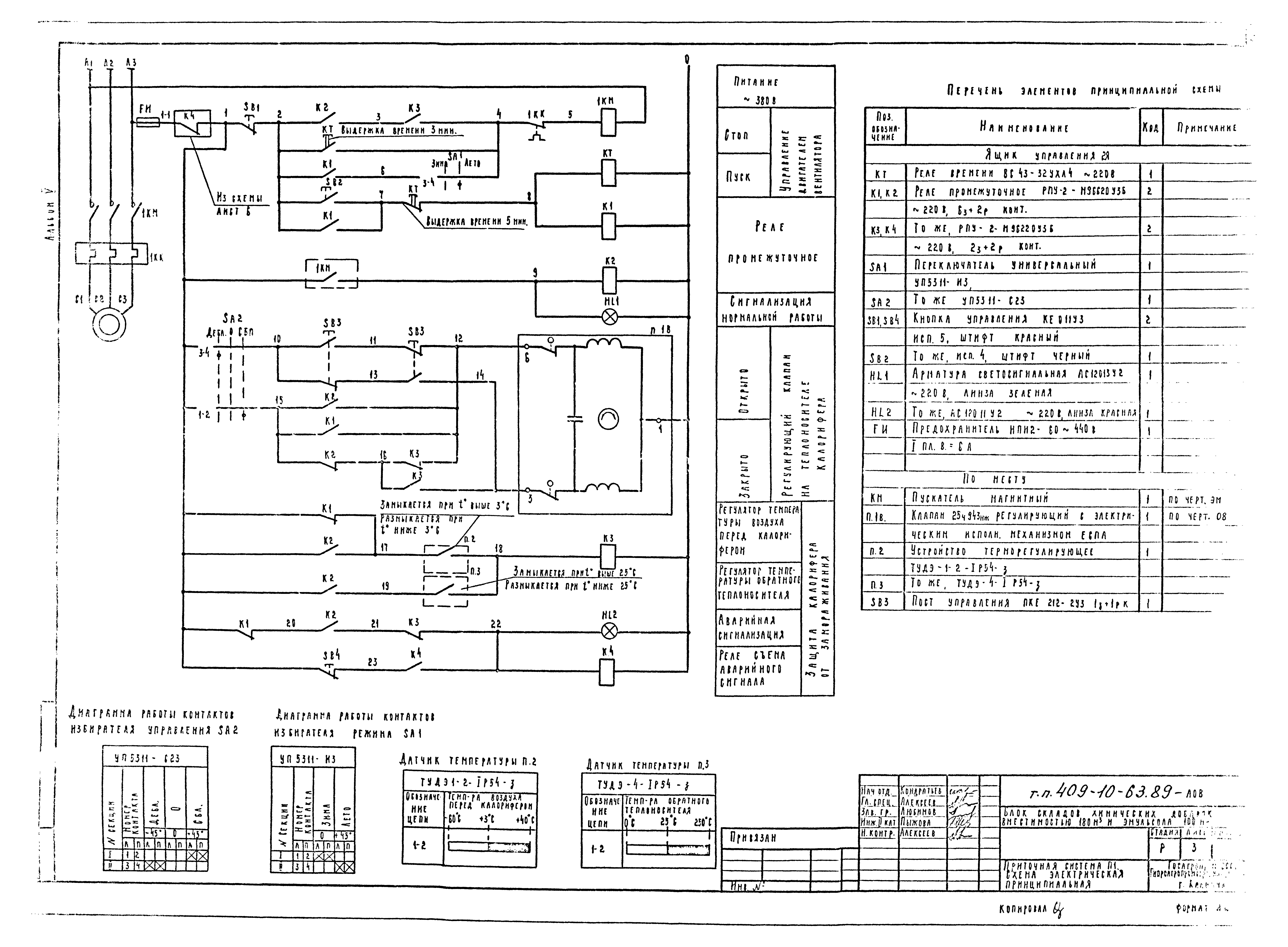
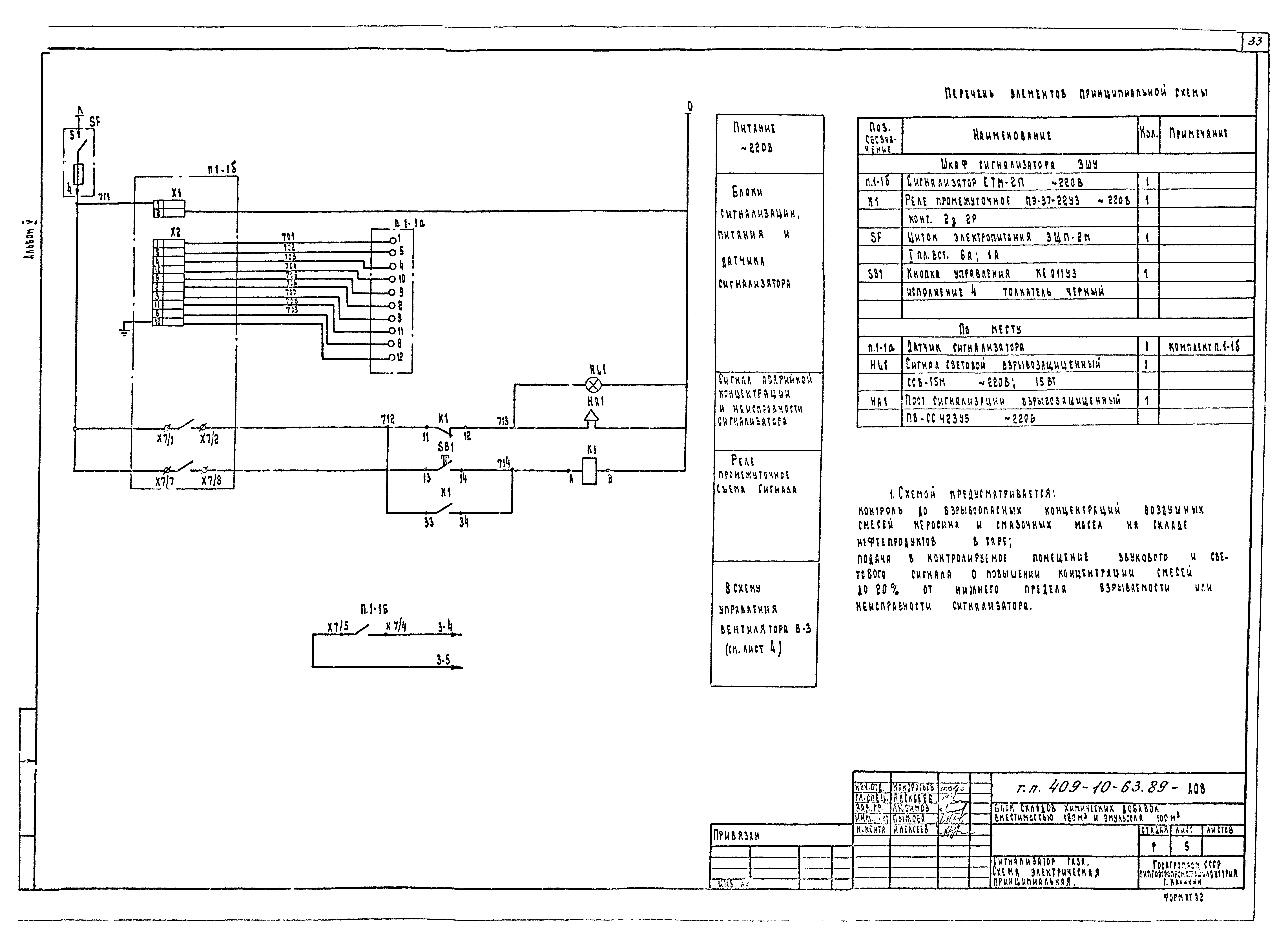
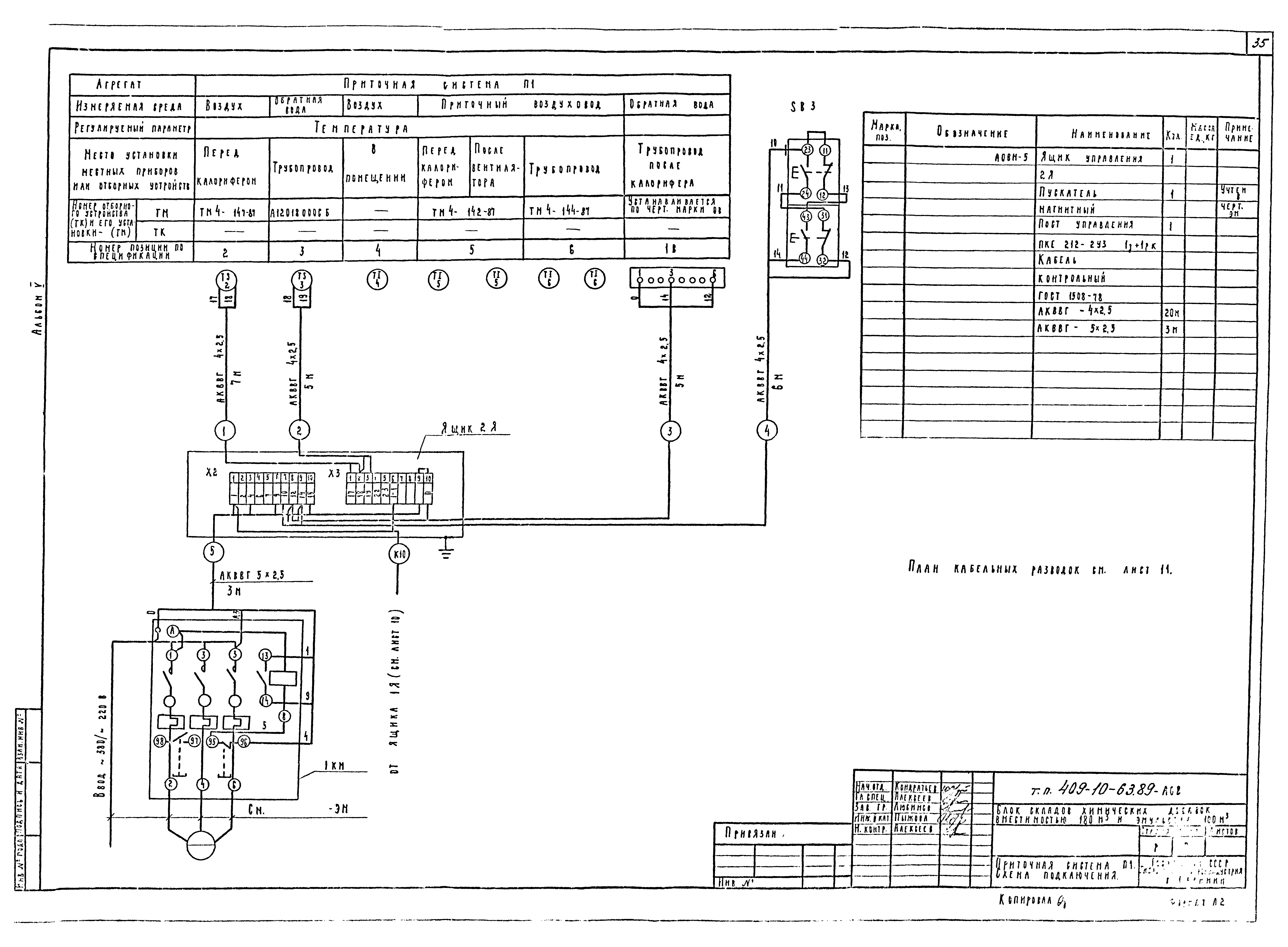
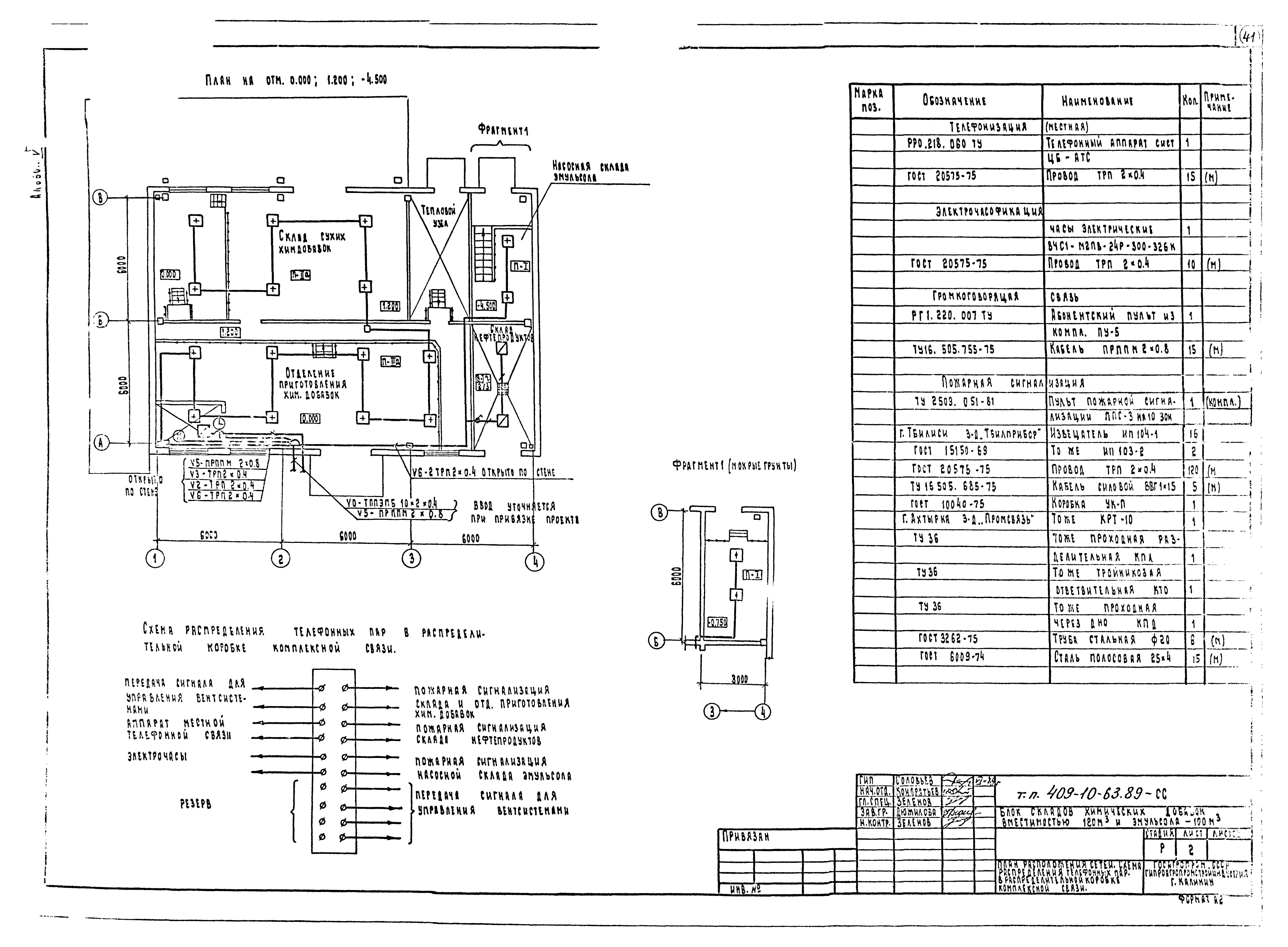
| Оглавление: | Силовое электрооборудование Общие данные Планы расположения электрооборудования и прокладки электрических сетей Молниезащита (вариант с сухими и мокрыми грунтами). Заземление Принципиальная схема питающей сети Принципиальная схема распределительной сети 1ШР Принципиальная схема распределительной сети 2ШР (вариант с сухими грунтами) Принципиальная схема распределительной сети 2ШР (вариант с мокрыми грунтами) Электрическое освещение Общие данные Планы расположения электрического оборудования и прокладки электрических сетей Автоматизация технологии производства Общие данные Схема автоматизации Схема электрическая принципиальная Схема подключения План кабельных разводок План кабельных разводок (вариант с сухими грунтами) План кабельных разводок (вариант с мокрыми грунтами) Автоматизация отопления и вентиляции Общие данные Приточная система П1. Схема автоматизации Приточная система П1. Схема электрическая принципиальная Вытяжная система В3. Схема электрическая принципиальная Сигнализатор газа. Схема электрическая принципиальная Отключение вентсистем при пожаре. Схема электрическая принципиальная Приточная система П1. Схема подключения Вытяжная система В3. Схема подключения Сигнализатор газа. Схема подключения Отключение вентсистем при пожаре. Схема подключения План кабельных разводок Связь и сигнализация Общие данные План расположения сетей. Схема распределения телефонных пар в распределительной коробке комплексной связи |
| Разработан: | Гипроагропромстройиндустрия |
| Утверждён: | 12.06.1989 Гипроагропромстройиндустрия (1) |









































