Скачать Серия 1.090.1-6сп Выпуск 1. Панели наружных стен нулевого цикла однослойные для варианта со сборными фундаментами. Рабочие чертежиДата актуализации: 01.01.2021
|
| Обозначение: | Серия 1.090.1-6сп |
| Обозначение англ: | Series 1.090.1-6сп |
| Статус: | действует |
| Название рус.: | Выпуск 1. Панели наружных стен нулевого цикла однослойные для варианта со сборными фундаментами. Рабочие чертежи |
| Дата добавления в базу: | 01.10.2014 |
| Дата актуализации: | 01.01.2021 |
| Дата введения: | 25.01.1988 |
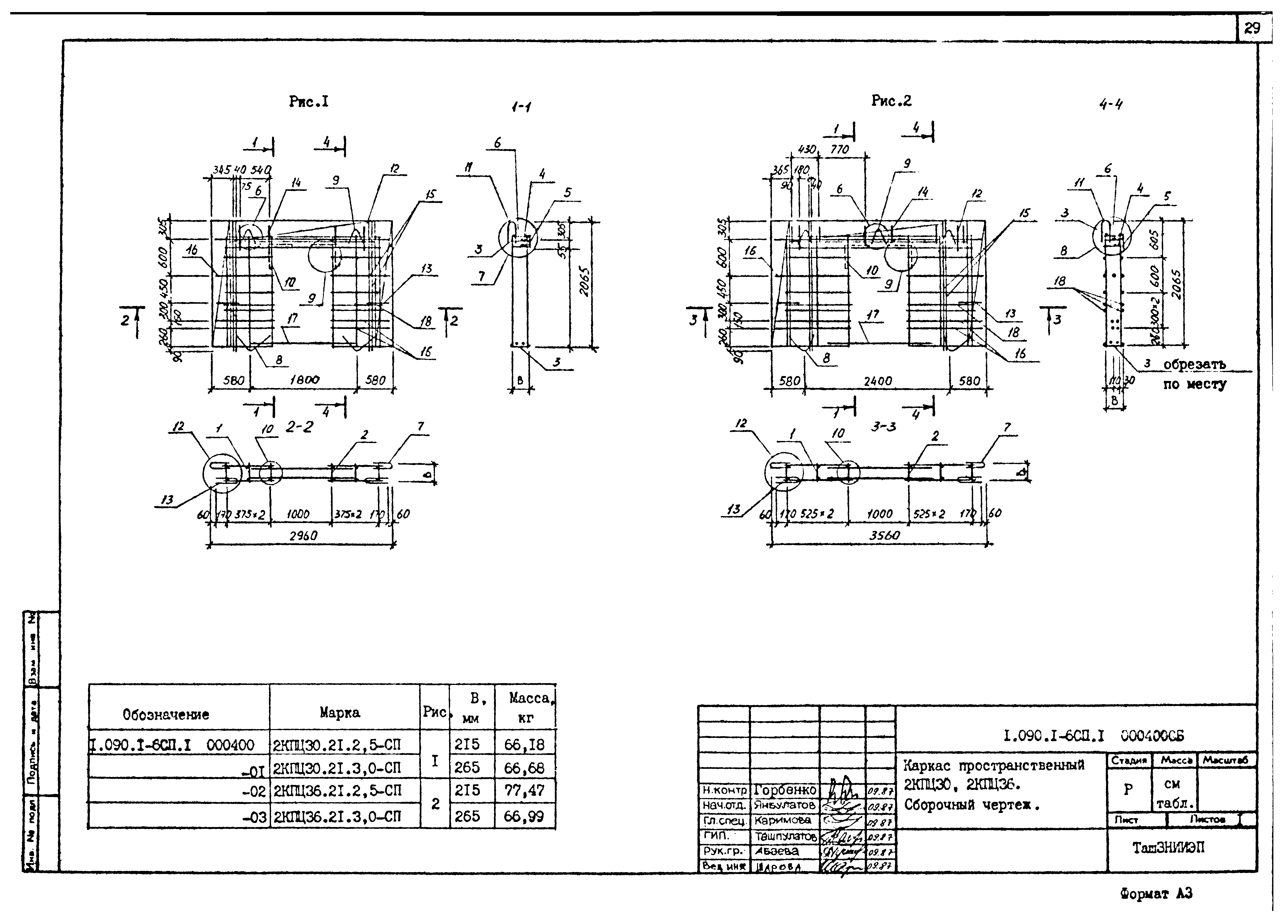
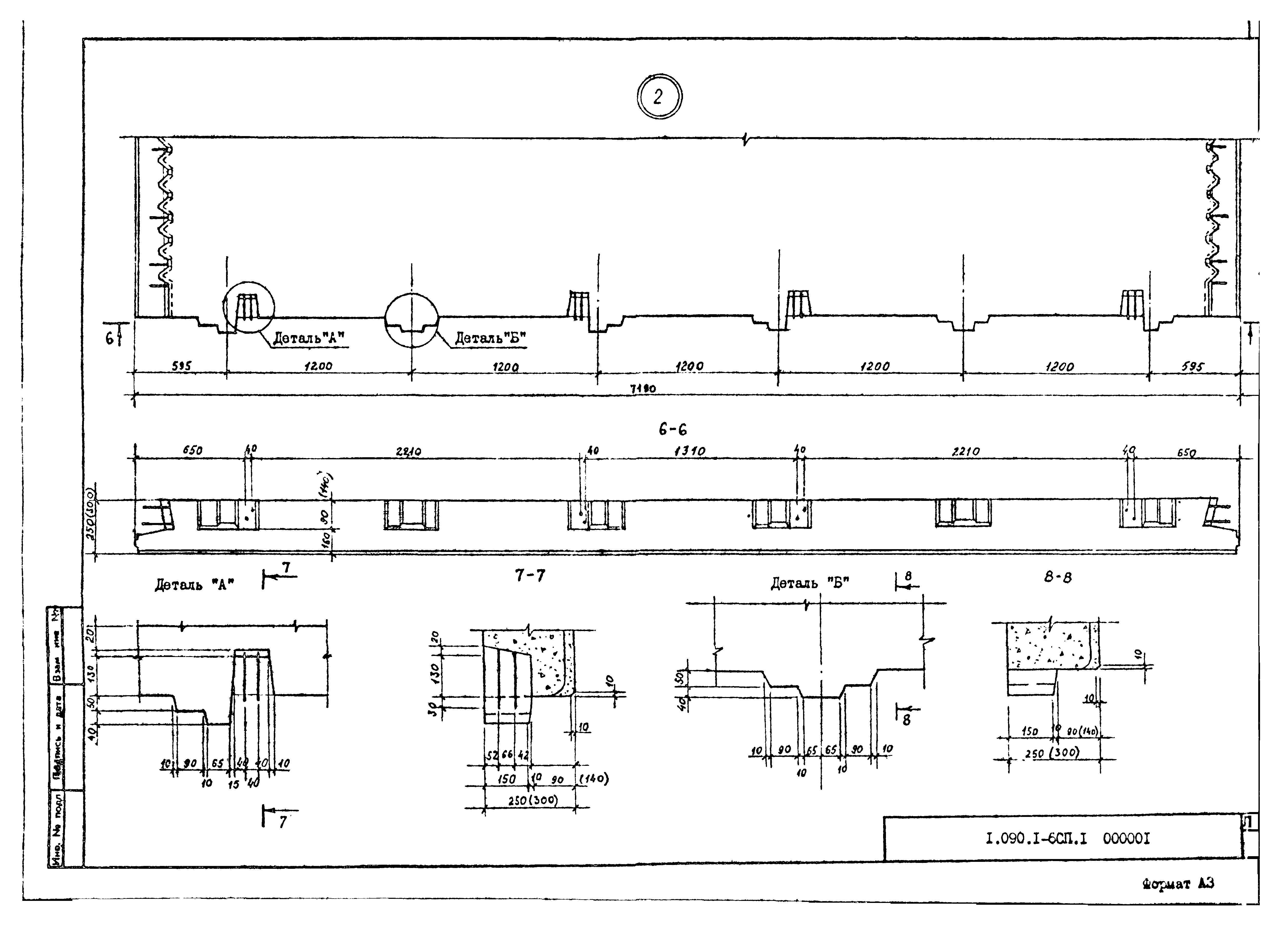
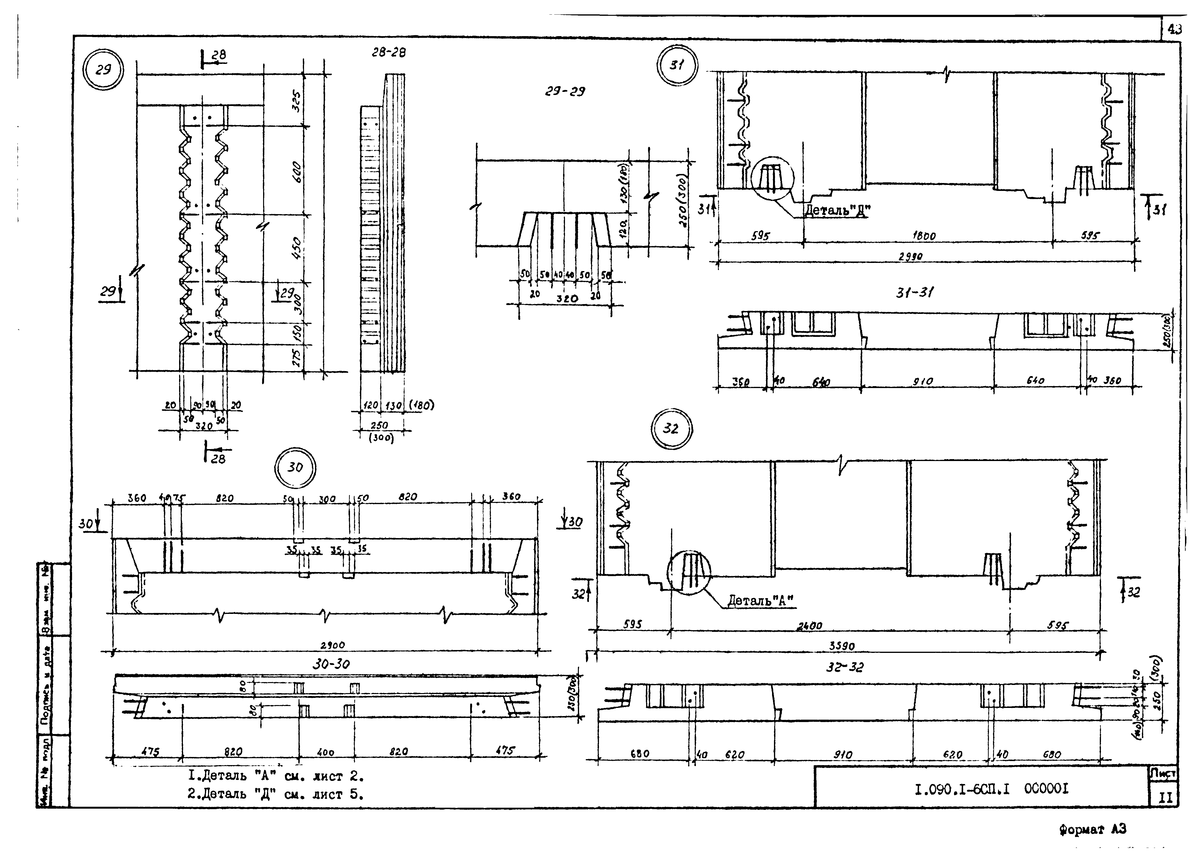
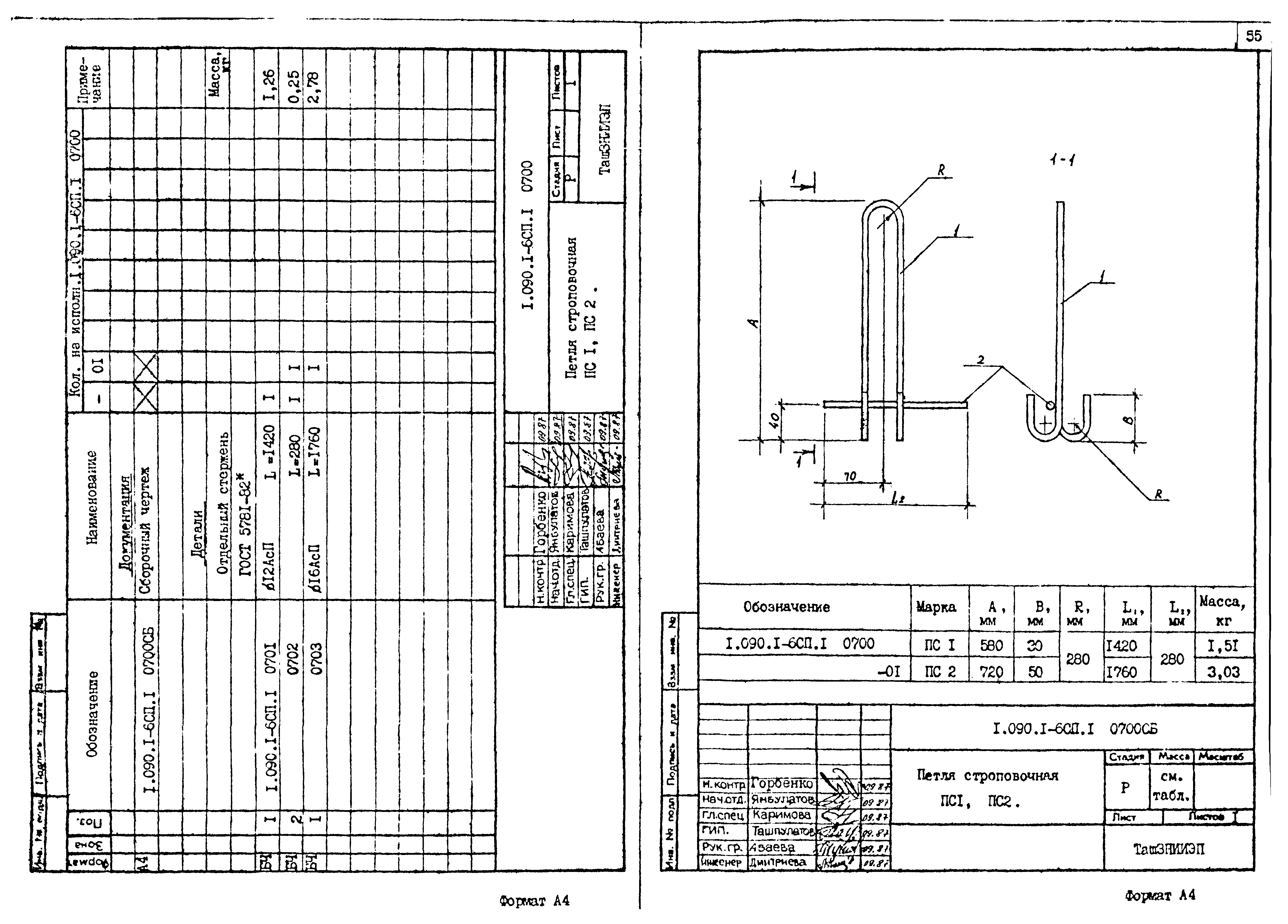
| Оглавление: | Содержание Техническое описание Панели цокольные Каркас пространственный Узлы опалубочные Узлы арматурные Каркас плоский Сетка Петля строповочная Изделие закладное Анкер Хомут Ведомость расхода стали |
| Разработан: | ТашЗНИИЭП Госгражданстроя |
| Утверждён: | 25.01.1988 Госгражданстрой (Gosgrazhdanstroy 22) |



























































