Скачать Серия 1.460-5 Выпуск 2. Покрытия пролетами 18, 24 и 30 м для зданий с расчетной сейсмичностью 7, 8 и 9 баллов, возводимых в районах с температурами минус 40 градусов Цельсия и выше. Чертежи КМДата актуализации: 01.01.2021
|
| Обозначение: | Серия 1.460-5 |
| Обозначение англ: | Series 1.460-5 |
| Статус: | заменен |
| Название рус.: | Выпуск 2. Покрытия пролетами 18, 24 и 30 м для зданий с расчетной сейсмичностью 7, 8 и 9 баллов, возводимых в районах с температурами минус 40 градусов Цельсия и выше. Чертежи КМ |
| Дата добавления в базу: | 01.10.2014 |
| Дата актуализации: | 01.01.2021 |
| Дата введения: | 01.09.1975 |
| Дата окончания срока действия: | 01.03.1986 |
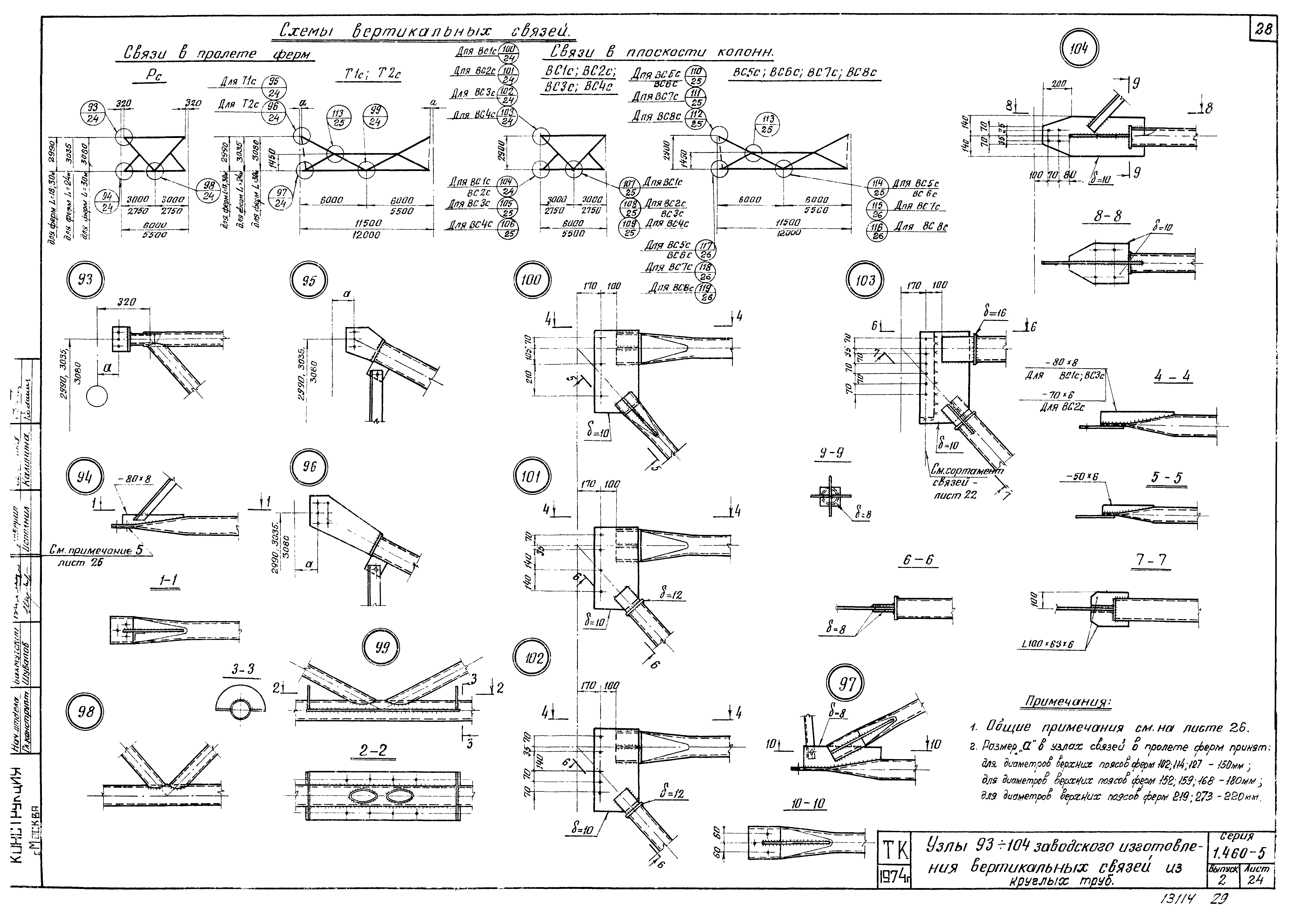
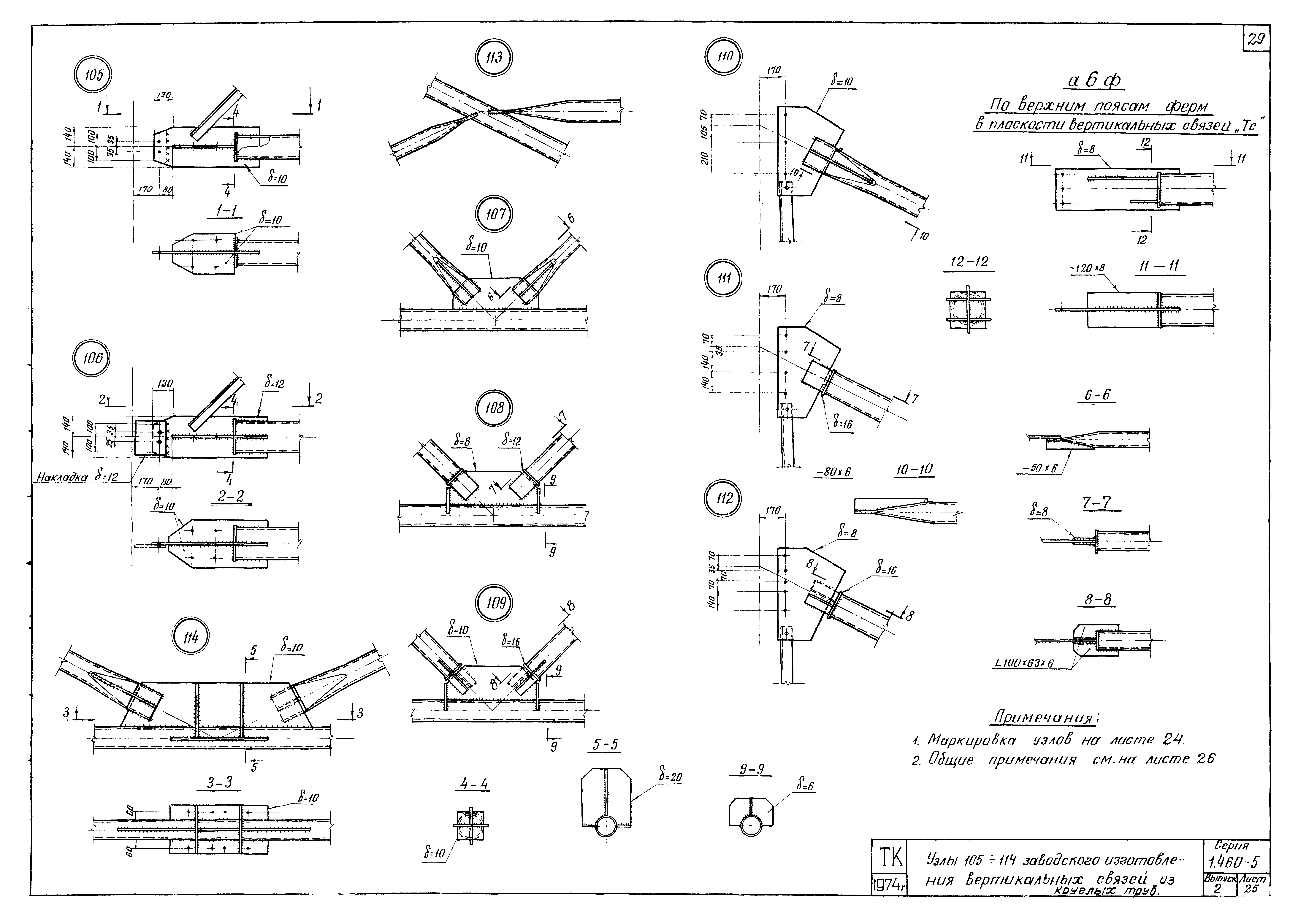
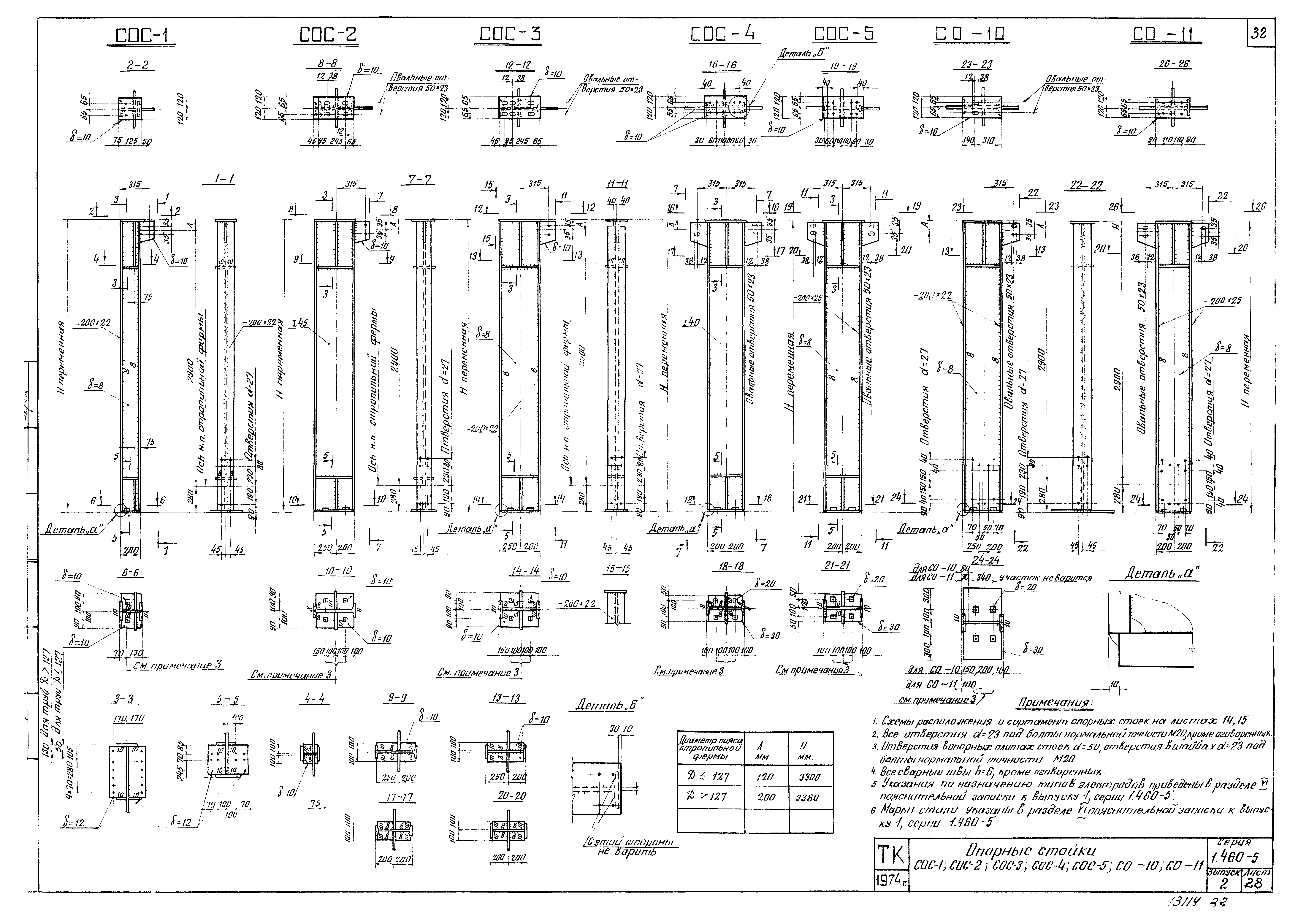
| Оглавление: | Содержание Пояснительная записка Пример решения схемы связей и прогонов по верхним поясам стропильных ферм пролетом 18 м. Здания без фонарей и с фонарями. Шаг ферм 6 м. Шаг колонн 6 и 12 м Пример решения схемы связей и прогонов по верхним поясам стропильных ферм пролетом 24 м. Здания без фонарей и с фонарями. Шаг ферм 6 м. Шаг колонн 6 и 12 м Пример решения схемы связей и прогонов по верхним поясам стропильных ферм пролетом 30 м. Здания без фонарей и с фонарями. Шаг ферм 6 м. Шаг колонн 6 и 12 м Пример решения схемы связей и прогонов по верхним поясам стропильных ферм пролетом 18 м. Здания без фонарей и с фонарями. Шаг ферм и колонн 12 м Пример решения схемы связей и прогонов по верхним поясам стропильных ферм пролетом 24 м. Здания без фонарей и с фонарями. Шаг ферм и колонн 12 м Пример решения схемы связей и прогонов по верхним поясам стропильных ферм пролетом 30 м. Здания без фонарей и с фонарями. Шаг ферм и колонн 12 м Пример решения схемы связей по нижним поясам стропильных ферм пролетом 18 м. Здания без фонарей и с фонарями. Шаг ферм 6 м. Шаг колонн 6 и 12 м Пример решения схемы связей по нижним поясам стропильных ферм пролетом 24 м. Здания без фонарей и с фонарями. Шаг ферм 6 м. Шаг колонн 6 и 12 м Пример решения схемы связей по нижним поясам стропильных ферм пролетом 30 м. Здания без фонарей и с фонарями. Шаг ферм 6 м. Шаг колонн 6 и 12 м Пример решения схемы связей по нижним поясам стропильных ферм пролетом 18 м. Здания без фонарей и с фонарями. Шаг ферм и колонн 12 м Пример решения схемы связей по нижним поясам стропильных ферм пролетом 24 м. Здания без фонарей и с фонарями. Шаг ферм и колонн 12 м Пример решения схемы связей по нижним поясам стропильных ферм пролетом 30 м. Здания без фонарей и с фонарями. Шаг ферм и колонн 12 м Схемы расположения прогонов и связей по верхним и нижним поясам стропильных ферм при наличии подстропильных ферм. Шаг ферм 6 м. Шаг колонн 6 и 12 м Разрезы 5-5, 6-6, 7-7 по продольным рядам колонн. Колонны стальные и железобетонные в зданиях без мостовых кранов. Колонны стальные в зданиях с мостовыми кранами Разрезы 5-5, 6-6, 7-7 по продольным рядам колонн. Колонны железобетонные. Здания с мостовыми кранами, здания бескрановые при отсутствии вертикальных связей по колоннам. Сортамент опорных стоек Указания по расчету поперечных связевых ферм в плоскости верхних поясов стропильных ферм Указания по проверке сечений раскосов и поясов связевых ферм, расположенных в плоскости нижних поясов стропильных ферм у торца здания, на сейсмическую нагрузку Указания по выбору марок вертикальных связей и распорок Указания по проверке подстропильных ферм на продольное сейсмическое воздействие Усилия от единичных нагрузок в элементах горизонтальных связевых ферм, расположенных в плоскости верхних поясов стропильных ферм Усилия от единичных нагрузок в элементах горизонтальных связевых ферм, расположенных в плоскости нижних поясов стропильных ферм Сортамент связей Узлы 93 - 104 заводского изготовления вертикальных связей из круглых труб Узлы 105 - 114 заводского изготовления вертикальных связей из круглых труб Узлы 115 - 119 заводского изготовления вертикальных связей из круглых труб Узлы 93 - 111 заводского изготовления вертикальных связей из горячекатаных профилей Опорные стойки СОС-1, СОС-2, СОС-3, СОС-4, СОС-5, СО-10, СО-11 Узлы 83 - 87 крепления связей и прогонов по верхним поясам стропильных ферм Узлы 88 - 92 крепления связей и прогонов по верхним поясам стропильных ферм Узлы 120 - 122 крепления связей и прогонов по верхним поясам ферм и вертикальных связей и распорок в плоскости колонн Узел 123. Опорный узел подстропильных ферм и его крепление к опорным стойкам при значении сейсмической силы свыше 33 т Пример расчета связей окрытия |
| Разработан: | ЦНИИпроектстальконструкция |
| Утверждён: | Госстрой СССР (Государственный комитет Совета Министров СССР по делам строительства) (USSR Gosstroy ) 11.06.1975 Госстрой СССР (93) |









































