Скачать Типовой проект 411-2-180.87 Альбом I. Общая пояснительная записка. Технологические решения. Архитектурно-строительные решения. Конструкции железобетонные. Внутренние водопровод и канализация. Отопление и вентиляция. Силовое электрооборудование. Связь и сигнализация. Электрическое освещение. Автоматизация отопления и вентиляцииДата актуализации: 01.01.2021
|
| Обозначение: | Типовой проект 411-2-180.87 |
| Обозначение англ: | 411-2-180.87 |
| Статус: | не определен законодательством |
| Название рус.: | Альбом I. Общая пояснительная записка. Технологические решения. Архитектурно-строительные решения. Конструкции железобетонные. Внутренние водопровод и канализация. Отопление и вентиляция. Силовое электрооборудование. Связь и сигнализация. Электрическое освещение. Автоматизация отопления и вентиляции |
| Дата добавления в базу: | 01.10.2014 |
| Дата актуализации: | 01.01.2021 |
| Дата введения: | 18.08.1986 |
| Дата окончания срока действия: | 30.06.2003 |
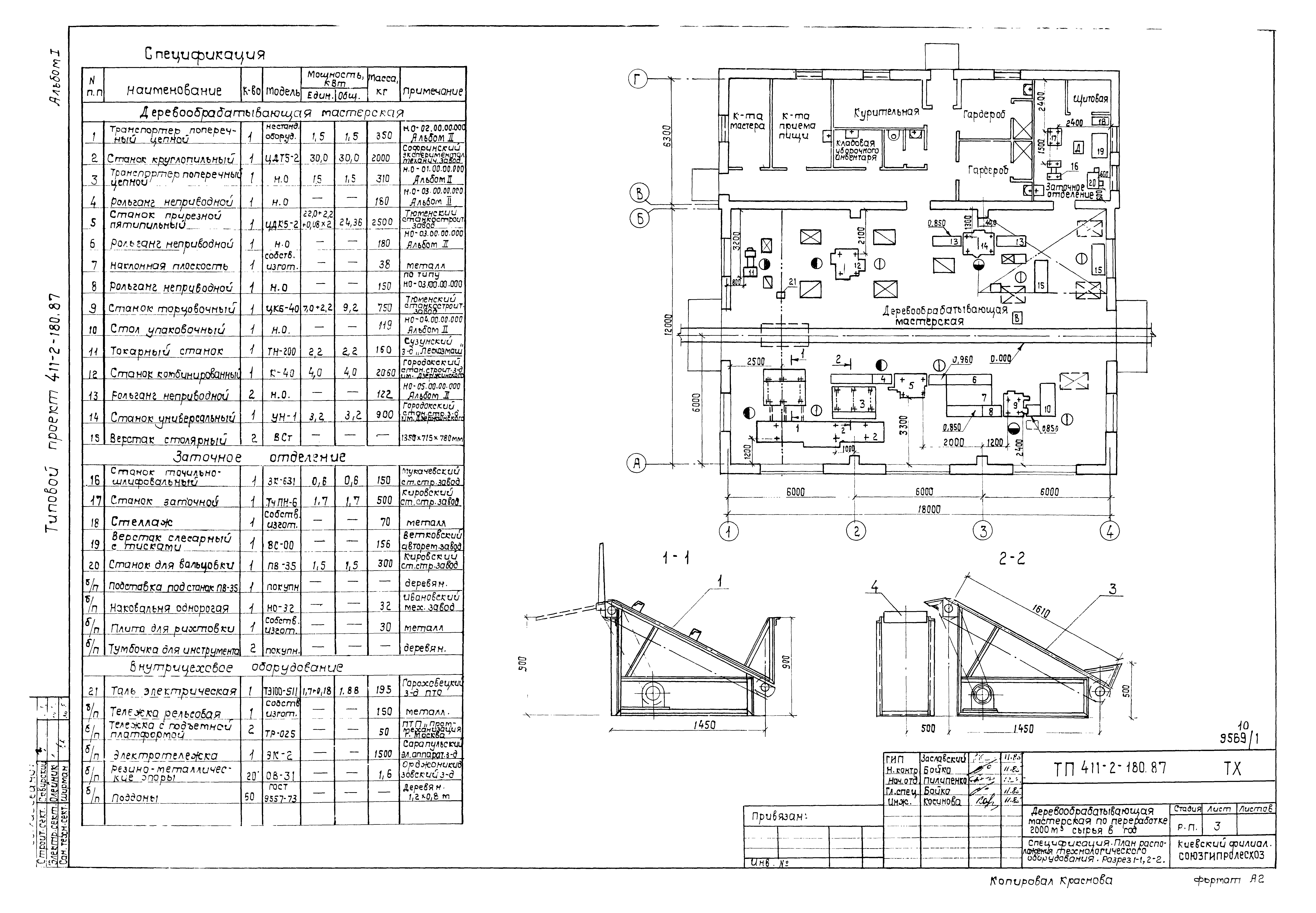
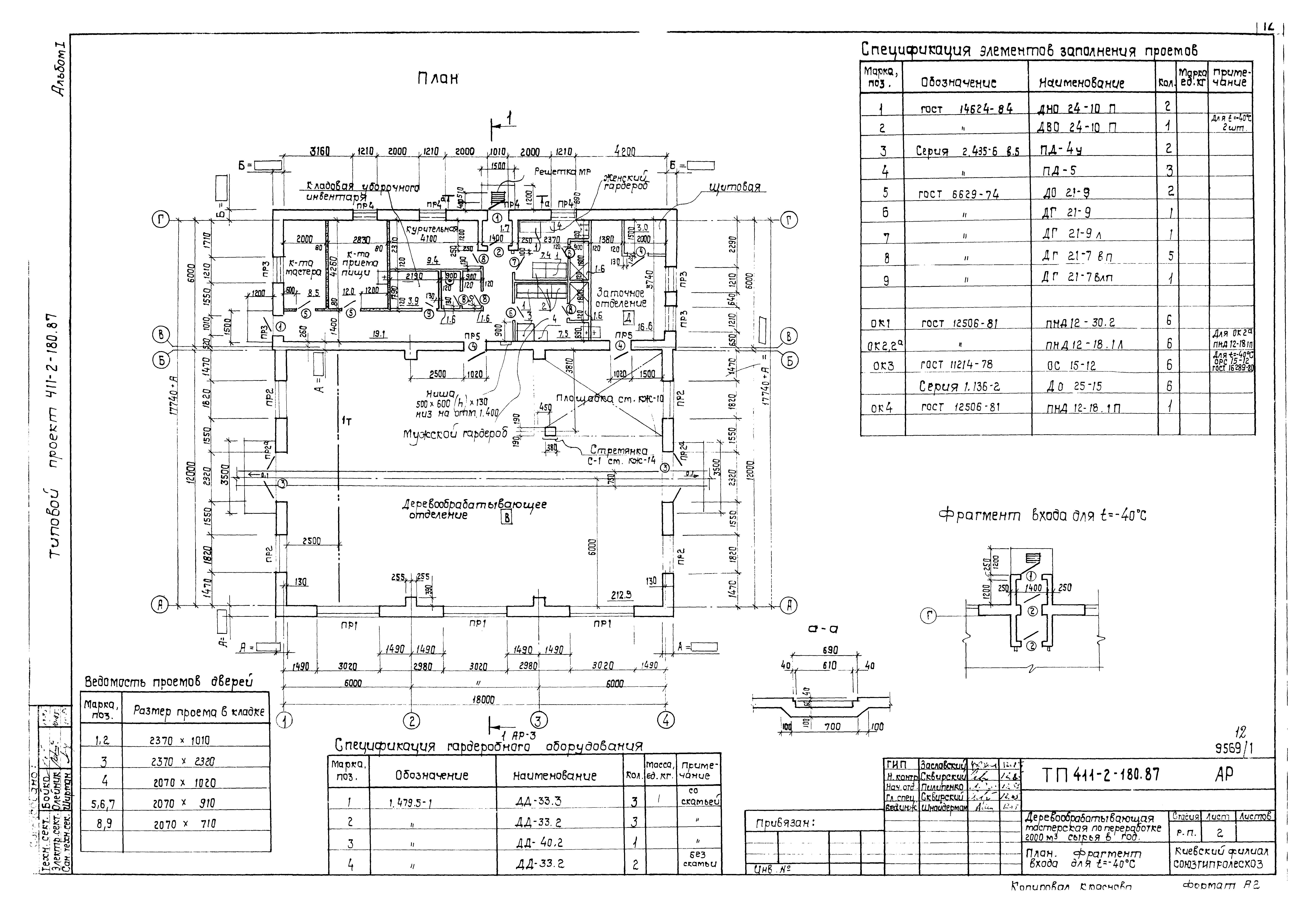
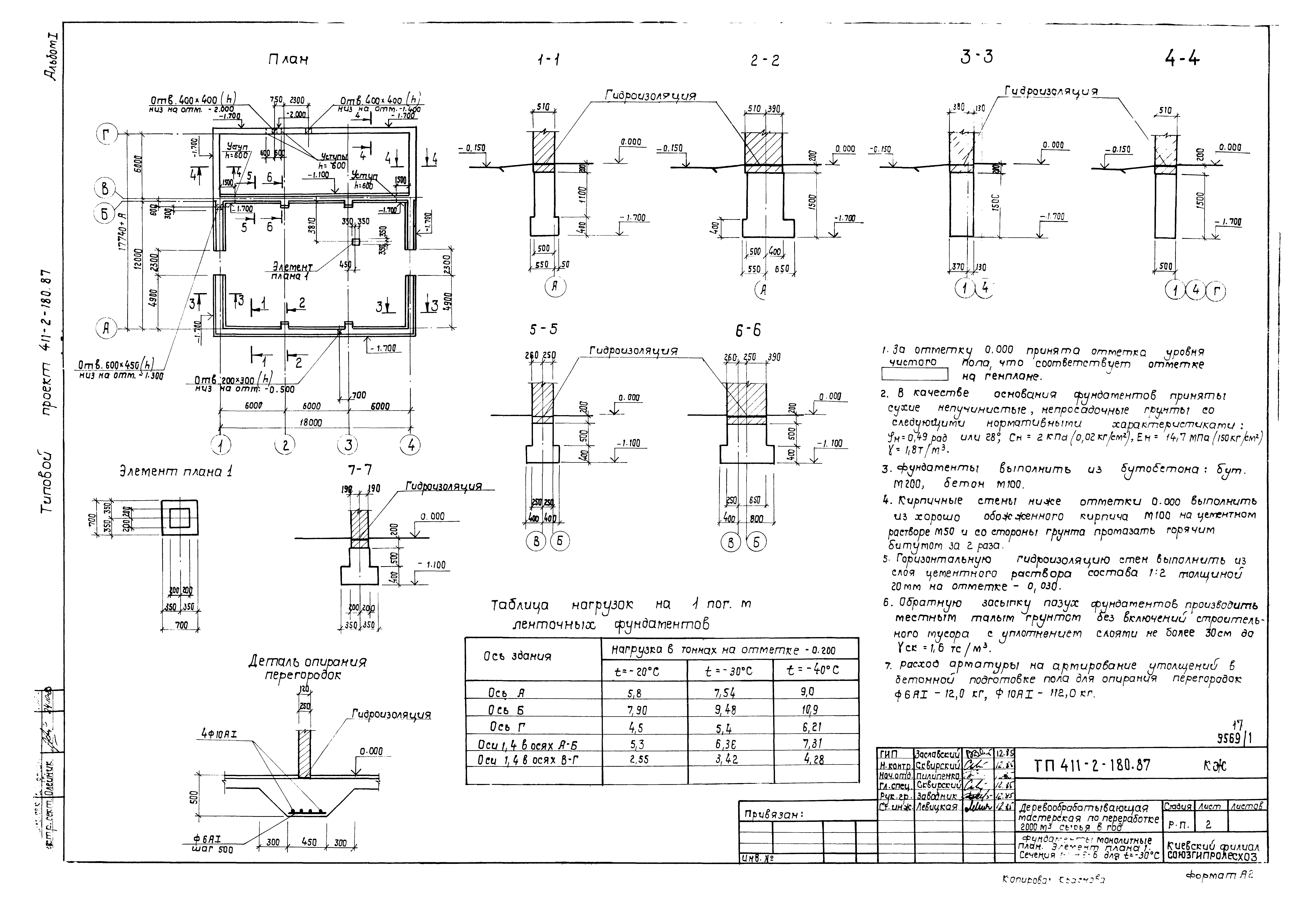
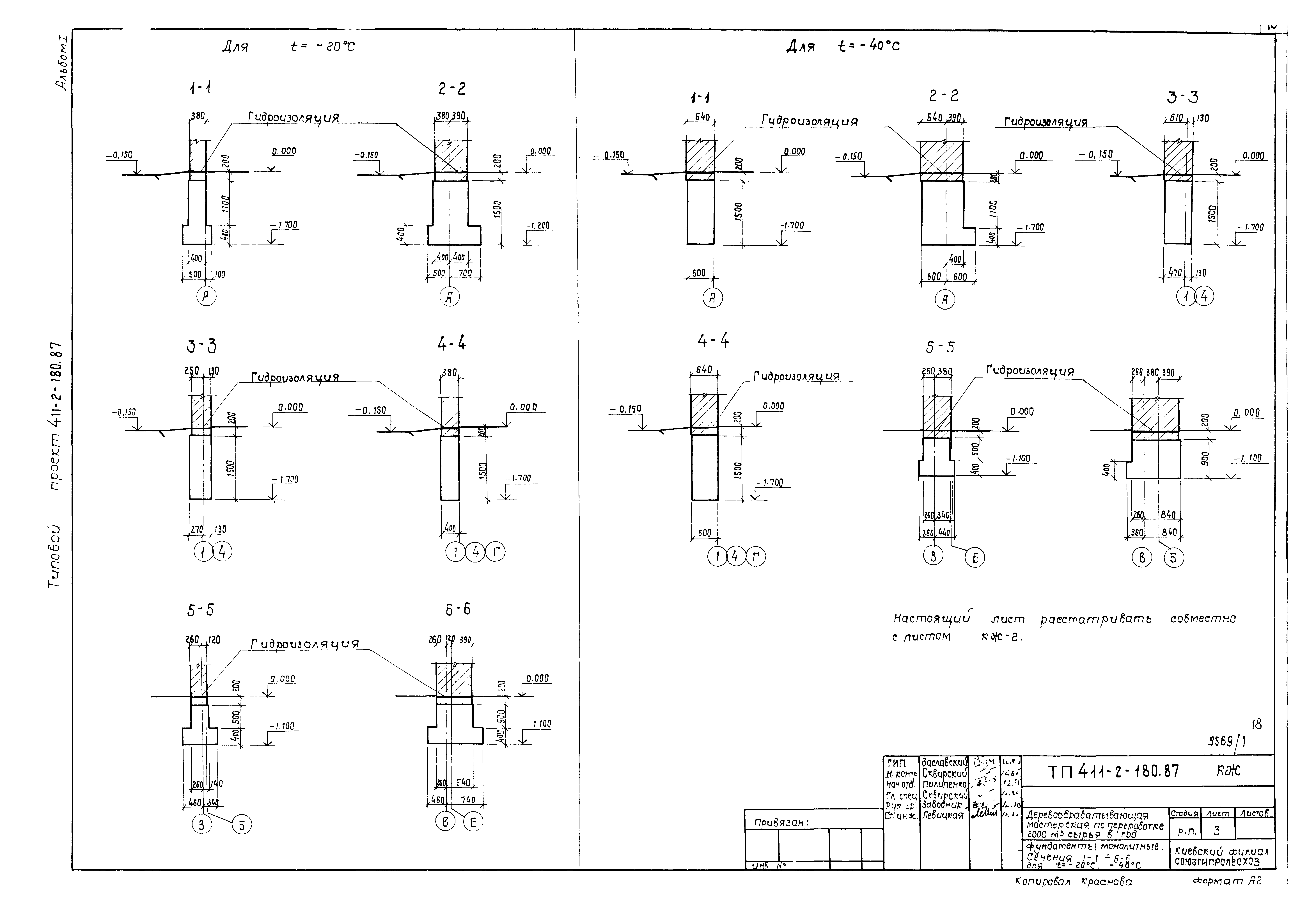
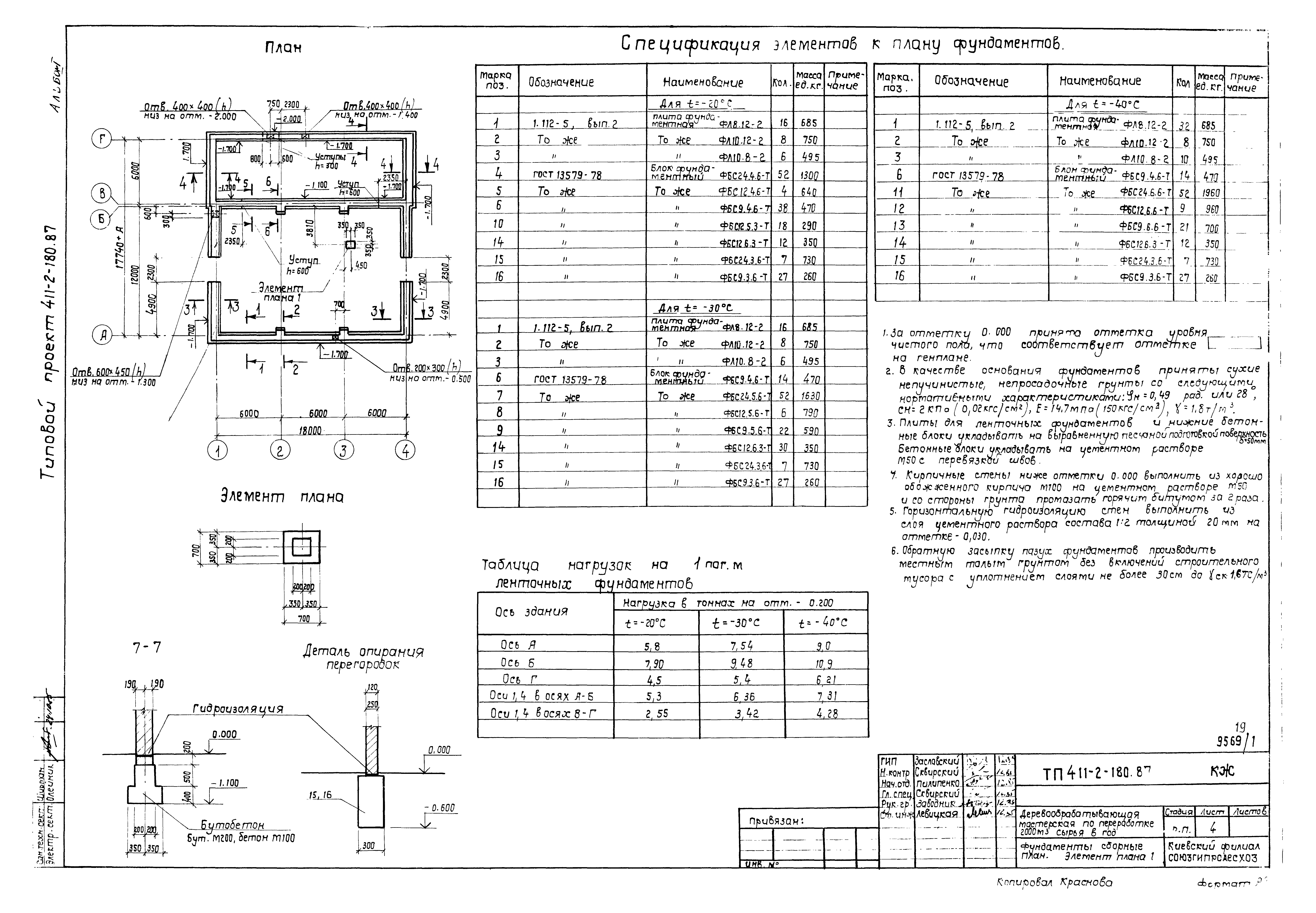
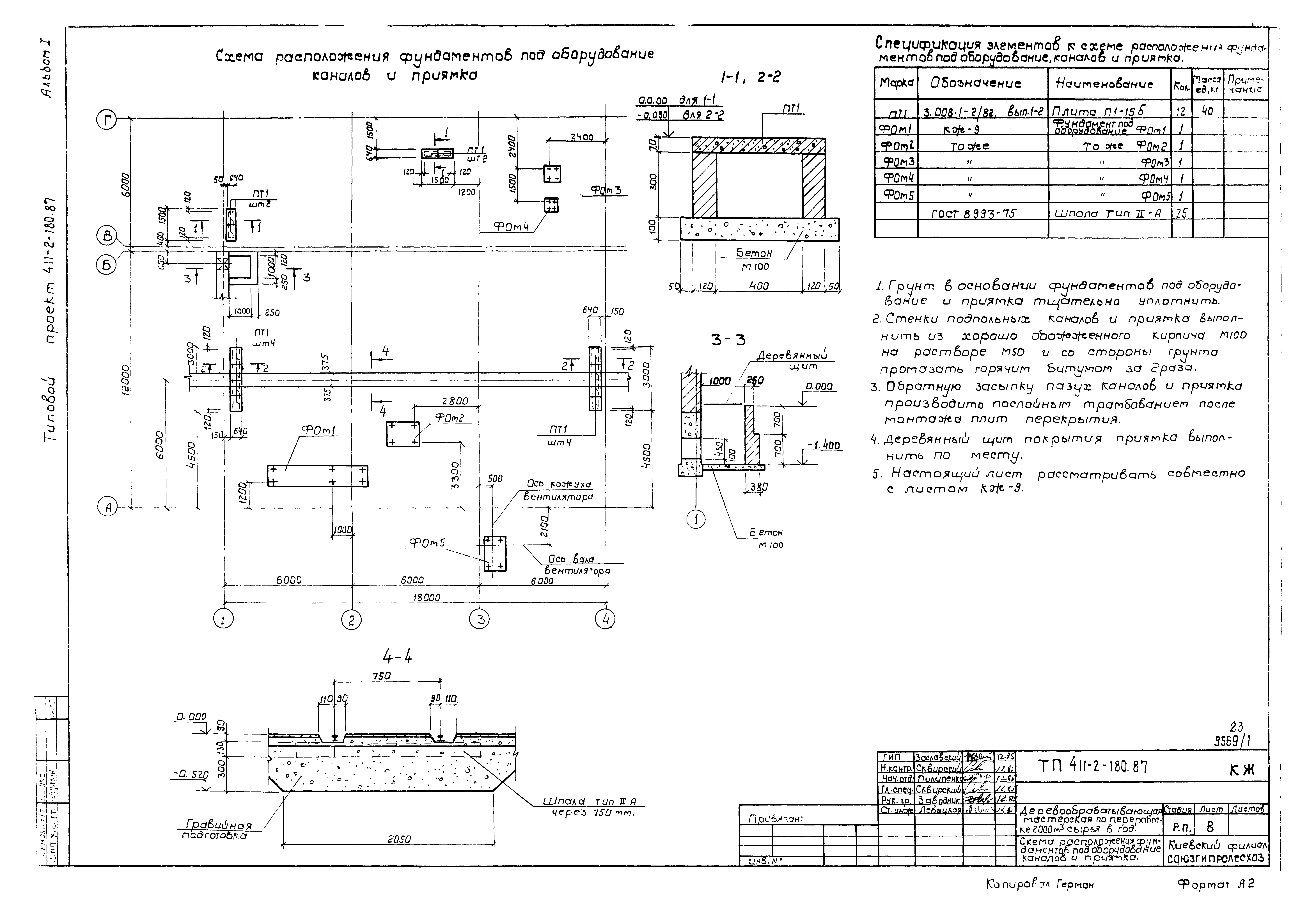
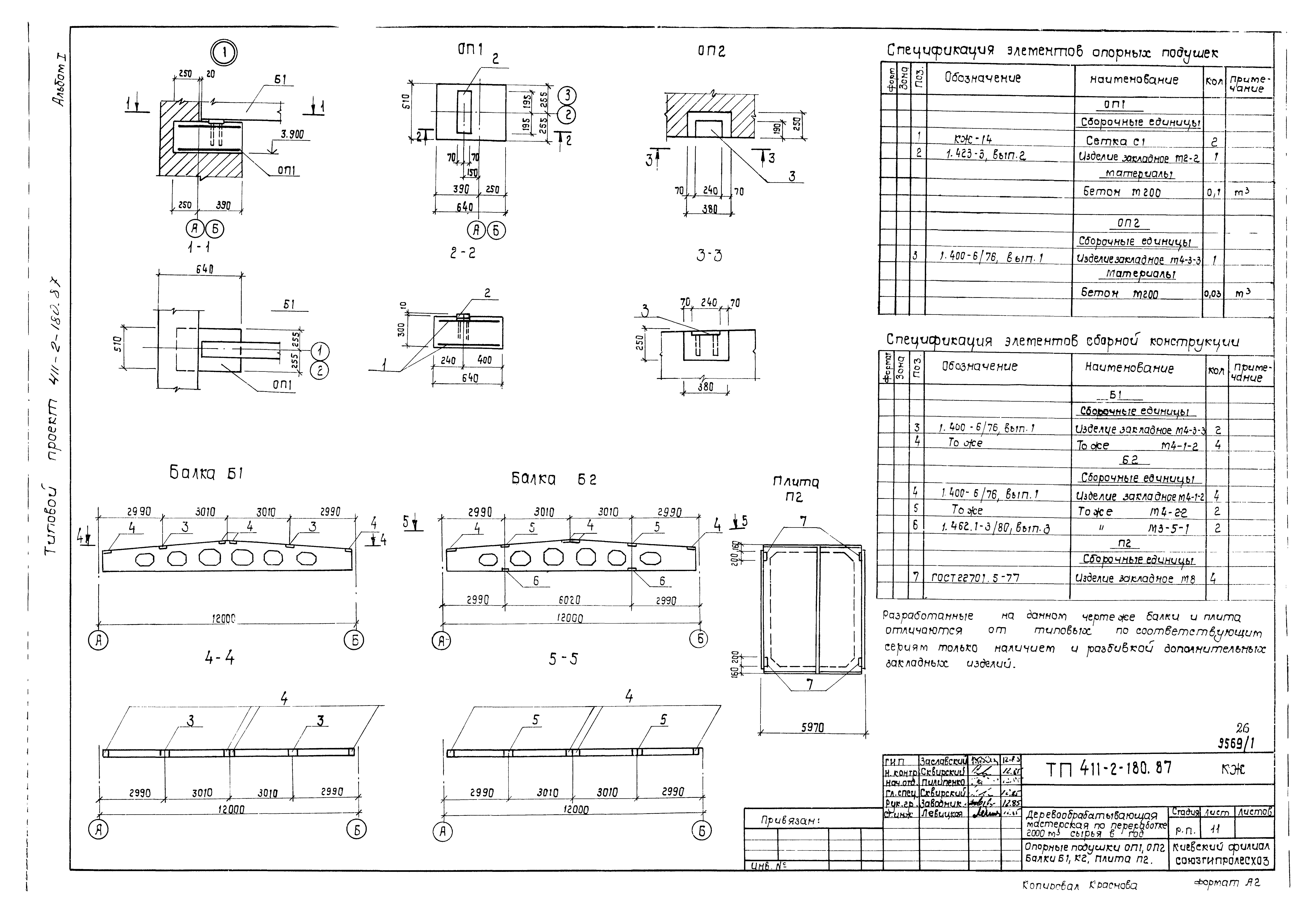
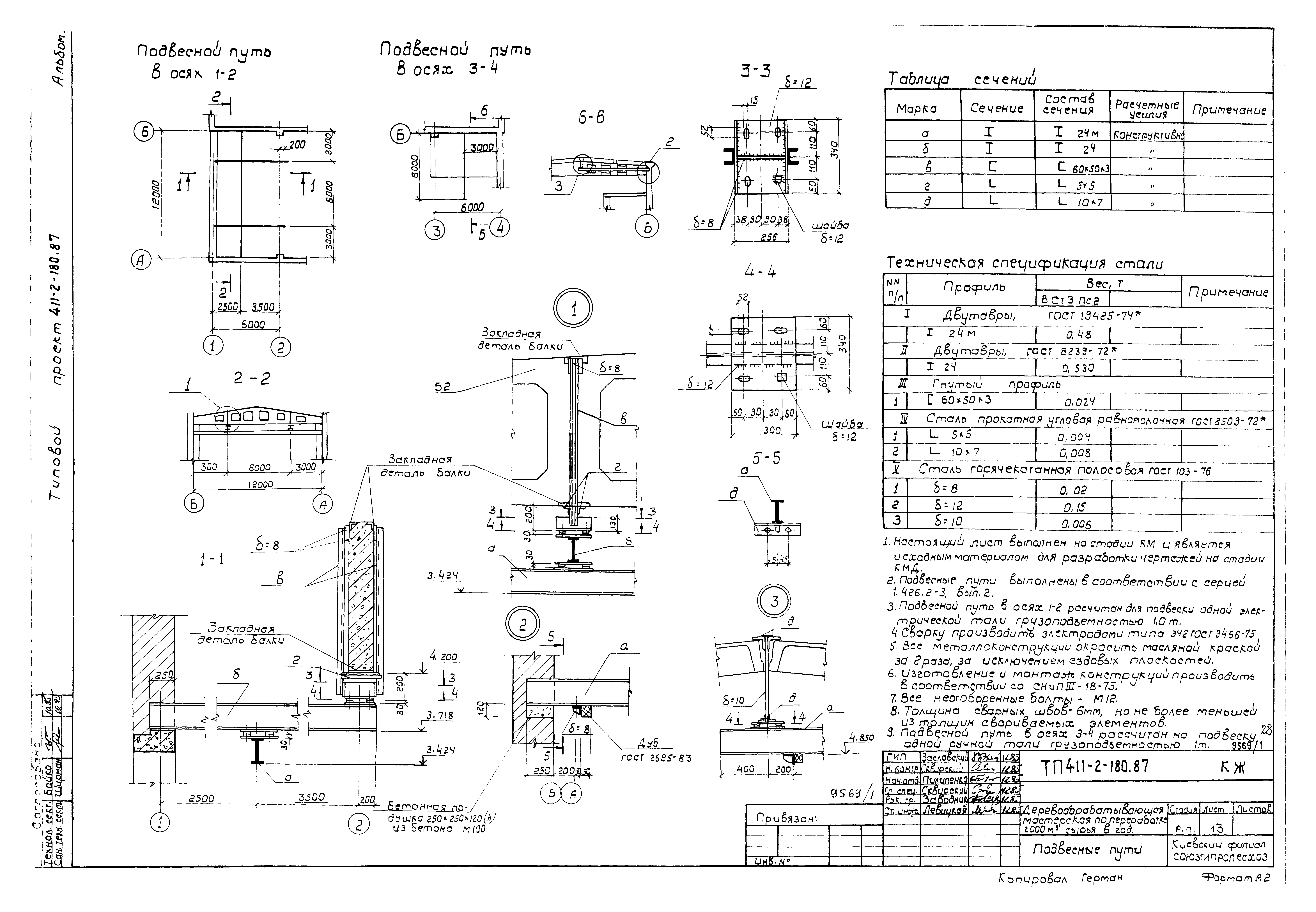
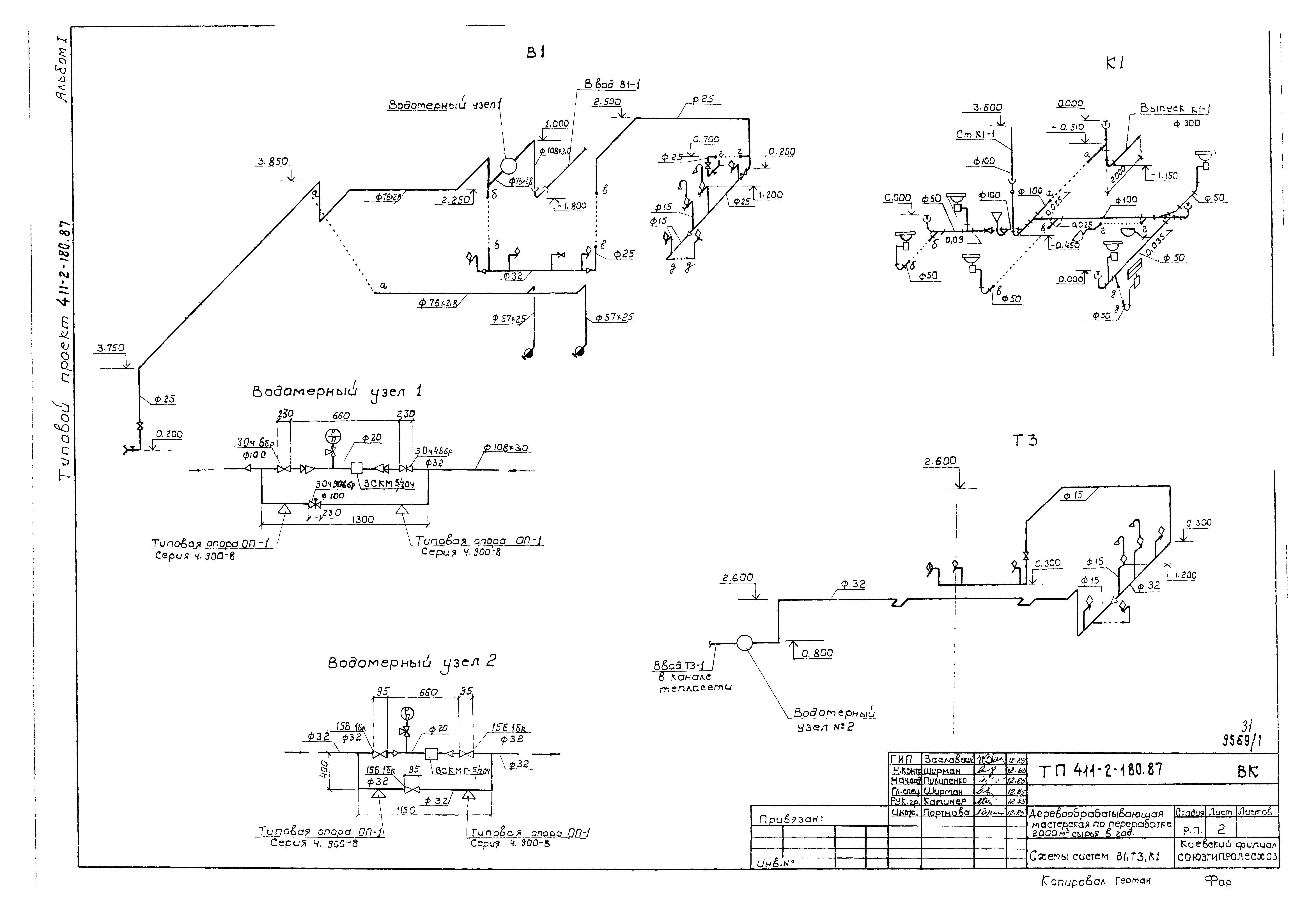
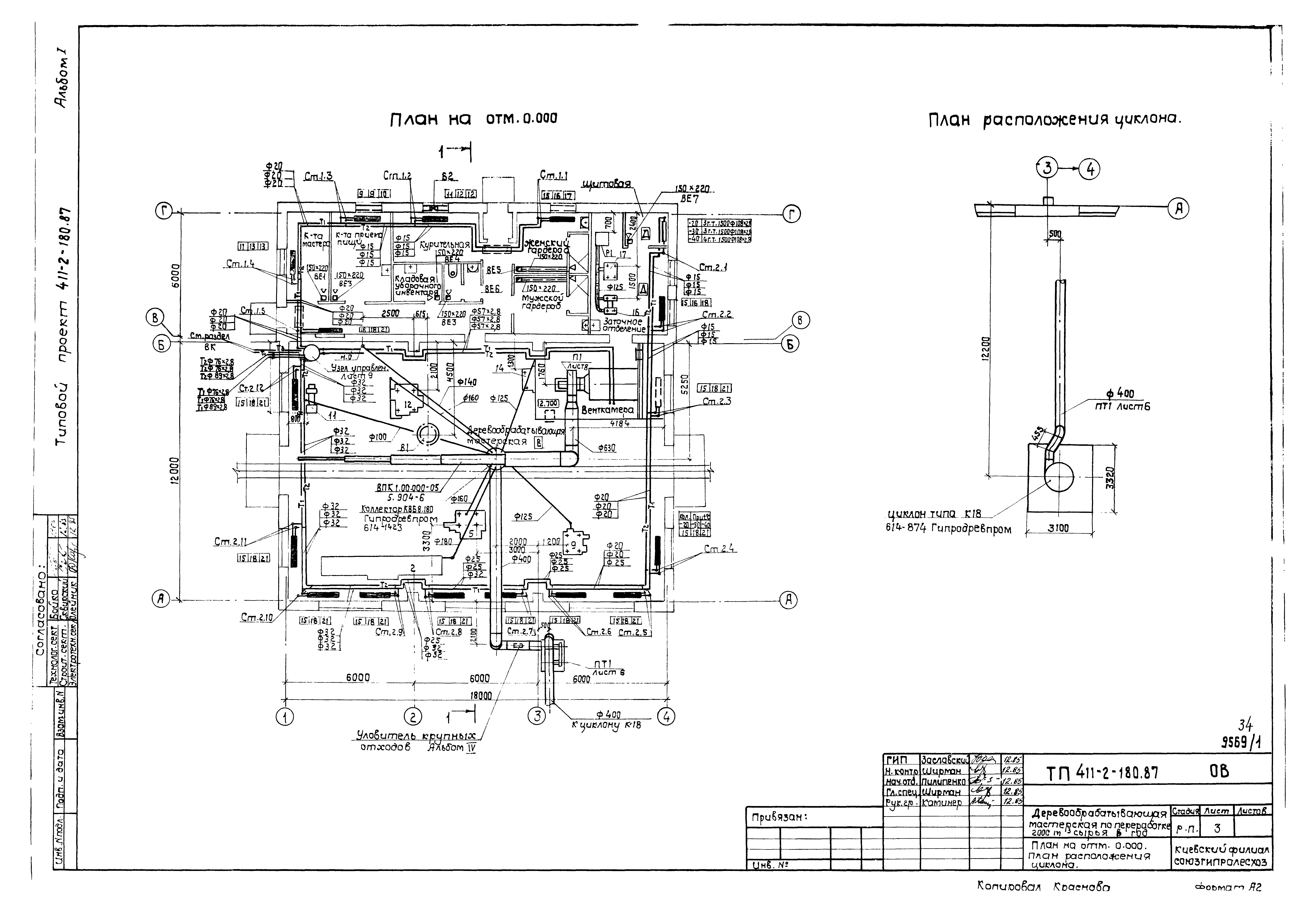
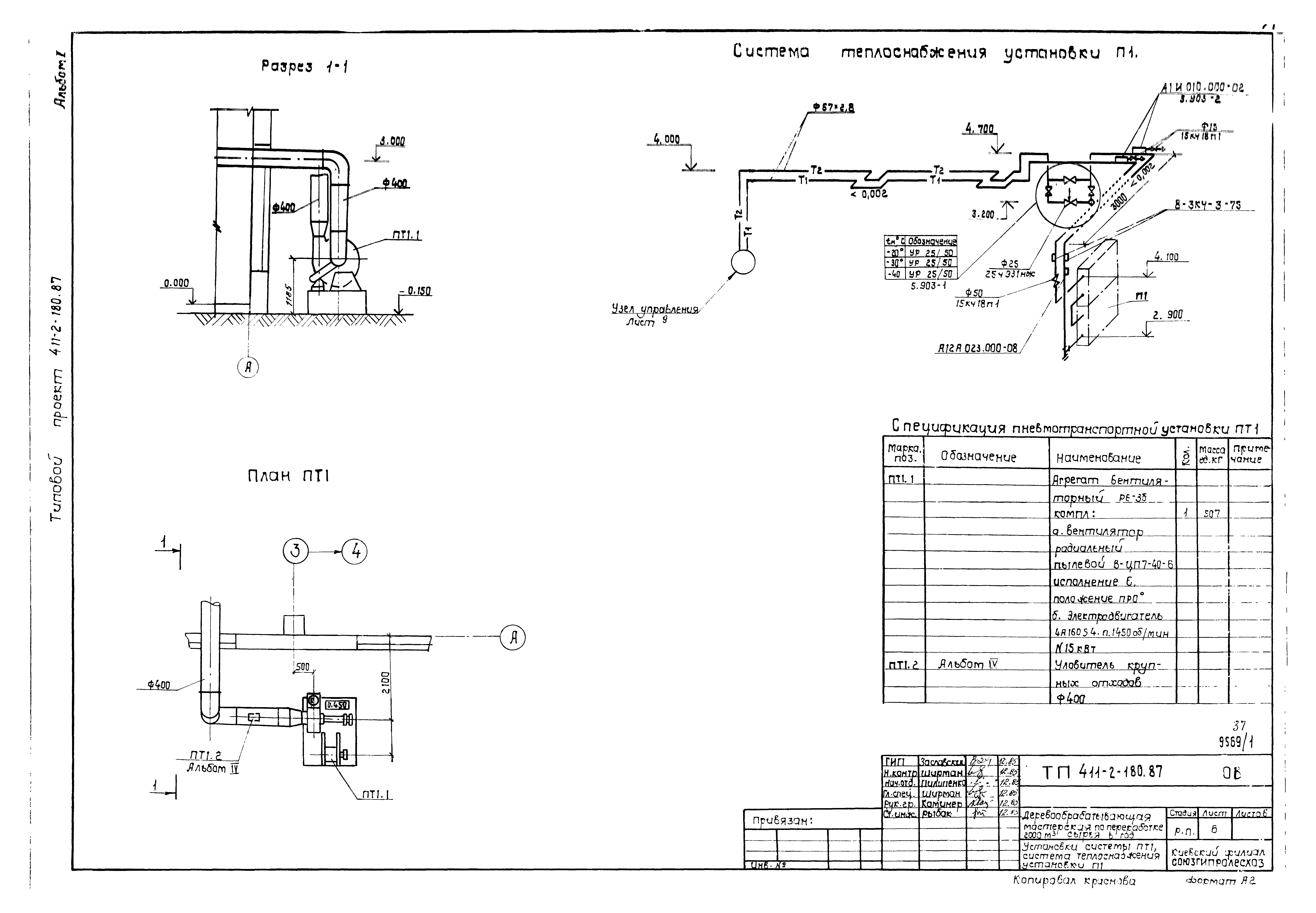
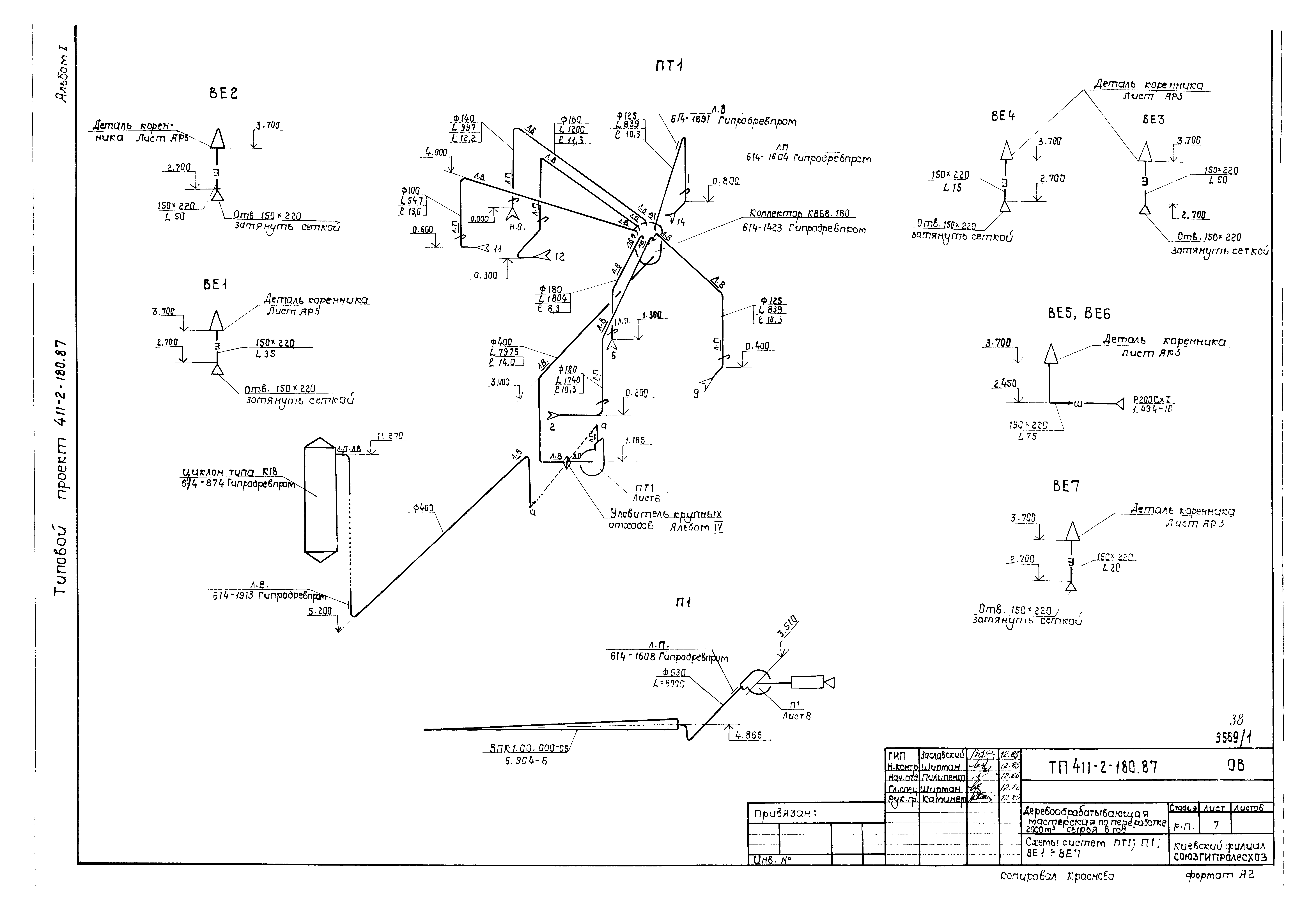
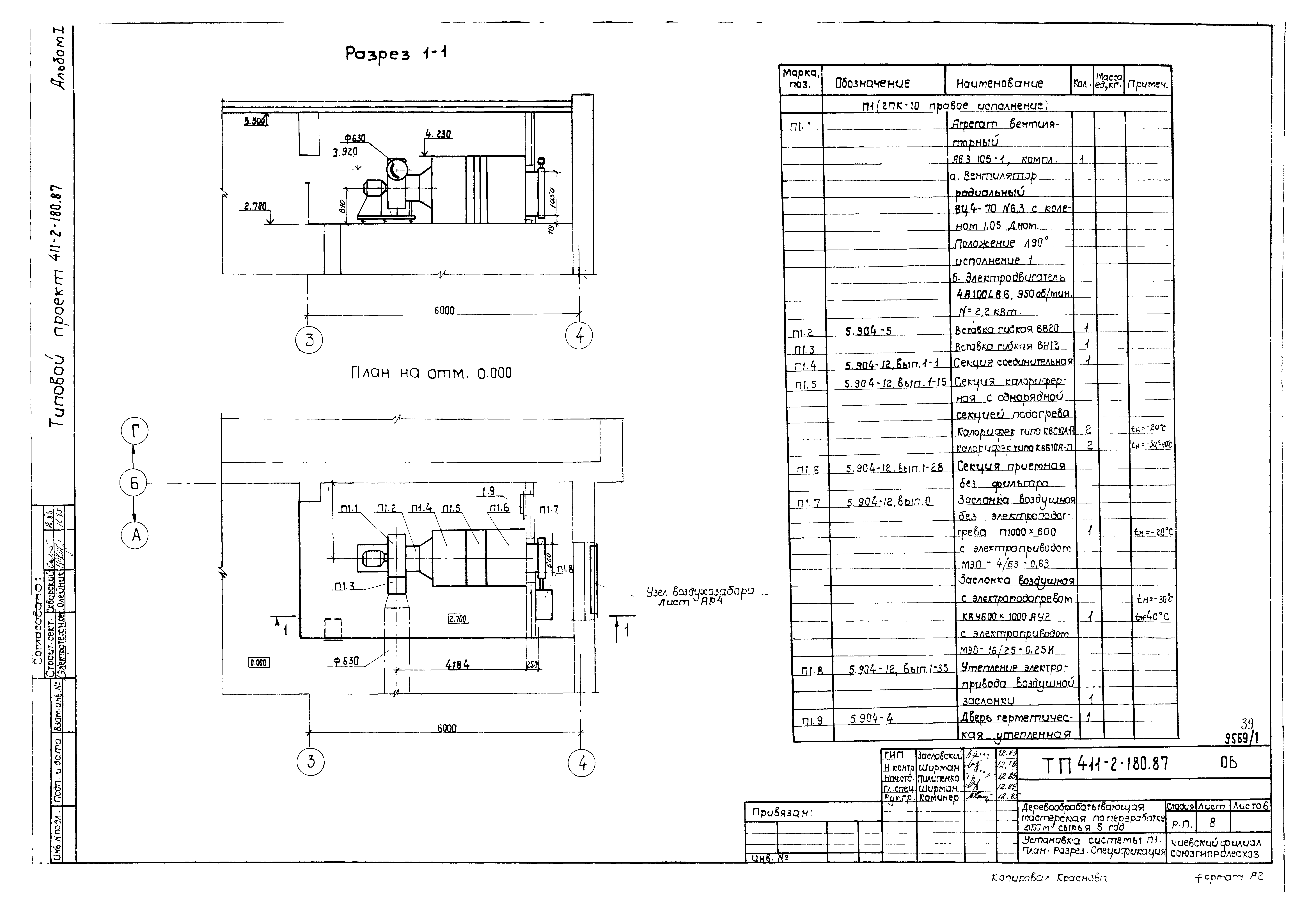
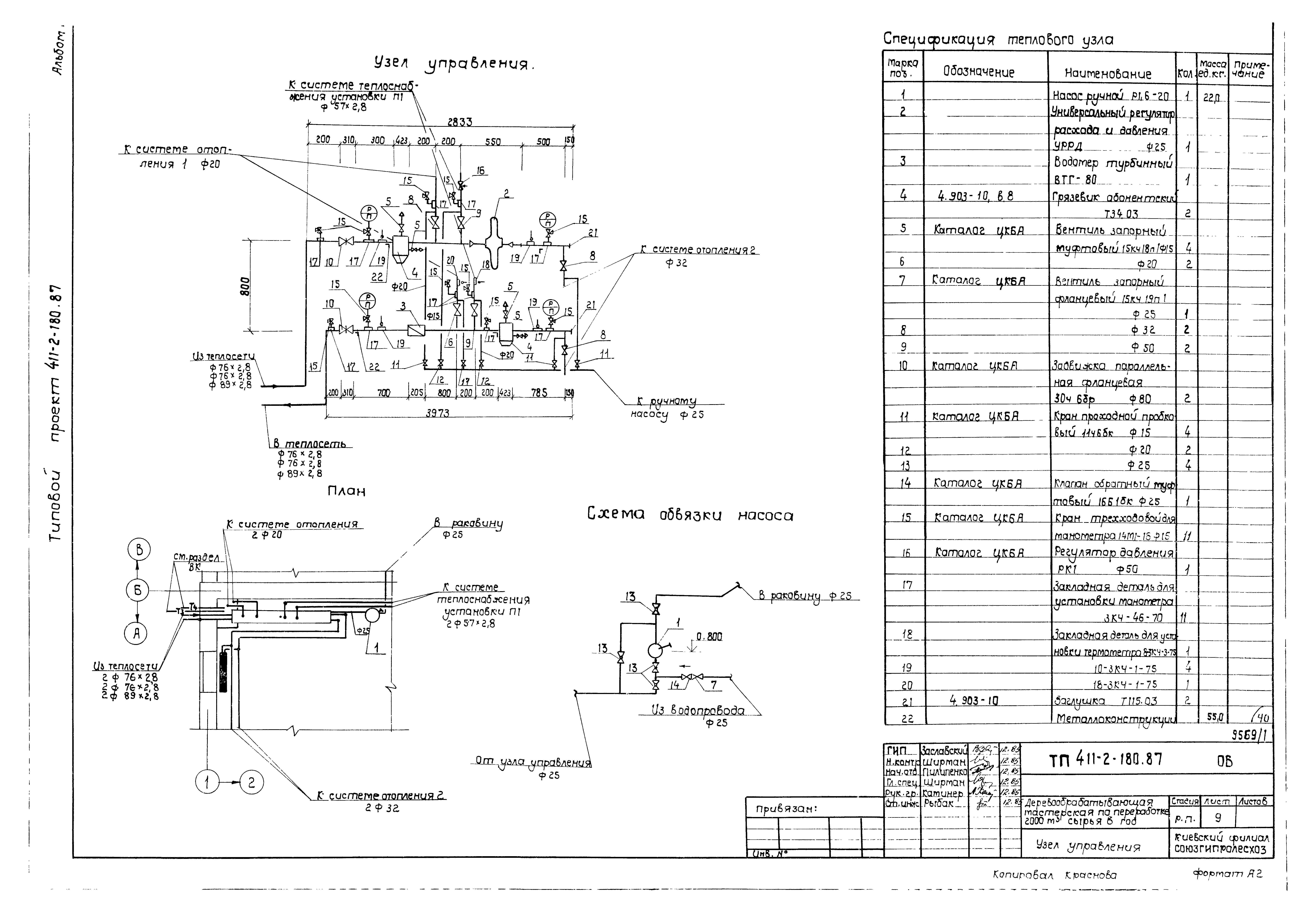
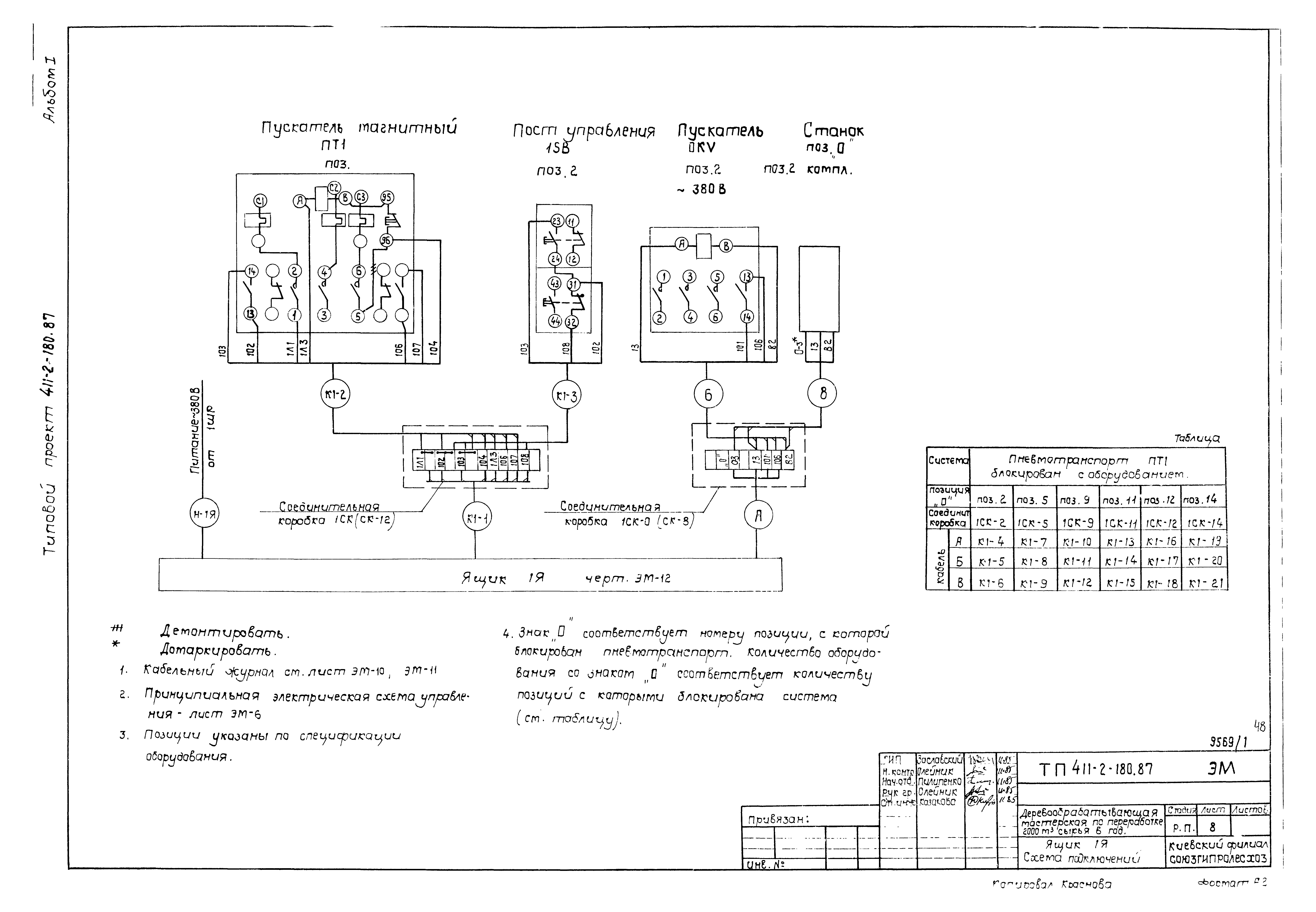
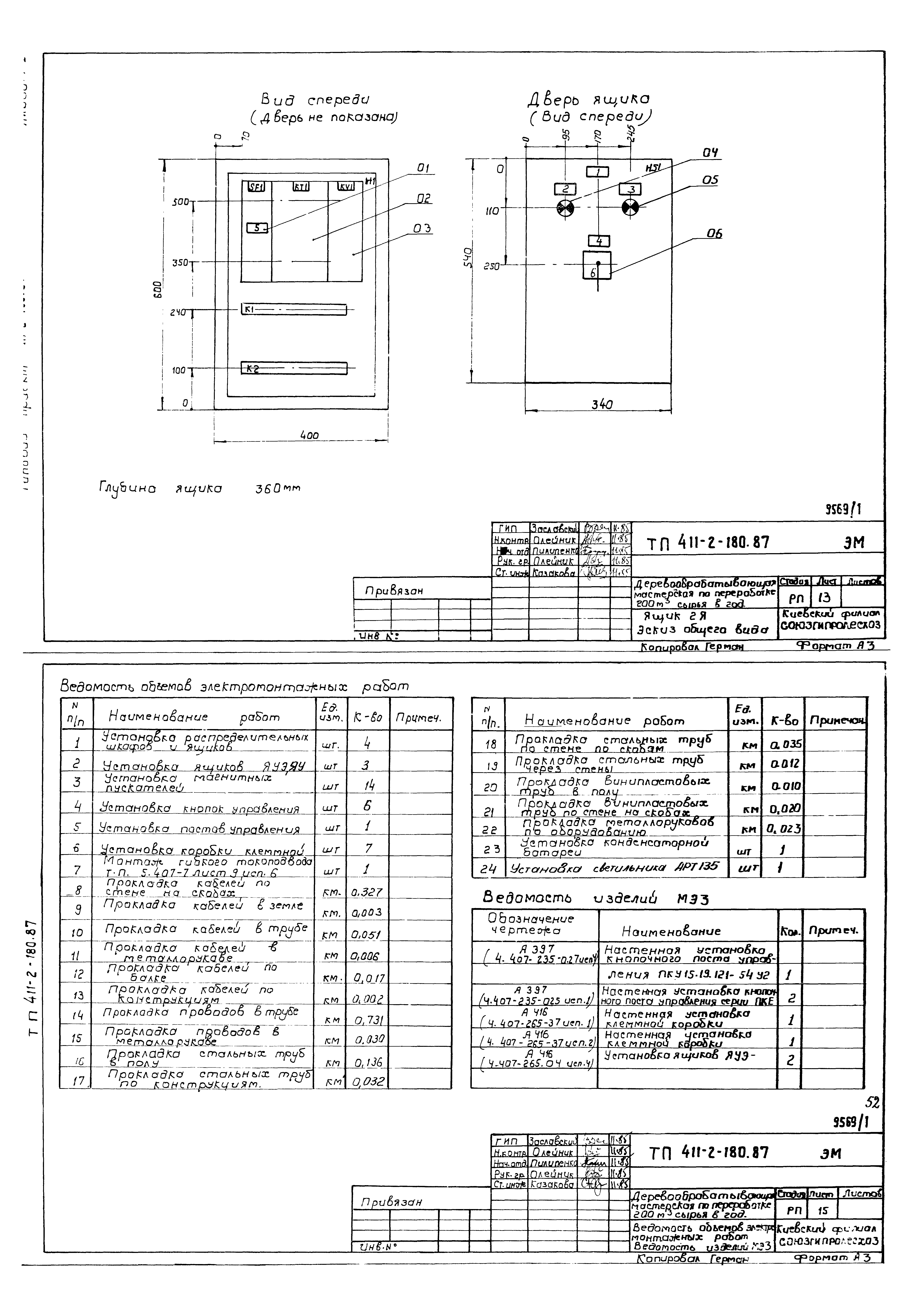
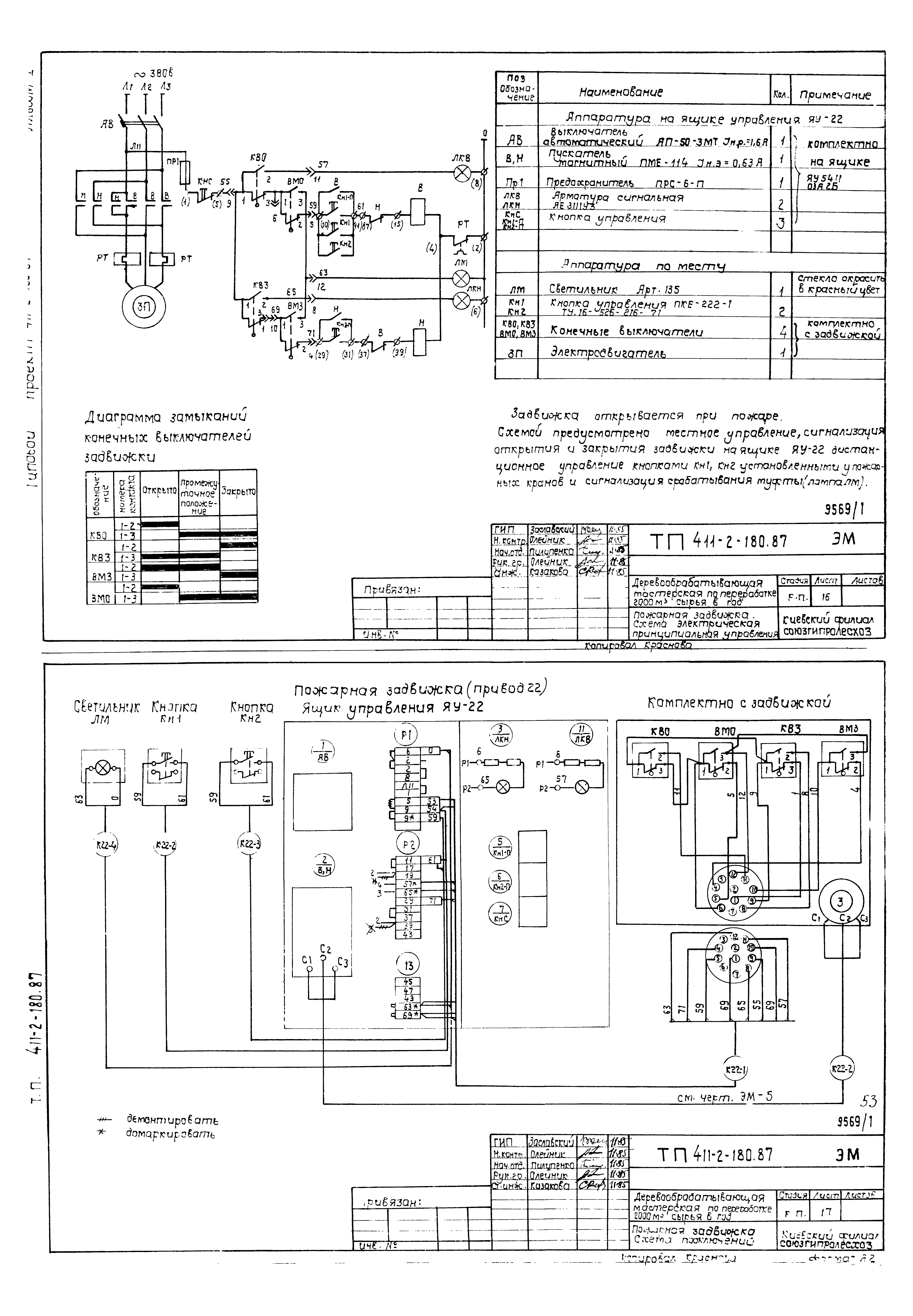
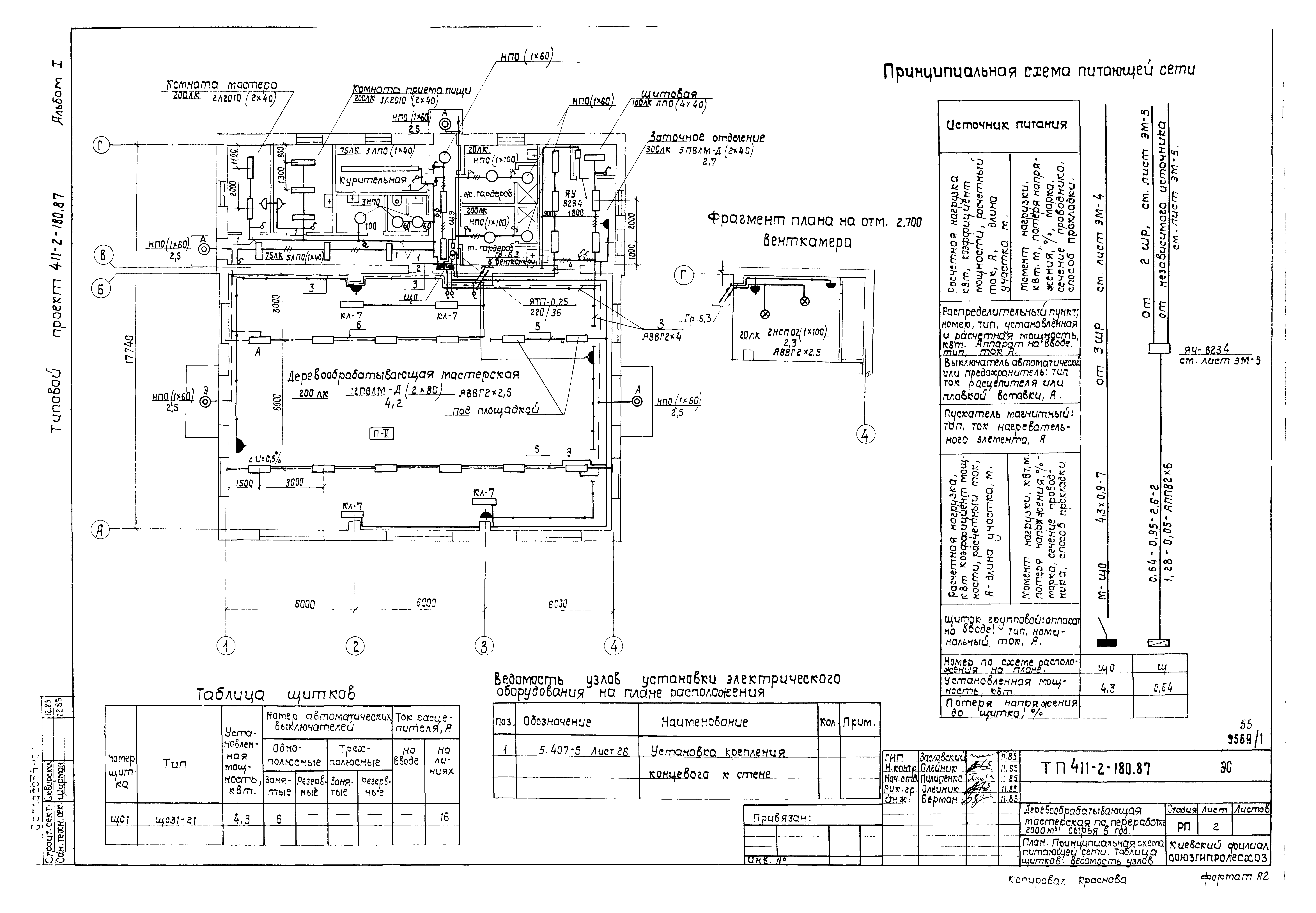
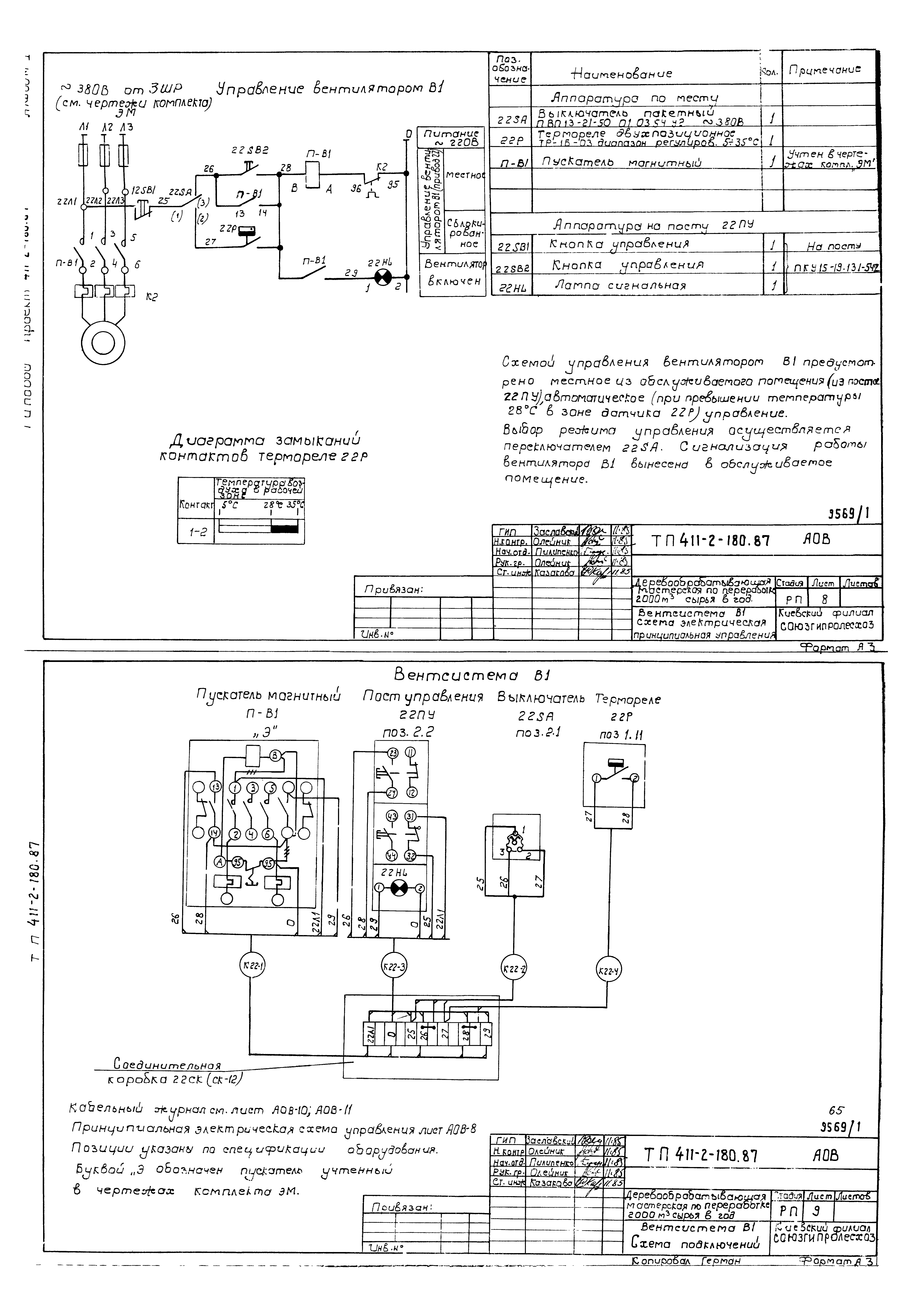
| Оглавление: | Содержание альбома Пояснительная записка Технология производства Общие данные Спецификация. План расположения технологического оборудования. Разрезы 1-1, 2-2 Архитектурные решения Общие данные План. Фрагмент входа для t = минус 40 градусов Цельсия Разрез 1-1. План кровли. План полов. План форкамеры Фасады Ведомость перемычек Конструкции железобетонные Общие данные Фундаменты монолитные. План. Элемент плана 1. Сечения 1-1 - 6-6 для t = минус 30 градусов Цельсия Фундаменты монолитные. Сечения 1-1 - 6-6 для t = минус 20, минус 40 градусов Цельсия Фундаменты сборные. План. Элемент плана 1 Фундаменты сборные. Раскладки блоков по осям 1, 4, Б, А, Г. Сечения 1-1 - 6-6 для t = минус 20 градусов Цельсия Фундаменты сборные. Раскладки блоков по осям 1, 4, Б, А, Г. Сечения 1-1 - 6-6 для t = минус 30 градусов Цельсия Фундаменты сборные. Раскладки блоков по осям 1, 4, Б, А, Г. Сечения 1-1 - 6-6 для t = минус 40 градусов Цельсия Схема расположения фундаментов под оборудование каналов и приямка Фундаменты под оборудование ФОм1 - ФОм5 Схемы расположения балок опорных подушек, плит покрытия и перекрытия Опорные подушки ОП1, ОП2. Балки Б1, Б2. Плита П2 Эстакада пневмотранспорта Подвесные пути Схема расположения ограждений и стремянки, сетки С1 - С3. Изделия закладные МН1 - МН3. Соединительное изделие МС1. Траверса Т1 Внутренние водопровод и канализация Общие данные. План сетей ВК на отм. 0.000 Схемы систем В1, Т3, К1 Отопление и вентиляция Общие данные План на отм. 0.000. План расположения циклона Разрез 1-1. Местные отсосы от технологического оборудования Схема системы отопления 1. Схема системы отопления 2 Установка системы ПТ1. Система теплоснабжения установки П1 Схемы систем ПТ1, П1, ВЕ1 - ВЕ7 Установка системы П1. Разрез. Спецификация Узел управления Силовое электрооборудование Общие данные План на отм. 0.000 Принципиальные схемы 1ШР, 3ШР Принципиальная схема 2ШР. Схема питающих сетей Пневмотранспорт ПТ1. Схема электрическая принципиальная управления Агрегат Р1. Схема электрическая принципиальная управления Ящик 1Я. Схема подключений Ящик 2Я. Схема подключений Кабельный журнал Ящик 1Я. Эскиз общего вида Ящик 2Я. Эскиз общего вида Спецификация к листу ЭМ-3 Ведомость объемов электромонтажных работ. Ведомость изделий МЭЗ Пожарная задвижка. Схема электрическая принципиальная Пожарная задвижка. Схема подключений Электрическое освещение Общие данные План. Принципиальная схема питающей сети. Таблица щитков, ведомость узлов Узлы крепления кабеля и люминесцентных светильников на тросе Спецификация к листу ЭО-2. Ведомость электромонтажных работ Связь. Сигнализация Связь и сигнализация Автоматизация отопления и вентиляции Общие данные Приточная система П1. Схема функциональная Приточная система П1. Указания по привязке принципиальной электрической схемы управления Приточная система П1. Схема подключения Приточная система П1. Щит управления 1ЩУВ. Клеммник Приточная система П1. Опросный лист Вентсистема В1. Схема электрическая принципиальная управления Вентсистема В1. Схема подключения Кабельный журнал План трасс. Ведомость объемов электромонтажных работ. Ведомость изделий МЭЗ Теплопункт. Схема автоматизации функциональная |
| Разработан: | Киевский филиал Союзгипролесхоз |
| Утверждён: | 20.06.1986 Гослесхоз СССР (USSR Gosleskhoz 20) |


































































