Скачать Типовой проект 411-2-182.87 Альбом I. Общая пояснительная записка. Технологические чертежи. Архитектурно-строительные решения. Конструкции железобетонныеДата актуализации: 01.01.2021
|
| Обозначение: | Типовой проект 411-2-182.87 |
| Обозначение англ: | 411-2-182.87 |
| Статус: | не определен законодательством |
| Название рус.: | Альбом I. Общая пояснительная записка. Технологические чертежи. Архитектурно-строительные решения. Конструкции железобетонные |
| Дата добавления в базу: | 01.10.2014 |
| Дата актуализации: | 01.01.2021 |
| Дата введения: | 03.01.1986 |
| Дата окончания срока действия: | 30.06.2003 |
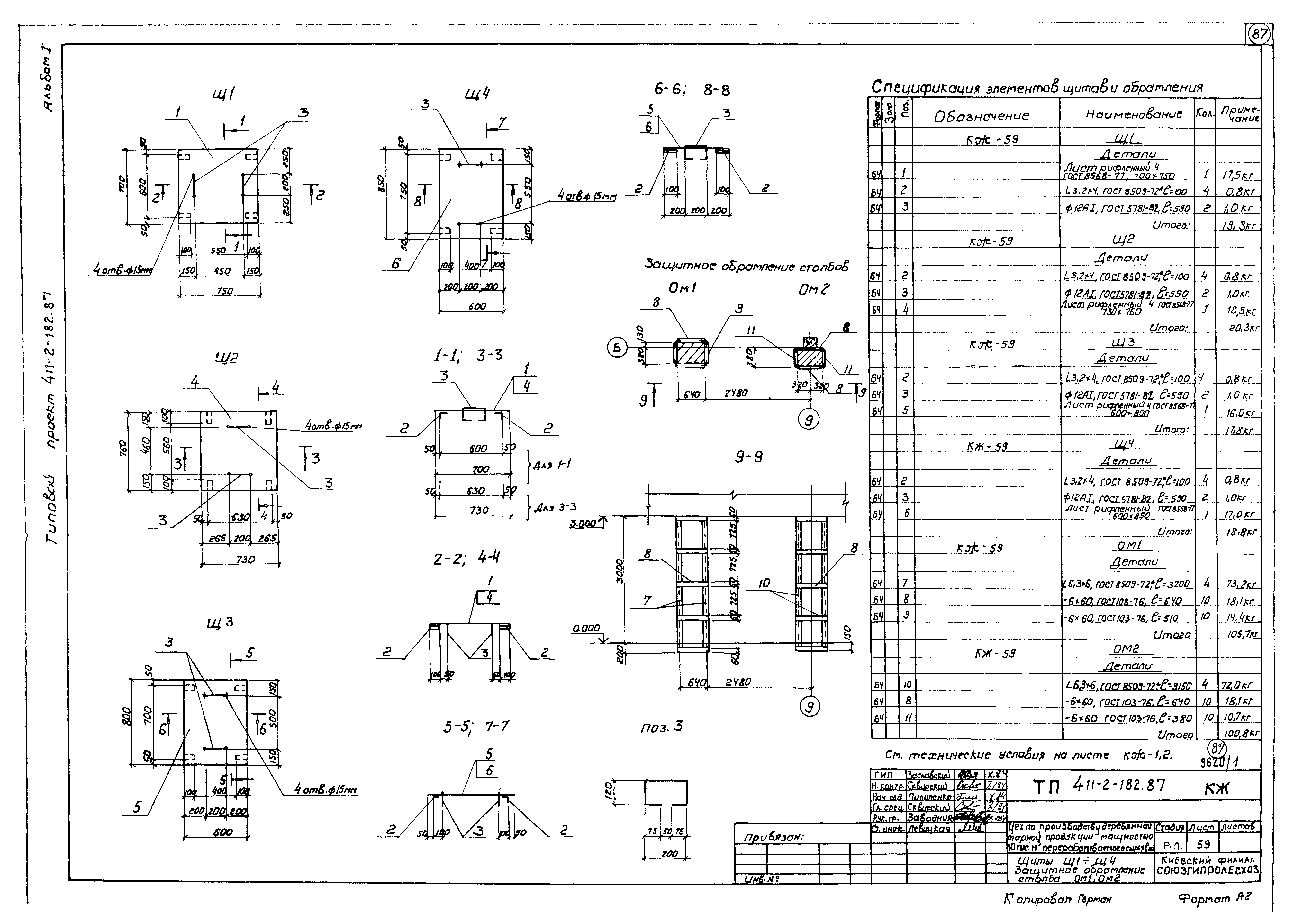
| Оглавление: | Содержание альбома Пояснительная записка Технология производства Общие данные Спецификация План расположения технологического оборудования План расположения технологического оборудования в осях 1 - 9 План расположения технологического оборудования в осях 4 - 11. План ленточных конвейеров План на отм. 0.000. Система технологического пароснабжения Архитектурные решения Общие данные План на отм. 0.000 Фрагмент 1. План на отм. 3.600. Деталь входа для t = минус 40 градусов Цельсия. Деталь крыльца Разрезы. Узлы Фасады Развертка стены по оси 10. План отверстий на 1 этаже (0.000). План отверстий на 2 этаже (3.600). Детали Венткамера П1. План на отм. 5.500. Сечения. Узел 1 План кровли. План полов Ведомость перемычек Спецификация перемычек Конструкции железобетонные Общие данные План фундаментов Сечения монолитных фундаментов 1-1 - 7-7 Сечения монолитных фундаментов 8-8 - 15-15 Сечения сборных фундаментов 1-1 - 9-9 для t = минус 20 градусов Цельсия Сечения сборных фундаментов 1-1 - 9-9 для t = минус 30 градусов Цельсия Сечения сборных фундаментов 1-1 - 9-9 для t = минус 40 градусов Цельсия Сечения сборных фундаментов 10-10 - 15-15 Раскладка блоков для t = минус 20 градусов Цельсия Раскладка блоков для t = минус 30 градусов Цельсия Раскладка блоков для t = минус 40 градусов Цельсия Фундаменты Фм1 - Фм5 Фундаменты Фм6 - Фм8 Фундаменты Фм9 - Фм12 Фундаменты Фм13 - Фм15 Фундаменты Фм16 - Фм19 Фундаменты Фм20 - Фм22 Схема расположения каналов и фундаментов под оборудование в осях 1 - 5 Схема расположения каналов и фундаментов под оборудование в осях 5 - 11 Сечения 1-1 - 9-9 Приямок траверсной тележки Схема расположения фундаментов под оборудование на отм. - 2.050 Схема расположения фундаментов под оборудование на отм. - 2.900 Эстакада у лесорамы. Схема расположения фундаментов бревнотаски вне цеха Фундамент под оборудование ФОм1. Опалубочный чертеж Фундамент под оборудование ФОм1. Армирование Фундамент под оборудование ФОм2 Фундаменты под оборудование ФОм3 - ФОм7 Фундамент под оборудование ФОм8. Опалубочный чертеж Фундамент под оборудование ФОм8. Армирование Фундамент под оборудование ФОм8. Фрагменты планов 1 - 4 Фундамент под оборудование ФОм9 Фундаменты под оборудование ФОм10 - ФОм12 Фундаменты под оборудование ФОм13 - ФОм16 Фундаменты под оборудование ФОм17 - ФОм21 Фундаменты под оборудование ФОм22 - ФОм25 Схемы расположения стеновых панелей. Спецификация Фрагменты 1 - 4. Узел А. Спецификации Фрагменты 5 - 14 Схема расположения колонн и балок покрытия. Разрезы 1-1 - 4-4 Схема расположения плит покрытия Схема расположения плит перекрытия и лестницы. Узлы 1, 2 Монолитные участки Ум1 и Ум2 Монолитные участки Ум3, Ум4 и Ум6 Колонны К1 - К5 Балки покрытия Б1 - Б3. Плиты покрытия П2, П7 - П11 Подвесные пути по оси 2 и в осях 6 - 8 Схема расположения пневмотранспорта Эстакады транспортеров для выноса отходов. Верхнее строение ВС1 Узлы верхнего строения ВС1 Короб ленточного транспортера КД1 Опора под бункер ОБ1. Узел 1 Узлы 2, 3, 6. Стойки СК1, СК2 Переходной мостик Пм1. Лестница Л1 Молниезащита Монтажные элементы МС1 - МС7. Изделия закладные МН1 - МН7, Т1 Изделия закладные МН8 - МН17 Изделия закладные МН18 - МН28. Каркасы КР1, КР2 Щиты Щ1 - Щ4. Защитное обрамление столбов Ом1, Ом2 |
| Разработан: | Киевский филиал Союзгипролесхоз |
| Утверждён: | 20.02.1985 Гослесхоз СССР (USSR Gosleskhoz 21) |
























































































