Скачать Типовой проект 901-4-62.83 Альбом IV. Узлы резервуаров емкостью 50 - 20000 куб. м (из ТП 901-4-63.83)Дата актуализации: 01.01.2021
|
| Обозначение: | Типовой проект 901-4-62.83 |
| Обозначение англ: | 901-4-62.83 |
| Статус: | действует |
| Название рус.: | Альбом IV. Узлы резервуаров емкостью 50 - 20000 куб. м (из ТП 901-4-63.83) |
| Дата добавления в базу: | 01.10.2014 |
| Дата актуализации: | 01.01.2021 |
| Дата введения: | 23.06.1983 |
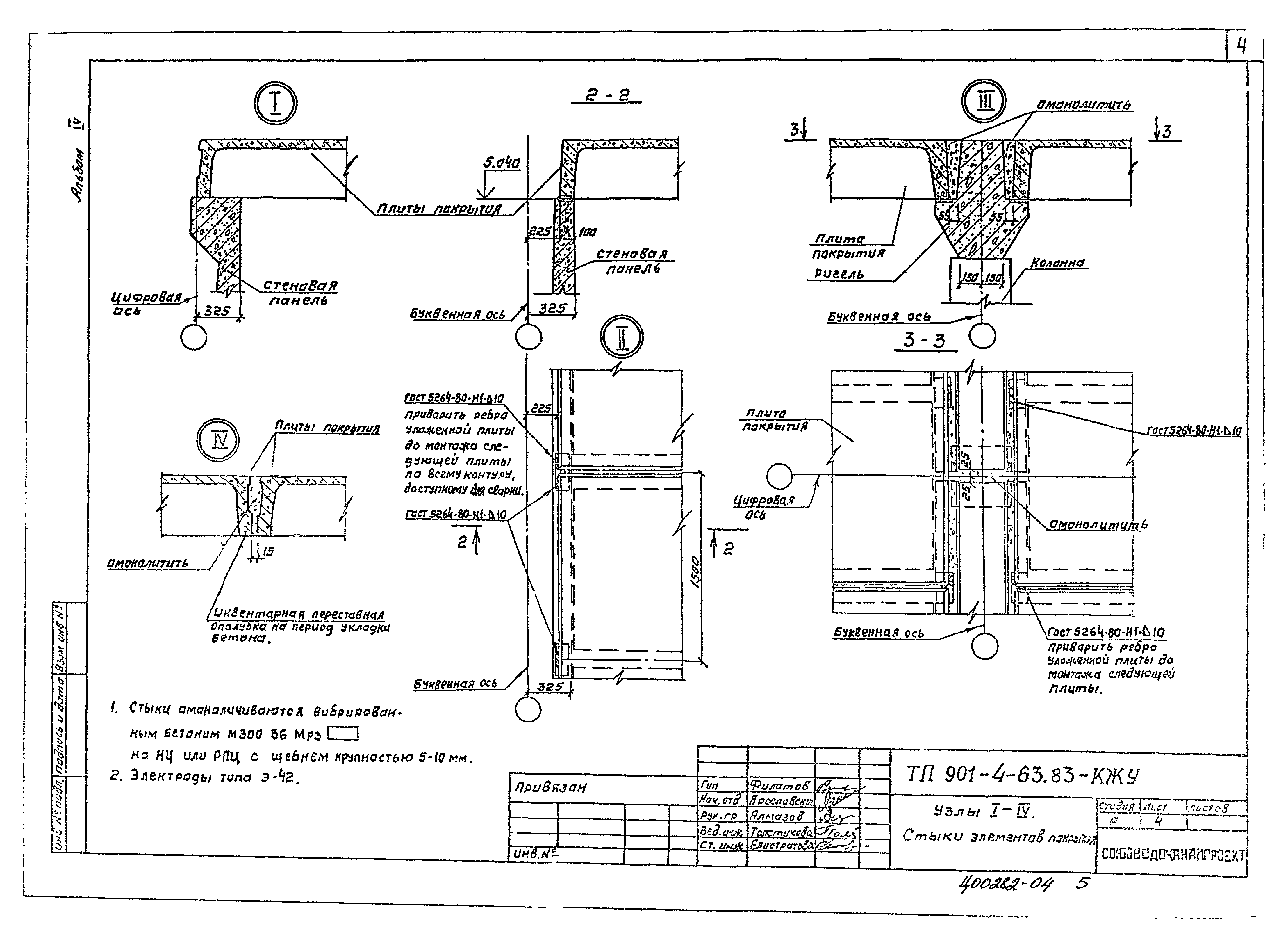
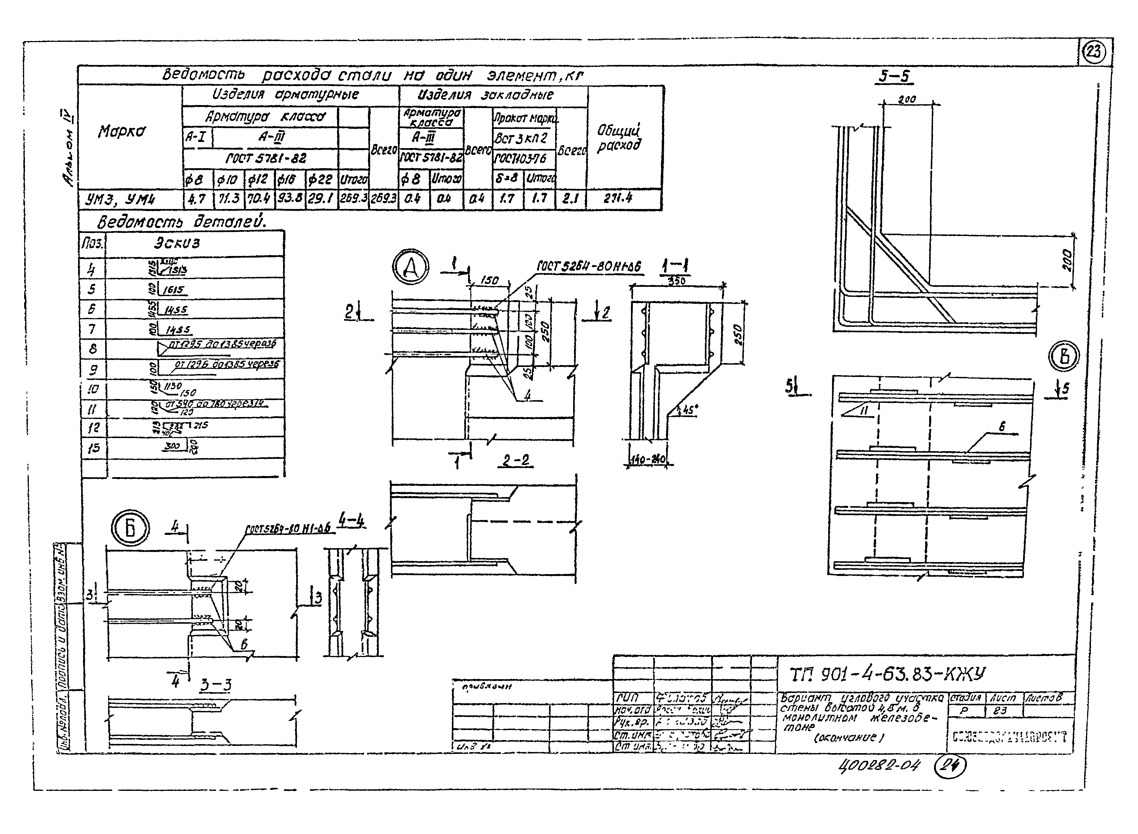
| Оглавление: | Перечень чертежей Пояснительная записка Узлы IX, X. Фундаментный паз под стену Узлы I - IV. Стыки элементов покрытия Узлы V - VIII. Стыки стен и колонн с покрытием и днищем Узлы XI, XXXVIII. Примыкание перегородок к колоннам и стенам Узлы XII - XXVII; XXXIX. Стыки элементов стен. Спецификация накладок Узлы XII - XXVII; XXXIX. Стыки элементов стен. Накладки Узлы XII - XIX; XXXIX. Стыки элементов стен. Сборочный чертеж Узлы XX - XXVII. Стыки элементов стен. Сборочный чертеж Узлы XXVIII - XXX. Вентиляционное устройство ВУ1. Сборочный чертеж Узлы XXXI - XXXIII. Вентиляционное устройство ВУ2. Сборочный чертеж Узлы XXXIV - XXXVII. Спецификация. Установка стремянки Узлы XXXIV; XXXIVа; XXXIVб. Камера приборов. Сборочный чертеж Узлы XXXV; XXXVа. Камера лаза КЛ1. Сборочный чертеж Узлы XXXVI; XXXVIа. Камера лаза КЛ2. Сборочный чертеж Узлы XXXVII. Камера лаза КЛ3. Сборочный чертеж Узлы гидроизоляции Вариант углового участка стены высотой 3,6 м в монолитном железобетоне Вариант углового участка стены высотой 4,8 м в монолитном железобетоне |
| Разработан: | ЦНИИпромзданий НИИЖБ ГПИ Союзводоканалпроект |
| Утверждён: | 17.11.1978 Госстрой СССР (2/3-409) |
| Заменяет собой: |
|























