Скачать Типовой проект 407-3-255 Альбом I. Электротехнические чертежиДата актуализации: 01.01.2021
|
| Обозначение: | Типовой проект 407-3-255 |
| Обозначение англ: | 407-3-255 |
| Статус: | действует |
| Название рус.: | Альбом I. Электротехнические чертежи |
| Дата добавления в базу: | 01.10.2014 |
| Дата актуализации: | 01.01.2021 |
| Дата введения: | 10.07.1979 |
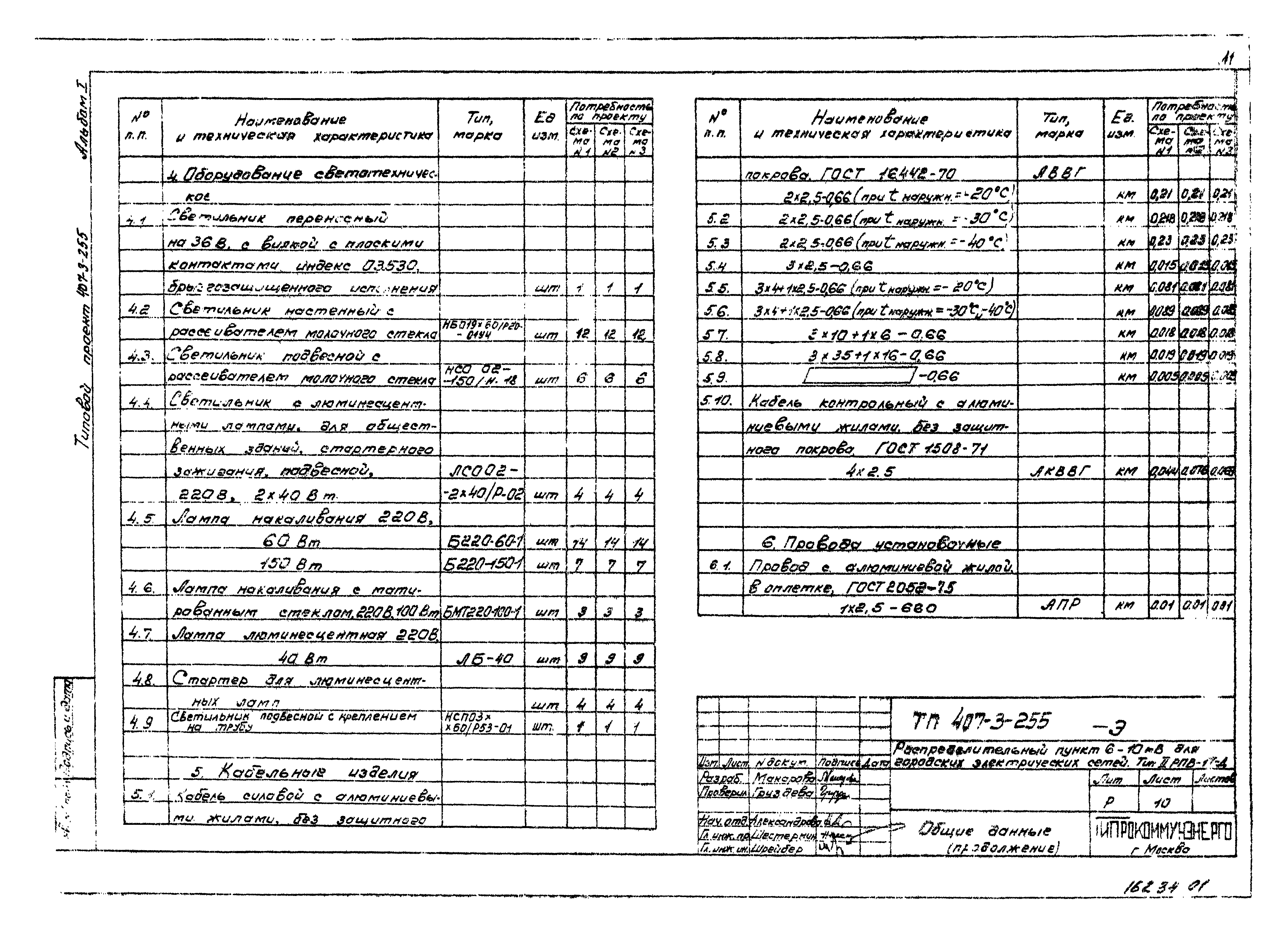
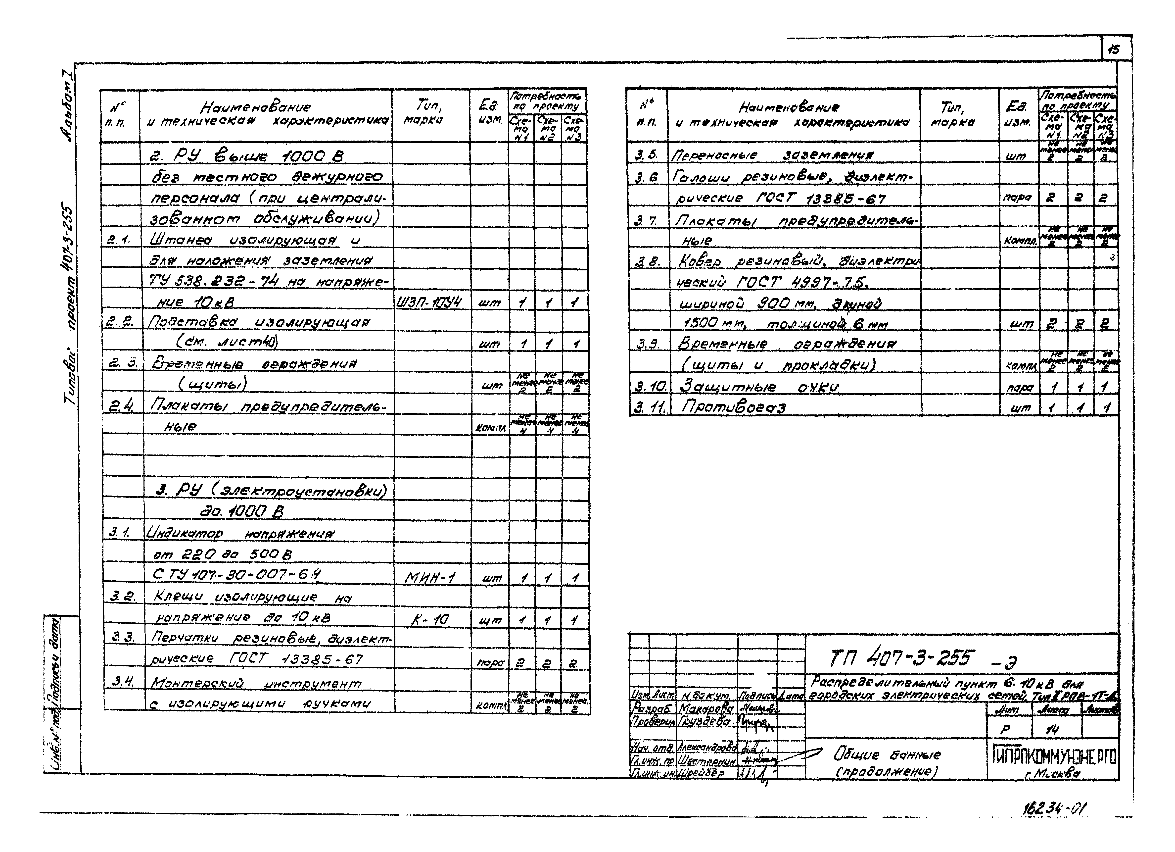
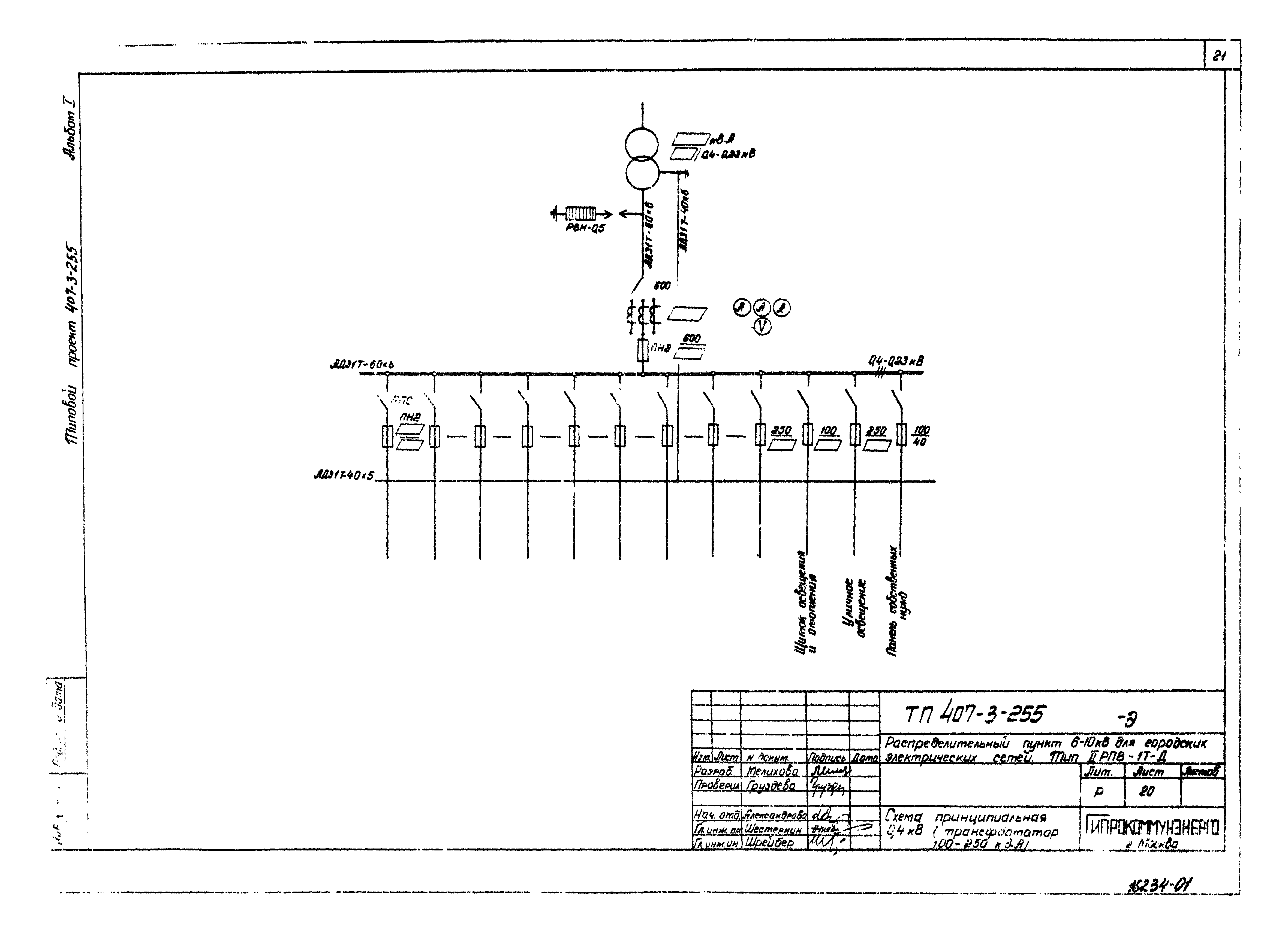
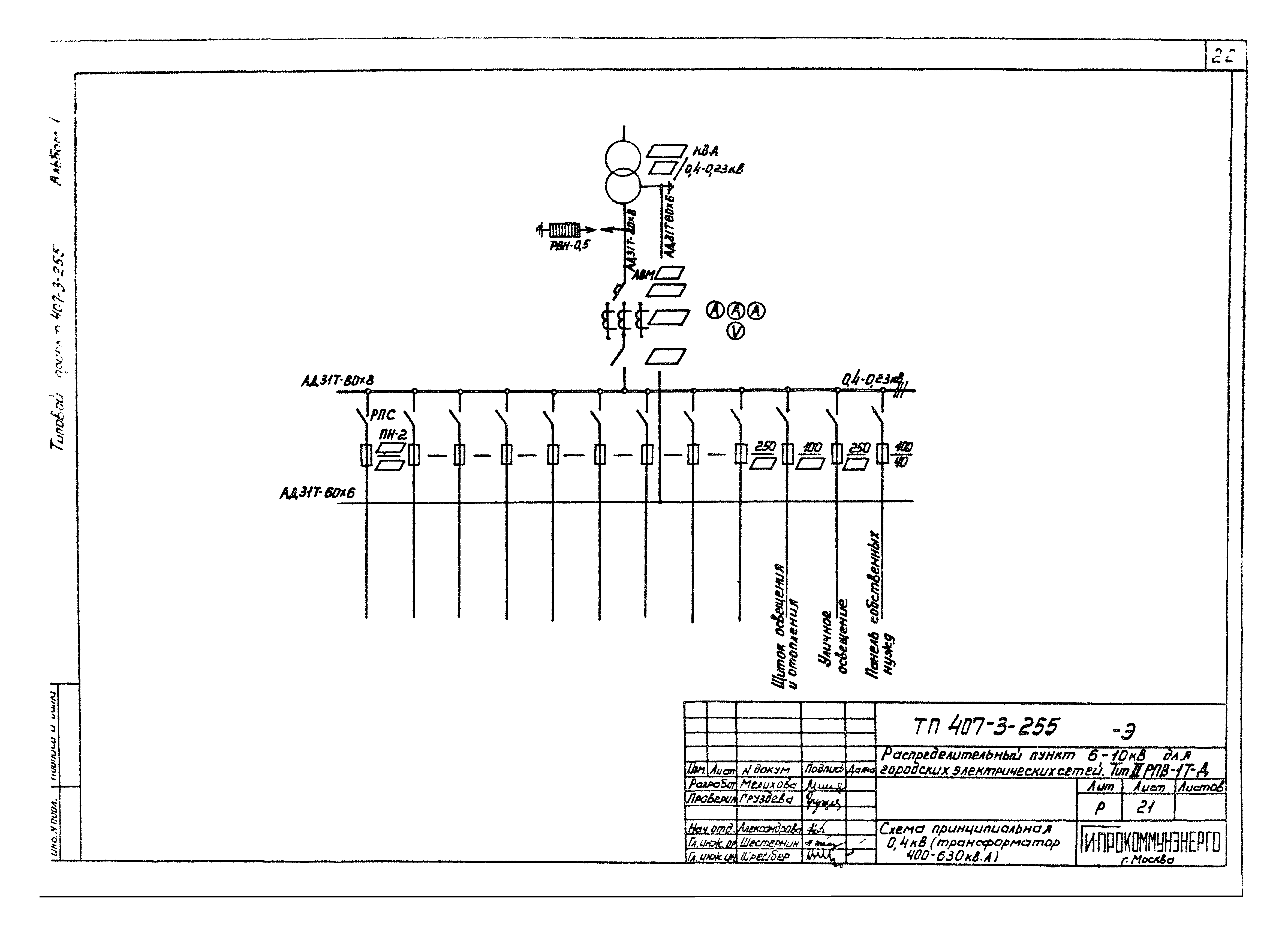
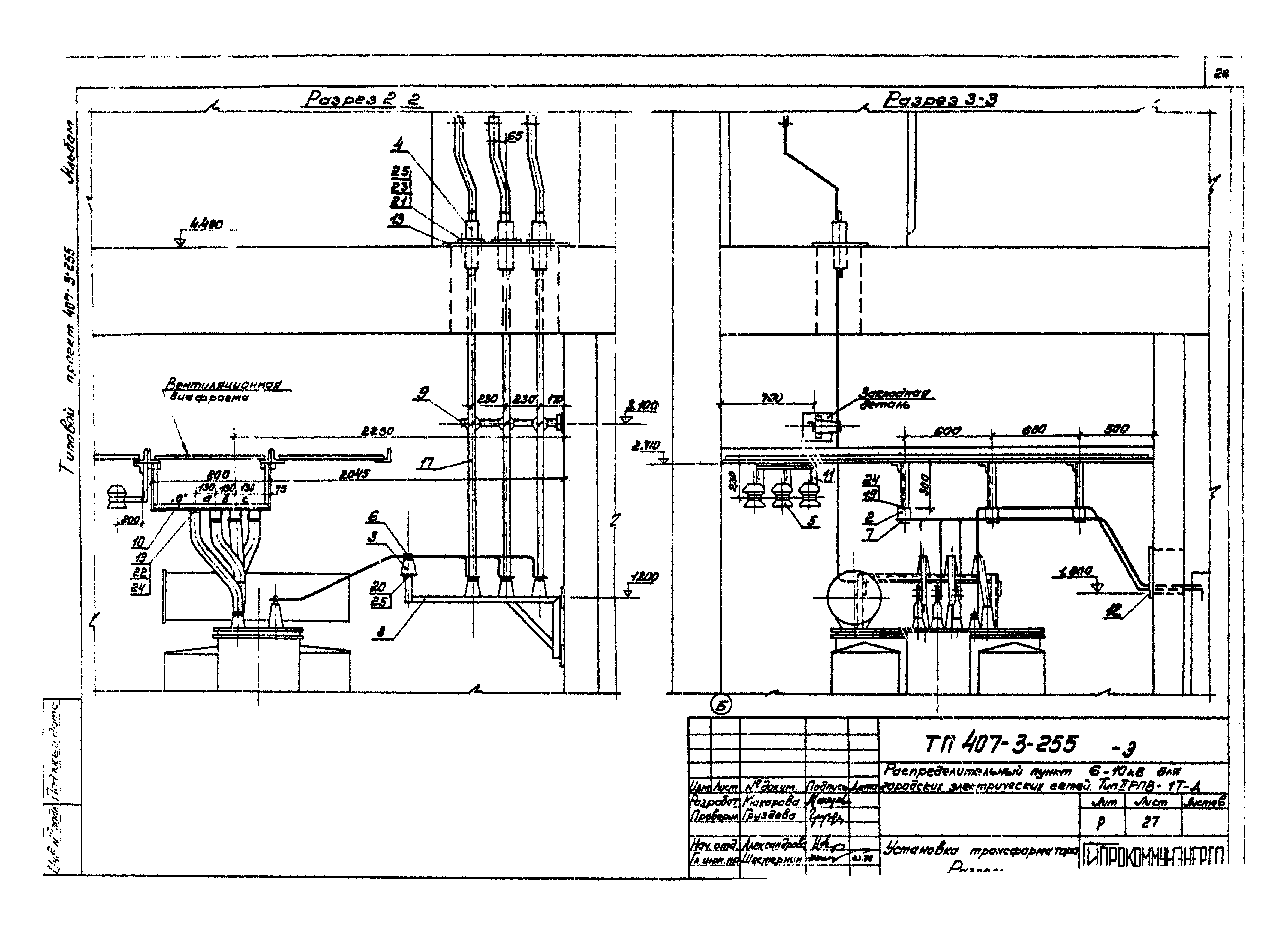
| Оглавление: | Общие данные Схема принципиальная 6 - 10 кВ № 1 Схема принципиальная 6 - 10 кВ № 2 Схема принципиальная 6 - 10 кВ № 3 Схема принципиальная 0,4 кВ (трансформатор 100 - 250 кВА) Схема принципиальная 0,4 кВ (трансформатор 400 - 630 кВА) Схема собственных нужд План и разрез РП. Заземление План РУ 6 - 10 кВ План щита 0,4 кВ Установка трансформатора. План Установка трансформатора. Разрезы Установка трансформатора. Металлоконструкции Установка трансформатора. Плиты проходные Установка трансформатора. Барьер Воздушный ввод 6 - 10 кВ. Монтажный чертеж Воздушный ввод 6 - 10 кВ. Металлоконструкции Кабельный журнал по схеме № 1(2)(3) Прокладка кабелей по схеме № 1(2) Прокладка кабелей по схеме № 3 Электроосвещение Изолирующая подставка Питающая линия 6 - 10 кВ с направленной защитой. Схема электрическая принципиальная Секционный выключатель 6 - 10 кВ. Схема электрическая принципиальная Отходящая линия 6 - 10 кВ. Схема электрическая принципиальная Питающая резервная линия 6 - 10 кВ. Схема электрическая принципиальная Питающая резервная линия 6 - 10 кВ с направленной защитой. Схема электрическая принципиальная. Перечень аппаратуры Секционный выключатель 6 - 10 кВ. Схема электрическая принципиальная. Перечень аппаратуры Отходящая линия 6 - 10 кВ. Схема электрическая принципиальная. Перечень аппаратуры Питающая резервная линия 6 - 10 кВ. Схема электрическая принципиальная. Перечень аппаратуры РУ 6 - 10 кВ по схеме 2. Ряды зажимов камер КСО РУ 6 - 10 кВ по схеме 3. Ряды зажимов камер КСО Заказная спецификация на электрооборудование и материалы, поставляемые Заказчиком |
| Разработан: | Гипрокоммунэнерго |
| Утверждён: | 13.03.1979 Минжилкомхоз РСФСР (Russian Federation Minzhilkomkhoz 5-ТД) |






















































