Скачать Типовой проект 0901-9-10.83 Альбом I. Общая пояснительная записка. Технологическая и строительная частиДата актуализации: 01.01.2021
|
| Обозначение: | Типовой проект 0901-9-10.83 |
| Обозначение англ: | 0901-9-10.83 |
| Статус: | действует |
| Название рус.: | Альбом I. Общая пояснительная записка. Технологическая и строительная части |
| Дата добавления в базу: | 01.10.2014 |
| Дата актуализации: | 01.01.2021 |
| Дата введения: | 25.11.1982 |
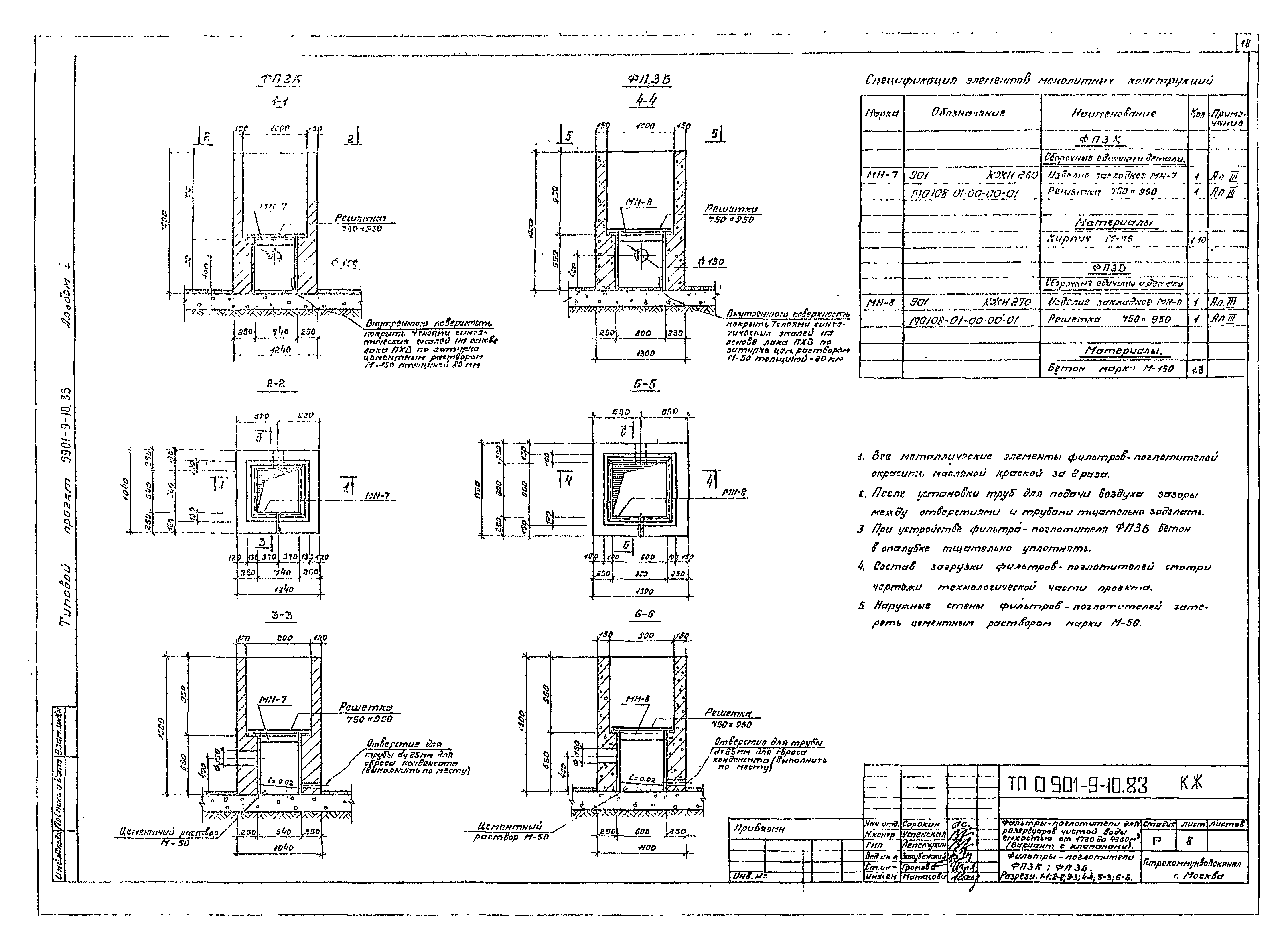
| Оглавление: | Содержание альбома Пояснительная записка Технологическая часть Общие данные План 1-1. Разрезы 2-2, 3-3 Спецификация Строительная часть Общие данные План. Разрезы Раскладка стеновых блоков по осям А, Б, 1, 2. Покрытие камеры Узлы 1 - 4 Узлы 5 - 8 Фильтры-поглотители ФП1, ФП1м Фильтры-поглотители ФП2к, ФП2б Фильтры-поглотители ФП3к, ФП3б Ведомость расхода стали на элемент |
| Разработан: | Гипрокоммунводоканал Минжилкомхоза РСФСР |
| Утверждён: | 02.11.1982 Минжилкомхоз РСФСР (Russian Federation Minzhilkomkhoz 18-ТД) |


















