Скачать Типовой проект 411-2-156.85 Альбом I. Общая пояснительная записка. Технологические чертежи. Архитектурно-строительные решения. Конструкции железобетонныеДата актуализации: 01.01.2021
|
| Обозначение: | Типовой проект 411-2-156.85 |
| Обозначение англ: | 411-2-156.85 |
| Статус: | не определен законодательством |
| Название рус.: | Альбом I. Общая пояснительная записка. Технологические чертежи. Архитектурно-строительные решения. Конструкции железобетонные |
| Дата добавления в базу: | 01.10.2014 |
| Дата актуализации: | 01.01.2021 |
| Дата введения: | 06.07.1984 |
| Дата окончания срока действия: | 30.06.2003 |
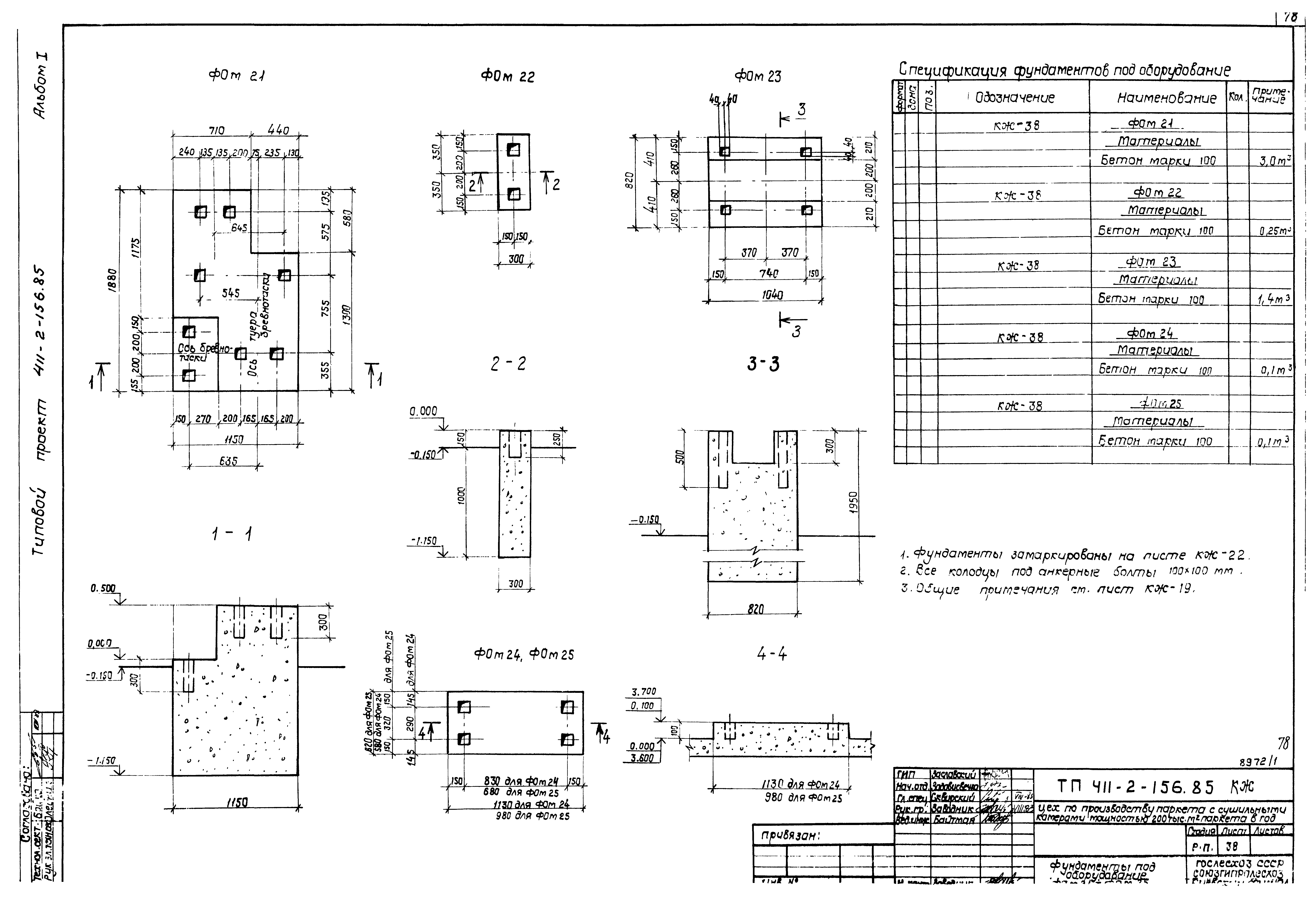
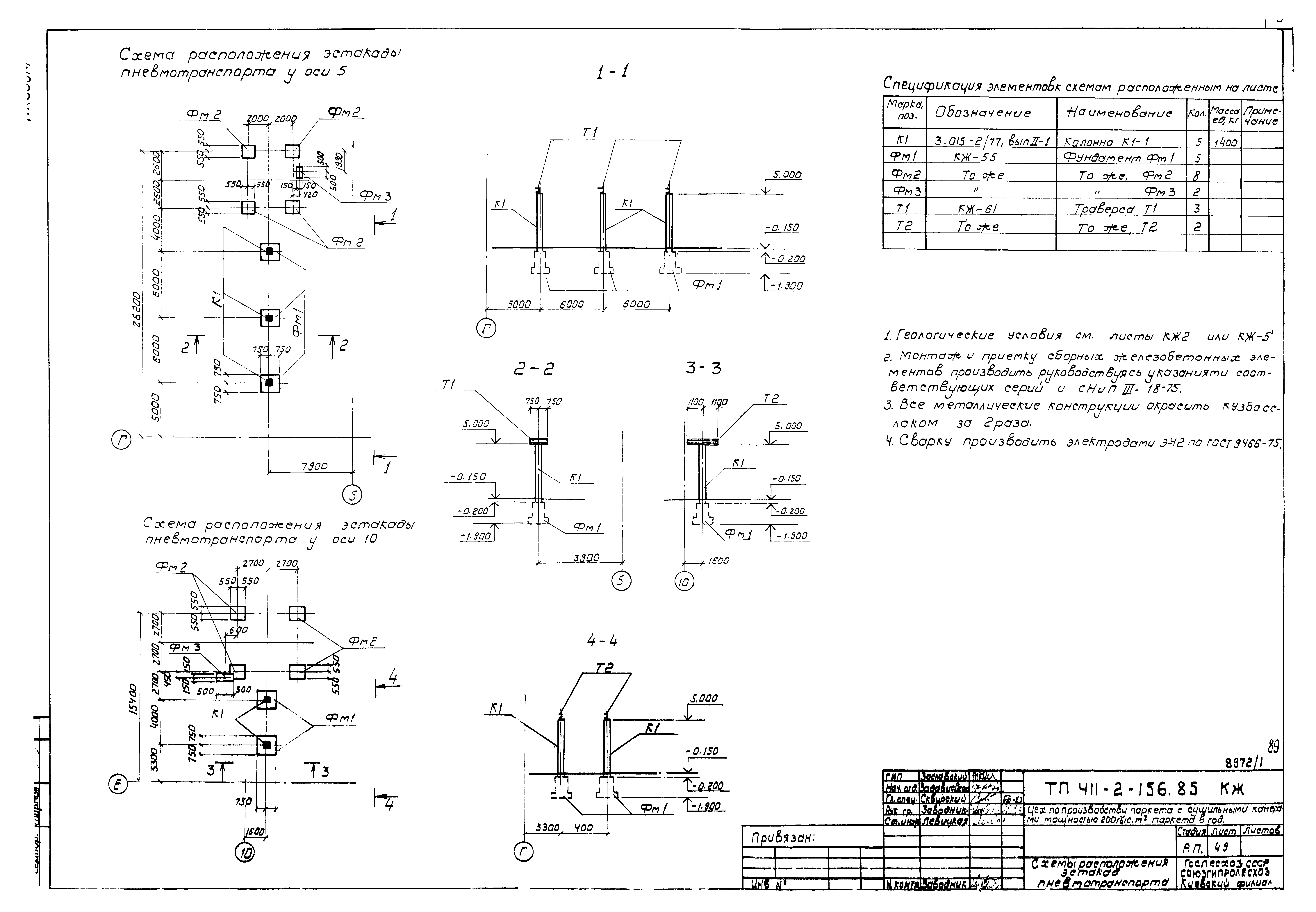
| Оглавление: | Содержание альбома Пояснительная записка Технология производства Общие данные. Спецификация План расположения технологического оборудования План расположения технологического оборудования в осях 1 - 8; А - Г План расположения технологического оборудования в осях 8 - 13; А - Г План расположения технологического оборудования в осях 5 - 10; Г - Д План конвейеров План на отм. 0.000. Система технологического пароснабжения Буфет Архитектурные решения Общие данные План на отм. 0.000 Фрагмент 1. Фрагмент тамбура входа для t = минус 40 градусов Цельсия План на отм. 4.800 Разрезы Фасады Входы из транспортных туннелей. Сечения. Детали Развертки стен с вентиляционными каналами Форкамеры План полов Ведомость перемычек План кровли. Спецификации Схема расположения элементов заполнения оконных проемов. Передаточное окно Д50*, ПД-4* Конструкции железобетонные Общие данные План фундаментов Сечение фундаментов 1-1 - 15-15. Элемент плана 1 Элемент плана 2. Сечения 16-16 - 21-21. Ведомость перемычек План фундаментов 1 (вариант сборные) Сечения фундаментов 1-1 - 9-9 для t = минус 20 градусов Цельсия Сечения фундаментов 1-1 - 9-9. Спецификация элементов к схемам расположения элементов фундаментов для t = минус 30 градусов Цельсия Сечения фундаментов 1-1 - 9-9 для t = минус 40 градусов Цельсия Сечения фундаментов 10-10 - 19-19 Схемы расположения элементов фундаментов по осям А, 1, 5, 13 для t = минус 20 градусов Цельсия Схемы расположения элементов фундаментов по оси Г, 8, 10 для t = минус 20 градусов Цельсия Схемы расположения элементов фундаментов по осям Д, Е, 6, 7, 8, 9 и стенам лестничной клетки для t = минус 20 градусов Цельсия Схемы расположения элементов фундаментов по оси А, по осям 1 - 13, по оси 5 для t = минус 30 градусов Цельсия Схемы расположения элементов фундаментов по оси Г, по оси 10, по оси 8 для t = минус 30 градусов Цельсия Схемы расположения элементов фундаментов по осям Д, Е, 6, 7, 8, 9 и стенам лестничной клетки для t = минус 30 градусов Цельсия Схемы расположения элементов фундаментов по осям А, 1, 5, 13 для t = минус 40 градусов Цельсия Схемы расположения элементов фундаментов по оси Г, по осям 8, 10 для t = минус 40 градусов Цельсия Схемы расположения элементов фундаментов по осям А, Б, 6, 7, 8, 9 и стенам лестничной клетки для t = минус 40 градусов Цельсия Схема расположения фундаментов под оборудование каналов и приямка в осях 1 - 8 Схема расположения фундаментов под оборудование каналов и приямка в осях 8 - 13 Схема расположения фундаментов под оборудование каналов и приямка в осях 5 - 10 между осями Г - Е Эстакада у лесорамы. Схемы расположения фундаментов под оборудование вне цеха Схема расположения фундаментов под оборудование на отм. 3.600. Сечения 1-1 - 7-7 Схема расположения фундаментов под оборудование на отм. - 2.900 Схема расположения фундаментов под оборудование на отм. - 2.400 Схема расположения плит покрытия тоннелей ТТ1, ТТ2. Схема расположения балок тоннеля ТТ1 Фундамент под оборудование ФОм1. Опалубочный чертеж Фундамент под оборудование ФОм1. Армирование Фундамент под оборудование ФОм2 Фундаменты под оборудование ФОм3, 4, 6 - 8 Фундамент под оборудование ФОм5. Опалубочный чертеж Фундамент под оборудование ФОм5. Армирование Фундамент под оборудование ФОм5. Фрагменты планов 1 - 4 Фундаменты под оборудование ФОм9 - ФОм12 Фундамент под оборудование ФОм13 Фундаменты под оборудование ФОм14 - ФОм17 Фундаменты под оборудование ФОм18 - ФОм20 Фундаменты под оборудование ФОм21 - ФОм25 Схемы расположения балок покрытия и перекрытия опорных плит Схема расположения плит покрытия Схемы расположения плит перекрытия элементов лестницы Л1. Узлы 1 и 2 Монолитные участки Ум1 и Ум2 Монолитные участки Ум3 - Ум5 Монолитные участки Ум6, Ум7. Балка Бм1 Опорные плиты ОПм1 - ОПм7 Балки покрытия Б1 - Б3, Б5. Плиты П3, П4 Подвесной путь в осях 5 - 8 Подвесной путь в осях 8 - 9 Схемы расположения эстакад пневмотранспорта Эстакады транспортеров для выноса отходов. Верхнее строение ВС1 Узлы верхнего строения ВС1 Короб ленточного транспортера КД1 Опора под бункер ОБ1. Узел 1 Узлы 2, 3, 6. Стойки СК1, СК2 Конструкция фундаментов Фм1 - Фм3 Переходной мостик ПМ1. Лестницы Лм1, Лм2 Переходной мостик ПМ2. Козырек, стремянки Каркасы КП1, КР1 - КР4 Изделия закладные МН1 - МН12 Изделия закладные МН13 - МН23 Сетки С1 - С3, траверсы Т1 и Т2. Монтажные элементы МС1 - МС8. Защитное обрамление Ом1 Щиты Щ1 - Щ6 Молниезащита |
| Разработан: | Киевский филиал Союзгипролесхоз |
| Утверждён: | 18.06.1984 Гослесхоз СССР (USSR Gosleskhoz 8) |








































































































