Скачать Типовой проект 411-2-156.85 Альбом III. Силовое и осветительное электрооборудование. Автоматизация санитарно-технических систем и технологических процессов. Связь и сигнализация. Задание заводу-изготовителюДата актуализации: 01.01.2021
|
| Обозначение: | Типовой проект 411-2-156.85 |
| Обозначение англ: | 411-2-156.85 |
| Статус: | не определен законодательством |
| Название рус.: | Альбом III. Силовое и осветительное электрооборудование. Автоматизация санитарно-технических систем и технологических процессов. Связь и сигнализация. Задание заводу-изготовителю |
| Дата добавления в базу: | 01.10.2014 |
| Дата актуализации: | 01.01.2021 |
| Дата введения: | 06.07.1984 |
| Дата окончания срока действия: | 30.06.2003 |
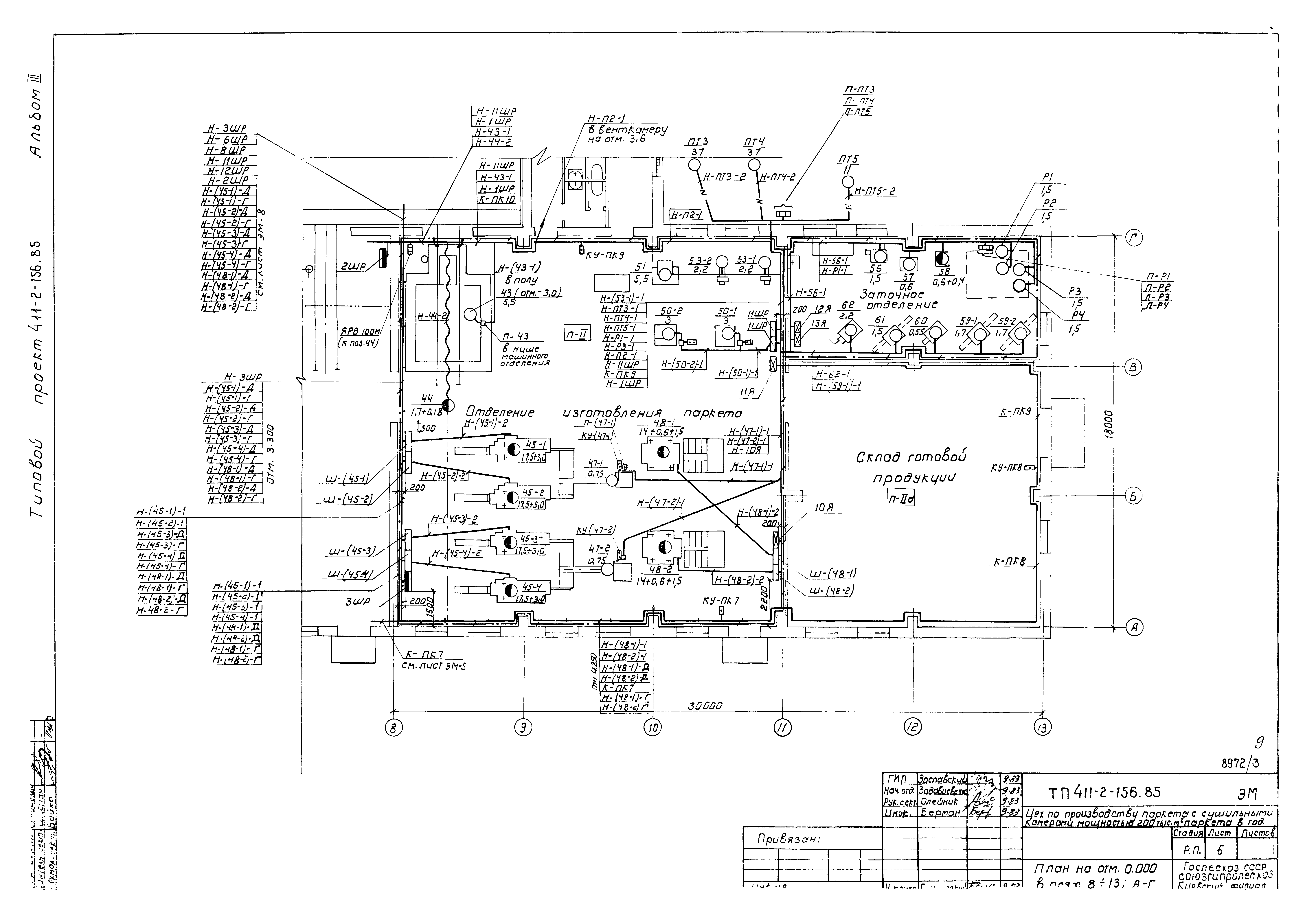
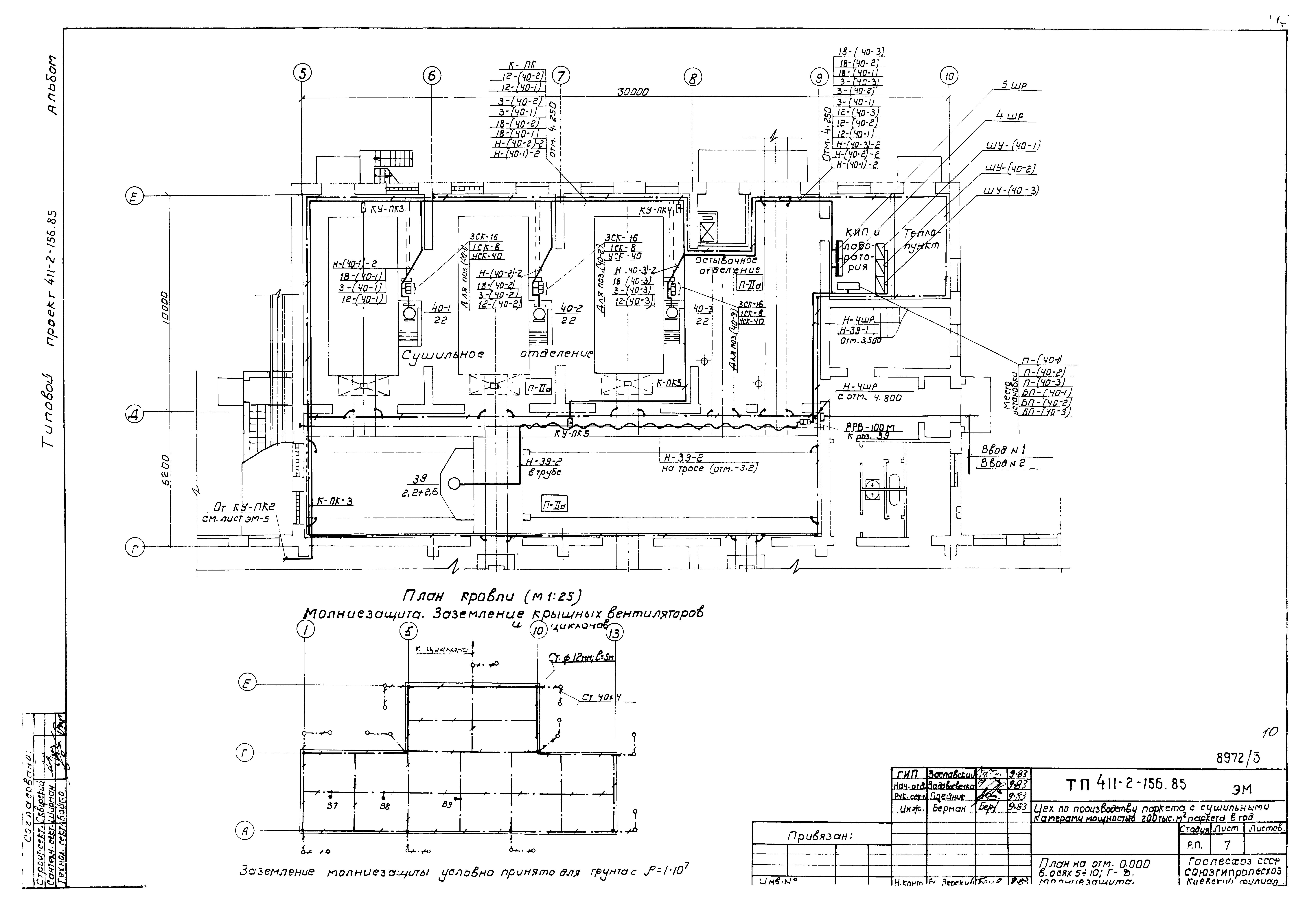
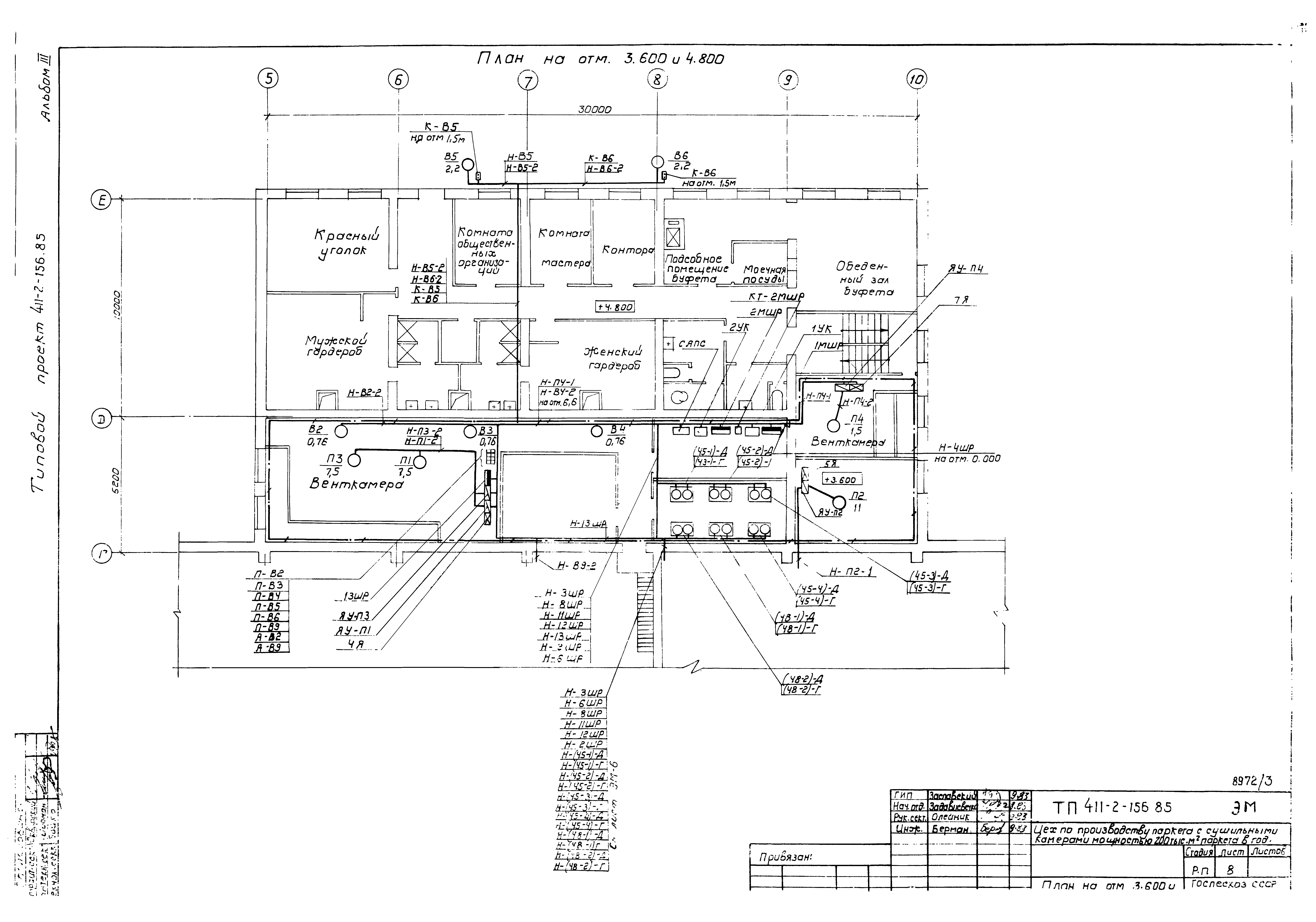
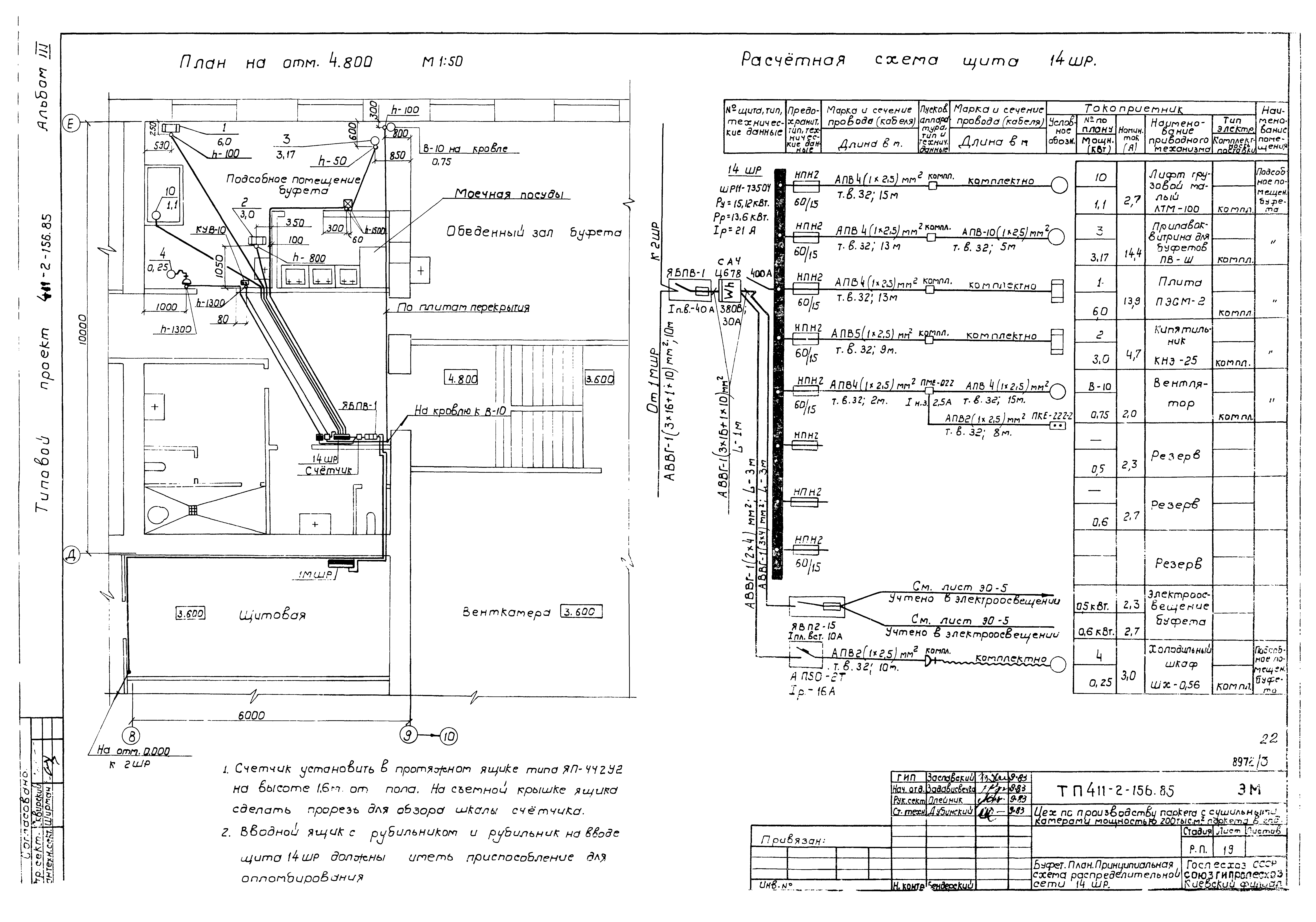
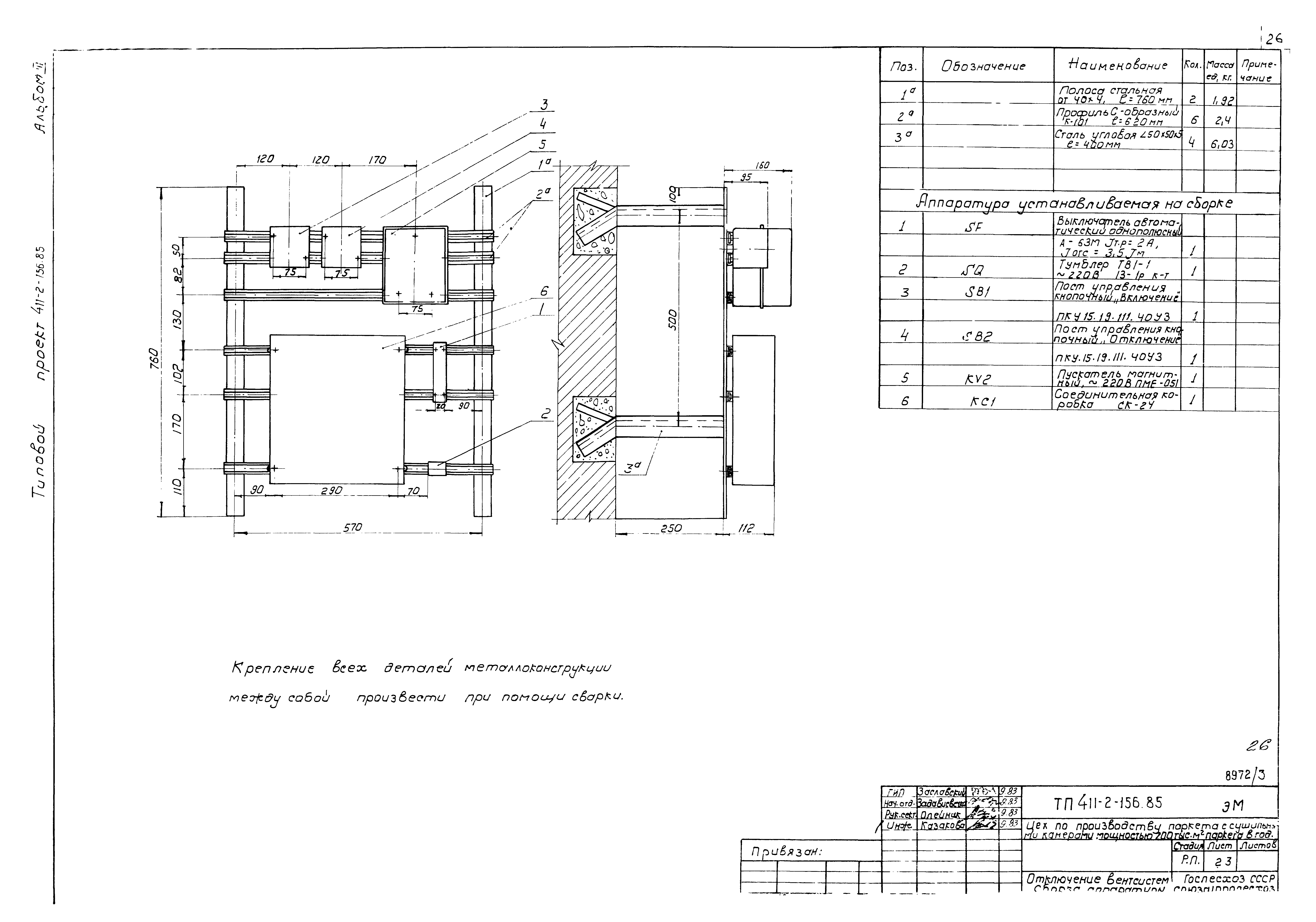
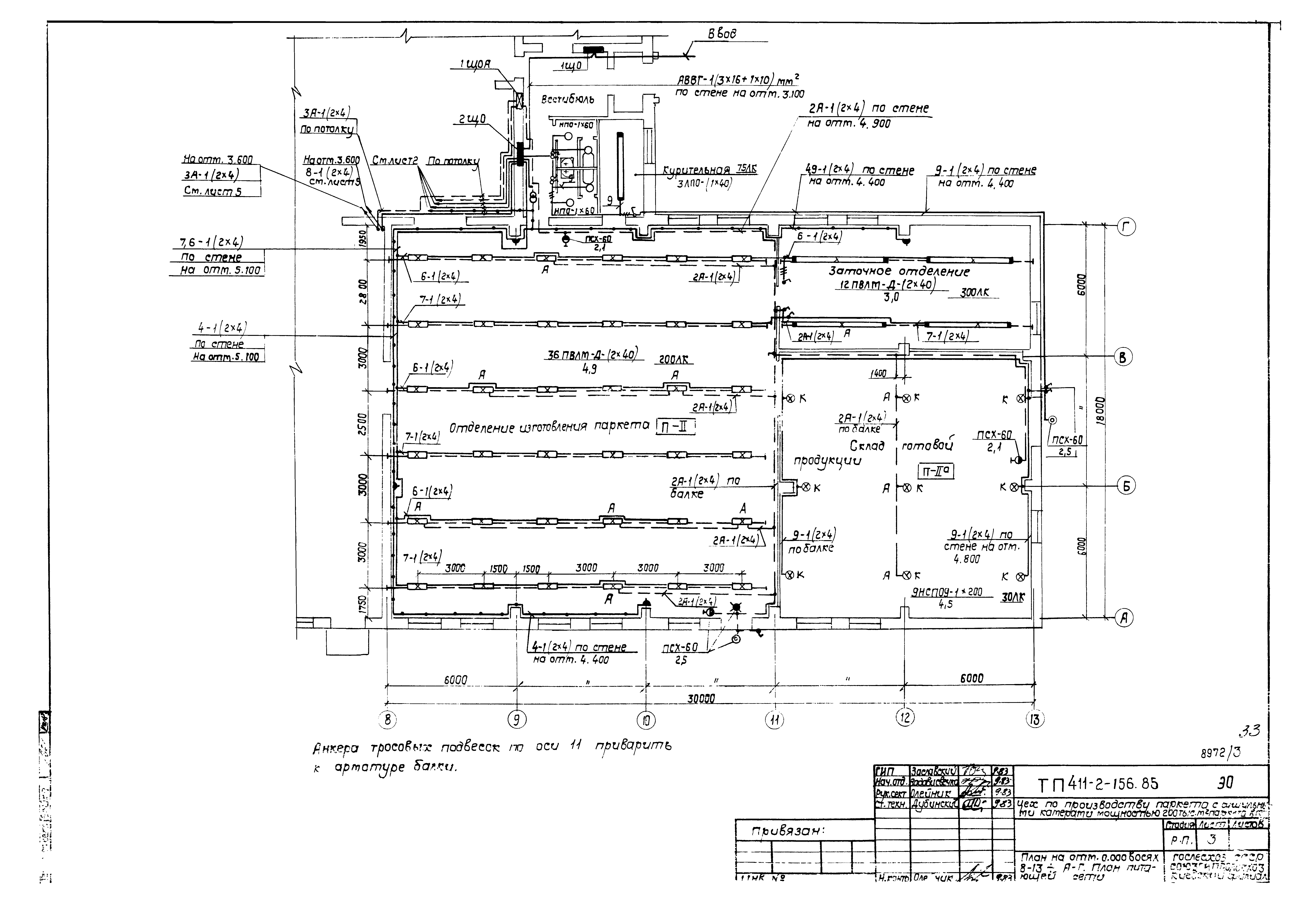
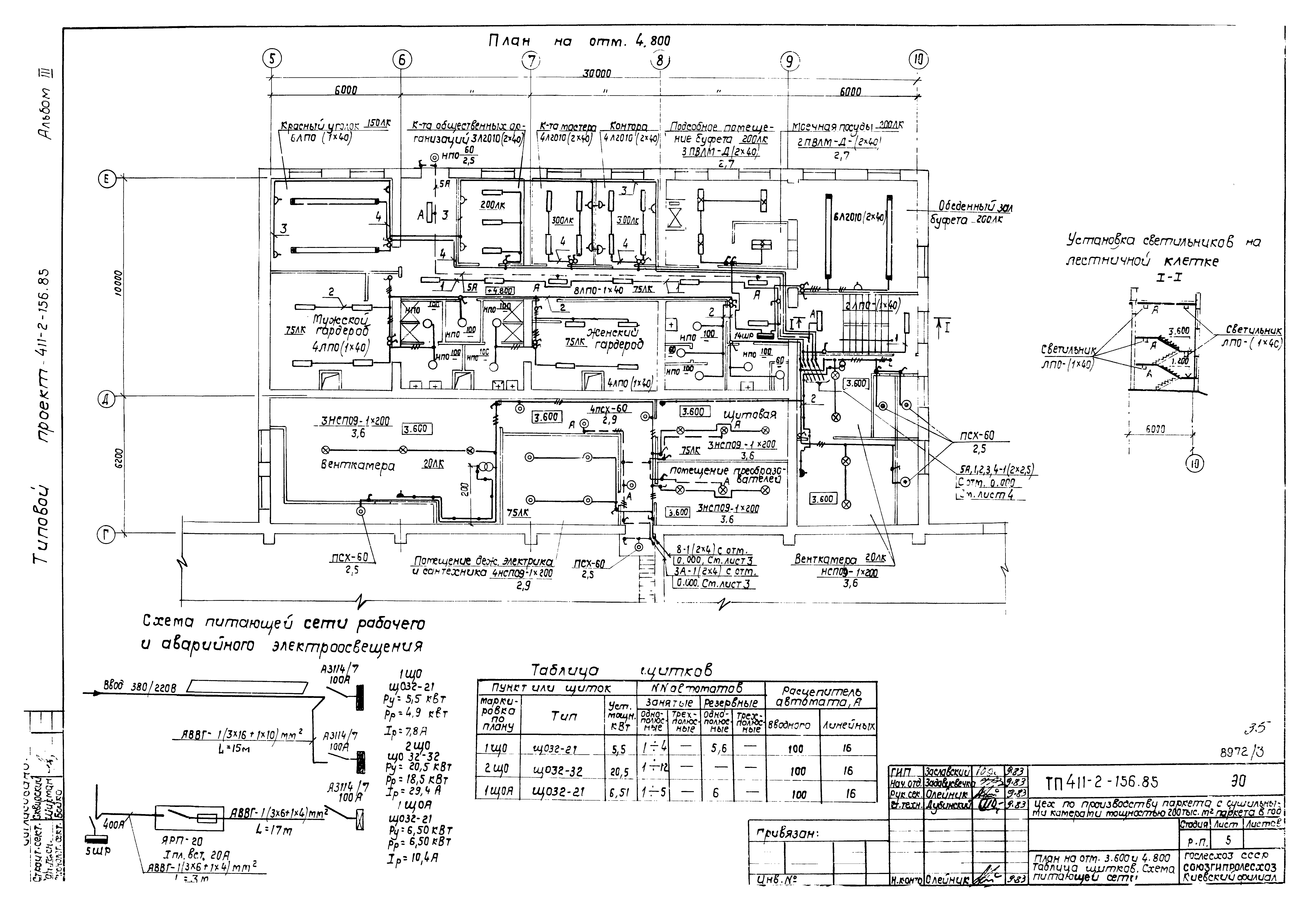
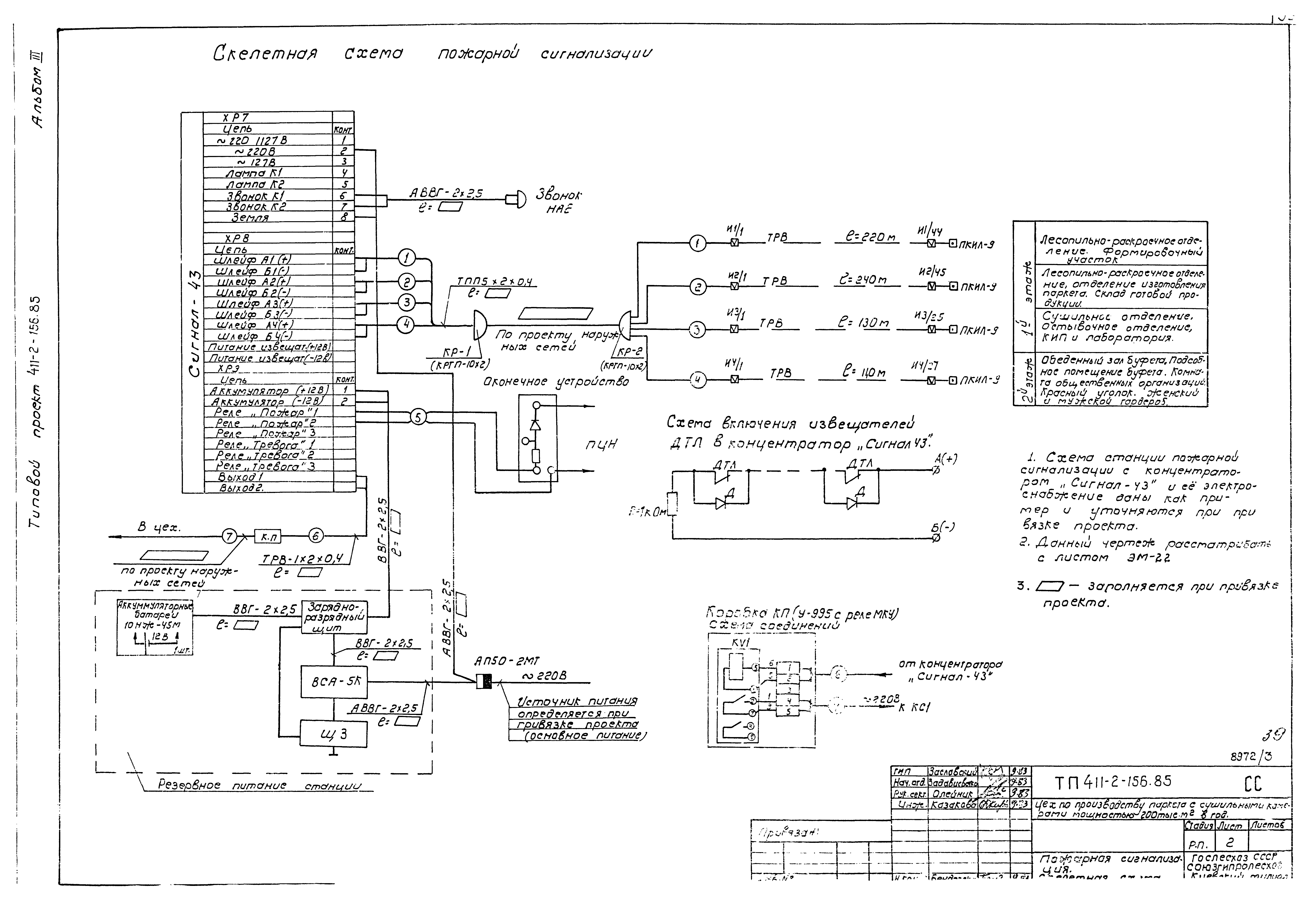
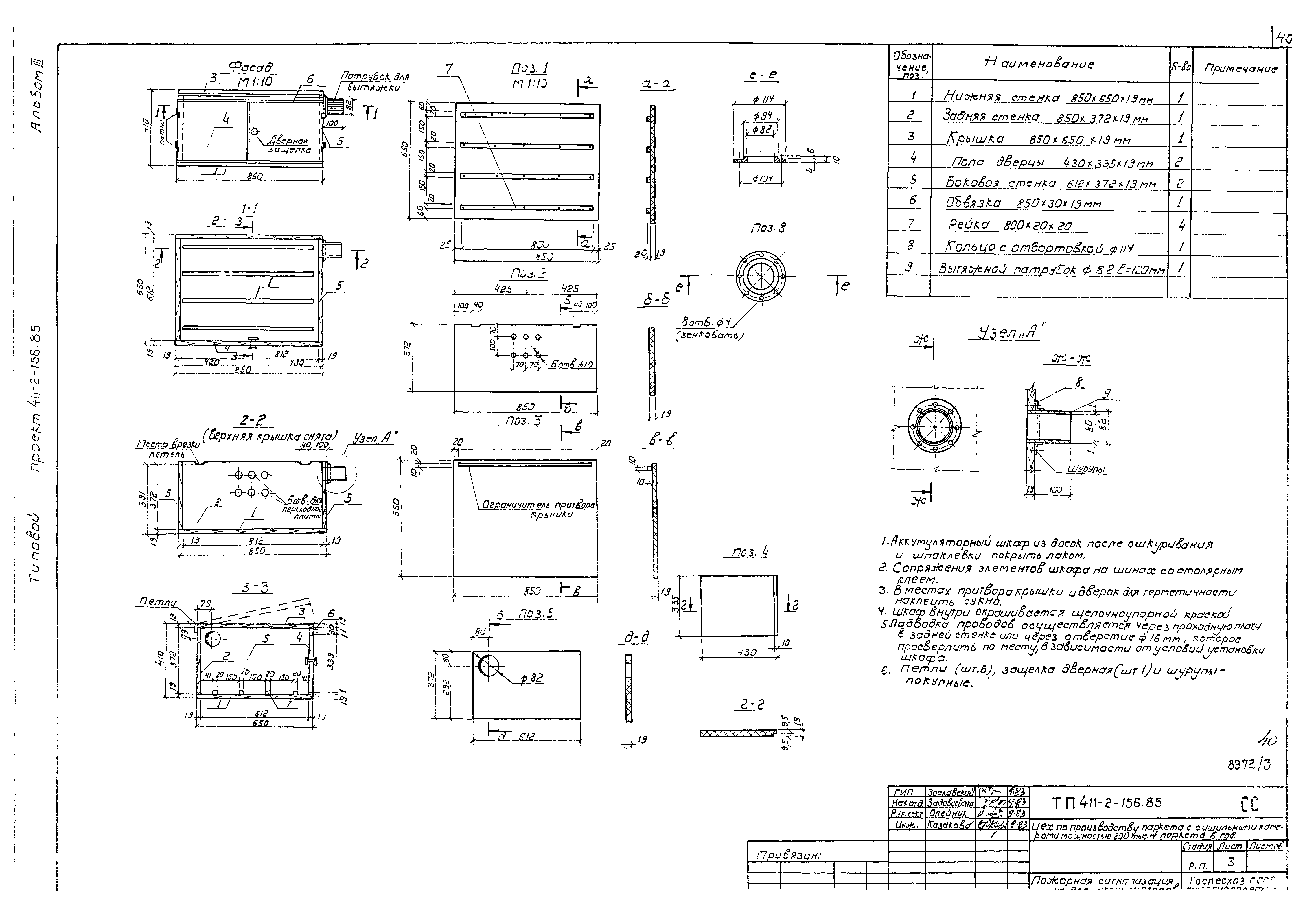
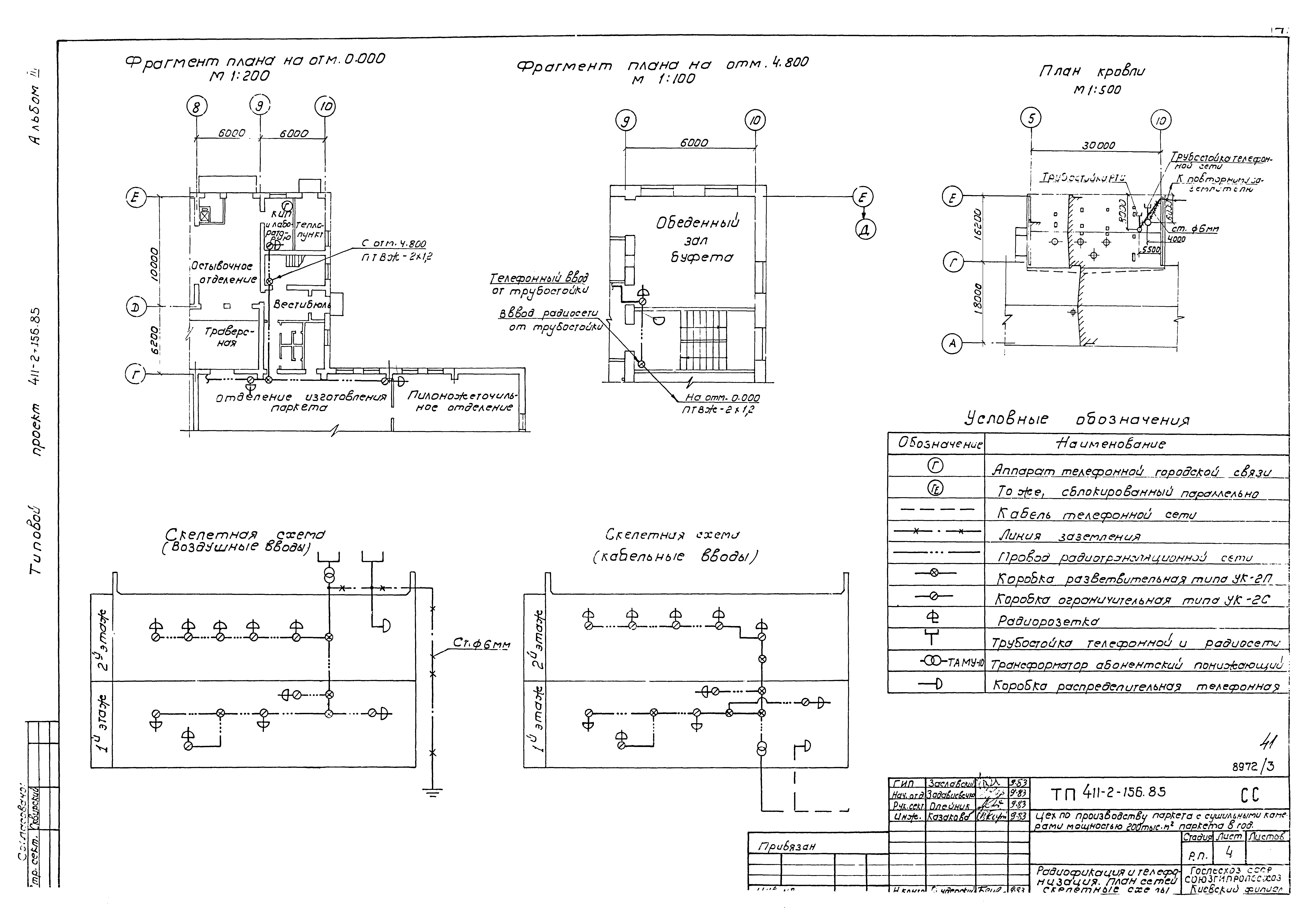
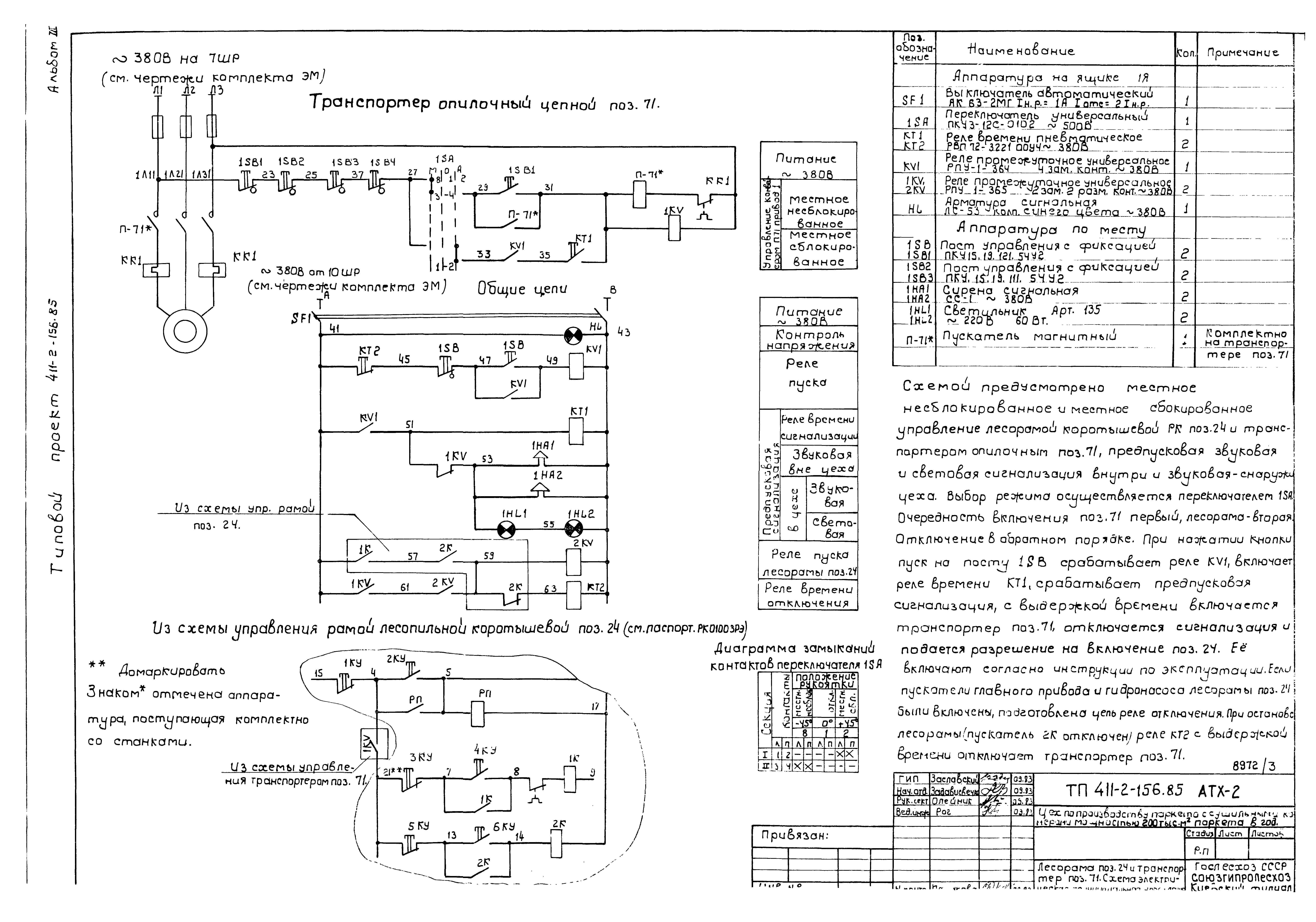
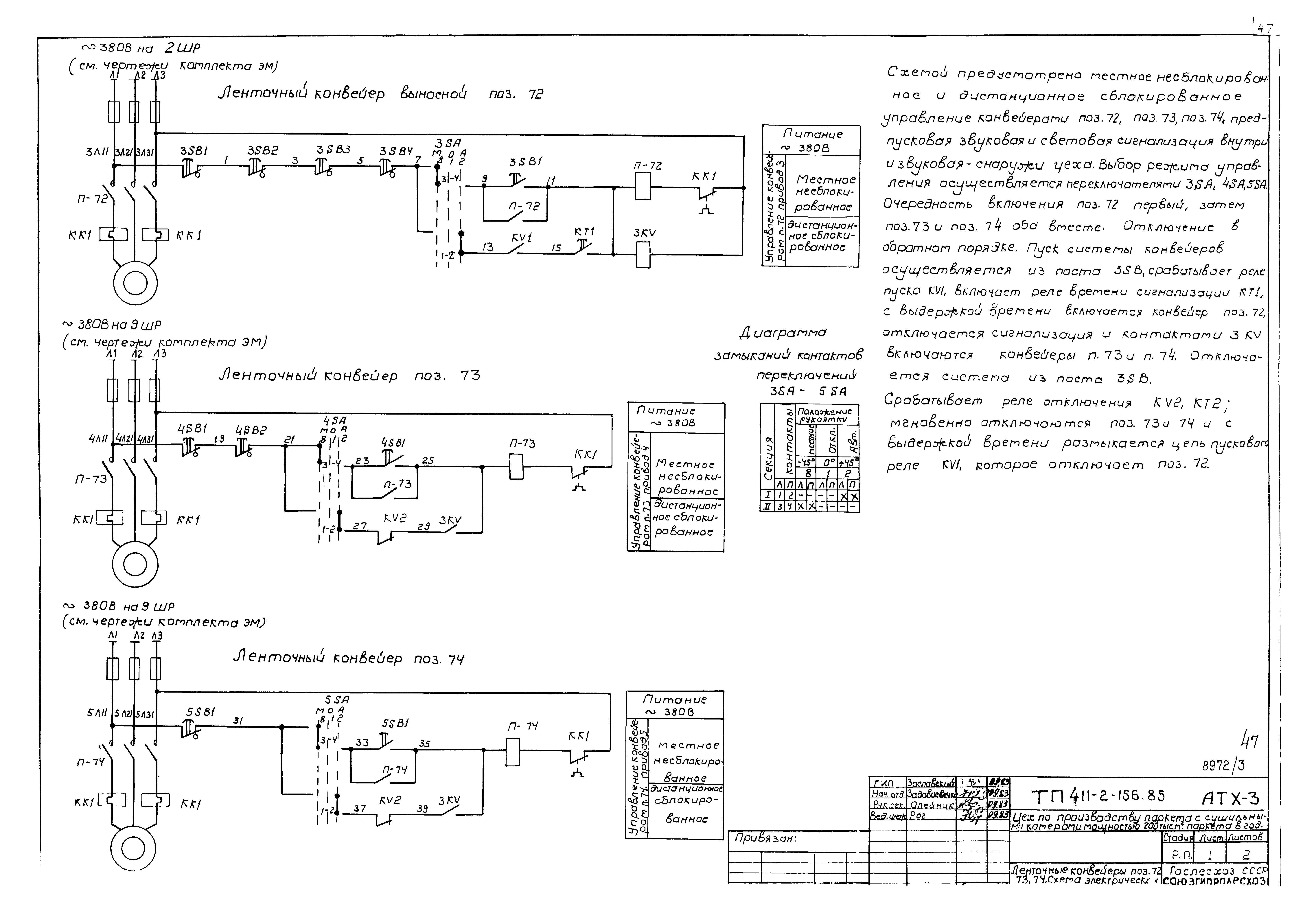
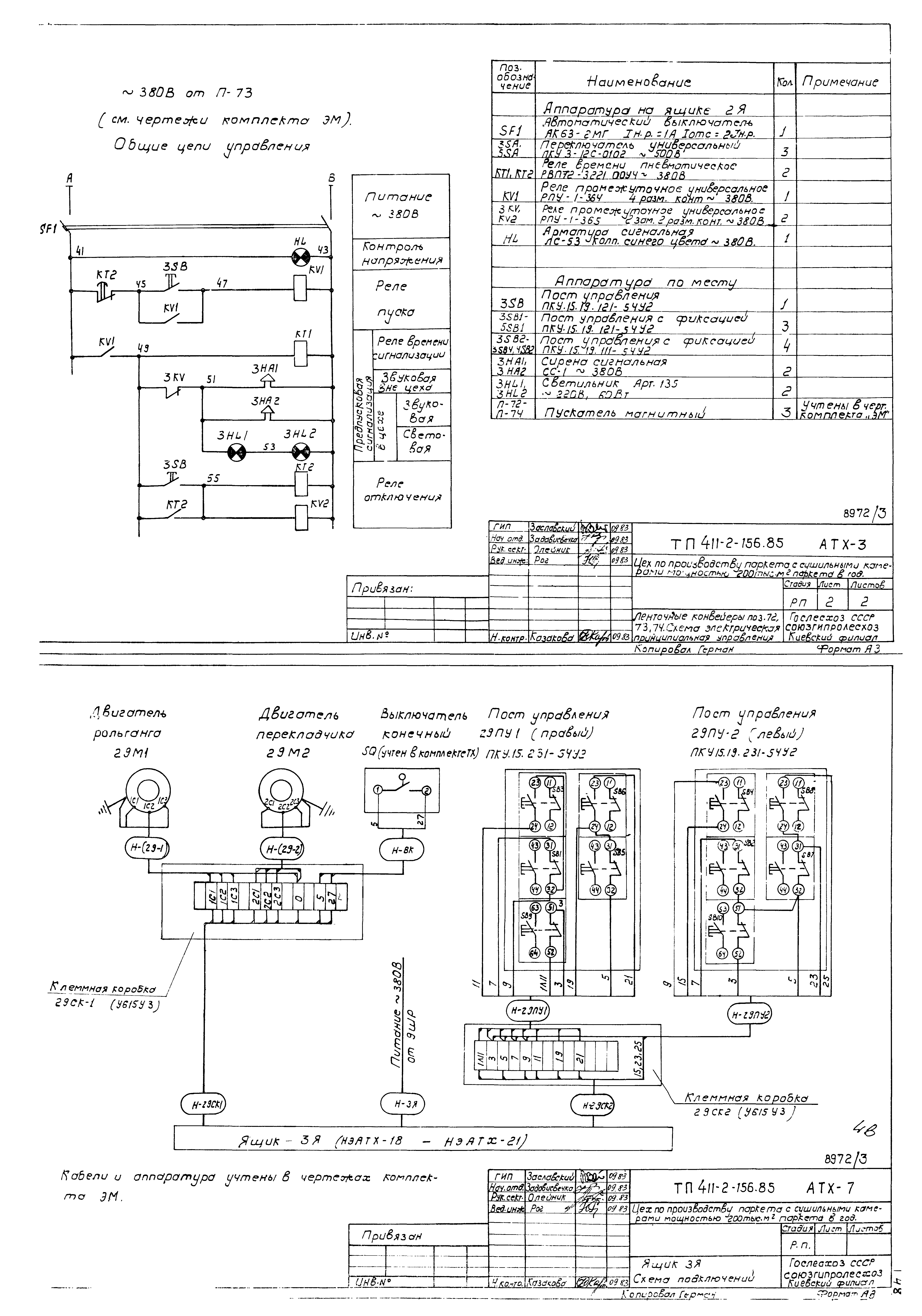
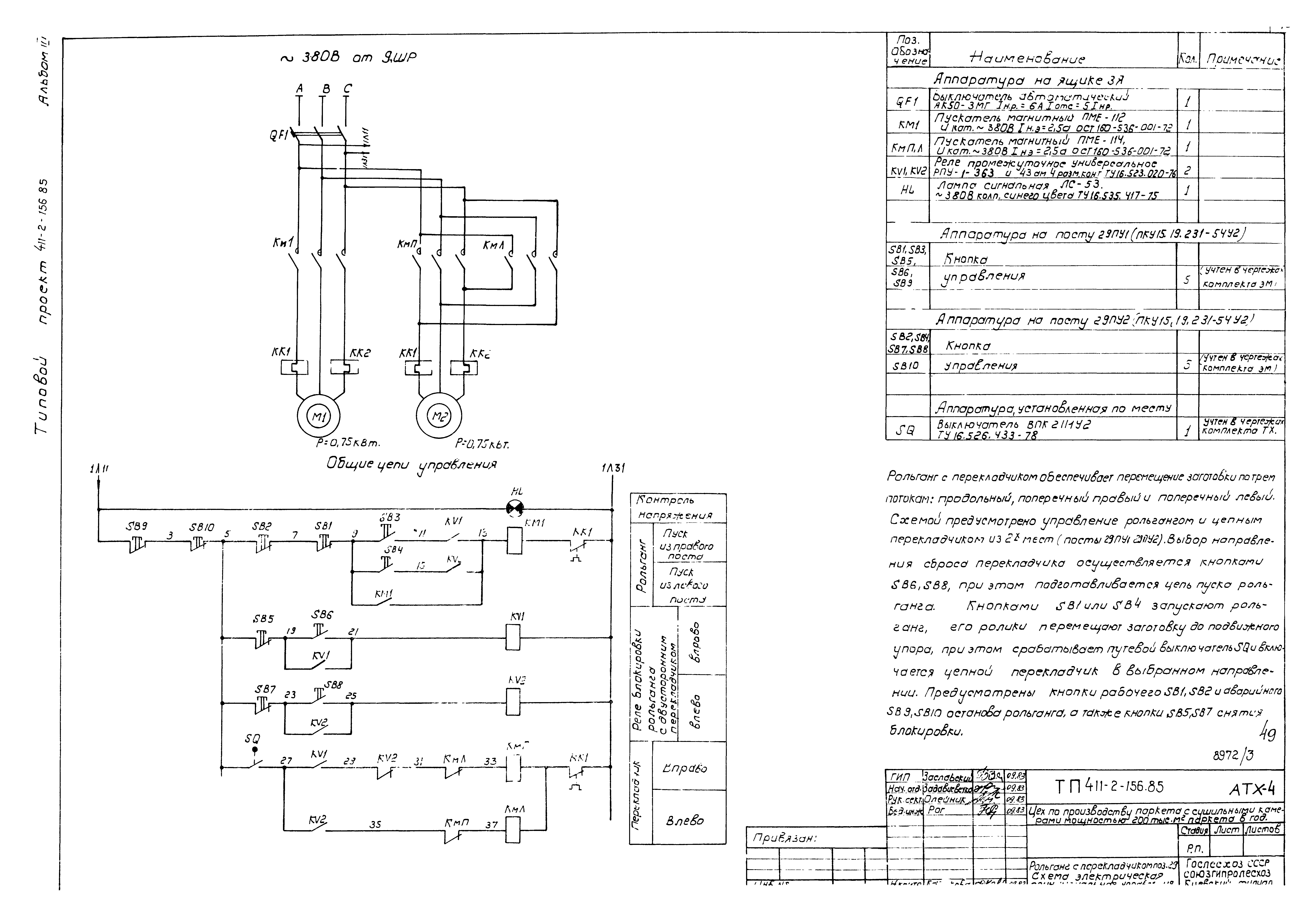
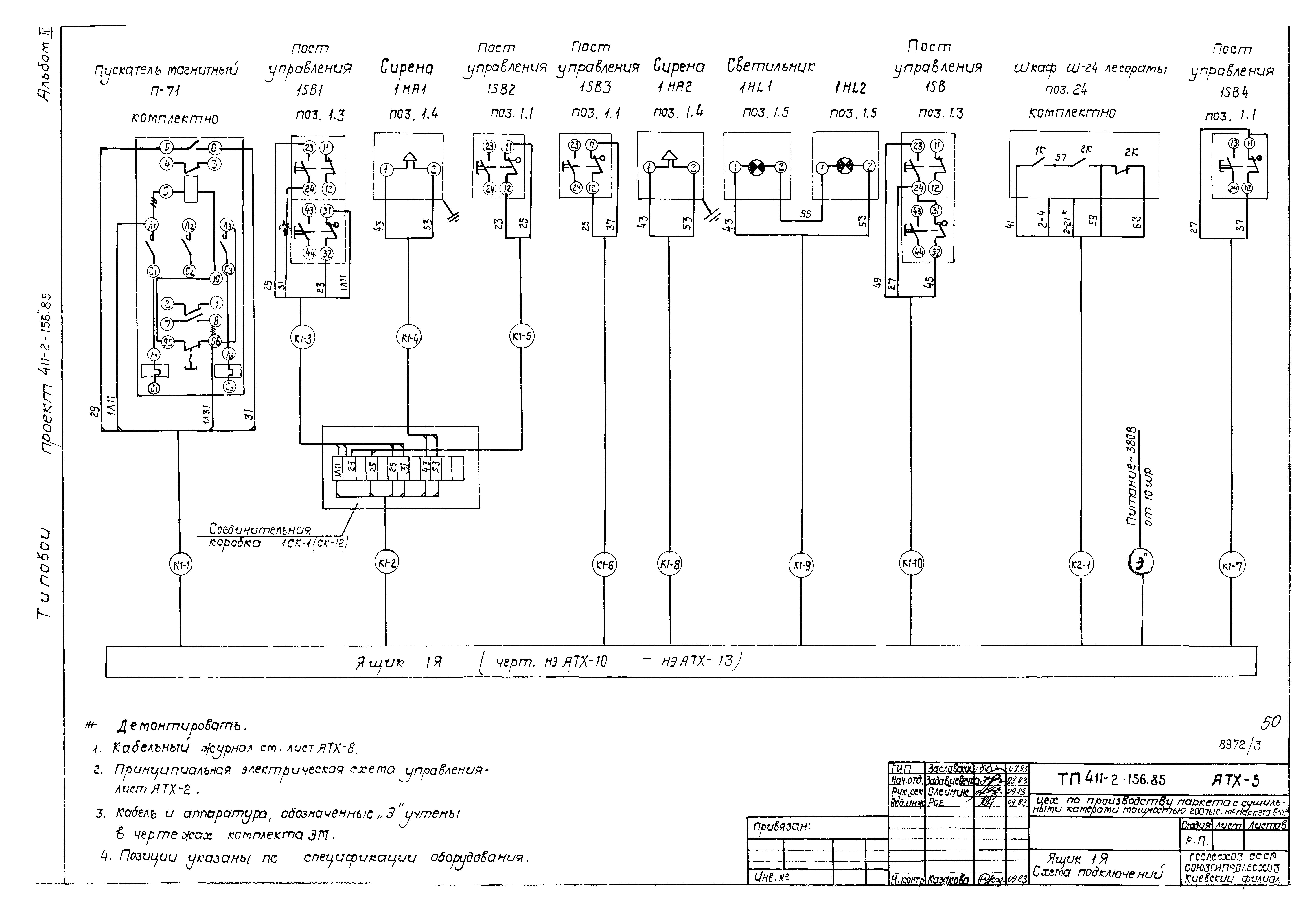
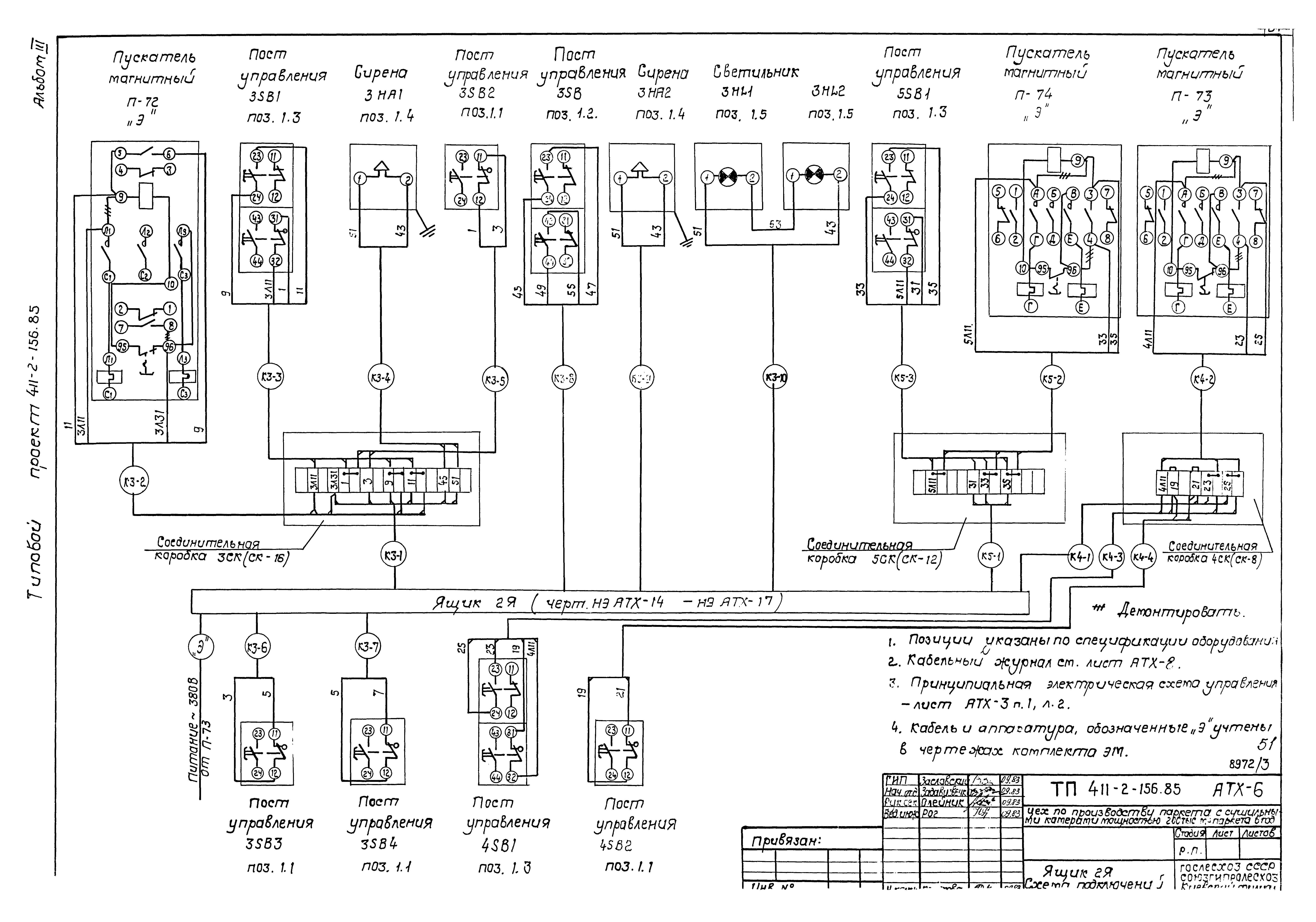
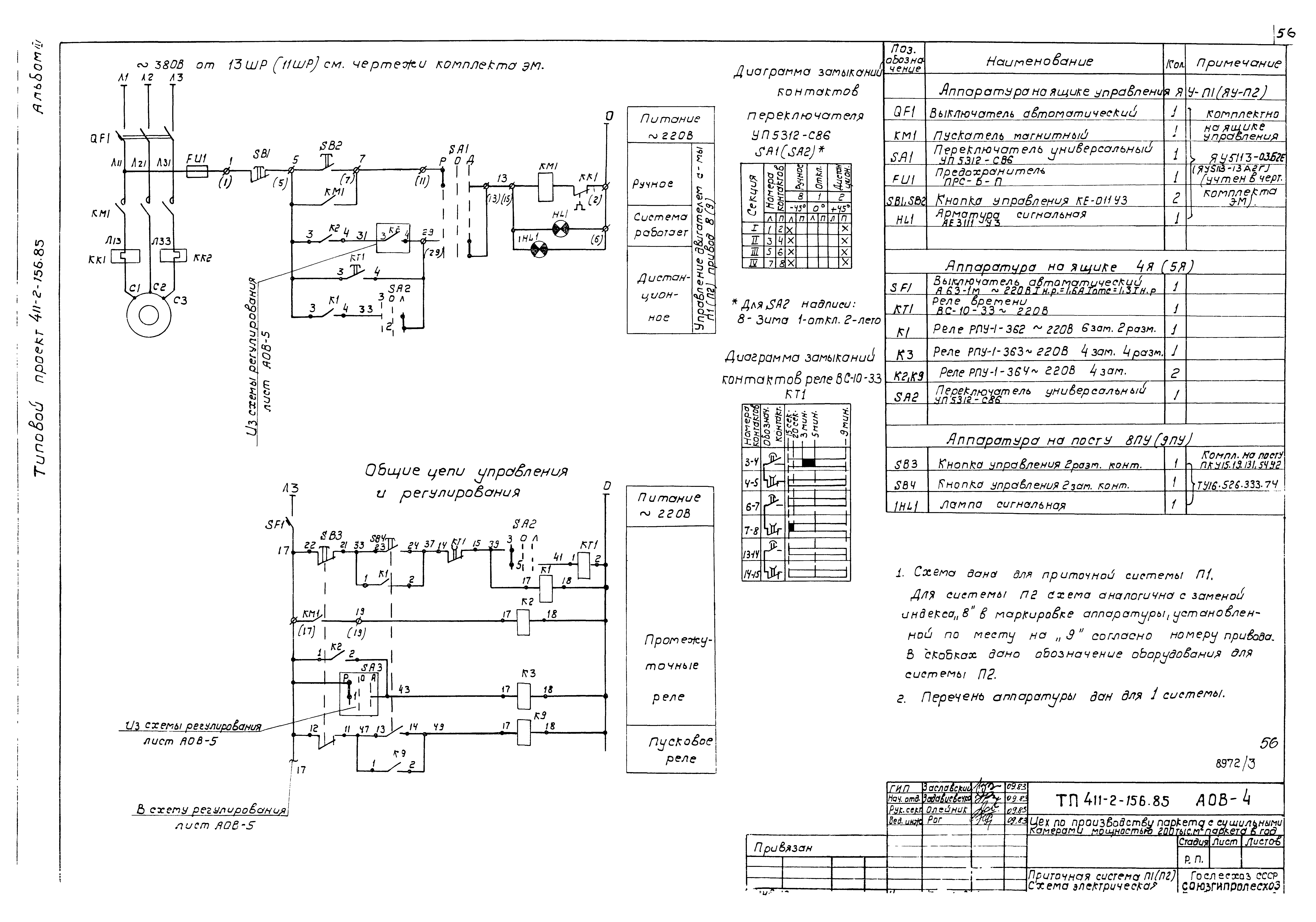
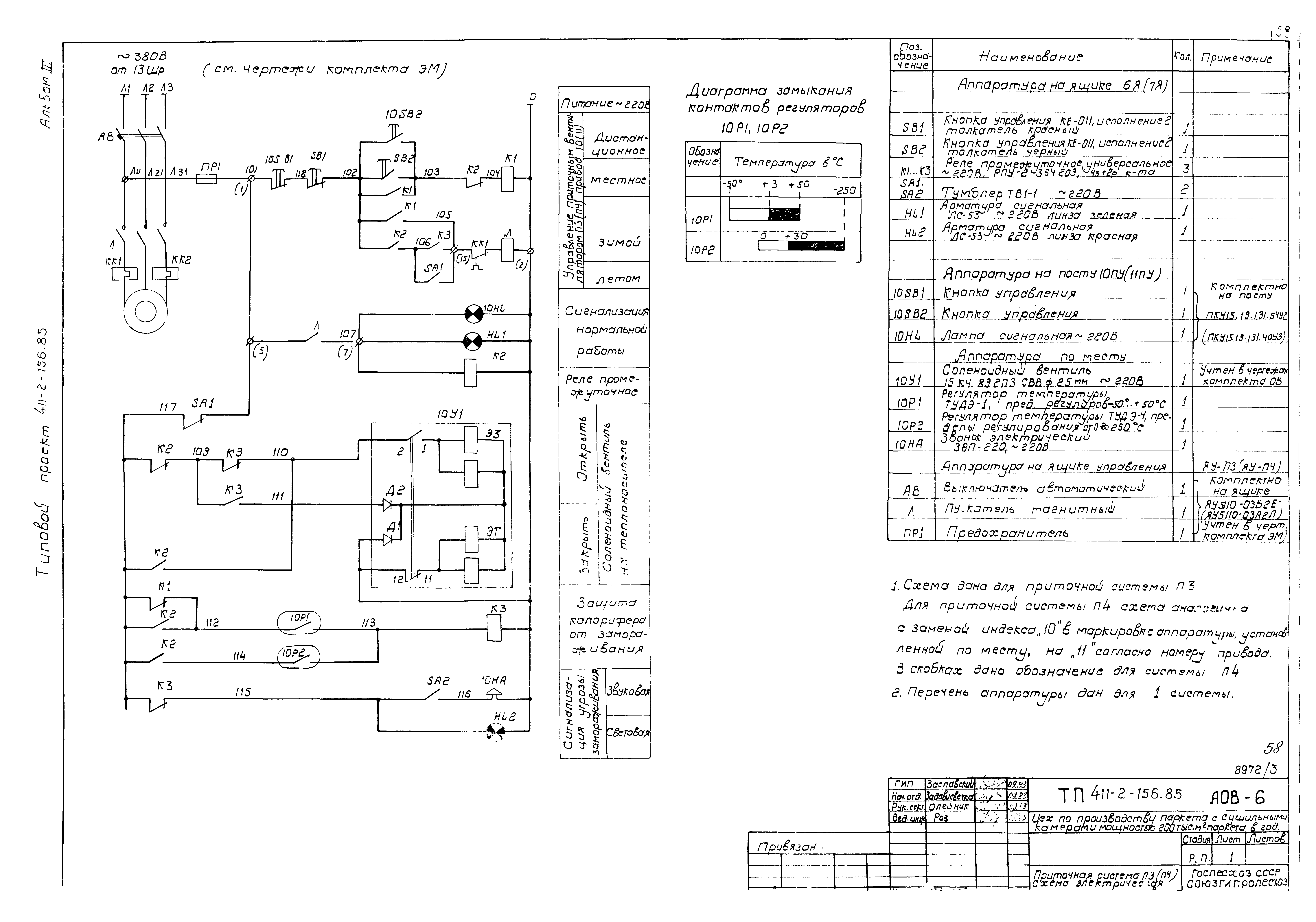
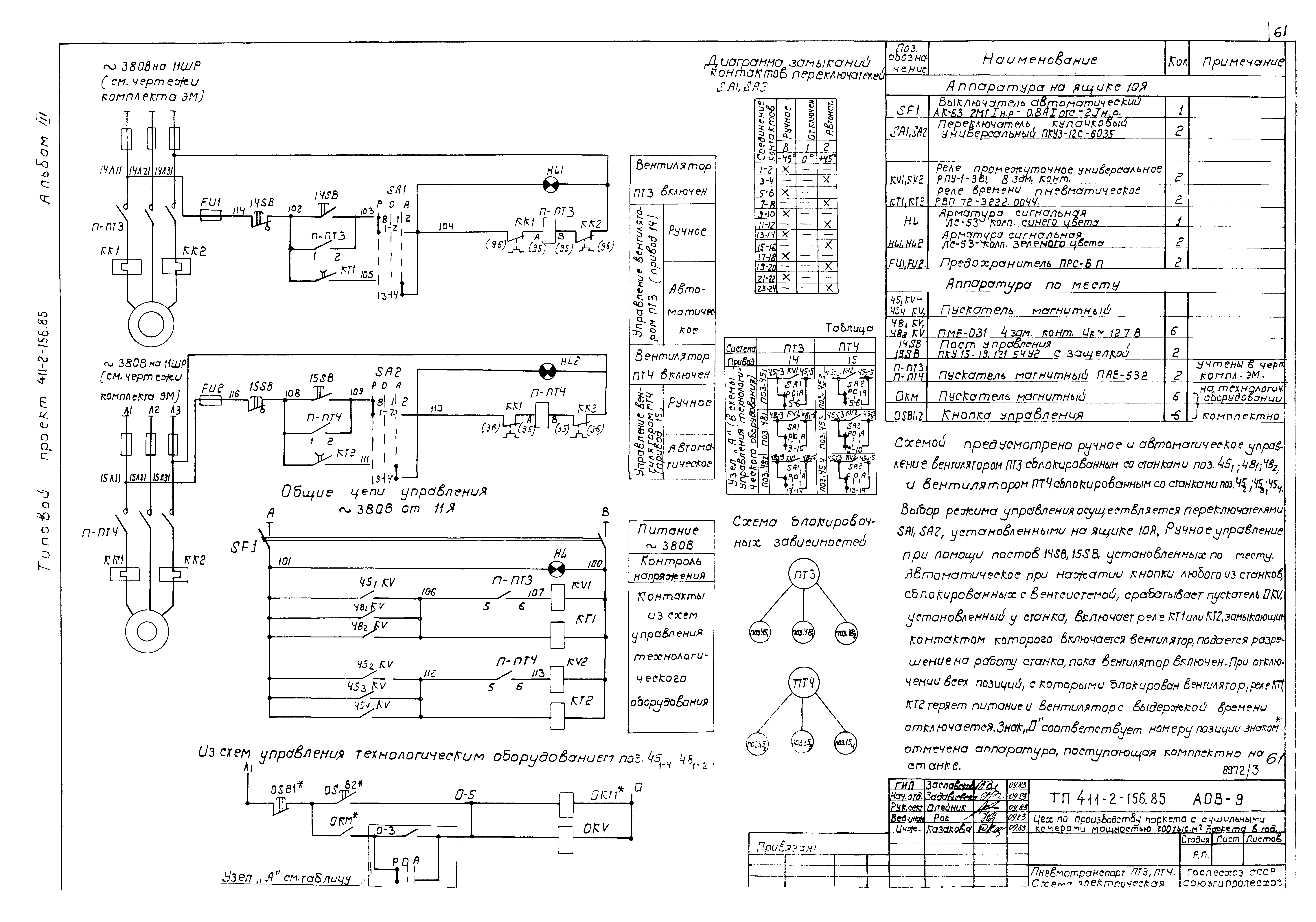
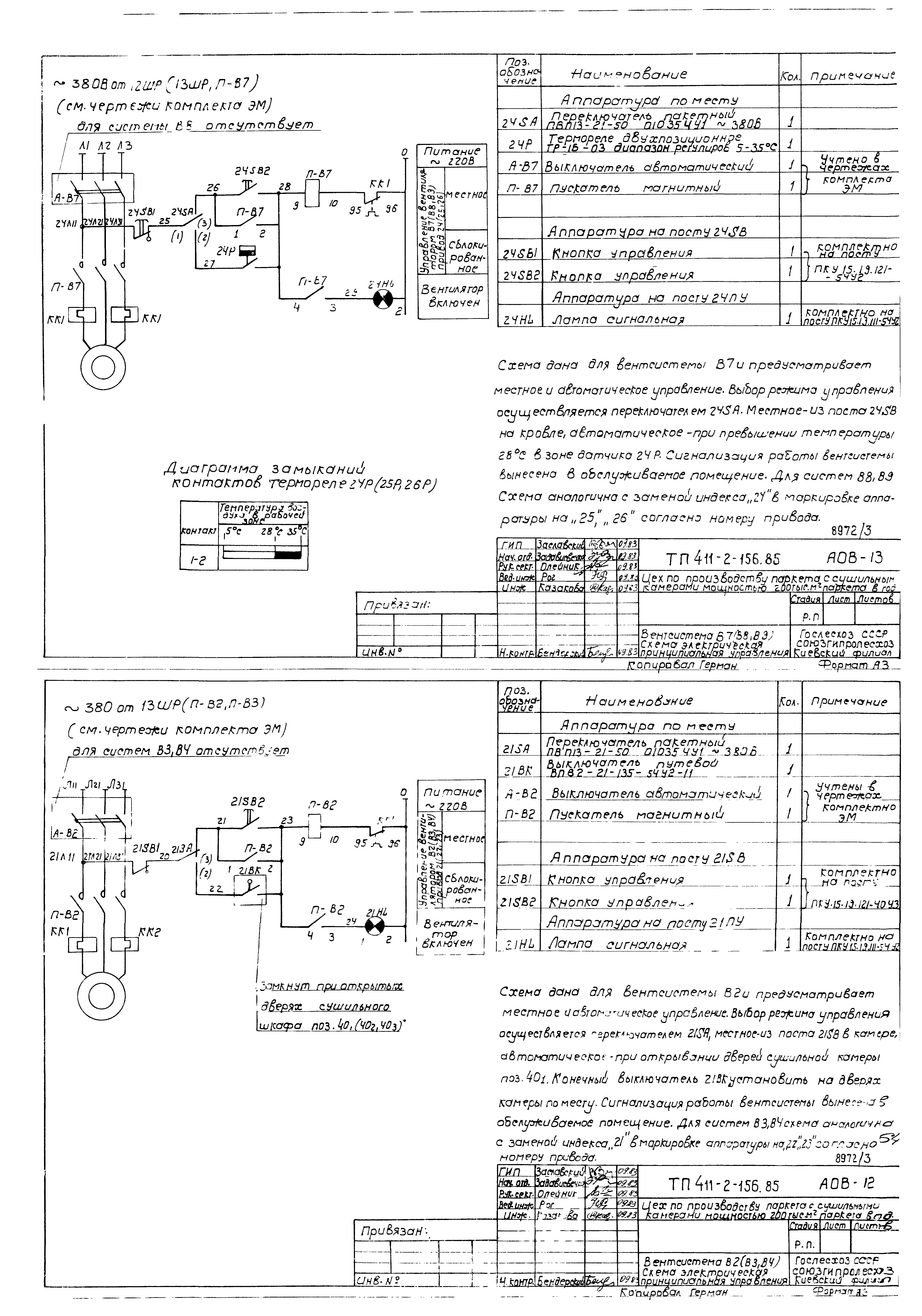
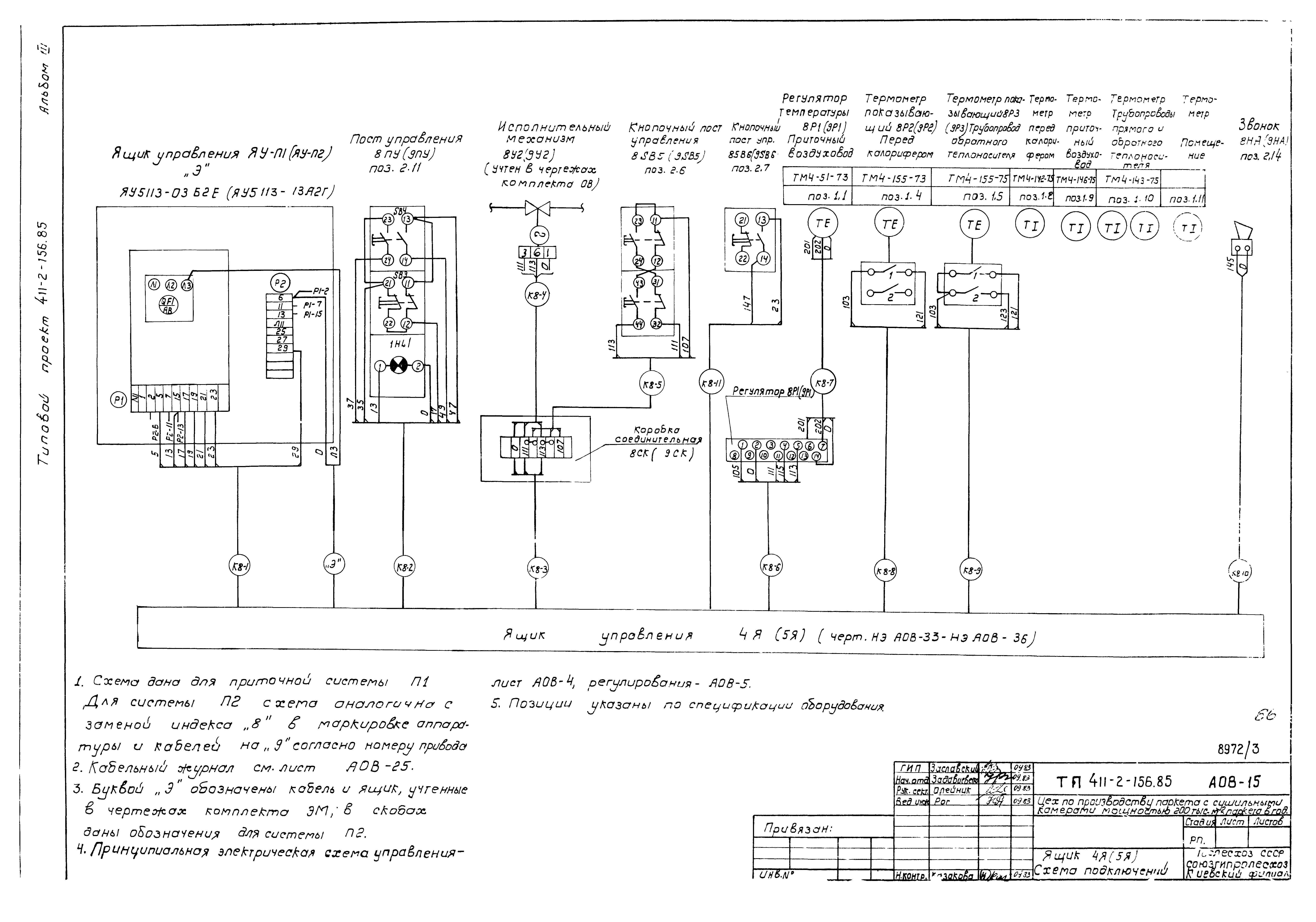
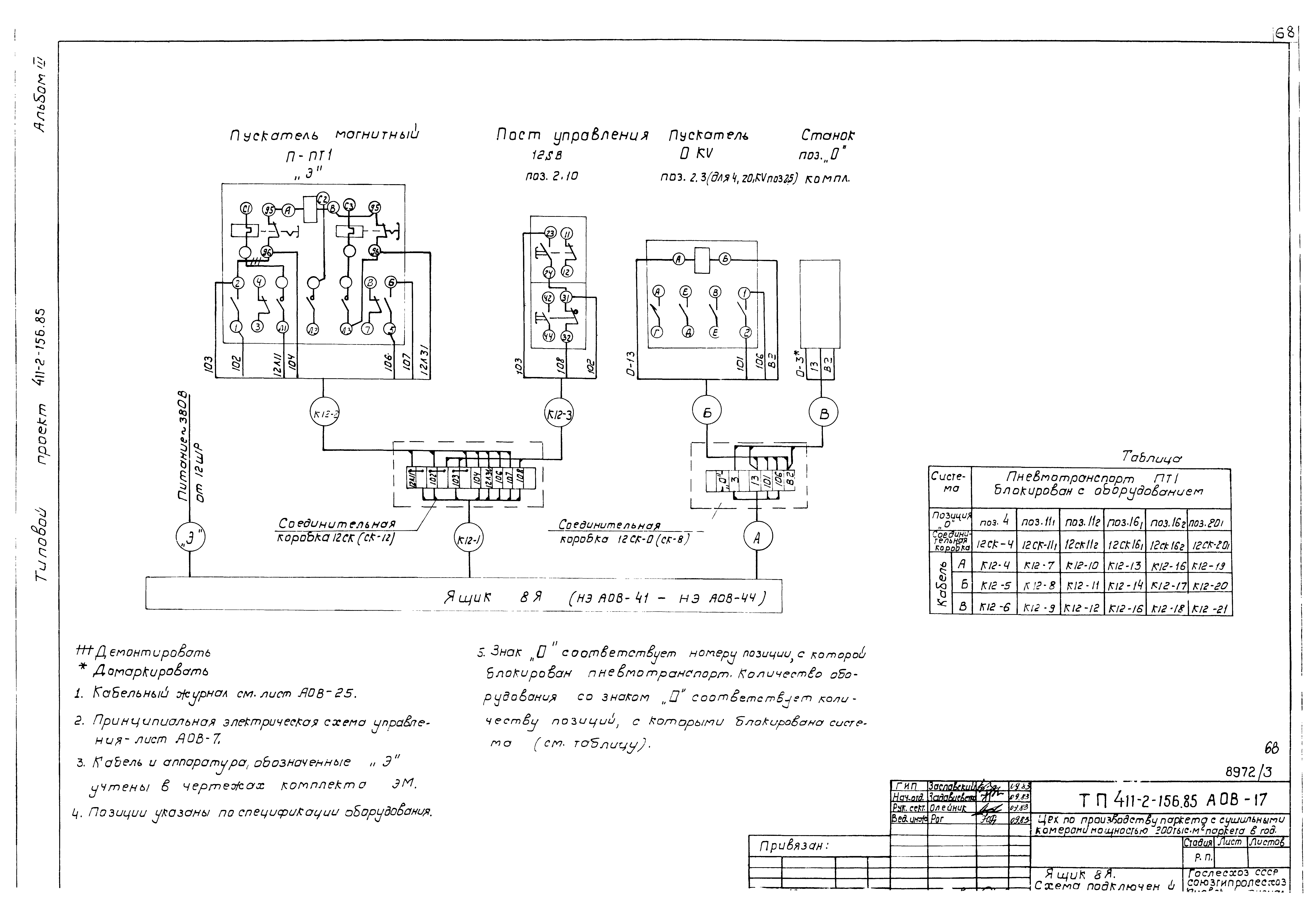
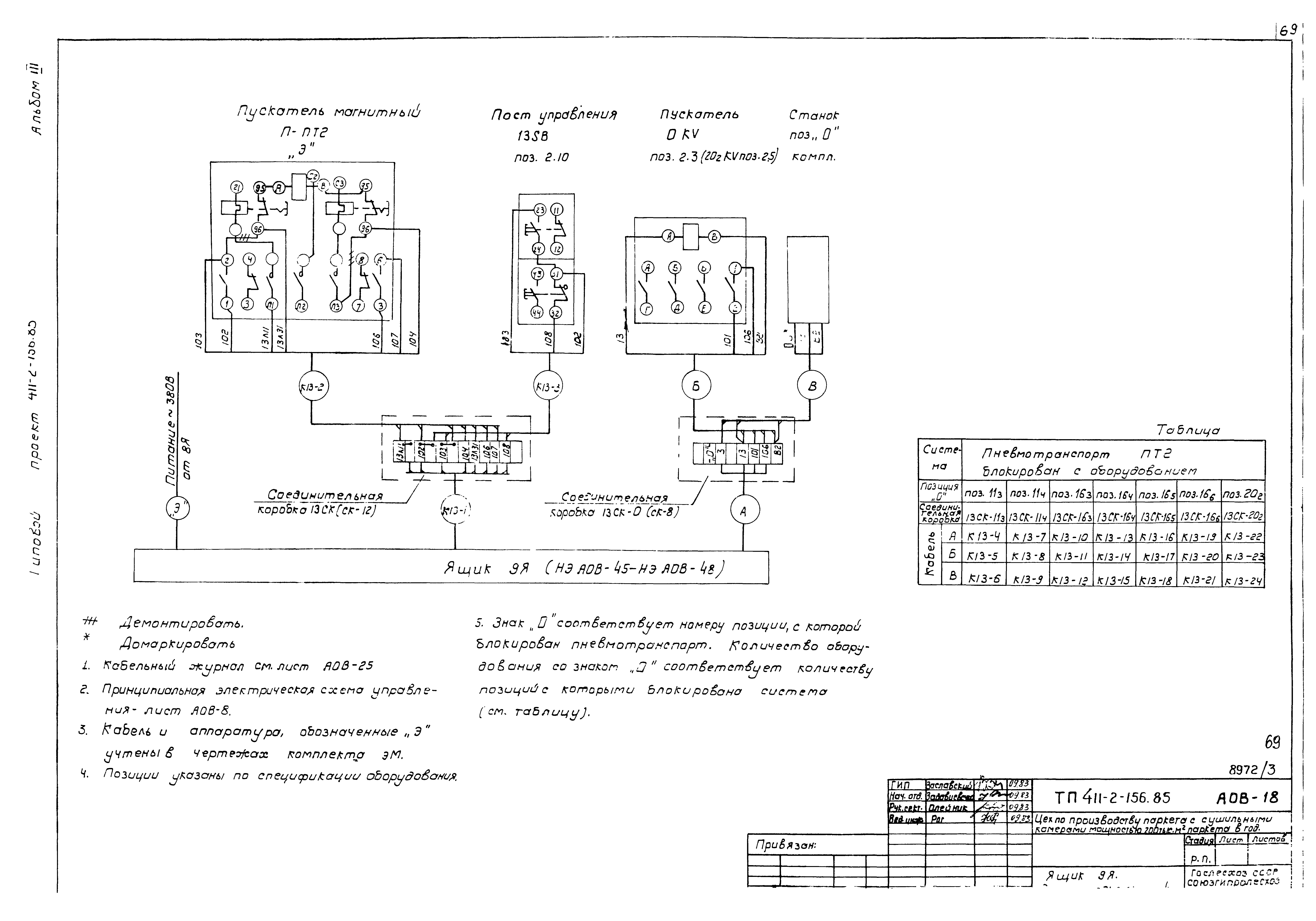
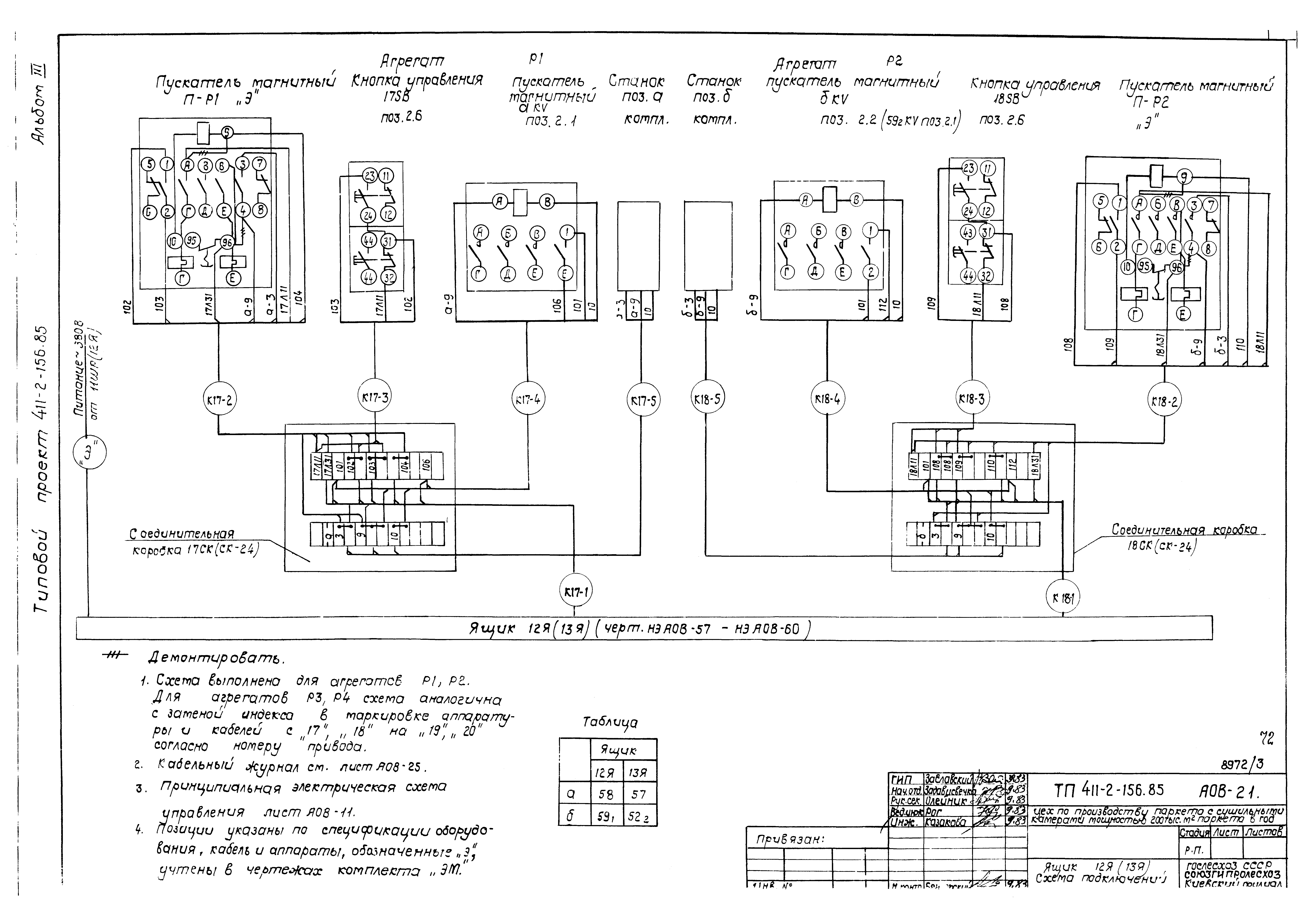
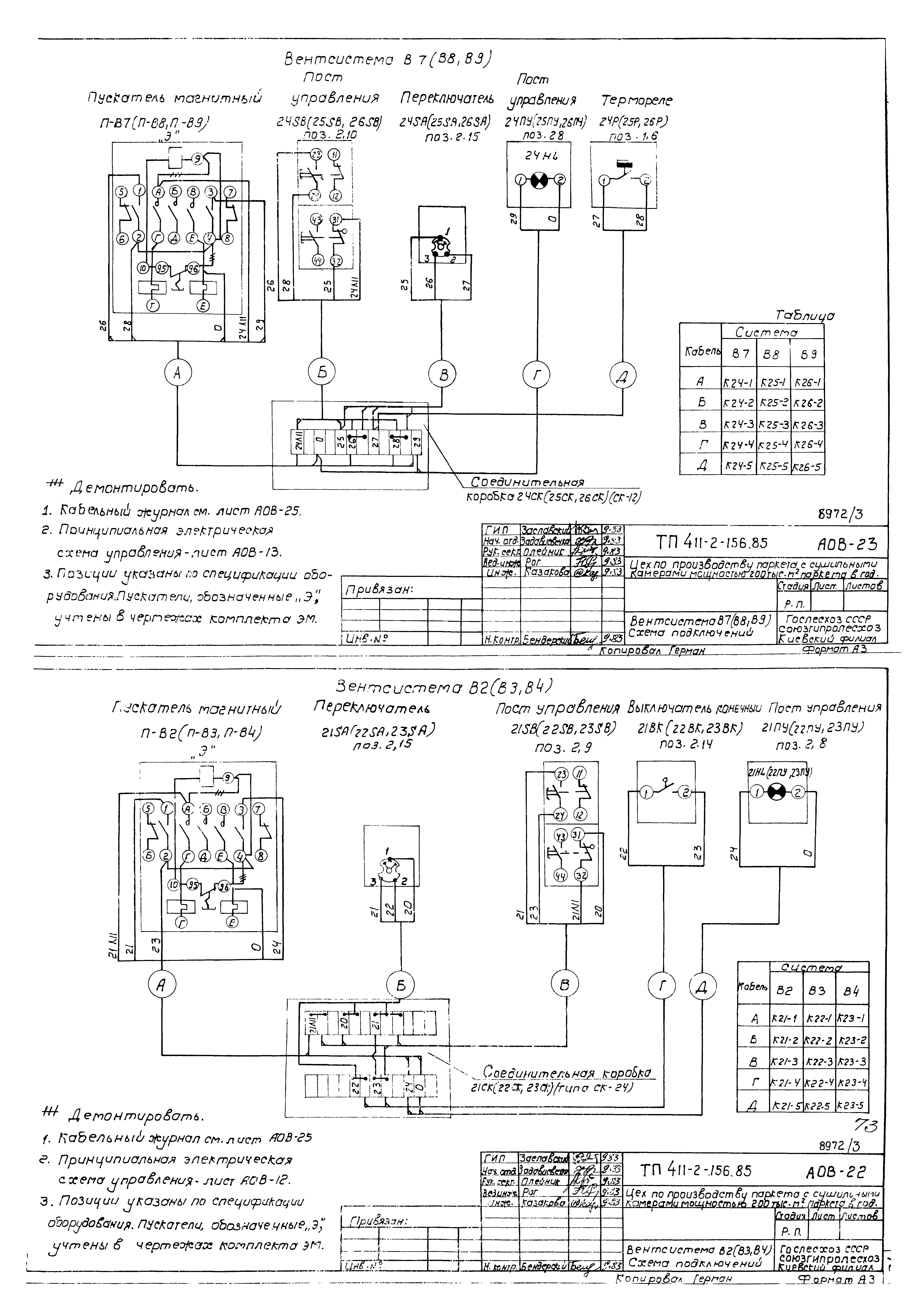
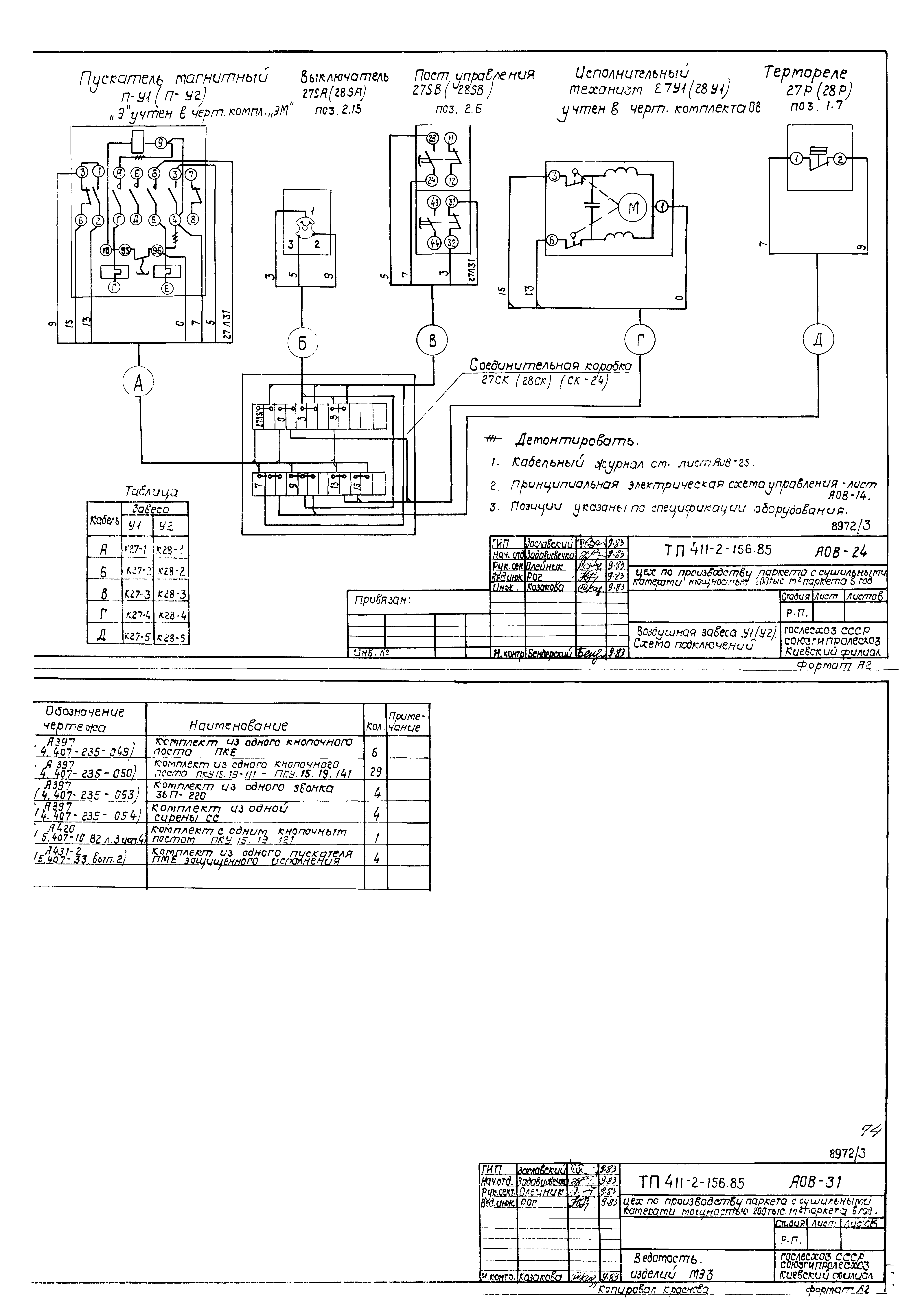
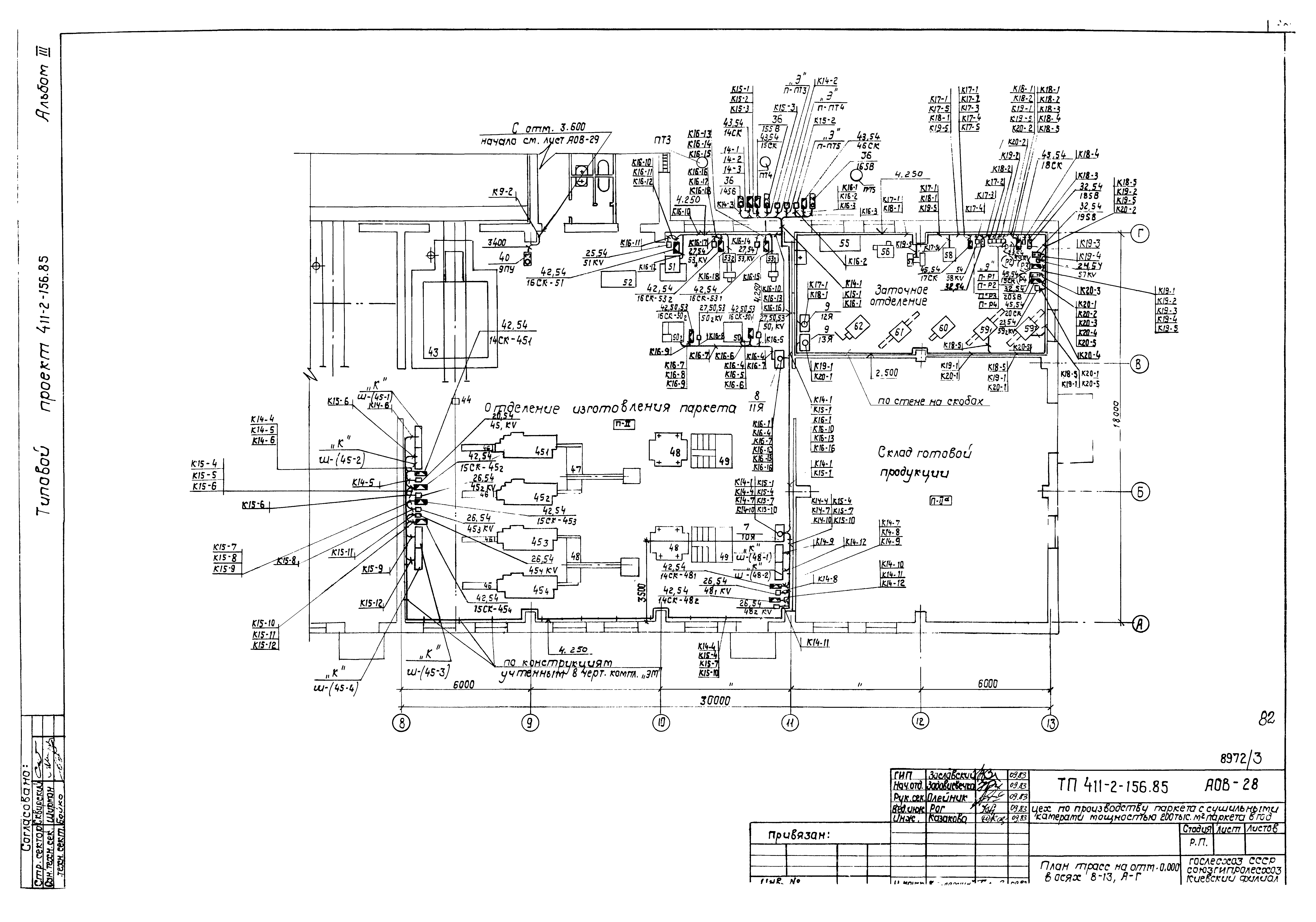
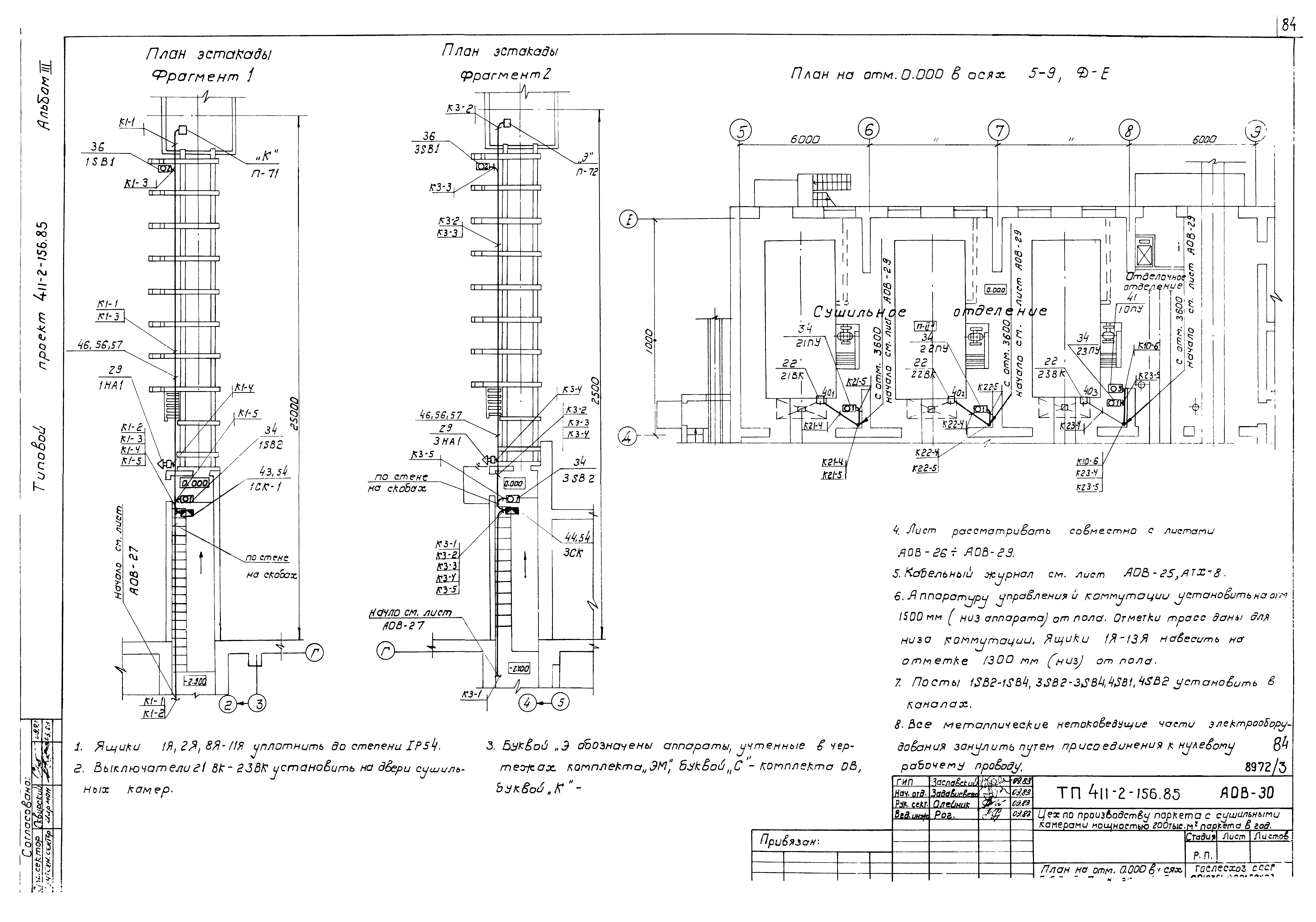
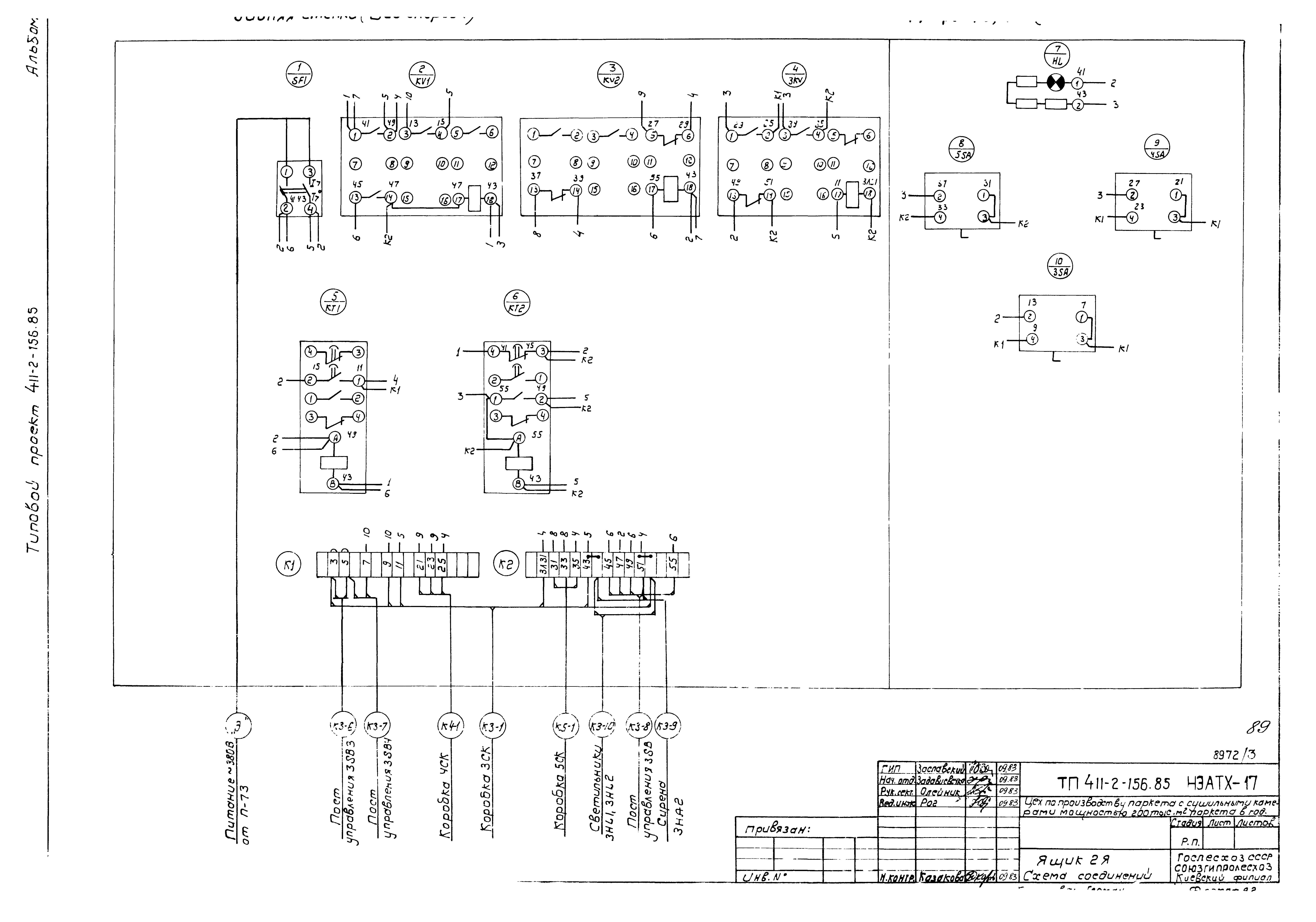
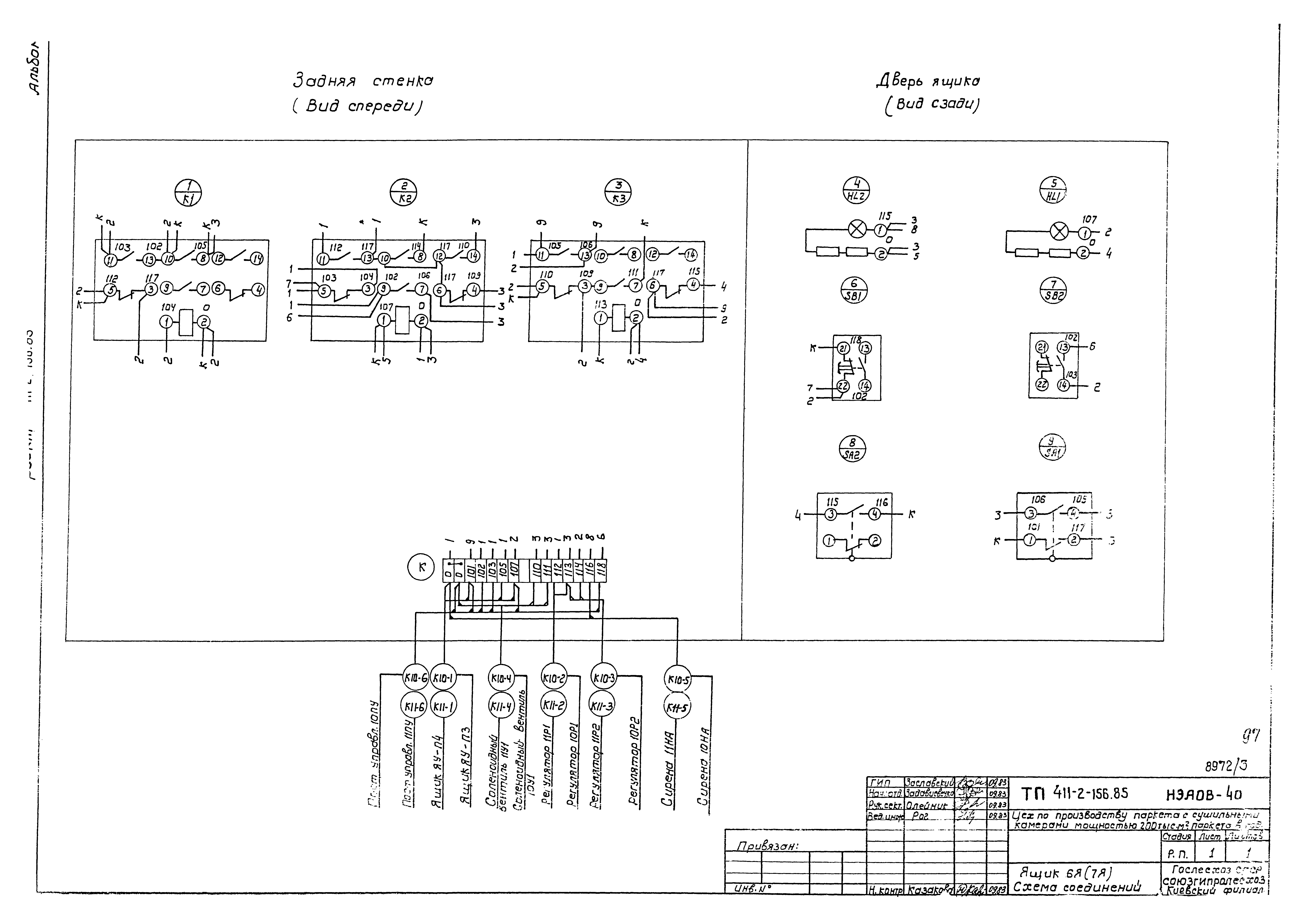
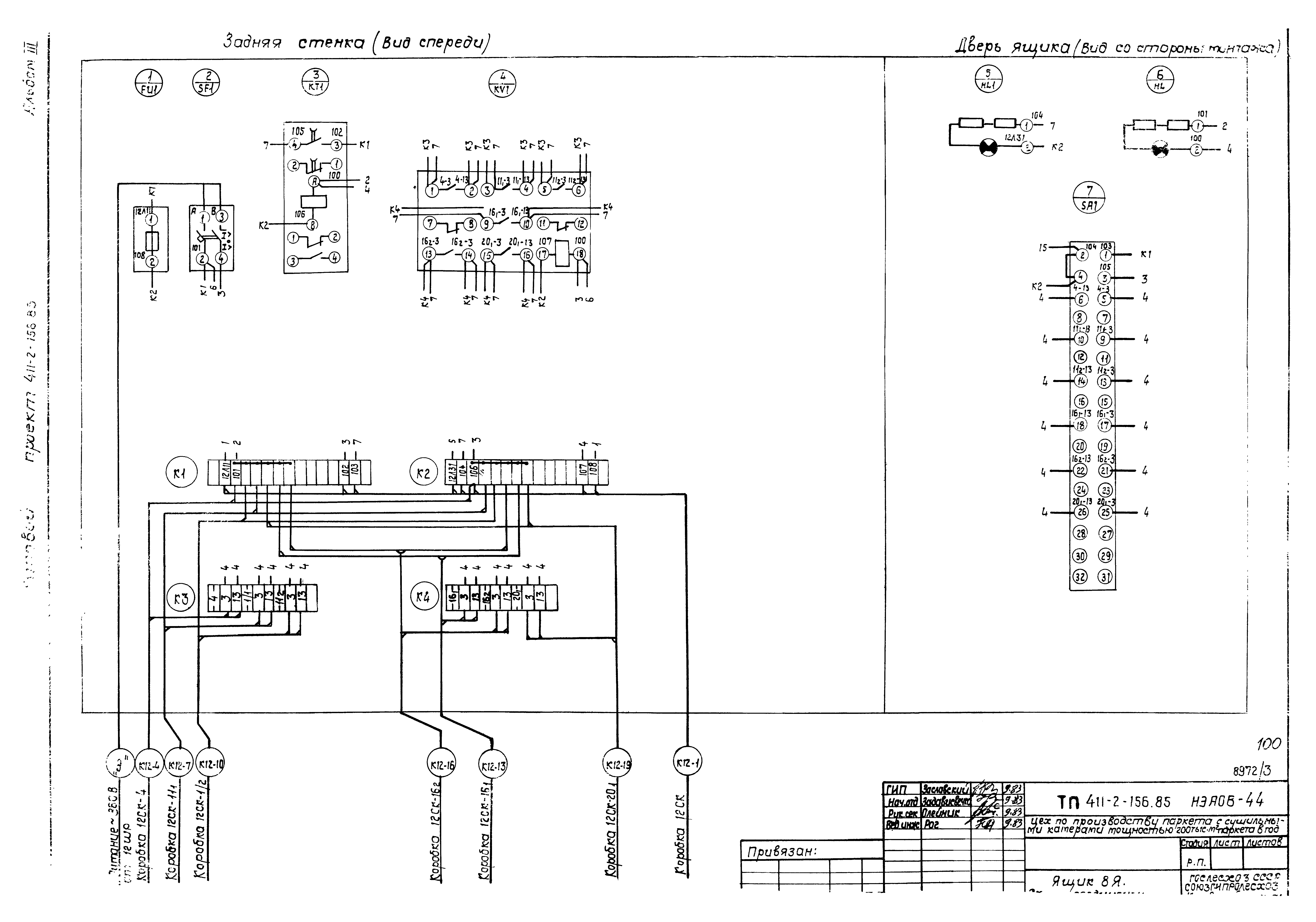
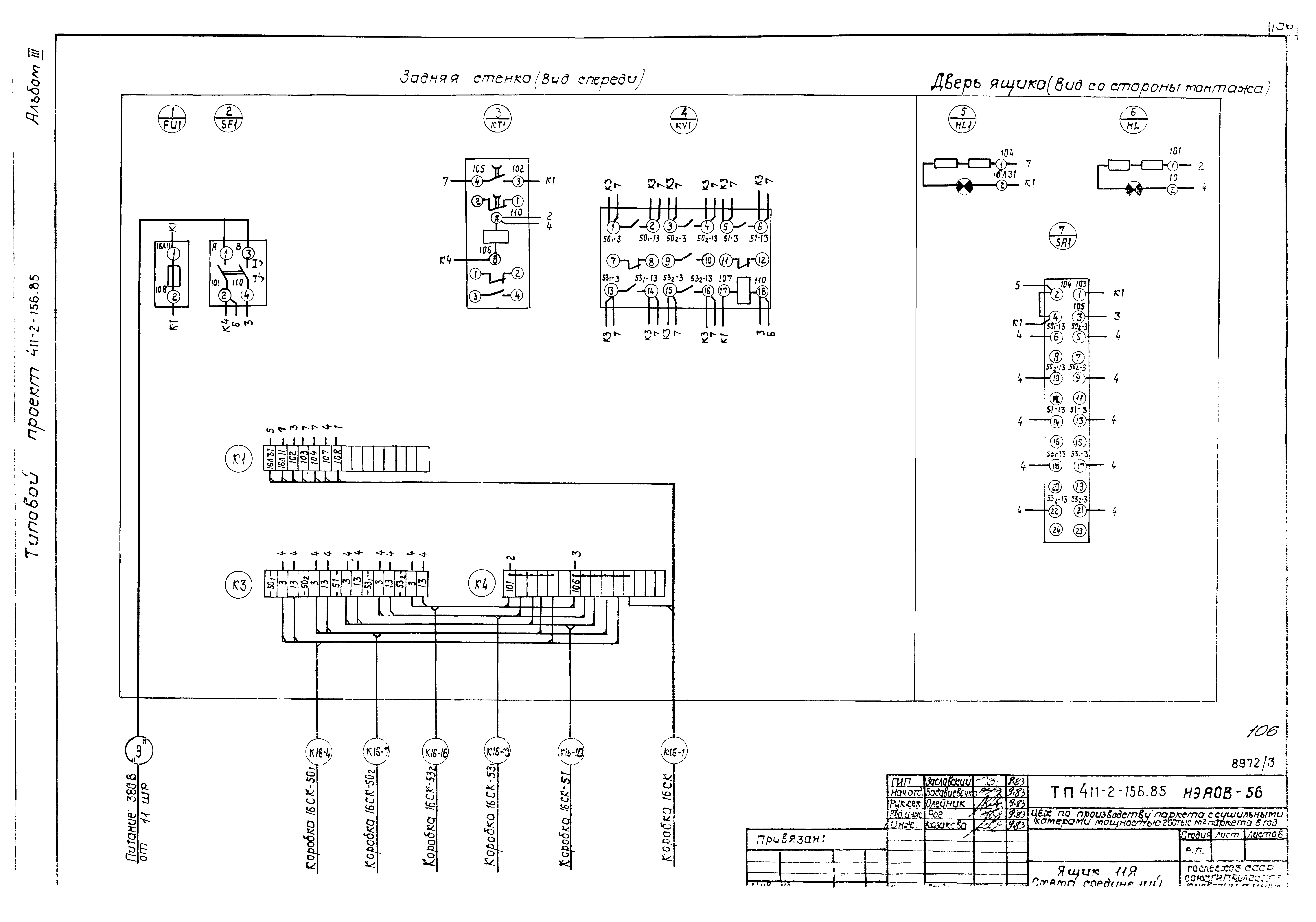
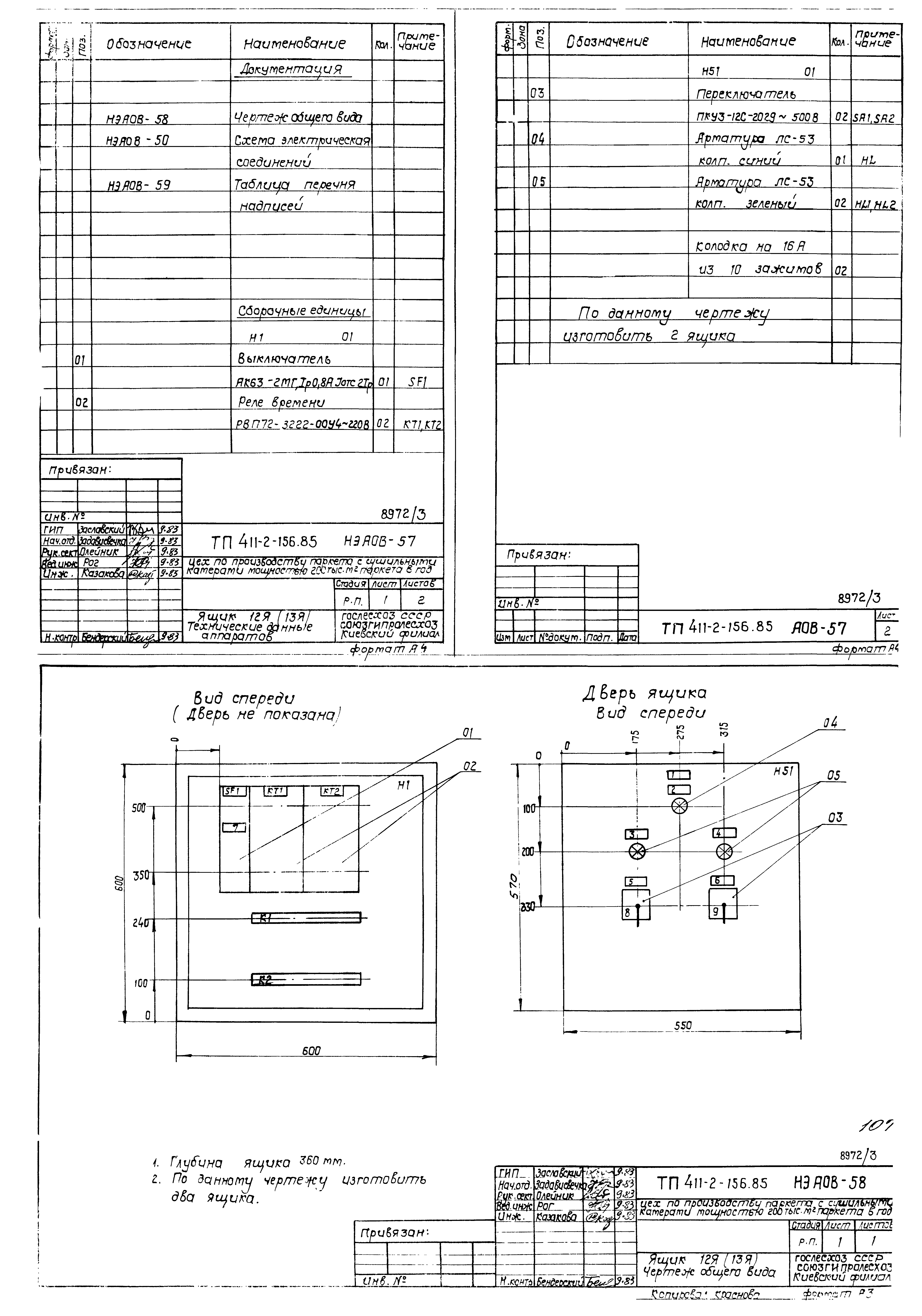
| Оглавление: | Содержание альбома Силовое электрооборудование Общие данные Расчет электрических нагрузок План на отм. 0.000 в осях 1 - 8; А - Г План на отм. 0.000 в осях 8 - 13; А - Г План на отм. 0.000 в осях 5 - 10; Г - Д. Молниезащита План на отм. 4.800 Принципиальная схема распределительной сети 1ШР Принципиальная схема распределительной сети 2ШР, 12ШР Принципиальная схема распределительной сети 4ШР, 5ШР Принципиальная схема распределительной сети 5ШР, 10ШР Принципиальная схема распределительной сети 7ШР Принципиальная схема распределительной сети 8ШР Принципиальная схема распределительной сети 9ШР Принципиальная схема распределительной сети 11ШР Принципиальная схема распределительной сети 13ШР Буфет. План. Принципиальная схема щита 14ШР Схемы электропроводок поз. 21, 1, 40, 24 Схемы электропроводок поз. 22, 29 Отключение вентсистем. Схема принципиальная управления. Схема подключений Отключение вентсистем. Сборка аппаратуры. Конструкция Принципиальная схема питающей сети Сводная спецификация Основные ведомости. Ведомость электромонтажных работ Основные ведомости. Ведомость изделий МЭЗ Электроосвещение Общие данные План на отм. 0.000 в осях 1 - 8; А - Г План на отм. 0.000 в осях 8 - 13; А - Г. План питающей сети План на отм. 0.000 в осях 5 - 10; Г - Е. Ведомость объемов электромонтажных работ План на отм. 3.600 и 4.800. Таблица щитков. Схема питающей сети Крепление кабеля и люминесцентных светильников на тросе Сводная спецификация Связь и сигнализация Общие данные Пожарная сигнализация. Скелетная схема Пожарная сигнализация. Шкаф для аккумуляторов Радиофикация и телефонизация. План сетей. Скелетные схемы План на отм. 0.000 План на отм. 4.800 Сводная спецификация Автоматизация технологии производства Общие данные Лесорама поз. 24 и транспортер поз. 71. Схема электрическая принципиальная управления Ленточные конвейеры поз. 72, 73, 74. Схема электрическая принципиальная управления Рольганг с перекладчиком. Схема электрическая принципиальная управления Ящик 1Я. Схема подключений Ящик 2Я. Схема подключений Ящик 3Я. Схема подключений Кабельный журнал Автоматизация отопления и вентиляции Общие данные Приточная система П1(П2). Схема автоматизации технологическая Приточная система П3(П4). Схема автоматизации технологическая Приточная система П1(П2). Схема электрическая принципиальная управления Приточная система П1(П2). Схема электрическая принципиальная регулирования Приточная система П3(П4). Схема электрическая принципиальная управления Пневмотранспорт ПТ1. Схема электрическая принципиальная управления Пневмотранспорт ПТ2. Схема электрическая принципиальная управления Пневмотранспорт ПТ3, ПТ4. Схема электрическая принципиальная управления Пневмотранспорт ПТ5. Схема электрическая принципиальная управления Агрегаты Р1, Р2 (Р3, Р4). Схема электрическая принципиальная управления Вентсистема В2 (В3, В4). Схема электрическая принципиальная управления Вентсистема В7 (В8, В9). Схема электрическая принципиальная управления Воздушная завеса У1(У2). Схема электрическая принципиальная управления Ящик 4Я(5Я). Схема подключений Ящик 6Я(7Я). Схема подключений Ящик 8Я. Схема подключений Ящик 9Я. Схема подключений Ящик 10Я. Схема подключений Ящик 11Я. Схема подключений Ящик 12Я(13Я). Схема подключений Вентсистема В2 (В3, В4). Схема подключений Вентсистема В7 (В8, В9). Схема подключений Воздушная завеса У1(У2). Схема подключений Кабельный журнал Сводная спецификация План трасс на отм. 0.000 в осях 1 - 8; А - Г План трасс на отм. 0.000 в осях 8 - 13; А - Г Приточные камеры П1 - П4. План трасс План на отм. 0.000 в осях 5 - 9; Д - Е. План эстакад Ведомость изделий МЭЗ Задание заводу-изготовителю Перечень чертежей, выдаваемых заводу-изготовителю Ящик 1Я. Технические данные аппаратов Ящик 1Я. Чертеж общего вида Ящик 1Я. Таблица перечня надписей Ящик 1Я. Схема соединений Ящик 2Я. Технические данные аппаратов Ящик 2Я. Чертеж общего вида Ящик 2Я. Таблица перечня надписей Ящик 2Я. Схема соединений Ящик 3Я. Технические данные аппаратов Ящик 3Я. Чертеж общего вида Ящик 3Я. Таблица перечня надписей Ящик 3Я. Схема соединений Перечень чертежей, выдаваемых заводу-изготовителю Ящик 4Я(5Я). Технические данные аппаратов Ящик 4Я(5Я). Чертеж общего вида Ящик 4Я(5Я). Таблица перечня надписей Ящик 4Я(5Я). Схема соединений Ящик 6Я(7Я). Технические данные аппаратов Ящик 6Я(7Я). Чертеж общего вида Ящик 6Я(7Я). Таблица перечня надписей Ящик 6Я(7Я). Схема соединений Ящик 8Я. Технические данные аппаратов Ящик 8Я. Чертеж общего вида Ящик 8Я. Таблица перечня надписей Ящик 8Я. Схема соединений Ящик 9Я. Технические данные аппаратов Ящик 9Я. Чертеж общего вида Ящик 9Я. Таблица перечня надписей Ящик 9Я. Схема соединений Ящик 10Я. Технические данные аппаратов Ящик 10Я. Чертеж общего вида Ящик 10Я. Таблица перечня надписей Ящик 10Я. Схема соединений Ящик 11Я. Технические данные аппаратов Ящик 11Я. Чертеж общего вида Ящик 11Я. Таблица перечня надписей Ящик 11Я. Схема соединений Ящик 12Я(13Я). Технические данные аппаратов Ящик 12Я(13Я). Чертеж общего вида Ящик 12Я(13Я). Таблица перечня надписей Ящик 12Я(13Я). Схема соединений |
| Разработан: | Киевский филиал Союзгипролесхоз |
| Утверждён: | 18.06.1984 Гослесхоз СССР (USSR Gosleskhoz 8) |













































































































