Скачать Типовой проект 411-2-190.88 Альбом 2. Часть 2. Конструкции металлические. Конструкции деревянныеДата актуализации: 01.01.2021
|
| Обозначение: | Типовой проект 411-2-190.88 |
| Обозначение англ: | 411-2-190.88 |
| Статус: | не определен законодательством |
| Название рус.: | Альбом 2. Часть 2. Конструкции металлические. Конструкции деревянные |
| Дата добавления в базу: | 01.10.2014 |
| Дата актуализации: | 01.01.2021 |
| Дата введения: | 25.11.1988 |
| Дата окончания срока действия: | 30.06.2003 |
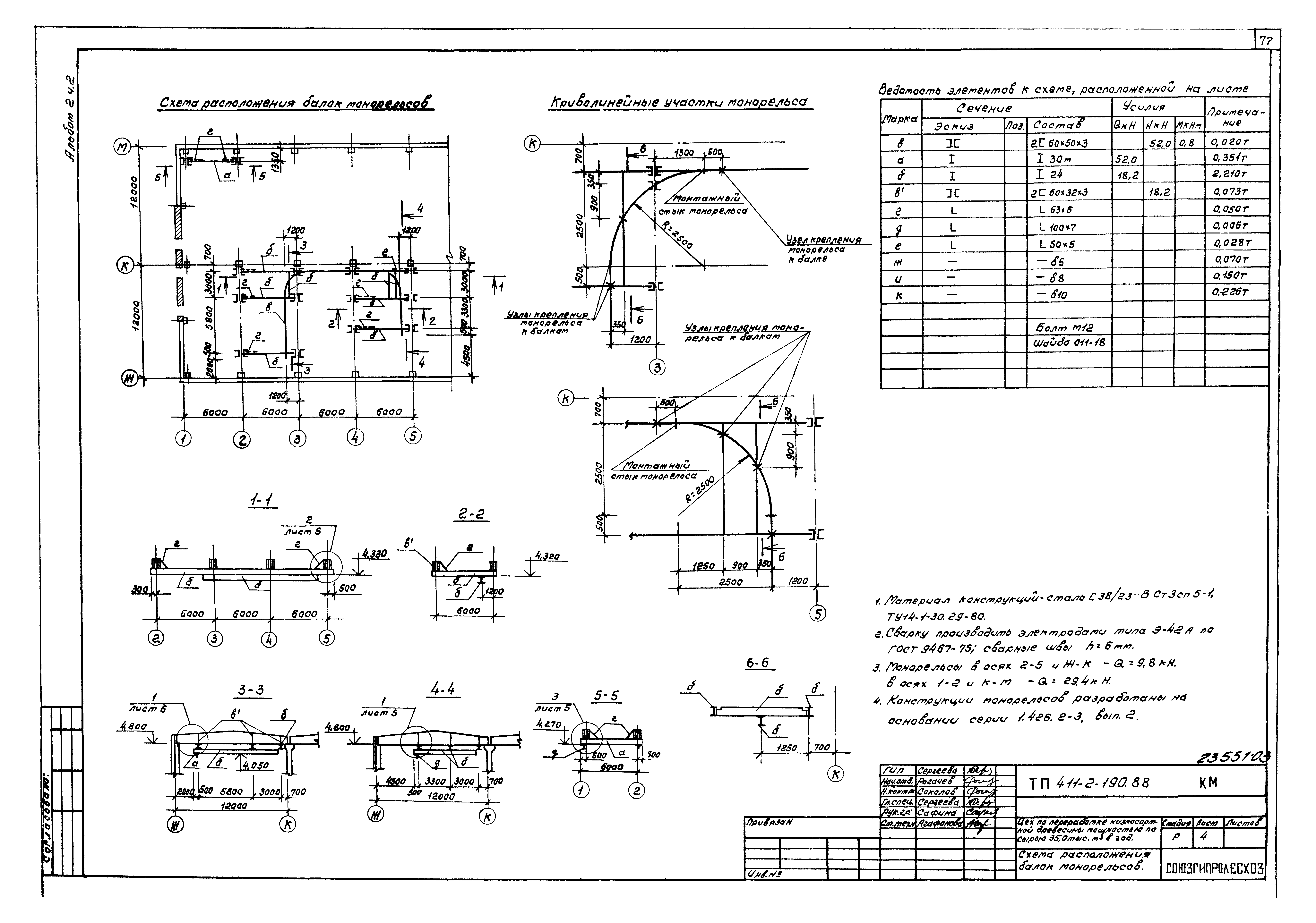
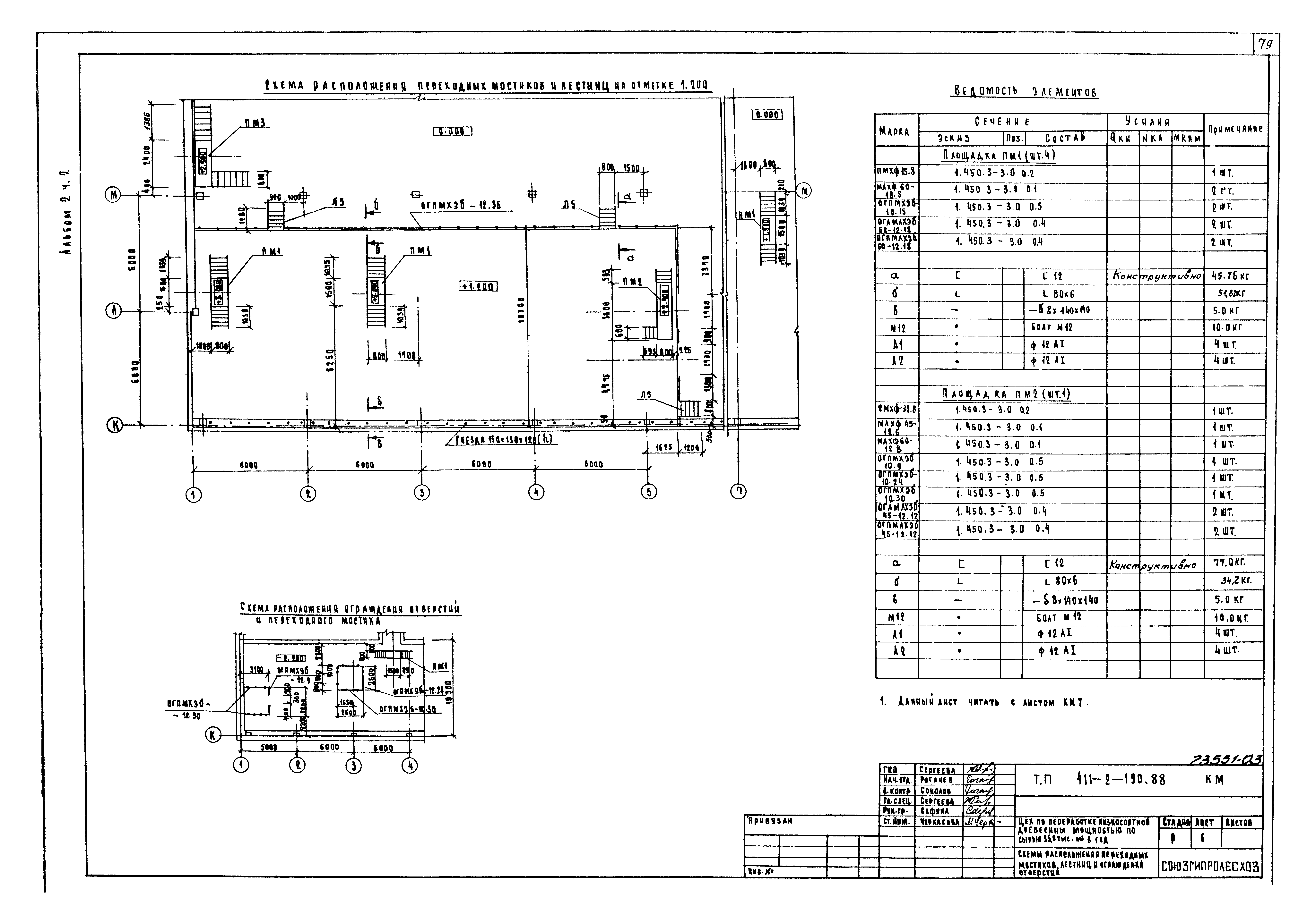
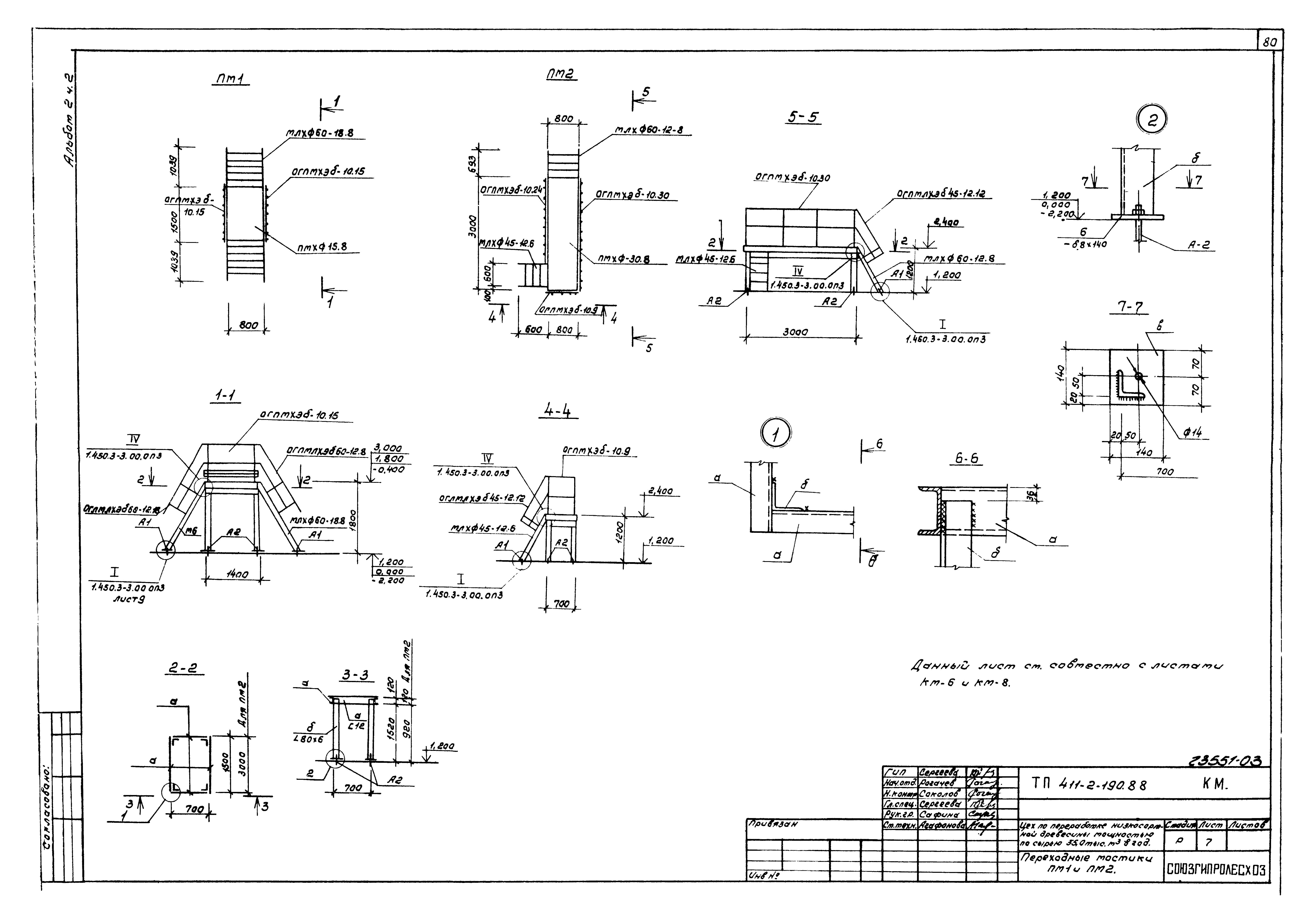
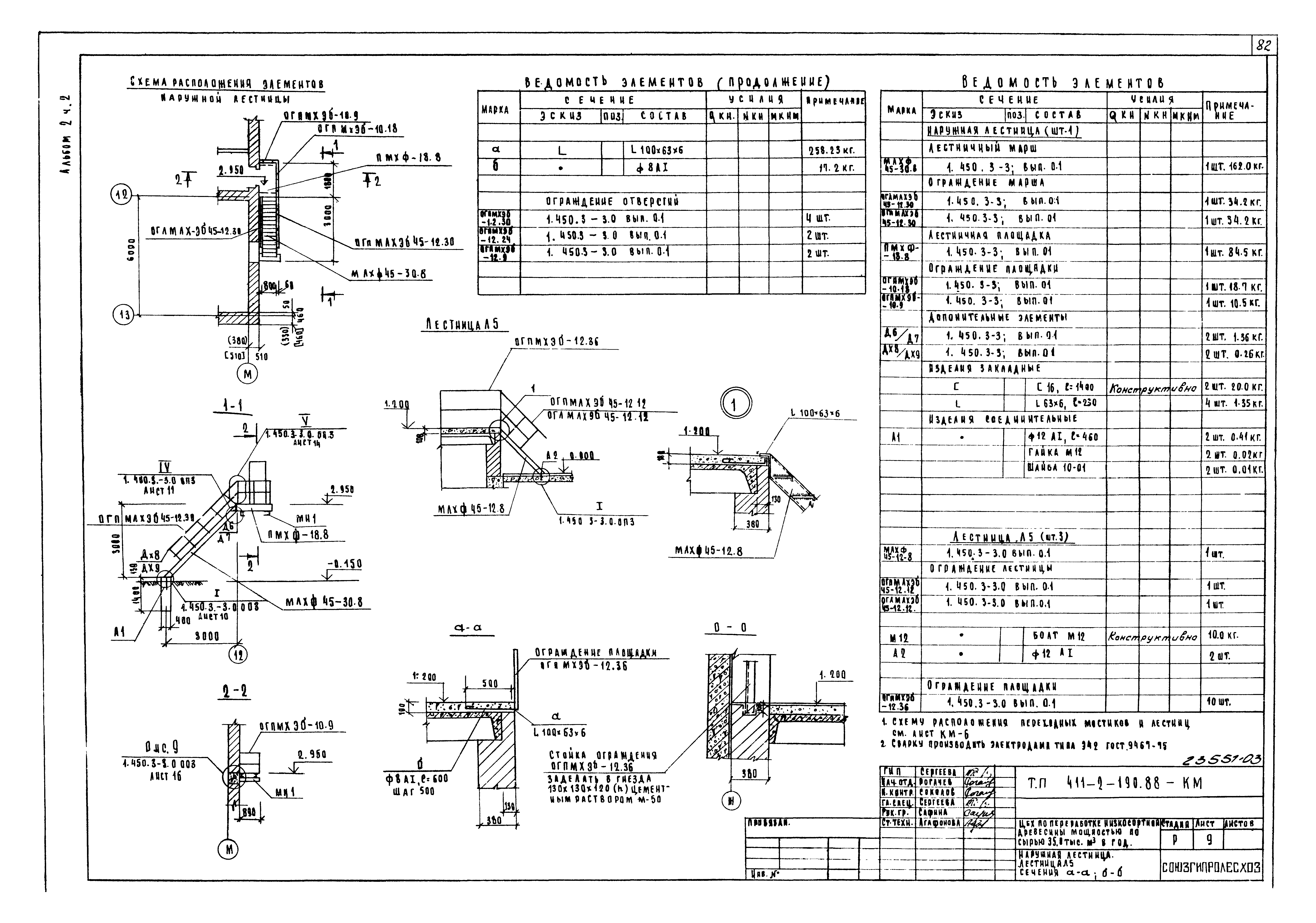
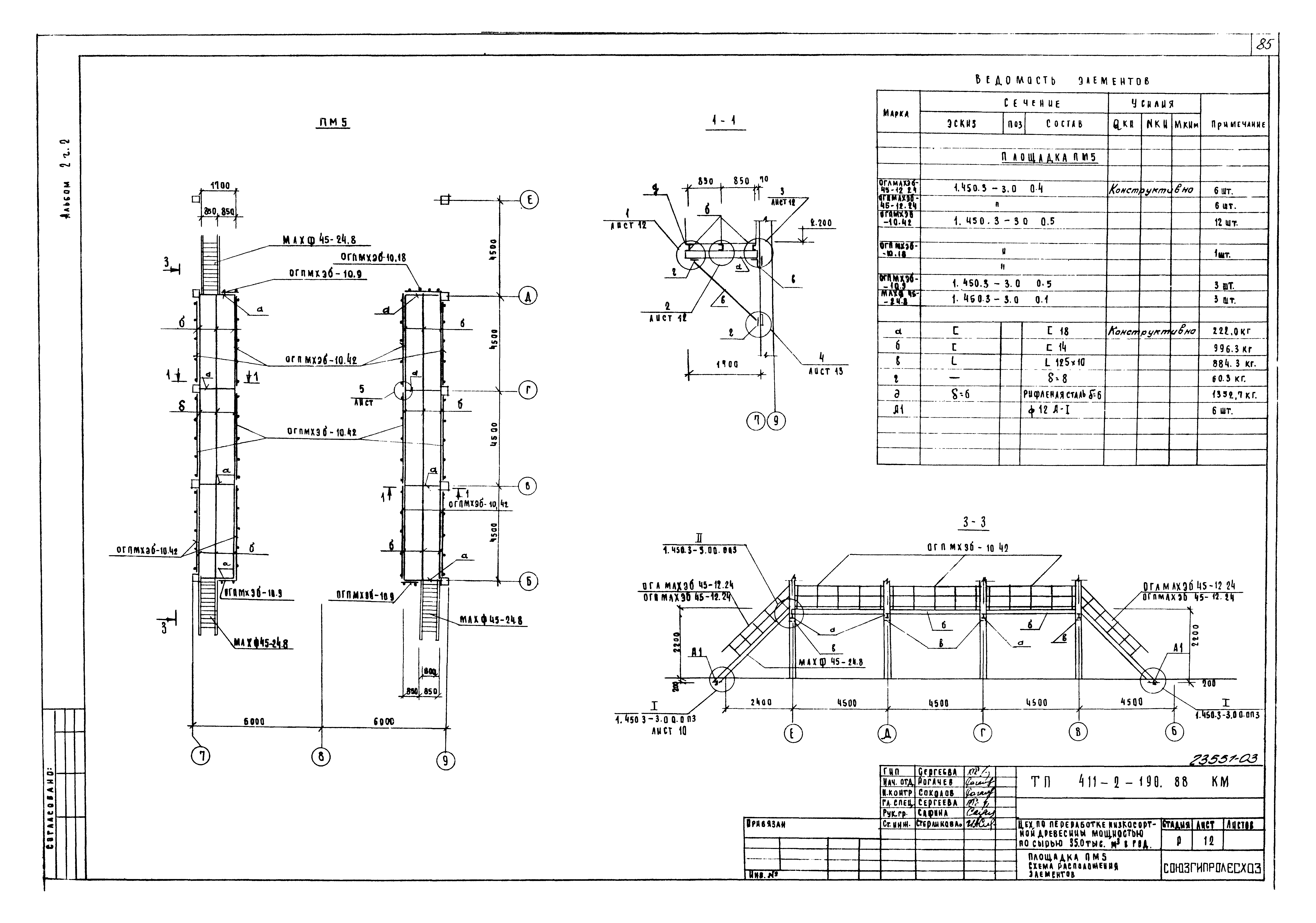
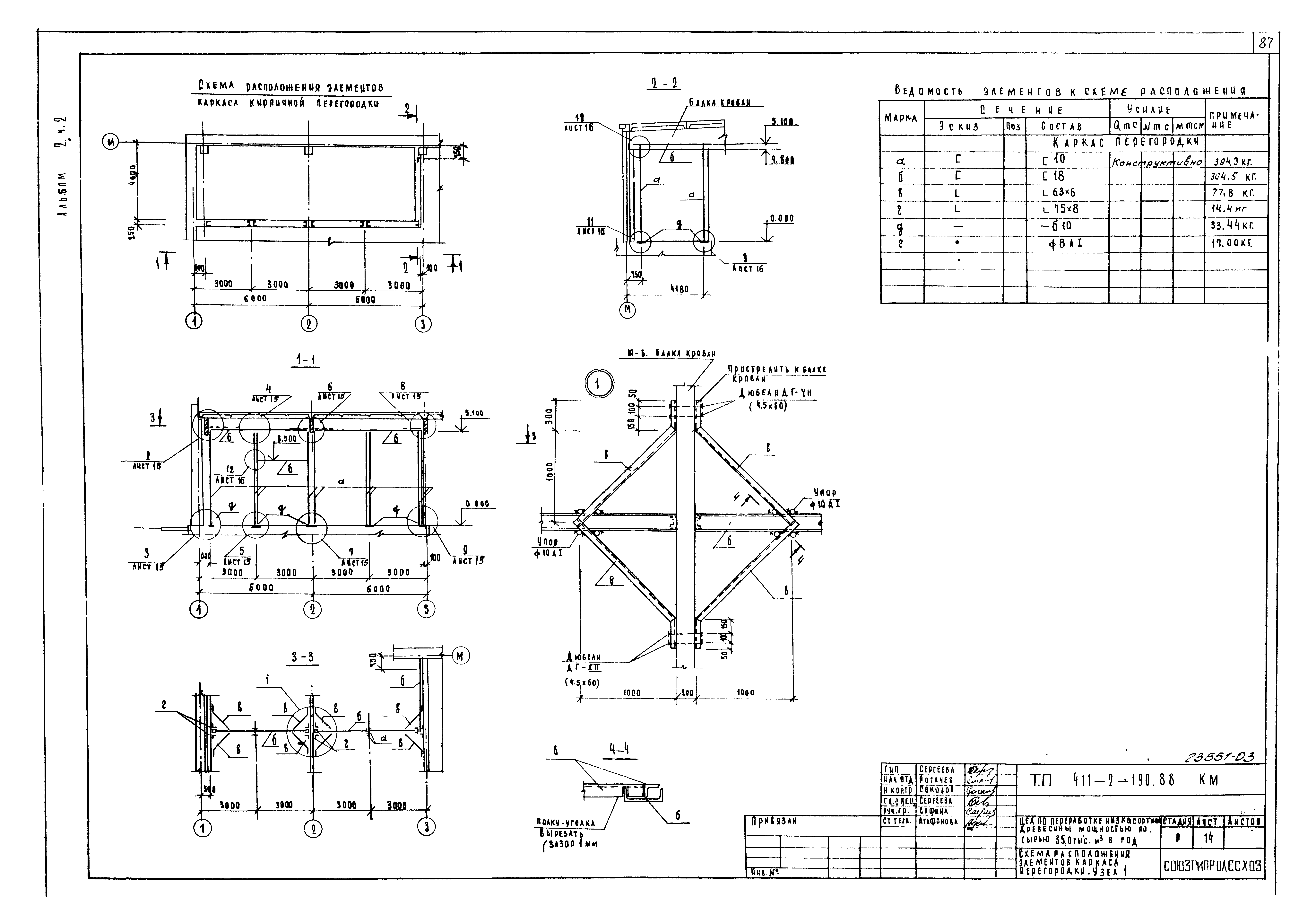
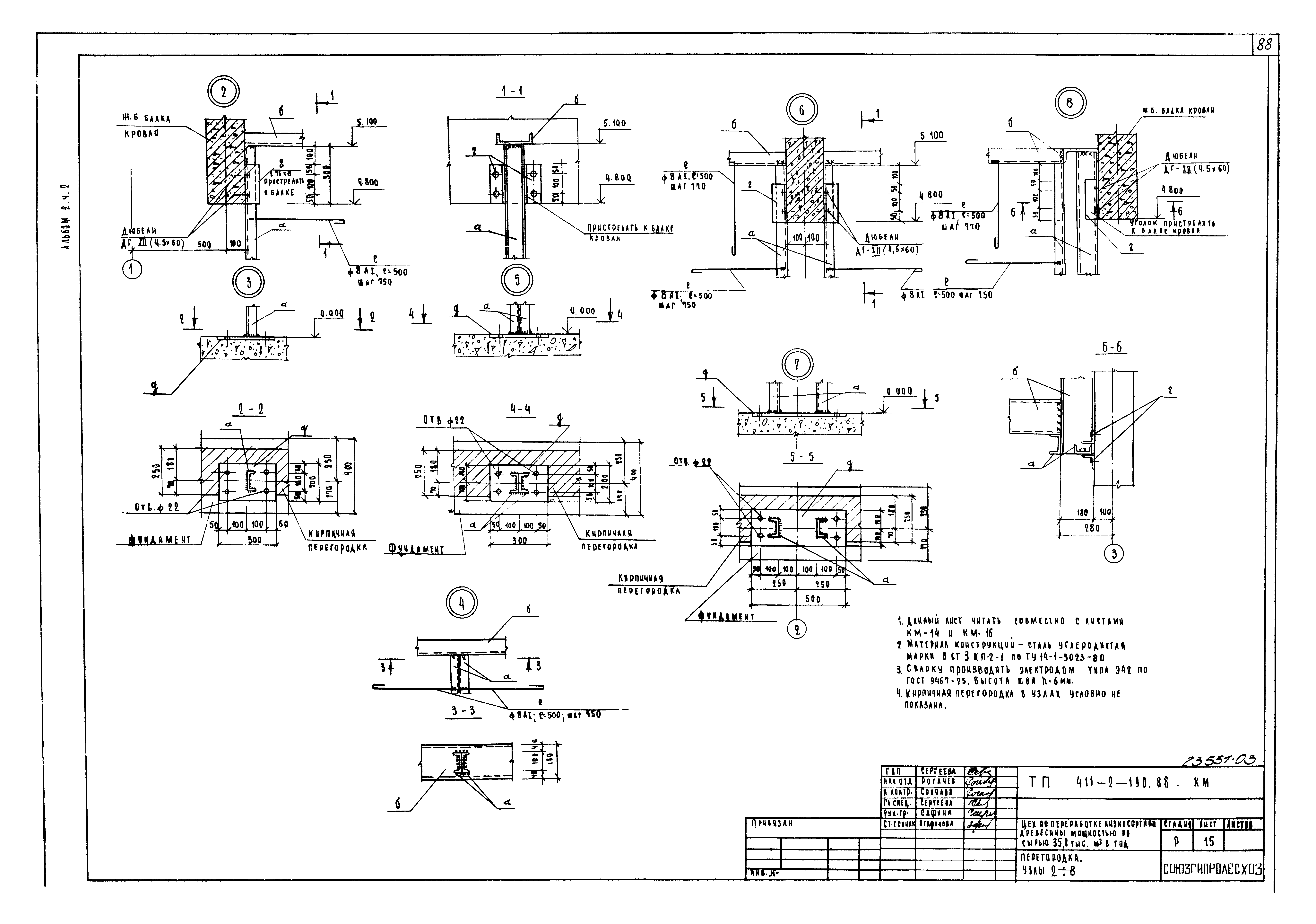
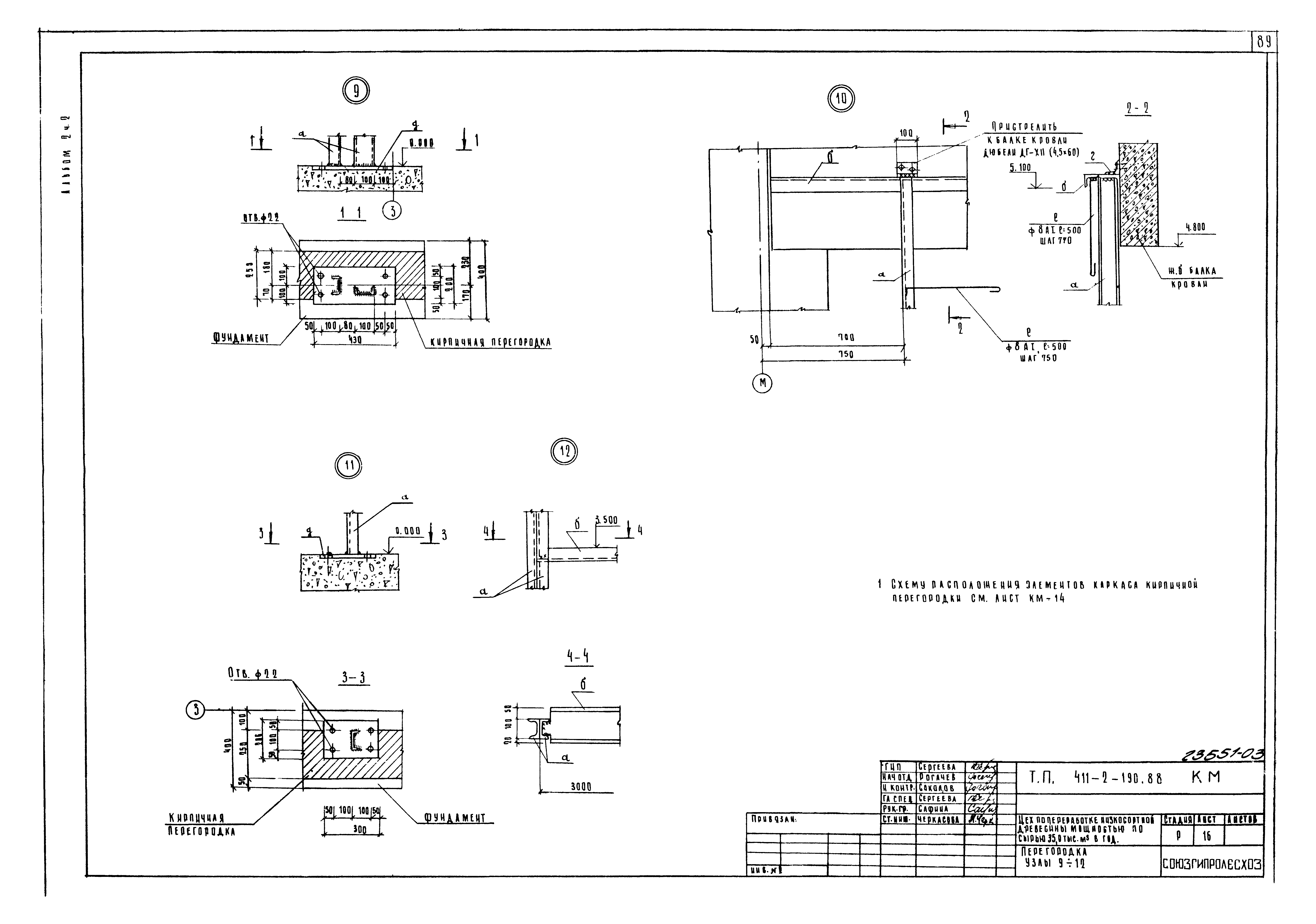
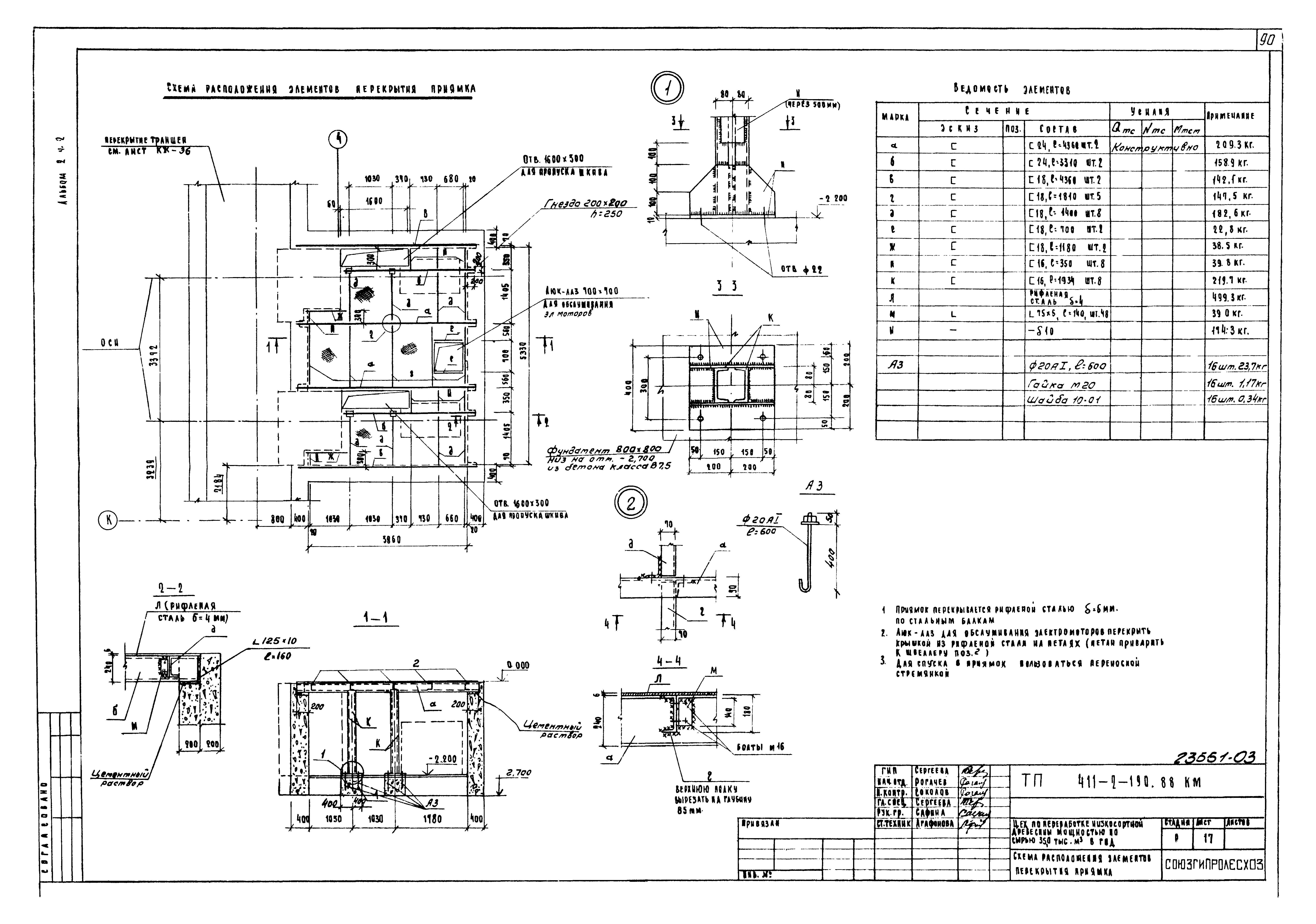
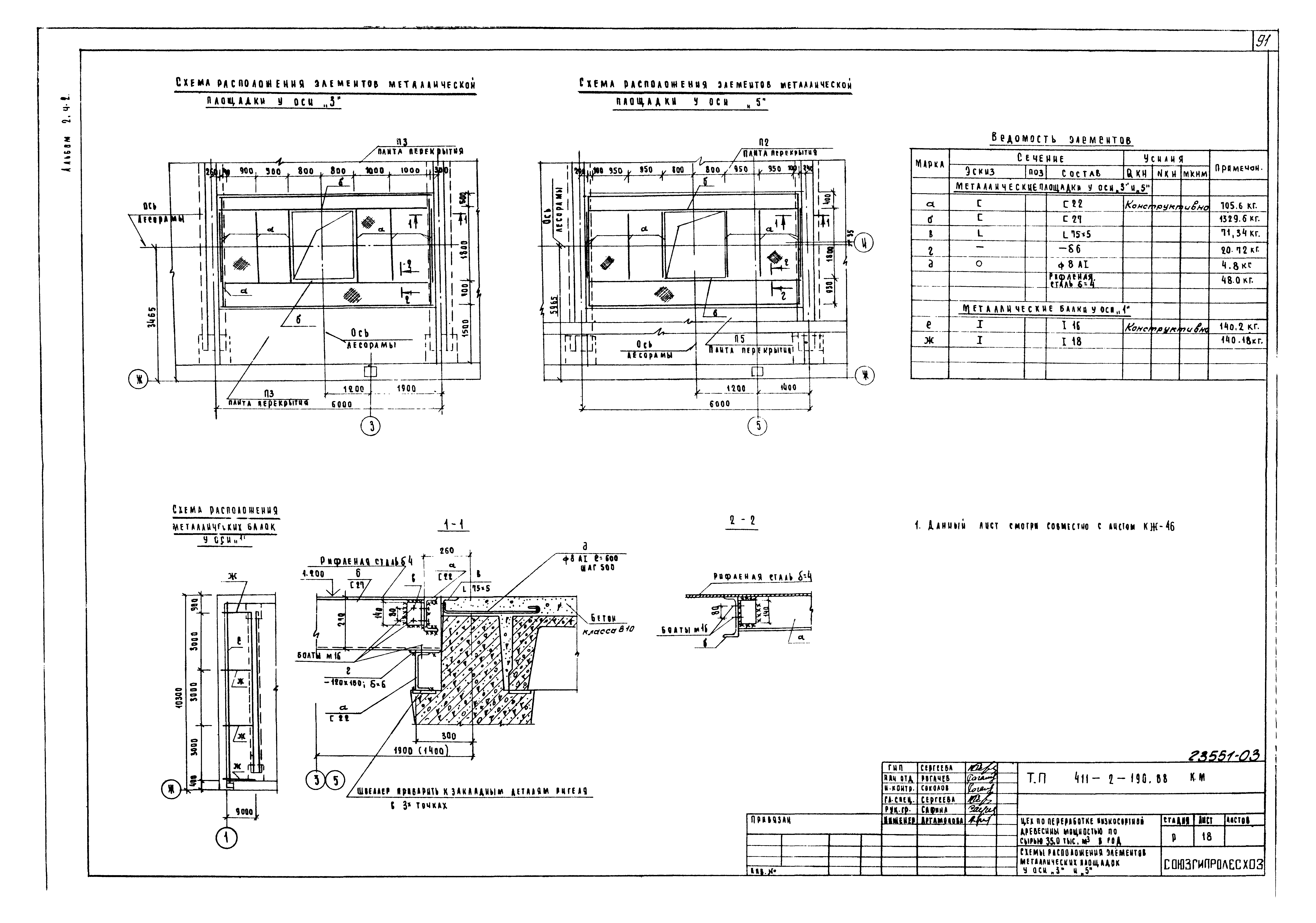
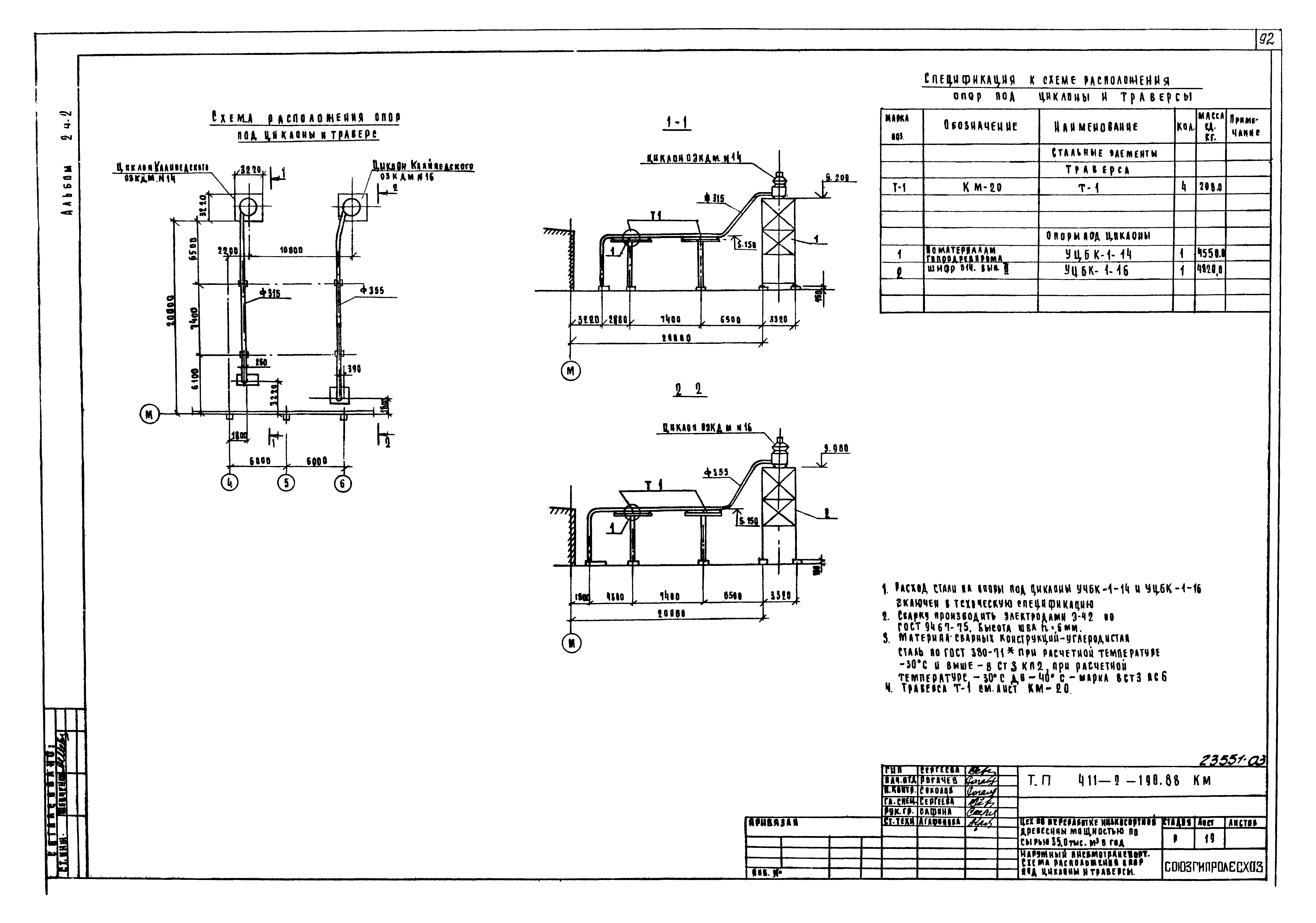
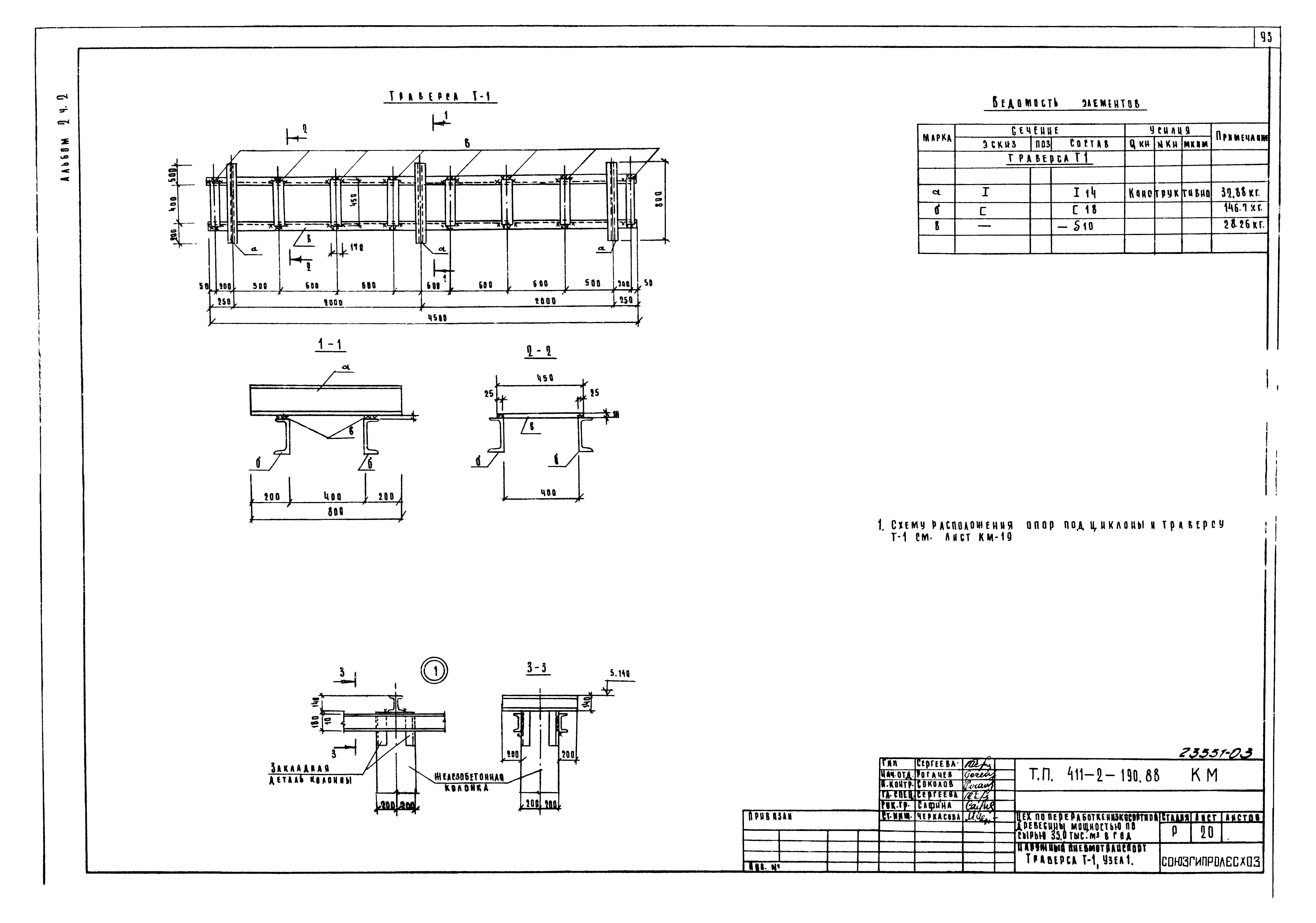
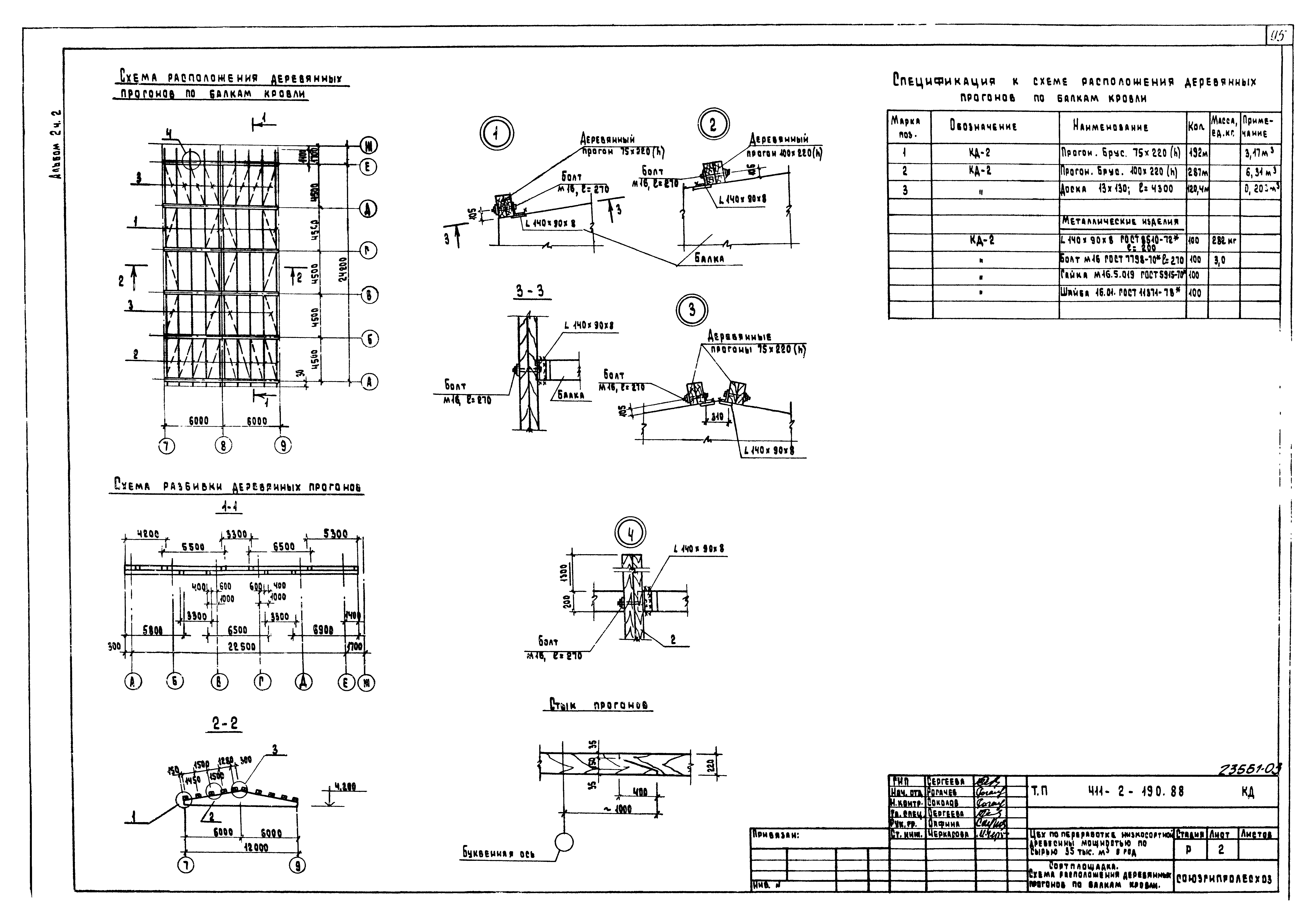
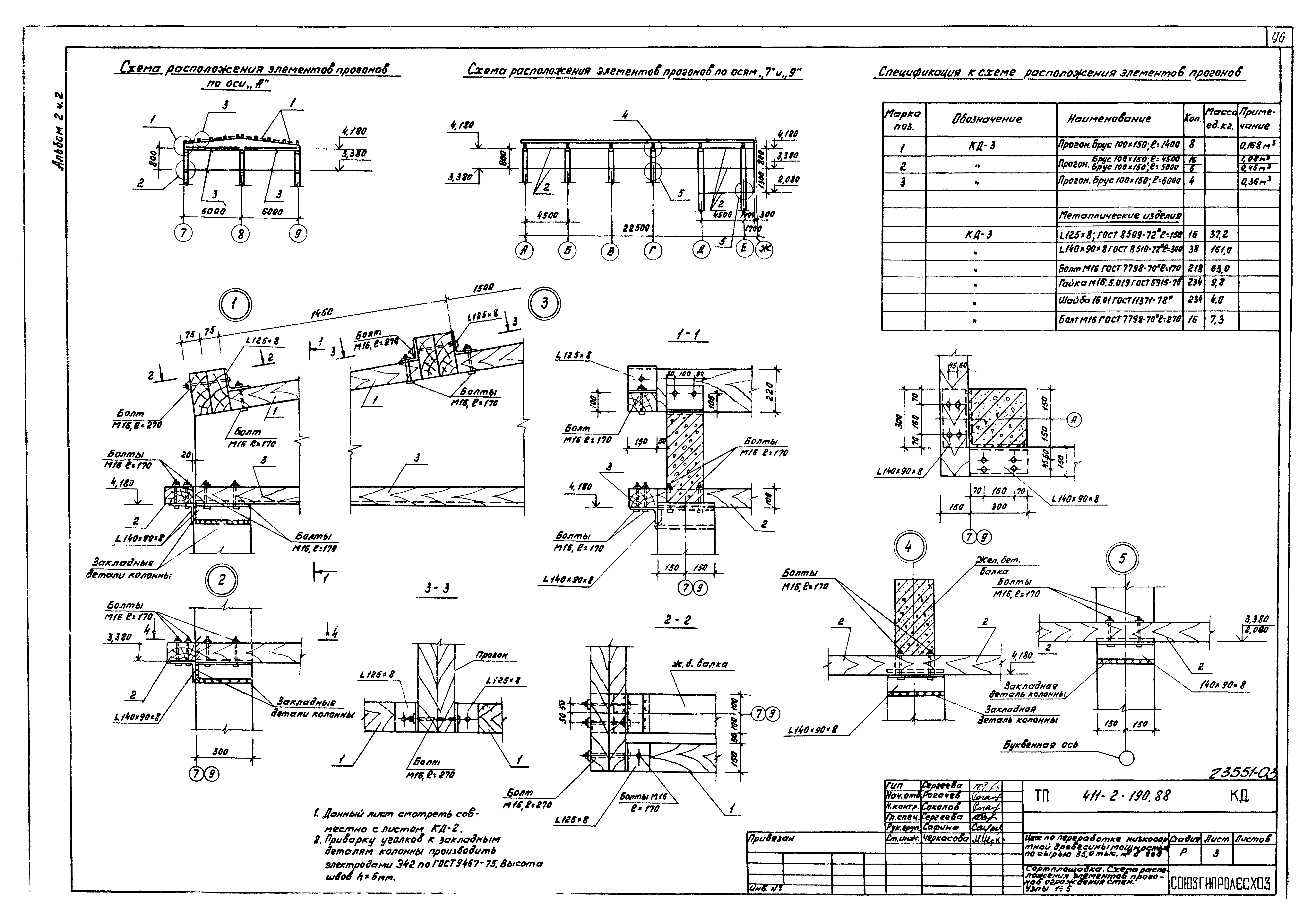
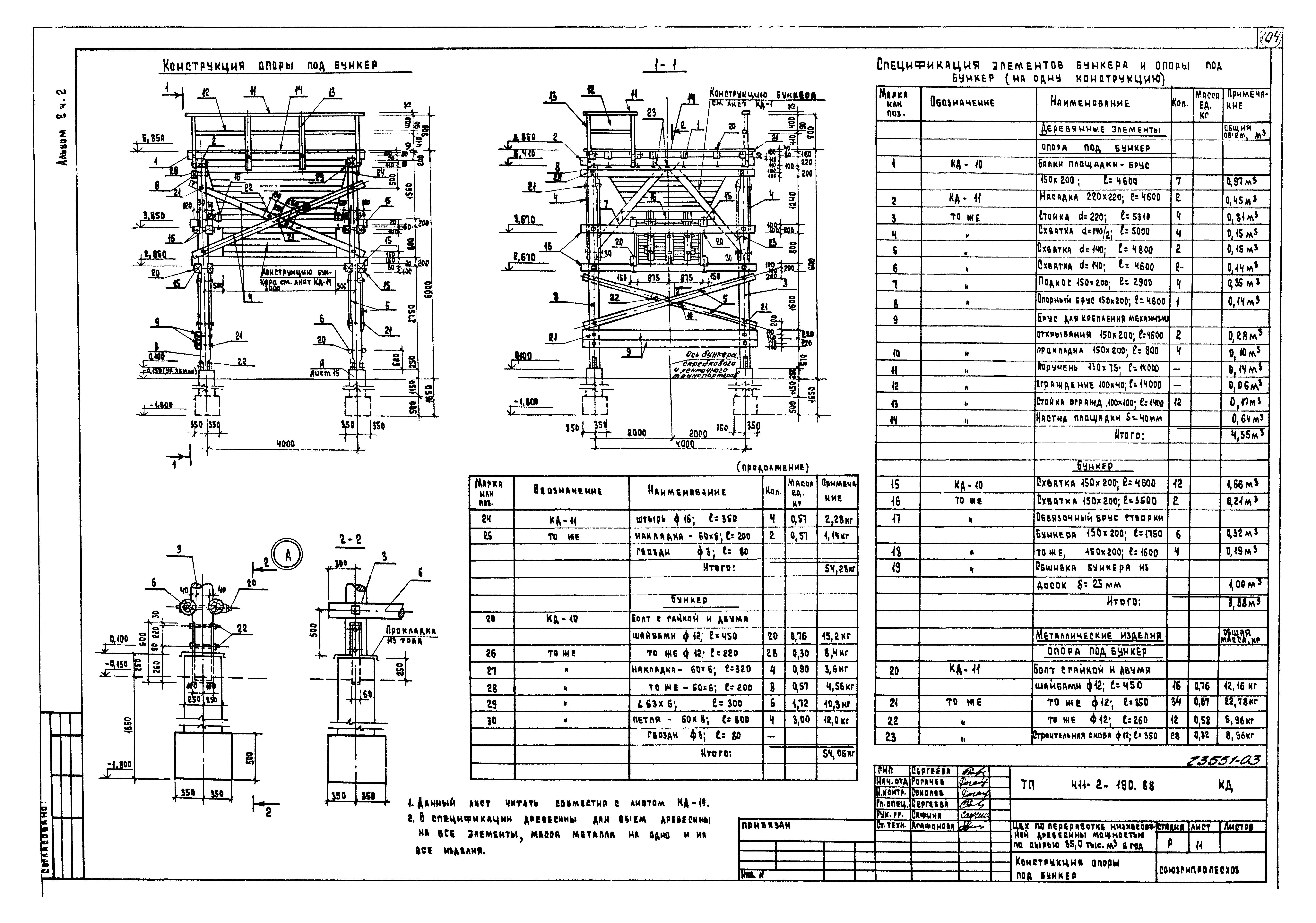
| Оглавление: | Конструкции металлические Общие данные Схема расположения балок монорельса Узлы 1, 3 Схемы расположения переходных мостиков, лестниц и ограждений Переходные мостики Пм1 и Пм2 Переходной мостик Пм3. Сечения 1-1 - 4-4, А1 и А2 Лестница Л5. Сечения а-а, б-б, в-в Площадка металлическая Пм4. Узел Площадка металлическая Пм4. Узлы 2 - 8 Площадка Пм5. Схема расположения элементов Площадка Пм5. Узлы 1 - 5 Схема расположения элементов каркаса перегородки. Узел 1 Перегородка. Узлы 2 - 8 Перегородка. Узлы 9 - 12 Схема расположения элементов покрытия приямка Схема расположения элементов металлических площадок у оси "3" и "5" Наружный пневмотранспорт. Схема расположения опор под циклоны и траверсы Наружный пневмотранспорт. Траверса Т-1. Узел 1 Конструкции деревянные Общие данные Сортплощадка. Схема расположения деревянных прогонов по балкам кровли Сортплощадка. Схема расположения деревянных прогонов ограждения стен. Узлы 1 - 5 Схема расположения прогонов и лежней лесотранспортера БА-3М №1 Схема расположения прогонов и лежней лесотранспортера БА-3М №2 Спецификация к схемам расположения элементов и деталей лесотранспортеров БА-3М №1 и №2 Эстакада ленточного конвейера Эстакада скребкового транспортера Короб ленточного конвейера и скребкового транспортера Бункер. Узлы и детали Конструкция опоры под бункер |
| Разработан: | Союзгипролесхоз |
| Утверждён: | 21.11.1988 Госкомлес СССР (USSR Goskomles 31) |
| Издан: | ЦИТП Госстроя СССР (CITP, Gosstroy (USSR) 1989 г. ) |
































