Скачать Типовой проект 411-2-190.88 Альбом 3. Внутренние водопровод и канализация. Отопление и вентиляция. Чертежи общих видов нетиповых конструкцийДата актуализации: 01.01.2021
|
| Обозначение: | Типовой проект 411-2-190.88 |
| Обозначение англ: | 411-2-190.88 |
| Статус: | не определен законодательством |
| Название рус.: | Альбом 3. Внутренние водопровод и канализация. Отопление и вентиляция. Чертежи общих видов нетиповых конструкций |
| Дата добавления в базу: | 01.10.2014 |
| Дата актуализации: | 01.01.2021 |
| Дата введения: | 25.11.1988 |
| Дата окончания срока действия: | 30.06.2003 |
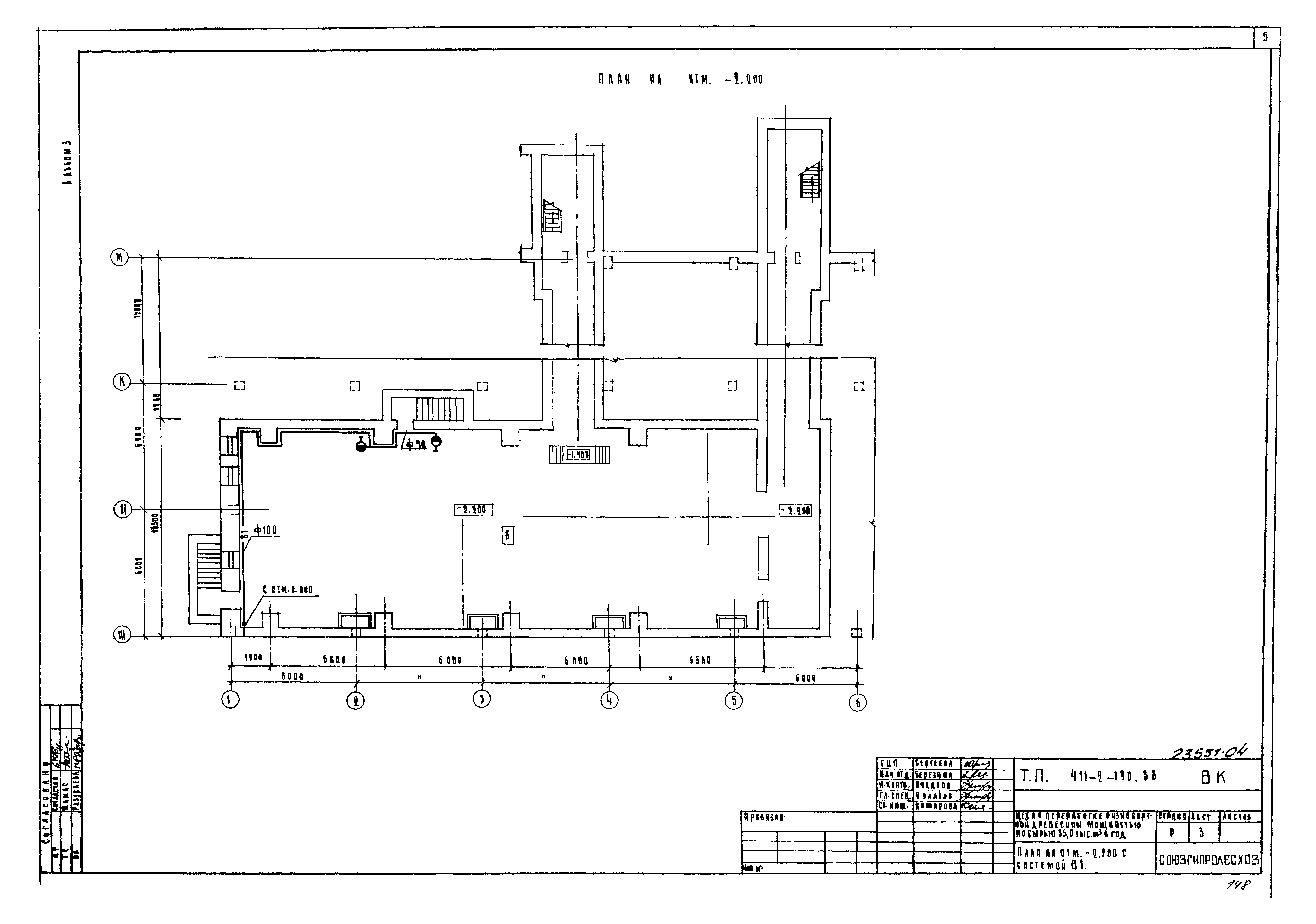
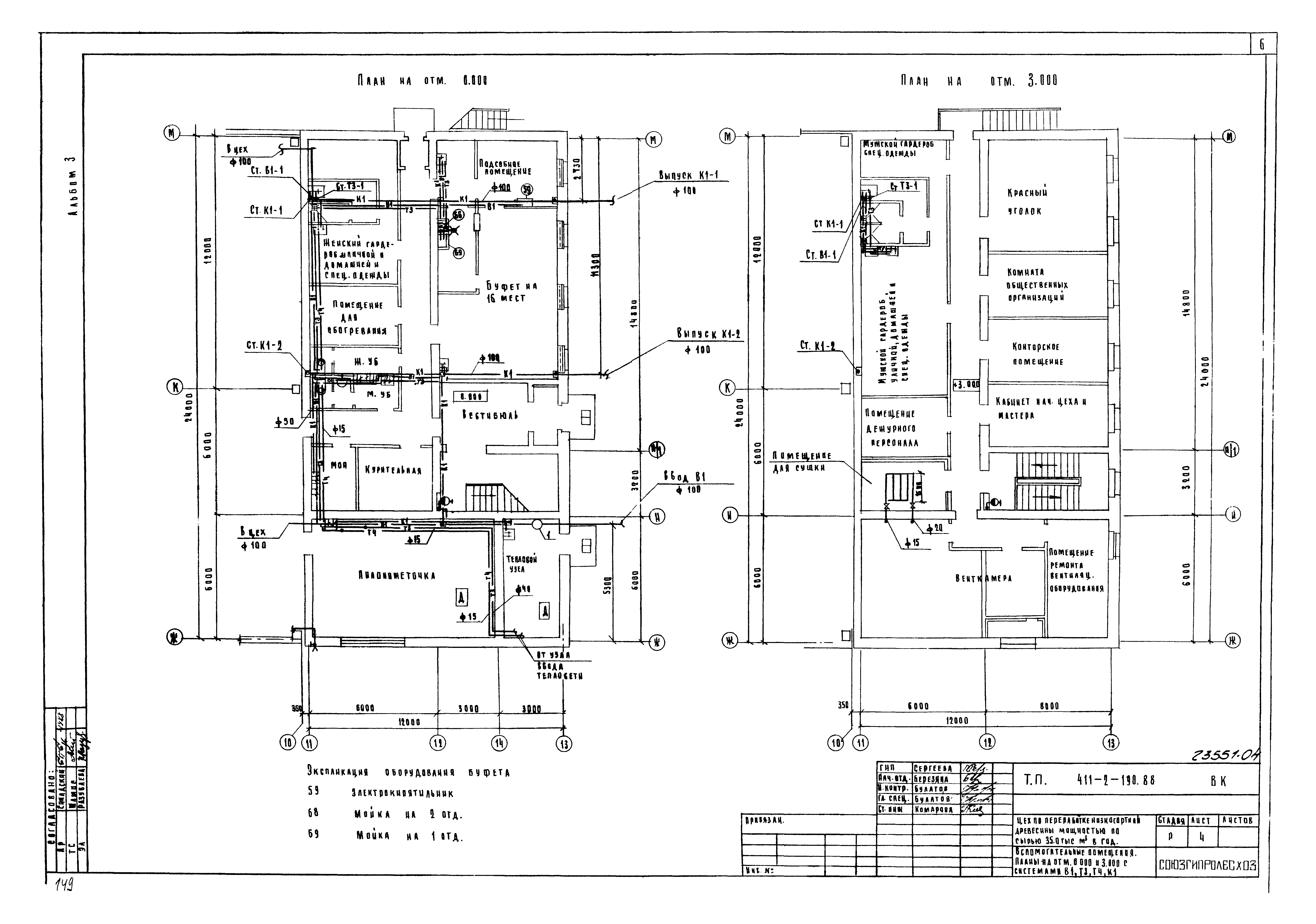
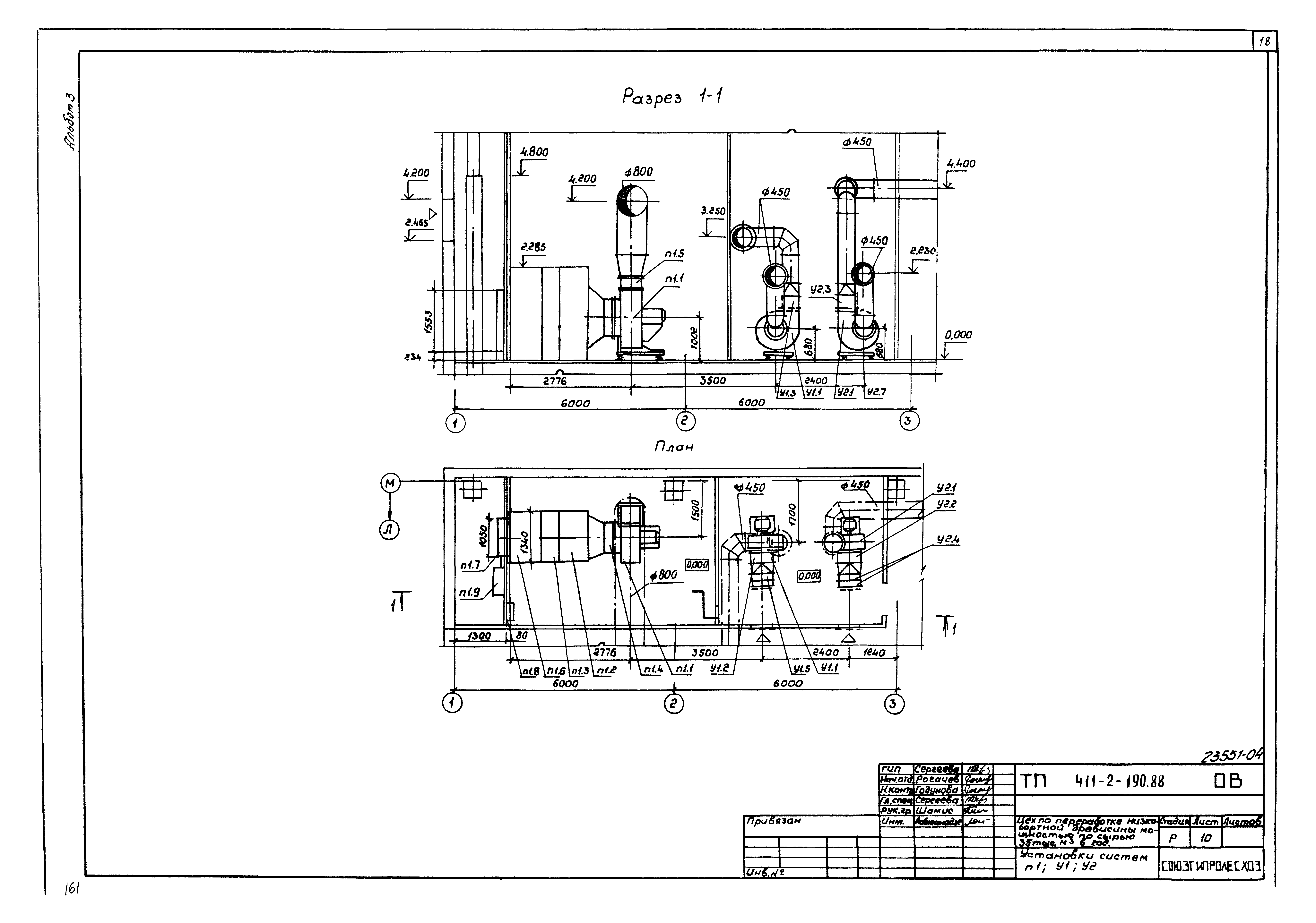
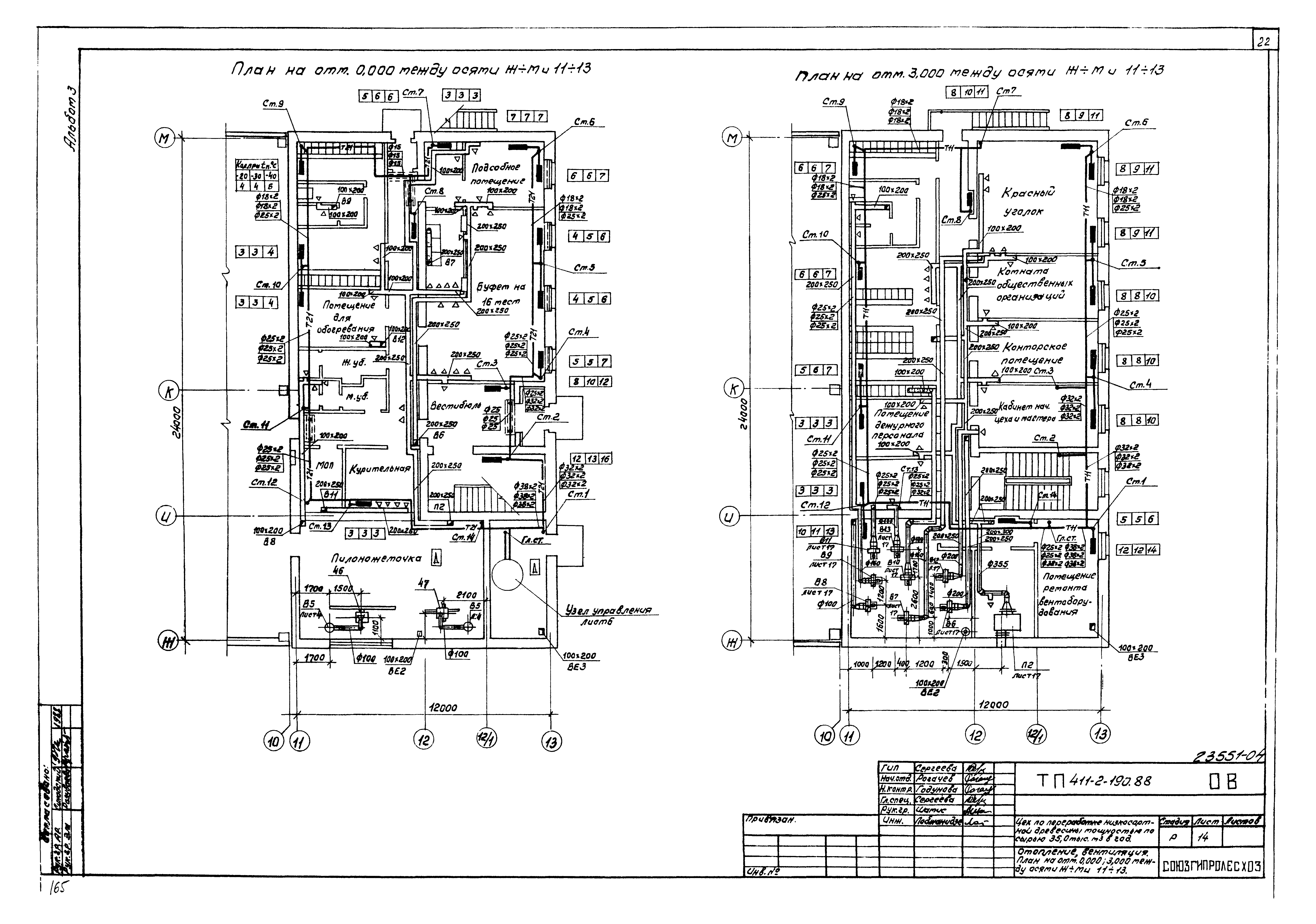
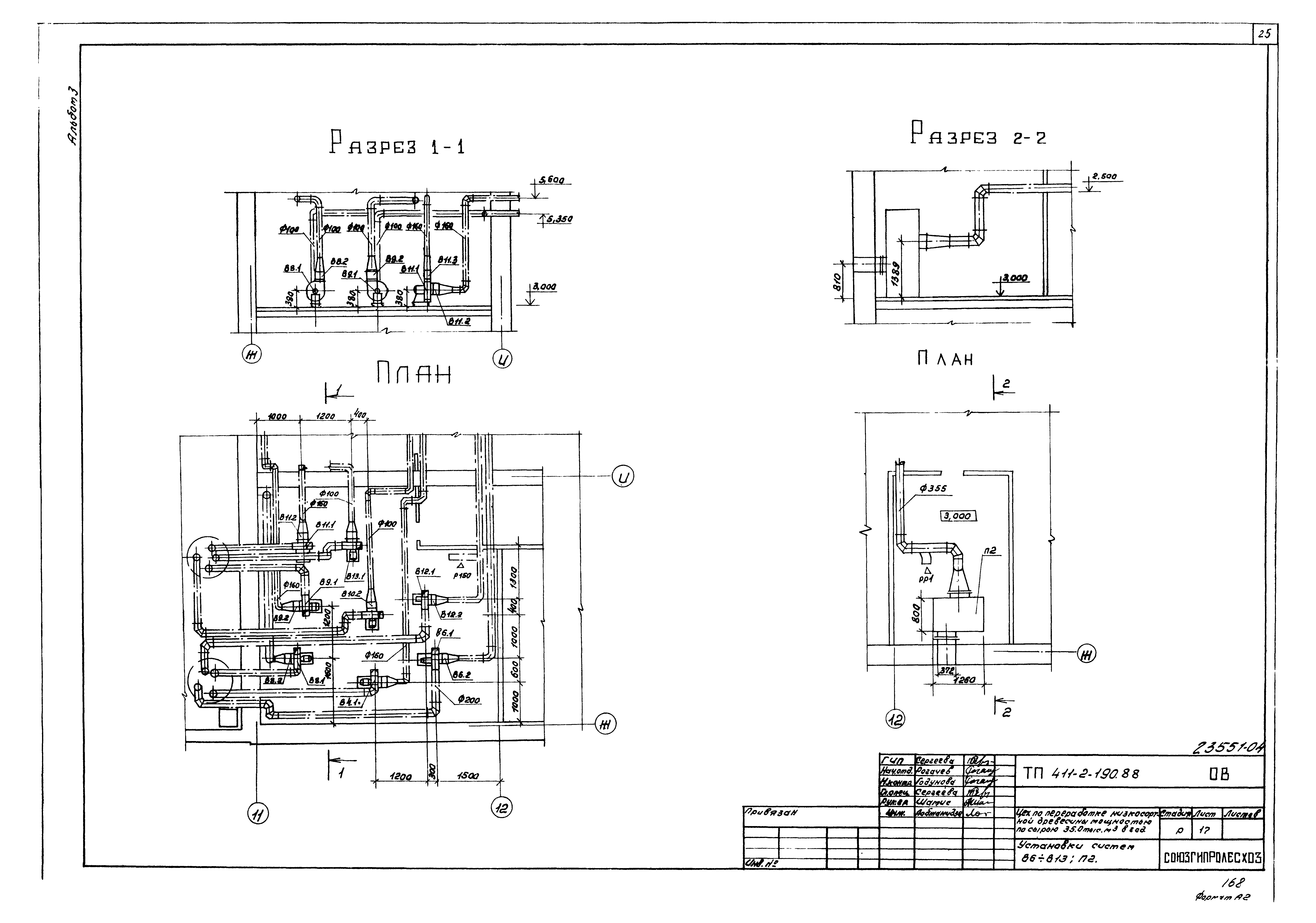
| Оглавление: | Содержание альбома Внутренние водопровод и канализация Общие данные План на отм. 0.000 с системами В1, К2 План на отм. 2.200 с системой В1 Вспомогательные помещения. Планы на отм. 0.000 и 3.000 с системами В1, Т3, Т4, К1 Схемы систем В1, Т3, Т4 Схемы систем К1, К2. План кровли Отопление и вентиляция Общие данные Отопление и вентиляция. План на отм. 0.000; 1.200. План на отм. 2.200 между осями Ж - И и 1 - 5 Схема системы отопления 1. Узел управления Схемы систем П1, У1, У2, У4, В1, В2, В5, В5`, ВЕ1, ВЕ2 Теплоснабжение. План на отм. 0.000. План на отм. 3.000 между осями 10 - 12 и Ж - И. Схема системы теплоснабжения установок П1, П2, У1 - У4 Узлы схемы системы теплоснабжения установок Установки систем П1, У1, У2 Установка системы У4 Установка систем В1, В2 Отопление, вентиляция. План на отм. 0.000; 3.000 между осями Ж - М и 11 - 13 Схема системы отопления 2. Схемы систем П2, В6 Схемы системы В7 - В13, ВЕ3 Установки системы В6 - В13, П2 Чертежи общих видов нетиповых конструкций Содержание альбома Воздуховод асбестоцементный Воздуховод раздаточный Уловитель крупных отходов |
| Разработан: | Союзгипролесхоз |
| Утверждён: | 21.11.1988 Госкомлес СССР (USSR Goskomles 31) |
| Издан: | ЦИТП Госстроя СССР (CITP, Gosstroy (USSR) 1989 г. ) |




























