Скачать Типовой проект 411-2-190.88 Альбом 6. Чертежи заданий заводам-изготовителямДата актуализации: 01.01.2021
|
| Обозначение: | Типовой проект 411-2-190.88 |
| Обозначение англ: | 411-2-190.88 |
| Статус: | не определен законодательством |
| Название рус.: | Альбом 6. Чертежи заданий заводам-изготовителям |
| Дата добавления в базу: | 01.10.2014 |
| Дата актуализации: | 01.01.2021 |
| Дата введения: | 25.11.1988 |
| Дата окончания срока действия: | 30.06.2003 |
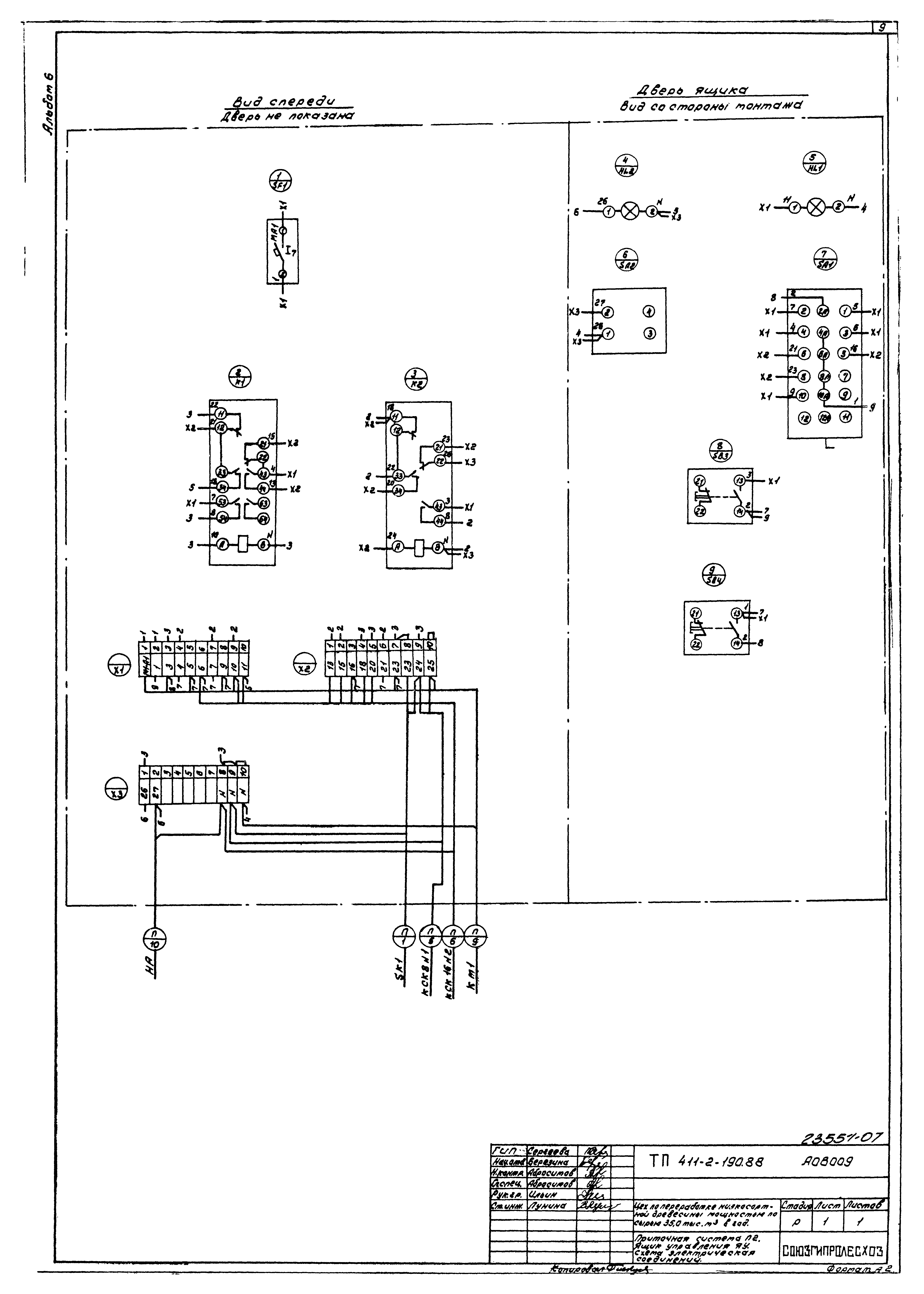
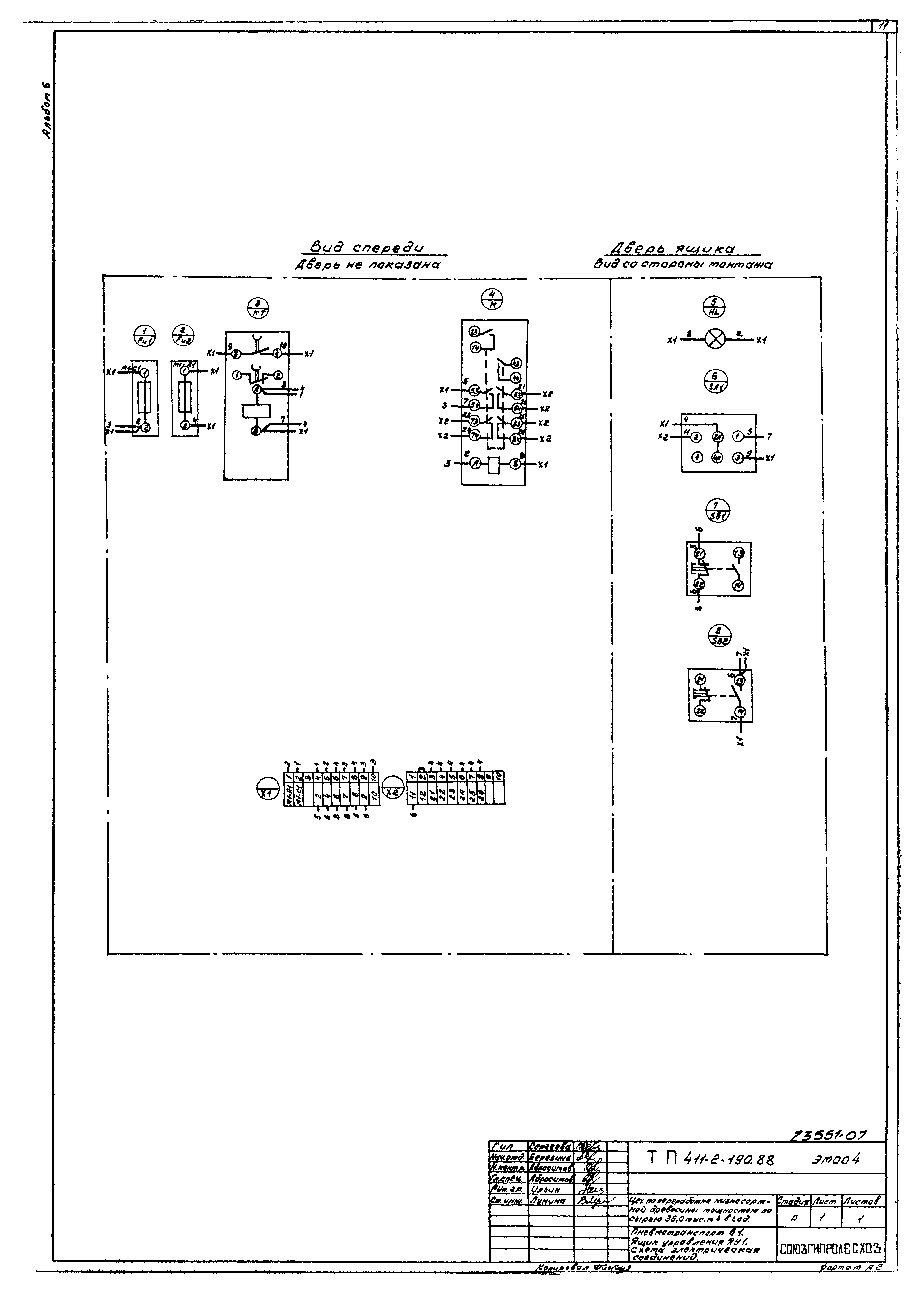
| Оглавление: | Содержание альбома Спецификация щитов Приточная система П1. Шкаф управления ШУ1. Общий вид Приточная система П1. Шкаф управления ШУ1. Таблица соединений Приточная система П1. Шкаф управления ШУ1. Таблица подключения Приточная система П2. Ящик управления ЯУ. Чертеж общего вида Приточная система П2. Ящик управления ЯУ. Технические данные аппаратов Приточная система П2. Ящик управления ЯУ. Перечень надписей Приточная система П2. Ящик управления ЯУ. Схема электрическая соединений Пневмотранспортер В1(В2). Ящик управления ЯУ1(ЯУ2). Чертеж общего вида Пневмотранспортер В1(В2). Ящик управления ЯУ1(ЯУ2). Технические данные аппаратов Пневмотранспортер В1(В2). Ящик управления ЯУ1(ЯУ2). Перечень надписей Пневмотранспортер В1(В2). Ящик управления ЯУ1. Схема электрическая соединений Пневмотранспортер В1(В2). Ящик управления ЯУ2. Схема электрическая соединений Ящик управления ЯУ3. Чертеж общего вида Ящик управления ЯУ3. Технические данные аппаратов Ящик управления ЯУ3. Перечень надписей Ящик управления ЯУ3. Схема электрическая соединений Ящик управления ЯУ4. Чертеж общего вида Ящик управления ЯУ4. Технические данные аппаратов Ящик управления ЯУ4. Перечень надписей Ящик управления ЯУ4. Схема электрическая соединений Ящик управления ЯУ5. Чертеж общего вида Ящик управления ЯУ5. Технические данные аппаратов Ящик управления ЯУ5. Перечень надписей Ящик управления ЯУ5. Схема электрическая соединений Ящик управления ЯУ6. Чертеж общего вида Ящик управления ЯУ6. Технические данные аппаратов Ящик управления ЯУ6. Перечень надписей Ящик управления ЯУ6. Схема электрическая соединений |
| Разработан: | Союзгипролесхоз |
| Утверждён: | 21.11.1988 Госкомлес СССР (USSR Goskomles 31) |
| Издан: | ЦИТП Госстроя СССР (CITP, Gosstroy (USSR) 1989 г. ) |





















