Скачать Серия 1.137.1КЛ-1 Выпуск 1-1. Плиты сплошные и с проемамиДата актуализации: 01.01.2021
|
| Обозначение: | Серия 1.137.1КЛ-1 |
| Обозначение англ: | Series 1.137.1КЛ-1 |
| Статус: | действует |
| Название рус.: | Выпуск 1-1. Плиты сплошные и с проемами |
| Дата добавления в базу: | 01.10.2014 |
| Дата актуализации: | 01.01.2021 |
| Дата введения: | 26.12.1988 |
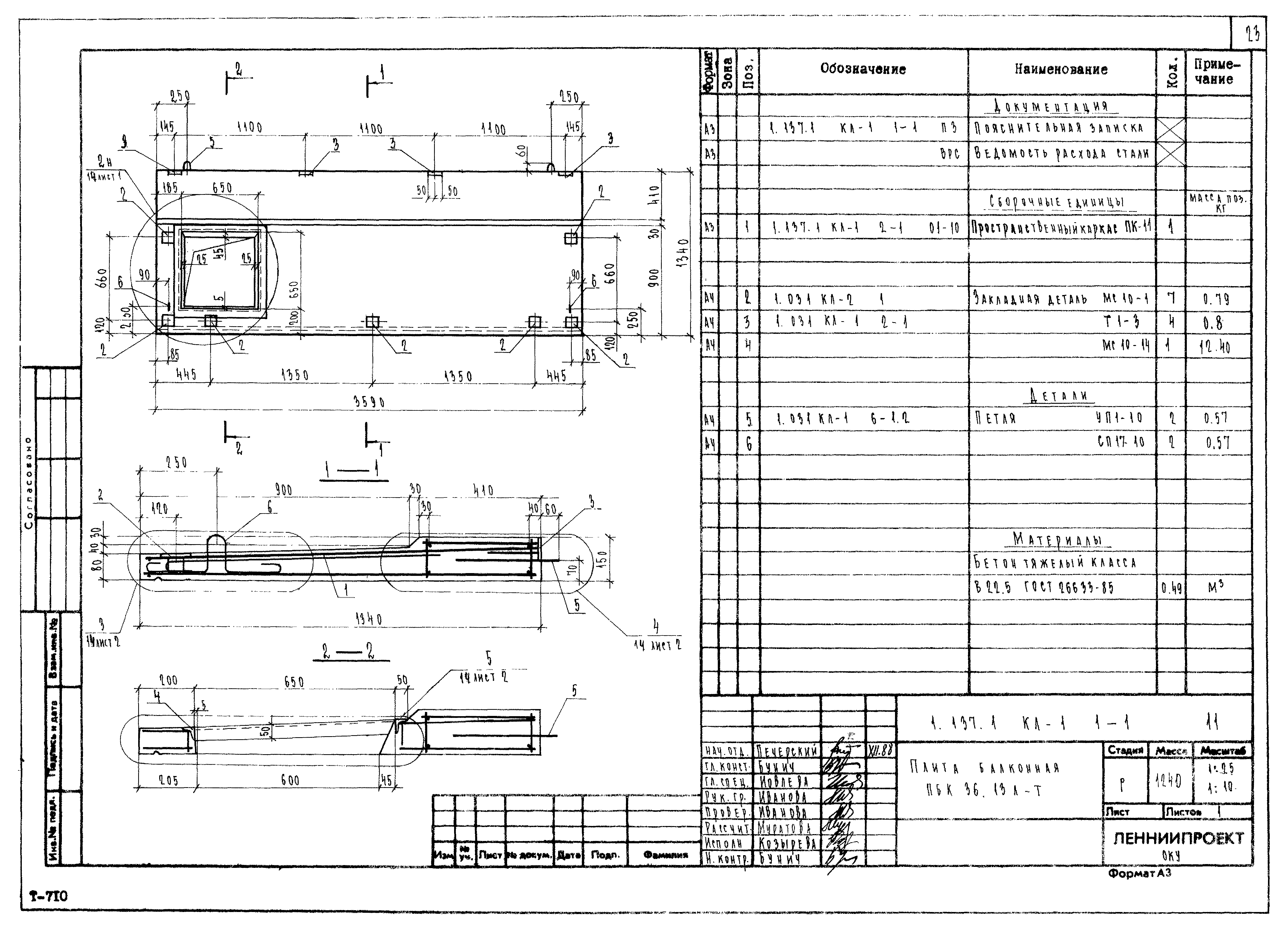
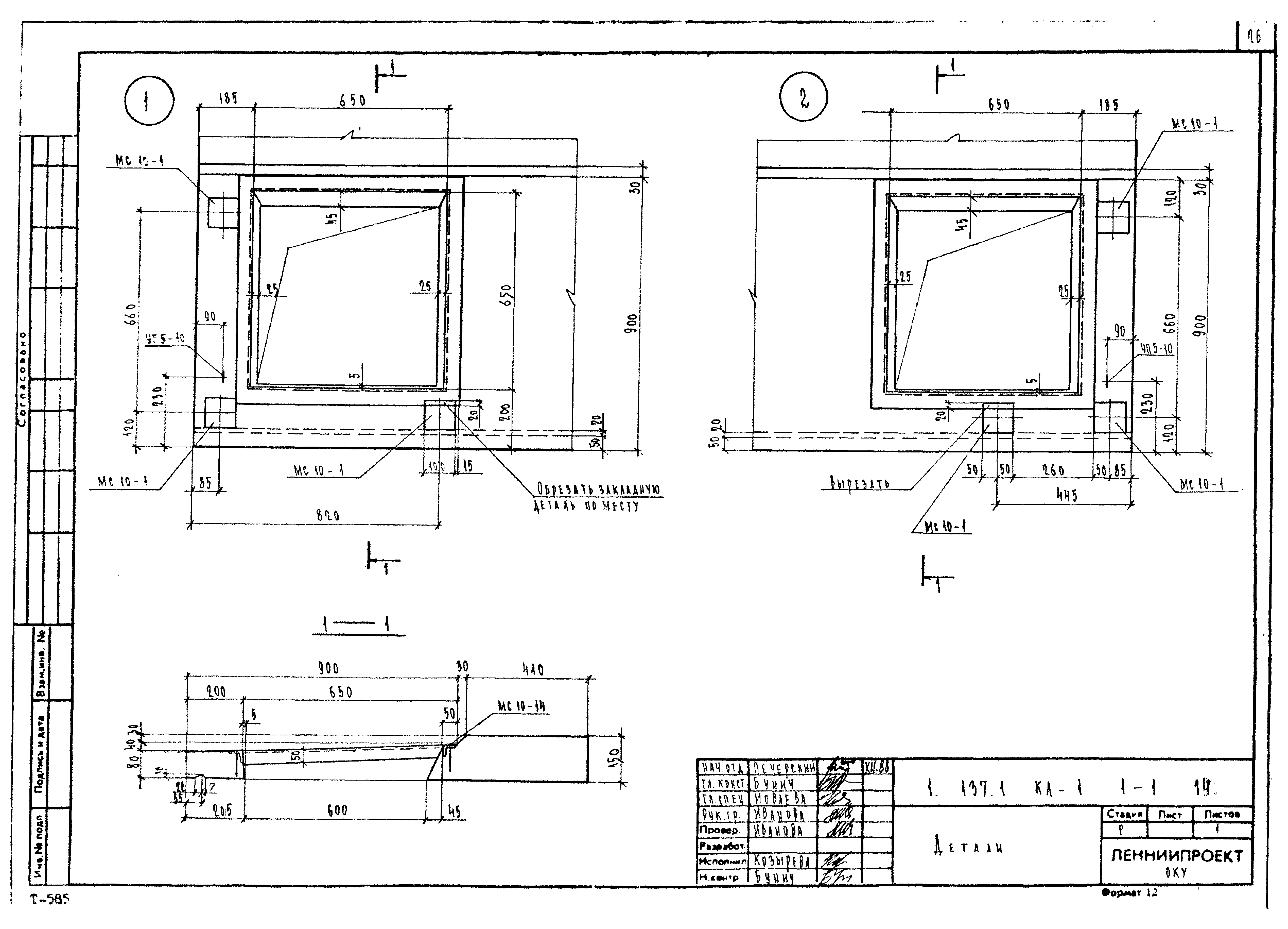
| Оглавление: | Информационная карта Состав серии Содержание Пояснительная записка Данные для испытаний Номенклатура Плиты балконные Детали Ведомость расхода стали |
| Разработан: | Ленниипроект |
| Утверждён: | 26.12.1988 Ленниипроект (150-у) |




























