Скачать Типовой проект 901-4-61.83 Альбом III. Конструкции железобетонныеДата актуализации: 01.01.2021
|
| Обозначение: | Типовой проект 901-4-61.83 |
| Обозначение англ: | 901-4-61.83 |
| Статус: | действует |
| Название рус.: | Альбом III. Конструкции железобетонные |
| Дата добавления в базу: | 01.10.2014 |
| Дата актуализации: | 01.01.2021 |
| Дата введения: | 23.06.1983 |
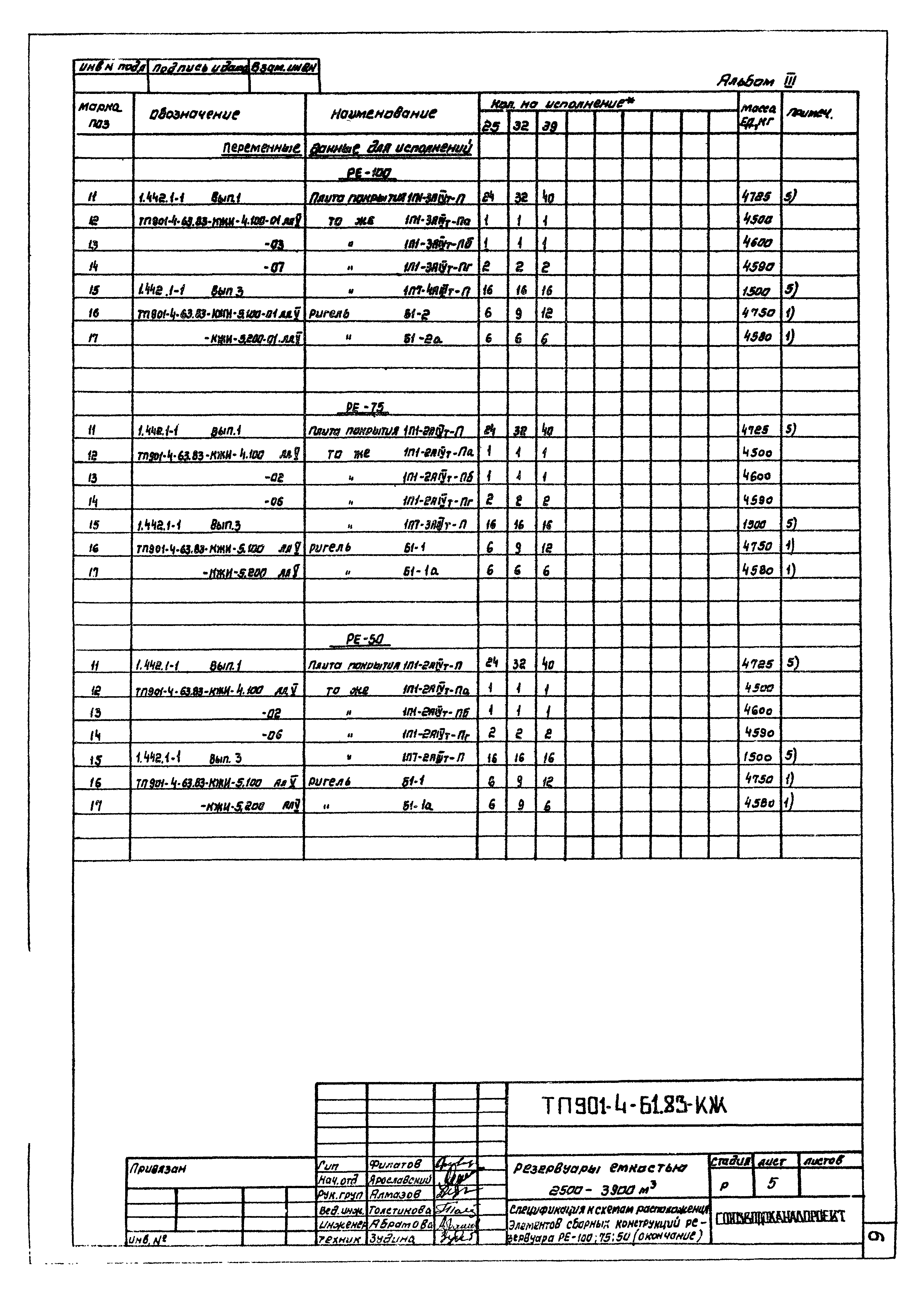
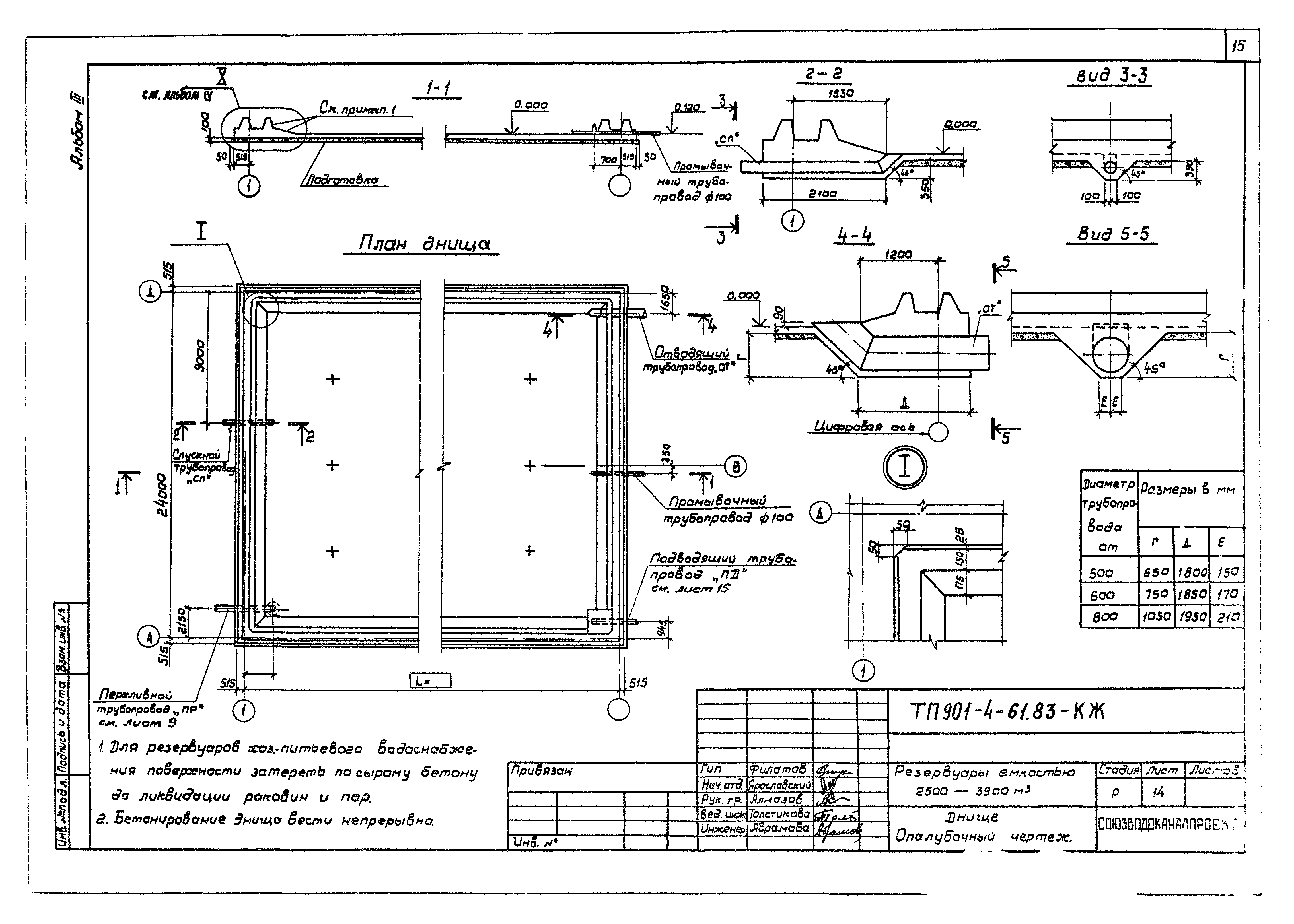
| Оглавление: | Общие данные План. Разрезы Спецификация к схемам расположения элементов сборных конструкций резервуара РЕ-100; 75; 50 Спецификация к схемам расположения элементов сборных конструкций резервуара РЕ-100М Схемы расположения элементов сборных конструкций Схема установки перегородочных панелей Камера переливная Камера приемная Днище. Спецификация элементов Днище. Ведомость расхода стали Днище. Опалубочный чертеж Днище. Основание под приемную камеру Днище. План раскладки нижних, верхних сеток и каркасов-фиксаторов Днище. Фрагмент раскладки верхних сеток. План раскладки каркасов КП и КР Днище. Разрезы |
| Разработан: | ЦНИИпромзданий НИИЖБ Союзводоканалниипроект |
| Утверждён: | 17.11.1978 Госстрой СССР (Государственный комитет Совета Министров СССР по делам строительства) (USSR Gosstroy 2/3-409) |
| Заменяет собой: |
|




















