Скачать Типовой проект 901-4-61.83 Альбом VI. Технологические трубопроводы и сигнализация для резервуаров емкостью 50 - 20000 куб. м (из ТП 901-4-63.83)Дата актуализации: 01.01.2021
|
| Обозначение: | Типовой проект 901-4-61.83 |
| Обозначение англ: | 901-4-61.83 |
| Статус: | действует |
| Название рус.: | Альбом VI. Технологические трубопроводы и сигнализация для резервуаров емкостью 50 - 20000 куб. м (из ТП 901-4-63.83) |
| Дата добавления в базу: | 01.10.2014 |
| Дата актуализации: | 01.01.2021 |
| Дата введения: | 23.06.1983 |
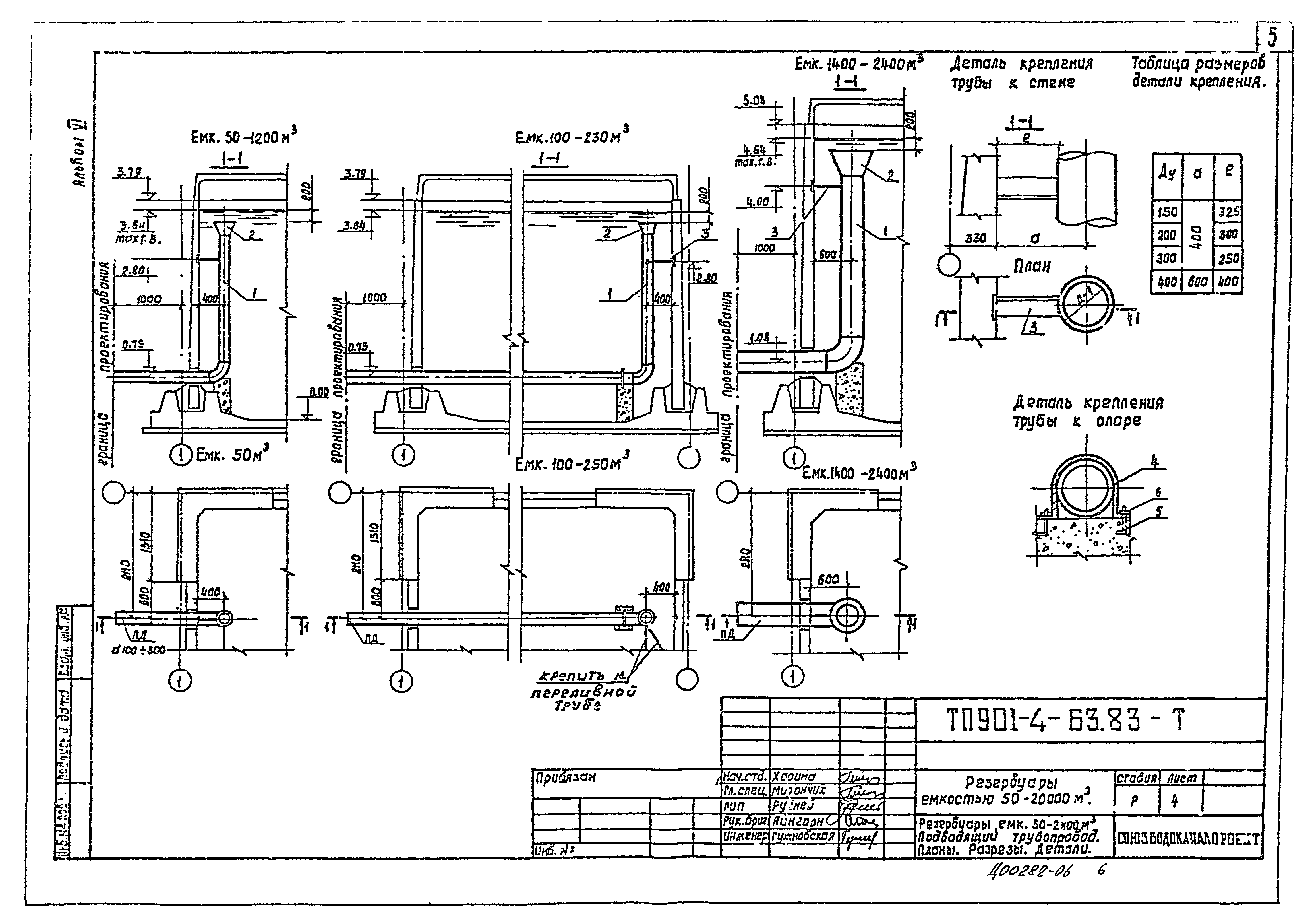
| Оглавление: | Чертежи основного комплекта марки Т Общие данные Резервуары емкостью 50 - 2400 куб. м. Планы Резервуары емкостью 2500 - 20000 куб. м. Планы Резервуары емкостью 50 - 2400 куб. м. Подводящий трубопровод. Планы. Разрезы. Детали Резервуары емкостью 50 - 2400 куб. м. Подводящий трубопровод. Спецификация Резервуары емкостью 50 - 2400 куб. м. Переливное устройство. Фрагмент плана. Разрезы Резервуары емкостью 50 - 2400 куб. м. Переливное устройство. Спецификация Резервуары емкостью 2500 - 20000 куб. м. Промывочный водопровод. Схема. Узлы Резервуары емкостью 2500 - 20000 куб. м. Промывочный водопровод. Спецификация Чертежи основного комплекта марки ЭА Общие данные Установка датчика уровня УКС-1 и первичного преобразователя уровнемера РУС-0 Установка датчика уровня ЭРСУ-3 (ЭРСУ-2) и нулевого электрода |
| Разработан: | ЦНИИпромзданий НИИЖБ Союзводоканалниипроект |
| Утверждён: | 17.11.1978 Госстрой СССР (Государственный комитет Совета Министров СССР по делам строительства) (USSR Gosstroy 2/3-409) |
| Заменяет собой: |
|














