Скачать Серия ПР-05-36.1 Ворота распашные 4,7х5,6 м с автоматическим открыванием и воздушными завесами. Архитектурно-строительная частьДата актуализации: 01.01.2021
|
| Обозначение: | Серия ПР-05-36.1 |
| Обозначение англ: | Series ПР-05-36.1 |
| Статус: | отменен |
| Название рус.: | Ворота распашные 4,7х5,6 м с автоматическим открыванием и воздушными завесами. Архитектурно-строительная часть |
| Дата добавления в базу: | 01.10.2014 |
| Дата актуализации: | 01.01.2021 |
| Дата введения: | 30.12.1961 |
| Дата окончания срока действия: | 01.10.1977 |
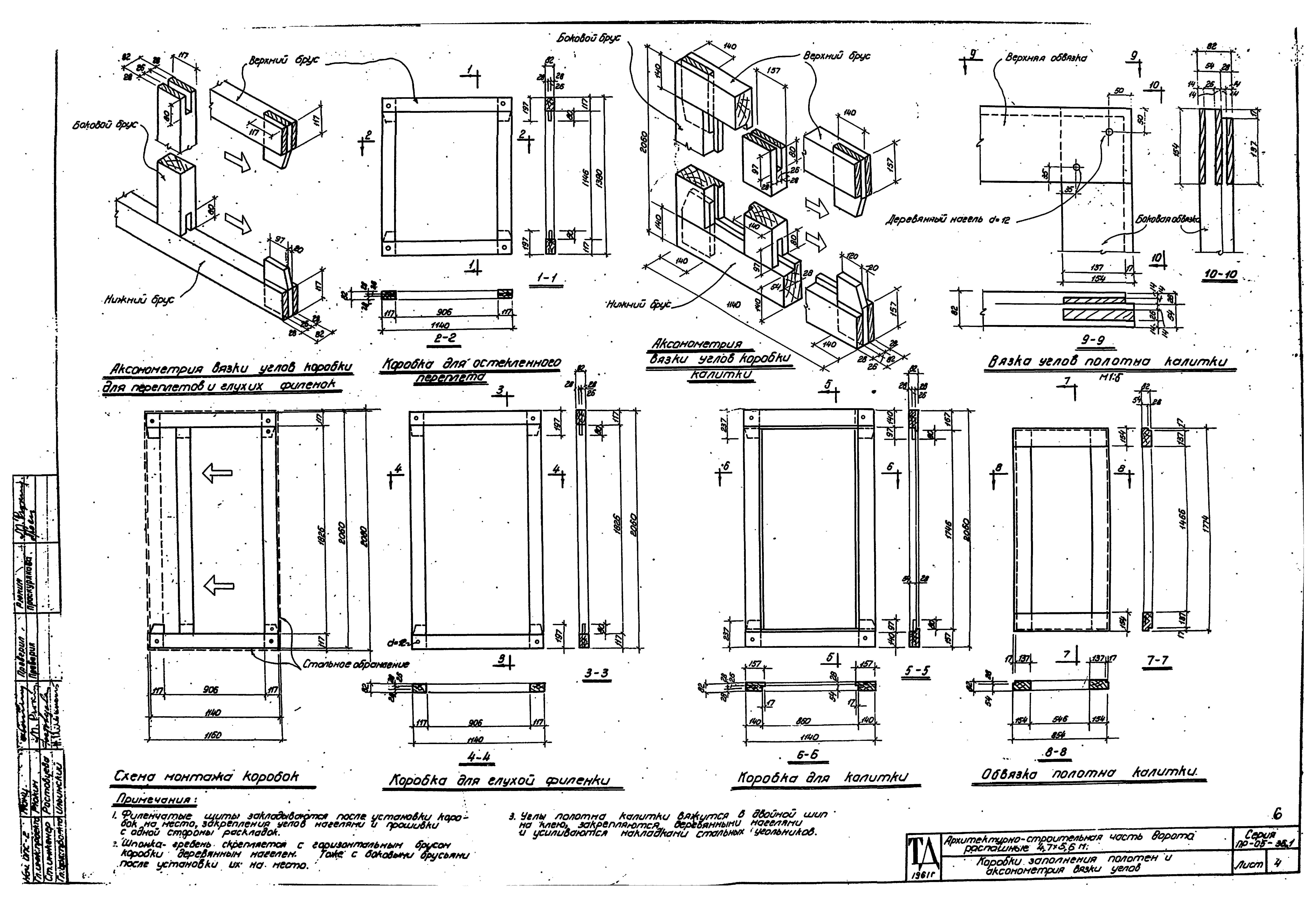
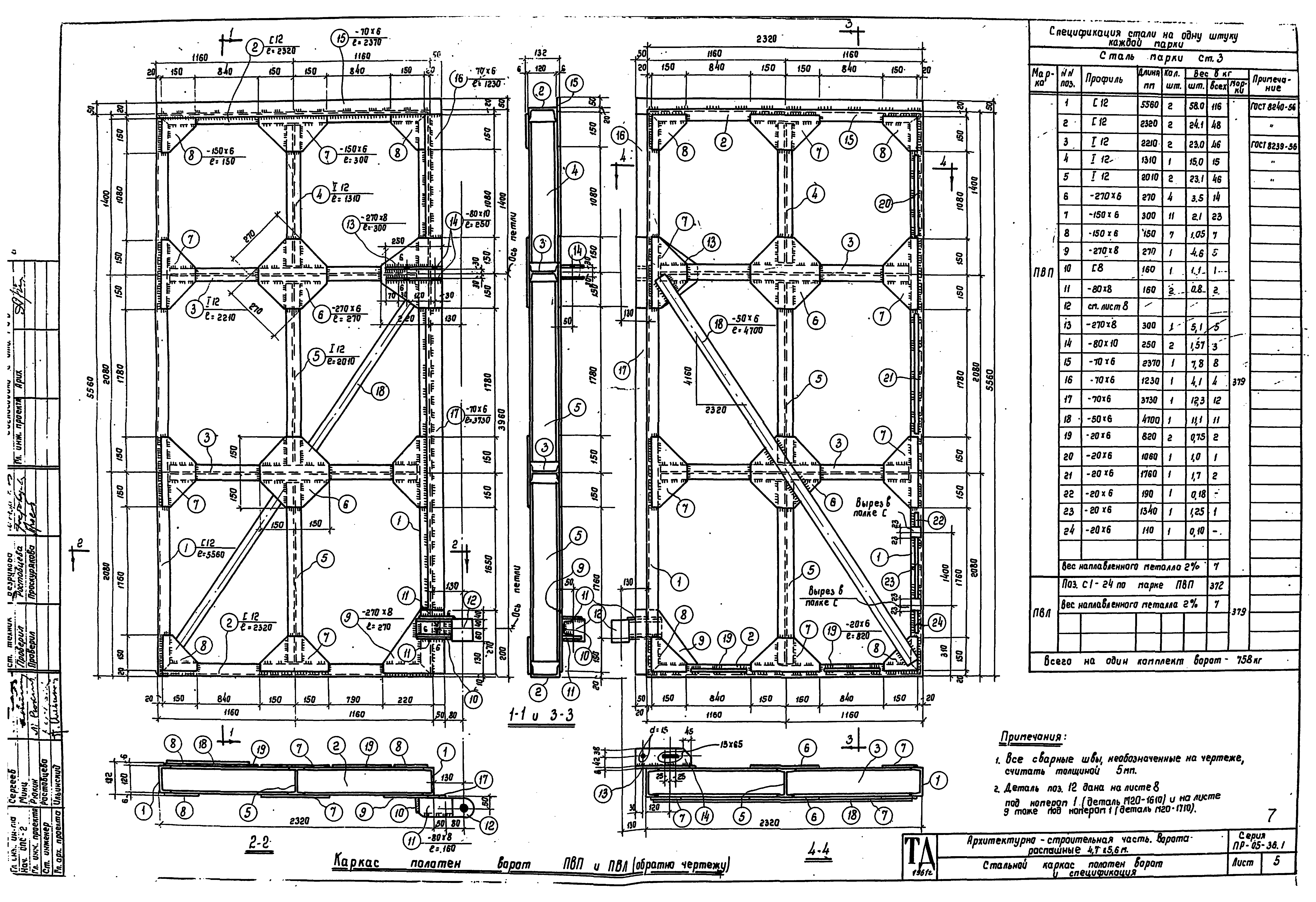
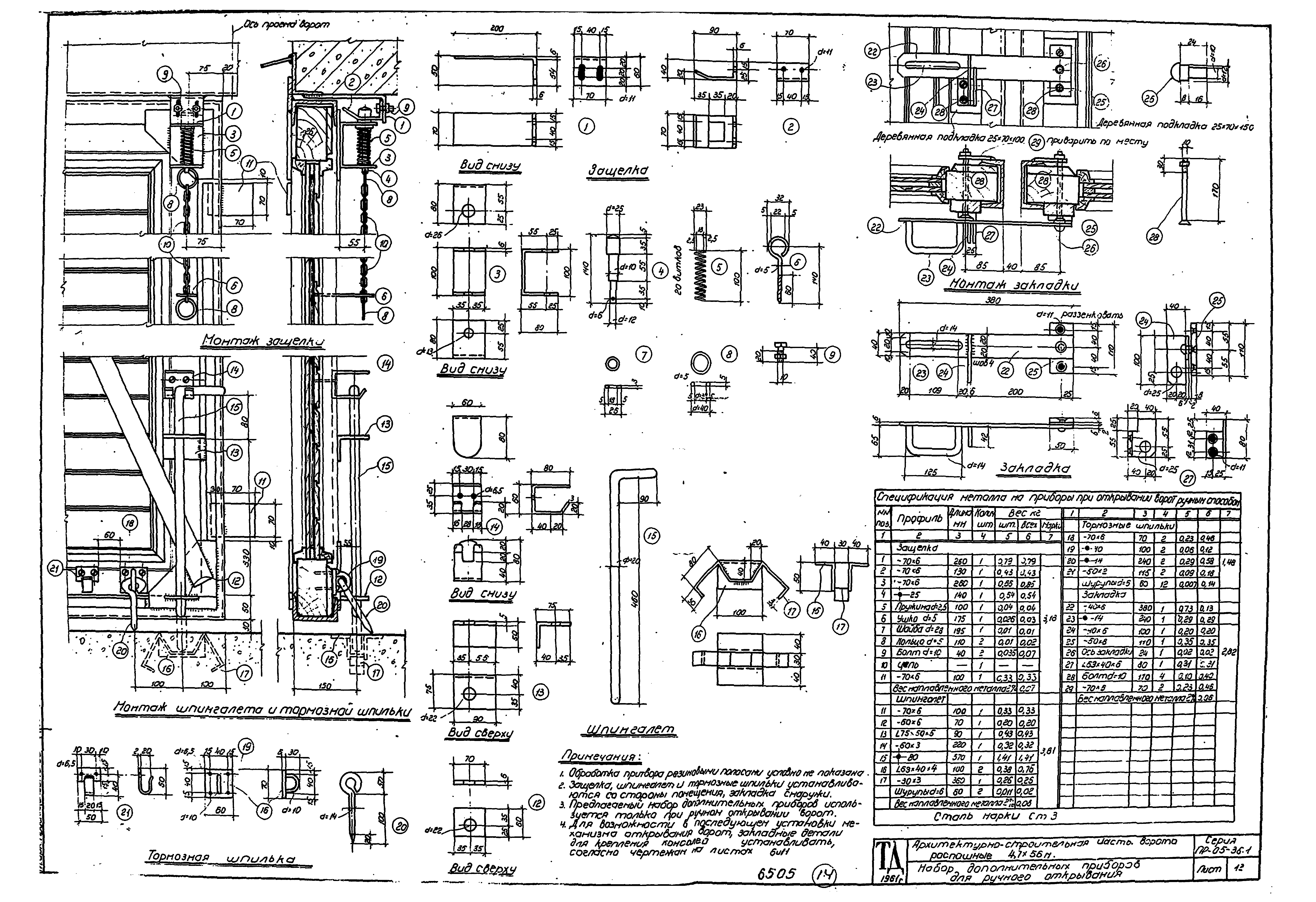
| Оглавление: | Предисловие Пояснительная записка. Перечень листов. Условные обозначения Общий вид ворот и сводная спецификация материалов Детали сечений полотен ворот Коробки заполнения полотен и аксонометрия вязки углов Стальной каркас полотен ворот и спецификация Сборная железобетонная рама проема ворот. Общий вид рамы. Детали Сборная железобетонная рама проема ворот. Каркасы, закладные детали и спецификация Детали верхних петель Детали нижних петель Скоба воротная и щеколда фалевая Площадка (консоли) для установки механизма открывания Набор дополнительных приборов для ручного открывания |
| Разработан: | Гипротис |
| Утверждён: | 30.12.1961 Гипротис (265) |













